Размещено на портале Архи.ру (www.archi.ru)

27.12.2018

Между прошлым и будущим

Алёна Кузнецова
Объект:
Жилой комплекс Futurist
Адрес:
Россия, Санкт-Петербург. Барочная ул., 4
Мастерская:
Евгений Герасимов и партнеры
Авторский коллектив:
Руководитель авторского коллектива: Евгений Герасимов
Главный архитектор проекта: З.В. Петрова
Архитекторы: Е.А. Резникова (рук. группы), И.В. Хухка (ведущий архитектор проекта), Е.В. Боченкова, С.В. Егорова, А.Г. Гвоздик, М.И. Горбатенкова, М.И. Кузнецов;
Главный конструктор: М.Я. Резниченко
Конструкторы: Д.А. Астапчик (зам. главного конструктора), А.А. Прокофьев (рук. группы конструкторов), М.Л. Ингер, А.С. Блинова, А.С. Денисов, С.П. Ненашев, А.С. Алимирзоев, О.Н. Шевченко;
Генплан: Е.Н. Кузнецова, А.С. Титова;
Инженерные разделы: “Питер Мастеровой”
Главный инженер проекта: Н.В. Гражданова

ЖК Futurist балансирует на грани постконструктивизма и ар-деко, аккуратно вписываясь в респектабельную застройку Петроградской стороны. Но основная его задача – раскрыть здание Левашовского хлебозавода и тем самым вдохнуть в него жизнь.

Жилой комплекс Futurist. Панорамный вид сверху
Жилой комплекс Futurist. Панорамный вид сверху
© Евгений Герасимов и партнеры

Проект элитного жилого комплекса Futurist – это одновременно проект редевелопмента Левашовского хлебозавода, который располагается в треугольнике, образованном улицами Барочная, Большая Зеленина и Левашовским проспектом, недалеко от места, где Карповка впадает в Неву. Завод построили в 1933 году по проекту инженера Георгия Марсакова. Он разработал технологию вертикально-кольцевого цикла приготовления хлеба, в соответствии с которой здание и получило свои формы: врезанные друг в друга цилиндры производственного здания и котельной, перекрытой куполом. Завод известен тем, что во время блокады без перебоев выпекал хлеб.
Вид здания завода с западной стороны участка, окончание строительства. 1933 г. ЦГА КФФД. Др 10979
Вид здания завода с западной стороны участка, окончание строительства. 1933 г. ЦГА КФФД. Др 10979
© Евгений Герасимов и партнеры

В 2012 году здание признали памятником регионального значения, производство переехало на новое место. Хлебозавод пустовал до 2016 года, пока его вместе с соседним участком площадью в 2,5 га не выкупила девелоперская Группа RBI, решившая вложить деньги и в строительство жилья, и в реконструкцию памятника.
Фотофиксация, 2016
Фотофиксация, 2016
© Евгений Герасимов и партнеры
Фотофиксация, состояние купола котельной на 2016
Фотофиксация, состояние купола котельной на 2016
© Евгений Герасимов и партнеры

Проект, разработанный архитектурным бюро «Евгений Герасимов и партнеры», решает три задачи: построить коммерчески выгодное жилье, упорядочить застройку квартала и включить в городскую повседневность памятник, который долгое время прятался за заборами и позднейшими пристройками.

Начать, пожалуй, стоит с последнего. Объемно-планировочные решения, исторические фасады, лестницы, трубу завода полностью сохраняют, а около 15 зданий советского периода, которые не входят в границы памятника и не признаны ценными, но создают визуальный «шум» – сносят. Компания Development Systems уже представила трехмерную BIM-модель Левашовского хлебозавода, созданную на основе лазерного сканирования комплекса.
Жилой комплекс Futurist. Площадь
Жилой комплекс Futurist. Площадь
© Евгений Герасимов и партнеры
Жилой комплекс Futurist. Разрезы
Жилой комплекс Futurist. Разрезы
© Евгений Герасимов и партнеры

Концепцию использования подготовило Агентство городских преобразований Genius Loci. Здание превратится в культурный центр с выставочными и лекционными площадками, кафе-пекарней, арт-объектами, книжным магазином, офисами, а также экспозицией, посвященной блокаде Ленинграда.

Перед главным входом со стороны Левашовского проспекта появится «парадная» площадь, а со стороны Большой Зеленина – арт-сквер. Само здание будет хорошо просматриваться с прилегающих улиц.
Жилой комплекс Futurist. Площадь
Жилой комплекс Futurist. Площадь
© Евгений Герасимов и партнеры

Новые жилые корпуса, обрамляющие хлебозавод, расположены не самым тривиальным образом. Два из них, по Барочной улице и Левашовскому проспекту, закрывают лакуны в существующей застройке начала XX века. В соответствии с планиметрией Барочной улицы поставлен внутриквартальный девятиэтажный корпус – самый высокий и протяженный. Его ступенчатой части вторят три корпуса, выстроенных по диагонали и постепенно понижающих высоту до трех этажей в сторону улицы Большая Зеленина, где приблизиться к красной линии не позволяют существующие деревья. Последний, седьмой корпус, расположен на углу. Евгений Герасимов рассказывает, что такая планировочная структура отчасти была навеяна Тракторной улицей, где дома соединяются полуарками, отчасти набережной Лейтенанта Шмидта, изгиб которой акцентируется углами; сыграли свою роль и нормы инсоляции. Так или иначе, линии генплана получились весьма авангардными.
Жилой комплекс Futurist. Проект ландшафтного дизайна
Жилой комплекс Futurist. Проект ландшафтного дизайна
© Евгений Герасимов и партнеры
Жилой комплекс Futurist. Панорамный вид сверху
Жилой комплекс Futurist. Панорамный вид сверху
© Евгений Герасимов и партнеры

Улица Большая Зеленина здесь словно бы вывернута наизнанку. Дисперсная разновысотная застройка напоминает классические дворы Петербурга – с «колодцами», пристройками, лабиринтами переходов и арок. А «парадная» часть как раз за ними. Только это не классический фасад, а конструктивистский завод, чем ближе к которому, тем почтительнее снижают высоту новые корпуса, уподобляясь откинутой кулисе.
Жилой комплекс Futurist. Развертка по ул. Большая Зеленина
Жилой комплекс Futurist. Развертка по ул. Большая Зеленина
© Евгений Герасимов и партнеры

Таким образом открывается вид на Левашовский хлебозавод со стороны прилегающих к нему улиц; акцент усилен парадной площадью и арт-сквером. Вместе они создают большое общественное пространство, которое дополняет ряд приватных дворов, доступных только жителям комплекса. И архитекторы, и заказчик уделили много внимания благоустройству, поставив перед собой задачу сделать его образцовым.
Жилой комплекс Futurist. Сквер
Жилой комплекс Futurist. Сквер
© Евгений Герасимов и партнеры

Ступенчатая конфигурация нового квартала позволила создать систему двориков и площадей, где можно по-разному проводить время на открытом воздухе. Самая активная жизнь – вокруг протяженного корпуса, на первом этаже которого разместится конференц-зал, спа-зона и небольшой тренажерный зал. С одной стороны к нему примыкает рекреационная зона с детскими и спортивными площадками, с другой – променад, где можно гулять с коляской или кататься на велосипеде. Брандмауэр исторического здания, выходящего в этот дворик, оформляют вертикальным озеленением. В других дворах есть мозаичные панно, беседки или скамейки под деревьями, под одной из арок расставлены столы для настольного тенниса и доски для рисования. От общедоступных городских зон комплекс отделяет живая изгородь.
Жилой комплекс Futurist. Двор
Жилой комплекс Futurist. Двор
© Евгений Герасимов и партнеры

Попасть во внутренний двор можно только через два общих для всего комплекса вестибюля в корпусах со стороны улиц Барочная и Большая Зеленина. Вход в остальные жилые корпуса со двора.

Концепция благоустройства подхватывает супрематическую композицию генплана, играя теми же прямоугольниками и окружностями, но меньшего масштаба. Ритм задают геометричные узоры мощения, на фоне которых с определенной логикой распределены другие «фигуры»: деревянные настилы, ровно подстриженные кустарники, группы деревьев. К существующим деревьям подсадят много новых: сосны и ели, дубы, клены, ивы, рябины.

Что касается фасадов зданий, то они намеренно просты, но ориентированы не столько на архитектуру авангарда, хотя его отзвук ощущается в угловых балконах ступенчатой части протяженного корпуса, – а скорее на ранний постконструктивизм, по подобию дома Ленсовета на Карповке, – поскольку стремятся выполнять роль уместной оправы для памятника архитектуры 1930-х. С другой стороны, фасады новых домов отделаны камнем, что в Советской России в тридцатые годы почти не практиковалось, но в данном случае должно совместить исторический прообраз «пролетарского ар-деко» с современным требованием буржуазной респектабельности. Так что цокольный этаж отделан темным гранитом разных фактур, рустованным горизонтальными полосами с широкими желобками. Выше – натуральный юрский камень, тонкая разгранка, плиты подоконников, «штроки» каннелюр по сторонам оконных проемов и расположенные в шахматном порядке рельефные каменные вставки. Последние напоминают, с одной стороны, здание, построенное Евгением Герасимовым в Ковенском переулке, а с другой стороны – многие примеры 1930-х годов, к примеру, рудневские фасады Академии имени Фрунзе.
Жилой комплекс Futurist. Фрагмент фасада
Жилой комплекс Futurist. Фрагмент фасада
© Евгений Герасимов и партнеры
Жилой комплекс Futurist. Ручная графика
Жилой комплекс Futurist. Ручная графика
© Евгений Герасимов и партнеры
Жилой комплекс Futurist. Ручная графика
Жилой комплекс Futurist. Ручная графика
© Евгений Герасимов и партнеры
Жилой комплекс Futurist. Ручная графика
Жилой комплекс Futurist. Ручная графика
© Евгений Герасимов и партнеры

Небольшие квадраты рельефов восходят как на советские прообразы в духе ВСХВ, так и на более строгие формы зарубежного ар-деко. Золотистые колоски вентиляционных решеток, кажется, ближе образам Страны Советов, во всяком случае, тематически – но в целом, исключая дорогие материалы, фасады почти не выходят за рамки раннесталинской стилистики.
Жилой комплекс Futurist. Ручная графика
Жилой комплекс Futurist. Ручная графика
© Евгений Герасимов и партнеры

Выраженной пластикой наделены только два корпуса с общественными вестибюлями: вход по улице Большая Зеленина отмечен асимметрично расположенным портиком с полуколоннами без капителей в духе «красной дорики» Ивана Фомина, корпус по Барочной оформлен рядом треугольных эркеров.
Жилой комплекс Futurist
Жилой комплекс Futurist
© Евгений Герасимов и партнеры
Жилой комплекс Futurist. Барочная ул.
Жилой комплекс Futurist. Барочная ул.
© Евгений Герасимов и партнеры

В интерьерах входных зон явственнее прочитывается влияние западного ар-деко, одновременно строгого и по-своему помпезного. Здесь использован искусственный мрамор, черное стекло, деревянные переплеты и ковровые рельефы с геометрическим орнаментом.
Жилой комплекс Futurist. Основной вестибюль 4 корпуса
Жилой комплекс Futurist. Основной вестибюль 4 корпуса
© Евгений Герасимов и партнеры
Жилой комплекс Futurist. Основной вестибюль 4 корпуса
Жилой комплекс Futurist. Основной вестибюль 4 корпуса
© Евгений Герасимов и партнеры

Все семь корпусов расположены на общем подземном паркинге. В первых этажах запланированы кафе, магазины и другие арендные помещения. Комплекс рассчитан на 199 квартир площадь 50 до 190 м2; из большинства окон открываются виды на Крестовский остров и Малую Неву, Петроградскую сторону и здание Левашовского хлебозавода.

Проект ЖК Futurist отмечен Серебряным знаком международного фестиваля «Зодчество» 2018. Построить и открыть комплекс планируют к 2022 году.
 
Жилой комплекс Futurist. Развертка по Левашовскому проспекту
Жилой комплекс Futurist. Развертка по Левашовскому проспекту
© Евгений Герасимов и партнеры
Жилой комплекс Futurist. Развертка по Барочной ул.
Жилой комплекс Futurist. Развертка по Барочной ул.
© Евгений Герасимов и партнеры
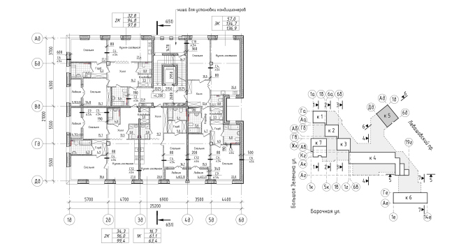
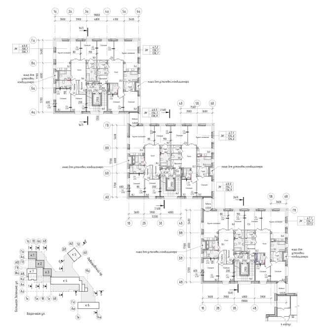
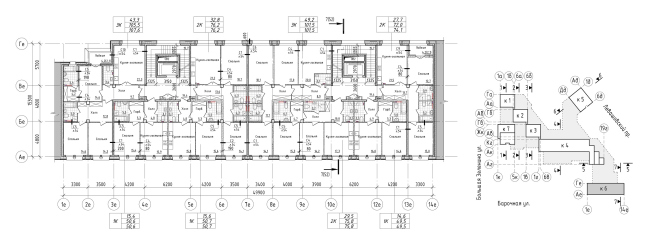
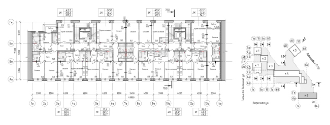
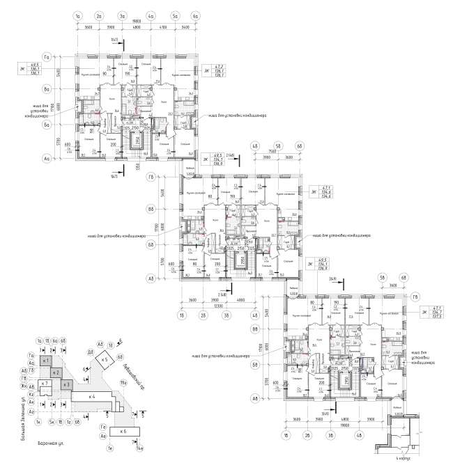
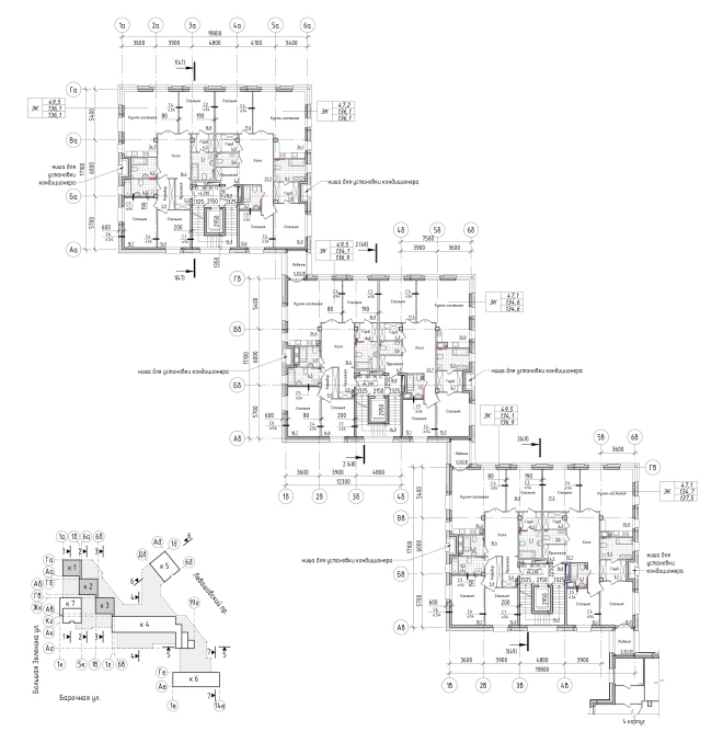
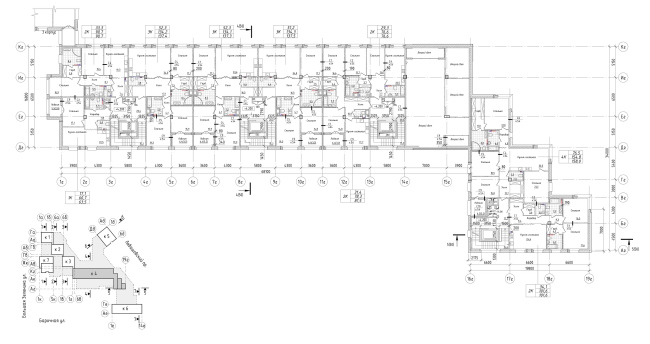
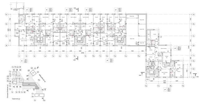
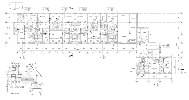
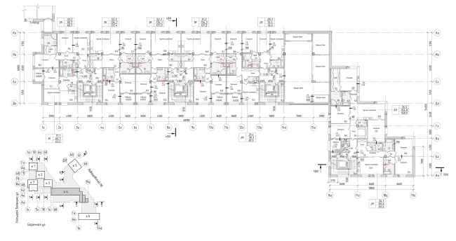
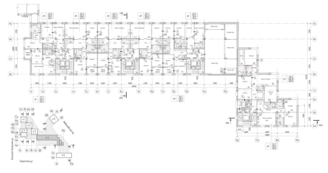
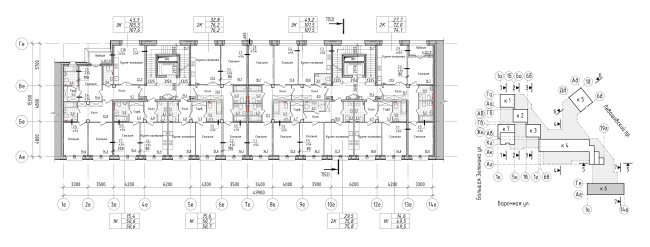
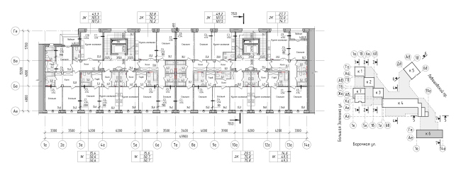
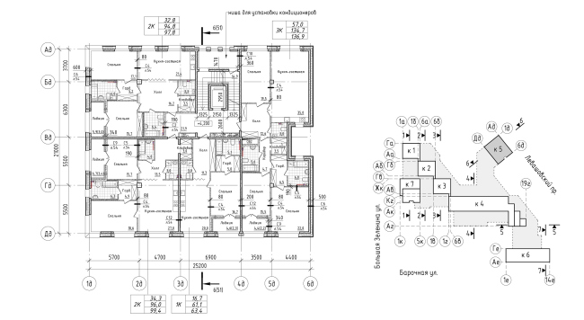
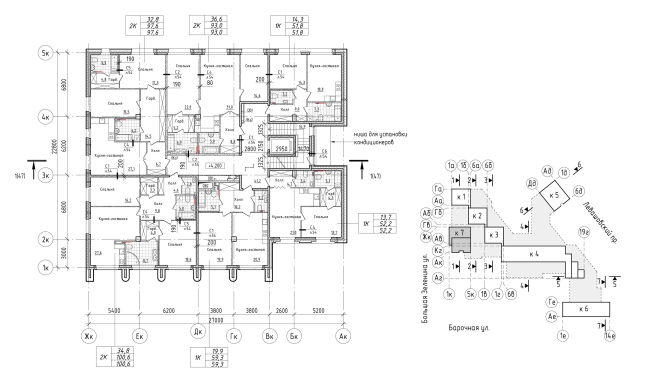
Жилой комплекс Futurist. 1-3 корпус, типовой этаж
Жилой комплекс Futurist. 1-3 корпус, типовой этаж
© Евгений Герасимов и партнеры
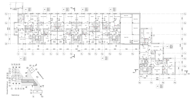
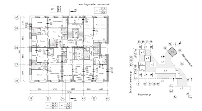
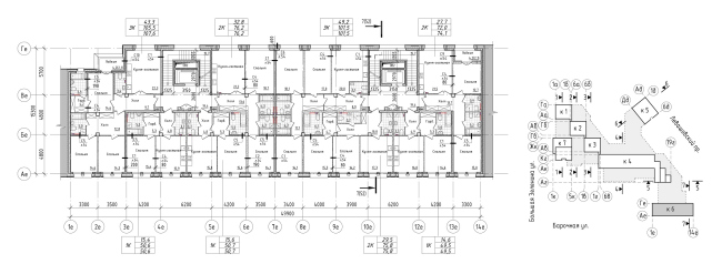
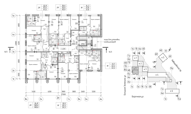
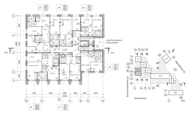
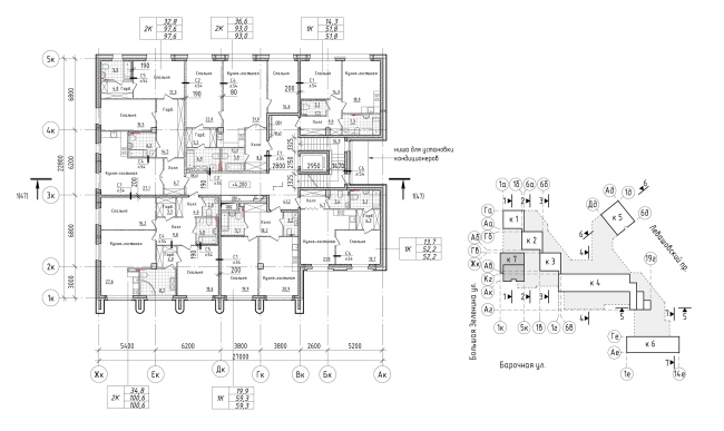
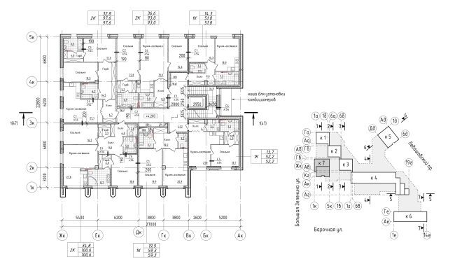
Жилой комплекс Futurist. 4 корпус, типовой этаж
Жилой комплекс Futurist. 4 корпус, типовой этаж
© Евгений Герасимов и партнеры
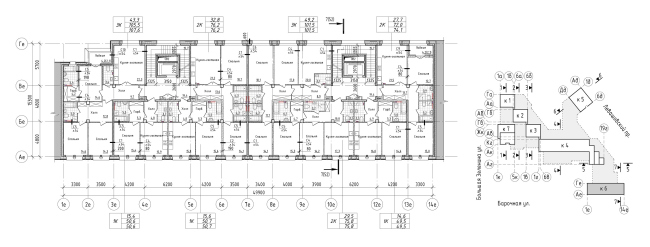
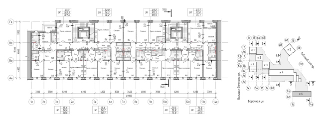
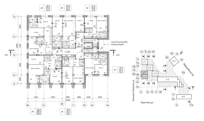
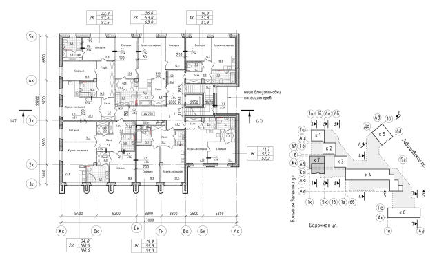
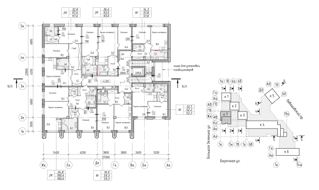
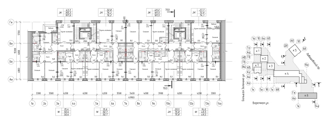
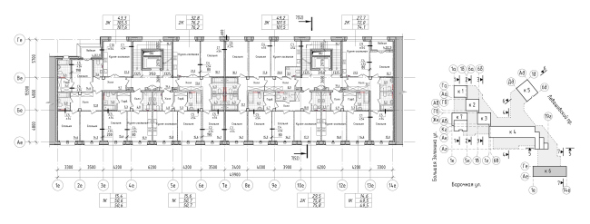
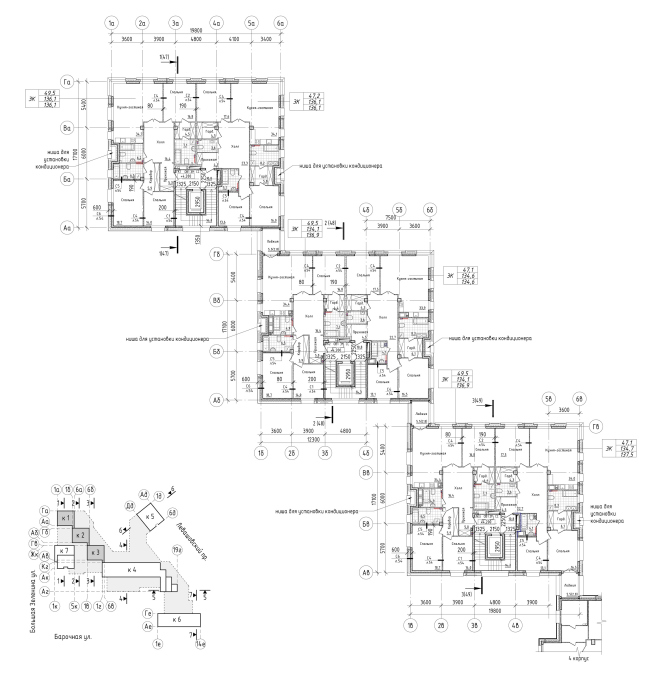
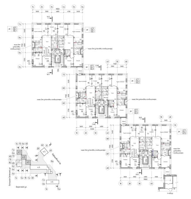
Жилой комплекс Futurist. 5 корпус, типовой этаж
Жилой комплекс Futurist. 5 корпус, типовой этаж
© Евгений Герасимов и партнеры
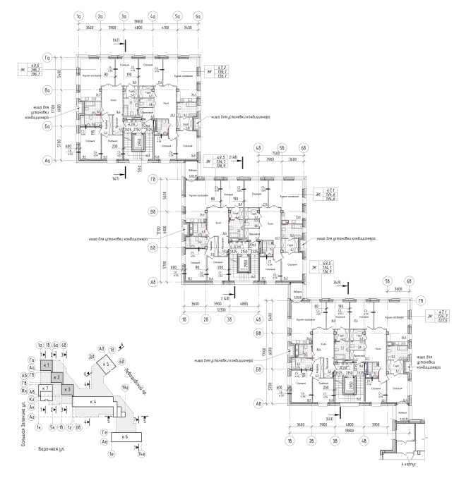
Жилой комплекс Futurist. 6 корпус, типовой этаж
Жилой комплекс Futurist. 6 корпус, типовой этаж
© Евгений Герасимов и партнеры
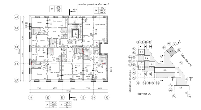
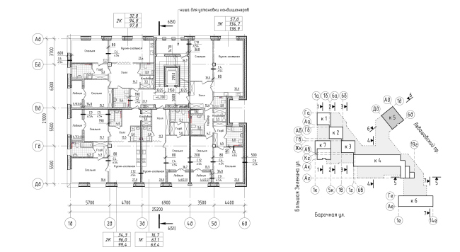
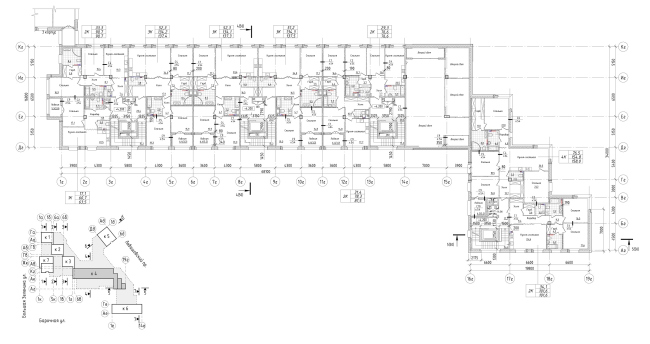
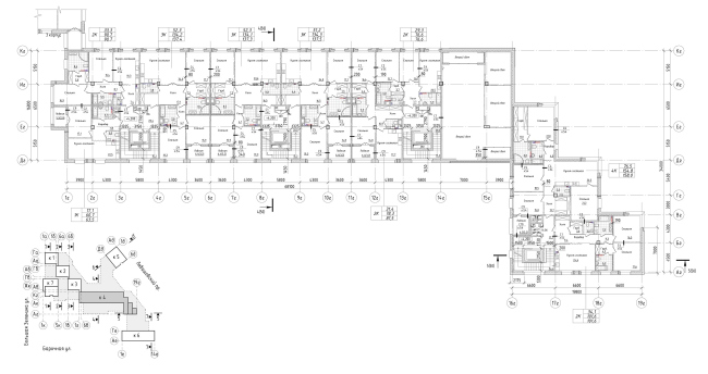
Жилой комплекс Futurist. 7 корпус, типовой этаж
Жилой комплекс Futurist. 7 корпус, типовой этаж
© Евгений Герасимов и партнеры
Жилой комплекс Futurist. Разрез по 1-7 корпуса
Жилой комплекс Futurist. Разрез по 1-7 корпуса
© Евгений Герасимов и партнеры