Размещено на портале Архи.ру (www.archi.ru)

25.12.2018

Архитектура здоровья

Елена Петухова
Объект:
Мастер-план международного медицинского кластера в Сколково
Адрес:
Россия, Москва.
Международный медицинский кластер в Сколково. Диагностический и терапевтический корпус
Адрес:
Россия, Москва.
Мастерская:
АБ ASADOV
Авторский коллектив:
Генпроектировщик: компания Транзумед – И.Александров
(рук.), А.Савченко (ГИП)
Архитекторы: А.А.Асадов (ГАП), А.Р.Асадов, К.Шепета, И.Шевченко, Т.Лебедева, Ю.Шалетри
Конструкторы, инженеры: компания Engex – А.Никифоров (рук.), Д.Мананников

Авторы первого корпуса Медицинского кластера, открывшегося в сентябре 2018 года в ИЦ «Сколково», бюро Асадова и компания Transumed нашли оригинальные решения для объектов здравоохранения, предложив новую типологию архитектуры здоровья

Международный медицинский кластер в Сколково. Диагностический корпус. Фотография © Архитектурное бюро Асадова, постройка, 2018
Международный медицинский кластер в Сколково. Диагностический корпус. Фотография © Архитектурное бюро Асадова, постройка, 2018

Нездоровые стереотипы
Какие ощущения и ассоциации возникают у любого человека при слове «больница» или «клиника»? Среди ощущений, скорее всего, преобладают тревожность и дискомфорт, так или иначе сопутствующие любому визиту в эти места. И ассоциации отнюдь не помогают делу. У каждого нашего соотечественника есть устойчивое представление о том, как выглядит больница. Лишь в редких случаях на память приходит патетический образ вроде Первой Градской больницы, построенной в 1802 году по проекту Матвея Казакова.
Историческое здание Городской клинической больницы № 1 имени Н. И. Пирогова, Изображение предоставлено Архитектурным бюро Асадова
Историческое здание Городской клинической больницы № 1 имени Н. И. Пирогова, Изображение предоставлено Архитектурным бюро Асадова

В подавляющем большинстве случаев человек, родившийся и выросший на постсоветском пространстве, имеет дело с наследием модернизма в виде типовых панельных поликлиник или брутальных больничных комплексов, типа онкоцентра на Каширке (1979 год, архитекторы: И. Виноградский, В. Орлов, А. Ечеистов, Е. Бекрицкий, В. Антонов), не раз упоминавшийся, как одно из наиболее уродливых зданий Москвы.
Здание ФГБУ НМИЦ онкологии им. Н.Н. Блохина Минздрава России на Каширском шоссе. Изображение предоставлено Архитектурным бюро Асадова
Здание ФГБУ НМИЦ онкологии им. Н.Н. Блохина Минздрава России на Каширском шоссе. Изображение предоставлено Архитектурным бюро Асадова

Причина – не столько качество архитектуры, сколько ее антигуманный характер. Типичность подобной трактовки объектов здравоохранения никак не способствует оптимистичному отношению людей к любым больницам. Неудивительно, что в России не любят обращаться за медицинской помощью. Как показали исследования 2016 года, что 54,2% респондентов идут в клинику только при тяжелой форме болезни, а почти 18,4% вообще не обращаются за профессиональной помощью.

Какой может и должна быть архитектура объектов здравоохранения в XXI веке? В мире уже больше полувека идут поиски новых форм, в которых принимают участие ведущие архитекторы. Примером могут служить онкологические центры Мэгги или проекты и постройки из шорт-листа WAF-2018 в номинации «Здоровье».

В нашей стране эта проблематика пока мало акцентирована и преимущественно решается при помощи оформительских приемов. Но ситуация начинает меняться и не в последнюю очередь, благодаря усилиям архитектурного бюро Асадова, получившего в 2011 году «Хрустального Дедала» за Центр детской гематологии, и в этом году вошедшего в шорт лист WAF с первым корпусом Международного Медицинского кластера в ИЦ «Сколково», в проекте которого авторы поставили перед собой задачу изменить стереотипы и реализовать идею оздоравливающей архитектуры, архитектуры здоровья.

Особая зона – особые правила
В инновационном центре «Сколково» соединились несколько ключевых факторов, главный – близость к Москве, что может обеспечить обширную клиентскую аудиторию и значительное число потенциальных инвесторов. Следующий фактор – широкий диапазон экономических и юридических свобод резидентов иннограда. С финансовыми ресурсами правительства Москвы получится уникальное в своем роде сочетание, результатом которого стал проект Международного медицинского кластера.
Международный медицинский кластер в Сколково.  Генплан с указанием территорий, арендованных Правительством Москвы для размещения объектов ММК. Изображение предоставлено Архитектурным бюро Асадова
Международный медицинский кластер в Сколково. Генплан с указанием территорий, арендованных Правительством Москвы для размещения объектов ММК. Изображение предоставлено Архитектурным бюро Асадова

Тимур Андрбаев, директор проектов Фонда Международного Медицинского кластера (ММК), так комментирует концепцию и историю его создания: «Международный медицинский кластер – уникальный социальный проект правительства Москвы для привлечения в Россию лучших мировых медицинских практик и образовательных технологий, для обмена опытом между российскими и зарубежными специалистами. Реализовать концепцию ММК стало возможно благодаря особому правовому и экономическому режиму функционирования иннограда, закрепленному в федеральном законе «Об инновационном центре «Сколково». Правительство Москвы арендовало часть территории иннограда и начало реализацию программы согласно принятому в июне 2015 года федеральному закону №160-ФЗ «О международном медицинском кластере», по которому на территории ММК будут одновременно действовать законодательство о здравоохранении РФ и любой страны, входящей в состав ОЭСР. На практике это означает, что во всех клиниках и учреждениях, входящих в ММК, разрешается применение медицинских технологий, препаратов и оборудования, сертифицированных в странах ОЭСР, без дополнительной регистрации в России, кроме того, зарубежным врачам и медицинскому персоналу не нужно получать разрешения на работу и квоты, а также переподтверждать дипломы о квалификации медицинских работников, выданные в странах ОЭСР».

Город здоровья
В рамках программы ММК под медицинскую специализацию были выделены значительные территории в районах D1 и D4, общей площадью 57 га, на которых планируется возведение не менее 15 больниц и клиник, специализирующихся на онкологии, кардиологии, ортопедии, травматологии и неврологии, и рассчитанных на прием до 300 тысяч посетителей в год, а также исследовательских и учебных центров, апартаментов для пациентов и врачей.
Международный медицинский кластер в Сколково. Расположение блока первой очереди на генплане ИЦ «Сколково». Изображение предоставлено Архитектурным бюро Асадова
Международный медицинский кластер в Сколково. Расположение блока первой очереди на генплане ИЦ «Сколково». Изображение предоставлено Архитектурным бюро Асадова
Международный медицинский кластер в Сколково. Уточненный генплан района D-1 с объектами ММК. Изображение предоставлено Архитектурным бюро Асадова
Международный медицинский кластер в Сколково. Уточненный генплан района D-1 с объектами ММК. Изображение предоставлено Архитектурным бюро Асадова

Генплан района D1 пришлось скорректировать с учетом требований, предъявляемых к медицинским объектам и сопутствующей инфраструктуре. Эту работу оперативно выполнила проектная команда из компаний Transumed и бюро Асадова, получившие заказ на проектирование первого объекта программы ММК – диагностической клиники, и, одновременно, образовательного и презентационного центра будущего кластера. Консультантом корректировки генплана выступила компания The Boston Consulting Group (BCG), курировавшая разработку программы ММК​.

Фокусный блок
Основное внимание проектной команды было обращено на первую очередь кластера, расположенную в важной градостроительной точке – недалеко от КПП-3, одного из основных въездов на территории ИЦ «Сколково». Блок из трех корпусов: компактного диагностического, z-образного в плане терапевтического и междисциплинарного, имеющего конфигурацию ассиметричного катамарана, разместился на почти квадратном участке площадью 2,82 га. Первые два корпуса соединялись между собой общей входной зоной с атриумным пространством, а третий располагался на небольшом расстоянии от них, вдоль дальней границы участка.
Международный медицинский кластер в Сколково. Диагностический корпус © Архитектурное бюро Асадова
Международный медицинский кластер в Сколково. Диагностический корпус © Архитектурное бюро Асадова
Международный медицинский кластер в Сколково. Визуаизация блока первой очереди © Архитектурное бюро Асадова
Международный медицинский кластер в Сколково. Визуаизация блока первой очереди © Архитектурное бюро Асадова

Изначально планировалось одновременное строительство первого и второго корпуса, но правительство Москвы выделило средства только на первый, для которого в 2016 году был выбран со-инвестор и оператор – знаменитая иерусалимская больница Hadassah, вложившая около $40 млн в оснащение, организацию образовательной деятельности и покрытие операционных расходов. Так что архитекторам пришлось предусмотреть временную «заглушку» в той части атриума, которая должна была соединяться со вторым корпусом.
Международный медицинский кластер в Сколково. Блок первой очереди © Архитектурное бюро Асадова
Международный медицинский кластер в Сколково. Блок первой очереди © Архитектурное бюро Асадова
 

Первая ласточка
Пилотный объект Международного медицинского кластера необходимо было спроектировать и построить в рекордно короткий срок. Справиться с жесткими временными рамками и выполнением всех требований иностранного оператора могла только сыгранная команда, которой и стал тандем из компании «Transumed GmbH Medizintechnik» и бюро Асадова. Принципы работы и распределение функций комментирует Ирина Александрова, управляющая «Transumed GmbH Medizintechnik» (Германия): «Наша компания предлагает клиентам весь спектр услуг в проектировании, строительстве и оснащении медицинским оборудованием современных клиник. Вместе с бюро Асадова мы разработали проект диагностической клиники для фонда ММК и медицинского оператора «Хадасса» (Израиль). Transumed отвечала за общий менеджмент и координацию работы российских и иностранных участников, архитектурные, инженерные технологические решения, отвечающие стандартам ИЦ «Сколково», а также за рабочую документацию и интерьеры медицинских помещений, а команда Андрея Асадова – за корректировку генплана кластера, объемно-пространственные и фасадные решения, кроме того: интерьеры атриума и фойе конференц-зала».
Международный медицинский кластер в Сколково. Диагностический корпус. Фотография © Архитектурное бюро Асадова, постройка, 2018
Международный медицинский кластер в Сколково. Диагностический корпус. Фотография © Архитектурное бюро Асадова, постройка, 2018
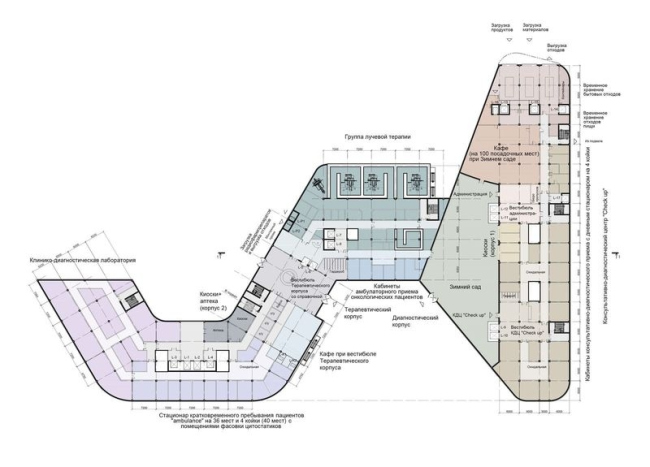
Международный медицинский кластер в Сколково. Диагностический корпус. Планы основных этажей © Архитектурное бюро Асадова
Международный медицинский кластер в Сколково. Диагностический корпус. Планы основных этажей © Архитектурное бюро Асадова

Согласно техзаданию, в первом диагностическом корпусе нужно было разместить пять групп помещений. Первая – многофункциональное пространство на входе, объединяющее ресепшн, зону ожидания с кафе и зимним садом. Вторая – диагностический центр «check up» с кабинетами врачей и стационаром, занимающий три этажа справа от атриума. Слева от атриума находятся офисные помещения, а также конференц-зона на третьем этаже с отдельным лобби и конференц-залом. Над диагностическим блоком, на четвертом этаже клиники, размещен учебно-тренажерный центр с классами, оборудованными всем необходимым для обучения врачей и медсестер, в том числе дистанционного. Последняя группа – технические и подсобные помещения сосредоточены в подвальном и частично на первом этаже, где они не мешают системе распределения потоков посетителей. Благодаря четкому зонированию все блоки удалось компактно разместить, не выходя за высотные границы в 15 метров (4 этажа), заданные дизайн-кодом ИЦ «Сколково».
Международный медицинский кластер в Сколково. Диагностический корпус. Фотография © Архитектурное бюро Асадова
Международный медицинский кластер в Сколково. Диагностический корпус. Фотография © Архитектурное бюро Асадова
Международный медицинский кластер в Сколково. Диагностический корпус. Конференц-зал. Фотография © Архитектурное бюро Асадова
Международный медицинский кластер в Сколково. Диагностический корпус. Конференц-зал. Фотография © Архитектурное бюро Асадова
Международный медицинский кластер в Сколково. Интерьер палаты. Фотография © Архитектурное бюро Асадова
Международный медицинский кластер в Сколково. Интерьер палаты. Фотография © Архитектурное бюро Асадова

Шоу-рум здоровья
Несмотря на компактные размеры и сдержанную пластику первый корпус должен был выполнять важную градостроительную и презентационную функцию. Помимо уже упомянутого расположения на въезде и роль витрины всего будущего Медкластера, в архитектуре здания должны были быть ясно обозначены приметы новой типологии объектов здравоохранения. По словам Андрея Асадова, «ключевой задачей для нас, как для архитекторов, было создание образа больницы будущего, пространства, которое не угнетает или подавляет, а оздоровляет само по себе. Оно должно энергетически настраивать на оптимистичный лад, снижать уровень стресса, вызванного страхом и болью, и ускорять процесс выздоровления. На эту цель должно работать все: свет, воздух, цвет, присутствие природной среды, легкость, воздушность, атмосфера, и так далее. Все то, что будет способствовать привлекательности будущего центра, а значит – способствовать превентивной заботе о своем здоровье его посетителей. Разрабатывая архитектурные и интерьерные решения, мы постарались соблюсти пять ключевых принципов – инновационный облик, энергоэффективность и экологичность конструктивных и инженерных решений, многофункциональность и комфортность. И мы сами не ожидали, что наши усилия принесут такой сильный и позитивный эффект».
Международный медицинский кластер в Сколково. Диагностический корпус. Фотография © Архитектурное бюро Асадова, постройка, 2018
Международный медицинский кластер в Сколково. Диагностический корпус. Фотография © Архитектурное бюро Асадова, постройка, 2018

Внешняя кардиограмма
Идеи инновационности и энергоэфективности полностью реализованы во внешней оболочке диагностического корпуса. Фасады представляют собой легкую витражную систему с энергосберегающим стеклом с высокими показателями теплоизоляции. Снаружи витраж частично прикрывает структура из вертикальных металлических ламелей, установленных под углом к фасадной плоскости, следуя за ее поворотами и скруглениями. Все ламели окрашены со стороны здания в белый цвет, а с внешней – в один из двух подобранных с учетом зрительного комфорта зеленых оттенков. Благодаря такой двусторонней окраске, при взгляде на здание с разных ракурсов возникает эффект фасада-«хамелеона».
Международный медицинский кластер в Сколково. Диагностический корпус. Фотография © Архитектурное бюро Асадова, постройка, 2018
Международный медицинский кластер в Сколково. Диагностический корпус. Фотография © Архитектурное бюро Асадова, постройка, 2018

Частота установки ламелей меняется, напоминая ритм кардиограммы. Максимально часто пластины установлены на северном фасаде, тогда как южный фасад, в центре которого расположен главный вход в клинику, ведущий в пространство многосветного атриума, оставлен полностью стеклянным, чтобы впустить как можно больше солнечного света внутрь.

Также меняется и высота ламелей – то разрывая белые горизонтальные межэтажные перемычки и вырастая на два этажа, то расступаясь, чтобы акцентировать большой оконный портал напротив двусветного холла перед конференц-залом или оставить стеклянную ленту вдоль входов в технические помещения. Верхний ярус ламелей сделан с увеличенной высотой, образуя своеобразную карнизную «корону», дополненную ажурной лентой тонких металлических ограждений, идущих с небольшим отступом от периметра кровли. Эти ограждения закрывают объемные блоки инженерных систем, установленных на крыше.
Международный медицинский кластер в Сколково. Диагностический корпус. Схема фасадной системы © Архитектурное бюро Асадова
Международный медицинский кластер в Сколково. Диагностический корпус. Схема фасадной системы © Архитектурное бюро Асадова

Горизонтальные пояса и вертикальные бело-зеленые ламели образуют объемную структуру, придающую динамичность лаконичному объему клиники, благодаря скругленным углам, немного напоминающим современные высокотехнологичные гаджеты. Развивая тему, бюро Асадова, хорошо известное своим пристрастием к смелым пространственным формам, не удержалось от эффектного конструктивного жеста – пятиметрового консольного выноса со скругленным углом на последнем этаже, акцентирующим ключевой вид на здание со стороны главной трассы.
Международный медицинский кластер в Сколково. Диагностический и терапевтический корпус. Фотография © Архитектурное бюро Асадова
Международный медицинский кластер в Сколково. Диагностический и терапевтический корпус. Фотография © Архитектурное бюро Асадова


Пространство здоровья
Принципы экологичности, многофункциональности и комфорта применяются в здании повсеместно, но наиболее ярко они выражены в пространстве атриума, чей наполненный воздухом и светом интерьер служит своеобразной визитной карточкой не только проекта Международного медицинского кластера, но и всей концепции архитектуры здоровья, декларированной бюро Асадова.

Просторный атриум – своего рода крытая площадь – используется как приемная диагностической клиники, лобби при конференц-центре, выставочный зал, а также как универсальная площадка для проведения мероприятий. Функциональную и планировочную свободу обеспечивают несущие бетонные пилоны, расставленные по периметру зала, которые берут на себя нагрузку от светопрозрачного покрытия.
Международный медицинский кластер в Сколково. Диагностический корпус. Фотография © Архитектурное бюро Асадова
Международный медицинский кластер в Сколково. Диагностический корпус. Фотография © Архитектурное бюро Асадова

Первоначально архитекторы и конструкторы хотели перекрыть атриум системой из нескольких фонарей или использовать пневматические подушки, но пример парка «Зарядье» с его «стеклянной корой» подсказал лучшее решение. Авторы связались с изготовителями этой конструкции, российской компанией «Несущие Системы» и оказалось, что их система легче, а по стоимости практически идентична традиционному балочному перекрытию. Оболочка была рассчитана на компьютере с использованием принципов параметрического проектирования и с учетом нормативных требований по уклонам; в данном случае подъем оболочки составил всего три метра.

Экологичность достигнута благодаря активному использованию в отделке натуральных материалов, а также оригинальному озеленению пространства атриума. Архитекторы вместе со специалистами СК «Атриум» и инженером садово-паркового строительства Игорем Сафиуллиным трактовали его как промежуточную зону между внешним и внутренним пространством. Элементы благоустройства получили продолжение внутри атриума, будучи разделены лишь витражным стеклом. Деревья, посаженные рядом с корпусом, перекликаются с огромными деревьями в кадках, установленными внутри здания. В качестве напольного покрытия используется большеразмерные плиты керамогранита, имитирующего натуральный камень и дерево.
Международный медицинский кластер в Сколково. Диагностический и терапевтический корпус. Фотография © Архитектурное бюро Асадова
Международный медицинский кластер в Сколково. Диагностический и терапевтический корпус. Фотография © Архитектурное бюро Асадова
Международный медицинский кластер в Сколково. Диагностический корпус. Фотография © Архитектурное бюро Асадова
Международный медицинский кластер в Сколково. Диагностический корпус. Фотография © Архитектурное бюро Асадова

Развитие типологии
В сентябре клиника открылась и начала работать как диагностический и учебный центр. Параллельно запущено проектирование второй очереди и заканчивается процедура выбора оператора для третьего корпуса. В том и в другом случае к разработке проектов будут подключены другие команды, имеющие опыт сотрудничества с конкретными западными клиниками; впрочем, все последующие решения будут так и ли иначе исходить из уже заданного стандарта – нового стандарта медицинских объектов, с совершенно иной по восприятию атмосферой, архитектурой, отвечающей современным тенденциям, а также с новыми принципами работы с посетителями.