Размещено на портале Архи.ру (www.archi.ru)

21.12.2018

Долина знаний

Елена Петухова
Объект:
Образовательный центр для одаренных детей «Сириус»
Адрес:
Россия, Сочи. Олимпийский пр., 40
Архитектор:
Никита Явейн
Мастерская:
VELUX (Велюкс)
Viega
Студия 44
Авторский коллектив:
Архитекторы: Н. И. Явейн, В. А. Романцев, А.И. Амелькович, А.Д. Баженов, Е.В. Купцова, У.В. Сулимова, П.А. Чернобай, при участии Е.М. Богомаз, Н.А. Гончаровой, Е.Б. Григорьева, Т.Е. Епимаховой
Конструкторы: Д. П. Кресов, А.В. Агашков, С.С. Богданов, А.Ю. Короваев, А.А. Олиянчук, М.В. Савченко, Е.В. Силантьева, Г.А. Сергеенко, Ю.О. Сергеев, В.Е. Савина, А.В. Левшина
ГИП'ы: Л. В. Герштейн, М. А. Рогожкина

«Студия 44» разработала проект образовательного центра в Сочи, соединив павильонный подход с космическими мотивами, ассоциирующимися с названием центра «Сириус».

Образовательный центр для одаренных детей «Сириус» © Студия 44
Образовательный центр для одаренных детей «Сириус» © Студия 44

Постолимпийский синдром
Современные олимпиады требуют создания дорогостоящей и нередко одноразовой инфраструктуры. Зачастую город или даже государство оказываются не способными разрешить созданную ради удовлетворения амбиций проблему, и тогда появляются районы с ветшающими гигантскими сооружениями. В качестве примеров вспоминаются Сараево с Олимпиадой-1984, Афины, построившие к Олимпиаде 2004 года за 15 миллиардов долларов несколько объектов в пригороде столицы Греции, а также Рио-де-Жанейро с Олимпиадой-2016. Впрочем, есть и обратные примеры, когда построенная инфраструктура успешно закрывает инвестиционные долги и оказывается востребованной городом и горожанами уже как оздоровительные комплексы или рекреационные зоны, либо просто как новые городские районы со специфической застройкой. Пекин и Лондон неплохо справились с олимпийским наследием.

Сочинская Олимпиада 2014 года потребовала огромных инвестиций, общая сумма которых оценивается в 1,5 трл рублей. Предполагалось, что потом спортивная инфраструктура будет частично перепрофилирована, частично демонтирована и перевезена в другие российские города, а гостиницы заполнятся туристами – ожидания не оправдались в лучших российских традициях, о которых так красноречиво высказался Черномырдин. В отсутствие комплексной программы регион начал эволюционировать в полном соответствии с теорией Дарвина. Какие-то проекты оказались более успешными и жизнеспособными (арена «Фишт» приняла матчи ЧМ-18), какие-то – менее, например, гигантский медиа-центр, так и не ставший торговым, теперь перепрофилируется в «крытый город», объединяющий под одной крышей развлечения, коммерцию и культуру.

Одним из наиболее успешных, позитивных и, безусловно, перспективных проектов, стартовавших в пост-олимпийской Имеритинской долине, стал Образовательный центр для одаренных детей «Сириус», созданный по распоряжению президента РФ уже в декабре 2014 года на базе трехзвездочного отеля «Азимут», выкупленного и переоборудованного для проживания и занятий учащихся. Проект оказался настолько успешным и так хорошо отвечал стратегическим задачам государства в области социальной и культурной политики, что уже через два года, в 2016 году, встал вопрос о расширении центра; сейчас разрабатывается программа создания на его базе нового университетского комплекса, а возможно и масштабного образовательно-культурного кластера в Имеретинской долине.
 

Экстра-образование
Проект образовательного центра «Сириус», названного в честь самой яркой звезды ночного неба, реализуется благотворительным фондом «Талант и успех», в чьи задачи входит создание детских образовательных центров по всей стране. Но основные усилия команды сосредоточены в Сочи, где создана и функционирует уникальная система экстра-образования, ориентированная на выявление, развитие и дальнейшую поддержку одаренных в области науки, техники, искусства и спорта детей и подростков.
Образовательный центр «Сириус» © Сириус
Образовательный центр «Сириус» © Сириус

Продолжительность курса в «Сириусе» составляет всего 24 дня и за это время 600 учащихся занимаются по трем направлениям: «Спорт», «Искусство» и «Наука». Каждый блок рассчитан на 200 детей.
Попасть в образовательный центр «Сириус» может любой российский ребенок и подросток в возрасте от 10 до 17 лет, имеющий на своем счету победы в олимпиадах или другие награды. Для этого нужно заполнить заявку на сайте центра. В «Сириусе» с талантливыми детьми занимаются ведущие педагоги спортивных, физико-математических, химико-биологических школ, а также выдающиеся деятели российского искусства в сфере академической музыки, классического балета и изобразительного искусства. Среди лекторов и тьюторов «Сириуса» – Михаил Пиотровский, Валерий Гергиев, Анатолий Чубайс, Татьяна Черниговская, Сергей Ролдугин и так далее.

Одна из ключевых идей центра – контакты между талантливыми в разных областях детьми, пересечение совершенно разных кругов общения, что позволяет расширить кругозор и освободиться от стереотипов.
Образовательный центр «Сириус» © Сириус
Образовательный центр «Сириус» © Сириус

Гостиница, переоборудованная под спально-образовательный корпус, неплохо справляется с задачей размещения учащихся, но, как стало ясно почти сразу же после запуска проекта, для полноценного и эффективного учебного процесса ее планировочных и технических возможностей явно не достаточно. Вскоре после запуска руководство фонда приняло решение о строительстве на его территории, которая занимает площадь немногим менее 11 га, еще нескольких зданий, приспособленных для занятий по одному из трех ключевых направлений обучения. Для проектирования пригласили команду «Студии 44», на чьем счету не только успешное строительство вокзала «Олимпийский парк» здесь же в долине, но и несколько проектов уникальных образовательных центров, таких как Академия танца под руководством Бориса Эйфмана, Главный учебный корпус ВШМ СПБГУ, Спортивно-оздоровительный комплекс школы дзюдо, Дворец творчества школьников в городе Астана, республика Казахстан и другие.
 

В тени гор и в свете звезд 
Задача лишь на первый взгляд могла показаться легкой. На большой парковой территории, отделяющей бывший отель от пляжа, уже располагались несколько спортивных площадок, вспомогательных построек и искусственный водоем. Разместить на участке еще три здания с обширным функциональным наполнением, с учетом нормативных требований к образовательным учреждениям, сохранив парковый характер участка и не закрыв вид на море из окон спального корпуса, было непросто.
Образовательный центр для одаренных детей «Сириус». Ситуационная схема
Образовательный центр для одаренных детей «Сириус». Ситуационная схема
© Студия 44

Помимо преодоления планировочных и программных сложностей необходимо было найти объемно-пространственное решение, отвечающее уже сложившемуся характеру застройки прибрежной зоны Имеретинской низменности и расположенного в рядом с «Сириусом» комплекса олимпийских стадионов с их узнаваемыми силуэтами.
Образовательный центр для одаренных детей «Сириус». Силуэты застройки © Студия 44
Образовательный центр для одаренных детей «Сириус». Силуэты застройки © Студия 44

«Олимпийские объекты создали неожиданно позитивный градостроительный эффект, – говорит Никита Явейн. – Большое количество оригинальных зданий привело к формированию застройки с ярко выраженным силуэтом, перекликающимся с вырастающим на заднем плане силуэтом гор. Абрис каждого нового здания должен был продолжать начатую тему».
Образовательный центр для одаренных детей «Сириус». Образ гальки © Студия 44
Образовательный центр для одаренных детей «Сириус». Образ гальки © Студия 44

Архитекторы оттолкнулись от пластики стадионов, в первую очередь от соседнего «Фишта», и соединили ее с образом гальки – обкатанного камешка, с которым дети любят играть на пляже и раскрашивать, превращая в сувениры на память о времени, проведенном у моря. В результате, получилась обтекаемые, невысокие (2-3 этажа) объемы, сферический и эллипсовидный – форма скрадывает их реальные размеры и служит контрастом к угловатому гостиничному корпусу. И как напоминание о детских поделках из гальки, с разноцветными вставками на фасадах.
Образовательный центр для одаренных детей «Сириус». Образ гальки © Студия 44
Образовательный центр для одаренных детей «Сириус». Образ гальки © Студия 44

Они напоминают временную павильонную архитектуру, органично вписанную в парковый ландшафт. Интересно, что мотив павильонов вновь и вновь возникает в работах «Студии 44», отнюдь не специализирующейся на малых архитектурных формах, да и сам Никита Явейн не скрывает своей симпатии к нему. В данном случае эта «слабость» стала сильным местом проекта.
Образовательный центр для одаренных детей «Сириус». Генеральный план
Образовательный центр для одаренных детей «Сириус». Генеральный план
© Студия 44

Еще одна, на этот раз космическая ассоциация невольно возникает при взгляде на проекты новых корпусов, в аэродинамичности которых видится сходство с космическими кораблями из фантастических фильмов нашего детства. Никита Явейн и тут не отрицает справедливости сравнения: «Есть сложившаяся и очень важная для Центра символика – Сириус, космос, звезды, потенциал, люди будущего. И мы нашли способ подчеркнуть эту тему».

Образная составляющая предложенного объемно-пространственного решения дополняется его эффективностью. К достоинствам «космических павильонов» можно с уверенностью отнести следующие качества:
– планировочную свободу;
– сочетание компактности и прочности за счет равномерного распределения природных нагрузок;
– минимизация площади оболочки и, как следствие, снижение теплопотерь
Образовательный центр для одаренных детей «Сириус». Конструкции военного фасада © Студия 44
Образовательный центр для одаренных детей «Сириус». Конструкции военного фасада © Студия 44

В результате сложился ясный и четко прослеживаемый дизайн-код новых корпусов, обеспечивающий ансамблевость при всей оригинальности формы каждого корпуса.
Образовательный центр для одаренных детей «Сириус». Новые корпуса © Студия 44
Образовательный центр для одаренных детей «Сириус». Новые корпуса © Студия 44

 

Тор знаний
Образовательный центр для одаренных детей «Сириус». Корпус «Школа»
Образовательный центр для одаренных детей «Сириус». Корпус «Школа»
© Студия 44

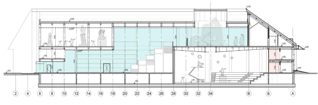
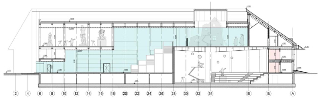
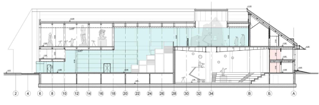
Первым из новых корпусов «Сириуса» началось строительство павильона «Школа», в котором расположатся учебные классы и лаборатории. Он максимально близко расположен к спальному корпусу и соединен с ним теплым переходом. Зданию придана необычная кольцевая форма, в центре которой оставлен просторный озелененный двор.
Образовательный центр для одаренных детей «Сириус». Корпус «Школа». Поперечный разрез © Студия 44
Образовательный центр для одаренных детей «Сириус». Корпус «Школа». Поперечный разрез © Студия 44

Причиной такой конфигурации здания стало огромное дерево – срубить его посчитали невозможным как заказчики, так и проектировщики. Никита Явейн рассказывает: «Это был единственно возможный, оптимальный по коммуникации с основным корпусом участок для размещения «Школы» и когда мы обнаружили, что на нем растет прекрасный вяз, я вспомнил легенды о школах, сложившихся из бесед учителя с учениками в тени дерева. Мы решили сохранить дерево и сделать его центром и символом нашей «Школы». Так появилась форма «бублика».
Образовательный центр для одаренных детей «Сириус». Корпус «Школа». Поперечный разрез © Студия 44
Образовательный центр для одаренных детей «Сириус». Корпус «Школа». Поперечный разрез © Студия 44

Круговой коридор позволил оптимизировать планировку здания, связав в одну систему пять вестибюлей, каждый с возможностью выхода наружу. По периметрам, внутреннему и внешнему, здания, на первом этаже идут лаборатории, на втором – учебные классы, а на третьем – кабинеты преподавателей и администрации. Учебные комнаты разделены трансформируемыми перегородками, что позволяет произвольно менять размер помещения в зависимости от количества занимающихся.
Образовательный центр для одаренных детей «Сириус». Корпус «Школа». Схема компоновки учебных классов © Студия 44
Образовательный центр для одаренных детей «Сириус». Корпус «Школа». Схема компоновки учебных классов © Студия 44
Образовательный центр для одаренных детей «Сириус». Корпус «Школа». План на отм. +0,000 © Студия 44
Образовательный центр для одаренных детей «Сириус». Корпус «Школа». План на отм. +0,000 © Студия 44
Образовательный центр для одаренных детей «Сириус». Корпус «Школа». План на отм. +4,650 © Студия 44
Образовательный центр для одаренных детей «Сириус». Корпус «Школа». План на отм. +4,650 © Студия 44
Образовательный центр для одаренных детей «Сириус». Корпус «Школа». Поперечный разрез © Студия 44
Образовательный центр для одаренных детей «Сириус». Корпус «Школа». Поперечный разрез © Студия 44

За космический и высокотехнологичный имидж «Школы», помимо формы здания, отвечает конструктивное решение оболочки. Двойная кровля состоит из внутреннего покрытия из профлиста, паро-, тепло- и гидроизоляции, а также внешней декоративной системы, вынесенной на металлическом каркасе на 160 мм наружу, с отделкой из сотового алюминия с прорезями для окон и зенитных фонарей в разноцветных рамах. Точно рассчитанное расположение светопрозрачных конструкций позволило привести внутреннюю освещенность учебных помещений к российским нормативным показателям.
Образовательный центр для одаренных детей «Сириус». Корпус «Школа». План на отм. +8,850 © Студия 44
Образовательный центр для одаренных детей «Сириус». Корпус «Школа». План на отм. +8,850 © Студия 44

 

Оптимальная оболочка
Образовательный центр для одаренных детей «Сириус». Корпус «Спорт»
Образовательный центр для одаренных детей «Сириус». Корпус «Спорт»
© Студия 44

Корпус «Спорт», представляющий собой двухэтажное овальное в плане здание, расположен на противоположной от «Школы» стороне участка, ближе к стадиону «Фишт», и в некоторой степени повторяет его горбатый силуэт. Асимметричная форма корпуса напоминает каплю или половинку яйца. Согласно программе в нем разместились два плавательных бассейна: большой бассейн, 25х16 м и открытый бассейн с соленой водой, расположенный частично под кровлей, частично – на открытом воздухе; многофункциональный зал, 12х24 м, площадка для мини-футбола 24х40 м и еще несколько помещений для тренировок. Рядом со зданием обустроят открытые площадки для футбола, волейбола и тенниса.
Образовательный центр для одаренных детей «Сириус». Корпус «Спорт» © Студия 44
Образовательный центр для одаренных детей «Сириус». Корпус «Спорт» © Студия 44
Образовательный центр для одаренных детей «Сириус». Корпус «Спорт» © Студия 44
Образовательный центр для одаренных детей «Сириус». Корпус «Спорт» © Студия 44

По словам Никиты Явейна, «это был планировочный и пространственный эксперимент по максимально компактному расположению всех необходимых по программе помещений и созданию минимально возможного объема оболочки. Требуемые по нормам высоты потолков – около 10 метров – было решено соблюдать только в центральных частях залов. На их периферии мы позволили себе опустить кровлю до 5-6 метров, логично предположив, что международные соревнования тут проводиться не будут и бить мячом в потолок с края поля тоже никто не будет. В результате, мы всю необходимую функцию обтянули гибким «облаком», смонтированным на криволинейных металлических рамах».
Образовательный центр для одаренных детей «Сириус». Корпус «Спорт». Схема минимизации объема © Студия 44
Образовательный центр для одаренных детей «Сириус». Корпус «Спорт». Схема минимизации объема © Студия 44

Все помещения сосредоточены на двух террасах, спускающихся каскадом к открытому бассейну с искусственной морской водой. На верхней террасе находятся спортивные площадки, под ними – комнаты для переодевания, душевые, санузлы и другие технические помещения. Благодаря единой оболочке с зенитными окнами все пространство в дневное время освещается естественным светом.
Образовательный центр для одаренных детей «Сириус». Корпус «Спорт». Продольный разрез © Студия 44
Образовательный центр для одаренных детей «Сириус». Корпус «Спорт». Продольный разрез © Студия 44
Образовательный центр для одаренных детей «Сириус». Корпус «Спорт». План на отм. +0,000 © Студия 44
Образовательный центр для одаренных детей «Сириус». Корпус «Спорт». План на отм. +0,000 © Студия 44
Образовательный центр для одаренных детей «Сириус». Корпус «Спорт». План на отм. +4,200 © Студия 44
Образовательный центр для одаренных детей «Сириус». Корпус «Спорт». План на отм. +4,200 © Студия 44
Образовательный центр для одаренных детей «Сириус». Корпус «Спорт»
Образовательный центр для одаренных детей «Сириус». Корпус «Спорт»
© Студия 44
Образовательный центр для одаренных детей «Сириус». Корпус «Спорт»
Образовательный центр для одаренных детей «Сириус». Корпус «Спорт»
© Студия 44
Образовательный центр для одаренных детей «Сириус». Корпус «Спорт» © Студия 44
Образовательный центр для одаренных детей «Сириус». Корпус «Спорт» © Студия 44

 

Шатер искусств
Образовательный центр для одаренных детей. Корпус «Искусство»
Образовательный центр для одаренных детей. Корпус «Искусство»
© Студия 44

Третий корпус предназначен для занятий музыкой, хореографией и живописью. В нем, кроме учебных классов, размещается концертный зал на 350 зрителей и еще два репетиционных балетных зала. Расположение в затесненной из-за искусственного водоема части территории и ориентация с севера на юг усложнили работу архитекторов над планировкой. Как и задача совместить под одной крышей столь различные по своим параметрам и требованиям залы для рисования, музыкальных репетиций и танцев. Где-то нужен свет, где-то нет, где-то нужна высота, где-то, наоборот, площадь. «Этот корпус был самым сложным, – рассказывает Никита Явейн. – Мы должны были создать под единым шатром самодостаточный мир, в котором гармонично сосуществуют, плотно спрессованные, словно части головоломки, помещения для занятий разными искусствами, объединенные треугольным атриумом».
Образовательный центр для одаренных детей «Сириус». Корпус «Спорт» © Студия 44
Образовательный центр для одаренных детей «Сириус». Корпус «Спорт» © Студия 44
Образовательный центр для одаренных детей «Сириус». Корпус «Искусство». Интерьер концертного зала © Студия 44
Образовательный центр для одаренных детей «Сириус». Корпус «Искусство». Интерьер концертного зала © Студия 44

На первом этаже расположены два хореографических зала с подсобными помещениями. От вестибюля залы отделены перегородкой с матовым стеклом, создающим особый театральный эффект, когда идут репетиции. Двусветный концертный зал скомпонован в виде амфитеатра, вокруг которого по кругу располагаются кабинеты для занятий музыкой.
Образовательный центр для одаренных детей «Сириус». Корпус «Искусство». Интерьер атриумного пространства © Студия 44
Образовательный центр для одаренных детей «Сириус». Корпус «Искусство». Интерьер атриумного пространства © Студия 44

Второй этаж отдан под административные помещения, нотную библиотеку и репетиционные комнаты. На третьем этаже здания размещены классы, учительские помещения, а также большая художественная студия и выставочная галерея, освещаемые естественным светом с северной стороны. В студию и галерею можно подняться прямо из главного атриума.
Образовательный центр для одаренных детей «Сириус». Корпус «Искусство». Продольный разрез © Студия 44
Образовательный центр для одаренных детей «Сириус». Корпус «Искусство». Продольный разрез © Студия 44
Образовательный центр для одаренных детей «Сириус». Корпус «Искусство». Поперечный разрез © Студия 44
Образовательный центр для одаренных детей «Сириус». Корпус «Искусство». Поперечный разрез © Студия 44
Образовательный центр для одаренных детей «Сириус». Корпус «Искусство». План на отм. +0,000  © Студия 44
Образовательный центр для одаренных детей «Сириус». Корпус «Искусство». План на отм. +0,000 © Студия 44
Образовательный центр для одаренных детей «Сириус». Корпус «Искусство». План на отм. +3,600 © Студия 44
Образовательный центр для одаренных детей «Сириус». Корпус «Искусство». План на отм. +3,600 © Студия 44

 

Цепная реакция
Сейчас на территории образовательного центра заканчивается возведение корпуса «Школа», на очереди – строительство спортивного блока. Но уже очевидно, что и этих трех корпусов будет недостаточно. Фонд ставит перед собой новую амбициозную задачу – включить в систему экстра-образования не только программу средней, но и высшей школы, а также активизировать программу повышения квалификации для педагогов и профессуры. Для расширения центра могут быть выкуплены другие пустующие гостиницы в Имеретинской долине.

Один успешный проект начинает изменять будущее всего региона, определяя новую стратегическую задачу – создание на юге России научного или научно-культурного кластера на базе пост-олимпийской инфраструктуры и строительства объектов с ноля. Этих целей не было в изначальных планах развития пост-олимпийского Сочи, но оказывается, что и спонтанные решения могут быть жизнеспособны. Словно цепная реакция, за одним успешным проектом начинает развертывается комплексная долгосрочная программа, в отдаленной перспективе которой находится образ идеального города на берегу моря, города, ориентированного на развитие творческого и научного потенциала взрослых и детей.
 
Образовательный центр для одаренных детей «Сириус». Корпус «Школа»
Образовательный центр для одаренных детей «Сириус». Корпус «Школа»
© Студия 44
Образовательный центр для одаренных детей «Сириус». Корпус «Школа»
Образовательный центр для одаренных детей «Сириус». Корпус «Школа»
© Студия 44
Образовательный центр для одаренных детей «Сириус». Строительство корпуса «Школа». 2018 © Студия 44
Образовательный центр для одаренных детей «Сириус». Строительство корпуса «Школа». 2018 © Студия 44
Образовательный центр для одаренных детей «Сириус». Корпус «Школа» © Студия 44
Образовательный центр для одаренных детей «Сириус». Корпус «Школа» © Студия 44