Размещено на портале Архи.ру (www.archi.ru)

30.11.2018

Дачный параметризм

Алёна Кузнецова
Объект:
Гостевой дом по ул. Родионова
Адрес:
Россия, Нижний Новгород.
Мастерская:
VELUX (Велюкс)
Авторский коллектив:
Зоя Рюрикова, Ольга Грачева, Анаит Огаджанян,
Михаил Ногинов 

Бюро «ДА» спроектировало для Нижнего Новгорода малоэтажный дом, вобравший в себя черты нижегородского стиля и дачной романтики.

Гостевой дом по ул. Родионова © архитекторы: Зоя Рюрикова, Ольга Грачева, Анаит Огаджанян, Михаил Ногинов
Гостевой дом по ул. Родионова © архитекторы: Зоя Рюрикова, Ольга Грачева, Анаит Огаджанян, Михаил Ногинов

Гостевой дом в Нижнем Новгороде, который за свою ребристую структуру и пеструю кирпичную кладку, напоминающую чешуйки, получил прозвище «Броненосец Родион», строили к Чемпионату мира по футболу. Улицу Родионова, на которой он расположился, составляют самые разнообразные здания: от малоэтажных многоквартирных домов и вычурных коттеджей до ветхих деревянных лачуг и новейшего самостроя. Архитектура «броненосца» до некоторой степени реагирует на этот контекст, поскольку, по словам руководителя бюро Зои Рюриковой, «основана на индивидуальных ощущениях нижегородского стиля», а форма родилась «на стыке параметризма и дачного регионального наива».

От параметризма здесь сложная структура, в которой с ходу так просто не разобраться. Одна половина дома – понятный прямоугольный объем со скатной кровлей, другая – словно искаженное отражение в воде, которая пошла рябью. Вверху – умноженный мотив щипца, внизу – объемы разной высоты и конфигурации, которые «выезжают» друг из друга наподобие гофры старинного фотоаппарата. В конце – «объектив», самый маленький и самый прозрачный объем-домик.
Гостевой дом по ул. Родионова © архитекторы: Зоя Рюрикова, Ольга Грачева, Анаит Огаджанян, Михаил Ногинов
Гостевой дом по ул. Родионова © архитекторы: Зоя Рюрикова, Ольга Грачева, Анаит Огаджанян, Михаил Ногинов
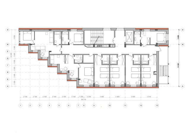
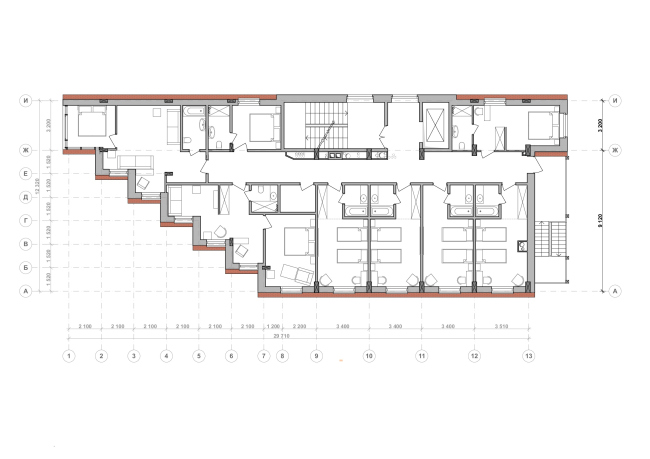
Гостевой дом по ул. Родионова. План мансардного этажа © Проектное бюро DA
Гостевой дом по ул. Родионова. План мансардного этажа © Проектное бюро DA

От дачного наива – вероятно, стилизация всевозможных пристроек, большие витражи, похожие на застекленные веранды, укромный мансардный этаж, ощущение, что внутри есть если не печь, то камин. С других ракурсов, где дом смотрит в окна соседей, он выглядит брутальнее за счет более обширных «глухих» плоскостей, но и здесь есть свои «спецэффекты» вроде круглого окошка, похожего на часы то ли базилики, то ли фабрики.
Гостевой дом по ул. Родионова © Проектное бюро DA
Гостевой дом по ул. Родионова © Проектное бюро DA

Остекление в композиции дома играет одну из ключевых ролей. В мансардном этаже использованы окна VELUX OPTIMA Комфорт GLR MR10 размером 780*1600 мм – их можно устанавливать на кровлю даже с таким большим углом наклона, как в «броненосце». Окна Velux гармонично смотрятся на фоне черепицы и пестрой кирпичной кладки как снаружи, так и внутри здания. Интерьеры с элементами стиля «лофт» тоже играют на дачную романтику – помещения верхних этажей напоминают дачи художников или скульпторов, где много света, книг и укромных мест для чтения.
Гостевой дом по ул. Родионова © Проектное бюро DA
Гостевой дом по ул. Родионова © Проектное бюро DA
Гостевой дом по ул. Родионова © Проектное бюро DA
Гостевой дом по ул. Родионова © Проектное бюро DA

Мансардные окна VELUX отличаются высокими техническими характеристиками, что особенно важно для гостиничных номеров, к которым предъявляют повышенные требования. Окна из серии OPTIMA Комфорт защищают от ветра, снега и дождя, благодаря точной подгонке всех элементов они не допускают появления сквозняков, а встроенный фильтр борется с пылью и насекомыми. В результате комнаты всегда наполнены светом и свежим воздухом.
Изображение предоставлено компанией VELUX
Изображение предоставлено компанией VELUX
Изображение предоставлено компанией VELUX
Изображение предоставлено компанией VELUX

Дом на улице Родионова вошел в короткий список нижегородского Рейтинга архитектуры 2018.