Размещено на портале Архи.ру (www.archi.ru)

24.10.2018

Плодотворные ограничения

Алёна Кузнецова
Объект:
Многофункциональный комплекс на Софийской
Адрес:
Россия, Санкт-Петербург. Софийская ул., 63 лит. А
Архитектор:
Анатолий Столярчук
Мастерская:
АМ А.А. Столярчука
Авторский коллектив:
А.А. Столярчук (руководитель авторского коллектива); Е.Е. Рубина, Т.В. Баженова, Д.А. Карагодин, А.В. Леднев

Иногда особенности участка и пожелания заказчика вынуждают архитекторов в поиске лучшего варианта из возможных решать не столько творческие, сколько сугубо вычислительные задачи. В то же время жесткие ограничения, как известно, нередко приводят к неожиданным находкам. МФК на Софийской улице в Петербурге как раз из числа таких проектов.

Многофункциональный комплекс на Софийской
Многофункциональный комплекс на Софийской
© Архитектурная мастерская А.А. Столярчука

Участок расположен во Фрунзенском районе Петербурга, недалеко от пересечения крупных магистралей – проспекта Славы и Софийской улицы. Эта часть города сейчас выглядит довольно уныло: шестиполосные дороги, склады и промзона на сотни метров, парочка кладбищ и сталагмиты многоэтажек, вырастающих из пустырей.

Однако квартал, ограниченный также улицами Димитрова и Бухарестская, внутри которого и находится участок, легко сравнить с оазисом. Большую его часть занимают два парка – Интернационалистов и Героев-пожарных. Второй, с сетью прудов, образовавшихся в бывших карьерах кирпичного завода, должны благоустроить до конца 2019 года. Бывшая территория купчинского радиоцентра возле парка Героев-пожарных получила статус зоны зеленых насаждений и не будет застраиваться. Возможно, здесь появится мемориал оборонительного рубежа «Ижора», за который ратуют активисты. Кроме того, до конца года со стороны Бухарестской улицы должна открыться станция метро «Проспект Славы».

В прослойке между парками стоят 23 новеньких корпуса ЖК «София» – одного из самых масштабных проектов «Группы ЛСР». Многофункциональный комплекс по проекту мастерской Анатолия Столярчука замыкает «Софию» и по мере возможностей формирует фронт застройки по Софийской улице.
Многофункциональный комплекс на Софийской
Многофункциональный комплекс на Софийской
© Архитектурная мастерская А.А. Столярчука
ЖК «София» © ЛСР Групп. Изображение предоставлено Архитектурной мастерской А.А. Столярчука
ЖК «София» © ЛСР Групп. Изображение предоставлено Архитектурной мастерской А.А. Столярчука

На самом деле территория, отведенная для реализации проекта, состоит из двух смежных участков: на первом, площадью 20 950 м2, должны разместиться жилой дом, гостиница и паркинг, а на втором, в пять раз меньшем – 4 050 м2, детский сад на 90 мест. Первый участок сложной формы – два условных разновеликих прямоугольника, связанных ломаным «перешейком». По рекомендации главного архитектора города Владимира Григорьева малый прямоугольник полностью отдали озеленению и благоустройству, что позволило добиться проницаемости и связи между двумя большими парками. В оставшемся пространстве пришлось укомплектовать все остальное. Анатолий Столярчук признается, что конфигурация участка, инсоляционные ограничения и пожелания заказчика, который, в частности, категорически отказался от подземных паркингов, сделали рамки проектирования очень тесными, что, впрочем, в то же время способствовало появлению эффективного и нестандартного решения.
Многофункциональный комплекс на Софийской. Генплан
Многофункциональный комплекс на Софийской. Генплан
© Архитектурная мастерская А.А. Столярчука

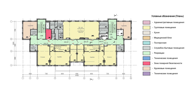
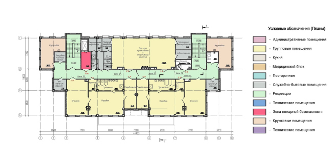
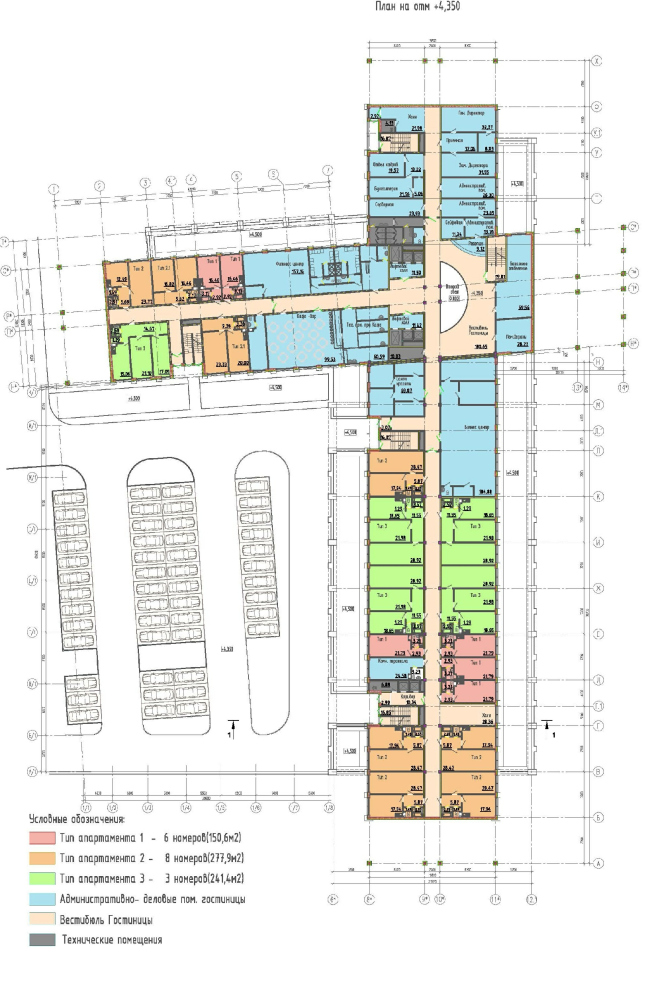
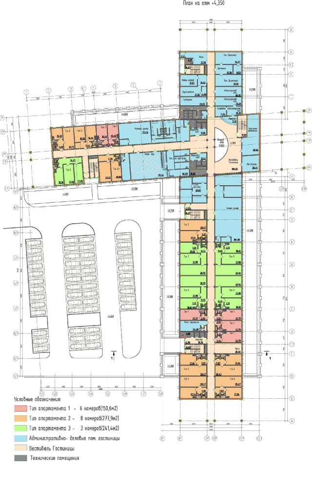
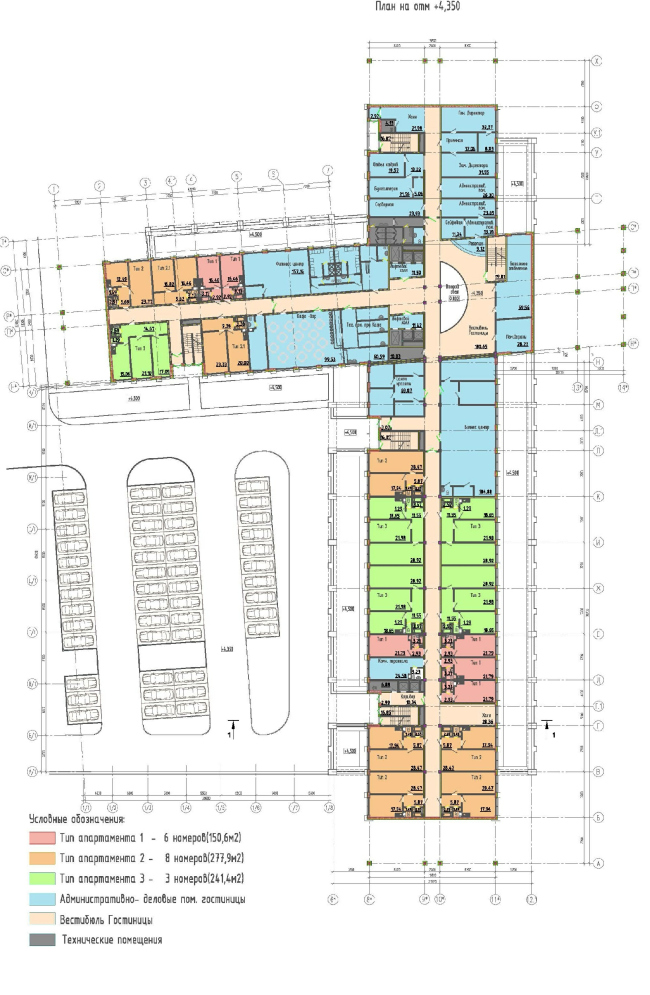
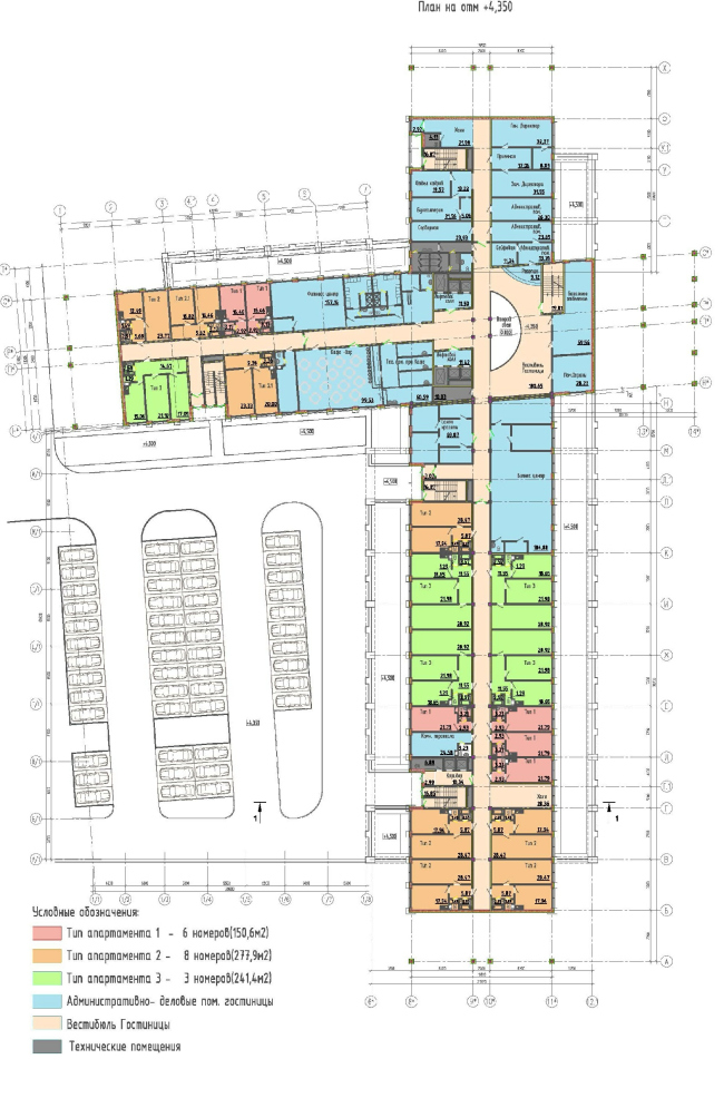
Гостиницу составили из двух равноэтажных корпусов, один из которых почти под прямым углом проходит через другой «насквозь», что дает крестообразный план. Более протяженный корпус расположен вдоль Софийской улицы. Выступающая из него часть «стыковочного» корпуса превращается в гигантский портал, отмечающий входную группу: он чуть нависает над улицей, а глухой торец на несколько этажей «расчехляет» окна, становясь подобием портика. На тему портика откликаются навершия здания и галерея первого этажа, где запланированы магазины, офисы и кафе, не относящиеся к гостинице. Это тоже было пожеланием заказчика – постояльцы входят в здание гостиницы, поднимаются на лифте на второй этаж и уже здесь попадают в зону приема и размещения гостей. На втором этаже также расположен ресторан, фитнес-центр, административные и хозяйственные блоки. Из части помещений есть выход на крышу галереи первого этажа. С третьего по 25 этажи – довольно просторные номера со средней площадью 38 м2. Здание проектировалось как гостиница класса 3*, – подчеркивает Анатолий Столярчук.
Многофункциональный комплекс на Софийской
Многофункциональный комплекс на Софийской
© Архитектурная мастерская А.А. Столярчука
Многофункциональный комплекс на Софийской. Гостиница. Развертка по Софийской ул. На заднем плавне – жилой комплекс «СОФИЯ»
Многофункциональный комплекс на Софийской. Гостиница. Развертка по Софийской ул. На заднем плавне – жилой комплекс «СОФИЯ»
© Архитектурная мастерская А.А. Столярчука
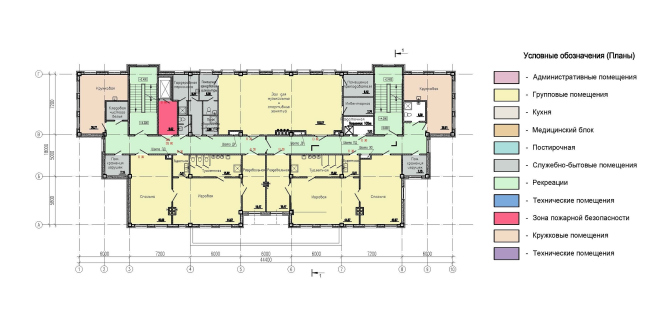
Многофункциональный комплекс на Софийской. Гостиница. План 1 этажа
Многофункциональный комплекс на Софийской. Гостиница. План 1 этажа
© Архитектурная мастерская А.А. Столярчука
Многофункциональный комплекс на Софийской. Гостиница. План 2 этажа
Многофункциональный комплекс на Софийской. Гостиница. План 2 этажа
© Архитектурная мастерская А.А. Столярчука

Обширные плоскости главного фасада разделены на крупные четырехэтажные блоки из сдвоенных окон, чередующихся с полосками белого и оранжевого цветов, которые отвечают на колористику «Софии». Последние пять этажей накрывает белая «решетка» простенков, продолженных до небольшого парапета крыши. Такие крупные объемы сделаны с оглядкой на то, что большинство зрителей будет воспринимать архитектуру комплекса на скорости – из окон автомобилей, проносящихся по Софийской улице.

В месте «стыковки» корпусов появляется стеклянная пауза на всю высоту здания. Глухая часть торца сложена из керамогранитных плит двух оттенков коричневого, имитирующих «слепые» окна. С небольшими вариациями эти приемы повторяются и на дворовых фасадах. Высота здания – 83 метра.
Многофункциональный комплекс на Софийской
Многофункциональный комплекс на Софийской
© Архитектурная мастерская А.А. Столярчука
Многофункциональный комплекс на Софийской. Гостиница. Фасад А-Ц
Многофункциональный комплекс на Софийской. Гостиница. Фасад А-Ц
© Архитектурная мастерская А.А. Столярчука

Жилой дом до некоторой степени «отзеркаливает» гостиницу: первые этажи также заняты магазинами, фасад разделен на крупные четырехэтажные блоки, такая же «решетка» надета поверх последних пяти этажей, в том числе со стороны глухих торцов. Но здесь появляется больше горизонтальных членений, а также выступающие объемы балконов цвета сочной весенней зелени, которые чередуются с плоскостями застекленных лоджий и обычными окнами на фоне белой «подложки».

На каждом этаже по семь квартир, пять из которых выходят окнами на небольшой пруд и парк. В доме совсем нет студий, самые большие квартиры – четырехкомнатные. Дом чуть ниже гостиницы, в нем 23 этажа.
Многофункциональный комплекс на Софийской
Многофункциональный комплекс на Софийской
© Архитектурная мастерская А.А. Столярчука
Многофункциональный комплекс на Софийской
Многофункциональный комплекс на Софийской
© Архитектурная мастерская А.А. Столярчука
Многофункциональный комплекс на Софийской
Многофункциональный комплекс на Софийской
© Архитектурная мастерская А.А. Столярчука
Многофункциональный комплекс на Софийской. Фасад жилого дома
Многофункциональный комплекс на Софийской. Фасад жилого дома
© Архитектурная мастерская А.А. Столярчука

Поскольку заказчик отказался от строительства подземных парковок, в предыдущих вариантах проекта во дворе гостиницы располагался четырехэтажный гараж, а к дому был пристроен стилобат. После рекомендаций градсовета дом и гостиницу объединили стилобатом – под которым и разместится паркинг.

Одна из особенностей проекта, которая появилась из-за многочисленных ограничений – не вполне прямые углы торцов жилого дома и стыковки корпусов гостиницы. Эти линии параллельны границам участка, что позволило освободить место для проездов.
Многофункциональный комплекс на Софийской
Многофункциональный комплекс на Софийской
© Архитектурная мастерская А.А. Столярчука

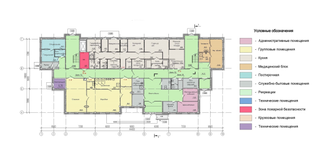
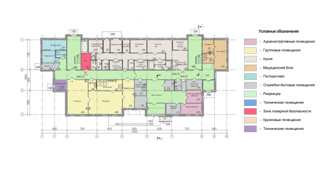
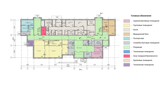
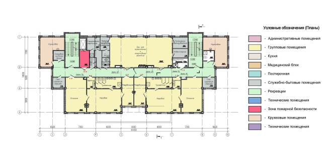
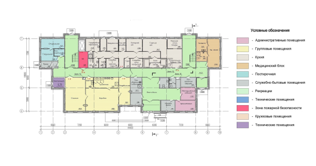
Трехэтажный детский сад на 90 малышей – параллепипед с тремя небольшими креповками. Часть окошек в шахматном порядке декорирована оранжевыми наличниками, которые «привязывают» садик ко всему комплексу.
Многофункциональный комплекс на Софийской. ДОО. Фасады
Многофункциональный комплекс на Софийской. ДОО. Фасады
© Архитектурная мастерская А.А. Столярчука
Многофункциональный комплекс на Софийской. Гостиница. Разрез 1-1
Многофункциональный комплекс на Софийской. Гостиница. Разрез 1-1
© Архитектурная мастерская А.А. Столярчука
Многофункциональный комплекс на Софийской. Жилой дом. Разрез
Многофункциональный комплекс на Софийской. Жилой дом. Разрез
© Архитектурная мастерская А.А. Столярчука
Многофункциональный комплекс на Софийской. Жилой дом. План 1 и 2 этажей
Многофункциональный комплекс на Софийской. Жилой дом. План 1 и 2 этажей
© Архитектурная мастерская А.А. Столярчука
Многофункциональный комплекс на Софийской. Гостиница. План типового этажа
Многофункциональный комплекс на Софийской. Гостиница. План типового этажа
© Архитектурная мастерская А.А. Столярчука
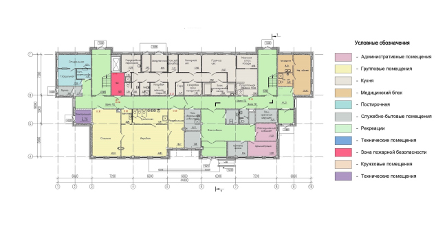
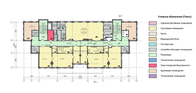
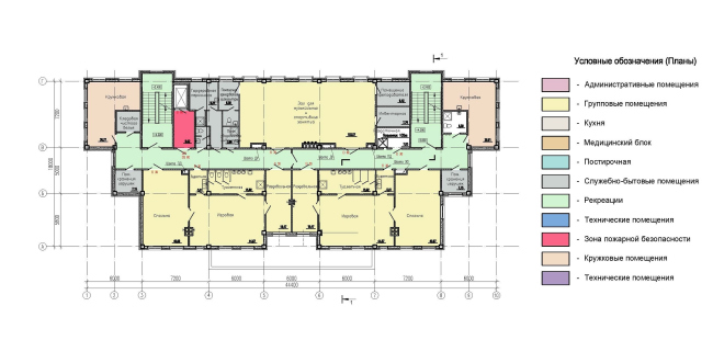
Многофункциональный комплекс на Софийской. ДОО. План 1 этажа
Многофункциональный комплекс на Софийской. ДОО. План 1 этажа
© Архитектурная мастерская А.А. Столярчука
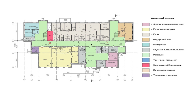
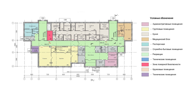
Многофункциональный комплекс на Софийской. ДОО. План 2,3 этажей
Многофункциональный комплекс на Софийской. ДОО. План 2,3 этажей
© Архитектурная мастерская А.А. Столярчука