Размещено на портале Архи.ру (www.archi.ru)

10.10.2018

На грани между авангардом и постконструктивизмом

Юлия Тарабарина
Объект:
Реконструкция здания на Зубовской площади
Адрес:
Россия, Москва. Зубовская площадь, вл.3, стр.1, 3
Архитектор:
Павел Андреев
Мастерская:
АМ «ГРАН» (Мастерская Павла Андреева)
Авторский коллектив:
П. Ю. Андреев (руководитель), А. Е. Пахомов, П. И. Балабанова, Т. О. Ермолаева, О. Е. Картовицкая

Проект реконструкции АТС на Зубовской площади с сохранением части подлинных фасадов.

Реконструкция здания на Зубовской площади
Реконструкция здания на Зубовской площади
© Архитектурная мастерская «ГРАН»

Первое здание АТС на Зубовской площади появилось в 1930 году, совсем небольшое. Более крупный, семиэтажный корпус, обращенный к Садовому кольцу, был построен по проекту Касьяна Соломонова к 1939. Пилонада в центре фасада помогает ему «держать» площадь и делает не слишком похожим на телефонную станцию, поскольку между треугольными пилонами довольно много окон, и они существуют с 1930-х годов. Пилоны также задают преобладание вертикалей и подчеркивают принадлежность фасада архитектора Соломонова к так называемому постконструктивизму. С другой стороны, фланкирующие пилонаду квадратные ниши, также со всей определенностью связывающие здание с архитектурой тридцатых, несут дополнительную нагрузку – напоминают о более знаменитом соседе, Академии имени Фрунзе Руднева и Мунца (1932-1934), ансамблево подчеркивая их соседство, служа, скажем так, представителем архитектуры 1930-х, времени, когда район Девичьего сквера интенсивно застраивался, в ряду пестрой, в то время дворянски-мещанской, застройки Садового кольца. АТС на Зубовской выглядит «головой» «клина» раннесталинских зданий, который расширяется в сторону Новодевичьего монастыря, сливаясь с застройкой 1920-х и прорастая из ее. Возможно, поэтому оно оказалось столь пышно декорированным несмотря на техническую функцию.

Удивительно было бы снести такое здание, и Павел Андреев, архитектор, работавший над реконструкцией таких памятников архитектуры, как Манеж, ГУМ и Детский мир, предложил сохранить два внешних фасада АТС несмотря на отсутствие у нее охранного статуса. Функция же радикально меняется, – сейчас, как известно, это судьба многих АТС в Москве, цифровым технологиям не нужны большие коробки, их сменяют гостиницы и жилые дома, причем истории этих приспособлений очень разные (со сносом и без, см. например раз и два). В данном случае собственно телефонная станция сохранится на участке, но уместится в небольшом корпусе 1930 года постройки в глубине двора, а ее место займет отель. Следовательно, требуется замена «начинки» здания, появление подземной парковки и увеличение высоты нижнего общественного этажа.
Реконструкция здания на Зубовской площади
Реконструкция здания на Зубовской площади
© Архитектурная мастерская «ГРАН»
Реконструкция здания на Зубовской площади
Реконструкция здания на Зубовской площади
© Архитектурная мастерская «ГРАН»

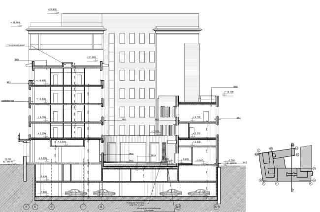
Внешние фасады корпуса, выходящего на Садовое кольцо, согласно проекту сохраняются подлинными (сейчас здание затянуто сеткой, но судя по всему, стены за ней целы), но приобретают вместо серого цвета несколько более оптимистичную окраску в духе одновременно сталинской и авангардной архитектуры – основной тон палевый, теплый светло-серый, второй кирпично-красный, почти бордовый: им отмечен аттик, контуры балконов, поля квадратных ниш. «Предлагая новое цветовое решение и вводя красный цвет, мы хотели, с одной стороны, сделать фасад более заметным, а с другой – подчеркнуть его близость постройкам авангарда», – поясняет Павел Андреев. Окна в пилонаде увеличиваются по высоте, сама она, будучи подчеркнута светлым оттенком, визуально выступает вперед и становится больше похожей на портик. Вверху появляется невысокий технический этаж, связанный с новой функцией здания.
Реконструкция здания на Зубовской площади. Фасад
Реконструкция здания на Зубовской площади. Фасад
© Архитектурная мастерская «ГРАН»
Реконструкция здания на Зубовской площади. Существующая ситуация, развертка
Реконструкция здания на Зубовской площади. Существующая ситуация, развертка
© Архитектурная мастерская «ГРАН»
Реконструкция здания на Зубовской площади. Проект, развертка
Реконструкция здания на Зубовской площади. Проект, развертка
© Архитектурная мастерская «ГРАН»

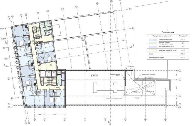
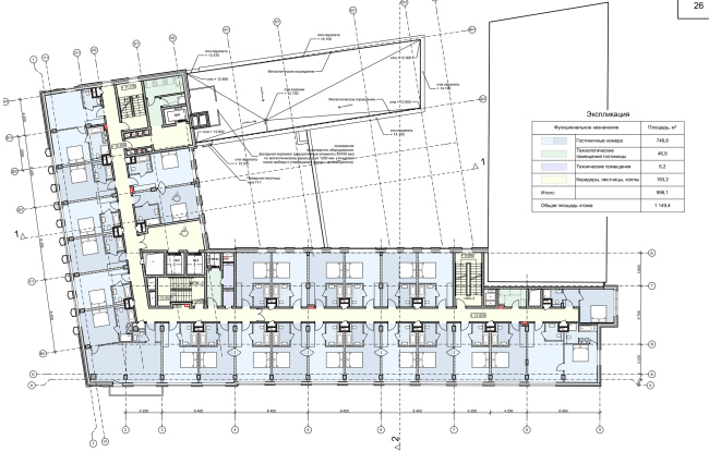
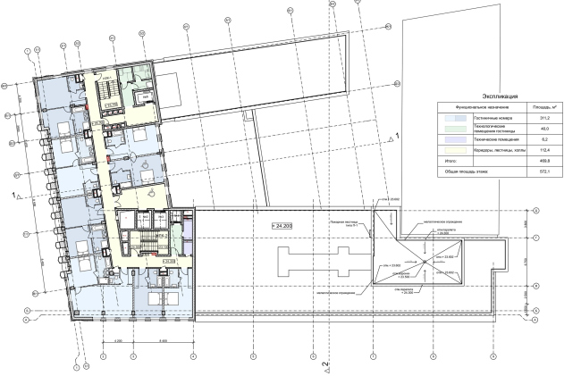
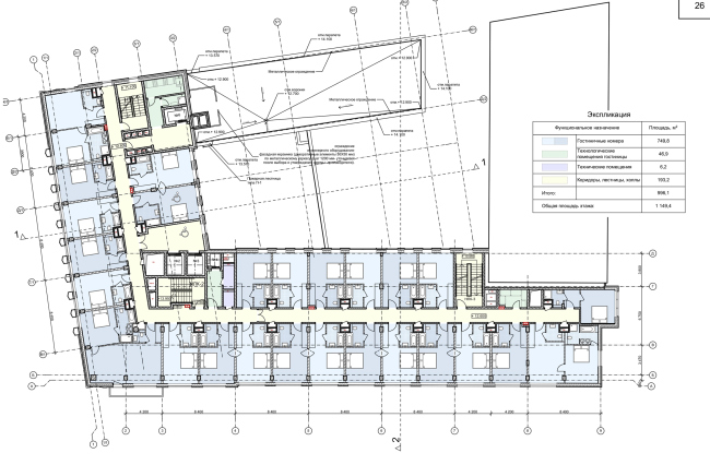
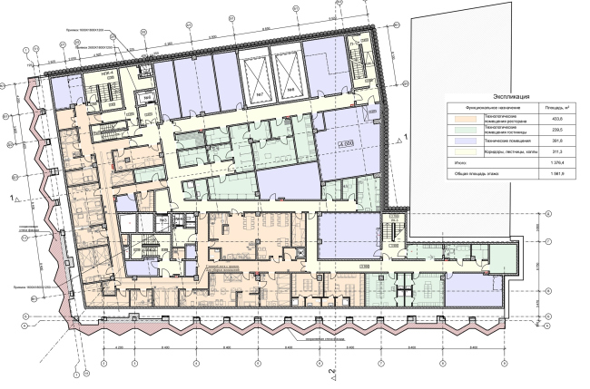
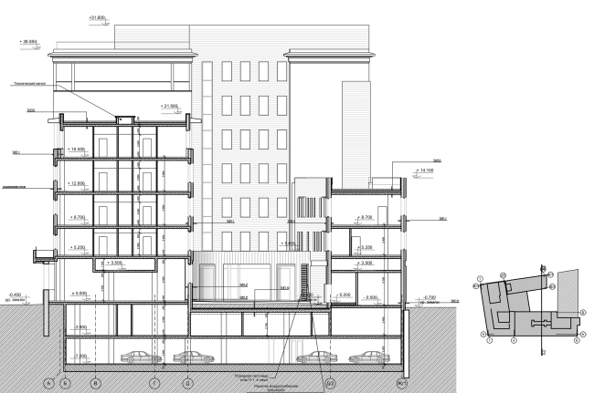
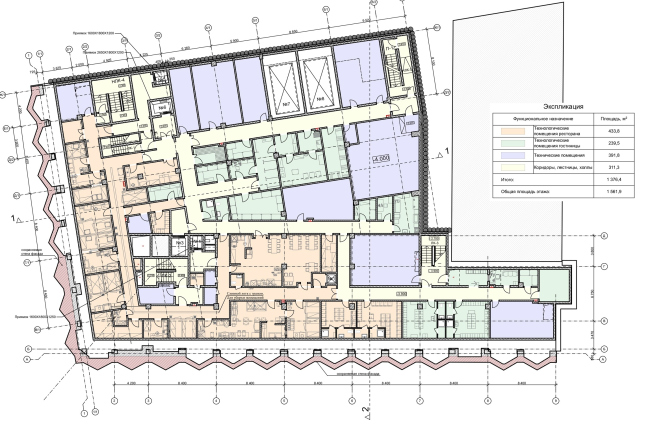
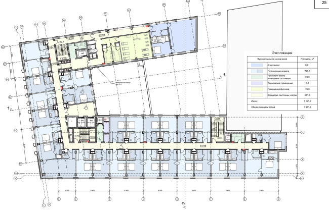
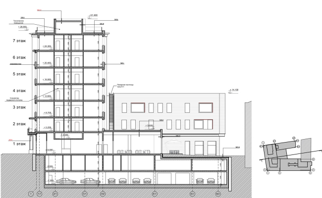
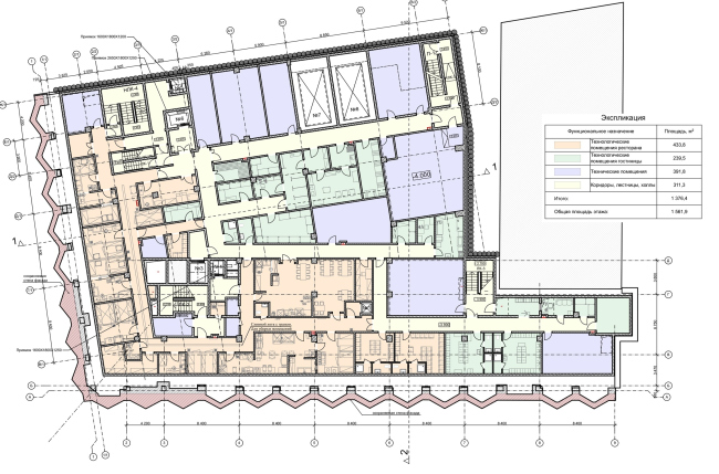
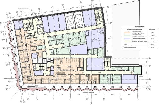
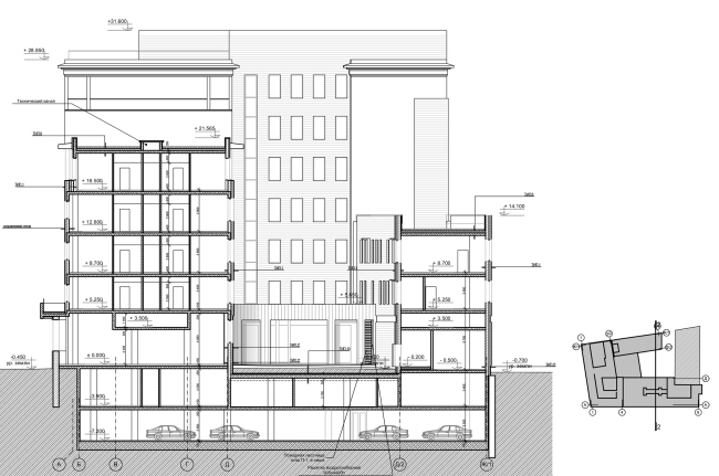
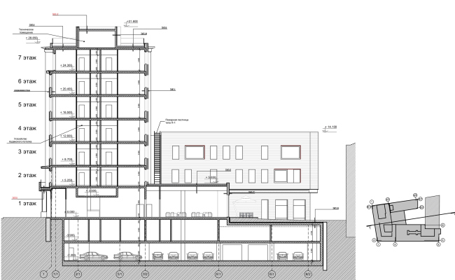
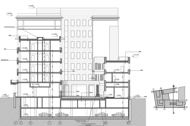
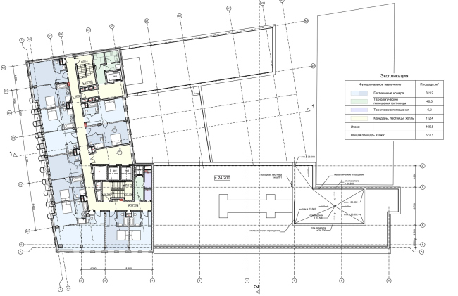
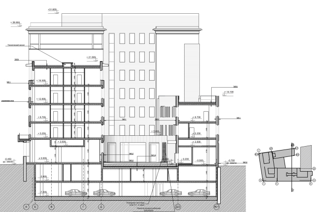
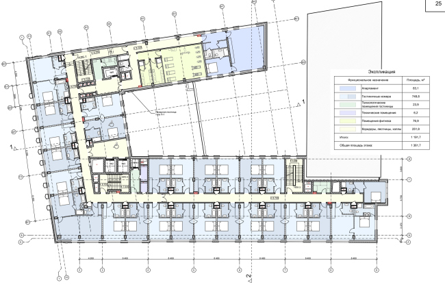
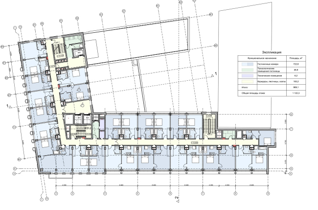
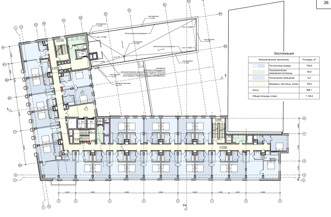
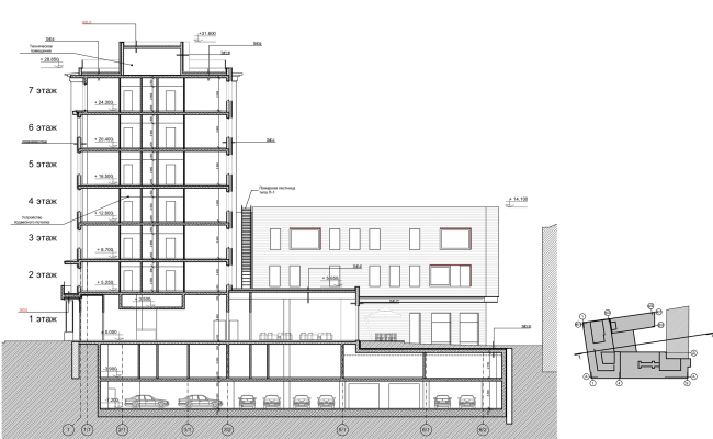
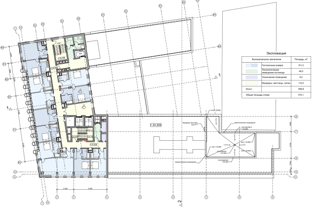
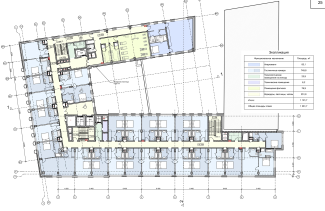
Первый этаж, высота которого увеличена до 5,25 м, сохранит зигзагообразный контур 1930-х, вторящий треугольным контурам ребер-пилонов, но получит, сохранив конструктив, подходящую для гостиницы каменную облицовку с большими безрамными стеклами. Примерно две трети первого этажа займет ресторан, треть – лобби отеля. В первом этаже зигзаг исторической стены придает внутренним пространствам дополнительное преимущество при расстановке столиков в образующихся эркерах; на плане минус-первого этажа хорошо видно, что фундамент исторической зигзагообразной стены не включен в состав несущей конструкции, каркас и стены новой «начинки» отеля отступают в глубину. Тот же прием повторен и в верхних этажах – внешняя, историческая стена не нагружена, напротив, опоры каркаса, установленные вдоль контура стен, протягивают к ней поддерживающие балки.
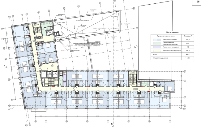
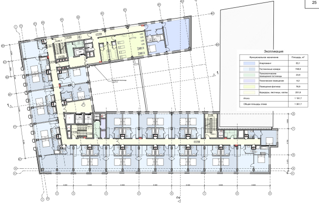
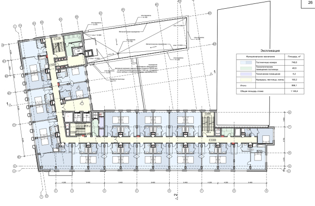
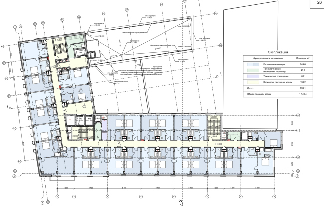
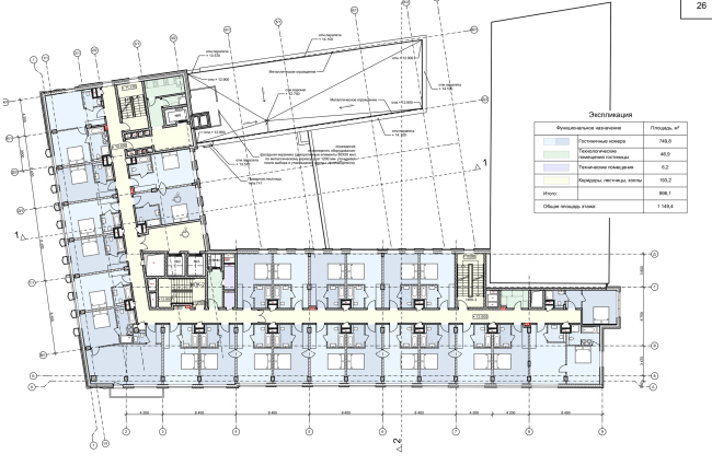
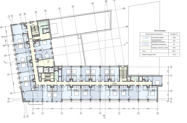
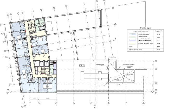
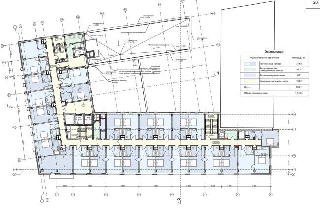
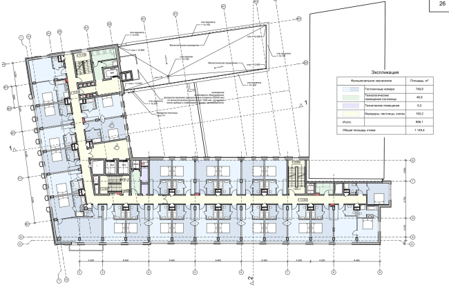
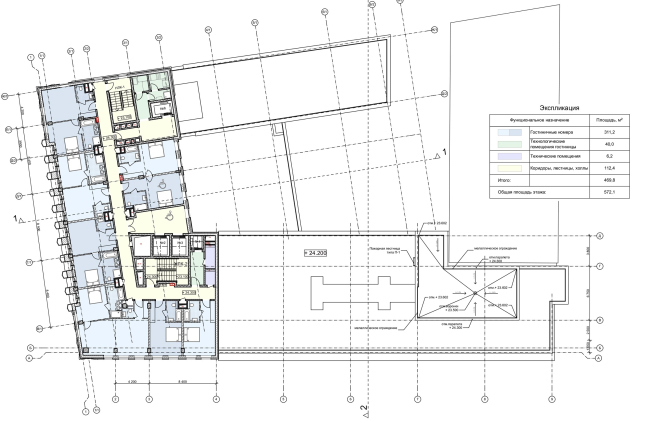
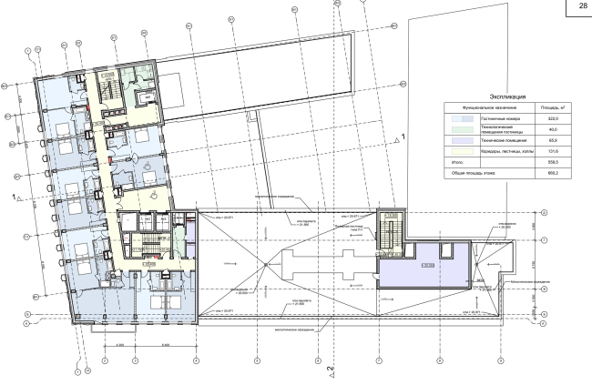
Реконструкция здания на Зубовской площади. План 4 этажа
Реконструкция здания на Зубовской площади. План 4 этажа
© Архитектурная мастерская «ГРАН»
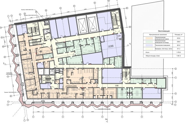
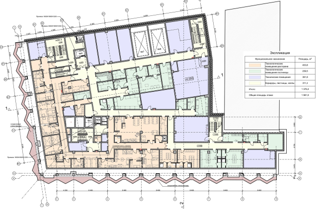
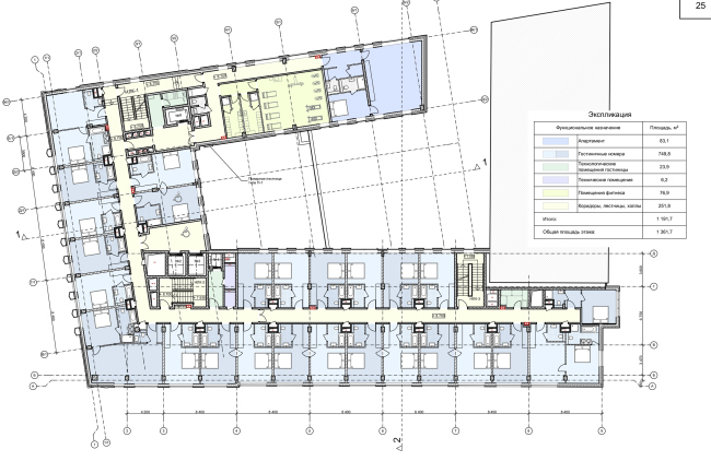
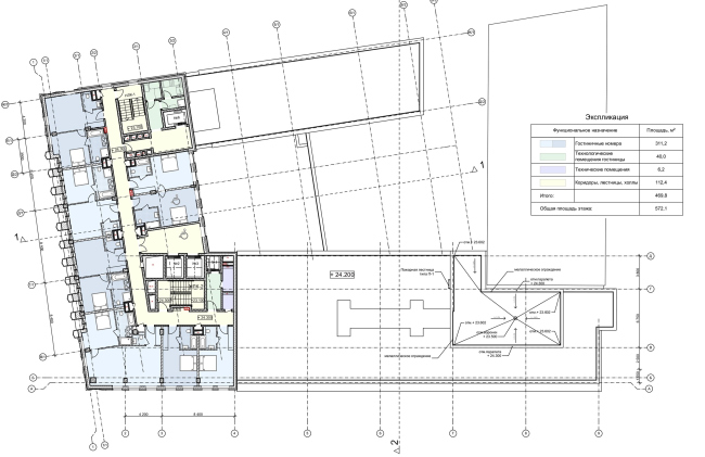
Реконструкция здания на Зубовской площади. План 1 этажа
Реконструкция здания на Зубовской площади. План 1 этажа
© Архитектурная мастерская «ГРАН»

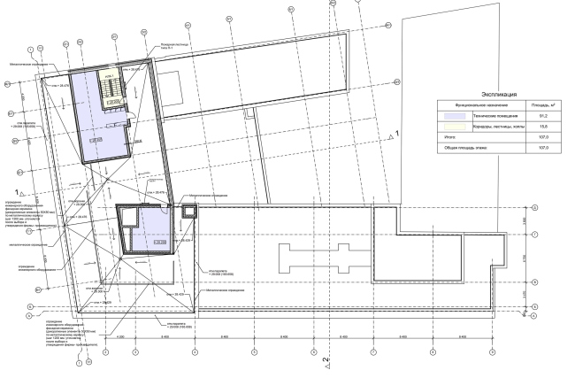
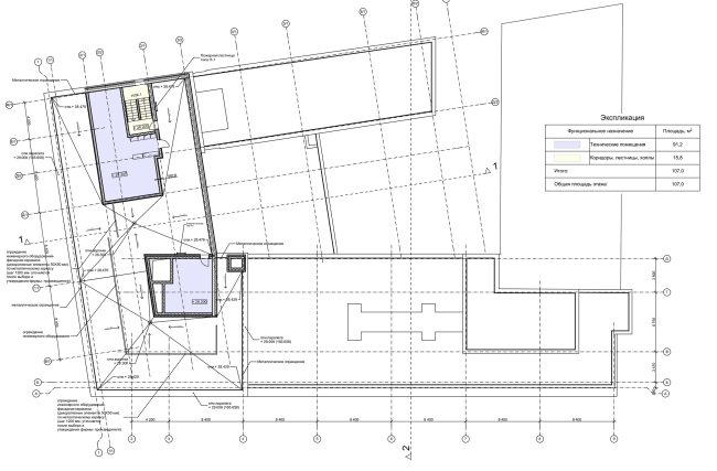
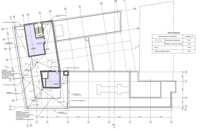
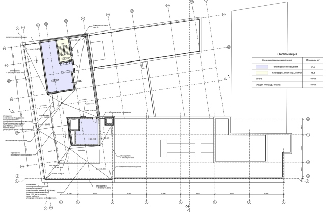
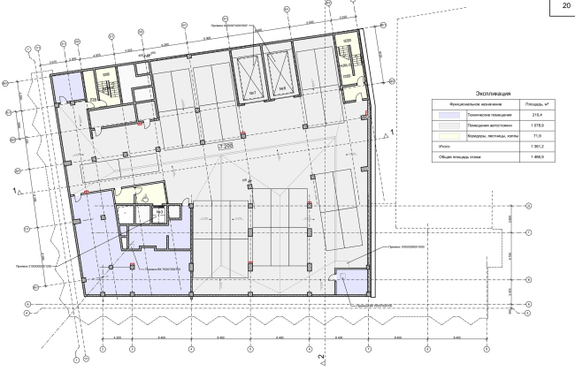
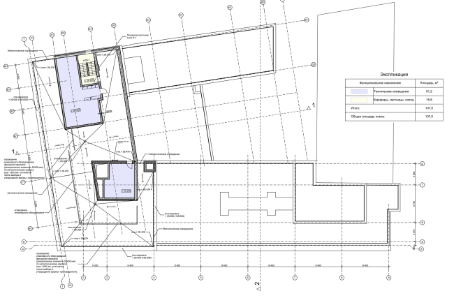
Первый подземный этаж занят техническими помещениями ресторана и гостиницы, а небольшая парковка расположена ниже. В невысоком корпусе вдоль Дашкова переулка нашлось место для фитнес-центра и одного апартамента, не слишком большого, 83 м2. К слову, боковые крылья реконструируются более радикально – западный корпус должен быть разобран и восстановлен в тех же параметрах с имитацией, маленький восточный также будет построен заново, но с современными фасадами – это единственное место, где они обращены «лицом» к городу.
Реконструкция здания на Зубовской площади. План -1 этажа
Реконструкция здания на Зубовской площади. План -1 этажа
© Архитектурная мастерская «ГРАН»

Современно и в той же манере решены фасады внутреннего двора: тонкие горизонтальные полоски керамики RAL светло-бежевого цвета. Новый одноэтажный объем с большими витражами, продолжающий лобби гостиницы внутри двора, также покрыт керамикой, но ее полосы широкие, вертикальные и темно-бордовые – таким образом современные части вторят предложенной расцветке исторических фасадов и перефразируют их. Два цвета керамики дополнены вставками, имитирующими деревянные панели.
Реконструкция здания на Зубовской площади. Фасад
Реконструкция здания на Зубовской площади. Фасад
© Архитектурная мастерская «ГРАН»
Реконструкция здания на Зубовской площади. Фасад
Реконструкция здания на Зубовской площади. Фасад
© Архитектурная мастерская «ГРАН»
Реконструкция здания на Зубовской площади. Фасад
Реконструкция здания на Зубовской площади. Фасад
© Архитектурная мастерская «ГРАН»
Реконструкция здания на Зубовской площади.
Реконструкция здания на Зубовской площади.
© Архитектурная мастерская «ГРАН»

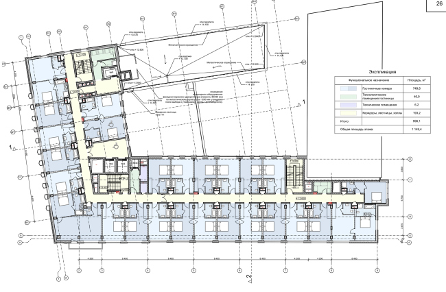
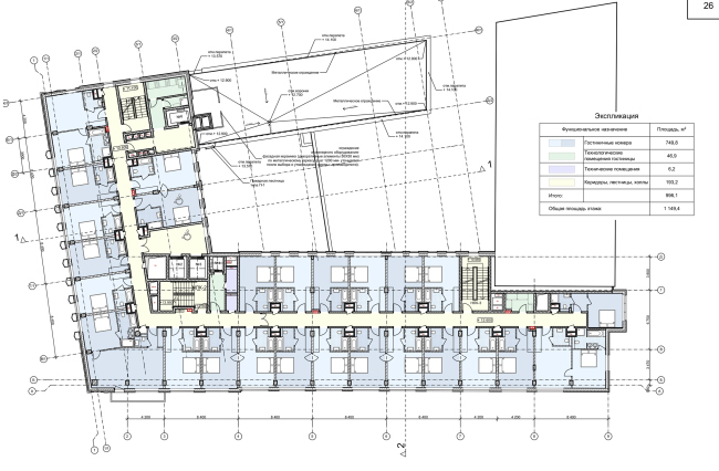
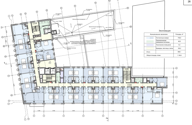
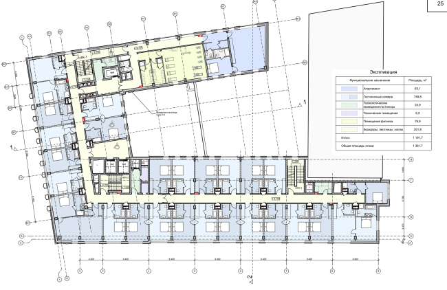
Первоначально планировалось, что отель будет управляться сетью Mariott, затем было решено передать его сети AccorHotels. В гостинице 119 номеров, за редким исключением однокомнатных, общей площадью 750 м2, большие номера на верхнем седьмом этаже с видом на Садовое кольцо.

Авторы проекта – а это был первый для них опыт – предложили имидж-концепцию интерьеров гостиницы в духе произведений авангарда: зона ресепшн, вдохновленная вещами Любви Поповой, ресторан и бар в стилистике Варвары Степановой, номера и коридоры из Малевича и Родченко – затронули все, включая не только покрывала и ковролин на полу, но и форменную одежду персонала, и посуду. С фотографиями спортсменов 1920-х в тренажерном зале и бассейне.
Реконструкция здания на Зубовской площади
Реконструкция здания на Зубовской площади
© Архитектурная мастерская «ГРАН»
Реконструкция здания на Зубовской площади
Реконструкция здания на Зубовской площади
© Архитектурная мастерская «ГРАН»
Реконструкция здания на Зубовской площади
Реконструкция здания на Зубовской площади
© Архитектурная мастерская «ГРАН»
Реконструкция здания на Зубовской площади
Реконструкция здания на Зубовской площади
© Архитектурная мастерская «ГРАН»
Реконструкция здания на Зубовской площади
Реконструкция здания на Зубовской площади
© Архитектурная мастерская «ГРАН»
Реконструкция здания на Зубовской площади
Реконструкция здания на Зубовской площади
© Архитектурная мастерская «ГРАН»

Энергия авангарда с его стремлением к освоению всех областей жизни – благоприятная область для дизайна. Огромный материал позволяет погрузить постояльцев в настроение и культуру «эпохи».

Впрочем заметим, что здание завершено в 1939, оно позже авангарда и чем-то (возможно, масштабом, объемом и симметрией) напоминает гостиницу «Москва».

И хотя для 1930-х характернее лепнина на потолке и бронзовые люстры, тем интереснее идея авторов проекта «повернуться к истокам», нарушить последовательность, подчеркнув близость авангарда. Вообще говоря, в этой вольности и нарушении (для нас, людей твердо знающих, что конструктивизм и постконструктивизм скорее антагонисты) заключается иной вид взгляда на историю: нередко мы забываем, что супер-насыщенные 1920-е и 1930-е годы это всего лишь два десятилетия, сегодня столько же прошло с 1998 года. И если часть мастеров авангарда, действительно, не смогла принять реальность «пост», то другая часть приняла – случалось, то и другое делали одни и те же люди, хотя герои у двух направлений были, конечно же, разными.

Кроме того здание АТС, техническая постройка, по определению не подходящая для жилья и требующая ради своего сохранения не только вдумчивых инженерных мер, но и образного «обоснования», возможно, такую вольность допускает. Иными словами, какая разница по «гамбургскому счету» сохранения наследия, превратить ли бывшую АТС в раннесталинский микродворец, или погрузить в феерию более раннего времени – то и другое будет допущением, поскольку функция утрачена, а настаивать на ее сохранении не представляется возможным.

Имидж-концепция воодушевила заказчика, проект был принят, утвержден и согласован, но, как это сейчас нередко случается, на этом взаимоотношения между сторонами прекратились и сюжет развивается сегодня без участия авторов. Рабочая документация, проекты интерьеров, контроль за строительством – все передано организациям, не имевшим отношения к созданию проекта. В ситуации отсутствия внимания к авторским правам и авторского надзора остается лишь надеяться на бережное отношение к проекту и на приемлемый результат. Все же центр города. 
Реконструкция здания на Зубовской площади. Ситуационный план
Реконструкция здания на Зубовской площади. Ситуационный план
© Архитектурная мастерская «ГРАН»
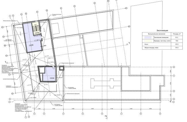
Реконструкция здания на Зубовской площади. План -2 этажа
Реконструкция здания на Зубовской площади. План -2 этажа
© Архитектурная мастерская «ГРАН»
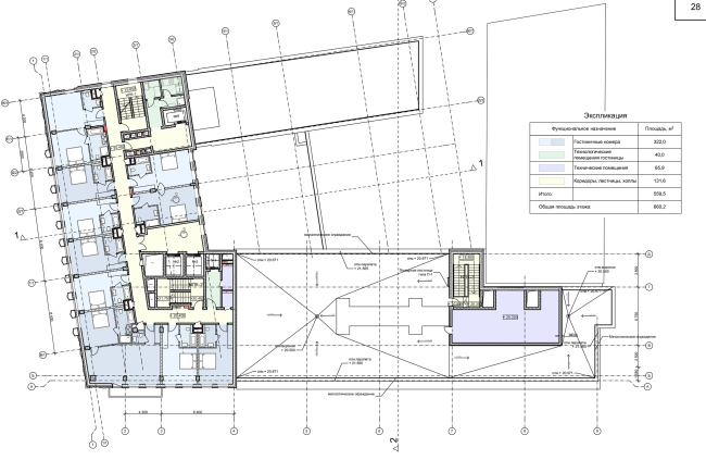
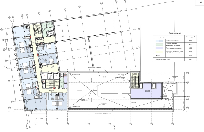
Реконструкция здания на Зубовской площади. План 5 этажа
Реконструкция здания на Зубовской площади. План 5 этажа
© Архитектурная мастерская «ГРАН»
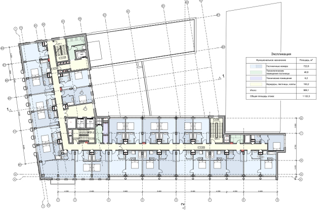
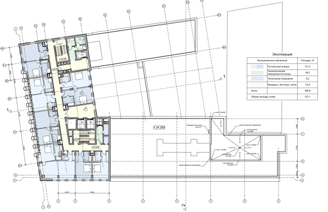
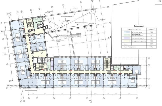
Реконструкция здания на Зубовской площади. План 3 этажа
Реконструкция здания на Зубовской площади. План 3 этажа
© Архитектурная мастерская «ГРАН»
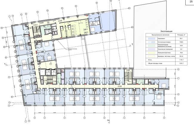
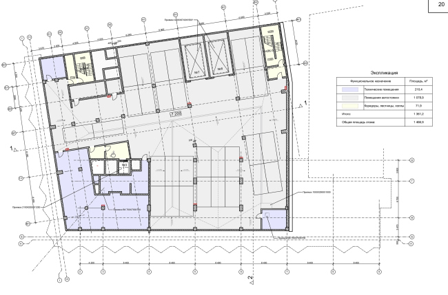
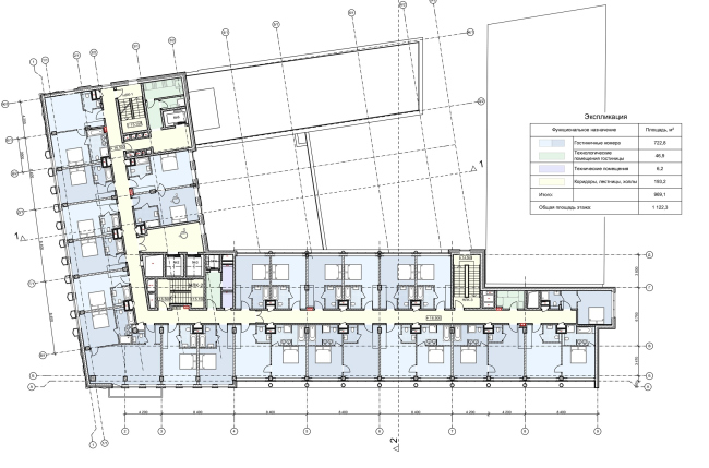
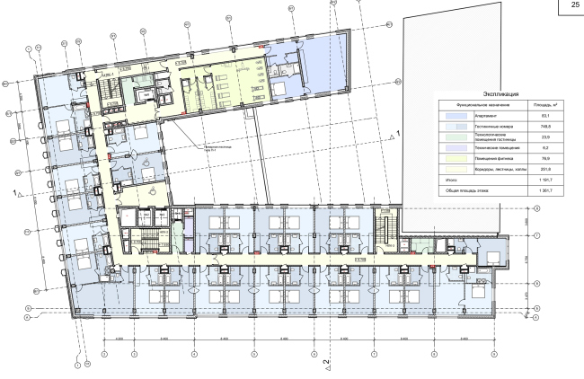
Реконструкция здания на Зубовской площади. План 2 этажа
Реконструкция здания на Зубовской площади. План 2 этажа
© Архитектурная мастерская «ГРАН»
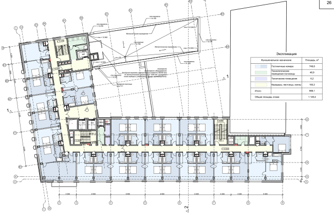
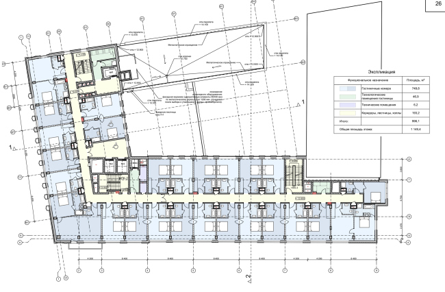
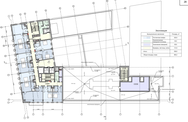
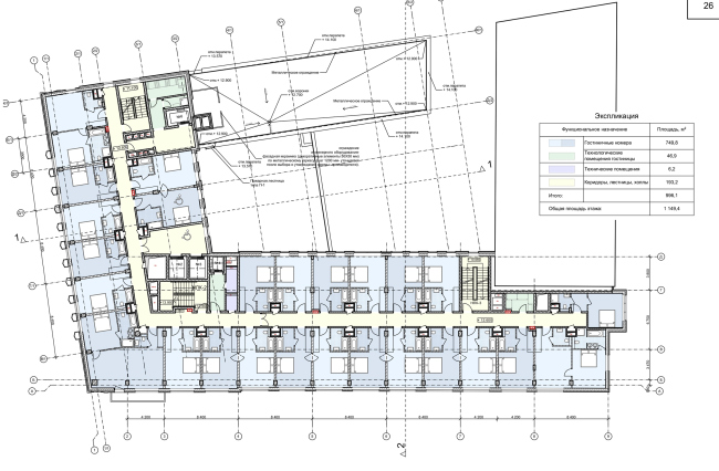
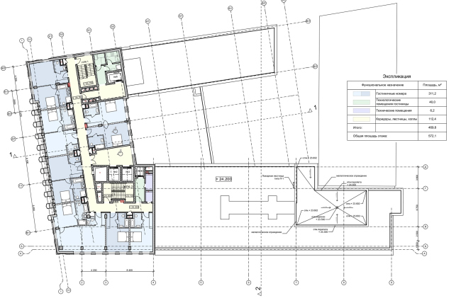
Реконструкция здания на Зубовской площади. План 7 этажа
Реконструкция здания на Зубовской площади. План 7 этажа
© Архитектурная мастерская «ГРАН»
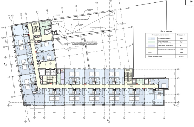
Реконструкция здания на Зубовской площади. План 6 этажа
Реконструкция здания на Зубовской площади. План 6 этажа
© Архитектурная мастерская «ГРАН»
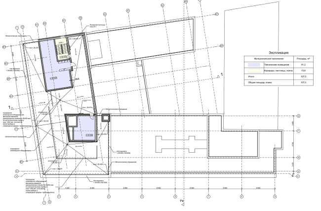
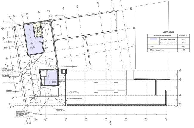
Реконструкция здания на Зубовской площади. План кровли
Реконструкция здания на Зубовской площади. План кровли
© Архитектурная мастерская «ГРАН»
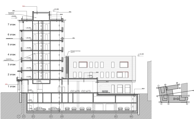
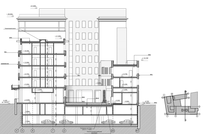
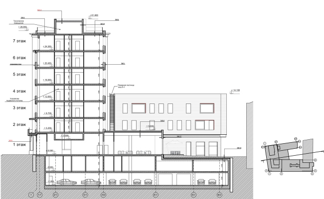
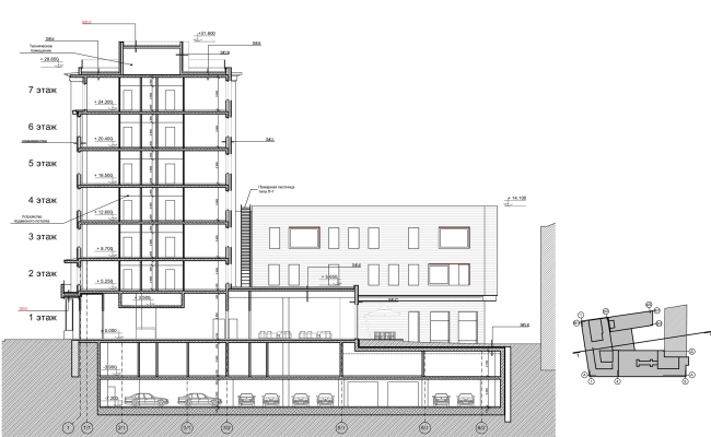
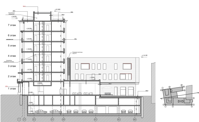
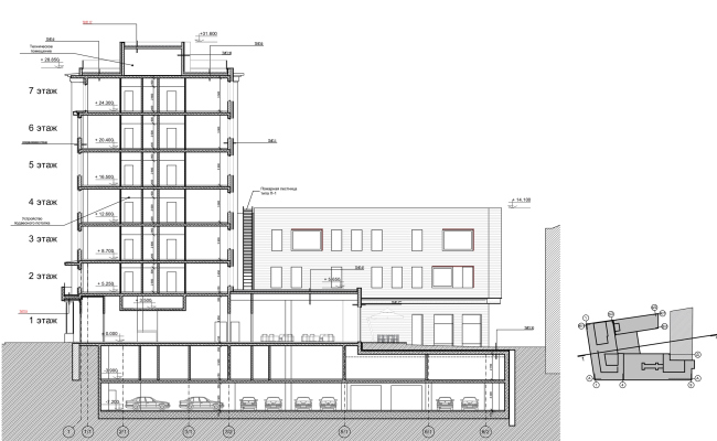
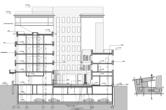
Реконструкция здания на Зубовской площади. Разрез 2-2
Реконструкция здания на Зубовской площади. Разрез 2-2
© Архитектурная мастерская «ГРАН»
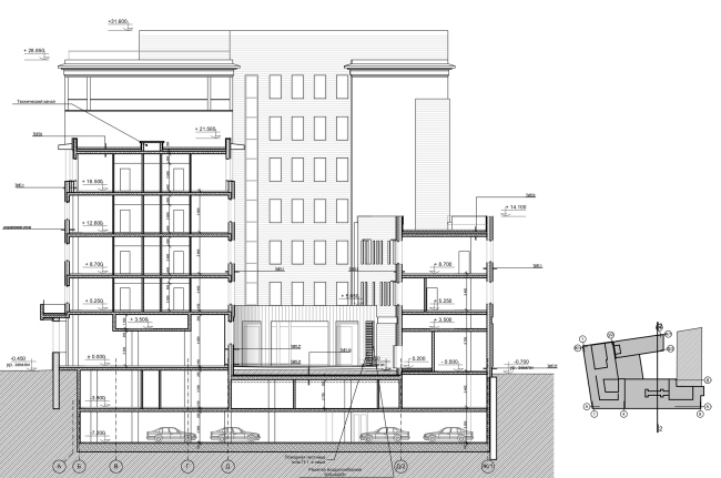
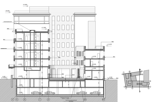
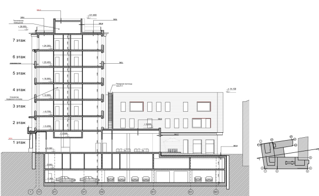
Реконструкция здания на Зубовской площади. Разрез 1-1
Реконструкция здания на Зубовской площади. Разрез 1-1
© Архитектурная мастерская «ГРАН»