Размещено на портале Архи.ру (www.archi.ru)

05.10.2018

Градсовет Петербурга 3.10.2018

Алёна Кузнецова
Объект:
Концепция расширения Литературно-мемориального музея Ф.М. Достоевского
Адрес:
Россия, Санкт-Петербург. улица Достоевского, дом 2/5, литера А
Мастерская:
Евгений Герасимов и партнеры

Обсуждение концепции расширения музея Достоевского вылилось в дискуссию о праве современной архитектуры соседствовать с исторической застройкой Петербурга.

Концепция расширения Литературно-мемориального музея Ф.М. Достоевского 
Санкт-Петербург, улица Достоевского, дом 2/5, литера А
Проектировщик: ООО «Евгений Герасимов и партнеры»
Заказчик: Фонд поддержки и развития Музея Ф.М. Достоевского «Петербург Достоевского»
Концепция развития Литературно-мемориального музея Ф.М. Достоевского, 2018
Концепция развития Литературно-мемориального музея Ф.М. Достоевского, 2018
© Евгений Герасимов и партнеры

Проект расширения музея Достоевского выносят на общественное и профессиональное обсуждение уже не в первый раз. Причин пристального внимания к нему несколько: исторический центр Петербурга и имя писателя, финансирование проекта на благотворительной основе при участии крупных бизнесменов, газон на участке, подчеркнуто современный фасад музея. Заседание традиционно предварял одиночный пикет, призывающий не допустить стройку.

Первой выступила директор музея Наталья Ашимбаева, которая вновь рассказала о том, почему новое пространство необходимо: музею скоро 50 лет, он значительно расширил свою деятельность, появились выставки и различные проекты, для которых нет места. В новое здание переедет театр музея, а значит старое полуподвальное помещение освободится для хранения фондов. Сейчас у музея для выставок всего 103 м2, в новом здании будет еще 244.
Концепция развития Литературно-мемориального музея Ф.М. Достоевского, 2018 © Евгений Герасимов и партнеры
Концепция развития Литературно-мемориального музея Ф.М. Достоевского, 2018 © Евгений Герасимов и партнеры

Евгений Герасимов выступил сначала как соучредитель «Фонда поддержки и развития Музея Ф.М. Достоевского» и рассказал о финансировании проекта. Здание будет строиться за счет благотворителей, среди которых и обычные горожане, и бизнесмены: Андрей Якунин, Андрей Молчанов, Феликс Длин. На благотворительной основе работают проектные и инженерные организации – мастерская «Евгений Герасимов и партнеры», ДОКА Центр и Tsn Group. Для строительства здания площадью 1600 м2 потребуется примерно 650 млн рублей. За счет собранных средств уже расселили одну из трех квартир в здании музея. В будущем фонд передаст музею по договору безвозмездного бессрочного пользования все помещения – и новые, и старые.

Евгений Герасимов рассказал о функциональном наполнении будущего здания и трансформации старого музея. Подробнее остановился на фасаде: он будет учитывать модуль этажей соседних зданий – музея и ИНЖЭКОНа, построенных в 1849 и 1912 годах соответственно. Серый гранит разных пород, оттенков и фактур будет сочетаться с медными листами, перекликающимися с куполами Владимирского собора. От идеи гравировки цитат из Достоевского решили отказаться – «слишком лобовой прием». Фасад получился «мощный, тактильный, дорогой, но недосказанный, чтобы долго не надоедал, и каждый в нем видел свое». Дворовый фасад также будет выполнен в камне, а если все-таки понадобится поставить наружную эвакуационную лестницу – ее закроют сеткой, по которой пустят плющ.

По мнению Евгения Герасимова, очень важно, чтобы музей выглядел не как доходный дом XIX века, а как общественное здание XXI. Когда фонду передадут участок, концепция будут дорабатывать в деталях, но радикально не изменится.
Концепция развития Литературно-мемориального музея Ф.М. Достоевского, 2018 © Евгений Герасимов и партнеры
Концепция развития Литературно-мемориального музея Ф.М. Достоевского, 2018 © Евгений Герасимов и партнеры
Концепция развития Литературно-мемориального музея Ф.М. Достоевского, 2018 © Евгений Герасимов и партнеры
Концепция развития Литературно-мемориального музея Ф.М. Достоевского, 2018 © Евгений Герасимов и партнеры

Рецензент Анатолий Столярчук, чтобы отмести ненужные обсуждения, сразу прошелся по «неархитектурным» вопросам, которые вызывают много споров: есть подписанный на Экономическом форуме 2018 года инвестдоговор, одобряющий строительство, деньги не бюджетные, нормативные документы не запрещают новое строительство на этом участке, сквер не ликвидируют, а частично застраивают и благоустраивают. Главный вопрос: может ли быть в этом месте новое здание, и если да, то какое.

На этот вопрос и пытались ответить в ходе дальнейших обсуждений. Предсказуемо образовалось два лагеря: архитекторы, которые считают что можно и должно, и градозащитники, которые ратуют за сохранение среды «Петербурга Достоевского».
Концепция развития Литературно-мемориального музея Ф.М. Достоевского © Евгений Герасимов и партнеры
Концепция развития Литературно-мемориального музея Ф.М. Достоевского © Евгений Герасимов и партнеры

Анатолий Столярчук считает, что архитектура разных эпох Кузнечного переулка вполне способна принять новое здание. А фасад – «осмысленное, но не прямолинейное попадание в масштаб и стилистику окружения». Михаил Кондиайн согласился: «авторы взяли ритм, масштаб и горизонтальные сечения, поддержали карниз. Детали соответствуют теме и современному прочтению архитектуры». Никита Явейн предложил выпить за храбрость и обаяние Евгения Герсимова и высказал мнение, что «каменная стена с разными фактурами высокого качества, которого Евгений Герасимов умеет добиваться, – это правильный ход, она заменит детализацию, которой нам обычно не хватает».

Руководитель архитектурной мастерской «Б2» Феликс Буянов назвал работу интересной и состоявшейся, а также удивился извинительному тону архитектора и рецензента – предыдущим днем проект обсуждали на Молодежной секции Союза архитекторов, и там его встретили доброжелательно. Евгений Герасимов, к слову, действительно выглядел несколько уставшим от необходимости бесконечно объяснять свою работу. Также Феликс Буянов отметил, что если дворовый фасад и кровлю получится сделать зелеными, то «природы» на участке будет больше, чем в нынешнем сквере. Фасад по его мнению получился метафоричный: титаническая кладка намекает на титана отечественной литературы, «коренная порода нашего непобедимого города вышла на поверхность».

Впрочем, у архитекторов были и замечания. У Никиты Явейна вызвала сомнения «богатая банковская архитектура», на его взгляд, далекая от духа Достоевского. По словам Явейна, из общего строя «выпадает стеклянный градусник» атриума, который создает «эффект бутика и новорусскость», – эту мысль поддержали многие из присутствующих. Атриум члены совета предложили проработать тоньше или заглубить. Также сомнения вызвал эркер.
Концепция развития Литературно-мемориального музея Ф.М. Достоевского © Евгений Герасимов и партнеры
Концепция развития Литературно-мемориального музея Ф.М. Достоевского © Евгений Герасимов и партнеры

Градозащитники высказывались более резко. Заместитель председателя Санкт-Петербургского отделения ВООПИиК Александр Кононов назвал концепцию «радикальным вторжением в историческую среду квартала и Кузнечного переулка» и предложил путь архитектурной реставрации (раньше на участке стоял доходный дом, который снесли в 1950-х годах). Еще одна загвоздка: «здание музея – памятник федерального значения, у которого есть предметы охраны: наружные и внутренние капитальные стены, пробивать которые противозаконно». Также прозвучало мнение, что важнее умерить амбиции фонда и восстановить среду Петербурга Достоевского. Нынешнее решение – «взрыв, удар по ожиданию людей, которые приезжают посмотреть на то, в каких условиях Достоевский писал свои произведения». Доцент кафедры архитектуры Института имени И.Е. Репина Сергей Шмаков проголосовал за стилизацию. Руководитель центра экспертиз ЭКОМ Александр Карпов сослался на 820-й закон, который запрещает изменение традиционных приемов при новом строительстве в этой зоне, одновременно высказав ироническую уверенность в гибкости подхода юристов КГИОП.

Михаил Кондиайн определил споры вокруг проекта как «расхлебывание наследия девяностых», когда в городе совершенно оправданно и появилось градозащитное движение. Но, по словам архитектора, сложившееся в то время законодательство мешает развиваться городу, который сейчас живет уже в других реалиях: «Мумия вместо живого города – страшное явление, а не неприятная тенденция: в центре города нет качественной среды, новому поколению нечего дать». Михаил Кондиайн призвал найти правильные взаимоотношения с градозащитниками.

Кажется, что некоторые изменения в этих отношениях все же есть: члены градсовета высказывались на удивление спокойно и лояльно. Ближе к концу заседания, впрочем, кто-то начал требовать от градозащитников извинений, а те в ответ пригрозили списком градостроительных ошибок, но на том и закончилось.

Далее проект ждет обсуждение на Совете по сохранению культурного наследия.
Разрез 3-3. Концепция развития Литературно-мемориального музея Ф.М. Достоевского © Евгений Герасимов и партнеры
Разрез 3-3. Концепция развития Литературно-мемориального музея Ф.М. Достоевского © Евгений Герасимов и партнеры
Пятый этаж, план на отметке 14.700. Концепция развития Литературно-мемориального музея Ф.М. Достоевского © Евгений Герасимов и партнеры
Пятый этаж, план на отметке 14.700. Концепция развития Литературно-мемориального музея Ф.М. Достоевского © Евгений Герасимов и партнеры
Четвертый этаж, план на отметке 11.100. Концепция развития Литературно-мемориального музея Ф.М. Достоевского © Евгений Герасимов и партнеры
Четвертый этаж, план на отметке 11.100. Концепция развития Литературно-мемориального музея Ф.М. Достоевского © Евгений Герасимов и партнеры
Третий этаж, план на отметке 7.800. Концепция развития Литературно-мемориального музея Ф.М. Достоевского © Евгений Герасимов и партнеры
Третий этаж, план на отметке 7.800. Концепция развития Литературно-мемориального музея Ф.М. Достоевского © Евгений Герасимов и партнеры
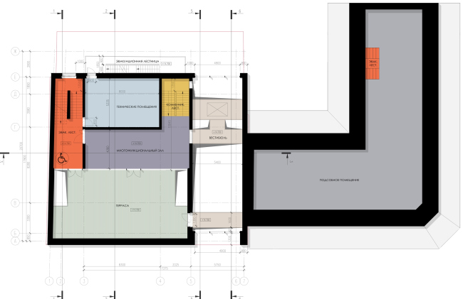
Второй этаж, план на отметке 4.500. Концепция развития Литературно-мемориального музея Ф.М. Достоевского © Евгений Герасимов и партнеры
Второй этаж, план на отметке 4.500. Концепция развития Литературно-мемориального музея Ф.М. Достоевского © Евгений Герасимов и партнеры
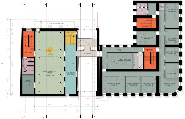
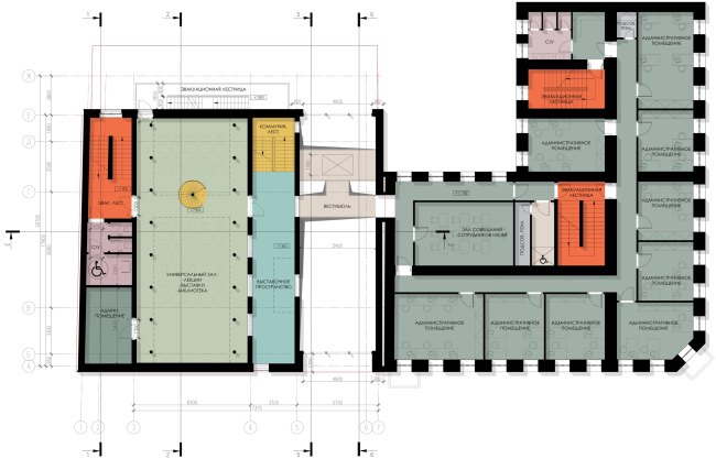
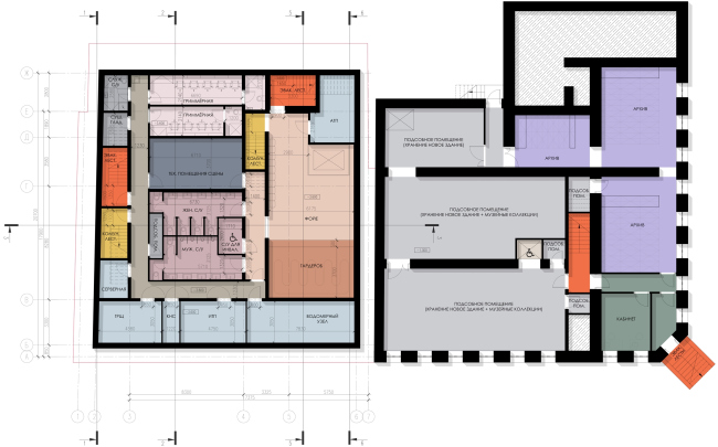
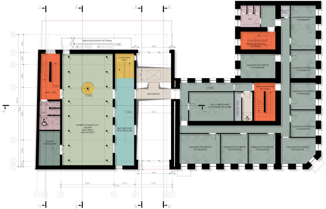
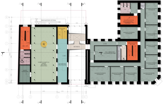
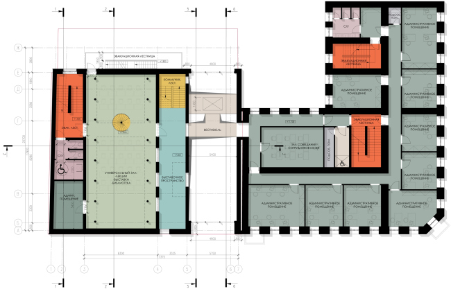
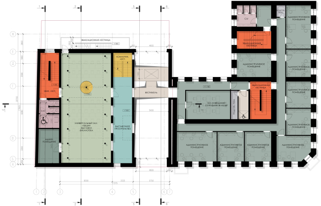
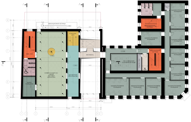
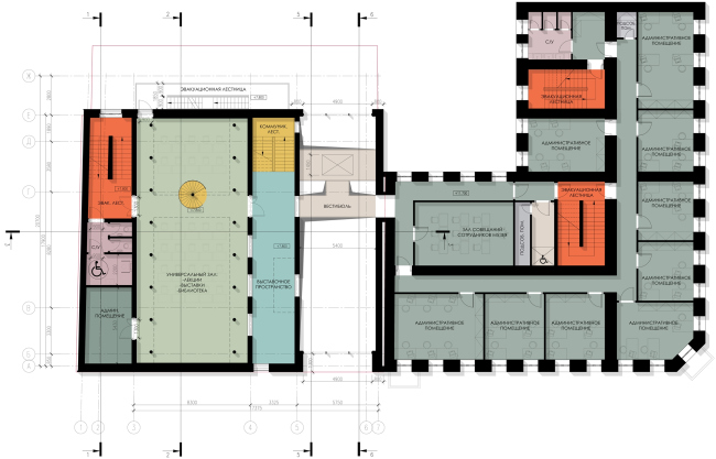
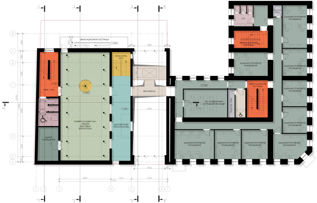
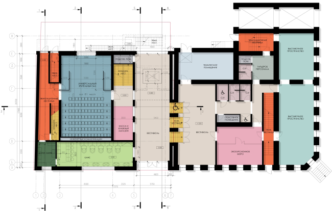
Первый этаж, план на нулевой отметке. Концепция развития Литературно-мемориального музея Ф.М. Достоевского © Евгений Герасимов и партнеры
Первый этаж, план на нулевой отметке. Концепция развития Литературно-мемориального музея Ф.М. Достоевского © Евгений Герасимов и партнеры
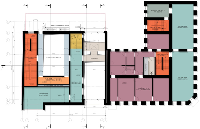
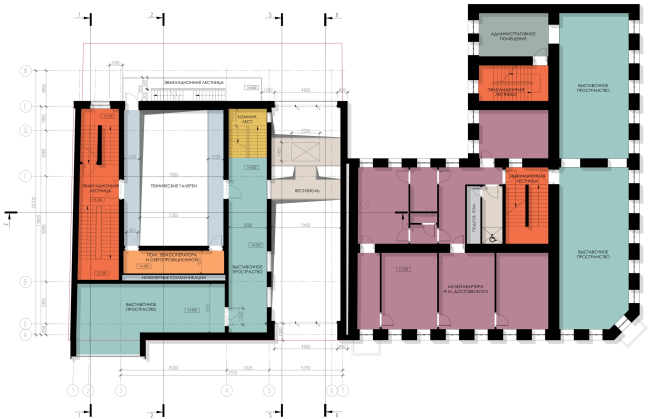
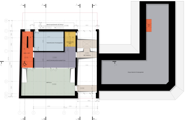
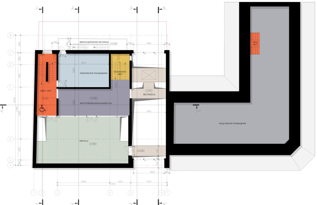
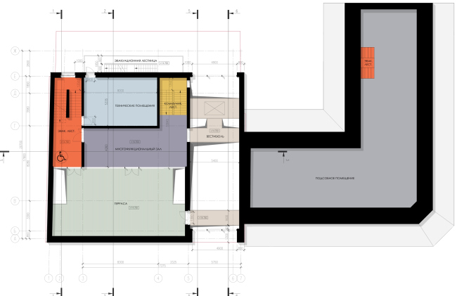
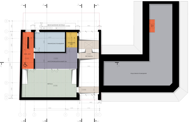
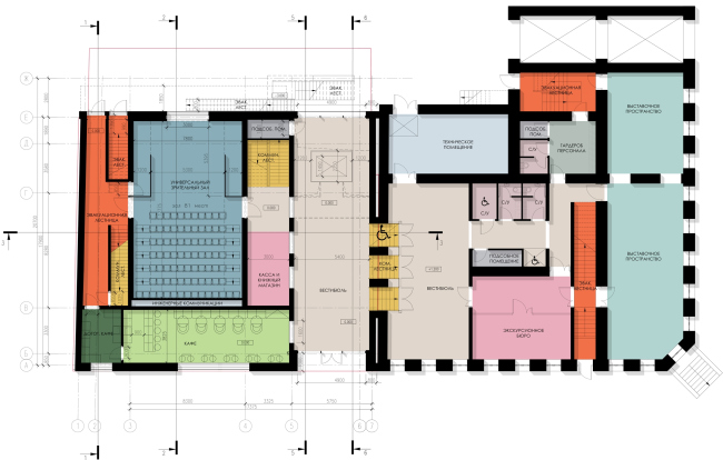
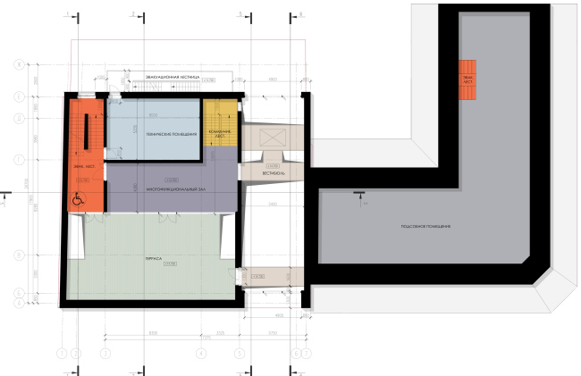
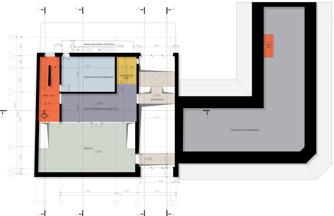
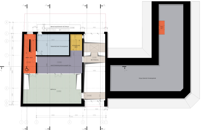
Минус первый этаж, на отметке -3600. Концепция развития Литературно-мемориального музея Ф.М. Достоевского © Евгений Герасимов и партнеры
Минус первый этаж, на отметке -3600. Концепция развития Литературно-мемориального музея Ф.М. Достоевского © Евгений Герасимов и партнеры