Размещено на портале Архи.ру (www.archi.ru)

10.04.2019

Спорт и органика

Алёна Кузнецова
Объект:
Отель «Mercure»
Адрес:
Россия, Саранск. ул. Коммунистическая, д.37
Мастерская:
Архитектурное бюро «А.Лен»
Авторский коллектив:
Орешкин С.И. – руководитель проекта,
Андреева Р. В. – гл. архитектор проекта,
Орешкина Е.С., Кретова Е.С. – архитекторы

Гибкие линии фасадов отеля «Mercure» в центре Саранска, рассчитанного, в частности, на команды спортсменов, стали результатом долгих обсуждений и поисков формы, первоначально основанных на интерпретации национальных мордовских мотивов.

«Mercure Саранск Центр». Отель сети Accor
«Mercure Саранск Центр». Отель сети Accor
Фотография © Александр Шеметов / предоставлена «А.Лен»

Отель «Mercure» строился в столице Мордовии по инициативе Владимира Грибанова – президента «КС Банка» и одновременно вице-президента Федерации фигурного катания России: он хотел подарить городу, в который приезжает не только много туристов, но и спортсменов, современную гостиницу, способную принимать гостевые команды, с должным качеством отельного сервиса. Пока заказчик и архитектор примеривались друг к другу, обсуждая будущий отель, оказалось, что Россия, и собственно Саранск, будут принимать Чемпионат мира по футболу. Тогда проект вышел на новый уровень: им заинтересовался глава республики, нашелся свободный участок в самом центре города, договорились с гостиничным оператором Accor Hotels и пригласили консультантов из компании Arup.

Благодаря инициативе специалистов Arup архитекторы "А.Лен" столкнулись, в частности, с новой задачей, подобной которой им не приходилось решать на протяжении всех 27 лет работы бюро – здание построили с расчетом на короткий период автономного функционирования в случае отключения основных сетей. «Установлен дизельный генератор, который позволит освещать и отапливать номера в течение трех дней, – рассказывают архитекторы. – Также предусмотрен небольшой запас питьевой воды, 10 кубометров». Конечно, это не обеспечивает совершенно независимой работы гостиницы наподобие космической станции, но, к примеру, поможет компенсировать внезапные поломки городской инфраструктуры.

«Mercure» расположен в центре города, на пересечении Большевистской и Коммунистической улиц, на равном удалении 330 м от храма во имя адмирала Федора Ушакова, канонизированного в 2000 году, и ярким красно-белым спорткомплексом «Саранск арена» 2012 года постройки. Вокруг – россыпь достопримечательностей и разнохарактерной архитектуры: густого свекольного цвета музыкальный театр, Главпочтамт с кафедральными амбициями, корпус Мордовского государственного университета, очень похожий на Московский, но выполненный в «алюкобонде»; и так далее. Улица Коммунистическая направляясь на восток, приводит к еще одному спорткомплексу, гигантской «Мордовия арена», построенной за речкой Инсар к ЧМ'18. Так что для спортсменов перекресток, на котором построена «Mercure», должно быть, очень удобен.
Отель «Mercure». Проект, 2014-2015
Отель «Mercure». Проект, 2014-2015
© Архитектурное бюро «А.Лен»

Учитывая неравномерность, если не сказать пестроту, контекста архитекторы приняли решение не реагировать на окружение – «как ни крути, собрать все это вместе невозможно». Между тем «согласно правилам отели сети «Mercure» должны рассказывать историю и отображать культурное наследие городов, в которых они расположены», – рассказывает Сергей Орешкин. Так что поиск образности в раздумьях о национальных мотивах и колорите Мордовии был непростым и достаточно долгим, хотя идея волнистого фасада, как это видно на эскизах, появилась почти сразу.
Отель «Mercure»
Отель «Mercure»
© Архитектурное бюро «А.Лен»
Отель «Mercure»
Отель «Mercure»
© Архитектурное бюро «А.Лен»

На некоторых рисунках видно, что фасад мог бы напоминать красно-белую вышивку крестом или яркую гладь, но на совещаниях у главы республики попросили экспрессии поубавить.
Отель «Mercure». Проект
Отель «Mercure». Проект
© Архитектурное бюро «А.Лен»

Черно-белый вариант также не подошел, тогда архитекторы остановились на сочетании белого и синего – синий отразил, хотя и в более насыщенном варианте, постмодернистское здание почтамта напротив, что можно понять как вариант контекстуальной привязки к местности. Два здания взяли на себя роль своего рода пропилей, хотя кроме синего цвета и сходной высотной отметки – немногим менее 50 метров, максимальной для этого места, ничего больше общего между ними, конечно, нет – скорее они представляют собой два совершенно разных периода и направления.



Итак, после многочисленных обсуждений и изменений проекта тема традиционного мордовского орнамента трансформировалась в небольшие диагонали-прожилки между белыми горизонталями. Ушла и орнаментальная сетка на белых поверхностях, которая оказалась слишком дорогой. Подобный прием «А.Лен» успешно опробовал в Российском центре науки и культуры в Кабуле, только там на белые алюминиевые фасады наносили орнамент, характерный для белокаменного зодчества Руси.

А жаль – фольклорный рисунок ритмично сгруппированных четырехлистников придал бы фасаду многомерность, как пластическую, так и смысловую, что хорошо заметно, в частности, по вариантам вечерней подсветки, где по лентам фасада «бегут» огни орнамента, похожего на свечение значков современной электроники, но основанного на повторении традиционного мотива.
Отель «Mercure». Проект. Вариант подсветки 1 от компании “Martini Light” /
Отель «Mercure». Проект. Вариант подсветки 1 от компании “Martini Light” /
Архитектурное бюро «А.Лен»
Отель «Mercure». Проект. Вариант подсветки 2 от компании “Martini Light” /
Отель «Mercure». Проект. Вариант подсветки 2 от компании “Martini Light” /
Архитектурное бюро «А.Лен»
Отель «Mercure». Проект. Вариант подсветки 2 от компании “Martini Light” /
Отель «Mercure». Проект. Вариант подсветки 2 от компании “Martini Light” /
Архитектурное бюро «А.Лен»

Впрочем, в здании «Mercure» узоры удалось сохранить на уровне более локального, индивидуального восприятия с уровня пешехода и гостя: сейчас мы видим орнаменты на пилоне входной группы и в принте окон первого этажа.
Отель «Mercure». Фотография
Отель «Mercure». Фотография
© Александр Шеметов
Отель «Mercure»
Отель «Mercure»
© Архитектурное бюро «А.Лен»
Отель «Mercure»
Отель «Mercure»
© Архитектурное бюро «А.Лен»

С другой стороны, национально-декоративная тема нашла отражение в интерьерах общественных зон гостиницы, разработанных дизайн-студией Sundukovy Sisters – она единственная в России обладает лицензией на разработку интерьеров для сети Accor. Главным источником вдохновения дизайнеры называют музей мордовского скульптора Степана Эрьзя, также расположенный в двух шагах от «Mercure». В отделке и декоре много дерева, основные цвета – зеленый и коричневый, как у музея. Фойе украшено деревянными скульптурами местных художников и картинами на сюжеты мордовской мифологии.
Отель «Mercure», интерьеры
Отель «Mercure», интерьеры
© Sundukovy sisters. Предоставлено: «А.Лен»
Отель «Mercure», интерьеры
Отель «Mercure», интерьеры
© Sundukovy sisters. Предоставлено: «А.Лен»

В рисунке же видимых издалека фасадов здания от мотивов национального мордовского орнамента сохранились лишь тонкие диагональные перемычки между ленточными горизонтальными тягами. Вместе они образуют гибкую скелетообразную структуру, которая уверенными линиями очерчивает объем, скругляя углы, формируя волнообразные переходы и выступы.

Человек, знакомый с контекстом современной архитектуры, при первом же взгляде на саранский «Mercury» вспомнит известный московский Dominion tower, спроектированный бюро Захи Хадид. Сходство, определенно, имеет место, в равной степени как и масса отличий. На сходство работает рисунок белых полос, в сущности, присущий модернисткой архитектуре вообще, и диагонали. Но вспомним, что поиск образа саранской «Mercury» начался с «плетенки» волнистых полос этажей. Гостиница Сергея Орешкина компактнее, вертикальнее, ее абрис «слеплен» плотнее. Переклички с БЦ Захи очевидны, но лежат в плоскости общего тренда, стремления создать остро-современную, нелинейную форму. «Да, мне хотелось построить в центре Саранска бионическую архитектуру, заметную и полностью принадлежащую нашему времени», – говорит Сергей Орешкин.

Скульптурная, подвижная форма вовсе не отлита в бетоне, а реализована каркасно-монолитным методом, с заполнением кирпичом и облицовкой алюминиевыми панелями из композитного материала российского производства. Ночью «силовые линии» здания подчеркивает фасадная светодиодная подсветка.
Отель «Mercure». Фотография
Отель «Mercure». Фотография
© Александр Шеметов
Отель «Mercure». Фотография
Отель «Mercure». Фотография
© Александр Шеметов
Отель «Mercure». Фотография
Отель «Mercure». Фотография
© Александр Шеметов
Отель «Mercure». Фотография
Отель «Mercure». Фотография
© Александр Шеметов

Стилобат, отмеченный диагональной белой стелой входа, воспринимается как крупный, широкий постамент здания. В нем разместились лобби, ресторан и бар, а также конференц-зал, фитнес-центр с небольшим spa и офисы администрации отеля. Семь этажей гостиницы сгруппированы в три слоя, отделенных двумя «талиями» и чуть смещенных в разных направлениях – они служат метафорой трех ступеней спортивного пьедестала. В выступающих частях слоев-лент расположены улучшенные номера – так что объемная структура достаточно точно отражает внутреннюю структуру здания.



В отеле 115 номеров, и из-за нюансов абриса внешних стен и различий в размере окон планировки различаются: каждая комната получила индивидуальный дизайн – также с элементами «текучести»: «рабочий стол перетекает в изголовье кровати, которое переходит в часть стены со встроенным торшером», – поясняет Сергей Орешкин. С плавными линиями контрастирует орнамент треугольников, квадратов и шестигранников на полу, стенах, кафеле. Гостиница четырехзвездная, до пяти ей не хватило двух формальных признаков: бассейна и более просторного конференц-зала.

По словам Сергея Орешкина, реализация получилась близкой к рендерам, архитектор доволен работой с заказчиком и результатом в целом: «Получилась заметная архитектура, которая попала в Instagram и Pinterest и вызывает удивление: это Россия? У нас таких объекта три – Бадминтонный спортивный комплекс, спорткомплекс СКА и теперь «Mercure» – наш самый яркий отель».
Отель «Mercure». Фасад
Отель «Mercure». Фасад
© Архитектурное бюро «А.Лен»
Отель «Mercure»
Отель «Mercure»
© Архитектурное бюро «А.Лен»
Отель «Mercure». Генплан
Отель «Mercure». Генплан
© Архитектурное бюро «А.Лен»
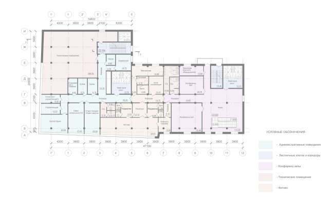
Отель «Mercure». План 1 этажа
Отель «Mercure». План 1 этажа
© Архитектурное бюро «А.Лен»
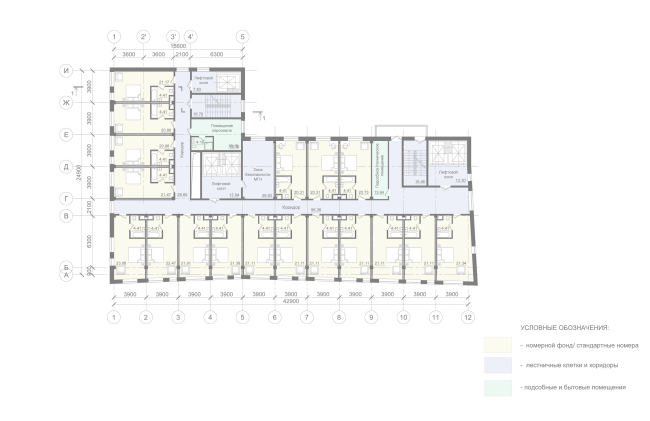
Отель «Mercure». План 2 этажа
Отель «Mercure». План 2 этажа
© Архитектурное бюро «А.Лен»
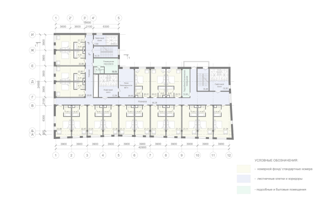
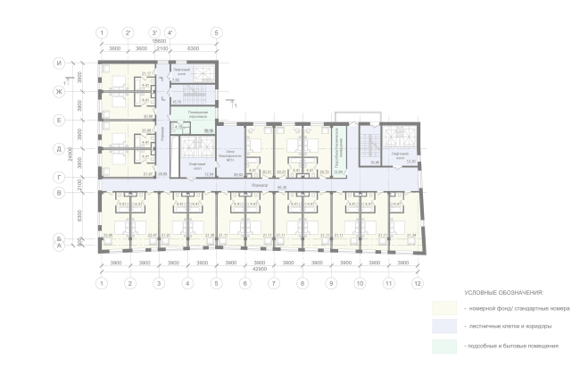
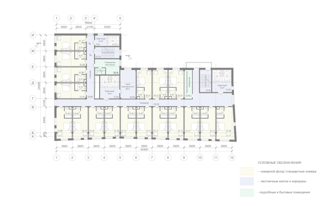
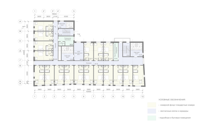
Отель «Mercure». План 3-9 этажа
Отель «Mercure». План 3-9 этажа
© Архитектурное бюро «А.Лен»
Отель «Mercure». Разрез 2
Отель «Mercure». Разрез 2
© Архитектурное бюро «А.Лен»
Отель «Mercure». Разрез 1
Отель «Mercure». Разрез 1
© Архитектурное бюро «А.Лен»