Размещено на портале Архи.ру (www.archi.ru)

20.06.2018

Школа нового поколения

Алёна Кузнецова
Объект:
Печерская международная школа
Адрес:
Украина, Киев. ул. Забилы, 7а
Архитектор:
Александр Попов
Ольга Чернова
Мастерская:
Архиматика

По проекту компании АРХИМАТИКА в Киеве построен новый корпус Печерской международной школы PSI (Pechersk School International), облик и структура которого отвечают запросам новейшей педагогики.

Печерская международная школа
Печерская международная школа
Архиматика

В категориях компании АРХИМАТИКА школа PSI – вполне себе PRO-школа. PSI одна из немногих в Киеве работает по программам International Baccalaureate (IB): обучение проходит на английском языке, много внимания уделяется занятиям искусством и спортом, детей учат мыслить критически, толерантно, а школьная среда в целом способствует раскрытию их личности. В PSI учатся дети от 3 до 18 лет, треть из них украинцы, остальные из других 40 стран мира, всего 450. Название школа получила от района, в котором изначально располагалась – Печерска, уместной ее основатели посчитали и отсылку к Киево-Печерской лавре как историческому образовательному центру.


PSI Печерская международная школа from Archimatika on Vimeo.
Печерская международная школа
Печерская международная школа
Архиматика

Школа располагается в районе жилой застройки начала 2000-х, между станциями метро Голосеевская и Демеевская. Старый корпус, к которому АРХИМАТИКЕ предстояло пристроить новые блоки, представляет собой вытянутое типовое двухэтажное здание, по которому сложно понять, что внутри находится прогрессивная школа. По словам директора компании АРХИМАТИКА Александра Попова, оно скорее «отображало ценность уходящей эпохи – школы как уравнительной серой казармы». Кроме того, администрация хотела получить здание, соответствующее стандартам IB и по набору функций: на тот момент не хватало просторных классов, большого актового зала, спортивного бассейна и подходящей среды для внеклассных занятий.
Печерская международная школа
Печерская международная школа
Архиматика

АРХИМАТИКА поставила перед собой задачу: увязать новый корпус со старым и подчеркнуть инновационный подход PSI к образовательному процессу, в котором важная роль отведена творческим и спортивным занятиям.

Александр Попов рассказывает: «Новый корпус должен был отображать новую эпоху. Мы не хотели перечеркивать устаревшую стилистику предыдущего здания контрастным решением. Но и не хотели попадать под его влияние. Поэтому пришли к идее эволюции: развить старую архитектуру до нового качества. Мы оставили этажность, бежевый и коричневый цвета, и привнесли новые материалы, яркие цвета, разнообразие пластических приемов».
Печерская международная школа
Печерская международная школа
Архиматика

Новое здание состоит из трех сообщающихся корпусов. Первый – связующее звено, которое продолжает «коридор» типового блока. Граница получилась явственная, но в то же время уважительная и вполне естественная. Новый корпус исполнен примерно в тех же пропорциях и цветовой гамме, но транслирует уже совсем другую идею: среди окон, собранных в рамку кирпичного пояска, нет ни одного одинакового. В этой части располагаются учебные аудитории центра раннего развития.
Печерская международная школа
Печерская международная школа
Архиматика

Основной объем – функционально насыщенный четырехэтажный корпус – чуть строже. Здесь звучание ярких цветов стихает до тонких вставок в простенках, преобладать начинает красный кирпич, материал классических английских школ и самых желанных кампусов, куда, вероятно, ученики PSI и отправятся после выпуска.
Печерская международная школа
Печерская международная школа
Архиматика

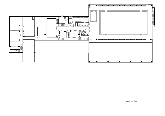
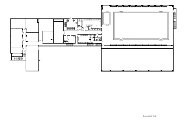
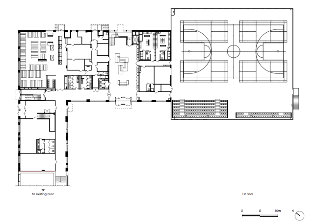
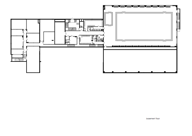
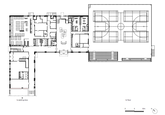
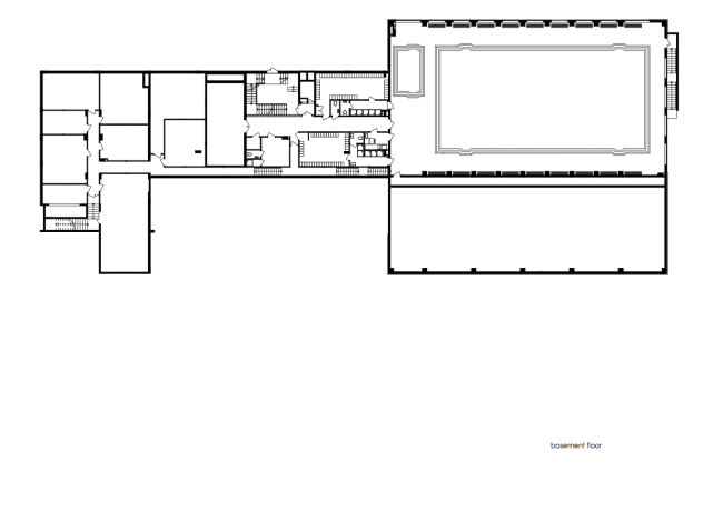
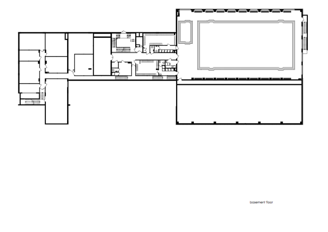
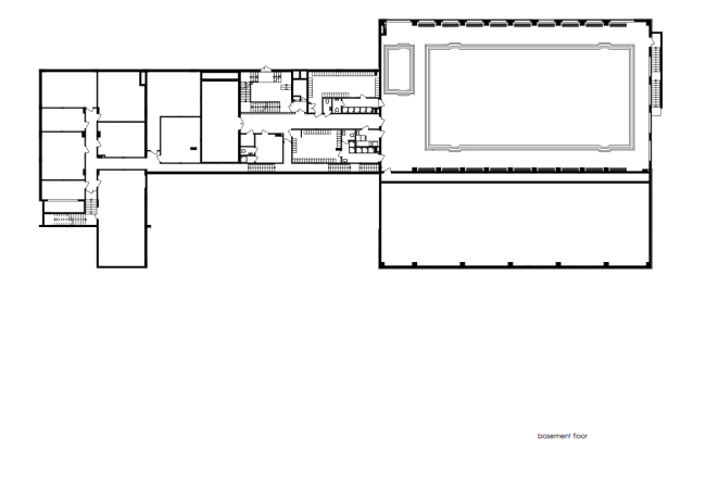
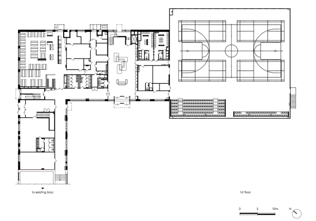
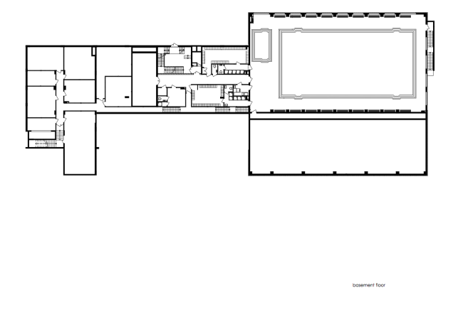
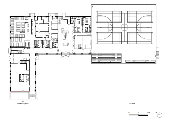
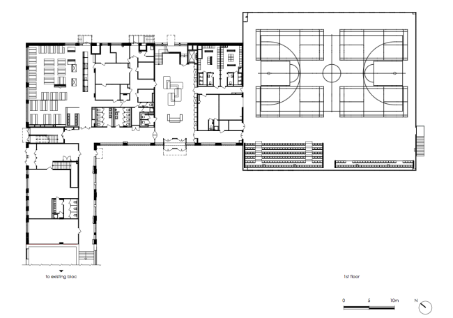
В цоколе здания – раздевалки бассейна. Снаружи первый этаж выделен белым цветом, здесь располагается холл с общественной зоной для встреч и ожидания, спортивный зал с телескопическими трибунами, два скалодрома и кафетерий.
План цокольного этажа. Печерская международная школа
План цокольного этажа. Печерская международная школа
Архиматика
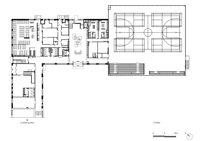
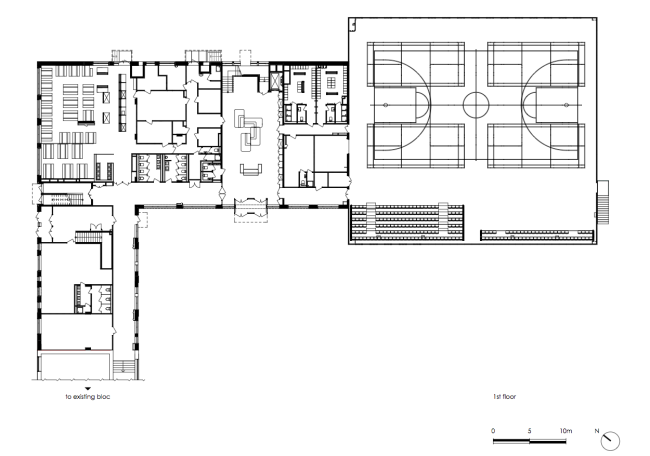
План первого этажа. Печерская международная школа
План первого этажа. Печерская международная школа
Архиматика
Печерская международная школа
Печерская международная школа
Архиматика

Второй этаж отведен творческим занятиям. Здесь располагаются студии для занятий музыкой, драмой и танцами. Одна из аудиторий называется Black Box – в ней все стены, пол и потолок черные для лучшего восприятия сценических эффектов. На третьем этаже – лаборатории и просторные кабинеты площадью до 100 м2 для занятий химией, биологией и физикой. Четвертый этаж занимает многофункциональный актовый зал, который можно использовать для собраний, театральных постановок и других мероприятий: внутри расположена мобильная сцена и перемещаемое освещение.
Печерская международная школа
Печерская международная школа
Архиматика

Последний, третий, корпус – спортивный зал. Это простой объем, но довольно торжественный за счет белых колонн-простенков и звонкий за счет темных оконных проемов, сокращенных цветными вставками до «клавиш» диез/бемоль.
Печерская международная школа
Печерская международная школа
Архиматика

В цоколе этого корпуса расположены два бассейна для детей разных возрастов. Все остальное пространство занято спортивным залом, опять же многофункциональным. Трибуны сделаны телескопическими, то есть могут задвигаться внутрь себя, освобождая пространство. Также есть специальная перегородка, благодаря которой залом могут пользоваться одновременно два класса. Администрация школы планирует не только тренировать здесь свои команды, но и приглашать на соревнования учеников из других стран.
Печерская международная школа
Печерская международная школа
Архиматика
Печерская международная школа
Печерская международная школа
Архиматика

Между старыми и новыми корпусами образовался дворик, который также благоустроила АРХИМАТИКА. Здесь воспитанники детского сада и младшей школы встречаются со старшими учениками: игровые площадки соседствуют с амфитеатром, где можно проводить внеклассные уроки, мероприятия на свежем воздухе или просто встречаться и общаться.
Печерская международная школа
Печерская международная школа
Архиматика
Печерская международная школа
Печерская международная школа
Архиматика
Печерская международная школа
Печерская международная школа
Архиматика

​Ко времени проектирования большинство инженерных сетей уже было создано, а лимит на электроэнергию ограничивал подбор инженерного оборудования. АРХИМАТИКА решила установить тепловой насос, который не только экономит энергию, но и делает школу автономной в плане отопления. Также была подготовлена эксплуатационная 6-мерная BIM-модель – речь о трех измерениях пространства плюс график работ, оценка их стоимости и наконец, информационная модель, которая позволяет управлять энергозатратами, контролировать работу инженерного оборудования и следить за его обслуживанием.
Печерская международная школа
Печерская международная школа
Архиматика
Печерская международная школа
Печерская международная школа
Архиматика
Печерская международная школа
Печерская международная школа
Архиматика

Интерьер школы разрабатывала SVOYA Studio. Дизайнеры постарались не перегружать пространство, расставив акценты в основном с помощью освещения. Их решения также отвечают запросу на быстрые изменения: модульная мебель в холле, на стенах – раздвижные панели для объявлений, за которыми расположена плазменная модель, а на противоположной стенке в нишах хранятся награды и кубки учеников. Одно из нестандартных решений – белая плитка в чаше бассейна. Так дизайнеры хотели подчеркнуть, что в школе заботятся о детях, и вода всегда будет чистой.
Печерская международная школа
Печерская международная школа
Архиматика
Печерская международная школа
Печерская международная школа
Архиматика
Печерская международная школа
Печерская международная школа
Архиматика

Благодаря архитектуре и дизайну школа PSI получила пространство, которое работает в унисон с современной педагогикой. Помещения – просторные, светлые и красивые. Среда подталкивает к общению, наблюдению и прогулкам. Есть все возможности, чтобы заниматься, тренироваться, демонстрировать свои навыки и, что не менее важно, – отдыхать. Пространство не задает жестких границ, но позволяет менять себя, подстраиваясь под запросы нового поколения.

Недавно здание школы отмечено первой премией Ukrainian Urban Awards в номинации «Архитектура общественных объектов».