Размещено на портале Архи.ру (www.archi.ru)

07.05.2018

Малоэтажные кварталы: в Оренбургских степях

Юлия Тарабарина
Объект:
Архитектурно-градостроительная концепция территории жилой застройки в г. Оренбург
Адрес:
Россия, Оренбург.
Архитектор:
Игорь Шварцман
Мастерская:
АМ Сергей Киселев и Партнеры
Авторский коллектив:
Архитекторы: Анастасия Хомякова, Вероника Джантимирова, Глеб Холопов, Ольга Плужникова
При участии Н. Анисимова

Концепция застройки 150 га на окраине Оренбурга, разработанная архитекторами СКиП, привлекательна двумя вещами: наличием многих компонентов комфортного города, но отсутствием чрезмерно маркетинговых ходов – иными словами, реалистичностью замысла.

Архитектурно-градостроительная концепция территории жилой застройки в г. Оренбург © Сергей Киселев и Партнеры
Архитектурно-градостроительная концепция территории жилой застройки в г. Оренбург © Сергей Киселев и Партнеры

Концепция жилого комплекса на восточной окраине Оренбурга, разработанная архитекторами СКиП в 2016 году, по формату напоминает пилотные проекты реновации и проекты конкурса на новое стандартное жилье АИЖК, – первые подобны размером площадки, больше 100 га, вторые – скромной высотностью от пяти до семи этажей, которая аккурат вписывается в ограничения, предложенные КБ «Стрелка». Впрочем, проект появился годом раньше и вовсе не связан с новоразрабатываемыми принципами, хотя и исповедует подобный подход.

«Современное строительство в Оренбурге представлено достаточно традиционными 17-20-этажными домами, напоминающими постсоветскую и раннеперестроечную микрорайонную застройку, – рассказывает глава СКиП Игорь Шварцман. – По ощущению, эта масса жилья вполне покрывает количественные потребности города. И у инвесткомпании «Оренбургстрой» тоже имеются несколько проектов такого рода. Конкуренция между застройщиками идет по накатанной в рамках сложившихся правил. Соревнуются, в основном, в мелких деталях, цветах – да, наверное, и все.
Типичные примеры современной застройки Оренбурга. Фотографии: СКиП
Типичные примеры современной застройки Оренбурга. Фотографии: СКиП

Нашему заказчику пришла мысль попробовать посоревноваться на другом поле, предложить рынку иной продукт. Так родилось задание на малоэтажную застройку с комфортной средой как в своем дворе, так и вовне. Отдельный упор делался на фасады: они должны были быть сдержанными, разнообразными, но в то же время системными и недорогими».​

Территория общей площадью 150 га – в полтора раза больше пилотных проектов реновации, – западной границей примыкает к Загородному шоссе, которое служит для Оренбурга объездной магистралью. Формально городская территория тянется еще на 14 километров на восток, но она совершенно не застроена и занята лугами лесостепи (лесов здесь мало) и дачными участками. Типичный greenfield, и даже второстепенные дороги в основном еще только проектируются; они появятся одновременно со строительством ЖК.
Архитектурно-градостроительная концепция территории жилой застройки в г. Оренбург. Проект, 2016 © Сергей Киселев и Партнеры
Архитектурно-градостроительная концепция территории жилой застройки в г. Оренбург. Проект, 2016 © Сергей Киселев и Партнеры
Территория застройки. Фотография: СКиП
Территория застройки. Фотография: СКиП
Архитектурно-градостроительная концепция территории жилой застройки в г. Оренбург. Существующее положение © АМ Сергей Киселев и Партнеры
Архитектурно-градостроительная концепция территории жилой застройки в г. Оренбург. Существующее положение © АМ Сергей Киселев и Партнеры

Отталкиваясь от анализа местности, авторы прежде всего обратили внимание на овраг, пересекающий территорию по диагонали с юго-востока на северо-запад. Овраг становится осью бульвара-парка, главного общественного пространства района, строго пешеходного. В его начале найдено место для церкви, на самом высоком месте. За ней – площадь, дальше цепочка искусственных прудов, «текущих» по уклону рельефа с юга на север; немного геопластики для разнообразия. «Мы осматривали местность и, стоя у северной развязки с Загородным шоссе, увидели трубу, предназначенную для отвода воды из оврага, – рассказывает ГАП Анастасия Хомякова. – Реки здесь нет, и мы решили, что искусственный водоем мог бы украсить бульвар, придать ему разнообразие».
Архитектурно-градостроительная концепция территории жилой застройки в г. Оренбург. Схема парковой зоны © АМ Сергей Киселев и Партнеры
Архитектурно-градостроительная концепция территории жилой застройки в г. Оренбург. Схема парковой зоны © АМ Сергей Киселев и Партнеры
Архитектурно-градостроительная концепция территории жилой застройки в г. Оренбург. Благоустройство парковой зоны. Фрагмент 1 © АМ Сергей Киселев и Партнеры
Архитектурно-градостроительная концепция территории жилой застройки в г. Оренбург. Благоустройство парковой зоны. Фрагмент 1 © АМ Сергей Киселев и Партнеры
Архитектурно-градостроительная концепция территории жилой застройки в г. Оренбург. Благоустройство парковой зоны © АМ Сергей Киселев и Партнеры
Архитектурно-градостроительная концепция территории жилой застройки в г. Оренбург. Благоустройство парковой зоны © АМ Сергей Киселев и Партнеры
Архитектурно-градостроительная концепция территории жилой застройки в г. Оренбург. Благоустройство парковой зоны © АМ Сергей Киселев и Партнеры
Архитектурно-градостроительная концепция территории жилой застройки в г. Оренбург. Благоустройство парковой зоны © АМ Сергей Киселев и Партнеры
Архитектурно-градостроительная концепция территории жилой застройки в г. Оренбург. Благоустройство парковой зоны © АМ Сергей Киселев и Партнеры
Архитектурно-градостроительная концепция территории жилой застройки в г. Оренбург. Благоустройство парковой зоны © АМ Сергей Киселев и Партнеры

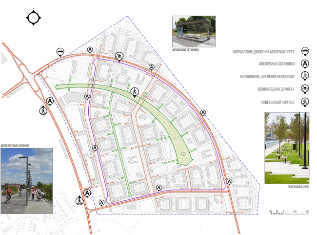
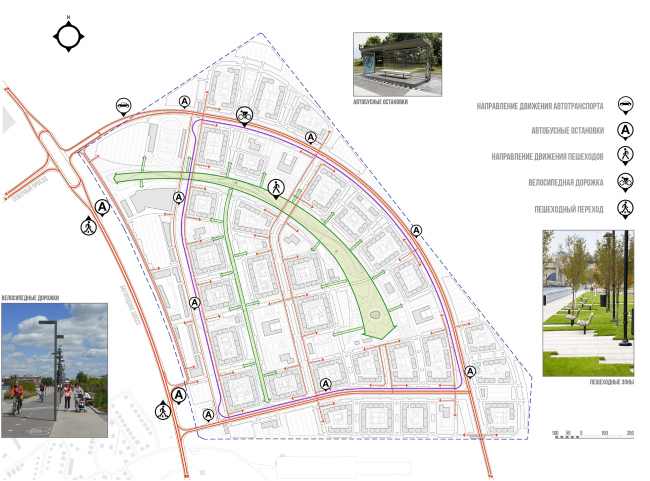
Парк пересекают две автодороги, одна из них – по мосту. Он создает дополнительную пространственную интригу, позволяет машинам пересечь бульвар, не нарушая пешеходной зоны. Бульвар-парк расположен достаточно далеко от главной и самой напряженной здесь трассы Загородного шоссе, что должно сделать его местом спокойным и медитативным. Главный парк дополняют скверы, для которых нашлось место между кварталами, и еще один бульвар, поменьше, с севера на юг. По периметру проходит кольцо велодорожки.
Архитектурно-градостроительная концепция территории жилой застройки в г. Оренбург. Схема движения транспорта и пешеходов © АМ Сергей Киселев и Партнеры
Архитектурно-градостроительная концепция территории жилой застройки в г. Оренбург. Схема движения транспорта и пешеходов © АМ Сергей Киселев и Партнеры
Архитектурно-градостроительная концепция территории жилой застройки в г. Оренбург. Схема ситуационного плана, подключение УДС © АМ Сергей Киселев и Партнеры
Архитектурно-градостроительная концепция территории жилой застройки в г. Оренбург. Схема ситуационного плана, подключение УДС © АМ Сергей Киселев и Партнеры
Архитектурно-градостроительная концепция территории жилой застройки в г. Оренбург. Проект, 2016 © Сергей Киселев и Партнеры
Архитектурно-градостроительная концепция территории жилой застройки в г. Оренбург. Проект, 2016 © Сергей Киселев и Партнеры
Архитектурно-градостроительная концепция территории жилой застройки в г. Оренбург © Сергей Киселев и Партнеры
Архитектурно-градостроительная концепция территории жилой застройки в г. Оренбург © Сергей Киселев и Партнеры

Со стороны шоссе архитекторы предусматривают «буферную зону» из магазинов, рассчитанных как на жителей нового района, так и на близлежащие городские дома за трассой. Главным акцентом этой прагматично-общественной зоны должен стать спортивный центр с прилегающим к нему стадионом – его авторы предложили разместить на северном углу района, у развязки-съезда с шоссе. Транспортная схема обеспечивает несколько уровней доступности: роль главной городской артерии берет на себя шоссе, к нему примыкает полукольцо широких улиц, обрамляющих район, соединяющих между собой две развязки, южную и северную. Две улицы отделяют жилые дома от торговой зоны при шоссе и обеспечивают удобный подъезд к магазинам. Вся территория пронизана капиллярами поуже: они окружают кварталы и соединяют их между собой. Все парковки плоскостные, вдоль проездов между кварталами плюс несколько пятен на периферии территории. Инфраструктуру района составляют 7 детских садов, 3 школы, одна «школа искусств», 3 спортивные зоны с хоккейными «коробками».
Архитектурно-градостроительная концепция территории жилой застройки в г. Оренбург. Схема функционального зонирования территории © АМ Сергей Киселев и Партнеры
Архитектурно-градостроительная концепция территории жилой застройки в г. Оренбург. Схема функционального зонирования территории © АМ Сергей Киселев и Партнеры

Собственно дома – 29 кварталов высотой 4-7 этажей. Все – с дворами без машин, замкнутые ради защиты от оренбургских ветров: именно поэтому неширокие щели между домами нигде не расположены друг напротив друга. Главные входы с внешней стороны, но подъезды сквозные. Для жителей первых этажей во дворах запланированы палисадники – а вот магазинов в первых этажах нет, они собраны ближе к шоссе.
Архитектурно-градостроительная концепция территории жилой застройки в г. Оренбург. Проект, 2016 © Сергей Киселев и Партнеры
Архитектурно-градостроительная концепция территории жилой застройки в г. Оренбург. Проект, 2016 © Сергей Киселев и Партнеры
Архитектурно-градостроительная концепция территории жилой застройки в г. Оренбург. Схема генерального плана © АМ Сергей Киселев и Партнеры
Архитектурно-градостроительная концепция территории жилой застройки в г. Оренбург. Схема генерального плана © АМ Сергей Киселев и Партнеры
Архитектурно-градостроительная концепция территории жилой застройки в г. Оренбург. Схема размещения жилых кварталов с показателями этажности © АМ Сергей Киселев и Партнеры
Архитектурно-градостроительная концепция территории жилой застройки в г. Оренбург. Схема размещения жилых кварталов с показателями этажности © АМ Сергей Киселев и Партнеры
Архитектурно-градостроительная концепция территории жилой застройки в г. Оренбург. Схема размещения жилых секций © АМ Сергей Киселев и Партнеры
Архитектурно-градостроительная концепция территории жилой застройки в г. Оренбург. Схема размещения жилых секций © АМ Сергей Киселев и Партнеры
Архитектурно-градостроительная концепция территории жилой застройки в г. Оренбург. Развертка дворовых фасадов жилого квартала №1 © АМ Сергей Киселев и Партнеры
Архитектурно-градостроительная концепция территории жилой застройки в г. Оренбург. Развертка дворовых фасадов жилого квартала №1 © АМ Сергей Киселев и Партнеры

Дома разновысотные: ближе к краям и углам по семь этажей, к центру их высота небольшими ступенями уменьшается до четырех – высотность меняется плавно, но постоянно, ризалиты и уступы часто чередуются, работая против монотонности на ощущение небольшого города.
Архитектурно-градостроительная концепция территории жилой застройки в г. Оренбург. Развертка уличных фасадов жилого квартала №1 © АМ Сергей Киселев и Партнеры
Архитектурно-градостроительная концепция территории жилой застройки в г. Оренбург. Развертка уличных фасадов жилого квартала №1 © АМ Сергей Киселев и Партнеры
Архитектурно-градостроительная концепция территории жилой застройки в г. Оренбург © АМ Сергей Киселев и Партнеры
Архитектурно-градостроительная концепция территории жилой застройки в г. Оренбург © АМ Сергей Киселев и Партнеры
Архитектурно-градостроительная концепция территории жилой застройки в г. Оренбург. Проект, 2016 © Сергей Киселев и Партнеры
Архитектурно-градостроительная концепция территории жилой застройки в г. Оренбург. Проект, 2016 © Сергей Киселев и Партнеры
Архитектурно-градостроительная концепция территории жилой застройки в г. Оренбург. Проект, 2016 © Сергей Киселев и Партнеры
Архитектурно-градостроительная концепция территории жилой застройки в г. Оренбург. Проект, 2016 © Сергей Киселев и Партнеры
Архитектурно-градостроительная концепция территории жилой застройки в г. Оренбург. Схема генерального плана жилого квартала №1 с благоустройством © АМ Сергей Киселев и Партнеры
Архитектурно-градостроительная концепция территории жилой застройки в г. Оренбург. Схема генерального плана жилого квартала №1 с благоустройством © АМ Сергей Киселев и Партнеры

Ни многоярусных, ни подземных парковок нет: это было решением заказчика; плоскостные парковки распределены по контуру домов и еще – большими пятнами, ближе к периферии территории и к общественным зонам.
Архитектурно-градостроительная концепция территории жилой застройки в г. Оренбург. Схемы основных дорог и автостоянок © АМ Сергей Киселев и Партнеры
Архитектурно-градостроительная концепция территории жилой застройки в г. Оренбург. Схемы основных дорог и автостоянок © АМ Сергей Киселев и Партнеры

Заказчик, компания «Оренбургстрой», владеет собственным комбинатом ЖБИ с небольшим проектным институтом при нем. Комбинат производит панели, из которых планируется собирать несущий каркас секций жилого комплекса, поэтому планировки и пропорции в проекте подчинены модулю панелей и заложенному в них конструктиву. В частности, отсюда – нетипичная высота этажа от пола до пола 2,86 м и шаг несущих стен 3,3 м.

Между тем в рамках заданных пропорций и преимущественно небольших квартир архитекторам удалось творчески поработать с планировками: в частности, избежать взгляда «окна-в-окна» в углах кварталов, но, отойдя на южных фасадах от традиционного приема «в углу коммуникационный узел», сдвинуть лестницу и использовать солнечный свет для жилых комнат.

Квартиры в ЖК, следуя тенденциям рынка, небольшие, однокомнатных примерно половина, но и трехкомнатных хотя бы 15%, в них встречаются планировки с двумя санузлами. Лифты есть везде, включая четырехэтажные секции.
Архитектурно-градостроительная концепция территории жилой застройки в г. Оренбург. Секция У-2. Планы. Фасады © АМ Сергей Киселев и Партнеры
Архитектурно-градостроительная концепция территории жилой застройки в г. Оренбург. Секция У-2. Планы. Фасады © АМ Сергей Киселев и Партнеры
Архитектурно-градостроительная концепция территории жилой застройки в г. Оренбург. Секция У-1. Планы. Фасады © АМ Сергей Киселев и Партнеры
Архитектурно-градостроительная концепция территории жилой застройки в г. Оренбург. Секция У-1. Планы. Фасады © АМ Сергей Киселев и Партнеры
Архитектурно-градостроительная концепция территории жилой застройки в г. Оренбург. Секция П-2. Планы. Фасады © АМ Сергей Киселев и Партнеры
Архитектурно-градостроительная концепция территории жилой застройки в г. Оренбург. Секция П-2. Планы. Фасады © АМ Сергей Киселев и Партнеры
Архитектурно-градостроительная концепция территории жилой застройки в г. Оренбург. Секции П-1-1, П-1-2. Планы. Фасады © АМ Сергей Киселев и Партнеры
Архитектурно-градостроительная концепция территории жилой застройки в г. Оренбург. Секции П-1-1, П-1-2. Планы. Фасады © АМ Сергей Киселев и Партнеры
Архитектурно-градостроительная концепция территории жилой застройки в г. Оренбург. Секции П-1-3. Планы. Фасады © АМ Сергей Киселев и Партнеры
Архитектурно-градостроительная концепция территории жилой застройки в г. Оренбург. Секции П-1-3. Планы. Фасады © АМ Сергей Киселев и Партнеры

Если панели конструктива планируется изготовить на местном заводе, то для фасадов архитекторы предложили сембрит – окрашенный в массе фибробетон. Фасады решены на одном приеме: лестнично-лифтовые узлы темно-серые, остальные стены светлые с цветными вставками сембрита, «нарезанного» тонкими полосами и положенного внахлест наподобие цветных досок. Цвет позволяет маркировать дома и помогает с навигацией, а тот факт, что материал окрашен в массе, должен обеспечить долговечность. «Такие панели мы использовали в радужно-пиксельном доме «Авангард» на Новочеремушкинской улице, – вспоминает Анастасия Хомякова, – и они совершенно не испортились с 2006 года». Все лоджии застеклены, для кондиционеров предусмотрены ящики.
Архитектурно-градостроительная концепция территории жилой застройки в г. Оренбург. Фрагмент фасада жилой секции © АМ Сергей Киселев и Партнеры
Архитектурно-градостроительная концепция территории жилой застройки в г. Оренбург. Фрагмент фасада жилой секции © АМ Сергей Киселев и Партнеры
Архитектурно-градостроительная концепция территории жилой застройки в г. Оренбург © Сергей Киселев и Партнеры
Архитектурно-градостроительная концепция территории жилой застройки в г. Оренбург © Сергей Киселев и Партнеры
Архитектурно-градостроительная концепция территории жилой застройки в г. Оренбург. Проект, 2016 © Сергей Киселев и Партнеры
Архитектурно-градостроительная концепция территории жилой застройки в г. Оренбург. Проект, 2016 © Сергей Киселев и Партнеры
Архитектурно-градостроительная концепция территории жилой застройки в г. Оренбург. Проект, 2016 © Сергей Киселев и Партнеры
Архитектурно-градостроительная концепция территории жилой застройки в г. Оренбург. Проект, 2016 © Сергей Киселев и Партнеры
***

Возможности, плюсы и минусы малоэтажной застройки сейчас – острая тема на фоне московских, да и не только, «муравейников». Кроме того, стандарты проектирования за последние годы ощутимо подросли и усложнились, составился целый «букварь», набор приемов комфортного жилья. Несложно заметить, что в этом проекте, разработанном в 2016 году, многое из «джентльменского набора» есть. Возможно, в нем отсутствует некоторый современный лоск и блеск, маркетингово-привлекательные детали типа сверхъественно-уникальных детских площадок, скатных кровель или террас на кровлях, двухъярусных квартир – дорогих элементов, способных подвести проект ЖК к состоянию wow, а затем, может быть, и не дать ему воплотиться.

В данном случае – архитекторы это подчеркивают – проект был сделан строго по ТЗ заказчика, который, в свою очередь, впервые экспериментирует с малоэтажным строительством в Оренбурге вообще и прежде всего хотел бы понять, насколько квартиры в таком комплексе будут продаваться на рынке, а значит, и насколько быстро строиться. Рамки были достаточно экономные, маркетинговые ходы не закладывались. Архитекторы СКиП, напомним, работали только над концепцией, которую заказчик планирует реализовать силами своего института и ЖБИ, причем очень постепенно, частями, возможно, строя даже не поквартально, а посекционно. И между тем здесь запланированы многие из актуальных сегодня элементов, к примеру палисадники у первых этажей. Дома не стоят слишком плотно, удалось избежать известных недостатков квартальной планировки, прежде всего неэффективных углов, сохранив ее достоинства: защиту от ветра и дворы без машин. При отсутствии ярких включений в проекте ощущается рука архитекторов, вникнувших в детали как в целом, так и в частностях.

При этом главное обаяние проекта – в его реальности, в найденной грани между экономией и соблюдением необходимых для комфорта вещей. Проект спокойный и «настоящий», настроенный на реализацию – а ведь именно такие примеры и нужны для воплощения мечты о новом формате городских пространств.