Размещено на портале Архи.ру (www.archi.ru)

15.02.2018

Город золотой середины

Юлия Тарабарина
Объект:
Концепция стандартного жилья для среднеэтажной модели застройки
Адрес:
Россия,
Концепция стандартного жилья для среднеэтажной модели застройки
Адрес:
Россия,
Концепция стандартного жилья для среднеэтажной модели застройки
Адрес:
Россия,
Концепция стандартного жилья для среднеэтажной модели застройки
Адрес:
Россия,
Концепция стандартного жилья для среднеэтажной модели застройки
Адрес:
Россия,
Концепция стандартного жилья для среднеэтажной модели застройки
Адрес:
Россия,
Концепция стандартного жилья для среднеэтажной модели застройки
Адрес:
Россия,
Концепция стандартного жилья для среднеэтажной модели застройки
Адрес:
Россия,

Рассматриваем проекты среднеэтажной модели конкурса на стандартное жилье, и размышляем об условиях и целях конкурса.

Начинаем изучать 20 проектов конкурса концепций стандартного жилья, выбранных жюри для доработки во втором туре.


Стандарт
Для основы задания организаторы конкурса использовали главы Стандарта комплексного развития территорий (КРТ), над которым АИЖК и КБ «Стрелка» работают с 2016 года и который, согласно планам, должен быть готов как раз сейчас, в начале 2018. На том же стандарте начата разработка объемно–пространственного регламента (ОПР) города Саратова, выбранного в качестве пилотного для его апробации вместе с Калининградом и Владивостоком. 

«Типовуха» или исследование? 
Кажется достаточно очевидным, что конкурс – тоже одно из средств тестирования получившегося стандарта. Впрочем, тут мы уходим в область предположений, поскольку перспективы использования конкурсных проектов – наименее ясное место всей истории с его проведением. Задачи сформулированы красиво и в своем пафосе – правильно, но нечетко. Прежде всего: работали ли архитекторы над действительно типовыми проектами или помогали разрабатывать новые нормы на будущее? Корпоративное издание КБ «Стрелка» Strelka magazine называет проектируемое жилье «новым поколением типового», в названии конкурса оно именуется «стандартным». В комментарии к решению жюри глава Минстроя Михаил Мень сообщил, что, во-первых, все это еще обсуждается, а во-вторых, что проекты можно будет «выкупить и поместить в единый реестр типовых проектов», который ведет министерство, откуда их смогут брать застройщики; или что девелоперы смогут напрямую «выйти» на авторов конкурсных проектов, «или взять решения за основу».

В то же время в ТЗ конкурса, в самом его начале в качестве цели заявлено «…создать альтернативу типовому проектированию». Вот и неясно, что проектируют: типовое жилье или его альтернативу. Достоверно же пока мы знаем только одно – доработанные 20 проектов в мае планируется показать на форуме «Среда для жизни» в Калининграде.

Надо сказать, что данный конкурс – не первая попытка проектировать новое типовое жилье. Московское правительство занимается этим уже несколько лет, и те проекты намного больше похожи на типовое жилье, прямо сейчас готовое для отправки в серию.
Параметры трех моделей жилья из конкурсного задания © АИЖК + КБ «Стрелка»
Параметры трех моделей жилья из конкурсного задания © АИЖК + КБ «Стрелка»

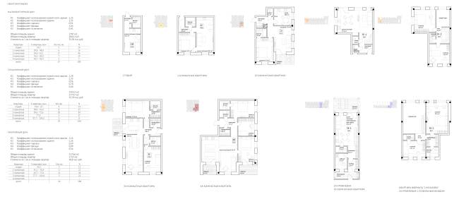
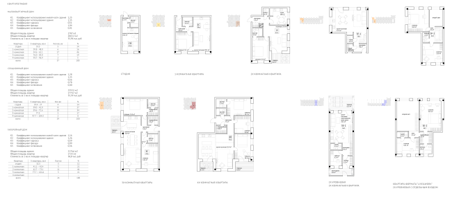
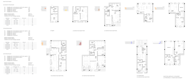
Задание
Конкурсные же работы, действительно, больше похожи на исследование возможностей изменения городской среды. Их сходство определено техзаданием, в котором учтено множество параметров, прежде всего плотность и высотные ограничения, очень умеренные по современным российским меркам. Стандарт одновременно предполагает ограничение высоты: 5-7 этажей для среднеэтажной модели и 9, всего на 2 этажа больше для так называемой центральной, – и стремление к большей компактности застройки, прямо заявленное в ТЗ. В малоэтажном формате, таким образом, участок для любого дома, индивидуального, блокированного и таунхауса, ограничен 500 м2, а плотность среднеэтажжной модели в 1,5-2 раза превосходит существующие пятиэтажные микрорайоны: 15 000-20 000 м2/га, не превращая, впрочем, 5-этажные дома в 10-этажные. Ограничение по плотности для центральной модели – 25000 м2/га – примерно соответствует средней плотности пилотных проектов реновации, показанных недавно на выставке.
Параметры среднеэтажной модели из конкурсного задания © АИЖК + КБ «Стрелка»
Параметры среднеэтажной модели из конкурсного задания © АИЖК + КБ «Стрелка»

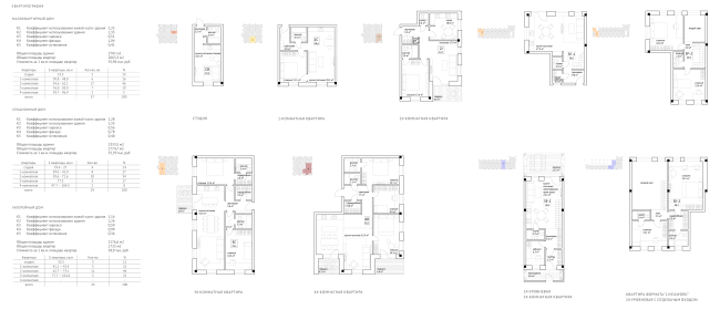
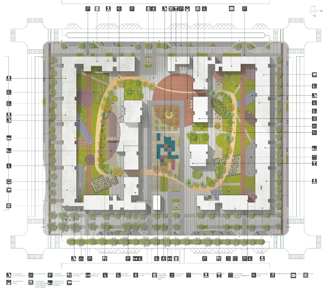
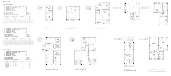
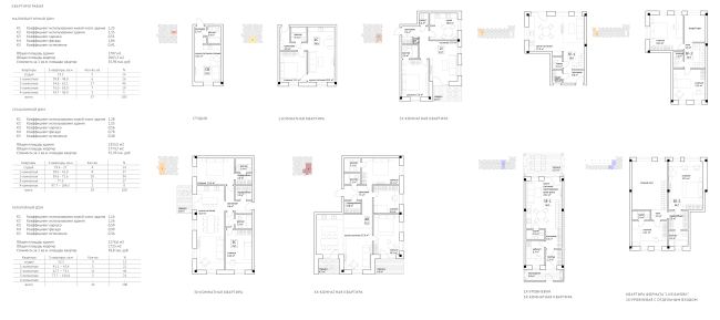
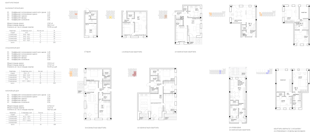
В остальном в задании можно увидеть множество здравых параметров, так что его хочется даже рассматривать как разновидность учебника по современному жилому строительству. От проектов требовались: модульность и адаптивность, минимум каркаса, компактно собранные коммуникации и «мокрые» зоны, максимум возможностей для перепланировок, плюс экологичность, устойчивость, учет климатических зон (на этот счет в ТЗ предусмотрен специальный раздел), расчет вывоза мусора, соответствие пожарным нормативам и нормативных же расстояний между домами, деревьями, парковками. Про инсоляцию так строго не сказано, рекомендована лишь достаточная освещенность, но существующие нормы задание и не отрицает. В пластическом отношении рекомендовано разнообразие, использование лестнично-лифтовых блоков для дробления фасадов уступами или выступами. Также в задании заложены все радости современных представлений о правильной урбанистике и того, что называют комфортной средой: дворы без машин, велодорожки, коммерческие и общественные функции первых этажей (их потолки должны быть не меньше 5 м в высоту). Двор квартала – для среднеэтажной застройки предложены участки площадью 2-3 га с максимальной длиной 200 м – рекомендовано было разделить на части.
Рекомендуемое соотношение квартир среднеэтажной модели из конкурсного задания © АИЖК + КБ «Стрелка»
Рекомендуемое соотношение квартир среднеэтажной модели из конкурсного задания © АИЖК + КБ «Стрелка»
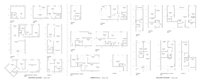
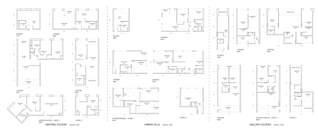
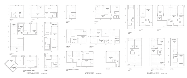
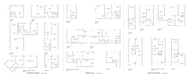
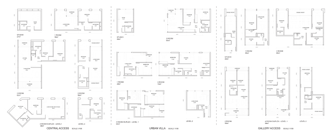
Малоэтажный дом и секционный дом с центральным типом доступа. Рекомендуемые дома среднеэтажной модели из конкурсного задания © АИЖК + КБ «Стрелка»
Малоэтажный дом и секционный дом с центральным типом доступа. Рекомендуемые дома среднеэтажной модели из конкурсного задания © АИЖК + КБ «Стрелка»
Секция коридорная и галерейная. Рекомендуемые дома среднеэтажной модели из конкурсного задания © АИЖК + КБ «Стрелка»
Секция коридорная и галерейная. Рекомендуемые дома среднеэтажной модели из конкурсного задания © АИЖК + КБ «Стрелка»

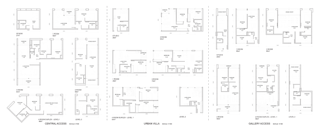
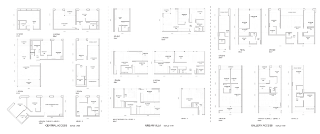
С другой стороны, в задании заложен некоторый запас для эксперимента. От участников требовалось спроектировать 3 типа домов, для среднеэтажной и центральной моделей это: малоквартирный дом-«башенка» (по-английски он назван urban villa), он стоит отдельно и используется для уплотнения застройки; традиционный на наших просторах секционный дом, и непривычный галерейный. Последний популярен в Европе, в России же почти забыт из-за его малой эффективности, поскольку слишком много потенциально полезных метров уходит на галерею. Авторы задания – то есть КБ «Стрелка» – по-видимому, хотят немного «раскачать» устоявшуюся на рынке типологию, предложить непривычные варианты.

К той же теме можно отнести и рекомендацию проектировать в первых этажах двухъярусные квартиры с отдельным входом и личным палисадником, эксплуатируемые кровли и террасы – все это кажется элементами роскоши и психологически не вписывается в современные российские представления о массовом жилье. Расчет квартир в ТЗ также включает линейку от студий по 20 м2 до 4-комнатных площадью 100 м2.

Если с высотностью, плотностью, также как со всяческой инфраструктурой и требованиями к планировкам квартир в задании все хорошо настолько, что оно начинает казаться утопически-нездешним, то парковки ограничены если не по-сингапурски, то в целом жестко. Что впрочем характерно для урбанистической моды. В малоэтажной, то есть пригородной, модели по расчетам задания одно машиноместо приходится на 2-3 человека, в средней – на 4-5, в центральной – на 6-7. Иными словами в пригороде одна машина достанется на семью с одним ребенком, в среднеэтажной модели на две таких семьи, а в центральном и не на каждые две. Ну, предположим, там будут жить хипстеры и офисные сотрудники-одиночки, предпочитающие метро. Ах да, не во всех российских городах оно есть, а в семи всего. Еще в двух строительство прекращено, в Челябинске пока строится. К чему это я? Очень хорошо нужно будет наладить работу общественного транспорта, чтобы данные расчеты машиномест стали восприниматься как гуманные. Как бы жители комфорной среды не начали освоение новых стандартов борьбы за парковочные места.

Между тем, поскольку подземные парковки во всех проектах отсутствуют, у большинства авторов машиномест еще меньше, чем в задании: 100-150 – по-видимому, в расчете на наличие надземной парковки в соседнем квартале. Мало кому удалось приблизиться к названным в задании 235 местам и тем более превзойти их.

Итак, положенные в основу конкурсной программы свежие стандарты АИЖК и КБ «Стрелка» предлагают стране очень умеренную и комфортную плотность в качестве нормы, настаивают на адаптивности, разнообразии и других параметрах, делающих городскую среду комфортной. Экспериментируют с подзабытой типологией жилого строительства. Парковки планируют по минимуму, отчасти, возможно, потому, что при обилии «приятных плюшек» проекты рассчитаны на небольшую себестоимость.

Из присланных 307 проектов на долю среднеэтажной застройки пришлось 144 работы – ее гуманные параметры и созвучность идеям «нового урбанизма» привлекли почти половину всех авторов (соответственно 65 для малоэтажной и 98 для центральной). Победители тоже распределились неравномерно: 8 среднеэтажных, 6 центральных и 5 малоэтажных. Очевидно, что средняя модель особенно любима и авторами, и жюри. Так что мы начинаем рассмотрение конкурсных работ со среднеэтажной модели, хотя перспективы ее внедрения на просторах страны и смахивают, во всяком случае пока, на утопию в духе коммунизма к 1980 году.
 
***

План Б: стыковочный модуль
Россия
Себестоимость: 31 000 – 39 000 р./м2

Макс. высота: 30,6 м
Концепция стандартного жилья для среднеэтажной модели застройки © «План Б» (Россия)
Концепция стандартного жилья для среднеэтажной модели застройки © «План Б» (Россия)

Квартиры укладываются в домах как элементы хорошо подогнанного тетриса, включая двухъярусные на верхних этажах, где, к примеру, на верхнем ярусе может располагаться кухня-гостиная со скошенной кровлей. Инженерные коммуникации собраны в дискретную «сервисную стену», она проходит ближе к центральной оси каждого дома. Потолки 2,7 м. Предусмотрены эксплуатируемые кровли и вырезы с террасами на уровне кровли второго яруса и множество функций, включая довольно-таки экзотические, как сауна, ярмарка или гостиничные номера для жильцов, тех, кому нужно уединиться. Палисадников при первых этажах нет, но во дворе вычерчен прямоугольник «коллективных огородов».
Концепция стандартного жилья для среднеэтажной модели застройки © «План Б» (Россия)
Концепция стандартного жилья для среднеэтажной модели застройки © «План Б» (Россия)

Решение обладает структурным «зеркалированным» изяществом соподчинения и стыковки. Галерейные дома ориентированы, согласно рекомендациям, меридионально с севера на юг и выстроены по длинным сторонам прямоугольника. Их коридоры зигзагообразны: обращены то на восток, то на запад; квартиры здесь в основном маленькие. Секционные дома «с центральным типом доступа» вытянуты с востока на запад вдоль торцов участка; в этих домах больше 3-4-комнатных квартир. Подземных парковок нет, но некоторое количество надземных примыкает к первым этажам секционных домов со стороны двора и скрыты геопластикой, отчего поверхность двора в целом приобретает вогнутую конфигурацию, подобную скейтодрому.
Концепция стандартного жилья для среднеэтажной модели застройки © «План Б» (Россия)
Концепция стандартного жилья для среднеэтажной модели застройки © «План Б» (Россия)
Концепция стандартного жилья для среднеэтажной модели застройки © «План Б» (Россия)
Концепция стандартного жилья для среднеэтажной модели застройки © «План Б» (Россия)

«Вогнутая» поверхность двора разделена на три почти равные части 118х45 м поперечными отрезками секционных домов и «малоквартирными» башнями, в них по 8 этажей, включая небольшой «запас» девятого со скошенной кровлей, что как будто нарушает ограничение. В центральной устроен внутренний проезд, боковые свободны от машин. Все три внутренних двора связаны кольцом пешеходного променада.
Концепция стандартного жилья для среднеэтажной модели застройки © «План Б» (Россия)
Концепция стандартного жилья для среднеэтажной модели застройки © «План Б» (Россия)
Концепция стандартного жилья для среднеэтажной модели застройки © «План Б» (Россия)
Концепция стандартного жилья для среднеэтажной модели застройки © «План Б» (Россия)
Концепция стандартного жилья для среднеэтажной модели застройки © «План Б» (Россия)
Концепция стандартного жилья для среднеэтажной модели застройки © «План Б» (Россия)
Концепция стандартного жилья для среднеэтажной модели застройки © «План Б» (Россия)
Концепция стандартного жилья для среднеэтажной модели застройки © «План Б» (Россия)
Концепция стандартного жилья для среднеэтажной модели застройки © «План Б» (Россия)
Концепция стандартного жилья для среднеэтажной модели застройки © «План Б» (Россия)
Концепция стандартного жилья для среднеэтажной модели застройки © «План Б» (Россия)
Концепция стандартного жилья для среднеэтажной модели застройки © «План Б» (Россия)
Концепция стандартного жилья для среднеэтажной модели застройки © «План Б» (Россия)
Концепция стандартного жилья для среднеэтажной модели застройки © «План Б» (Россия)

Линии галерейных домов разорваны широкими проездами и прорезаны арками, которые должны обеспечить «стыковку» кварталов между собой и их соединение внутренними проездами. Транзитные проезды проходят вдоль внешних границ кварталов, северной и южной. Вдоль восточной и западной стены, а следовательно, вдоль секционных домов, проходят городские улицы побольше. 
***
 
Эшер: что-то южное 
Россия
Площадь квартала: 2,87 га
Плотность застройки: 15 110 м2/га
Квартир: 420
Макс. высота: 29.1 м
Коэф. остекления: 0,17-0,15
Парковок: ок. 160

Концепция стандартного жилья для среднеэтажной модели застройки © ООО «Эшер» (Россия)
Концепция стандартного жилья для среднеэтажной модели застройки © ООО «Эшер» (Россия)

Здесь прежде всего бросается в глаза обилие непрямых углов, которые на плане образуют модные формы кристаллического типа, а в объеме – разнообразие ракурсов, усиленное пластикой углублений, выступов и террас, в изобилии присутствующих как на кровле нижних общественных этажей, так и в верхних частях зданий. Все это напоминает довольно сложную объемную головоломку. Образовывать непрямые углы помогают нежилые – вероятно, как коммерческие, так и общественные, – помещения, также как и обилие поворотных осей, формирующих вариативность секций: можно этак, а можно так.
 
Концепция стандартного жилья для среднеэтажной модели застройки © ООО «Эшер» (Россия)
Концепция стандартного жилья для среднеэтажной модели застройки © ООО «Эшер» (Россия)
Концепция стандартного жилья для среднеэтажной модели застройки © ООО «Эшер» (Россия)
Концепция стандартного жилья для среднеэтажной модели застройки © ООО «Эшер» (Россия)
Концепция стандартного жилья для среднеэтажной модели застройки © ООО «Эшер» (Россия)
Концепция стандартного жилья для среднеэтажной модели застройки © ООО «Эшер» (Россия)

Проект отличается открытостью внешнего фронта, пешеходная проницаемость обеспечена, внутри образуется небольшой бульвар с ответвлениями, но малые дворы очень невелики и открыты. В домах подчеркнуто небольшие окна: площадь остекления всего 15,5% площади фасада, также как обилие террас и открытых балконов, складывающихся в открытые ряды даже в не-галерейных домах, придают проекту отчетливо-южный привкус.

Подземных парковок нет, плоскостным парковкам, помимо внешнего контура, отдан прямоугольник территории квартала. Парковочных мест около 160 на 420 квартир. Высота: 5-7 этажей плюс высокие общественные первые. Высота потолков в квартирах – 3 м. Этажность варьируется между 5 и 7, как в ТЗ, но высота домов приближается к восьмиэтажным, так как первые этажи повсеместно – порядка 6 м в высоту.
Концепция стандартного жилья для среднеэтажной модели застройки © ООО «Эшер» (Россия)
Концепция стандартного жилья для среднеэтажной модели застройки © ООО «Эшер» (Россия)
Концепция стандартного жилья для среднеэтажной модели застройки © ООО «Эшер» (Россия)
Концепция стандартного жилья для среднеэтажной модели застройки © ООО «Эшер» (Россия)
***
 
ДНК аг: конструктор разнообразия
Россия
Себестоимость: 35 390 – 38 800 руб./м2
Коэфф. остекления: 0,36-0,41
Парковок: ок. 100

Концепция стандартного жилья для среднеэтажной модели застройки © «Архитектурная группа ДНК» (Россия)
Концепция стандартного жилья для среднеэтажной модели застройки © «Архитектурная группа ДНК» (Россия)

Архитекторы ДНК аг сделали акцент на модульности, вариативности и адаптивности, решив проект как набор элементов и принципов, рассчитанных на гибкое сочетание в рамках общего подхода. Подход во многом апеллирует к особенностям исторического города – помимо высотности до 5-7 этажей и разнообразия фасадов, выстроенных, впрочем, по единому модулю, от исторического города здесь заимствована асимметрия, предполагающая определенную степень свободы в расположении объемов; план напоминает московские дворы XIX века, воспетые в «Покровских воротах», хотя более регулярен и мотивирован соподчинением приватных и общественных пространств.
Концепция стандартного жилья для среднеэтажной модели застройки © «Архитектурная группа ДНК» (Россия)
Концепция стандартного жилья для среднеэтажной модели застройки © «Архитектурная группа ДНК» (Россия)

Асимметрию плана задает уступ, отводящий место для внешнего городского сквера, где будет удобно расставить столики кафе. Столь же уступчаты фасады зданий вдоль улиц: довольно часто они отходят от красной линии, оставляя место для палисадников и усложняя пластику фронта застройки. Между домами запланировано несколько одноэтажных перемычек для размещения кафе и магазинов, а также для создания эффекта незамкнутости, визуальных лучей, раскрывающих пространство дворов и виды из квартир. В первых этажах, помимо ритейла, предусмотрены и квартиры, со стороны двора при них палисадники. Впрочем, они взаимозаменяемы: в квартале, в зависимости от необходимости, может быть больше квартир или больше кафе.
Концепция стандартного жилья для среднеэтажной модели застройки © «Архитектурная группа ДНК» (Россия)
Концепция стандартного жилья для среднеэтажной модели застройки © «Архитектурная группа ДНК» (Россия)
Концепция стандартного жилья для среднеэтажной модели застройки © «Архитектурная группа ДНК» (Россия)
Концепция стандартного жилья для среднеэтажной модели застройки © «Архитектурная группа ДНК» (Россия)

Квартиры, также как и фасады, следуют принципу гибкой модульности. За основу взят каркас колонн с шагом 6,6 х 6,6 м, туалеты и ванные собраны к стоякам, что создает максимальную гибкость планировок: поэтому авторы скорее предлагают варианты размещения квартир, чем готовую схему.

Приблизительно в центре квартала архитекторы предусмотрели здание общественного центра и местную площадь, за ним – большой пешеходный двор, в другой половине два совсем небольших двора, выстроив таким образом довольно сложную иерархию городских пространств, как внешних, предполагающих более сложную, неоднородную структуру городского пространства, составленного из подобных ячеек, так и внутренних, обладающих разными свойствами и «лицами» – проект, таким образом, приобретает выраженные градостроительные черты, и относится не столько к одному кварталу-«ячейке», сколько становится размышлением о городской ткани: основанной на ортогональный сетке, но тяготеющей к коррективам и элементам мотивированной житейской нерегулярности.

Улицы в этом проекте ранжированы трижды: внутренние переулки с ограниченным, но все же движением, внутри, плюс две нормальные городские улицы и две маленькие городские улицы снаружи.
Концепция стандартного жилья для среднеэтажной модели застройки © «Архитектурная группа ДНК» (Россия)
Концепция стандартного жилья для среднеэтажной модели застройки © «Архитектурная группа ДНК» (Россия)
Концепция стандартного жилья для среднеэтажной модели застройки © «Архитектурная группа ДНК» (Россия)
Концепция стандартного жилья для среднеэтажной модели застройки © «Архитектурная группа ДНК» (Россия)
Концепция стандартного жилья для среднеэтажной модели застройки © «Архитектурная группа ДНК» (Россия)
Концепция стандартного жилья для среднеэтажной модели застройки © «Архитектурная группа ДНК» (Россия)
Концепция стандартного жилья для среднеэтажной модели застройки © «Архитектурная группа ДНК» (Россия)
Концепция стандартного жилья для среднеэтажной модели застройки © «Архитектурная группа ДНК» (Россия)
Концепция стандартного жилья для среднеэтажной модели застройки © «Архитектурная группа ДНК» (Россия)
Концепция стандартного жилья для среднеэтажной модели застройки © «Архитектурная группа ДНК» (Россия)
Концепция стандартного жилья для среднеэтажной модели застройки © «Архитектурная группа ДНК» (Россия)
Концепция стандартного жилья для среднеэтажной модели застройки © «Архитектурная группа ДНК» (Россия)
Концепция стандартного жилья для среднеэтажной модели застройки © «Архитектурная группа ДНК» (Россия)
Концепция стандартного жилья для среднеэтажной модели застройки © «Архитектурная группа ДНК» (Россия)

Подземных парковок нет, плоскостные расположены только по периметру квартала – порядка 100 мест, но раз уж мы находимся в адаптивной парадигме, парковки могут быть подземными, если это уместится в бюджет, или надземными, в одном из соседних кварталов, отапливаемые и внешние похожие на жилой дом, – уточняют архитекторы.

Несмотря на то, что данный квартал – пример стандартизированной застройки, архитекторы скептически относятся к идее прямого тиражирования, рассматривают свой проект как исследование стандартов нормального массового жилья и подчеркнуто стремятся уйти от всего типового ­– как будто закладывают гибкость в «код» своего предложения и приводя пример тонкого подхода для последующей адаптации проекта. Рука не поднимется повторить это предложение несколько раз одинаково. Что представляется очень симпатичной чертой проекта, и надо ли говорить, что оно созвучно названию бюро. 
***

2Портала: утонение
Россия
Площадь квартала: 2,9 га
Плотность застройки: 19 740 м2 / га
Макс. высота: 25,8 м
Коэфф. остекления: 0,24–0,3
Парковок: 242

Концепция стандартного жилья для среднеэтажной модели застройки © Архитектурная мастерская «2Портала» (Россия)
Концепция стандартного жилья для среднеэтажной модели застройки © Архитектурная мастерская «2Портала» (Россия)

Проект отличается изяществом линий, приверженностью скатным кровлям и стремлением визуально сузить толщину объемов, превратив их образно в два «склеенных» по длинной стороне дома. Террасы на кровлях, которых здесь также много, вырезаны между скатными кровлями. Выходы вентиляции стилизованы под печные трубы. Впрочем, получилось больше похоже на сталинские кирпичные пятиэтажки, чем на доходные дома XIX века, но линии застекленных лоджий достаточно тонки, чтобы придать внешности домов особенную тонкокостность. В нижних этажах при торцах нескольких домов предусмотрены галереи на тонких «ножках».
Концепция стандартного жилья для среднеэтажной модели застройки © Архитектурная мастерская «2Портала» (Россия)
Концепция стандартного жилья для среднеэтажной модели застройки © Архитектурная мастерская «2Портала» (Россия)
Концепция стандартного жилья для среднеэтажной модели застройки © Архитектурная мастерская «2Портала» (Россия)
Концепция стандартного жилья для среднеэтажной модели застройки © Архитектурная мастерская «2Портала» (Россия)

Абрис квартала приближается к квадрату, ориентация – диагональная, под углом 45 градусов к странам света. На северо-западной границе дома отодвинуты от красной линии и место отдано скверам и спортивным площадкам. С этой стороны расставлены 4 малоквартирных «башенки», секционные дома с компании с одним галерейным образуют в юго-восточной части два двора разной степени открытости. Ровно посередине участок прорезан пешеходным бульваром, который идет с юго-востока на северо-запад; примерно посередине к бульвару примыкает небольшая внутренняя площадь с фонтаном.
Концепция стандартного жилья для среднеэтажной модели застройки © Архитектурная мастерская «2Портала» (Россия)
Концепция стандартного жилья для среднеэтажной модели застройки © Архитектурная мастерская «2Портала» (Россия)
Концепция стандартного жилья для среднеэтажной модели застройки © Архитектурная мастерская «2Портала» (Россия)
Концепция стандартного жилья для среднеэтажной модели застройки © Архитектурная мастерская «2Портала» (Россия)

Парковок в этом проекте – 242 места на 1025 человек расчетного населения. Помимо внешнего контура им отдано два симметричных квадрата при юго-западной и северо-восточной границе квартала. Внутренних проездов, кроме как для спецтехники, нет, но от парковок до домов идти должно быть достаточно близко.
Концепция стандартного жилья для среднеэтажной модели застройки © Архитектурная мастерская «2Портала» (Россия)
Концепция стандартного жилья для среднеэтажной модели застройки © Архитектурная мастерская «2Портала» (Россия)
Концепция стандартного жилья для среднеэтажной модели застройки © Архитектурная мастерская «2Портала» (Россия)
Концепция стандартного жилья для среднеэтажной модели застройки © Архитектурная мастерская «2Портала» (Россия)
Концепция стандартного жилья для среднеэтажной модели застройки © Архитектурная мастерская «2Портала» (Россия)
Концепция стандартного жилья для среднеэтажной модели застройки © Архитектурная мастерская «2Портала» (Россия)
Концепция стандартного жилья для среднеэтажной модели застройки © Архитектурная мастерская «2Портала» (Россия)
Концепция стандартного жилья для среднеэтажной модели застройки © Архитектурная мастерская «2Портала» (Россия)
***

Boustany – Suphasidh – Desfonds + A2OM: «непредсказуемая система»
Международная команда
Концепция стандартного жилья для среднеэтажной модели застройки © Boustany – Suphasidh – Desfonds + A2OM (международная команда)
Концепция стандартного жилья для среднеэтажной модели застройки © Boustany – Suphasidh – Desfonds + A2OM (международная команда)

Интернациональный консорциум, включающий российское бюро А20М, недавнего участника молодежной биеннале, в чьем портфолио имеется два малоэтажных жилых комплекса, один под Москвой, другой в Люксембурге, – предложил, невзирая на существующие пока ограничения, конструктив из клееного бруса, – «подталкивая Россию к тому чтобы в ближайшем будущем она стала лидером устойчивого строительства».

В основу проекта положена модульная сетка 12х12 м, с поворотом на 45º. Мелкая диагональная сетка наложена на такую же прямую, создавая возможность для диагонального построения, которое здесь преобладает. Дома – тонкие, в задании максимальной была названа толщина 18 м, здесь 12. Малоквартирные дома толще, и расставлены на входах в квартал, маркируя их – фасады мини-башен стеклянные. Остальные, длинные дома сложены под разными углами и в целом напоминают микрорайонную планировку, хотя и с большей непредсказуемостью. Внутри возникает некоторое количество стыковок стен под 45º.
Концепция стандартного жилья для среднеэтажной модели застройки © Boustany – Suphasidh – Desfonds + A2OM (международная команда)
Концепция стандартного жилья для среднеэтажной модели застройки © Boustany – Suphasidh – Desfonds + A2OM (международная команда)
Концепция стандартного жилья для среднеэтажной модели застройки © Boustany – Suphasidh – Desfonds + A2OM (международная команда)
Концепция стандартного жилья для среднеэтажной модели застройки © Boustany – Suphasidh – Desfonds + A2OM (международная команда)

Внешне проект очень лаконичен, не предлагает никакой пестроты, фактурных поверхностей, западаний и выступов, высотность варьирует не уступами, а тоже плавными диагоналями, наподобие гор. Проект отрицает однообразие повторений типовых микрорайонов и предлагает «бесконечное разнообразие» в рамках двух заданных сеток. Пожалуй, он выглядит наиболее модернистским, совершенно не стремясь стилизовать приемы старого города.
Концепция стандартного жилья для среднеэтажной модели застройки © Boustany – Suphasidh – Desfonds + A2OM (международная команда)
Концепция стандартного жилья для среднеэтажной модели застройки © Boustany – Suphasidh – Desfonds + A2OM (международная команда)
Концепция стандартного жилья для среднеэтажной модели застройки © Boustany – Suphasidh – Desfonds + A2OM (международная команда)
Концепция стандартного жилья для среднеэтажной модели застройки © Boustany – Suphasidh – Desfonds + A2OM (международная команда)

Углы позволяют образовать несколько небольших общественных пространств на внешнем контуре – авторы называют их «городскими комнатами»: одно из них отдано рынку, второе саду, третье сцене с амфитеатром, четвертое «киоску». Детский сад тоже вынесен на внешний контур квартала, как стадион, раскрытый вовне, по-видимому, для привлечения окрестных спортсменов.
Концепция стандартного жилья для среднеэтажной модели застройки © Boustany – Suphasidh – Desfonds + A2OM (международная команда)
Концепция стандартного жилья для среднеэтажной модели застройки © Boustany – Suphasidh – Desfonds + A2OM (международная команда)

Внутри продолжен пешеходный бульвар и активно используется геопластика до 5 м высотой; помимо холмов предложено два пруда. Этот проект – единственный из попавших в финал, в котором предложено некоторое количество подземных парковок: под частью домов и под рынком, как минимум.
Концепция стандартного жилья для среднеэтажной модели застройки © Boustany – Suphasidh – Desfonds + A2OM (международная команда)
Концепция стандартного жилья для среднеэтажной модели застройки © Boustany – Suphasidh – Desfonds + A2OM (международная команда)
Концепция стандартного жилья для среднеэтажной модели застройки © Boustany – Suphasidh – Desfonds + A2OM
Концепция стандартного жилья для среднеэтажной модели застройки © Boustany – Suphasidh – Desfonds + A2OM
Концепция стандартного жилья для среднеэтажной модели застройки © Boustany – Suphasidh – Desfonds + A2OM (международная команда)
Концепция стандартного жилья для среднеэтажной модели застройки © Boustany – Suphasidh – Desfonds + A2OM (международная команда)
Концепция стандартного жилья для среднеэтажной модели застройки © Boustany – Suphasidh – Desfonds + A2OM (международная команда)
Концепция стандартного жилья для среднеэтажной модели застройки © Boustany – Suphasidh – Desfonds + A2OM (международная команда)
***

Anarcitects Studio: параметрическое будущее
Нидерланды
Концепция стандартного жилья для среднеэтажной модели застройки © Anarcitects Studio (Нидерланды)
Концепция стандартного жилья для среднеэтажной модели застройки © Anarcitects Studio (Нидерланды)

Голландцы Anarcitects привели запрошенные в задании категории модульности и адаптивности к цифровой схеме, построенной на основе BIM, и назвали свой проект основанным на «расширенным стандарте» (augmented standard). Система состоит из базовых форм и модификаторов – последние нужны там, где базовые формы с задачей не справляются. Коротко говоря, в такой системе возможно практически все – любые настройки, она сама выглядит как стандарт, только по определению более сложный и гибкий, а не как проект, который можно оценить по визуальным качествам и набору предложений городского комфорта.
Концепция стандартного жилья для среднеэтажной модели застройки © Anarcitects Studio (Нидерланды)
Концепция стандартного жилья для среднеэтажной модели застройки © Anarcitects Studio (Нидерланды)
Концепция стандартного жилья для среднеэтажной модели застройки © Anarcitects Studio (Нидерланды)
Концепция стандартного жилья для среднеэтажной модели застройки © Anarcitects Studio (Нидерланды)

Проект превращен в библиотеку форм, которые сами по себе как будто не важны, потому что очень настраиваемы, взаимосвязаны и открыты для трансформаций. Так что визуальную часть проекта не имеет смысла и оценивать, со своими параметрическими принципами он переходит в какую-то иную весовую категорию, хотя для идеального типового строительства это, наверное, интересно как подход. Визуал же, предложенный для примера, выглядит достаточно жестко и «клетчато»: внимание же привлекают разнообразные объемы, мансарды-гиганты и «домики Карлсона» на кровле.

Выглядит остро-отличным от всех остальных и поэтому – особенно нереальным, хотя по-своему захватывающим.
Концепция стандартного жилья для среднеэтажной модели застройки © Anarcitects Studio (Нидерланды)
Концепция стандартного жилья для среднеэтажной модели застройки © Anarcitects Studio (Нидерланды)
Концепция стандартного жилья для среднеэтажной модели застройки © Anarcitects Studio (Нидерланды)
Концепция стандартного жилья для среднеэтажной модели застройки © Anarcitects Studio (Нидерланды)
Концепция стандартного жилья для среднеэтажной модели застройки © Anarcitects Studio (Нидерланды)
Концепция стандартного жилья для среднеэтажной модели застройки © Anarcitects Studio (Нидерланды)
***

Ad Hoc Architecture: реализм
Россия
Площадь участка: 3 га
Плотность застройки: 17 200 м2 / га
Себестоимость: 90 811 – 141 214 руб. / м2
Коэфф. остекления: 0,2 – 0,4
Парковок: 112

Концепция стандартного жилья для среднеэтажной модели застройки © Ad Hoc Architecture (Россия)
Концепция стандартного жилья для среднеэтажной модели застройки © Ad Hoc Architecture (Россия)

Россияне Ad Hoc предложили довольно-таки жесткую «панельную» образность, оживив фасады разноцветными балконами крупными вырезами террас, которые маркируют различие типологий: вырез у галерейного дома – сквозное отверстие двухэтажной высоты, террасы секционных домов разместились на кровлях, в «малоквартирных» домах для террас срезано одно ребро, отчего они похожи на стулья, хаотично расставленные по двору. Над арками 5-этажной высоты – широкие стеклянные перемычки.
Концепция стандартного жилья для среднеэтажной модели застройки © Ad Hoc Architecture (Россия)
Концепция стандартного жилья для среднеэтажной модели застройки © Ad Hoc Architecture (Россия)
Концепция стандартного жилья для среднеэтажной модели застройки © Ad Hoc Architecture (Россия)
Концепция стандартного жилья для среднеэтажной модели застройки © Ad Hoc Architecture (Россия)

Секционные и галерейные дома образуют границы квартала, по диагонали он разрезан бульваром, по периметру двора обозначены проезды для спецтехники. По углам диагонали расположены треугольные городские мини-площади. Пространство двора скорее цельное, разделение на зоны дано условно, без выгородок.

Парковок – 112, в 2 раза меньше чем в задании, расположены они только по периметру. Неожиданно высокая стоимость метра – от 90 000 до 112 000 рублей. Этажей – в основном семь. Проект выглядит крупным, размашистым, простым и каким-то наименее утопичным из всех, приближенным к реальности жизни.
Концепция стандартного жилья для среднеэтажной модели застройки © Ad Hoc Architecture (Россия)
Концепция стандартного жилья для среднеэтажной модели застройки © Ad Hoc Architecture (Россия)
Концепция стандартного жилья для среднеэтажной модели застройки © Ad Hoc Architecture (Россия)
Концепция стандартного жилья для среднеэтажной модели застройки © Ad Hoc Architecture (Россия)
Концепция стандартного жилья для среднеэтажной модели застройки © Ad Hoc Architecture (Россия)
Концепция стандартного жилья для среднеэтажной модели застройки © Ad Hoc Architecture (Россия)
Концепция стандартного жилья для среднеэтажной модели застройки © Ad Hoc Architecture (Россия)
Концепция стандартного жилья для среднеэтажной модели застройки © Ad Hoc Architecture (Россия)
***
 
DO Architects: неожиданное предложение
Литва
Макс. высота: 40,65 м
Себестоимость: 27 400 – 77 300 р. / м2
Парковок: 418

Концепция стандартного жилья для среднеэтажной модели застройки © DO Architects (Литва)
Концепция стандартного жилья для среднеэтажной модели застройки © DO Architects (Литва)

В проект литовских архитекторов, по-видимому, вкралась ошибка: вместе «малоквартирных» домов в них фигурируют 12-этажные башни. Проект вообще удивляет неожиданными параметрами: парковочных мест в нем вдвое больше, чем в задании – 412. Квартир больше семисот, а плотность – одна из самых низких, 15 000 м2/га.

Помимо 12-этажных башен, выходящих за пределы ограничений задания, DO предложили 4-5-этажные дома без лифтов, но зато с палисадниками и низкой стоимостью строительства – около 28 000 рублей за м2. Два других типа дома стоят соответственно 77 и 65 тысяч рублей за метр. Хотя судя по представленным данным, в них имеется некая путаница: в домах с лифтами как минимум не показан технический подвал.
Концепция стандартного жилья для среднеэтажной модели застройки © DO Architects (Литва)
Концепция стандартного жилья для среднеэтажной модели застройки © DO Architects (Литва)
Концепция стандартного жилья для среднеэтажной модели застройки © DO Architects (Литва)
Концепция стандартного жилья для среднеэтажной модели застройки © DO Architects (Литва)

Прямоугольник территории поделен на три части. Две из них – замкнутые кварталы, чьи дворы заняты парковками на травянистой решетке и палисадниками первых этажей. Между двумя кварталами – пешеходный бульвар. Третий участок, целиком отдан рекреации, там расположен детский сад с кольцеобразным планом-бубликом, игровая, спортивная и собачья площадки. Он выглядит как сквер и отделен от жилых кварталов внутренней улицей. Улицы по периметру ранжированы: две внутренние (residential), две местные (local). Терминологическая разница не вполне ясна, но первые скорее бульвары, в них полосы разделены рядом деревьев и парковаться можно с двух сторон от каждой полосы, что также увеличивает число машиномест; а вторые – двухполосные без разделителя.
Концепция стандартного жилья для среднеэтажной модели застройки © DO Architects (Литва)
Концепция стандартного жилья для среднеэтажной модели застройки © DO Architects (Литва)

Проект, несмотря на неточности в подаче и несоответствие заданию, кажется нестандартным и интересным: он как будет предлагает «подумать еще немного», не слишком стремясь вписаться в стандарты. Возможно, потому он и попал с двадцатку победителей.
Концепция стандартного жилья для среднеэтажной модели застройки © DO Architects (Литва)
Концепция стандартного жилья для среднеэтажной модели застройки © DO Architects (Литва)
Концепция стандартного жилья для среднеэтажной модели застройки © DO Architects (Литва)
Концепция стандартного жилья для среднеэтажной модели застройки © DO Architects (Литва)
***