Размещено на портале Архи.ру (www.archi.ru)

20.11.2017

Два дома: возвращение

Юлия Тарабарина
Объект:
Реставрация дома Сытина
Адрес:
Россия, Москва. ул. Тверская, дом 18б
Реставрация усадьбы Долгоруковых-Бобринских на ул. Малая Дмитровка
Адрес:
Россия, Москва. ул. Малая Дмитровка
Архитектор:
Алексей Гинзбург
Наталия Шилова
Мастерская:
Гинзбург Архитектс
Авторский коллектив:
А.В. Гинзбург, Н.Б. Шилова, Е.А. Щеголева (Давыдова), С.Г. Коротаева, Б.В. Андреев, Е.А. Криворог

Оставаясь в рамках выполнения заказа, но тщательно работая с деталями, Алексею Гинзбургу удалось вернуть прежний облик усадьбе Долгоруковых-Бобринских на Малой Дмитровке и дому Сытина на Тверской. Рассказываем, что и как сделано.

Реставрация усадьбы Долгоруковых-Бобринских на ул. Малая Дмитровка © Гинзбург Архитектс, фотография Алексея Князева
Реставрация усадьбы Долгоруковых-Бобринских на ул. Малая Дмитровка © Гинзбург Архитектс, фотография Алексея Князева

Квартал «Известий» рядом с Пушкинской площадью – типично московский, можно даже сказать гипертрофированно московский, в том смысле, что в нем представлены все основные тенденции архитектуры города начиная с середины XIX века. Это характерный пример разномастности и разновременности, но в целом довольно качественный, совершенно без трущоб.

Алексей Гинзбург занимается этой частью города уже лет семь, стремясь сохранить все слои городской застройки, а там, где это возможно, восстанавливая историческую справедливость – в частности, он раскрывает и консервирует кирпичные поверхности брандмауэров как для доходных домов, так и для «Известий» Бархина – потому, что так было. Получается цветно и свежо, по-московски почти как у Лентулова: этакое образцово-показательное восстановление фрагмента московской застройки; сейчас завершены 4 здания 1 очереди. Об «Известиях» Бархина и о доходном доме Тюляевой на Дмитровке мы рассказывали, сейчас речь о двух других домах: усадьбе Долгоруковых-Бобринских 1850-х и здании редакции газеты «Русское слово» Ивана Сытина, построенной архитектором Адольфом Эрихсоном в 1904. Они расположены на двух противоположных углах квартала: восточном и западном, один открывает собой Малую Дмитровку, другой смотрит на Тверскую.
 
Усадьба Долгоруковых-Бобринских
Реставрация усадьбы Долгоруковых-Бобринских на ул. Малая Дмитровка © Гинзбург Архитектс, фотография Алексея Князева
Реставрация усадьбы Долгоруковых-Бобринских на ул. Малая Дмитровка © Гинзбург Архитектс, фотография Алексея Князева

С 2007 – выявленный памятник культурного наследия, у нее масса краеведческих коннотаций, включая посещение Пушкиным в 1832 году (подробнее в посте Архнадзора 2013 года; тогда работы только планировались). Она включает стены усадеб второй половины XVIII – начала XIX века, что вообще свойственно домам московского центра; соседний по Дмитровке дом Тюляевой тоже содержит фрагменты амирной усадьбы. Между тем двухэтажное здание, которое мы видим, принадлежит в основном 1853–1856 годам. У дома еще довольно много краеведческих «закладок», здесь заседало Московское археологические общество графа Александра Уварова, а с 1947 по 1964 работала редакция «Нового мира» под руководством вначале Симонова, затем Твардовского. Затем в углу между флигелем и домом поселилась пивная, ее в 1990-е сменило казино. В это время дом заселило множество арендаторов: офисов, магазинов, ночных клубов. Впрочем, теперь после реставрации дом также планируют сдавать в аренду, скорее всего, под офисы.
Усадьба Долгоруковых-Бобринских. Архивные материалы / предоставлено А. Гинзбургом
Усадьба Долгоруковых-Бобринских. Архивные материалы / предоставлено А. Гинзбургом
Пушкинская площадь, усадьба Долгоруковых-Бобринских. Архивные материалы / предоставлено А. Гинзбургом
Пушкинская площадь, усадьба Долгоруковых-Бобринских. Архивные материалы / предоставлено А. Гинзбургом
Пушкинская площадь. Архивные материалы / предоставлено А. Гинзбургом
Пушкинская площадь. Архивные материалы / предоставлено А. Гинзбургом
Усадьба Долгоруковых-Бобринских, вид сверху. Архивные материалы / предоставлено А. Гинзбургом
Усадьба Долгоруковых-Бобринских, вид сверху. Архивные материалы / предоставлено А. Гинзбургом

Пивную и казино в углу возрождать не стали, а восстановили палисадник и забор, существовавшие еще в период работы редакции «Нового мира». Также вернули на место утраченный чугунный балкон со стороны площади. Восстановили оконные рамы: внешняя холодная рама повторяет рисунок исторических окон, известных по фотографиям и сохранившимся фрагментам, а установленные с внутренней стороны для тепла стеклопакеты с улицы практически не видны. Ограждение с меандром по краю сменили простые стальные перила.
Реставрация усадьбы Долгоруковых-Бобринских на ул. Малая Дмитровка. Гинзбург Архитектс. Фотография © Юлия Тарабарина, Архи.ру
Реставрация усадьбы Долгоруковых-Бобринских на ул. Малая Дмитровка. Гинзбург Архитектс. Фотография © Юлия Тарабарина, Архи.ру
Реставрация усадьбы Долгоруковых-Бобринских на ул. Малая Дмитровка. Гинзбург Архитектс. Фотография © Юлия Тарабарина, Архи.ру
Реставрация усадьбы Долгоруковых-Бобринских на ул. Малая Дмитровка. Гинзбург Архитектс. Фотография © Юлия Тарабарина, Архи.ру
Реставрация усадьбы Долгоруковых-Бобринских на ул. Малая Дмитровка. Гинзбург Архитектс. Фотография © Юлия Тарабарина, Архи.ру
Реставрация усадьбы Долгоруковых-Бобринских на ул. Малая Дмитровка. Гинзбург Архитектс. Фотография © Юлия Тарабарина, Архи.ру
Реставрация усадьбы Долгоруковых-Бобринских на ул. Малая Дмитровка. Гинзбург Архитектс. Фотография © Юлия Тарабарина, Архи.ру
Реставрация усадьбы Долгоруковых-Бобринских на ул. Малая Дмитровка. Гинзбург Архитектс. Фотография © Юлия Тарабарина, Архи.ру

В 1930-е правую часть дома была надстроена третьим этажом; в целом весь дом, крайне многослойный, Алексей Гинзбург называет пазлом: в нем очень много наслоений и ни одного одинакового помещения. Стены «расползались», и в целом дом «напоминал скорее декорации к фильму Кинз-дза, чем центр Москвы», – рассказывает архитектор; деревянные перекрытия деформировались и были открыты на улицу. Пришлось заменить полы и перекрытия, на железобетонные.
Реставрация усадьбы Долгоруковых-Бобринских на ул. Малая Дмитровка © Гинзбург Архитектс, фотография Алексея Князева
Реставрация усадьбы Долгоруковых-Бобринских на ул. Малая Дмитровка © Гинзбург Архитектс, фотография Алексея Князева
Реставрация усадьбы Долгоруковых-Бобринских на ул. Малая Дмитровка. Гинзбург Архитектс. Фотография © Юлия Тарабарина, Архи.ру
Реставрация усадьбы Долгоруковых-Бобринских на ул. Малая Дмитровка. Гинзбург Архитектс. Фотография © Юлия Тарабарина, Архи.ру
Реставрация усадьбы Долгоруковых-Бобринских на ул. Малая Дмитровка. Гинзбург Архитектс. Фотография © Юлия Тарабарина, Архи.ру
Реставрация усадьбы Долгоруковых-Бобринских на ул. Малая Дмитровка. Гинзбург Архитектс. Фотография © Юлия Тарабарина, Архи.ру
Реставрация усадьбы Долгоруковых-Бобринских на ул. Малая Дмитровка. Гинзбург Архитектс. Фотография © Юлия Тарабарина, Архи.ру
Реставрация усадьбы Долгоруковых-Бобринских на ул. Малая Дмитровка. Гинзбург Архитектс. Фотография © Юлия Тарабарина, Архи.ру
Реставрация усадьбы Долгоруковых-Бобринских на ул. Малая Дмитровка © Гинзбург Архитектс, фотография Алексея Князева
Реставрация усадьбы Долгоруковых-Бобринских на ул. Малая Дмитровка © Гинзбург Архитектс, фотография Алексея Князева
Реставрация усадьбы Долгоруковых-Бобринских на ул. Малая Дмитровка. Гинзбург Архитектс. Фотография © Юлия Тарабарина, Архи.ру
Реставрация усадьбы Долгоруковых-Бобринских на ул. Малая Дмитровка. Гинзбург Архитектс. Фотография © Юлия Тарабарина, Архи.ру
Реставрация усадьбы Долгоруковых-Бобринских на ул. Малая Дмитровка. Гинзбург Архитектс. Фотография © Юлия Тарабарина, Архи.ру
Реставрация усадьбы Долгоруковых-Бобринских на ул. Малая Дмитровка. Гинзбург Архитектс. Фотография © Юлия Тарабарина, Архи.ру

Из исторических интерьеров архитекторы восстановили только те, которые были в предмете охраны: главную лестницу и часть второго этажа; каменные ступени, каменные вставки на пилястрах, лепнину – реставрировали, деревянную кровлю над лестницей сохранить было невозможно, но ее заменили на деревянную же.

Одной из самых ощутимых проблем оказались соли, пропитавшие и пористый белокаменный цоколь, и кирпич. Стены очищали от солей долго, эти работы продолжались еще летом; после завершения процедуры очищения кирпичные стены во дворе – как мы помним, следуя исторической правде, Алексей Гинзбург оставляет их кирпичными – покрыли гидрофобным составом.

После восстановления дом приобрел вместо розового желтый цвет, вероятно потому, что стилистику его фасадов иногда определяют как поздний классицизм. Он составляет яркую пару с домом Тюляевой по Малой Дмитровке: желтый и салатовый перемежаются яркой терракотой кирпича. Другой «сосед» усадьбы Долгоруковых-Бобринских – церковь Рождества в Путинках на другой стороне улицы, один из самых «узорочных» и известных храмов XVII века. Хотя между ними разница – 200 лет, вместе они напоминают о низкорослой Москве, городе, который после строительного бума конца XIX – начала XX века, а затем в период сталинского строительства преобразился почти целиком.
Реставрация усадьбы Долгоруковых-Бобринских на ул. Малая Дмитровка. Гинзбург Архитектс. Фотография © Юлия Тарабарина, Архи.ру
Реставрация усадьбы Долгоруковых-Бобринских на ул. Малая Дмитровка. Гинзбург Архитектс. Фотография © Юлия Тарабарина, Архи.ру
Реставрация усадьбы Долгоруковых-Бобринских на ул. Малая Дмитровка © Гинзбург Архитектс, фотография Алексея Князева
Реставрация усадьбы Долгоруковых-Бобринских на ул. Малая Дмитровка © Гинзбург Архитектс, фотография Алексея Князева

С другой стороны усадьба контрастирует со зданием «Известий» – как старая Москва и новая. 
***

Здание редакции газеты «Русское слово»
Реставрация дома Сытина © Гинзбург Архитектс, фотография Алексея Князева
Реставрация дома Сытина © Гинзбург Архитектс, фотография Алексея Князева

Если усадьба на углу Малой Дмитровки – представитель «старомосковской» части квартала, невысокой, многослойной, уютной, то здание редакции, в котором жил и сам Иван Сытин, в свое время было символом новизны: от размаха издательского бизнеса – к 1917 году Сытин скупил почти весь квартал, кроме дома Тюляевой, рассказывает Алексей Гинзбург, – до архитектуры стиля модерн с маскаронами и выложенным плиткой фасадом. Здание стало началом новой, типографской специализации этой части города. После октябрьской революции «Русское слово» быстро закрыли, хотя оно еще почти год, до июля 1918, сопротивлялось советской власти под разными названиями. C 1921 года в доме Сытина поселилась редакция газеты «Труд».

В 1979 дом Сытина перемещали на 400 катках, но не для расширения улицы, а для увеличения площади перед новым зданием «Известий», построенным незадолго до этого. То есть сдвигали не от Тверской в глубину квартала, а к северо-западу: два трехэтажных доходных дома, между которыми в 1904 построили редакцию «Русского слова», к этому времени снесли – в 1960-е годы. Сытинский дом передвинули на 33 метра, на угол Настасьинского переулка; причем в 1979 эта процедура заняла не 2-3 месяца, как в 1930-е, а трое суток – гидравлические домкраты стали мощнее (см. «Техника молодежи» №8 1979).
Перемещение Дома Сытина, фотография из журнала «Техника молодежи» №8, 1979, с 4 обложки журнала (художник В.Иванов)
Перемещение Дома Сытина, фотография из журнала «Техника молодежи» №8, 1979, с 4 обложки журнала (художник В.Иванов)

Под дом подвели монолитную плиту – ее удалось обнаружить в процессе работ, – внутри укрепили стальными балками, снаружи окружили весь первый этаж металлическим бандажом и катили на 400 катках. Тыльная стена дома осталась на своем месте и ее потом разобрали. Затем дом Сытина отреставрировали, но недорого и небрежно: подлинную «столярку» оконных переплетов заменили на новую и непохожую. «Зато в предмет охраны как кабинет Сытина попало помещение с советскими стенами и потолком, – рассказывает Алексей Гинзбург, – скорее всего оно относится к 1950-м годам, но уж к Сытину точно не имеет никакого отношения». Во время реставрации 1980-х на обоих брандмауэрах дома, до этого совершенно нейтральных, появились декоративные арки с маскаронами – скорее всего между 1982 и 1985.
Дом Сытина после постройки. Архивные материалы / предоставлено А. Гинзбургом
Дом Сытина после постройки. Архивные материалы / предоставлено А. Гинзбургом
Дом Сытина, 1930-е гг. Архивные материалы / предоставлено А. Гинзбургом
Дом Сытина, 1930-е гг. Архивные материалы / предоставлено А. Гинзбургом
Дом Сытина после перемещения начала 1980-х. Виден руст на фасадах первого этажа Архивные материалы / предоставлено А. Гинзбургом
Дом Сытина после перемещения начала 1980-х. Виден руст на фасадах первого этажа Архивные материалы / предоставлено А. Гинзбургом

«Нам было интересно восстановить то, что было утрачено по время переноса здания и до этого», – продолжает архитектор. В частности, восстановили декоративные стенки с овальными отверстиями, маскирующие кровлю на торцах дома. Отреставрировали мозаичный фриз с цветами на золотом фоне. Заново облицевали бежевой плиткой первый этаж – сложно сказать когда, но к 1960-м ее уже заменили штукатурным рустом; отмыли плитку верхних этажей, после чего выяснилось, что во время советской реставрации ее вычинили плиткой другого цвета – фасад оказался пятнистым; поздние советские элементы покрыли лаком, который обеспечил единство тона. Всю старую плитку законсервировали. Оконные рамы сделали заново по старым фотографиям. Окна первого этажа были уменьшены; Алексей Гинзбург вернул им первоначальные очертания витрин со стеклом до мостовой, причем не обошлось без прений: во время согласования подозревали, что архитектор не возрождает старые витрины 1904 года, а стремится установить новые. Но обошлось.
Реставрация дома Сытина
Реставрация дома Сытина
Фотография © Алексей Князев / Гинзбург Архитектс

Металлическая арматура глубоко вынесенного карниза и балконов целиком сгнила; но архитекторы решили не воссоздавать их заново, а укрепить анкерами и «шпильками», опасаясь, что точно реконструировать пластику модерна в наше время не удастся – так что карнизы и балконы остались подлинными. С другой стороны, декоративные арки начала 1980-х на брандмауэрах сохранили.

Первоначальную лестницу сытинского «Русского слова» тоже разобрали в 1980-е – когда пристраивали к передвинутому зданию со стороны Настасьинского переулка концертный зал «Известий», позднее превращенный в кинотеатр «Кодак киномир» (его закрыли в 2012). В период 1980-х – 2000-х парадным входом в сытинский дом была лестница из «Киномира». Сейчас архитекторы бюро Алексея Гинзбурга выстроили внутри новую лестницу и новое коммуникационное ядро взамен утраченного в 1980-е.
Реставрация дома Сытина © Гинзбург Архитектс, фотография Алексея Князева
Реставрация дома Сытина © Гинзбург Архитектс, фотография Алексея Князева
Реставрация дома Сытина. Фрагмент фасада  © Гинзбург Архитектс, фотография Алексея Князева
Реставрация дома Сытина. Фрагмент фасада © Гинзбург Архитектс, фотография Алексея Князева
Реставрация дома Сытина. Фрагмент фасада  © Гинзбург Архитектс, фотография Алексея Князева
Реставрация дома Сытина. Фрагмент фасада © Гинзбург Архитектс, фотография Алексея Князева
Реставрация дома Сытина. Фрагмент фасада  © Гинзбург Архитектс, фотография Алексея Князева
Реставрация дома Сытина. Фрагмент фасада © Гинзбург Архитектс, фотография Алексея Князева
Реставрация дома Сытина. Фрагмент фасада © Гинзбург Архитектс, фотография Алексея Князева
Реставрация дома Сытина. Фрагмент фасада © Гинзбург Архитектс, фотография Алексея Князева

Технический этаж спрятали в холодном чердаке под вальмовой кровлей, снабдив ее щелями-«жабрами» для проветривания, что позволило сохранить традиционный силуэт здания, не нарушив его торчащими «грибками» вентшахт, – резюмирует Алексей Гинзбург.
Реставрация дома Сытина. Фрагмент фасада  © Гинзбург Архитектс, фотография Алексея Князева
Реставрация дома Сытина. Фрагмент фасада © Гинзбург Архитектс, фотография Алексея Князева

Перекрытия внутри были спроектированы Владимиром Шуховым, – рассказывает архитектор, – и состояли из двутавра с шагом 1,2 м и металлической мембраны толщиной около 10 см, армированной кирпичной крошкой. Не желая нагружать старые перекрытия и испытывать его таким образом на прочность, выше сделали новые монолитные плиты, сохранив и шуховские конструкции, и сохранившуюся на них снизу лепнину. Лепнину архитекторы не докомпоновывали – так как помещения планируется сдавать в аренду без отделки, то ее сохранность и показ остаются на совести арендаторов. Два нижних этажа дома сейчас планируется отдать магазинам, 2,5 верхних – ресторанам.
***

Думаю, из рассказа достаточно ясно, насколько Алексей Гинзбург увлечен темой реставрации с сохранением как исторического облика, так и подлинных элементов зданий. Это восстановление, с одной стороны, довольно тщательное и подробное, а с другой – вполне жизненное, рассчитанное не на музеефикацию, а на дальнейшее функционирование. Что влечет за собой ряд компромиссов: строгие ценители предложили бы, думаю, восстановить издательскую функцию Сытинского дома и полностью возродить все, что было внутри… Собственно одна из проблем нашего времени – борьба перфекционизма с прагматизмом и их неспособность договориться между собой. Одни, условно назовем их старые москвичи, требуют слишком многого, другие на этом основании игнорируют их требования, делая то, что считают нужным. Тяжкий труд Алексея Гинзбурга – обратный пример, пример разумного, но отнюдь не чрезмерного компромисса, очень полезный, полагаю, для города. 
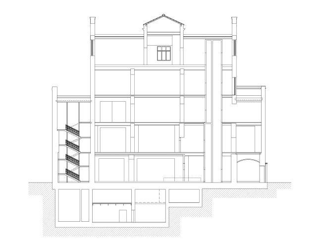
Реставрация дома Сытина. Сечение по кровле © Гинзбург Архитектс
Реставрация дома Сытина. Сечение по кровле © Гинзбург Архитектс
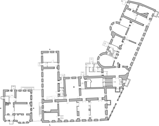
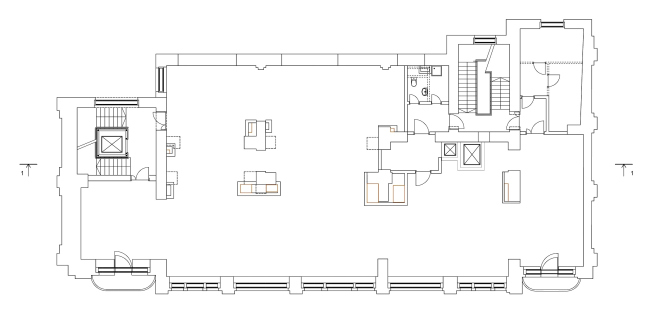
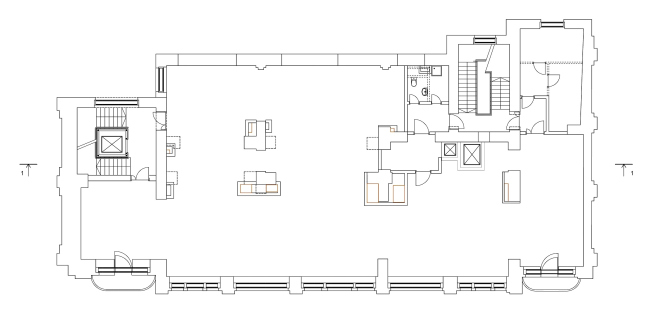
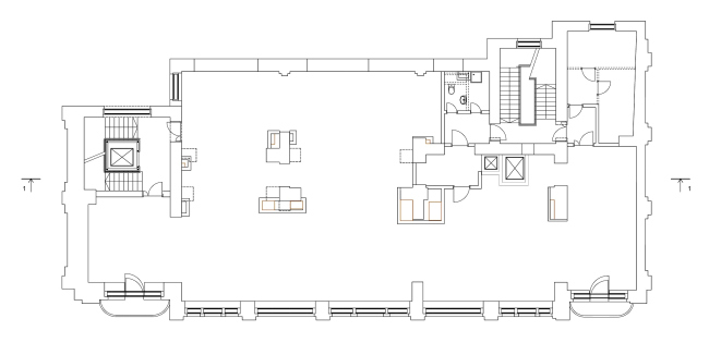
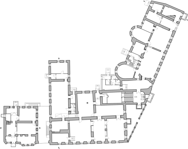
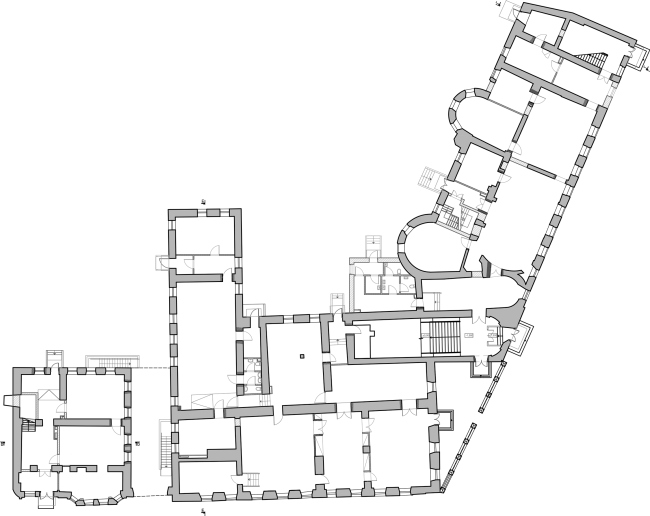
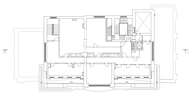
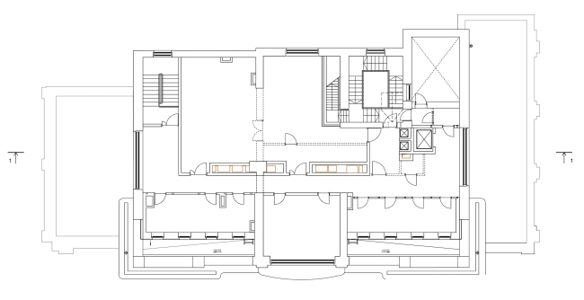
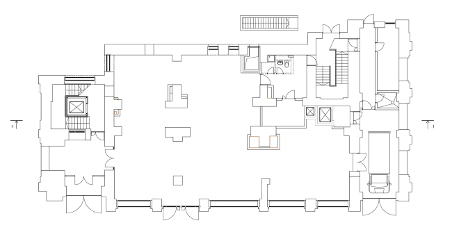
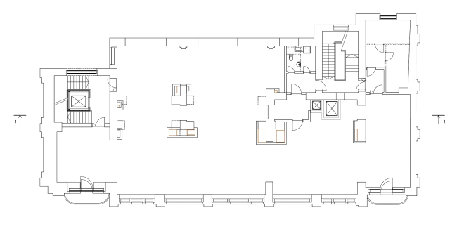
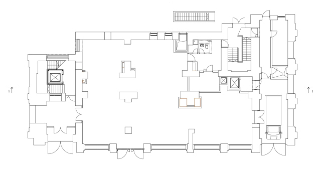
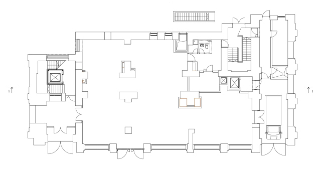
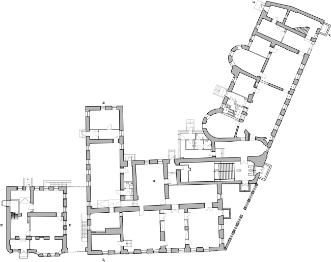
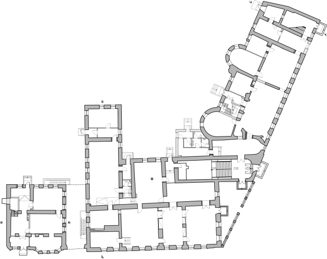
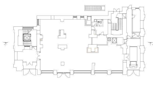
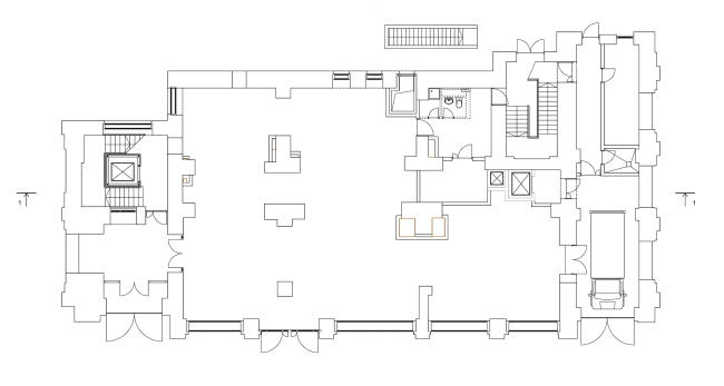
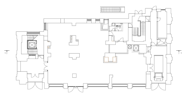
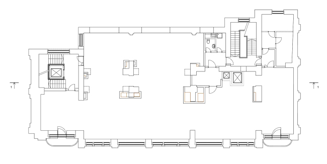
Реставрация усадьбы Долгоруковых-Бобринских на ул. Малая Дмитровка. План 1 этажа © Гинзбург Архитектс
Реставрация усадьбы Долгоруковых-Бобринских на ул. Малая Дмитровка. План 1 этажа © Гинзбург Архитектс
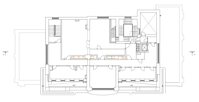
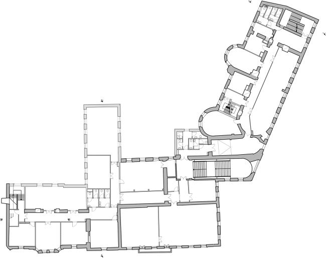
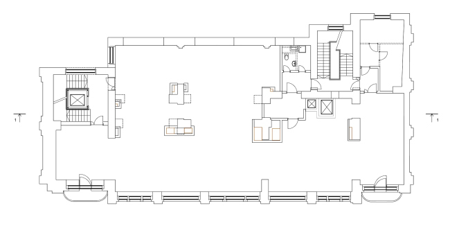
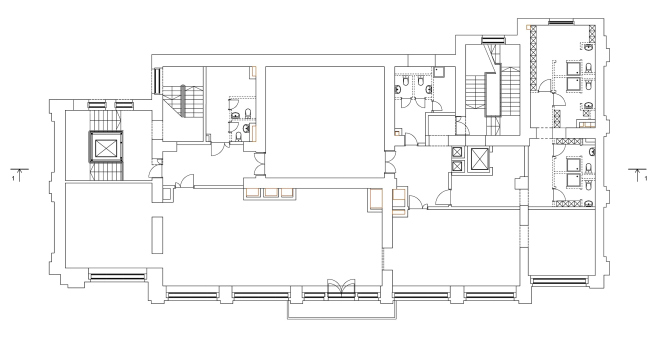
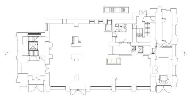
Реставрация усадьбы Долгоруковых-Бобринских на ул. Малая Дмитровка. План 2 этажа © Гинзбург Архитектс
Реставрация усадьбы Долгоруковых-Бобринских на ул. Малая Дмитровка. План 2 этажа © Гинзбург Архитектс
Реставрация усадьбы Долгоруковых-Бобринских на ул. Малая Дмитровка. План подвала © Гинзбург Архитектс
Реставрация усадьбы Долгоруковых-Бобринских на ул. Малая Дмитровка. План подвала © Гинзбург Архитектс
Реставрация усадьбы Долгоруковых-Бобринских на ул. Малая Дмитровка. Сечение Е-Е © Гинзбург Архитектс
Реставрация усадьбы Долгоруковых-Бобринских на ул. Малая Дмитровка. Сечение Е-Е © Гинзбург Архитектс
Реставрация усадьбы Долгоруковых-Бобринских на ул. Малая Дмитровка. 
Узел примыкания перекрытия к лестнице © Гинзбург Архитектс
Реставрация усадьбы Долгоруковых-Бобринских на ул. Малая Дмитровка. Узел примыкания перекрытия к лестнице © Гинзбург Архитектс
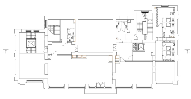
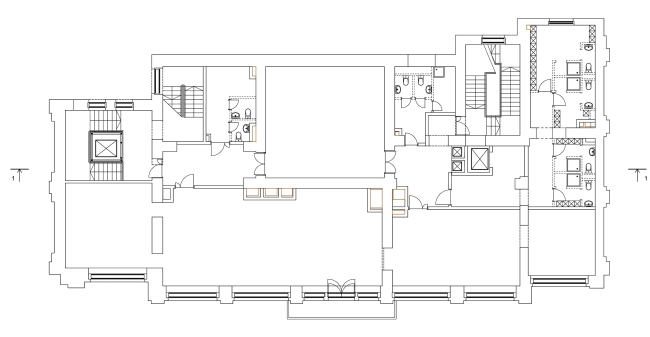
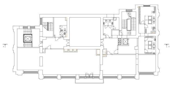
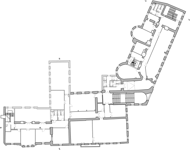
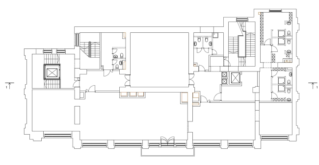
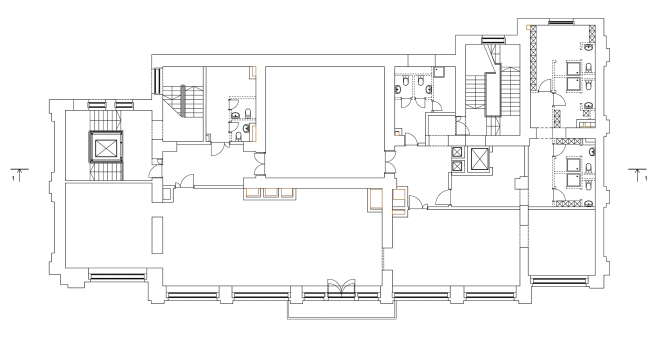
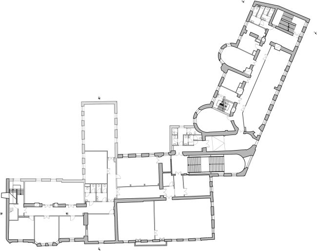
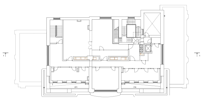
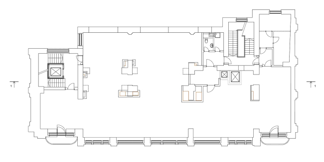
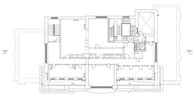
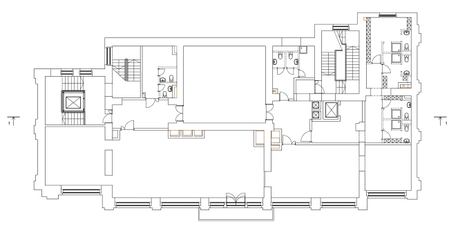
Реставрация дома Сытина. План 1 этажа на отм. 0.000 © Гинзбург Архитектс
Реставрация дома Сытина. План 1 этажа на отм. 0.000 © Гинзбург Архитектс
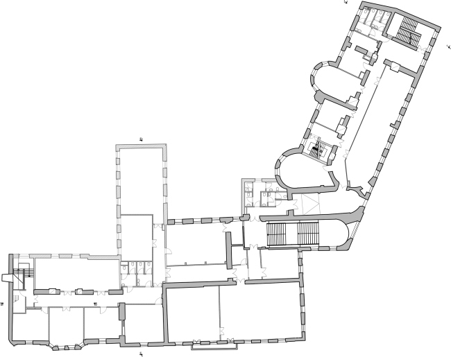
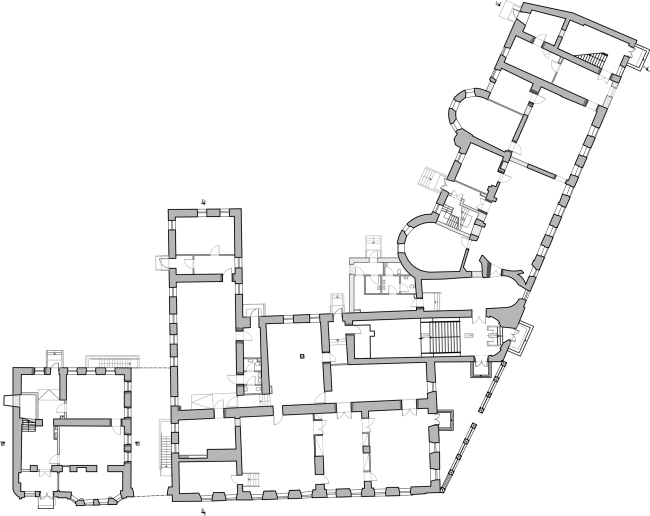
Реставрация дома Сытина. План 2 этажа на отм. +5.107 © Гинзбург Архитектс
Реставрация дома Сытина. План 2 этажа на отм. +5.107 © Гинзбург Архитектс
Реставрация дома Сытина. План 3 этажа на отм. +10.433 © Гинзбург Архитектс
Реставрация дома Сытина. План 3 этажа на отм. +10.433 © Гинзбург Архитектс
Реставрация дома Сытина. План 5 этажа на отм. +20.542 © Гинзбург Архитектс
Реставрация дома Сытина. План 5 этажа на отм. +20.542 © Гинзбург Архитектс
Реставрация дома Сытина. Разрез 1-1 © Гинзбург Архитектс
Реставрация дома Сытина. Разрез 1-1 © Гинзбург Архитектс