Размещено на портале Архи.ру (www.archi.ru)

16.11.2017

Спортивная нагрузка

Лара Копылова, Юлия Тарабарина
Объект:
Многофункциональный комплекс Match point с апартаментами и спортивной волейбольной ареной
Адрес:
Россия, Москва. ул. В. Кожиной, вл. 13
Мастерская:
Архитектурная мастерская «Группа АБВ»
СИБАЛЮКС
Авторский коллектив:
Генеральный директор – Н.Ю. Бирюков
Главный архитектор проекта – А.М. Орлов
Главный инженер проекта – В.В. Остроумов
Архитекторы: Е.Н. Соколова, М.Н. Приходько, О.В. Назаров, С.В. Фокина, М.В. Давыдова, И.С. Бессарабов, Д.В. Гуторкин, Д.Н. Желтикова, Н.В. Стоялова​
 

Работая с комплексом Match Point, группе АБВ Никиты Бирюкова удалось компактно «упаковать» значительные площади, строго распределив рост и образность между основными функциями: спортивной ареной, жилым домом и небольшим офисом.

Многофункциональный комплекс с апартаментами и спортивной волейбольной ареной. Визуализация по ул. В. Кожиной. Вид 3 © Архитектурная мастерская «Группа АБВ»
Многофункциональный комплекс с апартаментами и спортивной волейбольной ареной. Визуализация по ул. В. Кожиной. Вид 3 © Архитектурная мастерская «Группа АБВ»

Улица Василисы Кожиной вытянута вдоль железной дороги к северу от парка Победы, недалеко от Кутузовского проспекта. К северу от проспекта здесь сохранилась полоса яблоневого сада, за ним – полотно железной дороги Белорусского направления, дальше, за улицей Кожиной – район кирпичных 5-этажек вперемежку с 12-этажными панельными домами. Полоса земли шириной приблизительно 100 м между железной дорогой и улицей когда-то была занята «частным сектором»; в семидесятые здесь разместились несколько небольших промзон, гостиница МИД и открытый стадион «Багратион». Сейчас на месте стадиона, наследуя его спортивную функцию, по проекту архитекторов группы АБВ строится МФК Match Point: он объединит жилье – более 1600 апартаментов, некоторое количество офисов и – международную волейбольную арену на 3500 зрителей. Арена – самая большая в Европе, станет базой клуба «Динамо». Заказчиком выступила компания «Волей Гранд», которая находится под управлением структуры «ВТБ Проект» группы ВТБ.

Теннисное название Match Point предложил застройщик. К волейболу оно отношения не имеет, но к спорту в целом – да. Матч-пойнт – решающий момент матча, когда выигранный мяч решает исход игры, так что в названии обыграна не только тема спорта как такового, но и расположение комплекса рядом с парком Победы. «В шаге от победы», – гласит рекламный слоган на сайте жилого комплекса. До границы парка здесь 300 м по прямой, до входа в одноименную станцию метро – 12 минут пешком.
Многофункциональный комплекс с апартаментами и спортивной волейбольной ареной. Ситуационный план. Существующее положение © Архитектурная мастерская «Группа АБВ»
Многофункциональный комплекс с апартаментами и спортивной волейбольной ареной. Ситуационный план. Существующее положение © Архитектурная мастерская «Группа АБВ»
Многофункциональный комплекс с апартаментами и спортивной волейбольной ареной. Ситуационный план. Проект © Архитектурная мастерская «Группа АБВ»
Многофункциональный комплекс с апартаментами и спортивной волейбольной ареной. Ситуационный план. Проект © Архитектурная мастерская «Группа АБВ»

По словам главы группы АБВ Никиты Бирюкова, на этом объекте сломали копья немало архитекторов, поскольку требовалось решить сразу несколько головоломных задач: совместить спортивное сооружение, довольно большую плотность жилья и ограничения по высоте. Когда бюджет был частично истощен предыдущими неудачными попытками, заказчик объявил негласный конкурс, который выиглала команда АБВ Никиты Бирюкова. «Общество «Динамо» хотело построить здесь волейбольный стадион для международных игр, – рассказывает Никита Бирюков, – а для этого надо было построить дом, чтобы заработать. То есть дом должен был стать таким, чтобы хватило на спорт». Таким образом, арена стала дополнительной нагрузкой и вызовом. Плюс из-за железной дороги потребовалось дополнительно укреплять фундамент.

Весь комплекс, включая жилые корпуса и волейбольную арену, стоит на трехъярусной подземной парковке, рассчитанной на 1609 машин. Лаконичная овальная шайба арены, оформленная в духе семидесятых строгим рядом тонких светло-бежевых ребер вертикальных ламелей, расположена в западной части комплекса – их ночная подсветка задумана эффектной, сияющая штриховка должна почти что парить в воздухе.
Многофункциональный комплекс с апартаментами и спортивной волейбольной ареной. Ночное освещение. Вид 3 © Архитектурная мастерская «Группа АБВ»со стороны ул. В. Кожиной
Многофункциональный комплекс с апартаментами и спортивной волейбольной ареной. Ночное освещение. Вид 3 © Архитектурная мастерская «Группа АБВ»со стороны ул. В. Кожиной

Опять же в духе семидесятых, арену окружает открытая галерея, куда ведут симметричные всходы с парадной стороны улицы Кожиной – они немного напоминают обход спорткомплекса «Олимпийский».
Многофункциональный комплекс с апартаментами и спортивной волейбольной ареной. Фасад в осях 1а-15а. Спорткомплекс © Архитектурная мастерская «Группа АБВ»
Многофункциональный комплекс с апартаментами и спортивной волейбольной ареной. Фасад в осях 1а-15а. Спорткомплекс © Архитектурная мастерская «Группа АБВ»

С противоположной стороны в сторону железной дороги из овального контура выступает прямоугольный объем тренировочного зала: он на два яруса заглублен в землю и поэтому лишь немного корректирует контур первого этажа; выше круглящаяся форма чиста и лаконична.
Многофункциональный комплекс с апартаментами и спортивной волейбольной ареной. План -1 уровня. Спорткомплекс © Архитектурная мастерская «Группа АБВ»
Многофункциональный комплекс с апартаментами и спортивной волейбольной ареной. План -1 уровня. Спорткомплекс © Архитектурная мастерская «Группа АБВ»
Многофункциональный комплекс с апартаментами и спортивной волейбольной ареной. План -2 уровня. Спорткомплекс © Архитектурная мастерская «Группа АБВ»
Многофункциональный комплекс с апартаментами и спортивной волейбольной ареной. План -2 уровня. Спорткомплекс © Архитектурная мастерская «Группа АБВ»
Многофункциональный комплекс с апартаментами и спортивной волейбольной ареной. План 1 этажа. Спорткомплекс © Архитектурная мастерская «Группа АБВ»
Многофункциональный комплекс с апартаментами и спортивной волейбольной ареной. План 1 этажа. Спорткомплекс © Архитектурная мастерская «Группа АБВ»
Многофункциональный комплекс с апартаментами и спортивной волейбольной ареной.Разрез 1-1. Спорткомплекс © Архитектурная мастерская «Группа АБВ»
Многофункциональный комплекс с апартаментами и спортивной волейбольной ареной.Разрез 1-1. Спорткомплекс © Архитектурная мастерская «Группа АБВ»
Многофункциональный комплекс с апартаментами и спортивной волейбольной ареной. Фасад в осях П-А. Спорткомплекс © Архитектурная мастерская «Группа АБВ»
Многофункциональный комплекс с апартаментами и спортивной волейбольной ареной. Фасад в осях П-А. Спорткомплекс © Архитектурная мастерская «Группа АБВ»

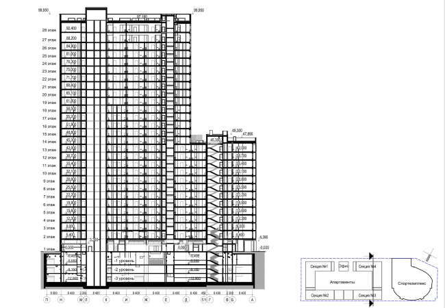
Если волейбольная арена, знаковый элемент ансамбля, с архитектурной точки зрения апеллирует к семидесятым или даже восьмидесятым с их поисками редуцированного ордера, то в объемах жилых корпусов становится сильнее контекстуальная нота. Во-первых, они спланированы строго симметричной рамкой и в плане остро напоминают послевоенные сталинские дома Кутузовского проспекта и окрестностей; но Match Point раза в два-три крупнее. Как мы помним, одной из сложных задач была необходимость совместить требования по объему площадей с высотными ограничениями и требованиями инсоляции. Отсюда – силуэт из двух крупных ступеней: в южной части, обращенной к ж/д и Кутузовскому проспекту – два угловых корпуса-башни по 28 этажей, почти 100 м высоты; в северной, обращенной к улице Василисы Кожиной – 13 этажей, почти вровень с соседними домами.
Многофункциональный комплекс с апартаментами и спортивной волейбольной ареной. Визуализация по ул. В. Кожиной. Вид 2 © Архитектурная мастерская «Группа АБВ»
Многофункциональный комплекс с апартаментами и спортивной волейбольной ареной. Визуализация по ул. В. Кожиной. Вид 2 © Архитектурная мастерская «Группа АБВ»

Для того, чтобы башни меньше загораживали солнце с южной стороны, посередине появился просвет, равный им по ширине.
Многофункциональный комплекс с апартаментами и спортивной волейбольной ареной. Ночное освещение. Вид со стороны Кутузовского проспекта © Архитектурная мастерская «Группа АБВ»
Многофункциональный комплекс с апартаментами и спортивной волейбольной ареной. Ночное освещение. Вид со стороны Кутузовского проспекта © Архитектурная мастерская «Группа АБВ»

Между тем, разница высот между южной и северной частью достаточно большая – 15 этажей. Для того, чтобы сгладить ее, в створе башен архитекторы добавили небольшую «ступеньку» переходных секций: 18 этажей, 63 метра.
Многофункциональный комплекс с апартаментами и спортивной волейбольной ареной. Фасад в осях 24-1 © Архитектурная мастерская «Группа АБВ»
Многофункциональный комплекс с апартаментами и спортивной волейбольной ареной. Фасад в осях 24-1 © Архитектурная мастерская «Группа АБВ»

Стометровые башни – еще не небоскребы, но уже почти – будут восприниматься в основном издали и работать на относительно дальнюю перспективу Кутузовского проспекта. Отсюда цвет – палевый, бежевый; четкое деление на ярусы – низ, верх, середину; сочетание светлых вертикалей со зрительно «утопленными» горизонталями – ритмическая тема высоток и их младших братьев поменьше ростом, таких как к примеру романтические форты Зиновия Розенфельда – дома 21 и 25, стоящие неподалеку отсюда, ближе к центру города по Кутузовскому проспекту.
Многофункциональный комплекс с апартаментами и спортивной волейбольной ареной.  Вид со стороны Кутузовского проспекта. Визуализация © Архитектурная мастерская «Группа АБВ»
Многофункциональный комплекс с апартаментами и спортивной волейбольной ареной. Вид со стороны Кутузовского проспекта. Визуализация © Архитектурная мастерская «Группа АБВ»

Тема сталинского ар-деко, однако, не абсолютна: задав «телесный» классический ритм, архитекторы сразу же разбивают его, «нанизывая» объемы на широкие полосы вертикалей стеклянных лоджий: они визуально делят башни на более стройные части, превращая их в подобие тетрапилонов и в то же время напоминая один из приемов постмодернистской архитектуры Риккардо Бофилла, поскольку полосы стекла заметно снижают материальность решения.
Многофункциональный комплекс с апартаментами и спортивной волейбольной ареной. Вид со стороны дублера Кутузовского проспекта. Визуализация © Архитектурная мастерская «Группа АБВ»
Многофункциональный комплекс с апартаментами и спортивной волейбольной ареной. Вид со стороны дублера Кутузовского проспекта. Визуализация © Архитектурная мастерская «Группа АБВ»

Подобные стеклянные вертикали отделяют от башен и низкоэтажные корпуса, обращенные к улице. В их первом этаже устроена глубокая пешеходная галерея – родственница улицы Риволи, торговых рядов XVIII века и героиня теорий московских градостроителей 1980-х – она формирует комфортную зону перед кафе и магазинами первого этажа, создавая защиту от дождя и снега для потока клиентов – людей, идущих от метро.
Многофункциональный комплекс с апартаментами и спортивной волейбольной ареной. Ночное освещение. Вид 2 со стороны В.Кожиной © Архитектурная мастерская «Группа АБВ»
Многофункциональный комплекс с апартаментами и спортивной волейбольной ареной. Ночное освещение. Вид 2 со стороны В.Кожиной © Архитектурная мастерская «Группа АБВ»
Многофункциональный комплекс с апартаментами и спортивной волейбольной ареной. План 1 этажа © Архитектурная мастерская «Группа АБВ»
Многофункциональный комплекс с апартаментами и спортивной волейбольной ареной. План 1 этажа © Архитектурная мастерская «Группа АБВ»

Трехчастная схема фасада также напоминает некоторые из «сталинских» зданий округи, восходя, в принципе, к формуле палладианского дворца. Разве что, как и башни, он начисто лишен декора, очищен до линейности, а его эстетику формирует тонкая до хрупкости разгранка стекла лоджий и подчеркивающие их глубину вставки зеленоватого тонированного стекла.
Многофункциональный комплекс с апартаментами и спортивной волейбольной ареной. Визуализация по ул. В. Кожиной. Вид 1 © Архитектурная мастерская «Группа АБВ»
Многофункциональный комплекс с апартаментами и спортивной волейбольной ареной. Визуализация по ул. В. Кожиной. Вид 1 © Архитектурная мастерская «Группа АБВ»
Многофункциональный комплекс с апартаментами и спортивной волейбольной ареной. Ночное освещение. Вид  1 со стороны ул. В. Кожиной © Архитектурная мастерская «Группа АБВ»
Многофункциональный комплекс с апартаментами и спортивной волейбольной ареной. Ночное освещение. Вид 1 со стороны ул. В. Кожиной © Архитектурная мастерская «Группа АБВ»
Многофункциональный комплекс с апартаментами и спортивной волейбольной ареной. Фасад в осях 1-24 © Архитектурная мастерская «Группа АБВ»
Многофункциональный комплекс с апартаментами и спортивной волейбольной ареной. Фасад в осях 1-24 © Архитектурная мастерская «Группа АБВ»
Многофункциональный комплекс с апартаментами и спортивной волейбольной ареной. Фасад в осях 20-5 © Архитектурная мастерская «Группа АБВ»
Многофункциональный комплекс с апартаментами и спортивной волейбольной ареной. Фасад в осях 20-5 © Архитектурная мастерская «Группа АБВ»

Лоджии запланированы, кажется, для всех квартир, а квартирография, как сейчас принято, умеренно-разнообразна, от одной до трех комнат с несколькими эксклюзивными вариантами, выходящими за рамки. В частности, на тринадцатом этаже со стороны улицы появляются 4-комнатные апартаменты по 350 м2; но этих «уникумов» не так много. В целом размеры жилья умеренные, от 30 до 100 м2. Планировка всех корпусов коридорно-секционная: каждые две секции соединены между собой коридором. Характерные для квартального плана темные углы, все четыре, заняты лифтовыми шахтами – планы не менее рациональны, чем фасады.
Многофункциональный комплекс с апартаментами и спортивной волейбольной ареной. План 2 этажа © Архитектурная мастерская «Группа АБВ»
Многофункциональный комплекс с апартаментами и спортивной волейбольной ареной. План 2 этажа © Архитектурная мастерская «Группа АБВ»
Многофункциональный комплекс с апартаментами и спортивной волейбольной ареной. План 13 этажа © Архитектурная мастерская «Группа АБВ»
Многофункциональный комплекс с апартаментами и спортивной волейбольной ареной. План 13 этажа © Архитектурная мастерская «Группа АБВ»
Многофункциональный комплекс с апартаментами и спортивной волейбольной ареной. План типового (25-28) этажа © Архитектурная мастерская «Группа АБВ»
Многофункциональный комплекс с апартаментами и спортивной волейбольной ареной. План типового (25-28) этажа © Архитектурная мастерская «Группа АБВ»

Итак, архитектура «Матч-пойнта» строго ортогональна, это – чистый, элегантный модернизм, но намеки на классику послевоенной архитектуры, мотивированные контекстом Кутузовского, помогли уйти от стандартной модернистской решетки на фасаде, добавили сложности, исторической глубины и позволили дому «подружиться» с окружением. Может быть, помимо «сталинского ампира» здесь будет уместным вспомнить и симметричный авангард на заре его существования – к примеру, «Госторг» Бориса Великовского.

Элегантность форм поддержана материалами. Бюджет был ограничен, но архитекторы приложили немало усилий для того, чтобы жилой комплекс выглядел дорого. Был вариант применения в облицовке материала, имитирующего дерево. Но остановились на юрском камне в двух первых ярусах и окрашенных стальных кассетах – более прочных и красивых, чем алюминиевые – выше. Цвет, как уже говорилось, преобладает светло-бежевый, на два тона светлее «сталинского» кирпича и камня. Он сочетается с более темным серым алюминием в переплетах остекления, решетками перфорированного металла, чей рисунок тщательно подбирали, полосатыми корзинами для кондиционеров и вентрешетками. Все фасады – тонко-слоистые, бежевые поверхности чуть ближе, темный металл и решетки чуть дальше; полученный эффект сочетания прорезного металла, камня и стекла приводит нас к строгой, возможно даже хайтековской версии ар-деко, впрочем, также созвучной и современным поискам орнаментальной архитектуры.
Многофункциональный комплекс с апартаментами и спортивной волейбольной ареной. Фрагмет фасада 1. Раскладка материала © Архитектурная мастерская «Группа АБВ»
Многофункциональный комплекс с апартаментами и спортивной волейбольной ареной. Фрагмет фасада 1. Раскладка материала © Архитектурная мастерская «Группа АБВ»
Многофункциональный комплекс с апартаментами и спортивной волейбольной ареной. Фрагмент фасада 2. Раскладка материала © Архитектурная мастерская «Группа АБВ»
Многофункциональный комплекс с апартаментами и спортивной волейбольной ареной. Фрагмент фасада 2. Раскладка материала © Архитектурная мастерская «Группа АБВ»

Строжайшая симметрия, законам которой подчинены все эти тонкости, нарушена – или оживлена – лишь один раз. Зайдя внутрь двора через сквозную пилонаду в центре галереи по улице Василисы Кожиной, мы окажемся vis-à-vis с вполне современным, но по-барочному пластичным фасадом трехэтажного офисного корпуса, установленного в створе 28-этажных башен: большие окна горизонтальных пропорций, оживленные треугольными выступами эркеров, напоминают гигантские тумблеры-переключатели и этим тоже вписываются в тему ностальгического модернизма, но с некоторой, хотя и не слишком акцентированной нотой «нео». С другой стороны, из-за неожиданно локального масштаба это здание кажется немного чужим, и здесь вступает в силу игра в ассоциации: оно как будто бы то ли сохранилось от прежнего времени, то ли, наоборот, появилось после строительства основной рамки жилых корпусов.
Многофункциональный комплекс с апартаментами и спортивной волейбольной ареной. Офисное здание. Визуализация © Архитектурная мастерская «Группа АБВ»
Многофункциональный комплекс с апартаментами и спортивной волейбольной ареной. Офисное здание. Визуализация © Архитектурная мастерская «Группа АБВ»
Многофункциональный комплекс с апартаментами и спортивной волейбольной ареной. Фасад в осях К-Н и Н-К (офис) © Архитектурная мастерская «Группа АБВ»
Многофункциональный комплекс с апартаментами и спортивной волейбольной ареной. Фасад в осях К-Н и Н-К (офис) © Архитектурная мастерская «Группа АБВ»
Многофункциональный комплекс с апартаментами и спортивной волейбольной ареной. Фрагмент фасада. Раскладка материала © Архитектурная мастерская «Группа АБВ»
Многофункциональный комплекс с апартаментами и спортивной волейбольной ареной. Фрагмент фасада. Раскладка материала © Архитектурная мастерская «Группа АБВ»
Многофункциональный комплекс с апартаментами и спортивной волейбольной ареной. Разрез 3-3 © Архитектурная мастерская «Группа АБВ»
Многофункциональный комплекс с апартаментами и спортивной волейбольной ареной. Разрез 3-3 © Архитектурная мастерская «Группа АБВ»

Получается, что подчеркнутая внешняя проявленность деления на функции: арена, дом, офис, сочетается еще и со стилевым или даже историческим: семидесятые, «очищенный» вариант сталинской классики, подвижные эркеры современного модернизма. Арена, таким образом, напоминает о культе спорта в СССР, дом – респектабелен в духе когда-то элитного, да и теперь дорогого Кутузовского проспекта, офис современен. В игру включается даже детский сад – камыши на его стене становятся в этом ряду чистой природой, будущим, может быть. Впрочем те же темы могут быть прочитаны исходя и только из типологии: сталинский дом – более чем устойчивый и уместный фенотип, стадион семидесятых – тоже, офис должен быть «окном», а детский сад – он и есть сад, царство природной неопределенности.
Многофункциональный комплекс с апартаментами и спортивной волейбольной ареной. Визуализация © Архитектурная мастерская «Группа АБВ»
Многофункциональный комплекс с апартаментами и спортивной волейбольной ареной. Визуализация © Архитектурная мастерская «Группа АБВ»

Хотя помимо некоторой, очень тонко намеченной, игры с хронологией смыслов, дом вполне современен и соответствует множеству требований: в нем предусмотрены парковки почти что для каждой квартиры, двор без машин и благоустройство на кровле арены, общественные первые этажи и галерея для комфортной работы магазинов. Все это возводится в ареале Сити и Кутузовского проспекта, в дорогом и престижном районе, где сейчас повсеместно строятся крупные жилые комплексы вдоль Москвы-реки на месте промзон. Район Филей и парка Победы должен вскоре существенно измениться, ощутимо укрупниться в масштабах. Вмешательство архитектора состоит в том, чтобы оформить этот процесс, взять его в какие-то рамки объемно и визуально, найти оптимальное решение в условиях достаточно жестких требований, в том числе – превратить плотную застройку в катализатор нового, в какой-то степени лучшего качества городской жизни.
Многофункциональный комплекс с апартаментами и спортивной волейбольной ареной. Схема плана ландшафтного освещения © Архитектурная мастерская «Группа АБВ»
Многофункциональный комплекс с апартаментами и спортивной волейбольной ареной. Схема плана ландшафтного освещения © Архитектурная мастерская «Группа АБВ»
Многофункциональный комплекс с апартаментами и спортивной волейбольной ареной. Схема генерального плана. Схема организации дорожного движения © Архитектурная мастерская «Группа АБВ»
Многофункциональный комплекс с апартаментами и спортивной волейбольной ареной. Схема генерального плана. Схема организации дорожного движения © Архитектурная мастерская «Группа АБВ»
Многофункциональный комплекс с апартаментами и спортивной волейбольной ареной. Фасад в осях П-А. Спорткомплекс © Архитектурная мастерская «Группа АБВ»
Многофункциональный комплекс с апартаментами и спортивной волейбольной ареной. Фасад в осях П-А. Спорткомплекс © Архитектурная мастерская «Группа АБВ»
Многофункциональный комплекс с апартаментами и спортивной волейбольной ареной. Фасад в осях А-П. Спорткомплекс © Архитектурная мастерская «Группа АБВ»
Многофункциональный комплекс с апартаментами и спортивной волейбольной ареной. Фасад в осях А-П. Спорткомплекс © Архитектурная мастерская «Группа АБВ»
Многофункциональный комплекс с апартаментами и спортивной волейбольной ареной. План 2 этажа. Спорткомплекс © Архитектурная мастерская «Группа АБВ»
Многофункциональный комплекс с апартаментами и спортивной волейбольной ареной. План 2 этажа. Спорткомплекс © Архитектурная мастерская «Группа АБВ»
Многофункциональный комплекс с апартаментами и спортивной волейбольной ареной. План 3 этажа. Спорткомплекс © Архитектурная мастерская «Группа АБВ»
Многофункциональный комплекс с апартаментами и спортивной волейбольной ареной. План 3 этажа. Спорткомплекс © Архитектурная мастерская «Группа АБВ»
Многофункциональный комплекс с апартаментами и спортивной волейбольной ареной. План 4 этажа. Спорткомплекс © Архитектурная мастерская «Группа АБВ»
Многофункциональный комплекс с апартаментами и спортивной волейбольной ареной. План 4 этажа. Спорткомплекс © Архитектурная мастерская «Группа АБВ»
Многофункциональный комплекс с апартаментами и спортивной волейбольной ареной. План 5 этажа. Спорткомплекс © Архитектурная мастерская «Группа АБВ»
Многофункциональный комплекс с апартаментами и спортивной волейбольной ареной. План 5 этажа. Спорткомплекс © Архитектурная мастерская «Группа АБВ»
Многофункциональный комплекс с апартаментами и спортивной волейбольной ареной. План технического этажа. Спорткомплекс © Архитектурная мастерская «Группа АБВ»
Многофункциональный комплекс с апартаментами и спортивной волейбольной ареной. План технического этажа. Спорткомплекс © Архитектурная мастерская «Группа АБВ»
Многофункциональный комплекс с апартаментами и спортивной волейбольной ареной. План кровли. Спорткомплекс © Архитектурная мастерская «Группа АБВ»
Многофункциональный комплекс с апартаментами и спортивной волейбольной ареной. План кровли. Спорткомплекс © Архитектурная мастерская «Группа АБВ»
Многофункциональный комплекс с апартаментами и спортивной волейбольной ареной. Ночное освещение. Вид 2 со стороны В.Кожиной © Архитектурная мастерская «Группа АБВ»
Многофункциональный комплекс с апартаментами и спортивной волейбольной ареной. Ночное освещение. Вид 2 со стороны В.Кожиной © Архитектурная мастерская «Группа АБВ»
Многофункциональный комплекс с апартаментами и спортивной волейбольной ареной. План типового (3-9 этажей) © Архитектурная мастерская «Группа АБВ»
Многофункциональный комплекс с апартаментами и спортивной волейбольной ареной. План типового (3-9 этажей) © Архитектурная мастерская «Группа АБВ»
Многофункциональный комплекс с апартаментами и спортивной волейбольной ареной. План 10 этажа © Архитектурная мастерская «Группа АБВ»
Многофункциональный комплекс с апартаментами и спортивной волейбольной ареной. План 10 этажа © Архитектурная мастерская «Группа АБВ»
Многофункциональный комплекс с апартаментами и спортивной волейбольной ареной. План типового (11-12) этажа © Архитектурная мастерская «Группа АБВ»
Многофункциональный комплекс с апартаментами и спортивной волейбольной ареной. План типового (11-12) этажа © Архитектурная мастерская «Группа АБВ»
Многофункциональный комплекс с апартаментами и спортивной волейбольной ареной. План 14 этажа © Архитектурная мастерская «Группа АБВ»
Многофункциональный комплекс с апартаментами и спортивной волейбольной ареной. План 14 этажа © Архитектурная мастерская «Группа АБВ»
Многофункциональный комплекс с апартаментами и спортивной волейбольной ареной. План 19 этажа © Архитектурная мастерская «Группа АБВ»
Многофункциональный комплекс с апартаментами и спортивной волейбольной ареной. План 19 этажа © Архитектурная мастерская «Группа АБВ»
Многофункциональный комплекс с апартаментами и спортивной волейбольной ареной. План типового (20-24) этажа © Архитектурная мастерская «Группа АБВ»
Многофункциональный комплекс с апартаментами и спортивной волейбольной ареной. План типового (20-24) этажа © Архитектурная мастерская «Группа АБВ»
Многофункциональный комплекс с апартаментами и спортивной волейбольной ареной. План типового (25-26) этажа © Архитектурная мастерская «Группа АБВ»
Многофункциональный комплекс с апартаментами и спортивной волейбольной ареной. План типового (25-26) этажа © Архитектурная мастерская «Группа АБВ»
Многофункциональный комплекс с апартаментами и спортивной волейбольной ареной. План кровли © Архитектурная мастерская «Группа АБВ»
Многофункциональный комплекс с апартаментами и спортивной волейбольной ареной. План кровли © Архитектурная мастерская «Группа АБВ»
Многофункциональный комплекс с апартаментами и спортивной волейбольной ареной. План -1 уровня парковки © Архитектурная мастерская «Группа АБВ»
Многофункциональный комплекс с апартаментами и спортивной волейбольной ареной. План -1 уровня парковки © Архитектурная мастерская «Группа АБВ»
Многофункциональный комплекс с апартаментами и спортивной волейбольной ареной. План -2 уровня парковки © Архитектурная мастерская «Группа АБВ»
Многофункциональный комплекс с апартаментами и спортивной волейбольной ареной. План -2 уровня парковки © Архитектурная мастерская «Группа АБВ»
Многофункциональный комплекс с апартаментами и спортивной волейбольной ареной. План -3 уровня парковки © Архитектурная мастерская «Группа АБВ»
Многофункциональный комплекс с апартаментами и спортивной волейбольной ареной. План -3 уровня парковки © Архитектурная мастерская «Группа АБВ»
Многофункциональный комплекс с апартаментами и спортивной волейбольной ареной. Разрез 1-1 © Архитектурная мастерская «Группа АБВ»
Многофункциональный комплекс с апартаментами и спортивной волейбольной ареной. Разрез 1-1 © Архитектурная мастерская «Группа АБВ»
Многофункциональный комплекс с апартаментами и спортивной волейбольной ареной. Разрез 2-2 © Архитектурная мастерская «Группа АБВ»
Многофункциональный комплекс с апартаментами и спортивной волейбольной ареной. Разрез 2-2 © Архитектурная мастерская «Группа АБВ»
Многофункциональный комплекс с апартаментами и спортивной волейбольной ареной. Фасад в осях К-Г © Архитектурная мастерская «Группа АБВ»
Многофункциональный комплекс с апартаментами и спортивной волейбольной ареной. Фасад в осях К-Г © Архитектурная мастерская «Группа АБВ»
Многофункциональный комплекс с апартаментами и спортивной волейбольной ареной. Фасад в осях 5-20 © Архитектурная мастерская «Группа АБВ»
Многофункциональный комплекс с апартаментами и спортивной волейбольной ареной. Фасад в осях 5-20 © Архитектурная мастерская «Группа АБВ»
Многофункциональный комплекс с апартаментами и спортивной волейбольной ареной. Фасад в осях А-Н © Архитектурная мастерская «Группа АБВ»
Многофункциональный комплекс с апартаментами и спортивной волейбольной ареной. Фасад в осях А-Н © Архитектурная мастерская «Группа АБВ»
Многофункциональный комплекс с апартаментами и спортивной волейбольной ареной. Фасад в осях Н-А © Архитектурная мастерская «Группа АБВ»
Многофункциональный комплекс с апартаментами и спортивной волейбольной ареной. Фасад в осях Н-А © Архитектурная мастерская «Группа АБВ»
Многофункциональный комплекс с апартаментами и спортивной волейбольной ареной. Фасад в осях К-Н и в осях Н-К © Архитектурная мастерская «Группа АБВ»
Многофункциональный комплекс с апартаментами и спортивной волейбольной ареной. Фасад в осях К-Н и в осях Н-К © Архитектурная мастерская «Группа АБВ»