Размещено на портале Архи.ру (www.archi.ru)

20.10.2017

«Это мы построим»

Лара Копылова

Куратор Сергей Чобан поставил перед участниками молодежной биеннале задачу спроектировать квартал, в котором они хотели бы жить сами. А президент Татарстана уже выбрал из конкурсных проектов те, которые хотел бы реализовать. Рассматриваем 3 победивших проекта, 4 удостоенных спецпризов и еще 6 отмеченных.

Молодые архитекторы – участники биеннале в Казани, перестали «менять мир» и начали его обустраивать вдумчиво и бережно. Проекты разнообразны и продуманны. Среди 29 финалистов неожиданно много – пятеро, сделали кварталы будущего в традиционной архитектуре. Примерно столько же было футуристических визионерских высказываний, остальные предложили разные варианты модернизма, который можно в свою очередь поделить на модернизм с идеями и упрощенный вариант для девелопера.


Персонажи
Задание для молодых, до 35 лет, архитекторов предложил куратор первой молодежной биеннале Сергей Чобан. Участники должны были спроектировать квартал размером не более, чем 250 на 250 м – такой, в котором они хотели бы жить сами. Это ведь ключевой критерий качества архитектуры. Архитекторы часто проектируют «свысока», для абстрактного Другого, а сами не живут в своих зданиях. Автор дома Corviale в Риме, памятника модернизма 1968 года, на вопрос, почему он не живет в своем произведении, ответил: «Я же архитектор, а не пролетарий». Так что Сергей Чобан социальную инженерию, от которой все порядком устали в ХХ веке, отмел на первом же этапе конкурса.
Победитель конкурса биеннале молодых архитекторов. Проект многофункционального жилого квартала Homelands © Citizenstudio
Победитель конкурса биеннале молодых архитекторов. Проект многофункционального жилого квартала Homelands © Citizenstudio
Проект многофункционального жилого квартала. Авторы: 2Портала
Проект многофункционального жилого квартала. Авторы: 2Портала

Министр строительства и ЖКХ Михаил Мень и президент Татарстана Рустам Минниханов пообещали реализовать конкурсные проекты, а «драйверами процесса» стали помощник президента Наталия Фишман и агентство стратегического развития «Центр». По словам Михаила Меня, 30 субъектов федерации, возглавляемые новыми молодыми губернаторами, нуждаются в молодых главных архитекторах «в прямом подчинении», которые станут вторыми лицами в городе. Министр пообещал создать кадровый резерв. Поэтому на биеннале ищут героев, способных отвечать на вызовы, готовых учиться управлению и ехать в регионы. Кто-то же должен реализовывать федеральную программу «Формирование комфортной городской среды».
 
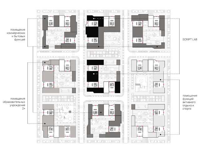
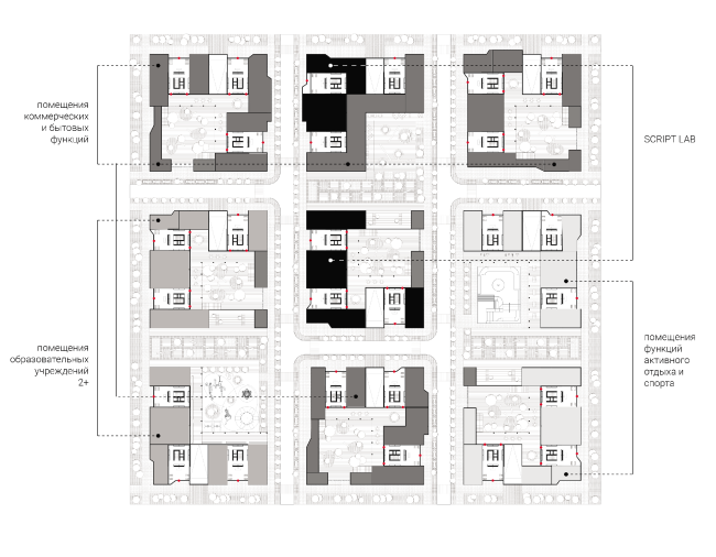
Обладатель специального диплома Первой молодежной архитектурной биеннале – проект многофункционального жилого квартала. Авторы: WALL
Обладатель специального диплома Первой молодежной архитектурной биеннале – проект многофункционального жилого квартала. Авторы: WALL
Проект многофункционального жилого квартала. Автор: Олег Манов
Проект многофункционального жилого квартала. Автор: Олег Манов

Президент Рустам Минниханов отреагировал на проекты биеннале очень непосредственно, его речь была образцом краткости: «Вот мои эмоции – мне понравились скошенные крыши и общественные пространства. Благодаря Чобану теперь мы знаем, где хочет жить молодежь, и постараемся это построить. Наталия [Фишман] – молодец, собрала такой представительный состав экспертов. А это мероприятие мы будем проводить каждый год». Позже Сергей Чобан подтвердил, что планируется каждый год проводить форум, а раз в два года – биеннале. И во время экскурсии по выставке президент, указывая на тот или иной макет, восклицал: «Вот это мы построим». А зная, что проекты – даже масштабных международных конкурсов, таких как набережные озер Кабан, в Татарстане реализуются молниеносно, можно понять, что такие слова президента Татарстана дорогого стоят.
Проект многофункционального жилого квартала. Автор: Надежда Коренева
Проект многофункционального жилого квартала. Автор: Надежда Коренева

Нацеленность на реализацию кварталов подчеркнула и Наталия Фишман – 26-летняя красавица с блестящей карьерой, успевшая закончить МГИМО, поучаствовать в образовательной программе Института Стрелка, поруководить Еврейским музеем и центром толерантности, организовать расцвет московских парков и набережных вместе с Сергеем Капковым и построить с 2015 года 200 общественных пространств в Татарстане как помощник Минниханова. «Цель биеннале, – сказала Наталия Фишман, – сформировать представление о том, какой должна быть среда города. А поскольку у нас есть возможность проектировать и строить, это уникальный кейс для участников».

Место
Биеннале проходила в Иннополисе – силиконовой долине Татарстана, аналоге подмосковного Сколково. Это IT-деревня и кампус университета, преподавание в котором ведется на английском иностранными профессорами. Студенты учатся на гранты, а потом либо основывают стартап, либо отрабатывают три года здесь же, в технологических компаниях, собранных со всей России в Иннополисе. Иннополис расположен в 40 километрах от Казани, у слияния Волги и Свияги, недалеко от Свияжска; в нем есть вся инфраструктура для жизни, даже горнолыжный курорт. А аренда квартиры для молодого специалиста стоит всего 7000 рублей в месяц. Сейчас в городе около 3000 жителей, их средний возраст – 30 лет.

Победители

Первое место
Citizenstudio, Москва
Проект многофункционального жилого квартала Homelands © Citizenstudio
Проект многофункционального жилого квартала Homelands © Citizenstudio

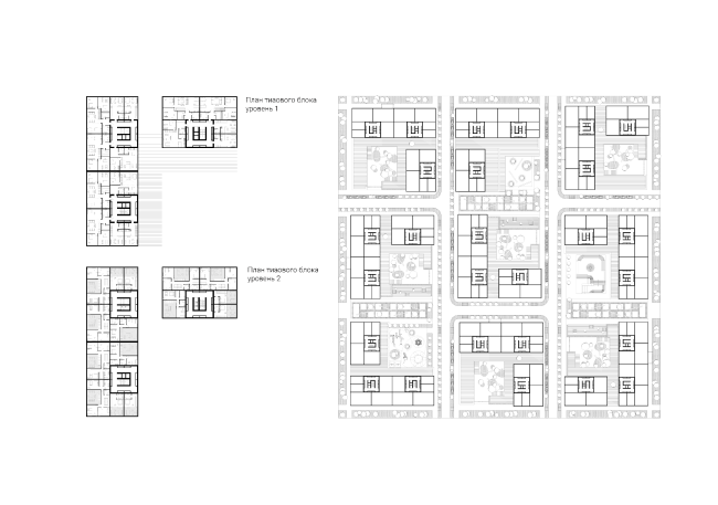
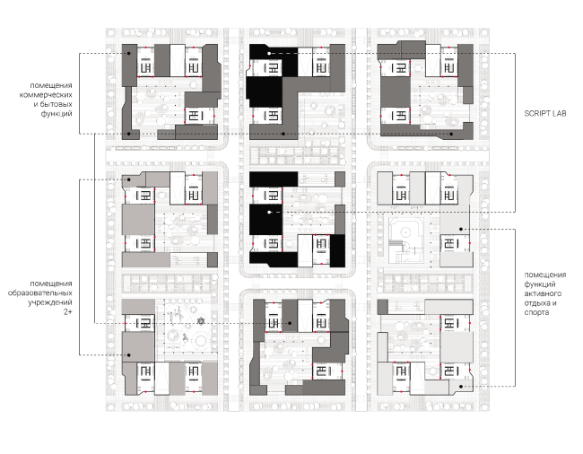
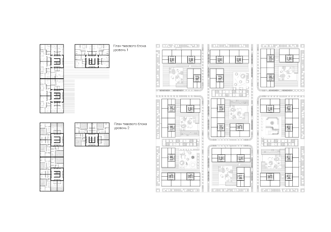
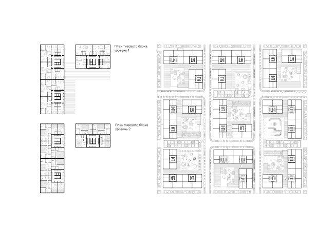
Золотой приз биеннале получило московское бюро Citizenstudio, Михаил Бейлин и Даниил Никишин. Их же проект награжден Министерством строительства и ЖКХ. Подробнее об этом проекте читайте здесь
Проект многофункционального жилого квартала Homelands © Citizenstudio
Проект многофункционального жилого квартала Homelands © Citizenstudio
 Авторы: Проект многофункционального жилого квартала. Авторы: Citizenstudio
Авторы: Проект многофункционального жилого квартала. Авторы: Citizenstudio
***


Второе место
Надежда Коренева, Москва
Проект многофункционального жилого квартала. Автор: Надежда Коренева
Проект многофункционального жилого квартала. Автор: Надежда Коренева

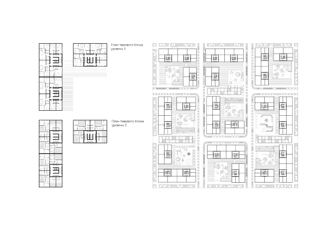
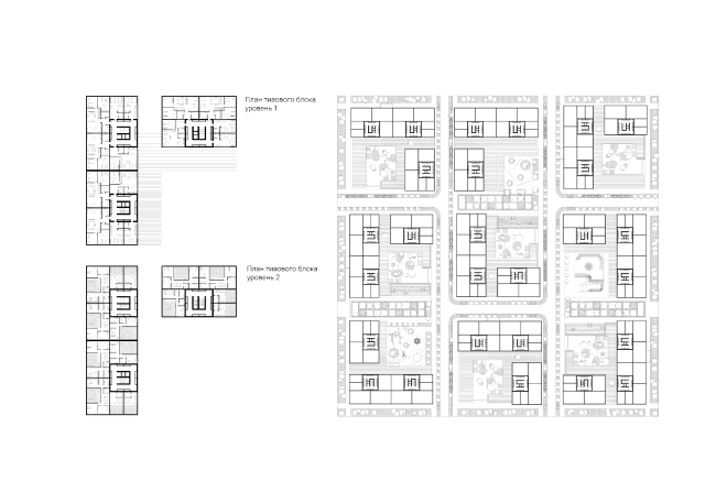
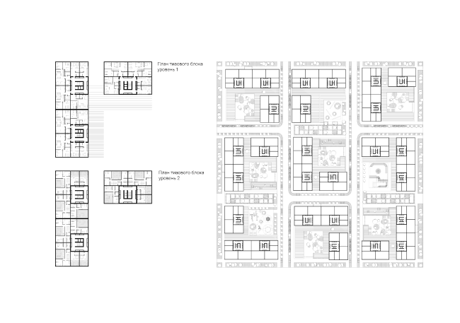
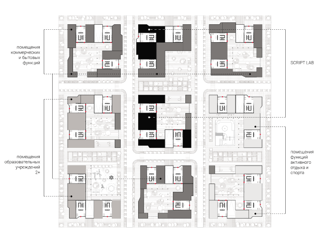
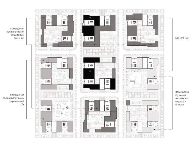
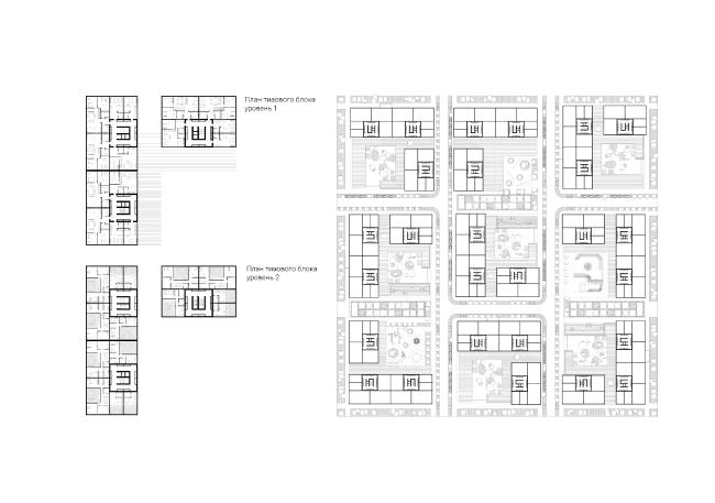
В основу проекта в стиле сдержанного модернизма положен следующий сценарий развития жилой среды: территория 240 х 240 м разделена на девять квадратов размером 60 х 60 м. Основу каждого из них составляют универсальные городские ячейки 30 х 30 м. В центре каждой ячейки расположены лестнично-лифтовая клетка и инженерные блоки. Конструктивно каждая ячейка – двухуровневая с возможностью трансформации в две одноуровневые. Такое решение позволяет обеспечить высокую плотность при небольшой этажности 4 – 6 – 8 этажей и возможность трансформации городской ткани при сохранении ее характера.
Проект многофункционального жилого квартала. Автор: Надежда Коренева
Проект многофункционального жилого квартала. Автор: Надежда Коренева
Проект многофункционального жилого квартала. Автор: Надежда Коренева
Проект многофункционального жилого квартала. Автор: Надежда Коренева
Проект многофункционального жилого квартала. Автор: Надежда Коренева
Проект многофункционального жилого квартала. Автор: Надежда Коренева
Проект многофункционального жилого квартала. Автор: Надежда Коренева
Проект многофункционального жилого квартала. Автор: Надежда Коренева
Проект многофункционального жилого квартала. Автор: Надежда Коренева
Проект многофункционального жилого квартала. Автор: Надежда Коренева
***


Третье место
Олег Манов, Петербург
Проект многофункционального жилого квартала. Автор: Олег Манов
Проект многофункционального жилого квартала. Автор: Олег Манов

Олег Манов из Санкт-Петербурга, завоевавший бронзу, предложил перемешать внутри квартала разные социальные группы при помощи соответствующей, крайне разнообразной, архитектуры. Блок «А» – малоэтажная квартальная застройка с внутренними дворами и зелеными террасами для респектабельной семейной публики. Блок «В» – трехэтажный общественный центр. Блок «С» – башня, вертикальная доминанта и лендмарк квартала, где находятся апартаменты временного проживания. Блок «Д» – новая типология, а именно: кластер из отдельных студий с пространствами для совместного ведения хозяйства и времяпрепровождения.
Проект многофункционального жилого квартала. Автор: Олег Манов
Проект многофункционального жилого квартала. Автор: Олег Манов
Проект многофункционального жилого квартала. Автор: Олег Манов
Проект многофункционального жилого квартала. Автор: Олег Манов
Проект многофункционального жилого квартала. Автор: Олег Манов
Проект многофункционального жилого квартала. Автор: Олег Манов
Проект многофункционального жилого квартала. Автор: Олег Манов
Проект многофункционального жилого квартала. Автор: Олег Манов
Проект многофункционального жилого квартала. Автор: Олег Манов
Проект многофункционального жилого квартала. Автор: Олег Манов
***

2Портала, Воронеж
Проект многофункционального жилого квартала. Авторы: 2Портала
Проект многофункционального жилого квартала. Авторы: 2Портала

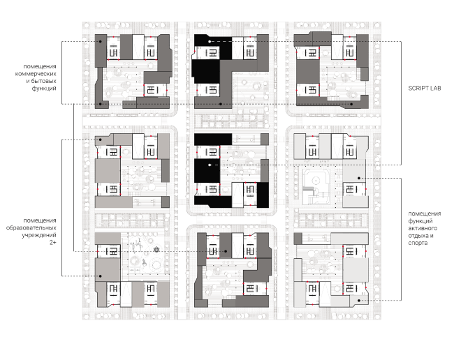
Республика Татарстан наградила бюро из Воронежа «2Портала» под управлением Артура Арутюняна. Как много могут сделать скатные крыши! Благодаря им и кирпичу архитектура выглядит традиционной оставаясь нейтральным модернизмом, к тому же скатная крыша в проекте – лишь у половины домов. Идея авторов состоит в том, чтобы «сформировать личное пространство, приближенное к частному жилому дому». Большой квартал они поделили на несколько малых со своими дворами плюс общий сквер для всех. Основную часть занимает формат «традиционного жилья». В этих домах на двух первых этажах расположены граундхаусы с отдельным входом, палисадником, террасой и подвалом. А формату «активное жилье» – для людей с насыщенным образом жизни – отдан один квартал, и там же сосредоточены общественные функции. Проект был замечен и многим понравился. Только композитные материалы лично я бы не приветствовала.
Проект многофункционального жилого квартала. Авторы: 2Портала
Проект многофункционального жилого квартала. Авторы: 2Портала
Проект многофункционального жилого квартала. Авторы: 2Портала
Проект многофункционального жилого квартала. Авторы: 2Портала
Проект многофункционального жилого квартала. Авторы: 2Портала
Проект многофункционального жилого квартала. Авторы: 2Портала
***

Елена Каширина, Игорь Каширин, Москва
Проект многофункционального жилого квартала. Авторы: Елена Каширина, Игорь Каширин
Проект многофункционального жилого квартала. Авторы: Елена Каширина, Игорь Каширин

Игорь и Елена Каширины отмечены специальным упоминанием жюри за проект из «кубиков» в духе структурализма 1970-х. Путем чередования плотных и прозрачных блоков образуется мегаструктура из четырех прямоугольных в плане корпусов. Все вместе – один дом, который может наращиваться бесконечно. У корпусов – общий стилобат. Внутри каждого корпуса двор, а снаружи между корпусами, расположенными в шахматном порядке, уместились общественные площади. Архитектурное решение основано на модуле 7,5 х 7,5 м. Такая среда не кажется мне гуманной, но форма, основанная на одном кубике, впечатлила.
Проект многофункционального жилого квартала. Авторы: Елена Каширина, Игорь Каширин
Проект многофункционального жилого квартала. Авторы: Елена Каширина, Игорь Каширин
Проект многофункционального жилого квартала. Авторы: Елена Каширина, Игорь Каширин
Проект многофункционального жилого квартала. Авторы: Елена Каширина, Игорь Каширин
Проект многофункционального жилого квартала. Авторы: Елена Каширина, Игорь Каширин
Проект многофункционального жилого квартала. Авторы: Елена Каширина, Игорь Каширин
***

WALL, Москва
Проект многофункционального жилого квартала. Авторы: WALL
Проект многофункционального жилого квартала. Авторы: WALL

Специального упоминания удостоилось бюро WALL. Визионерский проект вертикальных городов-стержней, встроенных в девственный природный ландшафт или в исторический город, – не то чтобы нов, но выразителен. Город-стержень состоит из жилых капсул, которые, по словам авторов служат для человека «третьей кожей» (первая – собственная кожа, вторая – одежда). Глава WALL Рубен Аракелян ссылается на Хайдеггера и Бодрийара, хотя прямой связи с их идеями мне в проекте обнаружить не удалось. Капсулы летают и подсоединяются к вертикальному городу там, где хочет владелец. Когда люди влюбляются и женятся, они могут объединить две капсулы в одну – или не объединять, по желанию. Стены капсулы – медийные. Если надо пообщаться офф-лайн, можно спуститься в исторический город, а чтобы подышать, соответственно, – в ландшафт.
Проект многофункционального жилого квартала. Авторы: WALL
Проект многофункционального жилого квартала. Авторы: WALL
Проект многофункционального жилого квартала. Авторы: WALL
Проект многофункционального жилого квартала. Авторы: WALL
Проект многофункционального жилого квартала. Авторы: WALL
Проект многофункционального жилого квартала. Авторы: WALL
Проект многофункционального жилого квартала. Авторы: WALL
Проект многофункционального жилого квартала. Авторы: WALL
***

Никита Тимонин, Мария Ляшко, Петербург
Проект многофункционального жилого квартала. Авторы: Никита Тимонин, Мария Ляшко
Проект многофункционального жилого квартала. Авторы: Никита Тимонин, Мария Ляшко

Никита Тимонин и Мария Ляшко, архитекторы из Санкт-Петербурга, выбрали участок в историческом центре Кронштадта, ограниченный каналами и Финским заливом. Разделили большой квартал на несколько жилых кластеров с общественными первым этажами. Красный кирпич, малая этажность и скатные крыши создают амстердамский колорит, хотя авторы, ориентировались, прежде всего, на архитектуру Кронштадта. Несколько зданий выходят на воду, напоминая кронштадтские форты. На набережной предлагается сделать стоянку дебаркадеров – формата компактного жилья.
Проект многофункционального жилого квартала. Авторы: Никита Тимонин, Мария Ляшко
Проект многофункционального жилого квартала. Авторы: Никита Тимонин, Мария Ляшко
Проект многофункционального жилого квартала. Авторы: Никита Тимонин, Мария Ляшко
Проект многофункционального жилого квартала. Авторы: Никита Тимонин, Мария Ляшко
Проект многофункционального жилого квартала. Авторы: Никита Тимонин, Мария Ляшко
Проект многофункционального жилого квартала. Авторы: Никита Тимонин, Мария Ляшко
Проект многофункционального жилого квартала. Авторы: Никита Тимонин, Мария Ляшко
Проект многофункционального жилого квартала. Авторы: Никита Тимонин, Мария Ляшко
***

Б-Групп, Екатеринбург
Проект многофункционального жилого квартала. Авторы: Б-Групп
Проект многофункционального жилого квартала. Авторы: Б-Групп

Футуристический проект биосферных башен с микроклиматом, которые внутри себя содержат расположенные на разных ярусах ландшафты с малоэтажным жильем, кажется неосуществимым. Хотя в Сингапуре парки в стеклянных переходах между небоскребами – не редкость. Но все-таки хочется дышать нормальным воздухом, а не кондиционированным, и не случайно в этом проекте детский сад расположен под открытым небом.
Проект многофункционального жилого квартала. Авторы: Б-Групп
Проект многофункционального жилого квартала. Авторы: Б-Групп
Проект многофункционального жилого квартала. Авторы: Б-Групп
Проект многофункционального жилого квартала. Авторы: Б-Групп
Проект многофункционального жилого квартала. Авторы: Б-Групп
Проект многофункционального жилого квартала. Авторы: Б-Групп
***

MASS[SHTAB], Ростов-на-Дону
Проект многофункционального жилого квартала. Авторы: MASS[SHTAB]
Проект многофункционального жилого квартала. Авторы: MASS[SHTAB]

Авторы считают, что главная черта современного города – дружелюбие по отношению к людям и природе. И это не голословное утверждение. Проекту можно было бы дать подзаголовок «Розовый ар-деко». Модный розовый цвет, много арочных галерей, много зелени, обобщенный ордер, жизнерадостный юг с кипарисами. Линейные парки во втором уровне образуют пространства для пешеходов, а машины остаются внизу. Не все тут проработано, но некоторые идеи вполне жизнеспособны.
Проект многофункционального жилого квартала. Авторы: MASS[SHTAB]
Проект многофункционального жилого квартала. Авторы: MASS[SHTAB]
Проект многофункционального жилого квартала. Авторы: MASS[SHTAB]
Проект многофункционального жилого квартала. Авторы: MASS[SHTAB]
Проект многофункционального жилого квартала. Авторы: MASS[SHTAB]
Проект многофункционального жилого квартала. Авторы: MASS[SHTAB]
***

Наталья Саблина, Тимур Черкасов
Проект многофункционального жилого квартала. Авторы: Наталья Саблина, Тимур Черкасов
Проект многофункционального жилого квартала. Авторы: Наталья Саблина, Тимур Черкасов

Проект разработан на примере квартала в спальном районе Тушина, окруженного промзонами. Авторы предлагают свой вариант реновации: вместо сноса частично разобрать дома, а строительный мусор использовать для новых сооружений. Все дома в проекте соединены между собой множеством переходов, а зеленые эксплуатируемые кровли должны улучить экологию района; кроме того по убеждению авторов использование крыш делает квартал прообразом вертикального города. Заметим, что в противовес разговорам о долговечной и красиво стареющей архитектуре Наталья Саблина утверждает, что срок работы современных зданий – 20 лет, и большего от них ждать не следует.
Проект многофункционального жилого квартала. Авторы: Наталья Саблина, Тимур Черкасов
Проект многофункционального жилого квартала. Авторы: Наталья Саблина, Тимур Черкасов
Проект многофункционального жилого квартала. Авторы: Наталья Саблина, Тимур Черкасов
Проект многофункционального жилого квартала. Авторы: Наталья Саблина, Тимур Черкасов
Проект многофункционального жилого квартала. Авторы: Наталья Саблина, Тимур Черкасов
Проект многофункционального жилого квартала. Авторы: Наталья Саблина, Тимур Черкасов
***
 
Антон Севастьянов, Москва
Проект многофункционального жилого квартала. Автор: Антон Севастьянов
Проект многофункционального жилого квартала. Автор: Антон Севастьянов

Здесь уделено много внимания спортивной инфраструктуре и детским площадкам – кажется, им автор отвел все свободное место, квартал выглядит сошедшим со школьного плаката про ЗОЖ. Архитектура домов, с другой стороны, интенсивно разрабатывает тему разнообразия: две пятиэтажки с остро-скатными кровлями представляют собой компромисс между домами 1950-х и современными орнаментальными тенденциями, а разорванные пополам и превращенные из зигзагов в крючки дома-змеи – отрабатывают амплуа модернизма и постмодернизма. Тема наследия второй половины XX века закрыта, таким образом, для отдельно взятых 125 х 250 м. Впрочем, автор возводит разнообразие фасадов к трем типам ткани: вельвету, дениму и твиду. На подземном уровне Антон Севастьянов располагает рынок в самом современном его понимании, интерпретируя его как «театр еды».
Проект многофункционального жилого квартала. Автор: Антон Севастьянов
Проект многофункционального жилого квартала. Автор: Антон Севастьянов
Проект многофункционального жилого квартала. Автор: Антон Севастьянов
Проект многофункционального жилого квартала. Автор: Антон Севастьянов
Проект многофункционального жилого квартала. Автор: Антон Севастьянов
Проект многофункционального жилого квартала. Автор: Антон Севастьянов
***

Ярослав Усов, Москва
Проект многофункционального жилого квартала. Автор: Ярослав Усов
Проект многофункционального жилого квартала. Автор: Ярослав Усов

Квартал спроектирован для реального участка в Москве около станции метро Полежаевская, между улицами Зорге и Куусинена. Респектабельные сталинские дома и благоустроенные дворы переосмыслены в формах модернистской архитектуры. Фасадная сетка хранит воспоминания об ордерной системе окружающих домов, и, надо сказать, хорошие пропорции читаются, как в очищенной от ордера архитектуре Чипперфильда. Об историческом окружении напоминают клинкерный кирпич четырех оттенков и зеленые дворы с крупномерами.
Проект многофункционального жилого квартала. Автор: Ярослав Усов
Проект многофункционального жилого квартала. Автор: Ярослав Усов
Проект многофункционального жилого квартала. Автор: Ярослав Усов
Проект многофункционального жилого квартала. Автор: Ярослав Усов
Проект многофункционального жилого квартала. Автор: Ярослав Усов
Проект многофункционального жилого квартала. Автор: Ярослав Усов
***

Анастасия Яременко, Казань
Проект многофункционального жилого квартала. Автор: Анастасия Яременко
Проект многофункционального жилого квартала. Автор: Анастасия Яременко

Проект Анастасии, как и проект воронежского бюро, вызвал теплую реакцию во время осмотра экспозиции биеннале министром Менем и президентом Миннихановым. Наряду с человеческим масштабом застройки они отметили национальные татарские мотивы в виде цветных фасадов с двускатными крышами («фасад как библиотека исторических стилей и национальных традиций»), а также внимание к зеленой зоне. Около квартала разбит настоящий парк. Анастасия Яременко – член Архдесанта, организованного Наталией Фишман для создания общественных пространств. В частности, Анастасия – один из авторов Горкинско-Ометьевского леса, который был спасен от вырубки и превращен в модное место прогулок и спорта для жителей прилегающих спальных районов и всей Казани.
Проект многофункционального жилого квартала. Автор: Анастасия Яременко
Проект многофункционального жилого квартала. Автор: Анастасия Яременко
Проект многофункционального жилого квартала. Автор: Анастасия Яременко
Проект многофункционального жилого квартала. Автор: Анастасия Яременко
Проект многофункционального жилого квартала. Автор: Анастасия Яременко
Проект многофункционального жилого квартала. Автор: Анастасия Яременко
Проект многофункционального жилого квартала. Автор: Анастасия Яременко
Проект многофункционального жилого квартала. Автор: Анастасия Яременко
***
 
Сергей Чобан, 
куратор I молодежной биеннале
Сергей Чобан,
куратор I молодежной биеннале:
«Эта выставка – возможность понять, какие варианты кварталов у нас есть для будущих городов. Френк Ллойд Райт думал, что города станут линейными, и само понятие города исчезнет. Тем не менее сегодня мы любим жить в городах традиционного типа. Какие формы городской жизни привлекательны? Этот вопрос мы задали конкурсантам. Люди, достаточно свободные от инвестора, начали рисовать город, в котором они хотели бы жить сами. В сегодняшней картине конкурсов это – ни с чем не сравнимый результат. Архитекторы ответили в своих кварталах на вопрос, насколько плотным должно быть жилье (и это не очень большая плотность, в среднем 20 000 на га), какие типологии им близки, и на многие другие.

Как мы увидели, это не всегда квартал или точечная застройка, это может быть и строчная застройка. Проблема обычных конкурсов в том, что мы проектируем одни города, а ездим отдыхать и любоваться архитектурой в другие. В данном случае созданы варианты сомасштабной человеку среды. Тридцать пять лет – возраст решений, и все конкурсанты порадовали очень конкретными решениями, дали конкретные ответы на конкурсное задание. Каталог биеннале может стать настольной книгой для руководителей регионов».

Деловая программа биеннале
Программа состояла из разговоров о кварталах, карьере архитектора, урбанизме. Аскар Рамазанов презентовал научно-творческую резиденцию Чехов Api. В университете Иннополис прошел хакатон [«марафон хакеров», форум программистов, – прим. ред.], посвященный написанию программ, связанных с архитектурой.

Самыми интересными, на мой взгляд, оказались лекции члена жюри, датского архитектора Миккела Фроста и председателя жюри Сергея Чобана. Фрост заметил, что архитекторы часто говорят о зданиях, но самый лучший дом его жизни не отличался заметной архитектурой: Фрост снимал квартиру по соседству с друзьями и был счастлив в этом мини-коммьюнити. Из этих друзей образовалось его бюро CEBRA: сначала катались вместе на скейте, потом играли в рок-группе, а теперь вот архитектурой занялись. Он старается сохранять эти идеи счастья в проектах. Дом для детей, оставшихся без родителей, в Кертеминде – слепленные вместе несколько домиков со скатной крышей (как на детском рисунке, то есть совпадающие с ожиданиями), хуторок с башенками, который детям не скучно осваивать. «Мы облицевали его привычными для Дании материалами: деревом и кирпичом. В жизни и так куча стрессов, а тут еще новые материалы, – пусть хотя бы что-то будет приятным и знакомым», – сказал Фрост. Остальные проекты CEBRA также были насыщены изобретениями вне зависимости от бюджета и социального статуса заказчика. Миккел Фрост запомнился жизнелюбием. И, кстати, когда я задала вопрос всем членам жюри, есть ли среди представленных на биеннале кварталов такой, в котором они, члены жюри, согласились бы жить, Миккел Фрост единственный радостно закивал. Учитывая, что подавляющее большинство успешных архитекторов живет в историческом городе, проекты биеннале (некоторые), стало быть, достигают ее уровня. Мне кажется, это очень высокая оценка.

Сергей Чобан прочел лекцию по своей совместной с профессором Владимиром Седовым книге «30:70. Архитектура как баланс сил». Зал был полон. Очень важно, что молодые архитекторы узнали о содержании книги. Нередко ведь бывает так, что архитекторы не читают книг, избегают рефлексии и сомнений, чтобы не повредить манипуру, волевую чакру, которая служит оружием в борьбе с заказчиком. А в «30:70» как раз подняты важные проблемы современной архитектуры. Которая выразительна, если речь идет о 30 процентах иконических зданий и становится безликой, если речь о типовой застройке, поскольку не обладает достаточной деталировкой и быстро и некрасиво стареет. Сергей Чобан призвал отнестись со вниманием к фасадам и создавать вечные оболочки, способные пережить любую функцию, которые характерны даже для фоновой застройки исторических городов.
***
 
Конкурсное задание

Выполняя справедливые просьбы читателей, публикуем конкурсное задание. В несколько сокращенным виде его можно найти и на сайте биеннале | вернуться к проектам победителей

«Разработать проект городского квартала смешанной застройки, иллюстрирующий представления конкурсанта о том, каким должен быть комфортный и визуально привлекательный квартал современного города – квартал, в котором захотел бы жить сам конкурсант на протяжении, как минимум, нескольких лет.

Квартал должен отвечать следующим критериям: 
  • ограничен 4 улицами;
  • функциональное наполнение: смешанная застройка с преобладанием жилья (не менее 80%); остальные функции – на усмотрение участников, исходя из их представлении о потребностях современного городского жителя;
  • рельеф: плоский;
  • габариты участка: на выбор участника – от 200х125 м (min) до 250x250 м (max);
  • плотность застройки: не менее 12 000 – не более 30 000 кв. м на 1 га, на выбор участников, исходя из их представлений о комфорте жилой среды;
  • этажность: на усмотрение участника, должна отвечать выше названным параметрам плотности и задаче создания комфортной среды многофункционального квартала;
  • наличие и качество общественных пространств – на усмотрение участников, исходя из их представлений о комфорте жилой среды».