Размещено на портале Архи.ру (www.archi.ru)

03.10.2017

Новые горизонты «устойчивой архитектуры»

Юлия Тарабарина
Мастерская:
Holcim
ЦЕМЕНТУМ

Премия LafargeHolcim Awards ищет новые, более целостные и сложные, критерии sustainability. Среди лучших отмеченных решений – способы интегрировать промышленность в городское пространство, снизив затраты, но сохранив индустрию в городе, и дешевое жилье над парковками в Лондоне. Одну из премий для молодых архитекторов получила российская студентка.

Победители европейской части премии LafargeHolcim Awards 2017. Фотография: LafargeHolcim Awards
Победители европейской части премии LafargeHolcim Awards 2017. Фотография: LafargeHolcim Awards

В прошедший четверг в Марселе наградили победителей европейской сессии премии LafargeHolcim Awards: 11 лауреатов разделили 330 000 USD из состава внушительного призового фонда премии, в целом составляющего 2 млн.

Премия учреждена в 2003 и не без понятной гордости именует себя самой значимой в области устойчивой архитектуры. Идеал понят широко и комплексно: включая инновационность, ценности социальные и экологические, экономическую целесообразность и экономию ресурсов, также как и эстетику, которая поставлена на последнее место в списке идеалов, но тем не менее учтена, – в целом фонд считает своей задачей развивать креативность «устойчивых» конструкций. Устроители также обращают внимание на перспективы реализации, дистанцируясь от необоснованных фантазий и «воздушных замков»: где-то половина награжденных проектов либо уже построена, либо вскоре будет. Так что в 2017 учреждена новая номинация «Реализация – лучшее признание», ее присуждают победителям прежних лет за реализацию объекта; впрочем, эта награда не предполагает денежного эквивалента.

В 2017 году на премию было подано в общей сложности 5085 заявок из 121 страны, 70% из них прошли отбор – по словам жюри это высокий показатель. В европейской премии награды получили 11 проектов из 792 рассмотренных жюри. Половина отобранных работ принадлежала молодым архитекторам и студентам, что эксперты также особо отметили как признак ответственности нового поколения. Одной из молодых победительниц стала студентка из Казани Анна Андронова, подробнее о ее проекте читайте ниже, также как и в интервью.
Анна Андронова, лауреат 3 премии в части «Новое поколение». LafargeHolcim Awards 2017. Фотография © Юлия Тарабарина, Архи.ру
Анна Андронова, лауреат 3 премии в части «Новое поколение». LafargeHolcim Awards 2017. Фотография © Юлия Тарабарина, Архи.ру
Вручение «золота пополам» LafargeHolcim Awards 2017. Фотография © Юлия Тарабарина, Архи.ру
Вручение «золота пополам» LafargeHolcim Awards 2017. Фотография © Юлия Тарабарина, Архи.ру

Председатель европейского жюри премии Гарри Гуггер принял решение отменить в этом году серебряную награду и присудить две золотых, разделив награду ex aequo – пополам между двумя победителями, по 75 000 USD. Оба проекта предназначены для динамично развивающегося района канала Виллебрук в Брюсселе. Для него недавно был разработан новый мастер-план, предполагающий превращение из индустриального в городской, достойный столицы ЕС, но – что довольно неожиданно, в сохранением функционального разнообразия. То есть следствием обновления района не будет его полное освобождение от промзон с их выводом за границы агломерации; мастер-план сохраняет часть индустриальных функций как ради мест приложения неквалифицированной рабочей силы, так и ради заключенного в них потенциала развития Брюсселя как динамичного преуспевающего города.
Кристиан Борре, главный архитектор Брюсселя. Фотография © Юлия Тарабарина, Архи.ру
Кристиан Борре, главный архитектор Брюсселя. Фотография © Юлия Тарабарина, Архи.ру

Золото/1
Логистический хаб компании по сбору мусора / адаптируемая структура
Tetra architecten / заказчик NET Brussel / государственный заказ / старт март 2018 / Бельгия, Брюссель
Адаптируемая инфраструктура для компании по сбору отходов в Брюсселе © TETRA architecten
Адаптируемая инфраструктура для компании по сбору отходов в Брюсселе © TETRA architecten

Здание расположено в северной части Брюсселя, между северным же краем парка Мёдон и каналом. Вдоль канала расположены исключительно промзоны, парк отделяет их от жилой застройки, очаровательно-бельгийской, трехэтажной и достаточно зеленой. На противоположном берегу канала – огромная сортировочная станция железной дороги, из множества веток. Новый мусорный хаб расположится среди промышленных соседей и привнесет в контекст еще одну индустриальную функцию, как-то сбор и сортировка отходов.
Адаптируемая инфраструктура для компании по сбору отходов в Брюсселе © TETRA architecten
Адаптируемая инфраструктура для компании по сбору отходов в Брюсселе © TETRA architecten
Адаптируемая инфраструктура для компании по сбору отходов в Брюсселе © TETRA architecten
Адаптируемая инфраструктура для компании по сбору отходов в Брюсселе © TETRA architecten

Однако в здании предусмотрен открытый для горожан проход от парка к набережной канала. Причем поскольку здание встроено в рельеф берега, один проход стелется по земле двумя лестницами, а другой в будущем позволит пройти по крыше до консоли с видом на воду. Кроме того здание представляет собой подобие крупного патио-перистиля, обширный внутренний двор которого, засаженный деревьями – тоже всего рода мини-парк, призван, с одной стороны, продолжить собой зелень Мёдона, образовав не просто проход, а «зеленый коридор». С другой стороны, двор должен стать местом отдыха для сотрудников компании, а деревья будут поглощать шум и выбросы грузовых машин, и вырабатывать кислород.
Адаптируемая инфраструктура для компании по сбору отходов в Брюсселе © TETRA architecten
Адаптируемая инфраструктура для компании по сбору отходов в Брюсселе © TETRA architecten
Адаптируемая инфраструктура для компании по сбору отходов в Брюсселе © TETRA architecten
Адаптируемая инфраструктура для компании по сбору отходов в Брюсселе © TETRA architecten
Адаптируемая инфраструктура для компании по сбору отходов в Брюсселе © TETRA architecten
Адаптируемая инфраструктура для компании по сбору отходов в Брюсселе © TETRA architecten

В здании также предусмотрено множество экологичных решений, в том числе пассивных источников энергии: солнечные батареи обеспечивают, в частности, подогрев пола, запланировано использование дождевой и «серой» воды и несколько циклов охлаждения и обогрева с ее помощью. Сейчас заложено несколько зарядных станций для электрокаров, а в будущем планируется, что и двигатели грузовых мусоровозов будут электрическими.
Адаптируемая инфраструктура для компании по сбору отходов в Брюсселе © TETRA architecten
Адаптируемая инфраструктура для компании по сбору отходов в Брюсселе © TETRA architecten

Но главная особенность проекта состоит в том, что он трансформируемый. Архитекторы просчитали варианты возможностей постепенного превращения здания с целым рядом переходных стадий от многофункционального индустриального к многофункциональному же жилому:
Адаптируемая инфраструктура для компании по сбору отходов в Брюсселе © TETRA architecten
Адаптируемая инфраструктура для компании по сбору отходов в Брюсселе © TETRA architecten
Адаптируемая инфраструктура для компании по сбору отходов в Брюсселе © TETRA architecten
Адаптируемая инфраструктура для компании по сбору отходов в Брюсселе © TETRA architecten

Пафос проекта, таким образом, двоякий: с одной стороны он, вместо того, чтобы убирать индустриальную составляющую из обновляемой части города, добавляет ему новую, утверждая важность разнообразия типологии и ценность близкого расположения такой, в частности, функции, как сбор мусора, для ее более эффективной работы на благо горожан. С другой стороны, структура здания проста и потенциально универсальна: «хороший город адаптивен» – утверждают авторы, и в него, как в известный горшок Винни-Пуха, можно, строго говоря, положить что угодно; очевидно, что любая смена функции потребует некоторой реконструкции, но сносить каркас не понадобится: пространство внутри безопорное благодаря ребристой конструкции кровли, так что перепланировка не должна составить проблем. Двор с деревьями подойдет как для брутальной функции переработки мусора, так и – возможно, в будущем – для жилого дома. 
***
 
Золото/2
Mix-city: интеграция завода по производству бетона в городскую среду
BC architects & studies / заказчик Интер-бетон / частный заказ / старт июнь 2018 / Бельгия, Брюссель
Интеграция завода по производству бетона в городскую среду, Брюссель © BC architects & studies
Интеграция завода по производству бетона в городскую среду, Брюссель © BC architects & studies

В этом проекте речь не о создании новой промышленной функции, а об интеграции существующего бетоносмесительного завода в обновляемый город. Завод расположен намного ближе к историческому центру Брюсселя, чем мусорный хаб Tetra architecten – существующее здание стоит в начале расширения канала – Бассейна Вергот. Вокруг – самая высокая жилая башня города Up-Site, торгово-выставочный центр Tour and Taxis и одноименный большой парк, а также здания Бельгийского правительства. Сохранить бетонный завод при таком соседстве – шаг достаточно смелый, и авторы объясняют его как необходимостью наличия в городе низкоквалифицированных рабочих мест, так и экономическими причинами: бетон будет быстрее доезжать до строек, также как и бетон с площадок для вторичной переработки будет быстрее попадать на завод – рабочий цикл будет короче, чем если вынести завод за пределы города. Авторский девиз: «В хорошем городе есть промышленность».
Интеграция завода по производству бетона в городскую среду, Брюссель © BC architects & studies
Интеграция завода по производству бетона в городскую среду, Брюссель © BC architects & studies

Из переработанного бетона, а его грузовики привозят на завод по 20 м3 в день, архитекторы BC предлагают выстроить стену вдоль канала (еще неизвестно, произведут или панели из вторично переработанного бетона на месте или на другом заводе). На стену ляжет гигантская протяженная консоль, в которой планируется разместить как офисы заводской администрации, так и городские общественные пространства. Первый ярус пространства под консолью станет открытым для горожан общественным пространством. Консоль, как и стена, будет защищать город от шума и пыли завода; сама же заводская башня станет монументальным акцентом, придаст пикантное своеобразие динамично развивающемуся району. Таким образом проект уплотняет площадку завода общественными функциями, включает завод в город и даже эстетизирует – белой балкой консоли. Жюри оценило в проекте смелость «буквального совмещения казалось бы несовместимых вещей».
Интеграция завода по производству бетона в городскую среду, Брюссель © BC architects & studies
Интеграция завода по производству бетона в городскую среду, Брюссель © BC architects & studies
Интеграция завода по производству бетона в городскую среду, Брюссель © 
BC architects & studies
Интеграция завода по производству бетона в городскую среду, Брюссель © BC architects & studies
Интеграция завода по производству бетона в городскую среду, Брюссель © 
BC architects & studies
Интеграция завода по производству бетона в городскую среду, Брюссель © BC architects & studies
Интеграция завода по производству бетона в городскую среду, Брюссель © 
BC architects & studies
Интеграция завода по производству бетона в городскую среду, Брюссель © BC architects & studies
***
 
Бронза
«Права на воздушное пространство»
Жилые модули над парковочными местами в Лондоне
ZEDfactory / частная инвестиция / старт август 2017
Жилые модули над парковочными местами в Лондоне © ZEDfactory
Жилые модули над парковочными местами в Лондоне © ZEDfactory

Проект служит ответом на жилищный кризис в Лондоне, где, как известно, жилье очень дорогое. Модульные панельные дома под названием ZEDpods – на ножках над городскими парковками – катастрофически малы внутри, но способны обеспечить недорогим жильем молодежь и работников городских служб, к примеру, пожарных, нянь, полиции, которым не придется подолгу ездить на работу с окраин, что также снизит нагрузку на транспортную инфраструктуру. Дома над парковками не занимают никакой площадки и не входят ни в какую программу девелопмента, «вместо покупки участка они арендуют права на воздушное пространство», – комментирует экономное решение жюри конкурса. Строить дома предлагается с помощью электроподъемников, на патентованным ростверке, так что давление дома на площадку, как утверждают авторы, будет не более веса одной машины.
Жилые модули над парковочными местами в Лондоне © ZEDfactory
Жилые модули над парковочными местами в Лондоне © ZEDfactory
Авторы проекта Жилых модулей над парковочными местами в Лондоне/ ZEDfactory. Фотография © Юлия Тарабарина, Архи.ру
Авторы проекта Жилых модулей над парковочными местами в Лондоне/ ZEDfactory. Фотография © Юлия Тарабарина, Архи.ру
Жилые модули над парковочными местами в Лондоне © ZEDfactory
Жилые модули над парковочными местами в Лондоне © ZEDfactory
Жилые модули над парковочными местами в Лондоне © ZEDfactory
Жилые модули над парковочными местами в Лондоне © ZEDfactory
Жилые модули над парковочными местами в Лондоне © ZEDfactory
Жилые модули над парковочными местами в Лондоне © ZEDfactory

Дома оснащены многими энергоэффективными технологиями: дополнительной тепло- гидро- и пароизоляцией, тройными стеклопакетами. Солнечные батареи, которые накапливают энергию в литиевые аккумуляторы; дома полностью рассчитаны на возобновляемую энергию, и для освещения, и для отопления. Каркас домов оцинкован горячим способом и заполнен панелями клееной древесины с внешней теплоизоляцией. Фасады прочны и огнеупорны. Дома рассчитаны на 20 лет бесперебойной эксплуатации. Авторы подсчитали, что над городскими парковками Лондона можно будет разместить до 200 000 таких домов.

Впрочем, похвалив проект за социальную и эко-ответственность, также как и за вклад в дело развития доступного жилья, часть членов жюри усомнилась в том, что эстетические свойства проекта были осознанно сформулированы в проекте, а не стали попросту следствием экономии материалов.
Жилые модули над парковочными местами в Лондоне © ZEDfactory
Жилые модули над парковочными местами в Лондоне © ZEDfactory
Жилые модули над парковочными местами в Лондоне © ZEDfactory
Жилые модули над парковочными местами в Лондоне © ZEDfactory
Жилые модули над парковочными местами в Лондоне © ZEDfactory
Жилые модули над парковочными местами в Лондоне © ZEDfactory
***

Поощрительные премии
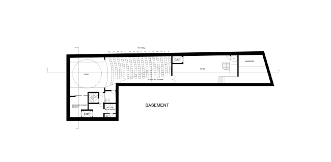
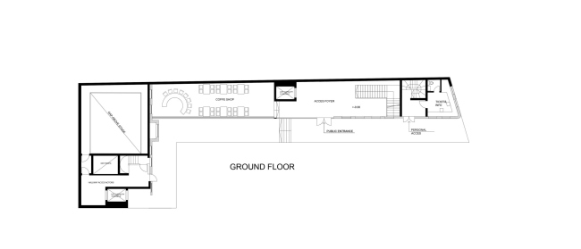
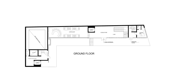
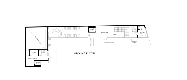
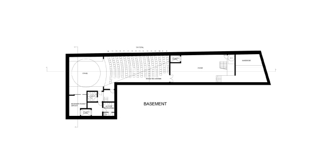
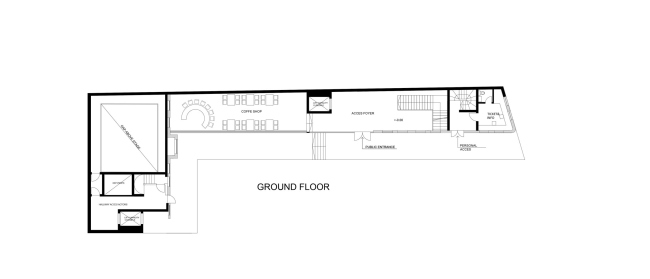
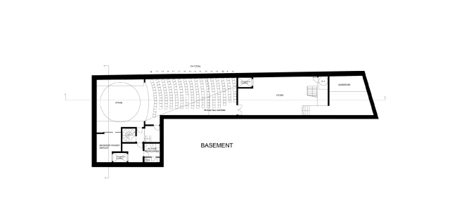
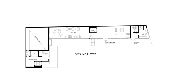
Первый независимый театр в Бухаресте
Architect Office Codrin Tritescu / Asociatia Culturala Grivita 53 / Бухарест
Первый независимый театр в Бухаресте © 
Asociatia Culturala Grivita 53, Architect Office Codrin Tritescu
Первый независимый театр в Бухаресте © Asociatia Culturala Grivita 53, Architect Office Codrin Tritescu

Здание первого независимого театра в Бухаресте, появившегося после 1946 года, примет труппу, работающую с 1999 года без собственной сцены. Проект финансируют спонсоры.

Собственно сцена, гримерные и репетиционные залы разместятся под землей, на -1 этаже, что позволит сэкономить энергию для их обогрева. Фасады существующего здания включены в состав новой постройки; их надстроят одним этажом, деликатно вписав обновленное здание в контекст старейшего района Бухареста, который перед Второй мировой войной называли местным Монмартром.
Первый независимый театр в Бухаресте © 
Asociatia Culturala Grivita 53, Architect Office Codrin Tritescu
Первый независимый театр в Бухаресте © Asociatia Culturala Grivita 53, Architect Office Codrin Tritescu
Первый независимый театр в Бухаресте © 
Asociatia Culturala Grivita 53, Architect Office Codrin Tritescu
Первый независимый театр в Бухаресте © Asociatia Culturala Grivita 53, Architect Office Codrin Tritescu
Первый независимый театр в Бухаресте © 
Asociatia Culturala Grivita 53, Architect Office Codrin Tritescu
Первый независимый театр в Бухаресте © Asociatia Culturala Grivita 53, Architect Office Codrin Tritescu
***
 
Эко-концепция музеефикации археологических раскопок
AGi architects / Испания, Понтеведра
Концепция экологичной археологии, Понтеведра, Испания © AGi architects
Концепция экологичной археологии, Понтеведра, Испания © AGi architects

Авторы предлагают переосмыслить руины нескольких галло-римских городов в Понтеведра в ландшафтные парки, ставя по главу угла не столько археологические артефакты, сколько целостность их восприятия посетителями. Авторы, в частности, предлагают озеленить места археологических раскопок растениями, характерными для римского периода.

Проект выбран местной администрацией в результате открытого конкурса. Его цели – артикулировать научные исследования античной Галисии, остановить отток населения, стимулировать внесезонный туризм.
Концепция экологичной археологии, Понтеведра, Испания © AGi architects
Концепция экологичной археологии, Понтеведра, Испания © AGi architects
Концепция экологичной археологии, Понтеведра, Испания © AGi architects
Концепция экологичной археологии, Понтеведра, Испания © AGi architects
***
 
Центр археологических исследований римского города Августа-Раурика
Karamuk Kuo Architects / Швейцария
Центр раскопок в городе-музее Августа-Раурика, Швейцария © 
Karamuk Kuo Architects
Центр раскопок в городе-музее Августа-Раурика, Швейцария © Karamuk Kuo Architects

Археологический центр занят исследованиями крупнейшего в Швейцарии римского поселения, но, увы, до последнего времени он страдал из-за недостатка финансирования. Новое здание объединяет в себе: экспозиционные пространства, кабинеты ученых, реставрационные лаборатории и хранение экспонатов, прежде распределенные по отдельным зданиям. Легкая стальная конструкция над римскими руинами рассчитана на рост и трансформации – именно адаптивность конструктивной основы больше всего впечатлила жюри.
Центр раскопок в городе-музее Августа-Раурика, Швейцария © 
Karamuk Kuo Architects
Центр раскопок в городе-музее Августа-Раурика, Швейцария © Karamuk Kuo Architects
Центр раскопок в городе-музее Августа-Раурика, Швейцария © 
Karamuk Kuo Architects
Центр раскопок в городе-музее Августа-Раурика, Швейцария © Karamuk Kuo Architects
***
 
Спортивно-досуговый центр
NP2F architectes / Бордо
Спортивно-досуговый центр в Бордо © 
NP2F architectes
Спортивно-досуговый центр в Бордо © NP2F architectes

Радикально-минималистичное здание, объединяет под одной крышей множество видов спорта и обещает стать не только спортивным центром, но и катализатором социальной жизни района. Фасадными панелями закрыты только помещение ресторана и магазинов, в остальном простая бетонная конструкция закрыта лишь металлической сеткой, которая обеспечивает защиту от дождя, ветра и солнца, в то же время открывая возможности для естественной вентиляции и снижая потребности в принудительном охлаждении и обогреве.
Спортивно-досуговый центр в Бордо © 
NP2F architectes
Спортивно-досуговый центр в Бордо © NP2F architectes
***
 
 
«Новое поколение»

первое место
Преобразование фабрики в жилой район
Malgorzata Mader / Lodz University of Technology / Польша
Преобразование бывшей фабрики в жилой район, Польша © 
Malgorzata Mader – Lodz University of Technology
Преобразование бывшей фабрики в жилой район, Польша © Malgorzata Mader – Lodz University of Technology

Заброшенное промышленное здание 1960-х преобразуется в жилой район: 35 индивидуальных домов встраиваются с помощью нового деревянного каркаса в состав старого заводского металлического каркаса. Дома, чья конструктивная основа подобна фахверку и состоит из деревянных балок и изоляции между ними, располагаются внутри контура старых бетонных стен. Пространство внутри фабрики становится «промежуточным»: оно защищено от ветра и отчасти от холода (что позволяет экономить энергию на обогрев), но открыто солнцу – поэтому во дворах можно будет разводить сады и огороды. Большие зенитные окна в потолках домов обеспечивают обилие естественного света. Проект разрабатывался совместно с будущими жителями, все дома – индивидуальны и рассчитаны на будущие изменения.
Преобразование бывшей фабрики в жилой район, Польша © 
Malgorzata Mader – Lodz University of Technology
Преобразование бывшей фабрики в жилой район, Польша © Malgorzata Mader – Lodz University of Technology
***
 
второе место
Реконструкция руин монастыря в реабилитационный центр
Jakub Grabowski / Польша
Реконструкция монастыря в реабилитационный центр, Польша © 
Jakub Grabowski
Реконструкция монастыря в реабилитационный центр, Польша © Jakub Grabowski

В здании будут объединены хоспис, клиника обезболивания и центр реабилитации наркозависимости; все они расположатся в руинах заброшенного монастыря. Архитекторы предложили укрепить каменные стены конструкцией из клееной древесины; внутренние помещения также будут деревянными. Пассивная энергия обеспечивается за счет использования геотермальных скважин, тепловых насосов и солнечных батарей.
Реконструкция монастыря в реабилитационный центр, Польша © 
Jakub Grabowski
Реконструкция монастыря в реабилитационный центр, Польша © Jakub Grabowski
Реконструкция монастыря в реабилитационный центр, Польша © 
Jakub Grabowski
Реконструкция монастыря в реабилитационный центр, Польша © Jakub Grabowski
***
 
третье место
«Жидкая эра» / концепция цифрового города
Анна Андронова / Казань / Казанский государственный архитектурно-строительный университет
Концепция цифрового города, Казань © 
Анна Андронова, Казанский государственный архитектурно-строительный университет
Концепция цифрового города, Казань © Анна Андронова, Казанский государственный архитектурно-строительный университет

Жюри оценило заложенный в работе визионерский подход, также как и попытку осмыслить вероятные перспективы симбиоза архитектуры с природой. «Описание проекта начинается с провокационного вопроса, – замечает жюри, – почему архитекторы так уверены в том, что в будущем устойчивость будет связана кирпичными постройками?» В будущем, отвечает Анна, «устойчивость» будет поддержана саморегуляцией архитектуры в симбиозе с природой. Все это станет возможным благодаря «цифровым мильтиматериалам, нанокомпозитам, природной растительности и голографических лазеров», – опять же цитирую резюме экспертов жюри. Хотя проект возможно нуждается в некоторой аккуратной доработке, – продолжают эксперты, – жюри высоко оценило заложенный в нем подход к архитектурному проектированию как к исследовательской платформе для изучения еще не познанных сфер, также как и потенциально новый подход к строительным материалам, комбинации элементов природных с искусственными элементами, произведенными цифровым способом.
Концепция цифрового города, Казань © 
Анна Андронова, Казанский государственный архитектурно-строительный университет
Концепция цифрового города, Казань © Анна Андронова, Казанский государственный архитектурно-строительный университет
Часть работы Анны Андроновой «Цифровой Ренессанс», представленной на LafargeHolcim Award 2017 под именем «Жидкая эра»
Часть работы Анны Андроновой «Цифровой Ренессанс», представленной на LafargeHolcim Award 2017 под именем «Жидкая эра»
Городской календарь. Часть работы Анны Андроновой «Цифровой Ренессанс», представленной на LafargeHolcim Award 2017 под именем «Жидкая эра»
Городской календарь. Часть работы Анны Андроновой «Цифровой Ренессанс», представленной на LafargeHolcim Award 2017 под именем «Жидкая эра»
Структурные элементы города. Часть работы Анны Андроновой «Цифровой Ренессанс», представленной на LafargeHolcim Award 2017 под именем «Жидкая эра»
Структурные элементы города. Часть работы Анны Андроновой «Цифровой Ренессанс», представленной на LafargeHolcim Award 2017 под именем «Жидкая эра»

Как видно из интервью, проект Анны основан на дипломной работе КГАСУ, защищенной в этом году. Работа представляет собой методику изучения возможного влияния цифровых технологий на архитектуру будущего, то есть с моей точки зрения представляет собой масштабную футуристическую фантазию, чем, конечно, ощутимо выпадает из тренда реализуемости, заявленного LafargeHolcim Awards. Между тем степень отрыва от реальной действительности, и в то же время – насыщенность фактами развития инновационных технологий, в проекте столь велика, что несложно согласиться с мнением жюри: этот проект украшает ряд премированных проектов как своего рода жемчужина, имеющая отношение к очень дальней перспективе.

Несложно заметить, что работа легко вписывается в ряд визионерских проектов «бумажной архитектуры» как авангарда, так и футуристических фантазий 1960-х – 1970-х, что, возможно, составляет значительную часть ее обаяния. Различные части проекта уже получили признание на нескольких международных конкурсах.

Комментарий Анны Андроновой:
«Провозглашаемая в работе эра «Цифрового Ренессанса» исследует, как с помощью цифровых технологий возможно возродить утерянную гармонию между природой и культурой, вернуть чувства общности и взаимопомощи в городе. С помощью моделей пространственной организации города (ландшафты парка, площади, рынка, школы, жилых ячеек, плантаций и т. д.) переизобретается пространство, а в типологической матрице структурных элементов города (точка, линия, поверхность, объем) в функциональное программирование города внедряется временной аспект, формируя гибридный городской ландшафт. В заключение концептуальные тезисы апробируются методом реконструкции трех локальных участков в городе Казани».
Концепция цифрового города, Казань © 
Анна Андронова, Казанский государственный архитектурно-строительный университет
Концепция цифрового города, Казань © Анна Андронова, Казанский государственный архитектурно-строительный университет
***
четвертое место
Пожарная цистерна и лесное укрытие
Frédéric Bouvier / Франция
Пожарная цистерна и лесное укрытие, Франция © 
Frédéric Bouvier
Пожарная цистерна и лесное укрытие, Франция © Frédéric Bouvier

Водная цистерна предназначена для сбора дождевой воды и тушения пожаров в регионе Коллобрьер. Над цистерной размещен приют для пеших туристов; конструкция располагает к тихому созерцанию, кроме того, автор посвятил ее памяти добровольцев воевавших в Алжирской войне на стороне Франции и затем вынужденных покинуть свою страну. Они работали во Франции пожарными. Жюри оценило изящество, с которым архитектору удалось уместить целый комплекс разнообразных идей в лаконичном артефакте.
Пожарная цистерна и лесное укрытие, Франция © 
Frédéric Bouvier
Пожарная цистерна и лесное укрытие, Франция © Frédéric Bouvier
***
Региональные награды во всех пяти частях света присудили в общей сложности около 200 проектам. Все они теперь будут претендовать на три главных – международных – приза. Заседание главного жюри, под руководством Алехандро Аравены, состоится весной 2018 года.