Размещено на портале Архи.ру (www.archi.ru)

30.08.2017

Римский Рим

Лара Копылова
Объект:
UP-квартал «Римский» (I очередь)
Адрес:
Россия, Московская обл.,, Развилка. Римский пр., 5
Мастерская:
Мастерская Михаила Филиппова

UP-квартал «Римский» архитектора Михаила Филиппова компания ФСК «Лидер» строит на пересечении Каширского шоссе и МКАД. Это место никогда не было дорогим и респектабельным, но появление уникального проекта с авторской архитектурой может многое изменить.

UP-квартал «Римский» (I очередь)
UP-квартал «Римский» (I очередь)
© Мастерская Михаила Филиппова
 

По масштабу «Римский», скорее, не квартал, а традиционный европейский городок из нескольких кварталов. В плане город напоминает букву L. В одной части, которая сейчас строится, находится дом из семнадцати секций с полукруглым двором, а через футбольное поле от него расположена школа – треугольник с пропилеями. Первая очередь будет сдана в IVквартале 2018, а весь проект из семи очередей – в 2023 году. «Римский» будет представлять собой ансамбль из пяти площадей на одной оси, соединенных улицами. На Центральной круглой площади будут кафе, магазины, а на Новый год – елка, на площади Гармонии – спортивная инфраструктура, на площади Красоты – салоны и спа, на площади Искусств – места для творческих занятий взрослых и детей, на Ярмарочной площади – модный сегодня продуктовый рынок. Этажность варьируется от 3 до 12 этажей. В комплексе запланированы несколько детских садов, также жители смогут пользоваться богатой инфраструктурой соседних поселений. Первые этажи – общественные. Квартиры будут самых разных типов: от однокомнатной до пентхауса с террасой, двухуровневые, антресольные, с окном в ванной и так далее. Архитектура – классическая, филипповская.
UP-квартал «Римский» (I очередь)
UP-квартал «Римский» (I очередь)
© Мастерская Михаила Филиппова
UP-квартал «Римский» (I очередь)
UP-квартал «Римский» (I очередь)
© Мастерская Михаила Филиппова

 
Контекст 1: массовое строительство. Начало прекрасной эпохи
Прежде чем рассказать о многочисленных изобретениях Михаила Филиппова, стоит изумиться тому, что мы живем в эпоху, когда массовое жилье выглядит таким образом. Я бы на месте социологов и урбанистов занялась исследованием феномена. Уход панели – явный знак конца индустриальной эпохи, выражением которой она была, а для креативных новых экономик больше подходит более разнообразная и гуманная архитектура, темой которой становится город с большой буквы. Казалось, что у панели нет альтернативы, но за недавние семь лет некоторым архитекторам и просвещенным девелоперам удалось сформулировать концепцию жилья достаточно доступного, но наделенного гуманной образностью традиционной архитектуры – в России это произошло едва ли не впервые со времен памятного постановления Никиты Хрущева об излишествах 1955 года. В этот контекст попадают города Максима Атаянца, построенные вокруг Москвы, а также город Валь-де-Марн под Парижем Пьеркарло Бонтемпи (но масштаб там меньше). В этом же русле существуют традиционные города Нового урбанизма вроде Паундбери в Великобритании или Сисайда и Селебрейшн в США, но они меньше по высоте и ближе по типу к деревне.
 
Контекст 2: другие кварталы и города Михаила Филиппова
«Римский» – очередной классический город Филиппова. Начиная с манифеста 1984 года, когда Филиппов представил серию акварелей, в которых панельный район постепенно заменялся традиционной архитектурой, и выиграл с ними японский конкурс «Стиль 2001 года», архитектор последовательно реализовывал эту идею. В 2000-х появились «Римский дом» в Казачьем, «Итальянский квартал» на Долгоруковской и ЖК «Маршал» на Октябрьском поле, а к Олимпиаде 2014 года был построен Горки-город в Сочи. И теперь еще один римский город появится около Москвы.

Филиппов всегда мыслил свою архитектуру наследницей неоклассики Серебряного века, минуя сталинский советский классицизм, который считает компромиссным. Типология многих его произведений идет от дома-квартала Серебряного века вроде Дома Бенуа на Каменноостровском проспекте. У неоклассиков Серебряного века парадным фасадом был уличный, а двор украшали колоннадой только в виде исключения, остальные дворы были утилитарными. У Филиппова все дворы стали парадными, с разработанными фасадами и системой колоннад и аркад. Так сделано в «Итальянском квартале» и в «Маршале». Тот же принцип в UP-квартале «Римском», только дом-квартал разросся до размеров дома-города. Но главное в «Римском» – не типология.
UP-квартал «Римский» (I очередь)
UP-квартал «Римский» (I очередь)
© Мастерская Михаила Филиппова
UP-квартал «Римский» (I очередь)
UP-квартал «Римский» (I очередь)
© Мастерская Михаила Филиппова
UP-квартал «Римский» (I очередь)
UP-квартал «Римский» (I очередь)
© Мастерская Михаила Филиппова

 
Контекст 3: исторический город
Феномен исторического города, который, если судить по туристическим потокам, нравится большинству людей, не так легко описать и еще труднее структурно осмыслить и воспроизвести, не копируя. Филиппов всю жизнь этим занимается, изучая город через рисование акварелей. Метод, примененный, в частности, в Горки-Городе, а теперь в UP-квартале «Римском», заключается в следующем. Красота исторических городов, например, Парижа, по мнению Филиппова, объясняется наложением двух систем координат: радиально-лучевой и прямоугольной Гипподамовой сеток. От этого наложения в местах пересечения образуются живописные перекрестки с видовыми точками, которые делают нашу прогулку по городу полной визуальных наслаждений. Филиппов воспроизвел это наложение в Горки-Городе в Сочи, и там количество видов потрясающее. Тот же принцип применен в «Римском». Улицы, расходящиеся лучами от круглой площади, пересекаются с прямоугольной системой координат, а те – с еще одной сеткой и так далее.

Но недостаточно сочинить живописный план, нужны фасады, достаточно артикулированные, чтобы их приятно было рассматривать – и в «Римском» дома членятся на секции с фасадами длиной 20-30 м, как в историческом городе, а рисунок фасадов у Филиппова всегда безошибочный; нужны неширокие улицы и не очень высокие дома – и в «Римском» дома разной высоты создают живописный пейзаж из скатных крыш; нужны ведуты, которые открываются в переулках, прерывающих линию фасадов, – и в «Римском» количество видов, просящихся на мольберт, огромное. Как сказал сам Филиппов, надо форму симфонии еще наполнить мелодиями (см. ПР72). С «мелодическим даром» у него все хорошо. Например, в Горки-Городе исключительно хорош рисунок фасадов – до последнего оконного переплета, и довольно изысканные цвета штукатурки, камня и кирпича (речь, конечно, о зданиях, не испорченных строителями). В UP-квартале «Римском», в частности в домах первой очереди строительства, принцип несколько другой – не классическая массивная стена с окнами правильных пропорций по Альберти, а большие современные стеклянные окна, фактически, стеклянные экраны с ордерной декорацией, впервые примененные в Серебряном веке, например, в Торговом доме Мертенс на Невском. Соединение стекла и ордера – очень перспективный путь для развития классики.

В конце концов, если эстетические аргументы не убеждают, есть экономические. Eye-walking уровень, как нам объяснили урбанисты (см. интервью с Алексеем Новиковым), невероятно важен. Потому что, если на уровне глаза пешеход видит красивые фасады из благородных материалов, приглашающие войти двери, проницаемые окна, которые свидетельствуют о жизни за ними, то человеку хочется там гулять, малый бизнес процветает, а люди получают разнообразные и необходимые функции в шаговой доступности.
UP-квартал «Римский» (I очередь)
UP-квартал «Римский» (I очередь)
© Мастерская Михаила Филиппова
UP-квартал «Римский» (I очередь)
UP-квартал «Римский» (I очередь)
© Мастерская Михаила Филиппова

 
Контекст 4: Рим
С Римом у Михаила Филиппова особые отношения. В своих произведениях он постоянно ведет диалог с великой архитектурой Вечного города. Колоннада Собора Святого Петра отразилась в крыльях, обнимающих круглый двор дома в Казачьем, а театр Марцелла, обстроенный в последующие века, – в форме Итальянского квартала на Долгоруковской. Римские мотивы есть в «Маршале» (скошенная руинированная стена) и в Горки-Городе. Но в UP-квартале «Римский» это не только отдельные здания, а гораздо больше. Попытаюсь сформулировать, что именно.

Дело в том, что Рим – это такой авангард до авангарда. В нем очень авангардная форма построения города. Это город с рельефом. Из-за холмов там образуются вертикальные «регистры» архитектуры. Ты поднимаешь глаза, а над зданием в некотором отдалении стоит еще одно здание, а выше – следующее, уходящее в небо. И ты мысленно скачешь по этим ярусам ввысь. Я даже думаю, что знаменитая филипповская фишка «лестница в небо» пришла оттуда. В то же время это не террасный средиземноморский город на горе, поэтому движение ввысь не предсказуемо. Про наложение прямоугольной и лучевой сеток уже говорилось. Оно не мешает Риму, как всем историческим городам, обладать ясной структурой улиц и площадей. Но самое интересное, что когда линия римских фасадов разрывается, в разрыве виден не двор правильной формы, а дом, стоящий под углом к улице или иная угловая композиция. Этот «клин» встречается очень часто. Динамика такая, что «красный клин» авангарда отдыхает. У Филиппова в «Римском» буквально воспроизведен этот прием.

Я уже не говорю про постоянные в Риме вкрапления античных стен или арок в здания 200-летней давности. Из-под девятнадцатого века торчит второй. Неправильной формы кусок древней стены или арки выступает из правильного классического фасада, и этот прием Филиппов тоже довольно часто применяет. Короче, Рим – архитектурная форма удивительной мощи. Плюс богатство классической гармонии, сила и красота, энергия и сложность. На этом фоне модернистская архитектура бледнеет и слабеет, поэтому в Риме выглядит неуместно. Странно, что никто из архитекторов не заметил этой авангардности классического Рима. А Филиппов сделал это темой своего творчества. Наложение логик и наслоение эпох плюс красота – это и есть современный город, и про это филипповская архитектура.
 
Лестница в небо
UP-квартал «Римский» (I очередь)
UP-квартал «Римский» (I очередь)
© Мастерская Михаила Филиппова

Лестница в небо – фирменный филипповский прием, кочующий из произведения в произведение. В UP-квартале «Римском» он воплощается в двух видах: либо лесенка из аркад (портиков) на фасаде, либо террасная композиция домов. Метафизический смысл каждый может додумать сам: от песни Led Zeppelin до Небесной лествицы. Ступенчатое расположение аркад встречается и в историческом Риме. Это выглядит примерно так: рядом с главным зданием есть соседнее, поздняя пристройка, и аркада на нем расположена чуть ниже, чем на главном, но пропорционально связана с ним. У Филиппова этот прием отточен до блеска и есть во всех его домах. В «Римском» фасады, например, секции № 5 оформлены такими ступенчатыми аркадами. Получается, что, с одной стороны, у здания есть четкий нижний ярус аркад – и вообще у дома есть низ, середина и украшенный верх, что важно для восприятия человеком: глаз утомляют монотонные, нечленораздельные фасады. С другой стороны, эти аркады варьируются по высоте и как бы подвижны, возникает кинетический эффект. Если архитектор делает лесенку из портиков, он не нарушает их пропорций. Развивая классический канон, не покушается на сущностные вещи, и этим отличается от постмодернистов.

В «Римском» возник еще один вариант лестницы – двойная спираль Леонардо да Винчи, лестница из замка Шамбор (см. интервью с Михаилом Филипповым). Эти лестницы расположены в нескольких домах, в башнях, соединяющих жилые секции. По одной спирали можно подняться в правую секцию, по другой – в левую. Лестничные башни с огромными окнами просвечиваются солнцем насквозь. Наверху планируются смотровые площадки. По проекту предполагалось, что лестницы Шамбора будут также соединять круглые площади нижнего и верхнего города (первой и второй, еще не построенной части «Римского»), но решение пока не принято.
 
Античный театр
Филиппов неоднократно говорил, что его увлекает тема грандиозной руины, – античного амфитеатра, обстроенного в последующие века, подобно театру Марцелла. Архитектор увидел в этой теме современную динамику и жизнеутверждающий смысл и опробовал ее в Итальянском квартале и других вещах. В «Римском» это уже не амфитеатр, а круглый театр в правой двухуровневой части комплекса, где ансамбль из пяти площадей. Античный театр по типу Колизея окружает центральную площадь. Дома террасно понижаются к этой площади. Это как бы игра в гигантские субструкции римского Колизея и в то же время динамичная современная форма, объединяющая множество разных зданий с разными фасадами.
UP-квартал «Римский» (I очередь)
UP-квартал «Римский» (I очередь)
© Мастерская Михаила Филиппова

 
Материалы
Для UP-квартала «Римского» Филиппов изобрел некоторые ноу-хау в области материалов (см. интервью). Проблема ремесленного качества в классической архитектуре стоит очень остро. Индустрию уничтожили в 1955, ремесленников негде учить, но это не значит, что их нет или что они не научатся быстро, если этим заняться. Например, дворец Шлютера в Берлине восстановили с великолепным ремесленным качеством. Сейчас ситуация в области классического декора развивается.
UP-квартал «Римский» (I очередь)
UP-квартал «Римский» (I очередь)
© Мастерская Михаила Филиппова
UP-квартал «Римский» (I очередь)
UP-квартал «Римский» (I очередь)
© Мастерская Михаила Филиппова
UP-квартал «Римский» (I очередь)
UP-квартал «Римский» (I очередь)
© Мастерская Михаила Филиппова
UP-квартал «Римский» (I очередь)
UP-квартал «Римский» (I очередь)
© Мастерская Михаила Филиппова

 
Подземный город и Небесный град
Идея двухуровневого пространства, как и лестницы Шамбора, пришла от Леонардо да Винчи. UP-квартал «Римский» стал одним из первых российских мини-городов, в котором реализована двухуровневая концепция, полностью разделяющая верхнюю, жилую и пешеходную, зону от нижнего уровня, где расположены объекты инфраструктуры, кафе и рестораны, где ездят автомобили, а ниже находится паркинг. Нижний уровень здесь – полноценный город с активной общественной жизнью и даже с собственной системой площадей. Верхний же уровень, подчиненный актуальному принципу «город без машин» – тих и безопасен, здесь преобладают скверы, спортивные и детские площадки – он становится своего рода Аркадией, Небесным градом. Если получится все то построить, UP-квартал определенно имеет шансы на то, чтобы стать достопримечательностью не только с точки зрения образности современной классики, но и в градостроительном отношении.
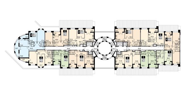
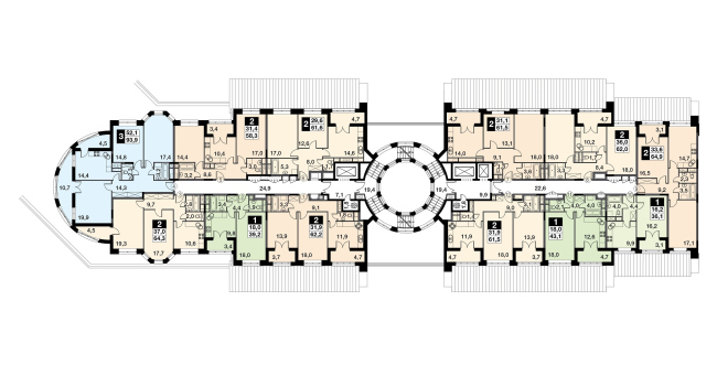
UP-квартал «Римский» (I очередь). Секция 13, план 6-7 этажей
UP-квартал «Римский» (I очередь). Секция 13, план 6-7 этажей
© Мастерская Михаила Филиппова
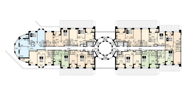
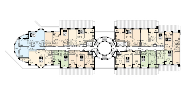
UP-квартал «Римский» (I очередь). Секция 13, план 3 этажа
UP-квартал «Римский» (I очередь). Секция 13, план 3 этажа
© Мастерская Михаила Филиппова
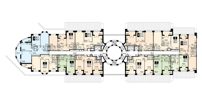
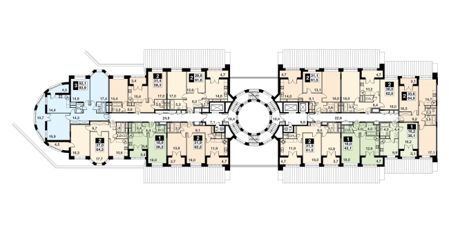
UP-квартал «Римский» (I очередь). Секция 9, план 3 этажа
UP-квартал «Римский» (I очередь). Секция 9, план 3 этажа
© Мастерская Михаила Филиппова