Размещено на портале Архи.ру (www.archi.ru)

08.08.2017

Белая гора

Дарья Горелова
Объект:
Жилой комплекс «4 Сезона»
Адрес:
Россия, Уфа. пр. Октября 107Б
Мастерская:
PRSPKT.Architects
Авторский коллектив:
ГАП: Александр Сафаров; архитекторы: Юлия Мусина, Семён Кучеров, Елена Ганиева, Азат Бакиев, Диана Бакиева, Анастасия Герасимова, Алексей Мельников, Елена Нургалеева; ГИП: Раис Галимзянов; главный конструктор: Дмитрий Горбунов

Первая очередь ЖК «4 сезона»: как вписать 24-этажный дом в контекст пятиэтажек развивающегося «нефтяного» города.

ЖК «4 сезона», вид с проспекта Октября. Постройка
ЖК «4 сезона», вид с проспекта Октября. Постройка
© PRSPKT.Architects

Старая часть города Уфы расположена в излучине реки Белой; заводы, эвакуированные в город во время войны, образовали в десяти километрах к северу от исторической части большую промзону вокруг Сталинского (впоследствии Черниковского) района, оформившегося в 1940-е. Город получился похожим на гантелю, положенную между реками Белой и Уфой. Ее «ручка» – соединяющий обе части, историческую и промышленную, проспект Октября, застроенный пятиэтажками с редкими вкраплениями поздних башен, стадионов, парков. В двух километрах по берегу реки тянется железная дорога, отделенная от города фрагментами леса.

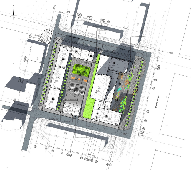
На одном из крупных квадратных участков площадью 1,3 га между проспектом и лесом архитектурное бюро «Проспект» завершило в 2016 году строительство первой очереди ЖК бизнес-класса «4 сезона». Жилая башня с отдельным названием Idel-tower, бизнес-центр и другие корпуса второй и третьей очереди расположатся ближе к проспекту, их строительство уже началось.
ЖК «4 сезона»
ЖК «4 сезона»
Фотография © Дамир Баубурин
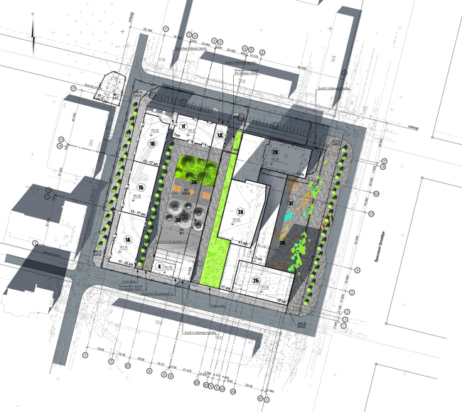
ЖК «4 сезона», ситуационный план
ЖК «4 сезона», ситуационный план
© PRSPKT.Architects

Первая очередь – секционный дом с Г-образным планом – занимает половину участка на границе с лесом, за которым – река. Два соседних квартала состоят пятиэтажек – вписать в такое окружение 24-этажный дом с максимальной отметкой 79,6 м непросто, и авторы пошли по пути разновысотности, превратив силуэт вытянутой вдоль леса пластины в подобие двузубца, чьи скосы перекликаются с контурами расположенного поблизости, в 200 метрах, дома «Парус». Контур дома напоминает животное, «голова» которого смотрит в сторону старой Уфы, а хвост – в сторону промышленного города. Две секции, повернутые в сторону проспекта и соседствующие с пятиэтажками – по 6 этажей (не считая стилобат); все вместе позволяет сгладить контраст высотности: получается, что в контекст невысокого города поместили не «гигантский ящик», а скорее «гору», объем чужеродный, но яркий, привлекающий внимание. Или точнее даже «срез горы»: следуя логике модернистской архитектуры, дом состоит из двух пластин, «склеенных», что видно на торцах, углубленной вертикалью стекла – прием, напоминающий «Дом туриста» на московском Ленинском проспекте. Сюда выходят коридоры торцевой секции.
ЖК «4 сезона», взгляд с проспекта Октября во двор
ЖК «4 сезона», взгляд с проспекта Октября во двор
© PRSPKT.Architects
ЖК «4 сезона», фасад по ул. Блюхера, принципиальное решение
ЖК «4 сезона», фасад по ул. Блюхера, принципиальное решение
© PRSPKT.Architects
ЖК «4 сезона», вид с ул. Блюхера
ЖК «4 сезона», вид с ул. Блюхера
© PRSPKT.Architects

Впрочем дом отдает дань не только приемам модернизма, но и современности: отсюда слегка сбитый ритм фасадной решетки и цветные вставки цвета красно-желтой охры, сгущающиеся в нижних этажах. Этот цвет, также как и белый, также как и силуэт, наводит на мысль о горе; причем даже не природной, а о горе какого-то материала, привезенного по реке или железной дороге для уфимских заводов.
ЖК «4 сезона», Эффект градиента на фасаде
ЖК «4 сезона», Эффект градиента на фасаде
© PRSPKT.Architects
ЖК «4 сезона», секции ГД
ЖК «4 сезона», секции ГД
© PRSPKT.Architects

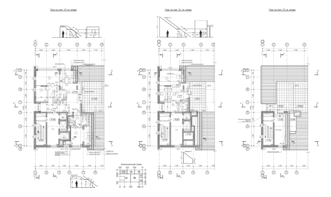
Силуэтные скосы архитекторы использовали творчески – разместили на них террасы: 12 на высоком скосе и еще 3 на малом; террасы достались не всем верхним квартирам, только половине. Для того, чтобы соседи не видели друг друга, террасы прикрыли глубокими решетчатыми металлическими козырьками-ламелями, защищающими также и от солнца. На такой высоте, с видом на лес и реку ощущения должны быть захватывающие. Квартирография умеренная: от студий до 3-комнатных квартир; все раскуплены.
ЖК «4 сезона»
ЖК «4 сезона»
Фотография © Дамир Баубурин
ЖК «4 сезона». На террасах предусмотрены ламели, пропускающие свет, но скрывающие от палящего солнца и взгляда соседей сверху
ЖК «4 сезона». На террасах предусмотрены ламели, пропускающие свет, но скрывающие от палящего солнца и взгляда соседей сверху
© PRSPKT.Architects
ЖК «4 сезона», вид с проспекта Октября. Визуализация, проект
ЖК «4 сезона», вид с проспекта Октября. Визуализация, проект
© PRSPKT.Architects
ЖК «4 сезона», терраса. Постройка
ЖК «4 сезона», терраса. Постройка
© PRSPKT.Architects

В нижней части дом устроен по правилам бизнес-класса: 3 яруса подземной парковки, на ее кровле двор с богатой геопластикой, разумеется, запрещенный для машин исключая техслужбы. Войти в подъезды можно как с улицы, так и со двора, двусветные со стороны улицы вестибюли выглядят впечатляюще высокими. Внутри вестибюли разделяются на два уровня, позволяя как спуститься в парковку, так и выйти на уровень двора. Из двора можно выйти в лес и напрямую: туда ведет широкая, «приглашающая к прогулке», лестница в северо-западном углу дома. Она начинается от прохода между домом-горой и 6-этажным корпусом.
ЖК «4 сезона», генплан
ЖК «4 сезона», генплан
© PRSPKT.Architects
ЖК «4 сезона», лестница во двор
ЖК «4 сезона», лестница во двор
© PRSPKT.Architects
ЖК «4 сезона», лестница с уровня улицы на уровень двора
ЖК «4 сезона», лестница с уровня улицы на уровень двора
© PRSPKT.Architects
ЖК «4 сезона», входная группа, подъезд
ЖК «4 сезона», входная группа, подъезд
© PRSPKT.Architects
ЖК «4 сезона», Дворовое пространство
ЖК «4 сезона», Дворовое пространство
© PRSPKT.Architects
ЖК «4 сезона», переходной мост из двора в парк. Проект. 3 очередь строительства
ЖК «4 сезона», переходной мост из двора в парк. Проект. 3 очередь строительства
© PRSPKT.Architects
ЖК «4 сезона», благоустройство дворовой территории
ЖК «4 сезона», благоустройство дворовой территории
© PRSPKT.Architects

Что касается магазинов в первых этажах – они задуманы в составе 2-3 очередей, на линии проспекта, где больше посетителей. Зато в первых этажах пластины запланирован детский медицинский центр.

ЖК велик по уфимским меркам, он неизбежно возвышается над 5-этажками и даже умело это использует. По московским меркам, однако, дом небольшой: к примеру, площадь «Акварелей», построенных архитекторами бюро «Остоженка» в Балашихе, как и «Авеню, 77» Владимира Плоткина в Северном Чертанове вдесятеро больше. В данном случае мы как будто бы сталкиваемся с умелой проекцией темы на город меньшего масштаба. Дом подает себя как большой, хотя на самом деле он большой в своем окружении, в ближнем Подмосковье он, пожалуй бы, затерялся. И это, надо полагать, лучший вариант реакции на контекст – правильно осмыслить себя на своем месте.

Здание отмечено «серебряным знаком» в 2016 году на «Зодчестве».

[этот материал подготовлен по программе send.project. Присылайте проекты, редакция ждет Вас.]
 
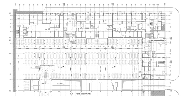
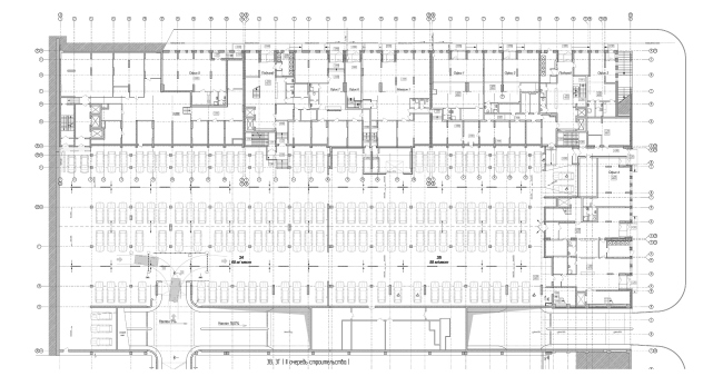
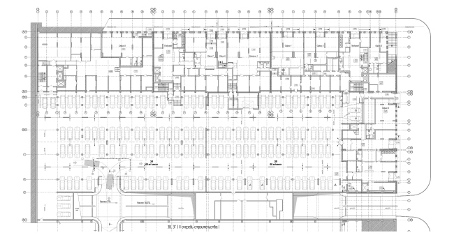
ЖК «4 сезона», план -1 уровня
ЖК «4 сезона», план -1 уровня
© PRSPKT.Architects
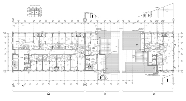
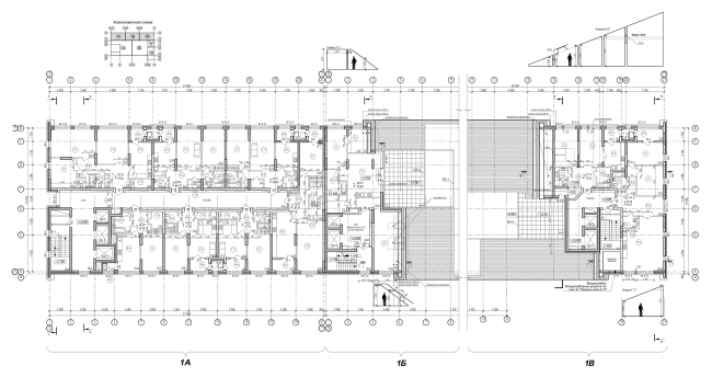
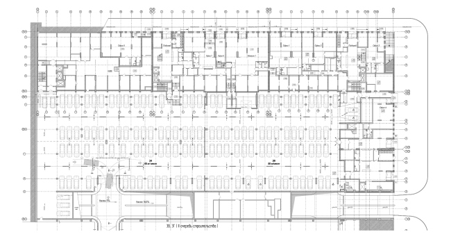
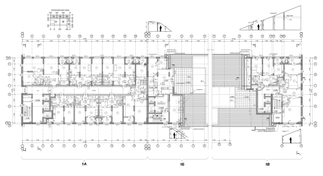
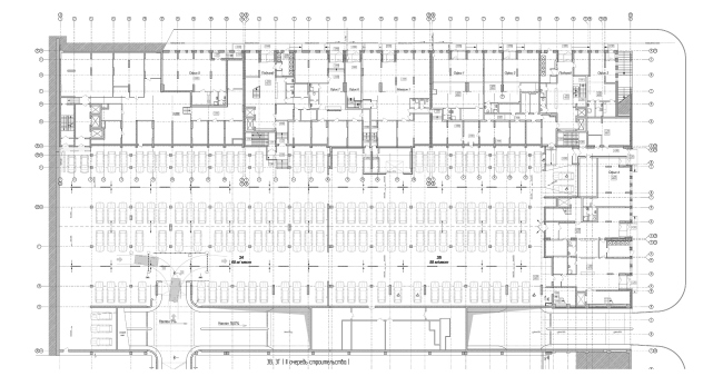
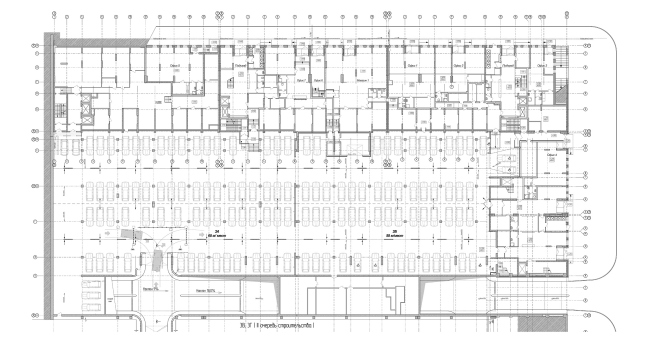
ЖК «4 сезона», план 1 этажа
ЖК «4 сезона», план 1 этажа
© PRSPKT.Architects
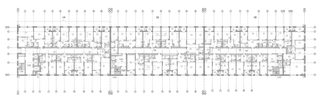
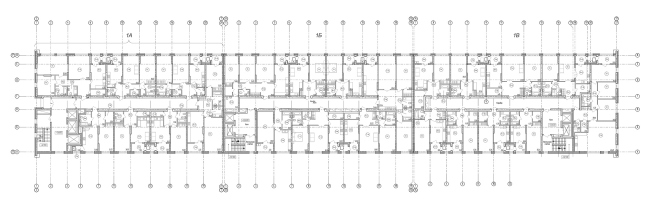
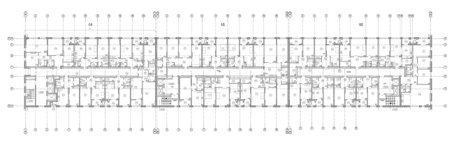
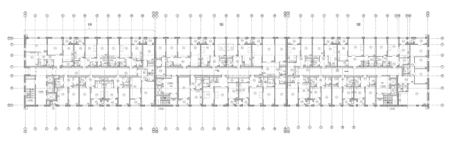
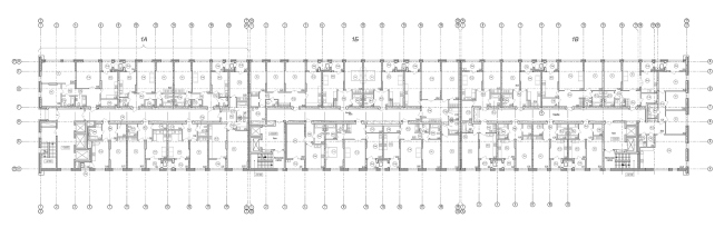
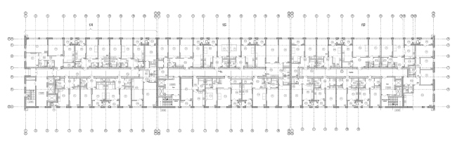
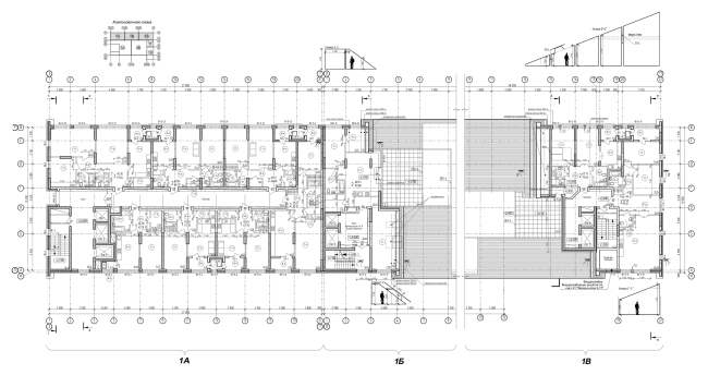
ЖК «4 сезона», план типового этажа
ЖК «4 сезона», план типового этажа
© PRSPKT.Architects
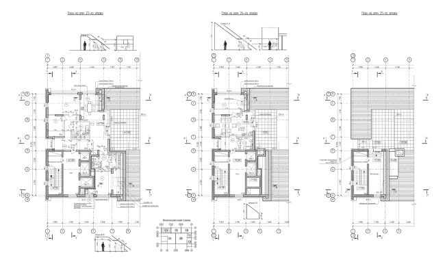
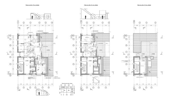
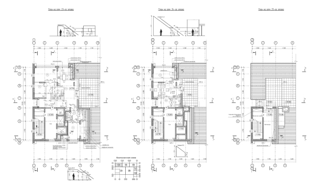
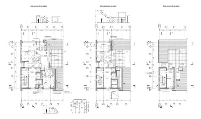
ЖК «4 сезона», план 15 этажа. Начиная с 14 этажа в секциях А и В появляются квартиры с террасами
ЖК «4 сезона», план 15 этажа. Начиная с 14 этажа в секциях А и В появляются квартиры с террасами
© PRSPKT.Architects
ЖК «4 сезона», верхние этажи-квартиры
ЖК «4 сезона», верхние этажи-квартиры
© PRSPKT.Architects
ЖК «4 сезона», поперечный разрез секции А
ЖК «4 сезона», поперечный разрез секции А
© PRSPKT.Architects
ЖК «4 сезона», поперечный разрез секции В
ЖК «4 сезона», поперечный разрез секции В
© PRSPKT.Architects
ЖК «4 сезона», продольный разрез по двору
ЖК «4 сезона», продольный разрез по двору
© PRSPKT.Architects
ЖК «4 сезона», продольный разрез по двору
ЖК «4 сезона», продольный разрез по двору
© PRSPKT.Architects
ЖК «4 сезона», интерьер подъезда, реализация
ЖК «4 сезона», интерьер подъезда, реализация
© PRSPKT.Architects