Размещено на портале Архи.ру (www.archi.ru)

18.07.2017

Мир радости

Елена Петухова
Объект:
Городская ферма на ВДНХ, 2 очередь
Адрес:
Россия, Москва. ВДНХ
Архитектор:
Дмитрий Ликин
Олег Шапиро
Мастерская:
WOWHAUS
Авторский коллектив:
Руководители: Олег Шапиро, Дмитрий Ликин
Ведущие архитекторы: Алена Зайцева, Анастасия Измакова
Архитекторы: Маргарита Леонова, Марина Ярмаркина, Денис Маншилин, Глеб Галкин, Стас Дервоедов, Сауле Чевычалова, Ольга Павленко
Генплан: Нина Смирнова
ГИП: Дмитрий Белостоцкий;
 
Предпроектное исследование: КБ23. Константин Паливода, Максим Любавин
Консультант Екатерина Сыса
Дендролог: Любовь Мозгунова
Конструктор: Сергей Белугин
Фотографии: Митя Чебаненко

Вторая очередь Городской фермы на ВДНХ дополнила ландшафтно-архитектурный ансамбль сразу несколькими постройками, обыгрывающими характерный ассоциативный подход к созданию тематических павильонов.

Вид на ферму с высоты птичьего полета. Городская ферма на ВДНХ, 2 очередь. Бюро Wowhaus. Фотография © Митя Чебаненко
Вид на ферму с высоты птичьего полета. Городская ферма на ВДНХ, 2 очередь. Бюро Wowhaus. Фотография © Митя Чебаненко
 
Экспериментальная площадка
Проект фермы, о первой очереди которой мы уже писали, возник из желания руководства ВДНХ возродить один из заброшенных уголков на северо-востоке территории выставки. В прошлом здесь были сосредоточены площадки для демонстрации достижений советского сельского хозяйства, Кроме павильонов с красноречивыми названиями «Свиноводство», «Овцеводство» и «Птицеводство», рядом с каскадом прудов существовала экспозиция, посвященная охоте и разведению пушных зверей. Здешний павильон «Охота и звероводство» не пережил переходного периода от ВДНХ к ВВЦ, и потом обратно к ВДНХ. Вся территория пришла в запустение.

Но сохранившаяся память места натолкнула архитекторов бюро Wowhaus на достаточно смелый эксперимент. Они решили создать образовательную площадку, на которой дети и их родители смогли бы познакомиться с животным и растительным миром, а также овладеть различными навыками, связанными с ведением натурального хозяйства. Это не копипаст с формата западных городских ферм, а оригинальная концепция, объединяющая семейный отдых на природе, мини-зоопарк, кружок юных натуралистов и ремесленные мастерские.

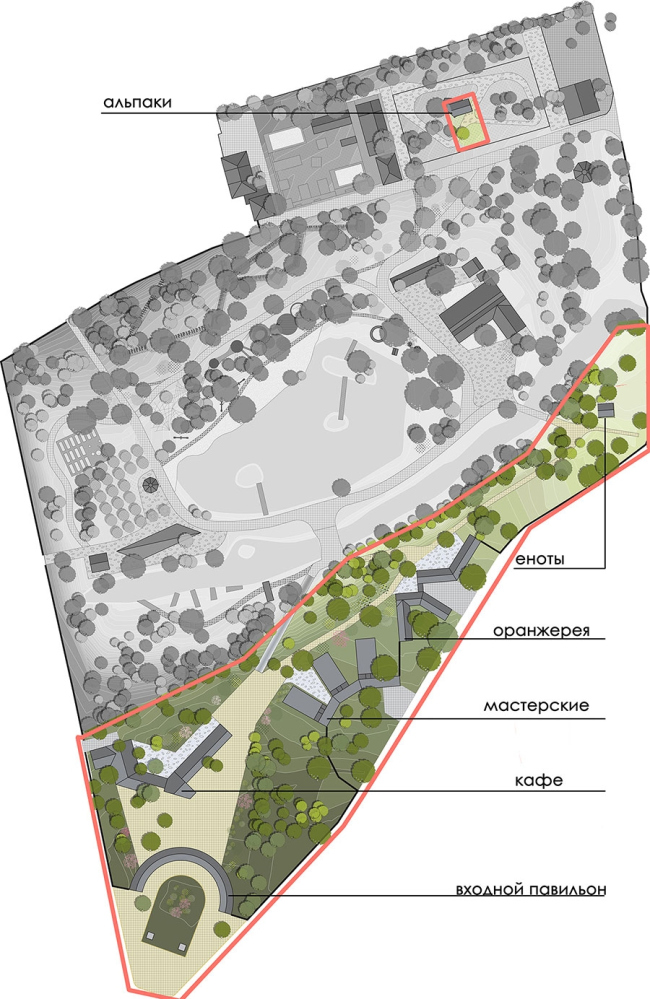
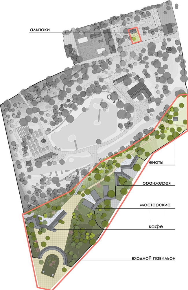
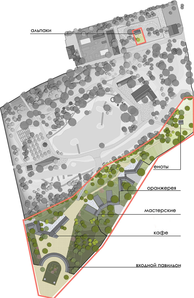
Под необычную идею руководство ВДНХ выделило участок площадью около 3 гектаров. Сильный перепад рельефа делил территорию на две неравные части: нижнюю, большую по площади, с прудом и верхнюю, вытянувшуюся вдоль склона. Первая с хлевом, птичником, плодовым садом, огородом и инклюзивной детской площадкой была закончена очень быстро и открылась в 2015 году, почти сразу став популярной. Строительство второй части, включавшее возведение нескольких павильонов, предназначенных для круглогодичных занятий различными ремеслами и видами сельскохозяйственной деятельности, было отложено на следующий 2016 год.
Генеральный план. Городская ферма на ВДНХ. Бюро Wowhaus
Генеральный план. Городская ферма на ВДНХ. Бюро Wowhaus

Верхний мир
Вторая очередь фермы, площадь которой почти в четыре раза меньше, расположилась на приподнятой части территории вдоль южной кромки пруда. Из-за особенностей рельефа строить там было можно в основном на узкой полосе ровной земли вдоль бровки склона и на широкой площадке, которая раньше была занята павильоном «Охотоводство», а для фермы должна была выполнять функцию входного парадного зала. Здесь гостей фермы встречает входная группа с билетными кассами и информационной стойкой, широким полукругом охватывающая площадь с цветниками и двумя уцелевшими от прежних времен статуями «Охотника» и «Лисятницы». Внутри территории, буквально в двух шагах от входа, чтобы предупредить возможные нарекания на слабо развитую сервисную инфраструктуру, расположено фермерское кафе, в котором будут проходить занятия детской кулинарной школы. Дальше пешеходный маршрут проложен параллельно склону холма. Вдоль дорожки расставлены один за другим два больших сложных по конфигурации павильона. Первый используется под различные мастерские: гончарные, столярные и прочие, а во втором разместились оранжереи. В дальнем конце второй очереди дорожка плавно изгибается и выводит посетителей через мостик над каналом на главную площадь первой очереди с хлевом и птичьим прудом.

В первоначальном решении был предусмотрен еще один кроткий проход от кафе вниз к прудам, но его решили в итоге не делать – из-за крутого рельефа и сложностей для маленьких и пожилых посетителей.
Вид на ферму с высоты птичьего полета. Городская ферма на ВДНХ, 2 очередь. Бюро Wowhaus. Фотография © Митя Чебаненко
Вид на ферму с высоты птичьего полета. Городская ферма на ВДНХ, 2 очередь. Бюро Wowhaus. Фотография © Митя Чебаненко

Традиционный подход
Генеральный план фермы учитывал результаты социо-экономического исследования, проведенного КБ23 – возможный функционал будущей фермы и перечень построек, необходимых для их реализации, определили совместно. Часть функций была рассчитана на привлечение разовых гостей из числа обычных посетителей ВДНХ, а часть – на постоянную публику – жителей соседних микрорайонов с детьми. В работе над проектом участвовали девять архитекторов, каждому из которых достались один или несколько объектов, относящихся к разным очередям строительства. Для того, чтобы создать единый ансамбль, все они работали в рамках общего дизайн-кода, включавшего использование простых, но выразительных форм, натуральных материалов и конструкций, в первую очередь дерева.

Ведущий архитектор второй очереди Фермы Анастасия Измакова так комментирует главную задачу, поставленную перед проектной командой руководителями бюро: «Мы должны были сделать павильоны в духе всего ВДНХ. С литературными ассоциациями и даже символизмом. Так, чтобы вместе они создавали гармоничный ансамбль, но каждый из них был уникален и вдохновлен собственной функцией». Нужно было найти современный парафраз приема, использованного видными советскими зодчими на протяжении XX века. Они стремились предельно наглядно и патетично визуализировать темы выставочных павильонов. Мотивы народного зодчества, использование объектов и субъектов хозяйствования в качестве декоративных элементов, монументальное искусство и стилизации всех мастей – создавали тот удивительный аттракцион благополучия и процветания, в который так любили погружаться москвичи и гости столицы, спасаясь от депрессивной реальности. Повторить буквально этот прием в XXI веке вряд ли возможно, не только из-за эстетических и этических причин, но и из-за экономических резонов, но осмыслить и творчески переработать – можно.
Входной павильон. Городская ферма на ВДНХ, 2 очередь. Бюро Wowhaus. Фотография © Митя Чебаненко
Входной павильон. Городская ферма на ВДНХ, 2 очередь. Бюро Wowhaus. Фотография © Митя Чебаненко

Колоннада, амбар, ангар и ананас 
Скульптура «Охотник» возле входного павильона на Городскую ферму на ВДНХ, 2 очередь. Бюро Wowhaus. Фотография © Митя Чебаненко
Скульптура «Охотник» возле входного павильона на Городскую ферму на ВДНХ, 2 очередь. Бюро Wowhaus. Фотография © Митя Чебаненко

Встречающая теперь гостей фермы входная группа, как и вход первой очереди, отличается структурностью, но достаточно точно повторяет формы распространенной еще в классической усадебной традиции полукруглой колоннады. Только вместо «честных» колонн с капителями и антаблементом, здесь использованы деревянные фермы. Упорядоченная система из стоек, раскосов и балок образует ажурный полукруг, украшенный декоративными вертикальными экранами, с решеткой, образующей орнамент, напоминающий то ли колосья, то ли пальмовые листья. Сложно сделать более ясно читаемую отсылку к духу прежнего ВДНХ.
Кафе. Городская ферма на ВДНХ, 2 очередь. Бюро Wowhaus. Фотография © Митя Чебаненко
Кафе. Городская ферма на ВДНХ, 2 очередь. Бюро Wowhaus. Фотография © Митя Чебаненко

Следующий по ходу движения объект – просторное кафе, не вызывает ассоциаций ни с ампиром прошлого века, ни с брутальным модернизмом космической эры. Это стильная и лаконичная постройка, скорее вдохновленная северной, скандинавской архитектурой – наподобие большого амбара, при строительстве которого думали больше о вместительности и функциональности, чем о дизайне, а в результате получилось гармоничное здание. И если говорить о традициях, то только о традициях бюро Wowhaus. Кафе отличает характерная элегантность в работе с деревом и в его комбинации со стеклом.
Фрагмент здания кафе. Городская ферма на ВДНХ, 2 очередь. Бюро Wowhaus. Фотография © Митя Чебаненко
Фрагмент здания кафе. Городская ферма на ВДНХ, 2 очередь. Бюро Wowhaus. Фотография © Митя Чебаненко

Как бы ни хотелось задержаться в уютном кафе, двигаться вперед зовет открывающийся вид на комплекс мастерских – одно из самых ярких и эффектных сооружений в ансамбле Городской фермы, не зайти в которое невозможно. И в первую очередь – из-за необычной параболической формы крыш трех больших отсеков, которые отходят от основного распределительного блока с обслуживающими помещениями.
Павильон «Мастерская». Городская ферма на ВДНХ, 2 очередь. Бюро Wowhaus. Фотография © Митя Чебаненко
Павильон «Мастерская». Городская ферма на ВДНХ, 2 очередь. Бюро Wowhaus. Фотография © Митя Чебаненко

«Первое, что я представила, когда начала обдумывать поставленную задачу спроектировать мастерские – типичный промышленный объект – огромный ангар из металлических профильных листов. – рассказывает автор проекта мастерских Анастасия Измакова. – И я попыталась найти конструкции, которые напоминали бы этот образ, но создавали бы совершенно другую атмосферу и настроение, более подходящее для места занятий разными ремеслами с детьми». Решение нашлось в виде гнутых деревянных арок, поверх которых укладывалась кровля из лиственничной дранки. Также – впервые в практике – архитекторы Wowhaus использовали технологию защиты древесины при помощи обжига. Это не только интересное декоративное решение, широко применяемое в традиционной архитектуре Японии, оно имеет ряд вполне практических преимуществ: защиту от грибков и плесени, низкую теплопроводность.
Фрагмент павильона «Мастерская». Городская ферма на ВДНХ, 2 очередь. Бюро Wowhaus. Фотография © Митя Чебаненко
Фрагмент павильона «Мастерская». Городская ферма на ВДНХ, 2 очередь. Бюро Wowhaus. Фотография © Митя Чебаненко
Интерьер одного из блоков для занятий ремеслами в павильоне «Мастерская». Городская ферма на ВДНХ, 2 очередь. Бюро Wowhaus. Фотография © Митя Чебаненко
Интерьер одного из блоков для занятий ремеслами в павильоне «Мастерская». Городская ферма на ВДНХ, 2 очередь. Бюро Wowhaus. Фотография © Митя Чебаненко

Максимальная высота параболы каждого ремесленного отсека больше 6 метров, так что в двух из них были сделаны антресоли, увеличившие полезную площадь. Один отсек остался без промежуточного этажа и находясь в нем можно оценить красоту и динамику ребер клееного дерева с их почти готической напряженностью и легкостью. Реализовать это решение было не просто: не каждый производитель был способен в оговоренные сроки изготовить деревянные конструкции с требуемым качеством и в необходимом количестве – но в итоге павильон стал одним из любимых объектов как самих авторов, так и гостей фермы.
Павильон «Мастерская». Городская ферма на ВДНХ, 2 очередь. Бюро Wowhaus. Фотография © Митя Чебаненко
Павильон «Мастерская». Городская ферма на ВДНХ, 2 очередь. Бюро Wowhaus. Фотография © Митя Чебаненко

Готические аллюзии не исчерпываются брутально-пасторальными мастерскими. Следующий павильон – оранжерея, – может легко поспорить с ними по части динамики. Ломаная цепочка из нескольких блоков, каждый из которых предназначен для своего вида искусственной культивации растений: в одной установлены стеллажи для гидропонного выращивания овощей и зелени, в другой – растут цветы в грунте, а в третьей – экзотические растения в кадках; павильон перекрыт светопрозрачной двускатной кровлей из сотового поликарбоната. Подобная форма исторически используется при строительстве оранжерей: при королевских загородных дворцах или на подмосковных дачах.
Павильон «Оранжерея». Городская ферма на ВДНХ, 2 очередь. Бюро Wowhaus. Фотография © Митя Чебаненко
Павильон «Оранжерея». Городская ферма на ВДНХ, 2 очередь. Бюро Wowhaus. Фотография © Митя Чебаненко

Торцевые фасады блоков украшает сложный переплет витражей. Вертикальные и наклонные импосты образуют рисунок, напоминающий колос (белые переплеты) или даже ананас (белые переплеты, накладывающийся на черные стыки между стеклопакетами витража).
Интерьер павильона «Оранжерея». Городская ферма на ВДНХ, 2 очередь. Бюро Wowhaus. Фотография © Митя Чебаненко
Интерьер павильона «Оранжерея». Городская ферма на ВДНХ, 2 очередь. Бюро Wowhaus. Фотография © Митя Чебаненко
Витраж «Ананас» павильона «Оранжерея». Городская ферма на ВДНХ, 2 очередь. Бюро Wowhaus. Фотография © Митя Чебаненко
Витраж «Ананас» павильона «Оранжерея». Городская ферма на ВДНХ, 2 очередь. Бюро Wowhaus. Фотография © Митя Чебаненко

Флора и фауна
Сложная, многочастная конфигурация мастерских и оранжереи объясняется не только их функцией, но и заботой о сохранении растущих на территории фермы деревьев. Блоки павильонов вписывались в пространство между стволами, а там, где опорные конструкции угрожали корневой системе деревьев, архитекторы применяли консольную конструкцию опирания настила. Это решение не мешает доступу воды к корням и сохраняет первоначальный ландшафт.

Уже на втором этапе строительства фермы в проект была добавлена пара небольших сооружений – вольер для альпак и домик для енотов. Мини-зоопарк на ферме пользовался такой популярностью, что дирекция фермы решила расширить диапазон представленных животных.
Схема. Городская ферма на ВДНХ. Бюро Wowhaus
Схема. Городская ферма на ВДНХ. Бюро Wowhaus
Городская ферма на ВДНХ, 2 очередь. Бюро Wowhaus. Фотография © Митя Чебаненко
Городская ферма на ВДНХ, 2 очередь. Бюро Wowhaus. Фотография © Митя Чебаненко
 
Мир радости
Закончилась эпопея создания в Москве на ВДНХ городской фермы. Кому-то она могла показаться долгой – все-таки строительство нескольких павильонов и прудов растянулось на два года. Кому-то очень короткой, опять-таки из-за всего лишь двух лет строительства, потребовавшихся для кардинального изменения территории размером в 3 гектара. Но сколько бы времени ни прошло, ферма становится все более популярной и интересной для множества людей. Идея и ее воплощение настолько пронизаны любовью к природе, животным и людям, что удивительно, как она смогла реализоваться в наше прагматичное и ориентированное исключительно на прибыль время. Эксперимент дирекции ВДНХ и творческие поиски архитекторов Wowhaus увенчались безусловным успехом. Теперь у ранее никому не известных Каменских прудов появился и каждый день ждет посетителей «Мир радости». Причем, радости не только для детворы и взрослых, еще не избавившихся от детской непосредственности и любви к самым разным животным, даже тем, кто способен тебя дружески боднуть под коленку, ущипнуть за штанину или укусить за неловко подставленный вместе с морковкой палец, но и для любителей качественной современной архитектуры, для которых ансамбль городской фермы стал достойной выставкой архитектурных достижений. Кроме всего прочего, проект Городской Фермы на ВДНХ подтвердил статус бюро Wowhaus как первооткрывателя новых форматов рекреационных пространств.