Размещено на портале Архи.ру (www.archi.ru)

24.05.2017

Пути аскезы

Наталья Мурадова, Юлия Тарабарина
Объект:
Малая сцена «Электротеатра Станиславский»
Адрес:
Россия, Москва. Тверская ул., 23
Мастерская:
WOWHAUS
Авторский коллектив:
Руководители бюро: Дмитрий Ликин и Олег Шапиро
Ведущий архитектор Дарья Мельник
ГИП: Ирина Ишунина

Малая сцена «Электротеатра Станиславский» развивает идеи, заложенные в архитектуре главного здания, в свете подчеркнуто-брутального лаконизма, а может быть даже «аскезы». В ее театральном понимании, конечно.

«Электротеатр Станиславский». Малая сцена © Wowhaus
«Электротеатр Станиславский». Малая сцена © Wowhaus

Здание «Электротеатра Станиславский» – современная версия соименного драмтеатра, обновленного под руководством экспериментатора Бориса Юхананова – занимает важное место в портфолио бюро Wowhaus и по масштабу, и по значению. Реконструкцию главного здания архитекторы реализовали в рекордные сроки в 2014 году. Но работа над театральным комплексом продолжается, хотя и, по разным причинам, с несколько меньшей скоростью. Так, в сентябре 2016 театр открыл Малую сцену – небольшое автономное здание, предназначенное для режиссерских и актерских дебютов.​ Двор, расположенный между выходящим на Тверскую зданием 1915 года и новооткрытой Малой сценой, еще только предстоит реконструировать – реализация задержалась как из-за финансового кризиса, так и из-за необходимости переложить городскую теплотрассу во дворе – о чем мы уже рассказывали.​ Малая сцена разместилась, как и планировалось изначально, на месте реконструированной хозпостройки 1950-х в глубине двора, что задало четкие контуры посадки здания на генплане.
Взаимосвязь театральных пространств. «Электротеатр Станиславский» © Wowhaus
Взаимосвязь театральных пространств. «Электротеатр Станиславский» © Wowhaus
План театрального комплекса. 2017 «Электротеатр Станиславский» © Wowhaus
План театрального комплекса. 2017 «Электротеатр Станиславский» © Wowhaus

Работа над проектом началась еще в 2014 году. Не то чтобы концепция Малой сцены с тех пор существенно изменилась, хотя кое-что из первоначальных замыслов пришлось скорректировать, а что-то дополнить. Так, по причине аварийности была разобрана труба бывшей котельной, которая сначала проходила сквозь здание малой сцены и в первоначальном варианте приходилось проектировать проход сквозь нее с усилением кладки. Пришлось отказаться от идеи использования цоколя – возведение цокольного этажа замедлило бы работы по реализации объекта, а отказ от него позволил уменьшить в том числе финансовые затраты, что в условиях кризиса стало также немаловажным. Не была реализованна интереснейшая идея раздвижной стены со стороны двора, что превращало бы его в летний зрительный зал при Малой сцене. В итоге было решено оставить только внутреннюю трансформирующуюся перегородку. «Корректировки приходилось вносить по мере появления новых условий и данных, что неизбежно для реконструкции, ­– рассказывает ведущий архитектор проекта Дарья Ионова-Мельник, – поэтому реализация здания Малой сцены заняла время, казалось бы, несоизмеримое с ее размерами».

Действительно, здание Малой сцены совсем невелико для самостоятельного театрального пространства: его общая площадь со всеми подсобными помещениями в двух ярусах сопоставима с площадью одной только коробки главной сцены театра: 460 м2 к 424. Объем здания Малой сцены – параллелепипед со сторонами примерно 30 на 10 м по внешнему контуру – а помещается в нем, фактически, автономный мини-театр. Помимо зала на 70-120 зрителей, балкона и двухъярусного фойе с буфетом оно вмещает санузлы, гардероб, артистическую, места для хранения костюмов и декораций, свето- и звукоаппаратные и другие необходимые служебные помещения. Поэтому высоту бывшего хозблока увеличили вдвое, что позволило устроить антресольный этаж и обеспечить сцену высоким технологическим потолком.
***
Устройство сцены
В здании Малой сцены реализованы все те же необходимые современному театру принципы открытости и трансформируемости, что и в главном зале Электротеатра – здесь так же не закреплены зрительские места, нет «коробки» сцены. Зрители могут сидеть либо вдоль длинной стены в одном уровне и рядом с актерами – для чего им нужно будет пройти сквозь двери фойе на первом этаже; либо, войдя в зал через второй ярус фойе, разместиться на установленных вдоль поперечной стены высоких театральных станках с креслами. «И хотя театр считал основным первый вариант, но по результатам первого года работы более востребованным оказался второй, тот, где на сцену смотрят сверху, – рассказывает Дарья Мельник – конечно все зависит от постановки и от видения режиссера».

Внешняя стена зрительского фойе стеклянная, поэтому для спектаклей с рассадкой зрителей через второй уровень на антресоли был продуман специальный занавес, который обеспечивает необходимую темноту и камерность. Когда верхний уровень фойе не задействован в спектакле, в шестиметровом проеме зала задвигается специальная трансформируемая мобильная перегородка с высокими акустическими свойствами, образуя тем самым стену. Для каждого из сценариев размещения публики Wowhaus предусмотрели несколько возможностей появления актеров на подмостках – дверей семь, в том числе и потайная на втором этаже. Помещение, в котором актеры ожидают своего выхода на сцену, тоже находится наверху, а благодаря системе рейлов служит еще и компактной костюмерной.

Зал было бы невозможно трансформировать полностью, если бы не бесконечное множество вариантов размещения декораций. Для этого был нужен особый функциональный каркас, который здесь, в отличие от главной сцены, не открыт для обозрения зрителей, а спрятан за серыми панелями обшивки стен сцены. «Это решетка с ячейками метр на метр, которая позволяет крепить декорации и свет в любом месте – в этой коробке можно делать вообще все, что угодно. Снаружи видны только небольшие отверстия, которые еще работают и как элементы дизайна. Но на самом деле за ними находятся металлические стойки и специальные втулки. Эта деталь крепления была разработана совместно с театральными художниками, чтобы она максимально отвечала их потребностям и, при необходимости, ее можно было бы легко заменить, если она когда-нибудь придет в негодность. В нее вкручивается любое оборудование, и деталь выдерживает вес до 200 килограммов», – объясняет ведущий архитектор проекта.
«Электротеатр Станиславский». Малая сцена, презентация © Wowhaus
«Электротеатр Станиславский». Малая сцена, презентация © Wowhaus

Открытый потолок, в котором конструкции деревянных балок переплетены с системой технологических металлических штанкет – труб для подвесов светового оборудования – редкость для театрального зала. Деревянный структурный потолок служит также и декоративным элементом: перед началом спектакля, пока зрители рассаживаются по креслам, конструкции потолка акцентирует мягкая светодиодная подсветка. Металлические штанкеты образуют все ту же решетку с шагом метр на метр, позволяющую легко изменять сценическое освещение. При этом соблюдены противопожарные нормы – электроприборы везде отступают от деревянных конструкций на положенные 50 сантиметров.
«Электротеатр Станиславский». Малая сцена © Wowhaus
«Электротеатр Станиславский». Малая сцена © Wowhaus
«Электротеатр Станиславский». Малая сцена © Wowhaus
«Электротеатр Станиславский». Малая сцена © Wowhaus

На идею максимальной трансформации пространства работают не только стены с потолком, но и пол. Под ним находится полуметровое пространство с разводкой труб, а вровень с плоскостью покрытия выведены технологические люки по периметру стен.
***
 
Театральный бетон
Яркие постановки «Электротеатра» накладывают определенные ограничения на образное решение помещения – чтобы не вступать в конфликт с происходящим на сцене, оно должно быть визуально нейтральным, но не безликим. К тому же небольшая площадь коробки требовала использовать минимум элементов, в том числе и декоративных.

Так что приглушенный серый, как будто войлочный интерьер Малой сцены получился в духе шанхайского Poly Grand Theatre Тадао Андо. Влияния Андо в бюро не отрицают, но говорят, что вдохновлялись вовсе не театром, а галереей Пунта Догана. Помимо образной нейтральности и заветов театра Мейерхольда, «отменившего изобразительность», архитекторы руководствовались парадоксальным в применении к театральному пространству понятием «монастырское» – слово, чья семантика предельно далека от лицедейства, внезапно возникло в ходе обсуждений, и закрепилось, сформировав образный ряд, сутью которого стала аскеза как воплощение несколько брутального минимализма интерьеров Малой сцены.

Аскетичность проявляется прежде всего в минимальном количестве материалов отделки. Основной тон задают «бетонные» стены зала. Серые панели с характерными кружочками полностью окружают коробку сцены. С той лишь разницей, что они только имитируют бетон: панели фанерные, а кружочки-выемки это вовсе не следы опалубки, они скрывают выходы крепежа для декораций, о которых говорилось выше.
«Электротеатр Станиславский». Малая сцена © Wowhaus
«Электротеатр Станиславский». Малая сцена © Wowhaus

Такая имитация продиктована акустическими требованиями к площадке. За резонирующей псевдобетонной обшивкой каркас заполнили базальтовым волокном, над техническим потолком установили панели Ecophone, двери обшили плотным пятимиллиметровым войлоком, но прежде стенам придали необходимую кривизну, учитывая оба варианта расположения зрителей. В результате новое театральное пространство в бывшей хозпостройке по акустическим показателям стало пригодно и для музыкальных постановок.

На стенах фойе за «бетонную» фактуру поверхностей отвечает декоративная штукатурка. «Бетон» дополнен черным цветом металлических конструкций: в зале это потолок, софиты, двери и зрительские сиденья, а в фойе круглая опора-колонна, переплеты витражей, поверхности дверей, пространство гардероба, каркас мебели. Серый цвет с черными прорисовками строг и холоден, но их сочетание оттеняет теплое дерево цвета «медовый дуб»: из него сделан пол сценической коробки и балки.
«Электротеатр Станиславский». Малая сцена © Wowhaus
«Электротеатр Станиславский». Малая сцена © Wowhaus
«Электротеатр Станиславский». Малая сцена © Wowhaus © Wowhaus
«Электротеатр Станиславский». Малая сцена © Wowhaus © Wowhaus

Но главным деревянным элементом пространства становится лестница фойе. Она прорастает из серых «бетонных» поверхностей, занимая собой больше трети пространства, связывает два яруса и тем самым становится центральным элементом интерьера. Лестницу хорошо видно из двора сквозь стекло тамбура, она становится интригующим и организующим элементом, прямо-таки по правилам корбюзеанской архитектуры. Форма проста: спираль дифференцирована на три прямых отрезка, углы за редким исключением прямые, балюстрада глухая. Редкие детали – такие как углубленный в деревянную стену подсвеченный желобок поручня – на тактильном уровне напоминают, что мы находимся в «аскетичном», молодежном, но все-таки театре.
«Электротеатр Станиславский». Малая сцена © Wowhaus
«Электротеатр Станиславский». Малая сцена © Wowhaus
«Электротеатр Станиславский». Малая сцена © Wowhaus
«Электротеатр Станиславский». Малая сцена © Wowhaus
«Электротеатр Станиславский». Малая сцена © Wowhaus
«Электротеатр Станиславский». Малая сцена © Wowhaus
«Электротеатр Станиславский». Малая сцена © Wowhaus
«Электротеатр Станиславский». Малая сцена © Wowhaus
«Электротеатр Станиславский». Малая сцена © Wowhaus
«Электротеатр Станиславский». Малая сцена © Wowhaus
«Электротеатр Станиславский». Малая сцена © Wowhaus
«Электротеатр Станиславский». Малая сцена © Wowhaus

Подобный же семантический штрих – деревянная рама окна гардероба: в ней угадывается как консерватизм небольших провинциальных театров и кинотеатров, так и тонкая метафизическая ирония над пространством картины-гардероба в раме. Как будто зритель, сдавши пальто, передает его в некое иное субпространство, чем отгораживает себя от внешнего мира и погружается в театр. Но эта деталь с рамой – практически единственное, за что здесь может зацепиться интерпретатор.
«Электротеатр Станиславский». Малая сцена © Wowhaus
«Электротеатр Станиславский». Малая сцена © Wowhaus
«Электротеатр Станиславский». Малая сцена © Wowhaus
«Электротеатр Станиславский». Малая сцена © Wowhaus

В остальном Малая сцена выглядит так, будто ее очистили до базовых элементов, избавив от тяжести лишнего. В данном случае брутализм – театрален, он сам декорация, часть архитектурной «пьесы» здания, которое, с одной стороны, устраняется, тушуется, чтобы не мешать актерам и зрителям, а с другой – подчеркивает как подчиненный характер Малой сцены по отношению к более яркой главной, так и ее предназначение для ученических постановок и дебютов. Аскеза получается не спиритуалистическая и уж как минимум ни разу не церковная, а более простая и близкая – подчеркнутая бедность студента, начинающего профессионала, который терпит нужду сознательно: ради свободы творчества и ради собственного развития.
 
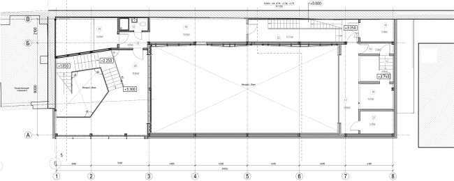
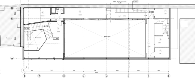
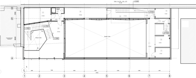
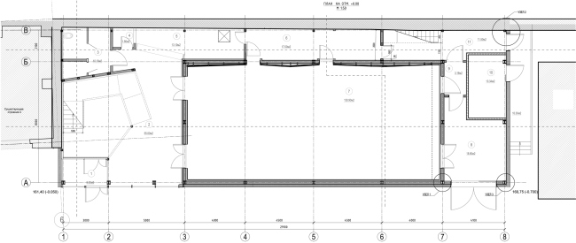
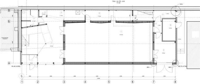
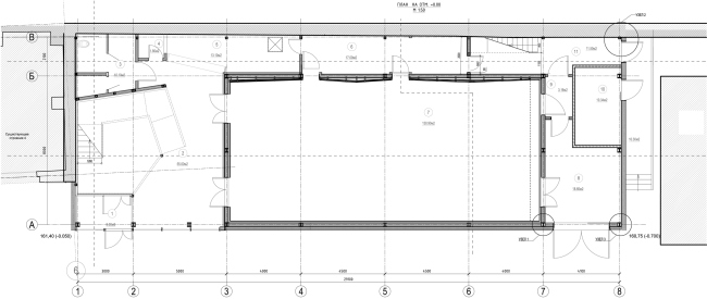
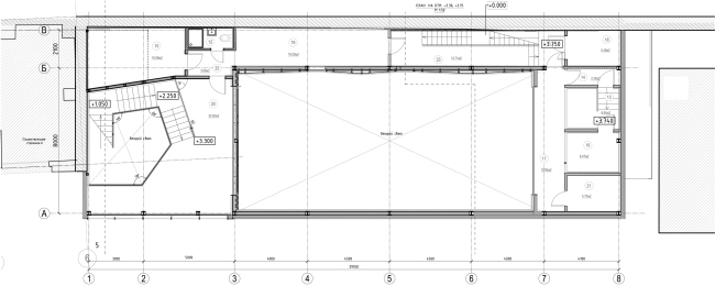
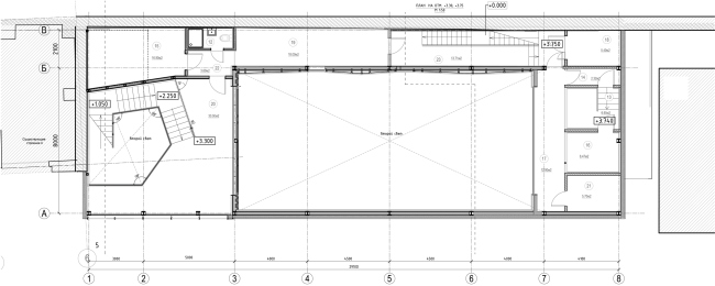
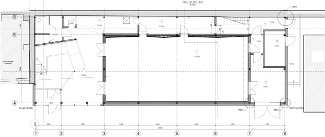
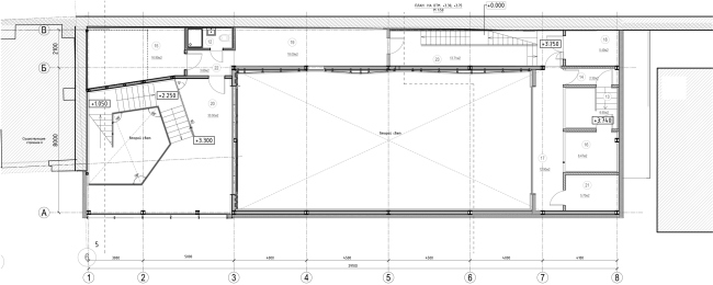
Строение 3 (Малая сцена), план на 0 отметке. «Электротеатр Станиславский» © Wowhaus
Строение 3 (Малая сцена), план на 0 отметке. «Электротеатр Станиславский» © Wowhaus
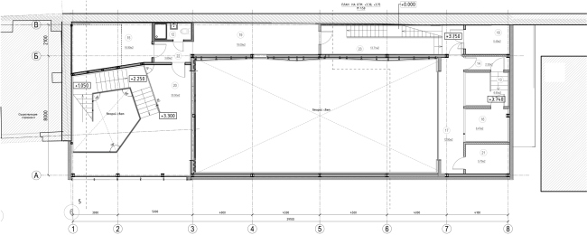
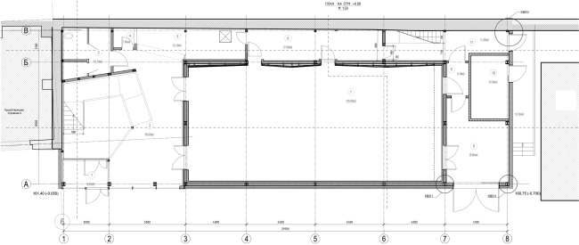
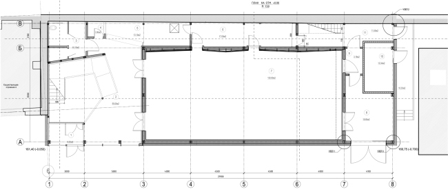
Строение 3 (Малая сцена), план по антресолям. «Электротеатр Станиславский» © Wowhaus
Строение 3 (Малая сцена), план по антресолям. «Электротеатр Станиславский» © Wowhaus
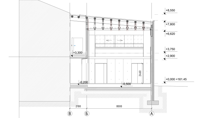
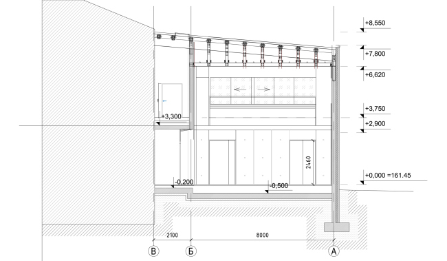
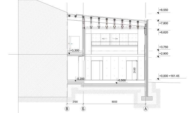
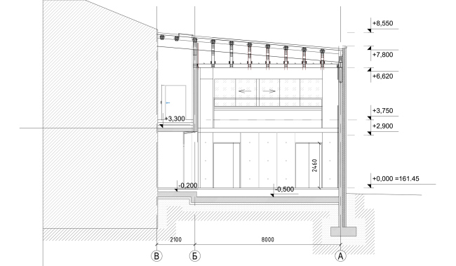
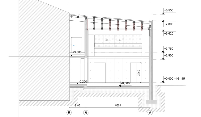
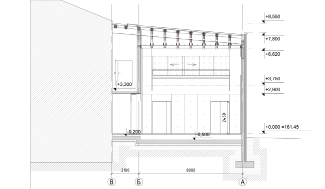
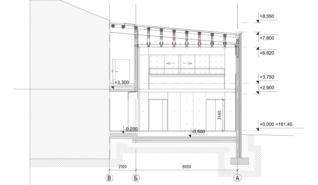
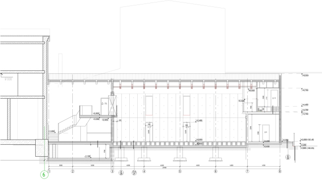
Малая сцена, поперечный разрез. «Электротеатр Станиславский» © Wowhaus
Малая сцена, поперечный разрез. «Электротеатр Станиславский» © Wowhaus
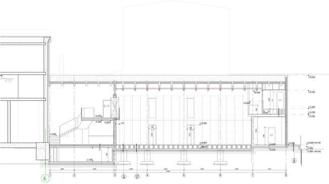
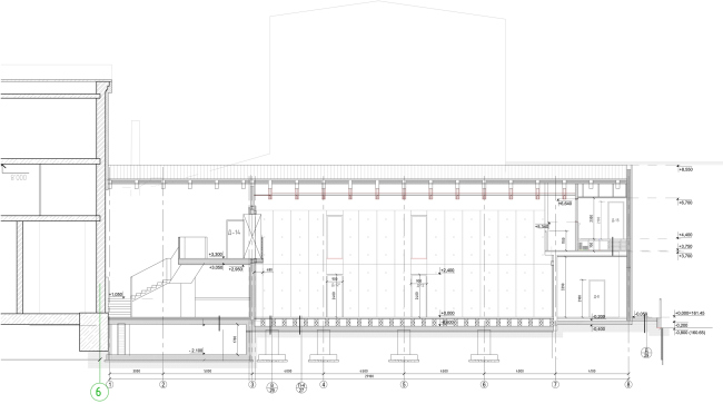
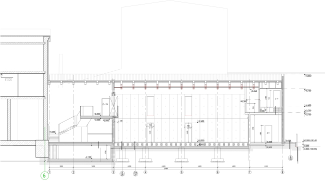
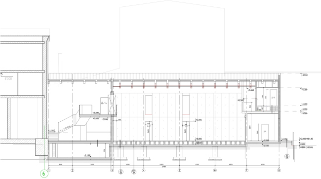
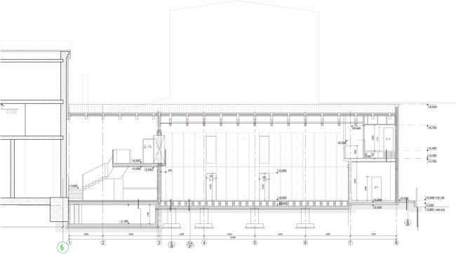
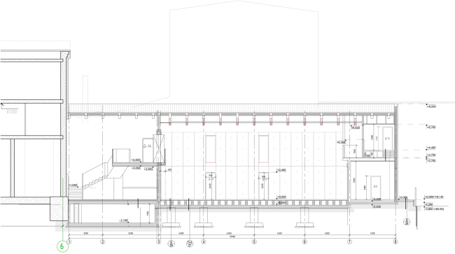
Строение 3 (Малая сцена), продольный разрез. «Электротеатр Станиславский» © Wowhaus
Строение 3 (Малая сцена), продольный разрез. «Электротеатр Станиславский» © Wowhaus