Размещено на портале Архи.ру (www.archi.ru)

06.06.2016

«Смычка города и деревни»

Юлия Тарабарина, Антонина Плахина
Объект:
Город-курорт «Май» (Жилой район Горки)
Адрес:
Россия, Московская область,, Горки
Архитектор:
Даниил Лоренц
Наталья Сидорова
Константин Ходнев
Мастерская:
DNK ag
Авторский коллектив:
Архитекторы: Даниил Лоренц, Наталья Сидорова, Константин Ходнев, Елена Каширина, Игорь Каширин, Мария Кочуркина, при участии Екатерины Панкевич и Павла Швецова

Работая над реальным проектом, архитекторы ДНК аг увидели в этом опыте удачную возможность для отработки принципов компактной, но разнообразной и комфортной застройки.

Жилой район Горки. Вид с высоты птичьего полета. Проект, 2015 © ДНК аг
Жилой район Горки. Вид с высоты птичьего полета. Проект, 2015 © ДНК аг

Проект жилого района, о котором идет речь – вполне реальный: уже идет стройка, и достаточно масштабный: 110 000 м2 на 14 гектарах в 10 км от МКАД по Каширскому шоссе. Архитекторы ДНК аг убеждены, что в данном случае им повезло: удалось поработать последовательно над всеми стадиями проекта и всеми его составляющими от генплана до благоустройства, и найти взаимопонимание с заказчиком по многим вопросам. Ограничения высотности и бюджета, также как и значительный – 28 м – перепад рельефа на участке, архитекторы тоже рассматривают как удачу, поскольку эти факторы поставили проект в рамки, заставили его стать таким, каким он стал. Так что авторы видят в получившемся жилом районе не просто еще одну реализацию, а – пример того, как хочется и как надо проектировать жилые районы. Позитивный пример, позволивший изучить на материале тот вариант застройки, которому они, да и многие из нас, давно отдают предпочтение в душе, но который почти не встречается в российской реальности.

Ведь что мы как правило видим в Подмосковье, в особенности недалеко от МКАДа? – дома гигантской высоты, до 25-30 этажей. Энергично растущие вверх края московского «блюдечка», о котором градостроители с опаской говорили еще в 1980-е годы. За китайскими стенами бюджетных гигантов, а теперь уже подчас и между ними, роятся дачные хижины и пышные дворцы; условный Сингапур прорастает прямо сквозь советские СНТ, и назвать эту картину гармоничной нельзя никак: ни город, ни деревня.

Так что архитекторы ДНК аг называют свой проект, частью в шутку, частью всерьез, «смычкой города и деревни», поскольку: «в основе концепции лежит представление о районе как о гибриде между сельским поселением и городом».

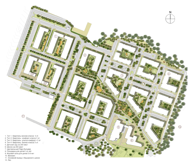
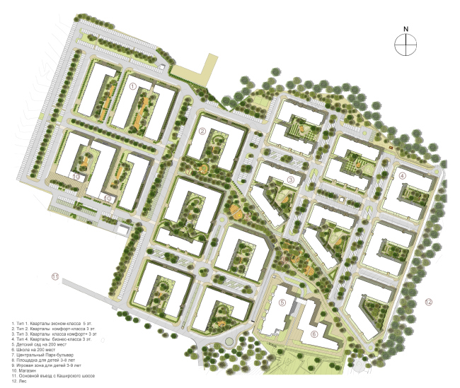
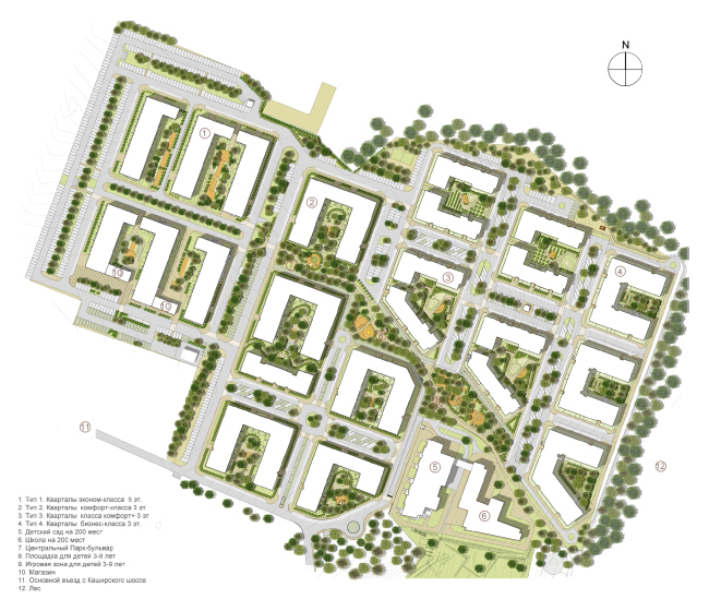
Итак, требовалось спроектировать сравнительно недорогое жилье, поэтому отдельных домов и даже таунхаусов здесь быть не могло. Но предложение должно было стать также и разнообразным, иметь спрос у разных категорий покупателей: от одиночек, предпочитающих студии, до семей. Высотные ограничения определялись тем, что к востоку, за лесом, находится музей-заповедник «Горки Ленинские»: ближе к лесу можно было строить трехэтажные дома, ближе к шоссе – пятиэтажные, дискуссий о повышении высотности быть не могло и не было. Третья особенность – сложный, но выразительный ландшафт, склон, холмы.
Жилой район Горки. Схема. Проект, 2015 © ДНК аг
Жилой район Горки. Схема. Проект, 2015 © ДНК аг

На рельеф склона архитекторы наложили ортогональную гипподамову сетку с шагом 60х60 м, а затем поступили с ней так же, как и древние греки, строившие свои регулярные города на горных склонах: скорректировали сетку там, где потребовалось. Поэтому ячейки периметральной застройки – дома-кварталы в основном подчинены тяготеющему к квадрату П-образному плану, который раскрыт «ножками» к лучшим для каждого случая видам, на лес или на поле. Но вдоль диагонали бульвара «П» отставляет одну ножку в сторону и превращается в «Л»; а ближе к шоссе дома сильнее замыкаются, превращаются в зигзаги и восьмерки. В каждом доме не больше четырех секций, что тоже соответствует принципам компактного города.
Жилой район Горки. Схема. Проект, 2015 © ДНК аг
Жилой район Горки. Схема. Проект, 2015 © ДНК аг

Планировочная сетка, как и полагается по правилам Гипподама, нанизана на два бульвара, пересекающихся под прямым углом. Их планируется озеленить и благоустроить, превратить в закрытые для машин прогулочные скверы с детскими площадками и прочими урбанистическими радостями – архитекторы называют их «линейным парком». Но кроме того важно, что трассы бульваров не произвольны; они не рождены абстратно-геометрической фантазией планировщика, а привязаны к месту и контексту, можно сказать, что рождены им. Первый бульвар проложен по параллельной шоссе линии лесопосадок: архитекторы сохранили крупные деревья, дополнили их новыми и использовали улучшенную лесопосадку как границу между первой и второй очередью. Первой очередью построят пятиэтажные дома у шоссе.

Второй, перпендикулярный бульвар начинается от шоссе и идет в сторону леса, но на 2/3 пути сворачивает по углом к юго-востоку. Поворот не случаен: трасса указывает на поселок Горки Ленинские и должна стать началом пути к нему через лес, по которому можно будет выйти к музею Ленина, чье здание построил Леонид Павлов. В этом же направлении дети смогут ходить в школу Горок Ленинских – по прямой до нее 2 км, в обход сейчас – 6 км, а с новой тропой будет примерно 3 км, за полчаса вполне можно одолеть.

Кроме того, бульвары соединяют два общественных центра нового поселка: одним из них будет небольшой торговый центр, группа магазинов и «центр обслуживания» в пятиэтажных домах у шоссе, вторым – детский сад и начальная школа на холме в юго-восточной части территории, в конце диагонального бульвара, как раз по пути в Горки Ленинские. Дети помладше, таким образом будут идти в сад и школу по бульвару, школьники постарше проводят братьев и двинутся дальше, через лес. Школу и детский сад проектируют другие архитекторы, но в близкой ДНК современной стилистике и даже с некоторыми перекличками, так что целостность комплекса не нарушится.

Бульвары пешеходные, а подземных парковок нет. Для того, чтобы автомобили не стояли рядами на асфальтовых полях, как перед супермаркетом, архитекторы проработали карту парковочных карманов, которые где-то чередуются с деревьями, распределяются по территории равномерно, но всегда по внешнему контуру домов: дворы приватные и машины туда не допускают.

При заметной цельности, общности модуля, масштаба и планировочной сетки, дома разнообразны. Согласно заданию, здесь соседствуют четыре класса квартир – эконом, комфорт, комфорт плюс и бизнес. Архитекторы распределили их своего рода «градиентом», плавно растянув типологию от пятиэтажных экономных домов – к самым комфортным и просторным домам возле леса. Но все дома многоквартирные, квартиры одноярусные. Лифты есть только в пятиэтажных домах первой очереди; в них однокомнатные квартиры чередуются со студиями. Все остальные дома, от второго до четвертого типов трехэтажные, но виды из окон улучшаются по мере спуска со склона улучшаются, а размеры квартир увеличиваются, в восточной части района преобладают двух- и трехкомнатные квартиры.
Жилой район Горки, 2015. Генеральный план © ДНК аг
Жилой район Горки, 2015. Генеральный план © ДНК аг
Жилой район Горки. Разрез. Проект, 2015 © ДНК аг
Жилой район Горки. Разрез. Проект, 2015 © ДНК аг

«Растягиваясь» по склону типологическим градиентом, дома и визуально спускаются по нему – ступеньками. Ступеням плоских крыш вторят на торцах то террасы, то консоли, и объемы кажутся сложенными из крупных и плоских «слоев» жилья. В этом они вторят построению ландшафта на склоне – тоже местами террасному, с множеством подпорных стенок. Здесь нужно сказать, что экспериментируя с возможностями жилья, архитекторы предусмотрели собственные садики при квартирах первого этажа: палисадники, которые где-то могут служить даже мини-огородом. Палисадники при домах от 1 до 3 типа выглядят достаточно скромно, зато во дворах домов 4 типа устроены настоящие ступенчатые сады, причем авторы рассматривают возможность создания жителями мини-огородов и цветников не только на делянке перед выходом из собственной квартиры, но и посреди двора – что апеллирует к практике «городских ферм», популярных сейчас в европейских городах: их там создают сами жители. Поэтому при домах 2 и 3 типов нарисованы палисадники при квартирах, а в домах 4 типа у леса, самых дорогих, появляется террасный огород посреди двора. Впрочем склон освоен не только террасами, но и вьющимися тропами, устроенными в виде серпантина, что позволяет выполнить все требования по доступности для людей с ограниченными возможностями.
Жилой район Горки. Тип домов 4. Проект, 2015 © ДНК аг
Жилой район Горки. Тип домов 4. Проект, 2015 © ДНК аг
Жилой район Горки. Тип домов 4. Проект, 2015 © ДНК аг
Жилой район Горки. Тип домов 4. Проект, 2015 © ДНК аг

Дома у леса с террасами особенно живописны и многоуровневы. Кровли здесь эксплуатируемые, на них ведут винтовые металлические лестницы. Вертикально-полосатые фасады кажутся составленными из разнотоновых деревянных плашек, от старого темного до почти розового; балконы выступают треугольниками – как будто дождь лил на стены и они покоробились, а доски состарились неравномерно, одним досталось больше олифы, другим меньше… Эффект, разве что, может быть, чуточку укрупненный, достигается использованием фиброцементных «досок» Этернит-Кедрал с фактурой дерева. «Доски» поставлены вертикально и с наложением, полностью повторяя таким образом норвежскую систему облицовки; за треугольными выступами балконов прячутся кондиционеры. Разноцветному фиброцементу вторит пестрая терракота кирпича подпорных стенок, оттененная травянистыми рамками входных откосов. Ощущение дачной, деревенской теплоты, перемешанной с сыростью свежей зелени, оказывается довольно густым, хотя где-то на периферии сознания и понимаешь, что трехэтажный дом не дачная веранда. Но эти дома образно – «деревенская» ступень: здесь и огороды, а ступенчатые террасы на торцах прямо-таки предназначены для созерцания восхода над лесом, как над морем.
Жилой район Горки. Тип домов 4. Проект, 2015 © ДНК аг
Жилой район Горки. Тип домов 4. Проект, 2015 © ДНК аг
Жилой район Горки. Тип домов 4. Проект, 2015 © ДНК аг
Жилой район Горки. Тип домов 4. Проект, 2015 © ДНК аг
Жилой район Горки. Тип домов 4. Проект, 2015 © ДНК аг
Жилой район Горки. Тип домов 4. Проект, 2015 © ДНК аг
Жилой район Горки. Фасад. Проект, 2015 © ДНК аг
Жилой район Горки. Фасад. Проект, 2015 © ДНК аг

Взбираясь по склону, дома обзаводятся более сдержанными, но не менее оживленными фасадами. Фиброцементные «доски» используются и здесь, в сочетании с кирпичом, но кирпича меньше, что поддерживает дачно-деревенскую тему. Здесь кирпич так же пестр, а доски однотонные, зато фасады соседних секций решены по-разному, уподобляя их поставленным в ряд отдельным домам (похожий прием, только в большем масштабе, архитекторы ДНК использовали в проекте «Рассвет 3.34»). Возникающие на торцах консоли поддерживают тему старого города, или просто городского центра, но очень ненавязчиво, они же вызывают в памяти европейские малоэтажные знаменитости, какой-нибудь «Жилой гибрид» MVRDV, которым, как кажется, авторы отчасти вдохновлялись.
Жилой район Горки. Тип домов 2, 3. Проект, 2015 © ДНК аг
Жилой район Горки. Тип домов 2, 3. Проект, 2015 © ДНК аг
Жилой район Горки. Тип домов 2, 3. Проект, 2015 © ДНК аг
Жилой район Горки. Тип домов 2, 3. Проект, 2015 © ДНК аг
Жилой район Горки. Тип домов 2, 3. Проект, 2015 © ДНК аг
Жилой район Горки. Тип домов 2, 3. Проект, 2015 © ДНК аг
Жилой район Горки. Тип домов 2, 3. Проект, 2015 © ДНК аг
Жилой район Горки. Тип домов 2, 3. Проект, 2015 © ДНК аг
Жилой район Горки. Фасад. Проект, 2015 © ДНК аг
Жилой район Горки. Фасад. Проект, 2015 © ДНК аг
Жилой район Горки. Фасад. Проект, 2015 © ДНК аг
Жилой район Горки. Фасад. Проект, 2015 © ДНК аг

Пятиэтажные дома у шоссе выглядят наиболее городскими; более того, ближе к шоссе, которое служит «городской» границей комплекса, они кирпичные, а затем дробятся на отдельные, но более вертикальные домики-секции, светло-бежевые, оранжевые и довольно яркие. Здесь, напомним, расположены магазины, сервисы и даже офис врача общей практики.
Жилой район Горки. Тип домов 1. Проект, 2015 © ДНК аг
Жилой район Горки. Тип домов 1. Проект, 2015 © ДНК аг
Жилой район Горки. Тип домов 1. Проект, 2015 © ДНК аг
Жилой район Горки. Тип домов 1. Проект, 2015 © ДНК аг
Жилой район Горки. Тип домов 1. Проект, 2015 © ДНК аг
Жилой район Горки. Тип домов 1. Проект, 2015 © ДНК аг
Жилой район Горки. Тип домов 1. Проект, 2015 © ДНК аг
Жилой район Горки. Тип домов 1. Проект, 2015 © ДНК аг

Надо сказать, что комплекс выглядит сколь разнообразно, столь же и целостно, узнаваемо – не распадается и не дробится. Объединить его помогают, помимо общей планировочной сетки, ряд приемов: единство фасадных материалов, где перемежаются фиброцементные «доски» и кирпич, причем кирпич нарастает в сторону шоссе, а «доски» – к лесу. Кроме того, фасады всех домов оживлены прозрачными эркерами, похожими на выдвинутые ящики комода – популярный прием современной архитектуры позволяет усилить пластику и подарить человеку, вышедшему на такой балкон-эркер, ощущение полета, левитации в пространстве.

Тема «градиента» тоже становится мощным объединяющим началом: архитекторы как будто поют одну ноту, повышая и понижая тональность. Кстати сказать, озеленение тоже подчинено «растяжке», только если высотность, плотность и урбанистичность нарастают к западу, к шоссе, то зелень усиливается и как будто даже раскрепощается к востоку и лесу. В наиболее урбанизированной части деревья встроены в кружочки мостовой, в средней мы видим выстриженные «версальские» баскеты, а на террасированном склоне – что-то огородное и вьющееся. Впрочем, избыточного ландшафтного дизайна здесь нет. «Типы зеленых насаждений зонируются в соответствии с иерархией общественных пространств, – рассказывает Константин Ходнев. – Мы не могли позволить себе сложный ландшафтный дизайн на всей территории, поскольку он требует больших первоначальных вложений и дорогостоящего ухода. Поэтому наиболее насыщенными ландшафтными событиями становятся дворы и линейный парк – там, где люди непосредственно взаимодействуют с природой. Нам бы хотелось, чтобы люди проводили больше времени на улице, и хорошее благоустройство стимулирует к этому».
***

Проект выглядит привлекательно, но еще любопытнее тяготение его авторов к тому, чтобы рассматривать эту работу как штудию элементов и актуальных принципов жилой застройки, не все из которых пока прижились в российской действительности, а которые прижились – те нередко в искаженном варианте. Поэтому попробуем определить, какой именно идеал жилья здесь предлагают архитекторы. Какое оно?

1. Недорогое
В проекте на это указывает как минимум отсутствие подземных парковок, двухъярусных квартир и вилл; сравнительно экономный, но долговечный материал фасадов.

2. Невысокое, но не одноэтажное
Формат компактного города – именно 3-5 этажей, 8-9, наверное, уже много. При небольшой высоте дворы тоже получаются сравнительно небольшими, камерными, ощутимо меньше, чем в сталинских 9-этажных домах. С другой стороны, многоэтажность задает определенную плотность, которая позволяет остаться в рамках разумной цены.

3. Квартальное
Супер-популярная тема квартала, полузамкнутого каре, не всегда находит адекваное воплощение: в Москве и вокруг размножились гиганткие псевдо-кварталы, выстроенные рамками, но очень высокие. В данном случае авторы нашли, да и обстоятельства им подсказали, приятный масштаб квартала.

4. Разнообразное
В рамках не слишком дорогих материалов можно добиться разнообразия, подойдя к задаче творчески.

5. Привязанное к задаче, местности, контексту
Нередко главным предметом экономии становятся усилия архитекторов, хотя известно, что они – не главная статья расходов в любом строительстве даже при российских невысоких гонорарах. Здесь очевидно, что аналитических и творческих усилий архитекторов приложено много: авторы уловили множество подсказок местности, как ближних, так и дальних (школа в Горках Ленинских), и «вырастили» проект из этих подсказок. Проект индивидуален, проект оглядывается на все условия и ограничения, не сетуя на них, а радуясь им и опираясь на них.

6. Цельное
Несмотря на разнообразие, в проекте есть множество элементов, объединяющих его в одно целое. Начиная с бульваров и заканчивая фасадными приемами.

7. Пешеходный бульвар
Он же «линейный парк», парк, растянутый вдоль пешеходного променада. Ось общественной жизни жилого района, предлагающий комфортную прогулку между магазинами и школой. Бульвар также становится естественным ограничителем излишнего транзитного движения автомобилей внутри района.

8. Дворы без машин
Известный принцип, сейчас вовсю используется, спорить с ним невозможно. Во дворе должно быть уютно и безопасно.

9. Дворы-палисадники
Относительно новый принцип, хотя тоже уже известный, но используется редко. Другие примеры в России: «Сколково-парк» в Зарядье, более дорогой; дом в Кронштадте, более дешевый. ДНК аг не только устраивают палисадники у квартир первых этажей, но и развивают тему, вынося частные сады-огороды в центр двора. В таких случаях обычно пишут: посмотрим, что получится.

10. Машины между деревьев
Парковочные места распределены не полями, а равномерно снаружи вокруг домов.

11. Террасы и серпантины
Удобный вариант организации холмистого рельефа, террасы позволяют удержать почву, да и выглядят нездешне красиво; вьющиеся дороги и тропинки обеспечивают доступ автомобилей и удобны для людей с ограниченными возможностями. Кроме того, дорога в виде серпантина относится к пассивным методам снижения скорости движения, что увеличивает безопасность внутри района.

12. Плавный переход «от города к деревне»
Тоже известный прием, но здесь архитекторы вложили в него всю душу, придумав «растяжку», которая не выходит за рамки приятой многоэтажной типологии, то есть не буквально воплощает перерастание от одного к другому, но обеспечивает плавную смену тематических аккордов, работая как на разнообразие, так и на ненавязчивость сочетания четырех типов жилья, подешевле и подороже. 
***