Размещено на портале Архи.ру (www.archi.ru)

25.12.2015

Квадратура круга

Объект:
Инновационный центр «Сколково». Район D2 «Технопарк». Жилой квартал №9
Адрес:
Россия,
Мастерская:
БРТ РУС
Авторский коллектив:
Президент компании БРТ РУС: Хади Тегерани
Генеральный директор компании БРТ РУС: Юрий Журавлев
Главный архитектор проекта: Кристоф Вооп
Архитекторы: Роман Горачек, Кай Микш, Вадим Таранов

Авторский коллектив на этапе конкурса: Хади Тегерани, Юрий Журавлев, Кристоф Вооп, Роман Горачек, Кай Микш, Вадим Таранов

Команда, работавшая над конкурсным проектом:
BRT RUS
Hadi Teherani Architects
st raum a (ландшафтная архитектура)
ARUP

Проект жилого квартала №9 в районе D2 «Технопарк» иннограда «Сколково», который строится по проекту бюро БРТ РУС.

Инновационный центр «Сколково». Район D2 «Технопарк». Жилой квартал №9
Инновационный центр «Сколково». Район D2 «Технопарк». Жилой квартал №9
© БРТ РУС

Архи.ру продолжает серию статей о жилых кварталах «Сколково»: мы уже публиковали материалы о квартале №10 UNK project и о квартале №11 Agence d′Architecture Anthony Bechu. Все эти проекты – результат завершившегося в 2012 архитектурного конкурса.
 
Инновационный центр «Сколково». Район D2 «Технопарк». Жилой квартал №9
Инновационный центр «Сколково». Район D2 «Технопарк». Жилой квартал №9
© БРТ РУС

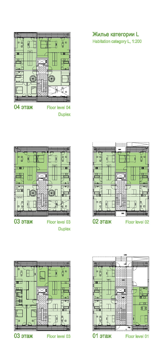
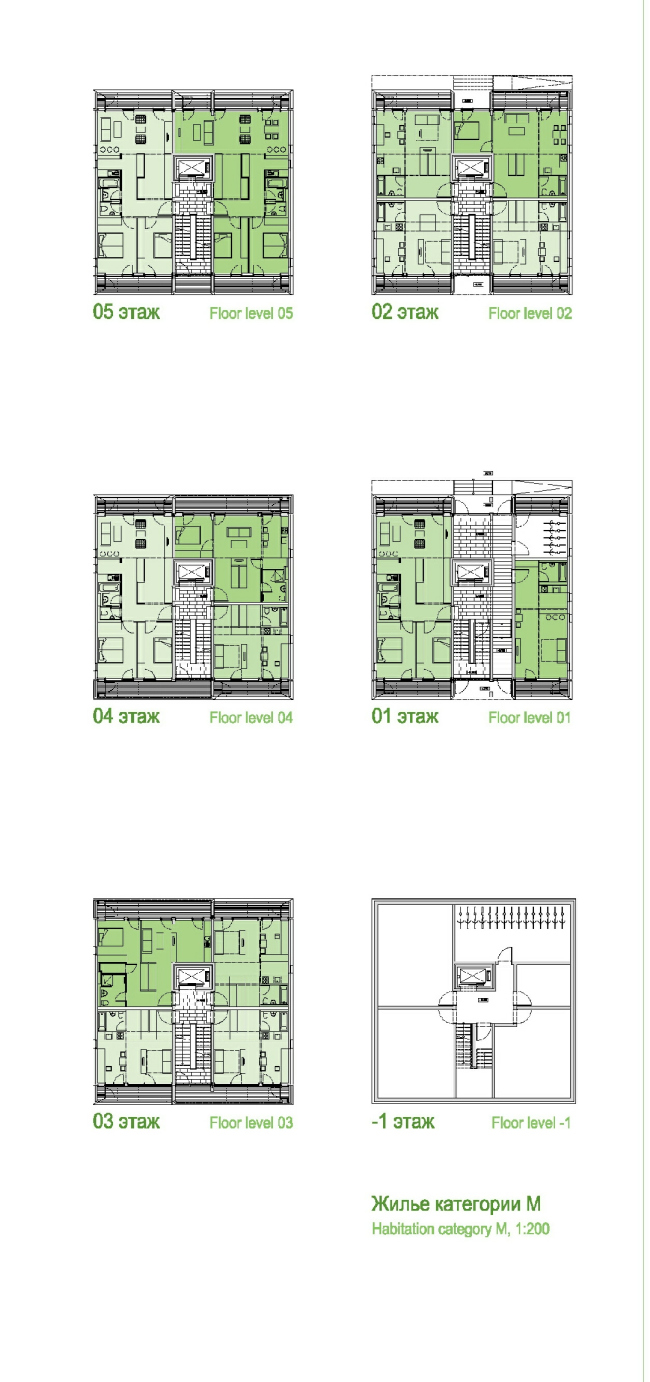
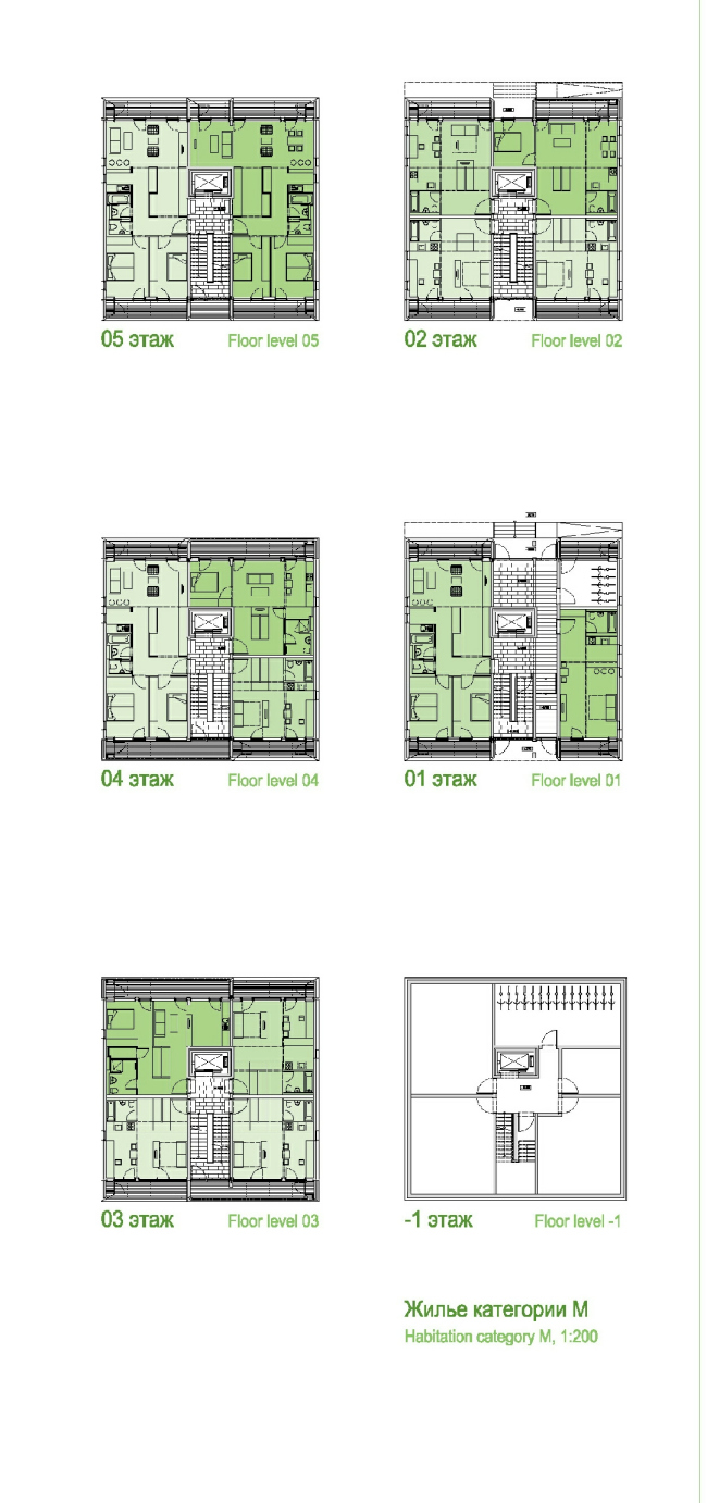
Квартал №9 по проекту БРТ РУС отличается от двух соседних более крупной застройкой: это 4- и 5-этажные корпуса. Их проект развивает тип home4, который руководитель мастерской BRT Хади Тегерани разработал и реализовал в Гамбурге и Кельне; в его основе – ускоряющий и удешевляющий строительство модульный принцип, также обеспечивающий вариативность планировки.
 
Инновационный центр «Сколково». Район D2 «Технопарк». Жилой квартал №9
Инновационный центр «Сколково». Район D2 «Технопарк». Жилой квартал №9
© БРТ РУС

Круглый в плане квартал №9 заполнен «кубами», расположенными в напоминающем шахматный порядке. Конкурсный проект предусматривал строительство 14 корпусов-«кубов» и общественного центра, однако затем число жилых домов сократилось до 13. Их квадратные основания сочетаются со схожим ландшафтным решением, где отдельные «квадраты» и «прямоугольники» приподняты и озеленены, а другие, оставшиеся на уровне земли, вымощены.
 
Инновационный центр «Сколково». Район D2 «Технопарк». Жилой квартал №9
Инновационный центр «Сколково». Район D2 «Технопарк». Жилой квартал №9
© БРТ РУС

Основное общественное и транзитное пространство проходит сквозь квартал, к нему примыкают общественные и полуобщественные зеленые участки, также предусмотрены частные сады. Особое внимание архитекторы уделили пешеходным связям комплекса с окружающей квартал общей для всего «Сколково» парковой зоной. Подземные этажи домов можно будет использовать для хранения велосипедов, детских колясок и пр., также там возможно размещение предприятий бытового обслуживания.
 
Инновационный центр «Сколково». Район D2 «Технопарк». Жилой квартал №9
Инновационный центр «Сколково». Район D2 «Технопарк». Жилой квартал №9
© БРТ РУС

Облик основных фасадов определяют остекленные лоджии, на торцевых площадь остекления значительно меньше. Фасады будут покрыты фибробетонными панелями, планируется установить теплоизоляционные стеклопакеты. Важным экологическим компонентом проекта являются зеленые крыши всех корпусов, которые улучшат их изоляцию; также постройки продуманно ориентированы по сторонам света, при строительстве используются экологически чистые перерабатываемые материалы и т.д.
Инновационный центр «Сколково». Район D2 «Технопарк». Жилой квартал №9
Инновационный центр «Сколково». Район D2 «Технопарк». Жилой квартал №9
© БРТ РУС
Инновационный центр «Сколково». Район D2 «Технопарк». Жилой квартал №9
Инновационный центр «Сколково». Район D2 «Технопарк». Жилой квартал №9
© БРТ РУС
Инновационный центр «Сколково». Район D2 «Технопарк». Жилой квартал №9
Инновационный центр «Сколково». Район D2 «Технопарк». Жилой квартал №9
© БРТ РУС
Инновационный центр «Сколково». Район D2 «Технопарк». Жилой квартал №9
Инновационный центр «Сколково». Район D2 «Технопарк». Жилой квартал №9
© БРТ РУС
Инновационный центр «Сколково». Район D2 «Технопарк». Жилой квартал №9
Инновационный центр «Сколково». Район D2 «Технопарк». Жилой квартал №9
© БРТ РУС
Инновационный центр «Сколково». Район D2 «Технопарк». Жилой квартал №9
Инновационный центр «Сколково». Район D2 «Технопарк». Жилой квартал №9
© БРТ РУС
Инновационный центр «Сколково». Район D2 «Технопарк». Жилой квартал №9
Инновационный центр «Сколково». Район D2 «Технопарк». Жилой квартал №9
© БРТ РУС
Инновационный центр «Сколково». Район D2 «Технопарк». Жилой квартал №9
Инновационный центр «Сколково». Район D2 «Технопарк». Жилой квартал №9
© БРТ РУС
Инновационный центр «Сколково». Район D2 «Технопарк». Жилой квартал №9
Инновационный центр «Сколково». Район D2 «Технопарк». Жилой квартал №9
© БРТ РУС
Инновационный центр «Сколково». Район D2 «Технопарк». Жилой квартал №9. Октябрь 2015
Инновационный центр «Сколково». Район D2 «Технопарк». Жилой квартал №9. Октябрь 2015
Фотография предоставлена Департаментом по связям с общественностью АО «ИНТЕКО»
Инновационный центр «Сколково». Район D2 «Технопарк». Жилой квартал №9. Октябрь 2015
Инновационный центр «Сколково». Район D2 «Технопарк». Жилой квартал №9. Октябрь 2015
Фотография предоставлена Департаментом по связям с общественностью АО «ИНТЕКО»
Инновационный центр «Сколково». Район D2 «Технопарк». Жилой квартал №9. Октябрь 2015
Инновационный центр «Сколково». Район D2 «Технопарк». Жилой квартал №9. Октябрь 2015
Фотография предоставлена Департаментом по связям с общественностью АО «ИНТЕКО»
Инновационный центр «Сколково». Район D2 «Технопарк». Жилой квартал №9. Октябрь 2015
Инновационный центр «Сколково». Район D2 «Технопарк». Жилой квартал №9. Октябрь 2015
Фотография предоставлена Департаментом по связям с общественностью АО «ИНТЕКО»
Инновационный центр «Сколково». Район D2 «Технопарк». Жилой квартал №9. Октябрь 2015
Инновационный центр «Сколково». Район D2 «Технопарк». Жилой квартал №9. Октябрь 2015
Фотография предоставлена Департаментом по связям с общественностью АО «ИНТЕКО»
Инновационный центр «Сколково». Район D2 «Технопарк». Жилой квартал №9. Октябрь 2015
Инновационный центр «Сколково». Район D2 «Технопарк». Жилой квартал №9. Октябрь 2015
Фотография предоставлена Департаментом по связям с общественностью АО «ИНТЕКО»
Инновационный центр «Сколково». Район D2 «Технопарк». Жилой квартал №9. Октябрь 2015
Инновационный центр «Сколково». Район D2 «Технопарк». Жилой квартал №9. Октябрь 2015
Фотография предоставлена Департаментом по связям с общественностью АО «ИНТЕКО»
Инновационный центр «Сколково». Район D2 «Технопарк». Жилой квартал №9. Октябрь 2015
Инновационный центр «Сколково». Район D2 «Технопарк». Жилой квартал №9. Октябрь 2015
Фотография предоставлена Департаментом по связям с общественностью АО «ИНТЕКО»
Инновационный центр «Сколково». Район D2 «Технопарк». Жилой квартал №9. Октябрь 2015
Инновационный центр «Сколково». Район D2 «Технопарк». Жилой квартал №9. Октябрь 2015
Фотография предоставлена Департаментом по связям с общественностью АО «ИНТЕКО»
Инновационный центр «Сколково». Район D2 «Технопарк». Жилой квартал №9. Октябрь 2015
Инновационный центр «Сколково». Район D2 «Технопарк». Жилой квартал №9. Октябрь 2015
Фотография предоставлена Департаментом по связям с общественностью АО «ИНТЕКО»