Размещено на портале Архи.ру (www.archi.ru)

26.02.2016

Дачный образ

Алла Павликова, Юлия Тарабарина
Объект:
Жилой дом Hobbit Hall
Адрес:
Россия, Москва.
Архитектор:
Роман Леонидов
Мастерская:
АБ Романа Леонидова

Проект, придуманный архитектором первоначально для себя, совмещает технологичную и современную «зелёную кровлю» с ностальгическими темами нашей памяти.

Жилой дом Hobbit Hall © Архитектурное бюро Романа Леонидова
Жилой дом Hobbit Hall © Архитектурное бюро Романа Леонидова

Небольшой дом, чья площадь сравнима с московской «двушкой» – 45 м2, – Роман Леонидов придумал как один из вариантов расширения своей подмосковной дачи. На участке архитектора уже построен вместительный дом, а небольшой отдельный домик предназначался для солнечной лужайки перед ним – архитектор уже некоторое время рисует разнообразные варианты её застройки. Этот же оказался одним из самых необычных и даже не будучи построен успел получить в прошедшем сентябре третье место премии «Эко_тектоника», жюри которой отметило предполагающееся в проекте использование натуральных материалов и особенно – смелое и практичное решение зеленой кровли, чье покатое крыло, плавно поднимаясь от земли накрывает домик почти полностью. Смысл дернового покрытия кровли, с другой стороны, не только эстетический: зимой оно сохраняет тепло, а летом прохладу.

На первый взгляд зеленая кровля дома может показаться врытой в естественный холм наподобие известного дома Бильбо Беггинса: уже немало таких жилищ во всем мире демонстрируют пристрастие их хозяев и риелторов к фэнтези. Дом в проекте Романа Леонидова, однако, не таков, или не совсем таков. Он даже больше похож на высоко-технологичную землянку, чей бессмертный на наших равнинах образ успешно поддерживает помещенная автором в интерьер печь-буржуйка с выведенной наружу трубой; или на парковый hermitage, убежище для романтических размышлений, лишь напоминающее об отшельниках. Дело в том, что никакого холма на территории нет – участок совершенно плоский и покрытое травой «крыло» покатой крыши при взгляде из окна главного дома играло бы роль геопластики, оживляющего рельеф искусственного холма. Два продольных боковых фасада срезаны вертикально, в деревянных стенах – большие окна и сдвижные стеклянные двери позволяют и проветрить, и осветить дом. Навесы кровли далеко выступают с обеих продольных сторон, защищая вымощенные досками террасы от дождя; причем с одной стороны настил – приблизительно в уровне земли, сюда можно выйти из гостиной через сдвижную дверь. А с другой по сторонам от главной входной двери, ведущей в прихожую, помещены два приподнятых сантимеров на пятьдесят то ли лежака, то ли скамейки.
Жилой дом Hobbit Hall. Фасад со стороны главного входа в дом © Архитектурное бюро Романа Леонидова
Жилой дом Hobbit Hall. Фасад со стороны главного входа в дом © Архитектурное бюро Романа Леонидова
Жилой дом Hobbit Hall. Стелкянные перегородки обеспечивают выход из гостиной на открытую террасу © Архитектурное бюро Романа Леонидова
Жилой дом Hobbit Hall. Стелкянные перегородки обеспечивают выход из гостиной на открытую террасу © Архитектурное бюро Романа Леонидова

Толстый «пирог» зеленой кровли покоится на пологом своде, составленном из крупных изогнутых балок из клеёного дерева, и уложенного на них частого ряда поперечных балок поуже. Эта ребристая конструкция особенно эффектно смотрится снаружи, на козырьке над широкой террасой, поддержанном двумя тонкими металлическими опорами. И снаружи, и внутри отделка темным деревом сочетается со светлым.

Интерьер подчеркнуто скромен и практичен: свод зашит фанерой, встречаются перегородки из прессованной древесины; петлями подвешенные к потолку кабели разномастных ламп, холодильник, похожий на советский «ЗИЛ» или «Саратов» и уже упомянутая «буржуйка» довершают дачно-приусадебный образ. На ту же идею работает подчеркнуто состаренная поверхность «бабушкиных комодов» в спальнях и кресла с дизайном семидесятых в гостиных. «Дачное» впечатление – скорее образ, тщательно инсценированный и несколько обманчивый, поскольку если приглядеться, то и печка вполне современная, экономная, не буржуйка, со стеклянной дверцей, через которую можно наблюдать за огнем. И мебель архитектор – для себя ведь – подобрал не роскошную, но качественную. Иными словами, перед нами образ дачи из детских воспоминаний, или даже землянки из фильмов, а вовсе не они сами со всеми историческими недостатками. Скорее так: проектируя небольшое и по-видимому не слишком дорогое жильё, архитектор наделил его узнаваемыми образами такого жилья, скромного и в то же время старосемейного, с воспоминаниями, не слишком нового.

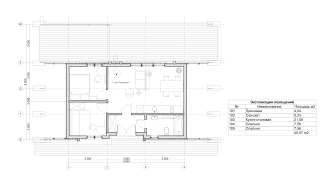
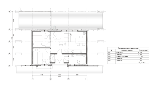
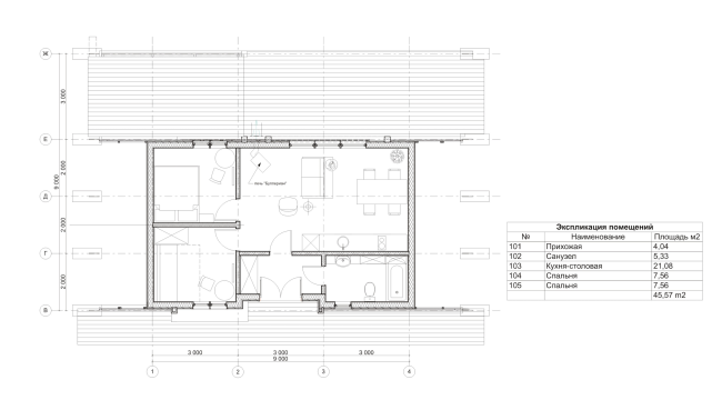
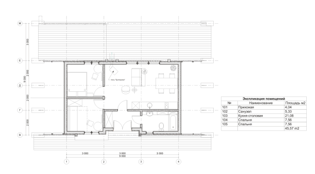
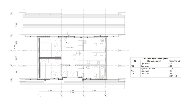
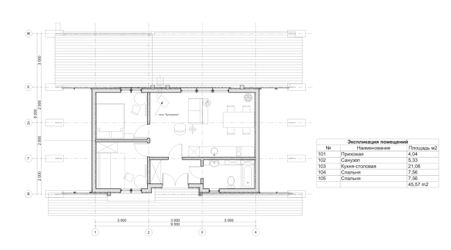
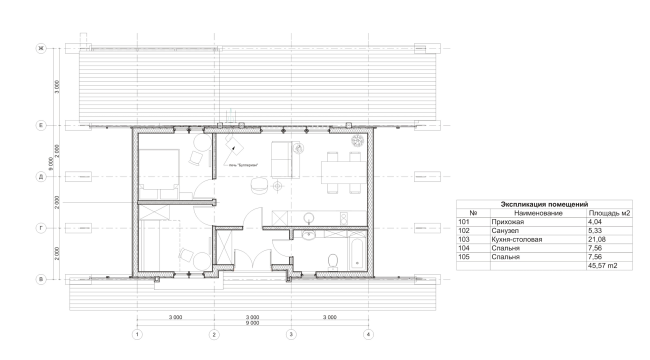
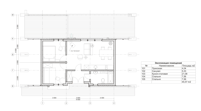
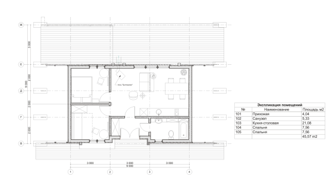
Между тем предполагаются неплохое оснащение и комфорт. Интерьер, кроме того, рационально спланирован, пространство не используется впустую и на 45 метрах нашлось место для 20-метровой гостиной с тем самым камином, санузла, двух спален и кладовки. Прекрасно можно жить семье из трёх человек. Впрочем, в портфолио Романа Леонидова есть более просторные версии похожего дома. Строить же его для себя архитектор пока не собирается, отговариваясь тем, что пусть, пожалуй, проект подождёт своего времени или – хозяина, который оценит идею по достоинству.
 
Жилой дом Hobbit Hall. Интерьер гостиной, совмещенной с кухней и столовой © Архитектурное бюро Романа Леонидова
Жилой дом Hobbit Hall. Интерьер гостиной, совмещенной с кухней и столовой © Архитектурное бюро Романа Леонидова
Жилой дом Hobbit Hall. Интерьер гостиной © Архитектурное бюро Романа Леонидова
Жилой дом Hobbit Hall. Интерьер гостиной © Архитектурное бюро Романа Леонидова
Жилой дом Hobbit Hall. Интерьер гостиной © Архитектурное бюро Романа Леонидова
Жилой дом Hobbit Hall. Интерьер гостиной © Архитектурное бюро Романа Леонидова
Жилой дом Hobbit Hall. Интерьер спальных комнат © Архитектурное бюро Романа Леонидова
Жилой дом Hobbit Hall. Интерьер спальных комнат © Архитектурное бюро Романа Леонидова
Жилой дом Hobbit Hall. Интерьер спальных комнат © Архитектурное бюро Романа Леонидова
Жилой дом Hobbit Hall. Интерьер спальных комнат © Архитектурное бюро Романа Леонидова
Жилой дом Hobbit Hall. План этажа © Архитектурное бюро Романа Леонидова
Жилой дом Hobbit Hall. План этажа © Архитектурное бюро Романа Леонидова