Размещено на портале Архи.ру (www.archi.ru)

07.04.2016

Конструкция в пространстве

Алла Павликова, Юлия Тарабарина
Объект:
Проект загородного дома Forester shack
Адрес:
Россия, Москва.
Архитектор:
Роман Леонидов
Мастерская:
АБ Романа Леонидова

Гостевой дом, спроектированный бюро Романа Леонидова, перекликается со своим прототипом – главным домом, но творчески перерабатывает узнаваемые приемы.

Проект гостевого дома Forester shack. Вид на дом со стороны веранды с барбекю © Архитектурное бюро Романа Леонидова
Проект гостевого дома Forester shack. Вид на дом со стороны веранды с барбекю © Архитектурное бюро Романа Леонидова

Несколько лет назад в ближнем Подмосковье, на живописном участке, окруженном густым сосновым бором, по проекту мастерской Романа Леонидова был построен дом из натурального камня и темного дерева. Немногим позднее его владельцы – люди, привычные к активному образу жизни и общению, решили построить для своих многочисленных гостей отдельный дом меньшего размера. Учтя успешный опыт прежнего сотрудничества, они обратились к тем же архитекторам – Роману и Анастасии Леонидовым.
Дом с полукруглой террасой © Архитектурное бюро Романа Леонидова
Дом с полукруглой террасой © Архитектурное бюро Романа Леонидова

Гостевой дом назвали forester shack, лесная хижина, хотя он не так уж мал, его площадь – 265 м2, что, впрочем, приблизительно в семь раз меньше основной, хозяйской виллы (1892 м2). «Хижина» расположилась поодаль, на хорошо освещенной прогалине соснового леса, и таким образом, что из главного дома её почти не видно за деревьями. Хотя архитектура – перекликается, наследует заданные ранее основные темы: она также построена на контрасте каменной «шубы», темного дерева и стекла. Но гостевой дом строже. Во всяком случае, в отличие от главного дома, обнимающего свой двор полукольцом террас с рядами тонких круглых опор, похожими на портики, а здесь все линии прямые, сечения прямоугольные.

Объем первого этажа – бетонный и, как цоколь, облицован тонкими полосами шершавого темно-серого камня с ассиметрично растущими по сторонам трубами. Верхний этаж – деревянный, и оба они прорезаны множеством стеклянных витражей, широких окон от пола до потолка, которые делают объемы проницаемыми и прозрачными, облегченными снаружи и очень светлыми, раскрытыми к лесным пейзажам, внутри.
Проект гостевого дома Forester shack © Архитектурное бюро Романа Леонидова
Проект гостевого дома Forester shack © Архитектурное бюро Романа Леонидова
Проект гостевого дома Forester shack © Архитектурное бюро Романа Леонидова
Проект гостевого дома Forester shack © Архитектурное бюро Романа Леонидова

«Мы реализовали в этом проекте технологию, которую активно развиваем в последние годы совместно с компанией Newood: когда фахверковая конструкция может дополняться любым другим материалом, – рассказывает Роман Леонидов. – В данном случае это брус и большие витражи. Кроме того, я очень ценю возможности создания большепролетных конструкций, которые предоставляет технология клеёной древесины, – добавляет архитектор».

Действительно, дом активно взаимодействует с внешним пространством, окружая себя обширным и разнородным каркасом террас, лоджий и балконов. Самая большая из них – беседка для барбекю, расположенная параллельно прямоугольнику дома и соединенная с ним коротким перешейком деревянного настила. Её верхнюю границу формирует не только покатый навес от дождя, но и отчасти – проницаемая решетка крупных балок, пропущенных между объемами «каменного» первого и деревянного второго этажей, создающая ощущение воздушной прослойки, а может быть, отчасти даже левитации деревянной надстройки, которая выглядит вовсе не плотно стоящей на своем каменном основании, а как будто бы приготовившейся к движению по направляющим. К тому же один из торцов второго этажа выдвинут глубокой консолью над основанием, так что можно подумать, что движение уже началось. Ещё одна терраса – уже скорее лоджия, покоится на кровле нижнего яруса с другой длинной стороны дома, противоположной барбекю. Надо сказать, что балконы, глубокие выносы пологих кровель и каменный цоколь первого яруса – это узнаваемые элементы структуры альпийского шале; в целом, однако, дом не очень похож на шале, скорее некоторые фрагменты могут вызвать узнаваемые воспоминания, особенно у заядлых лыжников.
Проект гостевого дома Forester shack © Архитектурное бюро Романа Леонидова
Проект гостевого дома Forester shack © Архитектурное бюро Романа Леонидова

Балконы и террасы вместе с открытыми балками и белыми опорами-рамками, напоминающими порталы сценической коробки, формируют вокруг дома некую прозрачную, полуоткрытую конструкцию. Суммарно полученный эффект описывается словами «архитектурная деконструкция» – с самой зрелищной точки зрения дом раскрывает перед зрителем, почти что сердцевину своей структуры. Здесь играет свою роль и тема парковой беседки, и актуальная в последние годы идея руины, тоже – либо парковой, либо античной: белые рамки очень отдаленно, но перекликаются с мраморными наличниками входных проемов, которые нет-нет да и встретишь на каких-нибудь позднеримских развалинах. Пофантазировав, можно представить себе, что перед нами остаток какого-то каменного здания, застроенный деревянными объемами, но не полностью – такой ход мысли с придуманной, но не навязанной историей, тоже довольно актуален в наше время. Кроме того, живописно-распахнутый к лесу дом вполне уместен для своих задач: отдых на природе, барбекю, чай и посиделки на террасах, созерцание сосен из-под навесов.

Широко раскрытый в пространство дом столь же легок и воздушен внутри. Первый этаж почти целиком занят большой гостиной – она же каминная, столовая и кухня. Это главное и самое насыщенное место в доме, с зонами отдыха у камина, барной стойкой и большим обеденным столом. Стена, обращенная к террасе-барбекю, почти полностью занята раздвижной стеклянной перегородкой – летом её можно полностью открыть. Как рассказывает автор интерьера Анастасия Леонидова, помимо визуальных перекличек с главным домом, заказчики просили добавить «больше цвета, света и жизни». Отсюда – контрасты фактур и цвета, к примеру светлого травертина и темного мореного дуба, или темно-серого бетона и белых плоскостей кухонной мебели. Для обогащения палитры эмоций авторы также позволили себе использовать разнообразный текстиль – ковры на полу и лайтбоксы на потолке, и даже ноты эклектики: экземпляры деревянной малоазийской мебели сочетаются с более демократичными и современными предметами.

Из гостиной на второй этаж ведет футуристичная лестница: бетонные ступеньки, непринуждённо вырастая из травертиновой стены, повисают в воздухе, хорошо видимые сквозь прозрачный поручень. В расположенных наверху спальнях напряженный контраст сменяется уютной гармонией светлого орехового дерева с редкими вкраплениями камня и матового стекла дверей.
 
Проект гостевого дома Forester shack. Интерьер © Архитектурное бюро Романа Леонидова
Проект гостевого дома Forester shack. Интерьер © Архитектурное бюро Романа Леонидова
Проект гостевого дома Forester shack. Интерьер © Архитектурное бюро Романа Леонидова
Проект гостевого дома Forester shack. Интерьер © Архитектурное бюро Романа Леонидова
Проект гостевого дома Forester shack. Интерьер © Архитектурное бюро Романа Леонидова
Проект гостевого дома Forester shack. Интерьер © Архитектурное бюро Романа Леонидова
Проект гостевого дома Forester shack. Интерьер © Архитектурное бюро Романа Леонидова
Проект гостевого дома Forester shack. Интерьер © Архитектурное бюро Романа Леонидова
Проект гостевого дома Forester shack. Интерьер © Архитектурное бюро Романа Леонидова
Проект гостевого дома Forester shack. Интерьер © Архитектурное бюро Романа Леонидова

Авторы убеждены, что дом развивает традиции органической архитектуры, поскольку он встраивается в природное окружение и использует натуральные материалы. Что же, по-видимому, так и есть. Пластически же главный принцип здесь – уравновешенного контраста, балансирующего на грани традиции, деконструкции и эко-минимализма. Он обеспечивает не только перетекание пространств и впечатлений, но и целостность ансамбля, переклички между большим и малым домом. Он же – позволяет узнать характерный почерк бюро Романа Леонидова.
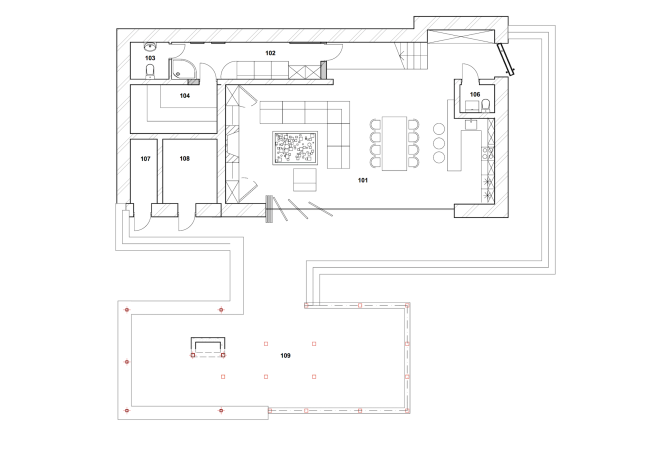
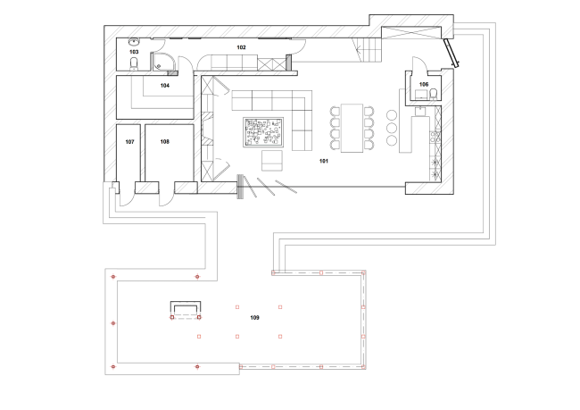
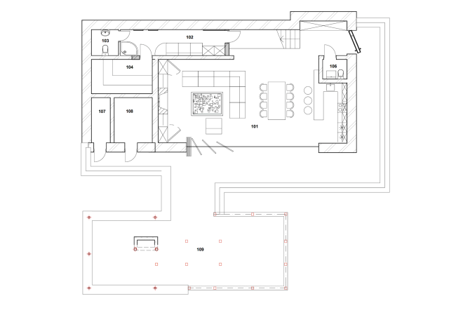
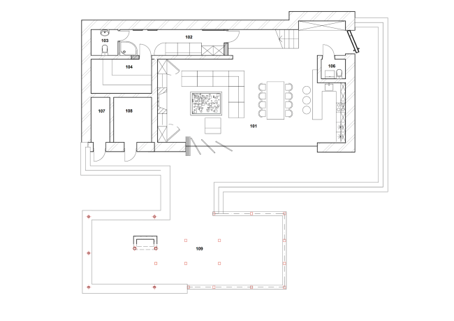
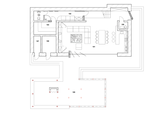
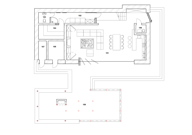
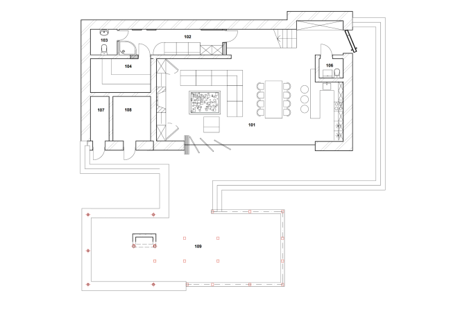
Проект гостевого дома Forester shack. План 1 этажа © Архитектурное бюро Романа Леонидова
Проект гостевого дома Forester shack. План 1 этажа © Архитектурное бюро Романа Леонидова
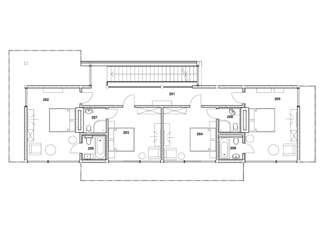
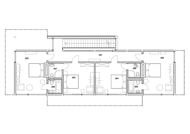
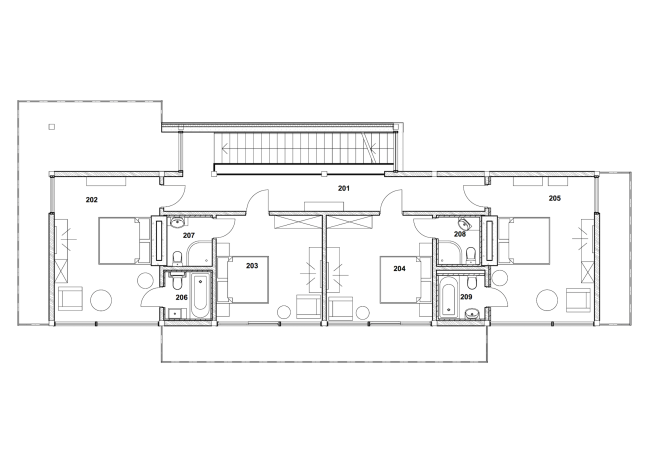
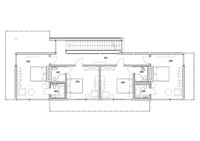
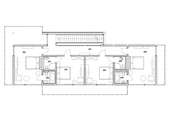
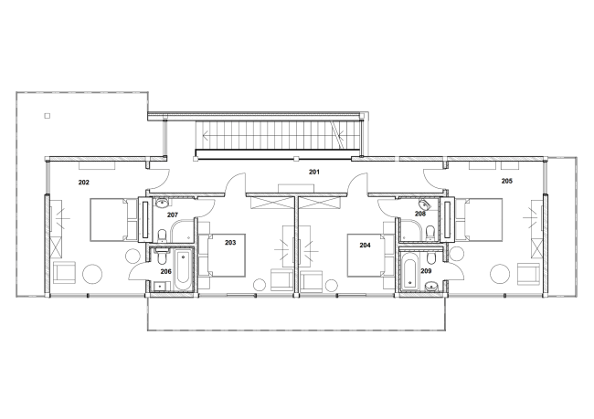
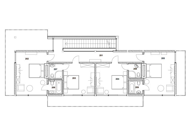
Проект гостевого дома Forester shack. План 2 этажа © Архитектурное бюро Романа Леонидова
Проект гостевого дома Forester shack. План 2 этажа © Архитектурное бюро Романа Леонидова