Размещено на портале Архи.ру (www.archi.ru)

19.12.2007

Хамелеон

Наталья Коряковская, Юлия Тарабарина
Объект:
Дилерский центр с комплексом обслуживания на Куликовской улице
Адрес:
Россия, Москва. Северное Бутово, мкр. 1, ул.Куликовская
Архитектор:
Андрей Романов
Екатерина Кузнецова
Мастерская:
ADM

Благодаря необычной конструкции фасада, меняющего свой цветовой облик, и выдвинутым из тела здания прозрачным консолям – «витринам», новый дилерский центр по продаже автомобилей, спроектированный бюро ADM, может стать примечательным объектом в ряду современных построек, выросших в последние годы за МКАДом

Дилерский центр с комплексом обслуживания на Куликовской улице.
Проект, 2006-2007 © ADM
Дилерский центр с комплексом обслуживания на Куликовской улице. Проект, 2006-2007 © ADM

Участок, для которого архитекторы ADM спроектировали дилерский центр по продаже автомобилей, расположен в Северном Бутово между Проектируемым проездом и Куликовской улицей. Он очень удобен для такого рода торговли: во-первых, рядом, с противоположной стороны магистрали, находится центр по их растаможиванию – откуда товар удобно доставлять прямо в магазин; во-вторых, неподалеку существует автомойка и две заправки. И, наконец, главное достоинство места – его хорошо видно из машин, проезжающих по МКАД – что определило внешний вид здания и основную архитектурную идею.

Архитекторы предложили превратить один из фасадов – тот, который виден с МКАД – в эффектную витрину. Из его плоскости далеко вперед выступают призмы стеклянных консолей, внутри которых будут выставлены предназначенные на продажу автомобили. По ночам эти объемные витрины будут светиться изнутри – и вероятно, разноцветными огнями, привлекая внимание проезжающих. Такой прием стоит дорого: в основе конструкции витрин – структурное остекление и металлический каркас, обеспечивающий их значительный вынос из тела здания. Поэтому главный фасад – самая затратная часть проекта, что объяснимо – ведь, в сущности, это гигантская реклама, решенная архитектурными средствами.

Большую часть здания занимает гараж – склад для хранения машин, и для него авторы предложили красивое, но  экономичное решение. Внешние стены гаража – это решетка из вертикальных металлических «уголков», поставленных на расстоянии 10-15 см друг от друга. Это делает внутренние помещения продуваемыми естественным образом, а заказчик экономит не только на капитальных стенах и обогреве, но и на вентиляции. Решетка, однако, непростая. Грани «уголков», составляющих ее поверхность, окрашены в разные цвета, за счет чего фасад постоянно меняет свой цвет при любом изменении точки зрения – превращаясь, например, из белого в синий, а из синего в оранжевый. Из-за хитроумной раскраски простые поверхности приобретают подобие внутренней жизни, а дом становится в чем-то похожим на живое существо – больше всего на хамелеона, постоянно меняющего свою окраску. Конструкция получается весьма дешевой, а смотрится эффектно.

Гараж, металлическая решетка стен которого проницаема для ветра – это «холодные», лишенные обогрева помещения, занимающие большую часть здания. Теплые интерьеры предназначены для сервисного автоцентра, расположенного в подземном ярусе и для двухсветного торгового зала, объем которого встроен в нижнюю часть здания, занимает первый этаж и продолжается на высоту еще одного этажа вверх. Стеклянные стены торгового зала отступают от внешнего контура здания, создавая любимый модернистами эффект левитации.

Все вместе немного напоминает гигантский шкаф, некоторые ящики которого выдвинуты и демонстрируют его содержимое. Или компьютерную базу данных – так, как ее нередко изображают в кино, когда из смутной массы разноцветного сверкания выдвигаются блестящие контейнеры с чем-то красивым и необходимым. Получается довольно-таки современный и остроумный архитектурный образ, обыгрывающий тему хранения-демонстрации на всех доступных уровнях – от практического до художественного.

Дилерский центр с комплексом обслуживания на Куликовской улице.
Проект, 2006-2007 © ADM
Дилерский центр с комплексом обслуживания на Куликовской улице. Проект, 2006-2007 © ADM
Дилерский центр с комплексом обслуживания на Куликовской улице.
Проект, 2006-2007 © ADM
Дилерский центр с комплексом обслуживания на Куликовской улице. Проект, 2006-2007 © ADM
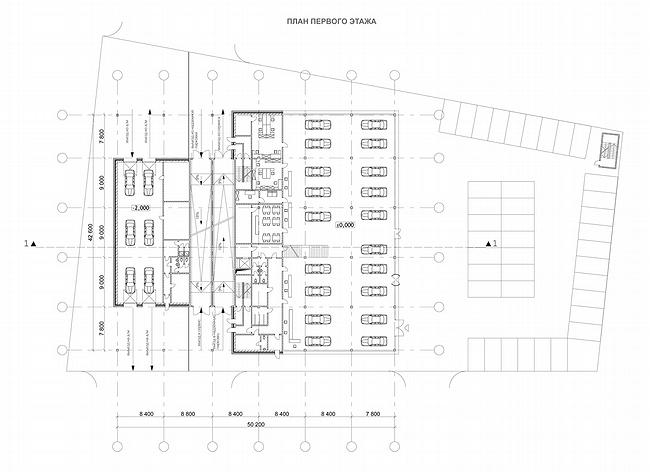
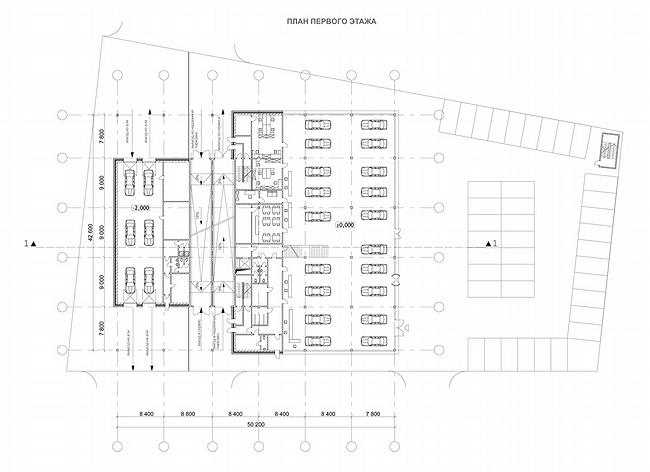
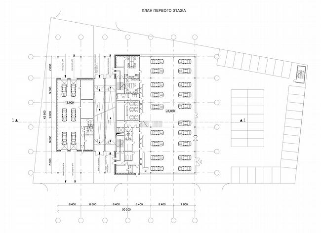
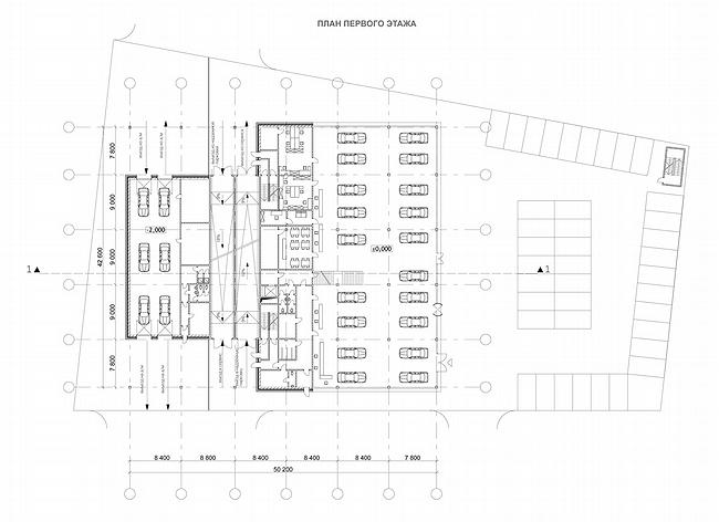
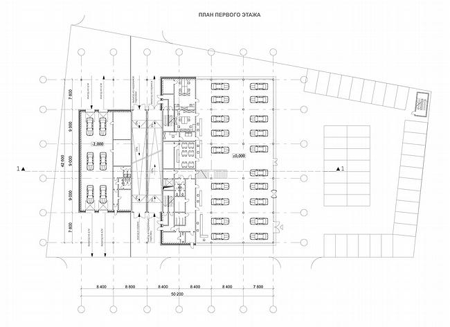
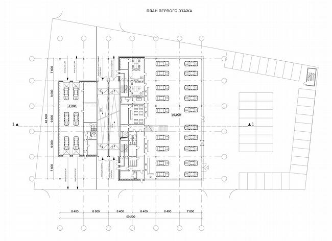
План 1 этажа
План 1 этажа
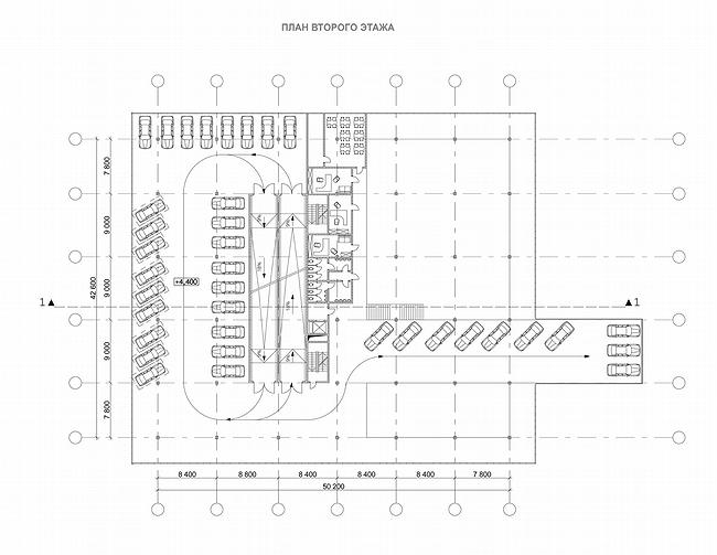
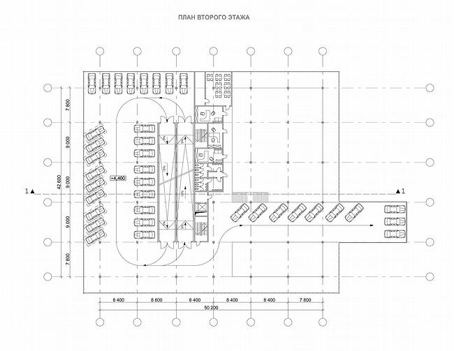
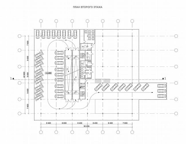
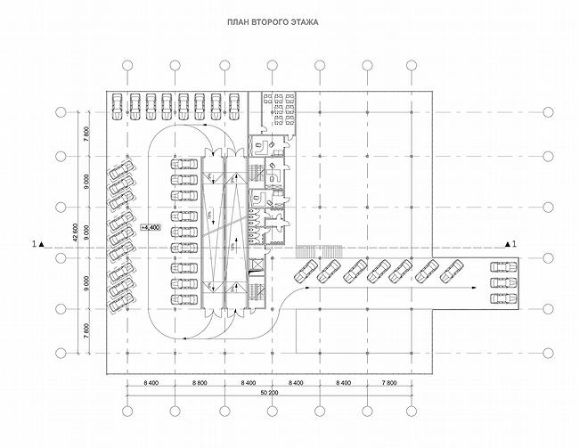
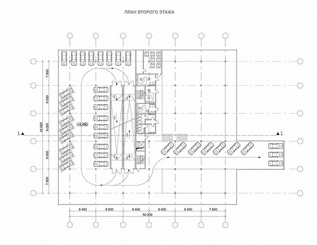
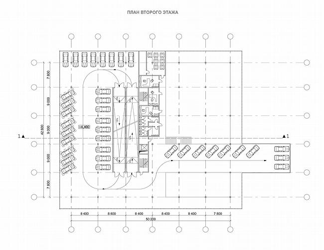
Дилерский центр с комплексом обслуживания на Куликовской улице. План 2 этажа. Проект, 2006-2007 © ADM
Дилерский центр с комплексом обслуживания на Куликовской улице. План 2 этажа. Проект, 2006-2007 © ADM
Дилерский центр с комплексом обслуживания на Куликовской улице.
Проект, 2006-2007 © ADM
Дилерский центр с комплексом обслуживания на Куликовской улице. Проект, 2006-2007 © ADM
Дилерский центр с комплексом обслуживания на Куликовской улице.
Проект, 2006-2007 © ADM
Дилерский центр с комплексом обслуживания на Куликовской улице. Проект, 2006-2007 © ADM
Дилерский центр с комплексом обслуживания на Куликовской улице.
Проект, 2006-2007 © ADM
Дилерский центр с комплексом обслуживания на Куликовской улице. Проект, 2006-2007 © ADM