|
Рассказ о том, как проект АТК на ул. Кульнева (более известный по своему прежнему названию «Миракс-плаза») лишился надзора его авторов, был переделан, а затем – вернулся к авторам и вернул себе прежнюю архитектурную цельность.
Административно-торговый комплекс на ул. Кульнева© АМ Сергей Киселев и Партнеры
Проект офисного комплекса «Миракс-плаза» хорошо известен всем, кто интересуется современной Москвой (см. наш текст о проекте 2007 года). Хотя после кризиса и ухода знакового инвестора комплекс и лишился своего гордого названия, но две строгие призматические башни, салютующие высоткам Сити с противоположного берега Москвы-реки, уже почти построены и хорошо видны из машин, проезжающих по Третьему Транспортному кольцу.
Однако башни – только часть всего замысла. Вторая его часть – группа десятиэтажных зданий, вписанных в аккуратный овал плана у подножия высоток. Желтовато-каменные корпуса, схваченные энергичными, похожими на горизонтальные аркбутаны ребрами, должны были продолжать ряд сталинских зданий Кутузовского проспекта, создавая контрастный противовес офисным башням.
Административно-торговый комплекс на ул. Кульнева. Предыдущая проектная версия комплекса © АМ Сергей Киселев и Партнеры
Но, как это нередко бывает, развитие проекта пошло не вполне так, как было задумано. Надзор за строительством части «острова» (того корпуса, который обращен к Кутузовскому проспекту и составляет скругленный «нос» овала), перешел к другой мастерской, проект был изменен и корпус построен не таким, каким был задуман. Его, можно сказать так, обобщили и упростили: камня стало меньше, стекла – больше, горизонтальные ребра хотя и сохранились, но стали тоньше и однообразнее. Блоки облицовки из горизонтальных, желтовато-песочных с характерными для соседних сталинских домов подпалинами – стали серовато-розовыми, вертикальными и напоминают ракушечник, которым облицовывали в 1970-е годы советские кинотеатры и учреждения.

Корпус на Кутузовском проспекте, построенный без авторского надзора СКиП. Фотография: panoramio.com, stargate Новый фасад своей гладкостью стал ближе офисным башням и меньше похож на дома Кутузовского проспекта. Из связной образной конструкции ансамбля как будто бы вынули один важный прутик, отчего архитектурный сюжет потерял некоторую долю напряжения, силу противодействия стекла и камня.
Такие истории не могут не расстраивать, и особенно (что вполне справедливо) они расстраивают авторов проекта. Ну а затем произошло следующее.
При работе со следующим десятиэтажным корпусом, который составляет протяженную часть овала со стороны Третьего кольца (на планах комплекса он обозначается литерой «В») стало ясно, что сохранить его прежнюю форму не удастся в связи с изменением правил землепользования смежного участка железной дороги. «Если раньше условия предполагали возможность установки опор стилобата здания на участке железной дороги, то теперь службы этого ведомства исключили из рассмотрения такую возможность» – рассказывают архитекторы. Иными словами, согласно первоначальному проекту объем корпуса «В» и железнодорожные пути пересекались: выпуклая дуга фасада нависала над туннелем, который пронизывал объем здания по хорде – но теперь здание должно отступить в границы своего участка.
Административно-торговый комплекс на ул. Кульнева. Первоначальный вариает проекта. План© АМ Сергей Киселев и Партнеры
Заказчик объявил тендер на проект корректировки десятиэтажного корпуса – с целью, разумеется, сохранить в новом проекте площади здания с минимальными затратами. Для СКиП это был шанс вернуть собственный объект и довести его до логического завершения. Хорошо зная проект («как свои пять пальцев»), архитекторы быстро нашли решение поставленной задачи. Конечно же, проект существенно изменился (при описанных обстоятельствах иначе и быть не могло), но авторы «постарались максимально учесть уже возведенные конструкции и принимали решения, если можно так сказать, в режиме реконструкции». Словом, предложили только необходимые изменения, вернув в проект все полезные площади.
Правильную, нарисованную по циркулю, но выступающую слишком далеко дугу овального плана пришлось срезать, отступив от путей – план корпуса перестал быть сегментом и приобрел вынужденно-скошенные очертания, как у телевизора 1960-х, когда углы скругленные, а стенки прямые.
Административно-торговый комплекс на ул. Кульнева. Ситуационный план© АМ Сергей Киселев и Партнеры
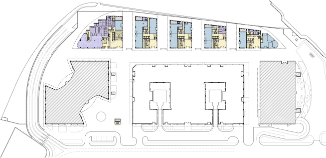
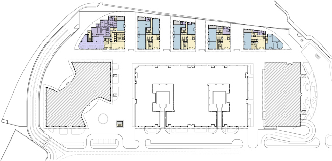
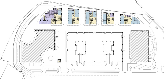
Для того, чтобы компенсировать утраченные полезные площади, архитекторы разделили протяженный корпус на пять частей, заменив четыре атриума открытыми дворами. Каждый из получившихся пяти объемов расширили «в длину» за счет сужения пространства дворов. Это позволило вернуть все утраченные метры, не наращивая высоту зданий. Дворы стали больше похожи на короткие отрезки пешеходных бульваров: все они ведут к продольной внутренней улице, связывающей между собой все корпуса. Здания же глубокими консолями нависают над пешеходными пространствами, выигрывая еще немного полезных метров и образуя над получившимися бульварами небольшие козырьки.
Административно-торговый комплекс на ул. Кульнева. Визуализация. Вариант 2© АМ Сергей Киселев и Партнеры
Характерно, что архитекторы не сделали свои дворы-улицы проезжими, зарезервировав их для пешеходов. В этом можно увидеть напоминание об отмененных роскошных атриумах – дворы, безусловно, утратили роскошь их стеклянных поверхностей, натянутых на высоту десяти этажей, – но они остаются безопасным, комфортным пространством. Однако в отличие от атриумов дворы открыты городу и поэтому более демократичны: кто угодно может здесь прогуляться. Это принцип скорее европейский, чем московский; Москва до сих пор с трудом избавляется от бесконечных заборов и КПП, так что открытые внутренние улочки офисного центра, – пусть небольшой, но шаг навстречу горожанам.
Административно-торговый комплекс на ул. Кульнева. Сквозная пешеходная улица вдоль корпуса В. © АМ Сергей Киселев и Партнеры
Фасады, разумеется, тоже пришлось пересмотреть: теперь они состоят из того же чередования горизонтальных полос камня и стекла, что и башни. На торцах, в местах скруглений, полоски тоньше – здесь они откликаются на графику корпуса, построенного со стороны Кутузовского проспекта. Как мы видим, в конечном счете архитекторы пришли к одному из самых распространенных – если не сказать «классических» – фасадных приемов офисной архитектуры. Эффектно застывший поток каменных обручей, заставлявший в первом проекте думать о веке скоростей и тому подобных техногенных вещах, превратился в респектабельную офисную улицу. Впрочем, проекту удалось вернуть цельность – это особенно важно для авторов. Улицы-дворы, разделяющие прежде цельный корпус на пять объемов, при беглом взгляде со стороны Третьего кольца они будут выглядеть узкими ущельями и не нарушат единства фасадного строя. Удалось сохранить и идею «овального острова» – уверен Андрей Никифоров.
Административно-торговый комплекс на ул. Кульнева. Вид на комплекс со стороны Третьего транспортного кольца© АМ Сергей Киселев и Партнеры, проект, 2007
Можно только порадоваться тому, что разрозненный, разделенный было проект неожиданно удалось «починить». Эта история еще раз подтверждает, что хороший архитектор способен и заказчика выручить из сложной ситуации, и вернуть себе утраченный было проект, и вернуть проекту былую цельность, и найти новый образ.
Упомянутый «новый образ» – получившийся в результате трансформации, тоже интересен. Он спокойнее, практичнее и даже демократичнее. «Миракс-плаза» хотя и был интеллигентно-сдержан и контекстуален – он все же был динамичным, дорогим и эффектным. Он был призван поражать и удивлять: стеклом атриумов, летящими обручами фасадов, правильными дугами окружностей. В его архитектуре присутствовало напряжение контраста: между стеклом и камнем, башнями и проспектом (из которых один – представитель власти денег, второй – власти тирана). Противоречия города были в нем пойманы и превращены в звонкий, энергичный сюжет. Что соответствовало своему времени: периоду несколько безумного быстрого роста, заносчивых инвесторов, гигантских проектов.
Теперь контрасты стерлись, смягчилось противопоставление, а сюжет – тот вообще переместился на другой уровень: он в значительной степени перестал быть застывшей в камне театрализованной постановкой, и стал больше похож на естественную историю компромиссов, разумной экономии и архитектурной цельности. Комплекс отступает от преграды, на которую его предшественник гордо наступал, но расступается, пропуская в себя город. Все это приметы времени, и, возможно, не самые плохие.
Административно-торговый комплекс на ул. Кульнева. Фасад со стороны Третьего транспортного кольца© АМ Сергей Киселев и Партнеры
Административно-торговый комплекс на ул. Кульнева. Боковой фасад комплекса со стороны Москвы-реки© АМ Сергей Киселев и Партнеры
Административно-торговый комплекс на ул. Кульнева. Новый вариант корпуса B. Разрез© АМ Сергей Киселев и Партнеры
Административно-торговый комплекс на ул. Кульнева. Новый вариант корпуса B. Разрез© АМ Сергей Киселев и Партнеры
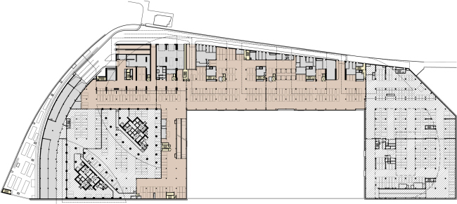
Административно-торговый комплекс на ул. Кульнева. План первого этажа корпуса В© АМ Сергей Киселев и Партнеры
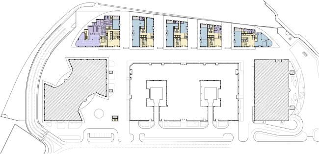
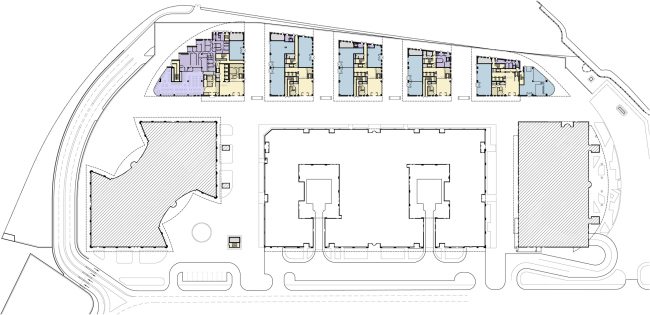
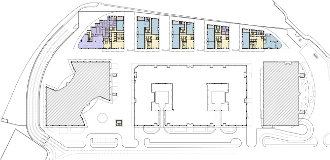
Административно-торговый комплекс на ул. Кульнева. План типового этажа© АМ Сергей Киселев и Партнеры
Административно-торговый комплекс на ул. Кульнева. План подземного гаража. -2 этаж© АМ Сергей Киселев и Партнеры
|