|
Для участка рядом с метро Баррикадная Сергей Скуратов за период 2020–2025 сделал 5 проектов. Два из них победили в закрытых конкурсах заказчика. Пятый не так давно выбрал мэр Москвы для реализации. Проект ярок и пластичен, акцентен, заметен и интересен; что характерно для нашего времени. Однако – он среднеэтажен, невысок. И в своей северо-западной части, у метро и Дружинниковской улицы, формирует комфортный город. А с другой стороны – распахивается, открывая двор для солнечных лучей и формируя пространственную паузу в городской застройке. Как все устроено, какие тут геометрические закономерности и почему так – читайте в нашем материале.
Совсем недавно стало известно об утверждении проекта «Дома Спорта». Компания Capital Group строит его на месте советского футбольно-легкоатлетического стадиона, в разное время носившего названия Красная Пресня / Искра / Правда / Метрострой. Это был именно открытый стадион: пара полей, большое и поменьше, и несколько небольших строений, к 2020 году уже заброшенных.
Стадион, в свою очередь, появился в 1920-е годы на месте засыпанного Среднего пруда на реке Пресне – сейчас от прудов сохранились только водоемы Московского зоопарка; в частности, на месте пруда стоит и павильон станции Краснопресненская кольцевой линии метро. Элитный жилой комплекс строится в 150 метрах южнее от входа в метро, между тремя акцентными зданиями XX века – Белым Домом – он же Дом Правительства, СЭВом и высоткой на Кудринской площади.
Хотя красивых городских панорам тут, вообще говоря, много: участок расположен на склоне, на высоком берегу при повороте Москвы-реки, отсюда город прямо-таки раскрывается. Удачное расположение – первая особенность.
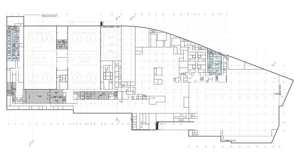
 Вторая – это не просто «еще один дом с ФОКом». Поскольку участок наследует стадиону, то с самого начала проектирования, примерно с 2019 года, здесь планировалось «сохранение функции»: много новых спортивных объектов. Прежде всего новая ледовая арена. И в итоговом проекте спорт преобладает, его на 10% больше, чем жилья. Спорт вот какой: две ледовые арены площадью по 2135 м2 и высотой более 8 м внутри; 6 падел-кортов, 1262 м2; ФОК с дорожками 25 и 50 м в бассейне; йога-центр; и, наконец, футбольный центр с теплыми раздевалками и открытым подогреваемым полем на кровле подземной части стилобата со стороны Белого дома.
 То есть в функциональном и, вероятно, маркетинговом плане свое название «Дом Спорта» проект оправдывает. Если кто-то хотел бы, чтобы дети росли спортсменами, но не теряли время в поездках по профессиональным секциям – ему такой комплекс подойдет. Впрочем, говорят, что сейчас и в целом популярен образ жизни, завязанный на занятия даже не фитнесом, а именно что спортом.
Не следует представлять себе, что в данном случае речь о спорткомплексе, к которому «пристроилось» жилье. Вторую половину названия – «дом» – проект тоже вполне оправдывает. Спортивные помещения спрятаны под землю, в том числе с использованием перепада высот, и освещены частью боковыми витражами, частью зенитными фонарями, чьи круглые стеклянные пятна хорошо видны на кровле стилобата. Со стороны широкой Конюшковской улицы стилобат служит «рамкой», обозначая контур улицы, а со стороны Дружинниковской – становится «цоколем», базовым ярусом, который объединяет между собой выстроенные в ряд жилые корпуса.
 Получается среднеэтажная городская застройка, которая, вместе с пяти- и девятиэтажками напротив будет формировать Дружинниковскую улицу в той ее части, что ближе к метро.
Спорт спрятался – появился город. Но не высотный, как сейчас чаще всего бывает; честно говоря, учитывая ценность площадки, тут можно было бы ожидать нескольких башен, по высоте подобных тем, что составляют стоящий поблизости ЖК SkyView, построенный на месте «Соловья» по проекту АБ ЦЛП – его высота примерно вдвое больше, 20 этажей, больше 70 метров.
 Высота жилых корпусов «Дома Спорта» – 35 м, офисного здания – 30 м. Он дает нам городскую паузу. Спрашиваю у автора, было ли высотное ограничение, и узнаю, что в 2020 году – да, позднее уже нет, но заказчик, Капитал Групп, не изменил своих решений по высотности, что дало нам – редкий, крайне редкий сейчас – пример спокойного городского масштаба.
Вот еще две черты, которые делают проект исключительным: городской вид и среднеэтажный масштаб.
Но слово автору, Сергею Скуратову.
 Сергей Скуратов, Сергей Скуратов ARCHITECTS «Мне кажется, ценность этого места – в его открытости, в этом редком для Москвы ощущении воздуха и дальнего взгляда, в этих больших паузах между довольно сильными городскими доминантами. И очень не хотелось эту историю испортить массой или случайной высотой. Поэтому мы изначально пошли в достаточно сдержанное решение: держали умеренную высоту, а основной спортивный объем просто убрали под землю, чтобы пространство осталось партерным, свободным. В последней версии проект стал более живым, более пластичным, где-то даже более эмоциональным, но для меня важно, что он при этом не потерял внутреннюю дисциплину и вот это, я бы сказал, уважение к самому месту».  «Ценность места в его открытости» – важное определение подхода.
Если присмотреться к композиции чуть внимательнее, то можно увидеть, что Сергей Скуратов, с одной стороны, откликается на городскую планировку, а с другой – корректирует ее. Участок, напомню, расположен на засыпанном пруду реки Пресня; реки редко текут прямо, и две улицы по сторонам – дугообразные. Проходящая с восточной стороны широкая 4-полосная Конюшковская больше, небольшая Дружинниковская – меньше. Обе направлены на юго-юго-запад. В проекте «Дома Спорта» поворот Конюшковской учтен, его нельзя было не учесть, он формирует контур участка – и превращен в плавно срезанный угол, смотрящий на юг в сторону реки «нос» или «хвост» двора на стилобате. Уклон этой треугольной части двора – 8%, она «смотрит» на реку, отсюда можно будет, гуляя, любоваться панорамой. Рядом расположен прямоугольник открытого футбольного поля; бассейн-фонтан в пазухе между ними напоминает о краснопресненском пруде.
Вереница жилых домов, наоборот, выстроена строго меридионально, что наиболее выгодно с точки зрения инсоляции. Так среди кривых от природы московских улиц архитекторы образуют новую прямую, своего рода стержень. В северной части поперечно, ровно с запада на восток вытянут офисный корпус – он дополняет функцию «спорт+жилье», делает ее трехсоставной, а также отделяет приватный двор на кровле стилобата от общественной площади при метро.
 Так что общий контур немного похож на кухонный ножик: вытянутый с севера на юг прямоугольник с одним срезанным углом-«носом».
 Контуры вереницы жилых домов и офисного корпуса в плане тоже – вытянутые прямоугольники с асимметрично срезанным «носом» на одном торце, но не заостроенные, а разной степени скульптурной скругленности. Но очевидно, что «знаковая» заостренная форма, отчасти продиктованная участком, отчасти найденная в процессе проектирования, повторена несколько раз в разных качествах, что дает проекту некоторый внутренний ритм, обеспечивающий цельность высказывания.
Именно торцевые «носы-заострения» служат точками активного взаимодействия комплекса с городом, то есть – его «главными фасадами» или главными акцентами. Тут можно вспомнить и спрятанный за корпусами посольства Дом Наркомфина Моисея Гинзбурга – там роль заострения выполняют три полукруглых балкона, смотрящих на юг. Кажется, с ними тоже есть перекличка в проекте Сергея Скуратова, хотя сам он об этом и не говорит.
Надо заметить, что два торцевых «носа-фасада» Дома Спорта пластически в некотором роде противоположны друг другу и складываются в контрапункт. Первый, завершающий вереницу жилых домов, обращенный к реке и Конюшковской улице – лишен проемов и подчинен плавно изогнутой поверхности. Этакий плотный каменный «бок».
 Как подчеркивают архитекторы, в некоторых ракурсах он перекликается с каменной поверхностью высотки.
Офисный корпус берет ту же основную тему, но повернут на 90° и смотрит не на юг, а на восток и – в город, в сторону высотки. Здесь срезанный асимметрично-скругленный «нос» – в отличие от первого, совершенно прозрачен благодаря моллированному стеклу. Хотя тоже схвачен тонкими металлическими «обручами»; кажется, что эти обручи как некие силовые нити удерживают все корпуса внутри одной, в данном случае художественной, системы.
 Иными словами, весь комплекс развивается от «глухого», уплотненно-каменного угла – к прозрачному, стеклянному, развеществленному. Хотя и близкой формы. Демонстрирует нам, как будто мимоходом, возможности и разнообразие современного подхода к одной и той же пластике. Это тонко.
К тому же Сергей Скуратов организовал пространство так, что, помимо приватного двора для жителей на кровле стилобата вокруг него образуется немало общегородского пространства, где сможет прогуливаться кто угодно. Спортивные пространства также будут работать на всех горожан, что неудивительно при их профессиональной специализации.
Контрапункт между двумя «фасадами-носами», плотным южным и прозрачным восточным углами воображаемого прямоугольного треугольника – развит через материал и ритмическое построение фасадов. Помимо стекла, два основных фасадных материала – светлый камень и красноватая бронза. В проекте их представляют искусственный камень из стеклофибробетона и стальные элементы бронзового оттенка.
Образно металл тяготеет к северной и восточной части, откликаясь на соседство краснокирпичных зданий американского посольства, так же как и на гранитный цоколь высотки, а, может быть, и входную арку зоопарка... Несложно заметить и переклички с решеткой фасадов SkyView. «Камень» составляет пару как Белому дому, так и основной части высотки, покрытой каменной на вид светло-керамической «сталинской» плиткой. Честно говоря, хотя авторы говорят о контекстуальных отсылках, определить точные «попадания» сложно, но! – район Пресни, он же красно-белый, так ведь? По цвету, да и по историческому раскладу, да...
Итак, бронза лидирует в северо-восточной части и простенки офисного корпуса – все металлические. На северном и южном фасаде они постепенно сгущаются к западу; а западный торец – отрезан как будто ножом и весь витражный. Правильно, белые воротнички / синие пиджаки тоже хотят любоваться на закат.
 Жилые объемы с южной и внешней, западной уличной стороны – светлокаменные; снаружи их фасады это скорее вертикальные поверхности, как и полагается городской улице. Внутри же, со стороны двора, они буквально-таки «стекают» каскадами асимметричных и разноразмерных балконов и террас с металлической окантовкой. Западный фасад оказывается каменно-строгим, восточный, к тому же обращенный во двор – свободным, террасным. Почти как водопад. Или как половинка расколотого камня с аметистовой щеткой внутри. Снаружи известняк, а внутри блестит-переливается.
 Вообще говоря, акцентное, апеллирующее напрямую к ощущениям, различие между образностью уличного и дворового фасада – одна из любимых тем Сергея Скуратова, его можно наблюдать, к примеру, в Тессинском-1. Но, в отличие от упомянутого клубного дома, на Красной Пресне двор не закрыт со всех сторон – корпуса образуют угловую рамку с северной и западной стороны, позволяя солнцу освещать двор на протяжении наибольшего по длительности времени суток.
 Подчеркну, что две фасадных материи, камень и металл, объединены одной пластической темой.
Но тема эта множественная, разнообразная, хотя и имеет общую «базу». Думаю, что исходной точкой стала все та же форма закругленного-срезанного «носа», фигура, составляющая приблизительно одну треть сегмента окружности, присутствующая в плане участка и основных частей комплекса. Так – думаю – возникли асимметричные простенки-«крылья». Им вторят подобные же фигуры, но с углубленной, а не выгнутой наружу дугой; то и другое дает нюансность светотени и острые края.
 Фигуры поотчетливее – собственно сегмент; не полуцилиндр! К нему с одной стороны примыкает плоская вставка. Самая простая фигура – плоский, но выдвинутый достаточно далеко прямоугольный простенок. Все они расставлены в шахматном порядке, в нижней части оживлены углубленными полосками, что тоже добавляет вариантов.
При беглом взгляде, думаю, будет казаться, что все простенки очень разные, и даже, может быть, закреплены внутри на металлических штырьках, которые позволяют им вращаться и показывать зрителю свои разные «бока». Это не так. Но эффект необязательности расположения – при, на самом деле, довольно строгой его ритмичности – присутствует. Удачный шаг к снятию массивности фасада и его развеществлению – при наличии объемной скульптурности масса «снимает» сама себя. Как так? А вот так! Построят – увидим.
Еще один прием-дополнение можно разглядеть пока что только на планах «бронзового» офисного корпуса: простенки его обращенного к метро северного фасада – не выпуклые, а углубленные. А южные, обращенные во двор – объемные. Как будто их «продавили» с севера на юг, хотя прямого соответствия форм не наблюдается.
 Скорее, здесь – расчет на освещение, северный фасад будет освещен только летом и только косыми лучами, утром и вечером; а южный – всегда.
Тонкая, ювелирная работа с фасадами – при наличии ощутимой модульной матрицы в их основе, динамическое равновесие прозрачного / объемного, каменного / металлического, статического / подвижного просчитано для всего комплекса вручную, прорисовано до мелких мелочей.

Принятый сейчас к строительству вариант проекта был разработан в 2025 году в ответ на пожелание города и заказчика предложить что-то яркое.
Но коснемся немного истории места и проекта.
В 2019 году здесь проектировали Ледовый центр.
Затем Сергей Скуратов выиграл подряд два закрытых конкурса – сначала, в 2020 году, на половину участка площадью 1.6 га, с трапециевидным, стремящимся к квадрату, контуром. «Убрать спорт под землю», в стилобат, Скуратов предложил сразу; собственно, идея с самого начала понравилась заказчику.
Затем, в 2021, участок увеличился до 4.2 га и стал вытянутым в сторону реки, с продольным перепадом 2.5 м – таким, каким мы его видим в итоговой версии.
 Тогда, в 2021, появилось и открытое футбольное поле, только располагалось оно вверху, в северной части, около метро, а на его сегодняшнем месте со стороны Белого дома в проекте фигурировал овальный ресторан, позднее переквалифицированный в баню. В том же проекте 2021 года, в отличие от 2020, все обитаемые корпуса выстроились в линию север-юг, компактную и оптимальную, освобождающую значительную площадь для спускающегося параллельно склону двора на кровле стилобата.
В общей сложности архитекторы бюро Сергея Скуратова сделали 5 проектов для участка Дружинниковской, включая два, победивших в конкурсах, и итоговый.
Четыре из них были лаконичными и совершенно белыми. Самый первый отличался этаким «оттянутым» решетчатым углом.
 Последующие были еще строже, подчиняясь тонкой решетке с окнами, повернутыми под углом 45° для уловления света. Это был очень лаконичный, спокойно-структурный, легкий вариант.
 Итоговый проект, сделанный в ответ на запрос большей выразительности и принятый к реализации – с одной стороны, отличается, а с другой – собирает в себе признаки найденных ранее удачных решений. Спорт, собранный под землей; выстроенные в ряд по линии север-юг дома; белая решетка, хотя и превратилась в каменный пазл, никуда не делась.
 А вот контрапост пластичных углов, поставленных по диагонали друг по отношению к другу – пожалуй, происходят из самой первой версии. Во всяком случае, они, при всем изобилии отличий, дают некое общее для самого первого и итогового проекта тяготение к градиенту пластичности.
Вероятно, место само по себе требует чего-то подобного.
Тем не менее главное остается то, о чем говорит выше Сергей Скуратов – пространственная пауза в ткани города. Это подходит и к заявленному статусу жилья; но все же позволит «вдохнуть» полной грудью тут, на склоне русла бывшей речки Пресни. Не загромоздит. За что спасибо и архитектору, и заказчику. «Дом Спорта», Дружинниковская, 18; проект 2025© Сергей Скуратов architects / Capital GroupСхема ситуационного плана. «Дом Спорта», Дружинниковская, 18; проект 2025© Сергей Скуратов architects / Capital GroupПлан -1 этажа на отм.-6.600. Показаны основные функции споривной программы здания. «Дом Спорта», Дружинниковская, 18; проект 2025© Сергей Скуратов architects / Capital GroupРазрез 1-1. «Дом Спорта», Дружинниковская, 18; проект 2025© Сергей Скуратов architects / Capital Group«Дом Спорта», Дружинниковская, 18; проект 2025© Сергей Скуратов architects / Capital Group«Дом Спорта», Дружинниковская, 18; проект 2025© Сергей Скуратов architects / Capital Group«Дом Спорта», Дружинниковская, 18; проект 2025© Сергей Скуратов architects / Capital Group
«Дом Спорта», Дружинниковская, 18; проект 2025© Сергей Скуратов architects / Capital Group
Схема планировочной организации земельного участка. «Дом Спорта», Дружинниковская, 18; проект 2025© Сергей Скуратов architects / Capital GroupАнализ инсоляции. «Дом Спорта», Дружинниковская, 18; проект 2025© Сергей Скуратов architects / Capital Group© Сергей Скуратов architects / Capital GroupСхема благоустройства территории. «Дом Спорта», Дружинниковская, 18; проект 2025© Сергей Скуратов architects / Capital Group«Дом Спорта», Дружинниковская, 18; проект 2025© Сергей Скуратов architects / Capital Group
«Дом Спорта», Дружинниковская, 18; проект 2025© Сергей Скуратов architects / Capital Group
«Дом Спорта», Дружинниковская, 18; проект 2025© Сергей Скуратов architects / Capital Group
«Дом Спорта», Дружинниковская, 18; проект 2025© Сергей Скуратов architects / Capital Group
«Дом Спорта», Дружинниковская, 18; проект 2025© Сергей Скуратов architects / Capital Group
Схема западного фасада К1. «Дом Спорта», Дружинниковская, 18; проект 2025© Сергей Скуратов architects / Capital GroupФрагмент фасада. «Дом Спорта», Дружинниковская, 18; проект 2025© Сергей Скуратов architects / Capital GroupПлан 6 этажа офиса. «Дом Спорта», Дружинниковская, 18; проект 2025© Сергей Скуратов architects / Capital GroupПлан 2 этажа офиса. «Дом Спорта», Дружинниковская, 18; проект 2025© Сергей Скуратов architects / Capital GroupПлан на отм. -3.300. «Дом Спорта», Дружинниковская, 18; проект 2025© Сергей Скуратов architects / Capital GroupПлан антресольного этажа на отм. 2.250. «Дом Спорта», Дружинниковская, 18; проект 2025© Сергей Скуратов architects / Capital GroupПлан антресольного этажа на отм. 4.650. «Дом Спорта», Дружинниковская, 18; проект 2025© Сергей Скуратов architects / Capital GroupПлан 1 этажа. «Дом Спорта», Дружинниковская, 18; проект 2025© Сергей Скуратов architects / Capital GroupКорпус 1. План 3 этажа. «Дом Спорта», Дружинниковская, 18; проект 2025© Сергей Скуратов architects / Capital GroupКорпус 1. План 4 этажа. «Дом Спорта», Дружинниковская, 18; проект 2025© Сергей Скуратов architects / Capital GroupКорпус 1. План 5 этажа. «Дом Спорта», Дружинниковская, 18; проект 2025© Сергей Скуратов architects / Capital GroupКорпус 1. План 6 этажа. «Дом Спорта», Дружинниковская, 18; проект 2025© Сергей Скуратов architects / Capital GroupКорпус 3. План 2 этажа. «Дом Спорта», Дружинниковская, 18; проект 2025© Сергей Скуратов architects / Capital GroupКорпус 3. План 3 этажа. «Дом Спорта», Дружинниковская, 18; проект 2025© Сергей Скуратов architects / Capital GroupКорпус 3. План 4 этажа. «Дом Спорта», Дружинниковская, 18; проект 2025© Сергей Скуратов architects / Capital GroupКорпус 3. План 6 этажа. «Дом Спорта», Дружинниковская, 18; проект 2025© Сергей Скуратов architects / Capital GroupКорпус 3. План 7 этажа. «Дом Спорта», Дружинниковская, 18; проект 2025© Сергей Скуратов architects / Capital GroupКорпус 3. План 8 этажа. «Дом Спорта», Дружинниковская, 18; проект 2025© Сергей Скуратов architects / Capital GroupКорпус 3. План кровли. «Дом Спорта», Дружинниковская, 18; проект 2025© Сергей Скуратов architects / Capital GroupПлан 3-5 этажей офиса. «Дом Спорта», Дружинниковская, 18; проект 2025© Сергей Скуратов architects / Capital GroupРазрез 2-2. «Дом Спорта», Дружинниковская, 18; проект 2025© Сергей Скуратов architects / Capital GroupСхема западных фасадов. «Дом Спорта», Дружинниковская, 18; проект 2025© Сергей Скуратов architects / Capital GroupСхема восточных фасадов. «Дом Спорта», Дружинниковская, 18; проект 2025© Сергей Скуратов architects / Capital GroupСхема северного и южного фасадов. «Дом Спорта», Дружинниковская, 18; проект 2025© Сергей Скуратов architects / Capital GroupСхема западного и восточного фасадов офиса. «Дом Спорта», Дружинниковская, 18; проект 2025© Сергей Скуратов architects / Capital GroupСхема западного и восточного фасадов К3. «Дом Спорта», Дружинниковская, 18; проект 2025© Сергей Скуратов architects / Capital GroupСхема восточного фасада К1. «Дом Спорта», Дружинниковская, 18; проект 2025© Сергей Скуратов architects / Capital GroupСхема северного и южного фасадов К1. «Дом Спорта», Дружинниковская, 18; проект 2025© Сергей Скуратов architects / Capital GroupСхема западного и восточного фасадов К2. «Дом Спорта», Дружинниковская, 18; проект 2025© Сергей Скуратов architects / Capital GroupСхема северного и южного фасадов К2. «Дом Спорта», Дружинниковская, 18; проект 2025© Сергей Скуратов architects / Capital GroupСхема северного и южного фасадов К3. «Дом Спорта», Дружинниковская, 18; проект 2025© Сергей Скуратов architects / Capital GroupСхема южного фасада офиса. «Дом Спорта», Дружинниковская, 18; проект 2025© Сергей Скуратов architects / Capital GroupСхема северного фасада офиса. «Дом Спорта», Дружинниковская, 18; проект 2025© Сергей Скуратов architects / Capital GroupСпортивно-развлекательный комплекс на Дружинниковской улице, проект – победитель конкурса 2020 года© Сергей Скуратов ARCHITECTS / Capital GroupМногофункциональный спортивно-развлекательный комплекс на Дружинниковской улице, 18. Проект – победитель конкурса 2021 года© Сергей Скуратов ARCHITECTS / Capital GroupСпортивно-развлекательный комплекс на Дружинниковской улице, проект – победитель конкурса 2020 года© Сергей Скуратов ARCHITECTSСпортивно-развлекательный комплекс на Дружинниковской улице, проект – победитель конкурса 2020 года© Сергей Скуратов ARCHITECTSМногофункциональный спортивно-развлекательный комплекс с ледовым комплексом, гостиницей и ФОК на Дружинниковской улице, второй вариант 2025 года© Сергей Скуратов ArchitectsМногофункциональный спортивно-развлекательный комплекс с ледовым комплексом, гостиницей и ФОК на Дружинниковской улице, второй вариант 2025 года© Сергей Скуратов ArchitectsМногофункциональный спортивно-развлекательный комплекс с ледовым комплексом, гостиницей и ФОК на Дружинниковской улице, второй вариант 2025 года© Сергей Скуратов ArchitectsМногофункциональный спортивно-развлекательный комплекс с ледовым комплексом, гостиницей и ФОК на Дружинниковской улице, второй вариант 2025 года© Сергей Скуратов ArchitectsМногофункциональный спортивно-развлекательный комплекс с ледовым комплексом, гостиницей и ФОК на Дружинниковской улице, второй вариант 2025 года© Сергей Скуратов ArchitectsМногофункциональный спортивно-развлекательный комплекс с ледовым комплексом, гостиницей и ФОК на Дружинниковской улице, второй вариант 2025 года© Сергей Скуратов ArchitectsМногофункциональный спортивно-развлекательный комплекс с ледовым комплексом, гостиницей и ФОК на Дружинниковской улице, второй вариант 2025 года© Сергей Скуратов ArchitectsМногофункциональный спортивно-развлекательный комплекс с ледовым комплексом, гостиницей и ФОК на Дружинниковской улице, второй вариант 2025 года© Сергей Скуратов ArchitectsМногофункциональный спортивно-развлекательный комплекс с ледовым комплексом, гостиницей и ФОК на Дружинниковской улице, второй вариант 2025 года© Сергей Скуратов ArchitectsМногофункциональный спортивно-развлекательный комплекс с ледовым комплексом, гостиницей и ФОК на Дружинниковской улице, второй вариант 2025 года© Сергей Скуратов ArchitectsМногофункциональный спортивно-развлекательный комплекс с ледовым комплексом, гостиницей и ФОК на Дружинниковской улице, второй вариант 2025 года© Сергей Скуратов ArchitectsМногофункциональный спортивно-развлекательный комплекс с ледовым комплексом, гостиницей и ФОК на Дружинниковской улице, второй вариант 2025 года© Сергей Скуратов ArchitectsСхема планировочной организации земельного участка. «Дом Спорта», Дружинниковская, 18; проект 2025© Сергей Скуратов architects / Capital GroupМногофункциональный спортивно-развлекательный комплекс с ледовым комплексом, гостиницей и ФОК на Дружинниковской улице, второй вариант 2025 года© Сергей Скуратов ArchitectsАнализ инсоляции. «Дом Спорта», Дружинниковская, 18; проект 2025© Сергей Скуратов architects / Capital GroupМногофункциональный спортивно-развлекательный комплекс с ледовым комплексом, гостиницей и ФОК на Дружинниковской улице, второй вариант 2025 года© Сергей Скуратов ArchitectsСитуационный план 1:50000. Многофункциональный спортивно-развлекательный комплекс с ледовым комплексом, гостиницей и ФОК на Дружинниковской улице, второй вариант 2025 года© Сергей Скуратов ArchitectsСхема движения автотранспорта. Многофункциональный спортивно-развлекательный комплекс с ледовым комплексом, гостиницей и ФОК на Дружинниковской улице, второй вариант 2025 года© Сергей Скуратов ArchitectsСхема генерального плана. Баланс территории. Многофункциональный спортивно-развлекательный комплекс с ледовым комплексом, гостиницей и ФОК на Дружинниковской улице, второй вариант 2025 года© Сергей Скуратов ArchitectsСуммарная поэтажная площадь. Многофункциональный спортивно-развлекательный комплекс с ледовым комплексом, гостиницей и ФОК на Дружинниковской улице, второй вариант 2025 года© Сергей Скуратов ArchitectsПлан -1 этажа. Многофункциональный спортивно-развлекательный комплекс с ледовым комплексом, гостиницей и ФОК на Дружинниковской улице, второй вариант 2025 года© Сергей Скуратов ArchitectsПлан на отм. -3,300. Многофункциональный спортивно-развлекательный комплекс с ледовым комплексом, гостиницей и ФОК на Дружинниковской улице, второй вариант 2025 года© Сергей Скуратов ArchitectsПлан 1 этажа. Многофункциональный спортивно-развлекательный комплекс с ледовым комплексом, гостиницей и ФОК на Дружинниковской улице, второй вариант 2025 года© Сергей Скуратов ArchitectsПлан антресольного этажа. Многофункциональный спортивно-развлекательный комплекс с ледовым комплексом, гостиницей и ФОК на Дружинниковской улице, второй вариант 2025 года© Сергей Скуратов ArchitectsПлан 2 этажа. Многофункциональный спортивно-развлекательный комплекс с ледовым комплексом, гостиницей и ФОК на Дружинниковской улице, второй вариант 2025 года© Сергей Скуратов ArchitectsСхемы планов гостиничного корпуса. Многофункциональный спортивно-развлекательный комплекс с ледовым комплексом, гостиницей и ФОК на Дружинниковской улице, второй вариант 2025 года© Сергей Скуратов ArchitectsСхема офисного корпуса. Многофункциональный спортивно-развлекательный комплекс с ледовым комплексом, гостиницей и ФОК на Дружинниковской улице, второй вариант 2025 года© Сергей Скуратов ArchitectsРазрез 1-1. Многофункциональный спортивно-развлекательный комплекс с ледовым комплексом, гостиницей и ФОК на Дружинниковской улице, второй вариант 2025 года© Сергей Скуратов ArchitectsРазрез 2-2. Многофункциональный спортивно-развлекательный комплекс с ледовым комплексом, гостиницей и ФОК на Дружинниковской улице, второй вариант 2025 года© Сергей Скуратов ArchitectsРазрез 3-3. Многофункциональный спортивно-развлекательный комплекс с ледовым комплексом, гостиницей и ФОК на Дружинниковской улице, второй вариант 2025 года© Сергей Скуратов ArchitectsРазрез 4-4. Многофункциональный спортивно-развлекательный комплекс с ледовым комплексом, гостиницей и ФОК на Дружинниковской улице, второй вариант 2025 года© Сергей Скуратов ArchitectsРазрез 5-5. Многофункциональный спортивно-развлекательный комплекс с ледовым комплексом, гостиницей и ФОК на Дружинниковской улице, второй вариант 2025 года© Сергей Скуратов ArchitectsЗападный фасад. Дружинниковская ул. Многофункциональный спортивно-развлекательный комплекс с ледовым комплексом, гостиницей и ФОК на Дружинниковской улице, второй вариант 2025 года© Сергей Скуратов ArchitectsЮжный фасад. Рочдельская ул. Многофункциональный спортивно-развлекательный комплекс с ледовым комплексом, гостиницей и ФОК на Дружинниковской улице, второй вариант 2025 года© Сергей Скуратов ArchitectsСеверный фасад. Ул. Заморенова. Многофункциональный спортивно-развлекательный комплекс с ледовым комплексом, гостиницей и ФОК на Дружинниковской улице, второй вариант 2025 года© Сергей Скуратов ArchitectsДеталь фасада. Многофункциональный спортивно-развлекательный комплекс с ледовым комплексом, гостиницей и ФОК на Дружинниковской улице, второй вариант 2025 года© Сергей Скуратов ArchitectsРазвертка по Дружинниковской улице. Многофункциональный спортивно-развлекательный комплекс с ледовым комплексом, гостиницей и ФОК на Дружинниковской улице, второй вариант 2025 года© Сергей Скуратов ArchitectsРазвертка по Конюшковской улице. Многофункциональный спортивно-развлекательный комплекс с ледовым комплексом, гостиницей и ФОК на Дружинниковской улице, второй вариант 2025 года© Сергей Скуратов ArchitectsРазвертка по Рочдельской улице. Многофункциональный спортивно-развлекательный комплекс с ледовым комплексом, гостиницей и ФОК на Дружинниковской улице, второй вариант 2025 года© Сергей Скуратов ArchitectsРазвертка по улице Заморенова. Многофункциональный спортивно-развлекательный комплекс с ледовым комплексом, гостиницей и ФОК на Дружинниковской улице, второй вариант 2025 года© Сергей Скуратов Architects
|