Размещено на портале Архи.ру (www.archi.ru)

27.02.2026

Площадь угасшей звезды

Алёна Кузнецова
Объект:
Деловой центр
Адрес:
Россия, Санкт-Петербург. площадь Конституции, дом 1-3
Архитектор:
Никита Явейн
Мастерская:
Студия 44
Авторский коллектив:
Никита Явейн, Вера Бурмистрова

«Студия 44» представила на Градостроительном совете проект развития бизнес-центра Leader Tower, известного как первый небоскреб Санкт-Петербурга. Площадь Конституции, где располагается комплекс, в 1930-е годы задумывалась как важный городской ансамбль, но не была завершена, получив достаточно хаотичный облик. Попытка восстановить целостность и сбить масштаб застройки встретила преимущественно одобрение экспертов.

Никита Явейн начал доклад с истории места, которая для проекта имеет определяющее значение. Площадь Конституции появилась в первом генеральном плане Ленинграда, который создавался под руководством Владимира Витмана и Льва Ильина, в 1935 году: тогда город начали развивать в южном направлении, Московский проспект должен был соединить старый центр с новым – площадью с Домом Советов. 

В редакции генплана Николая Баранова появилась система архитектурных ансамблей. Одним из них должна была стать площадь Конституции: площадь-солнце, от которой расходятся семь «лучей» улиц. В перспективе Ленинского проспекта размещалась высотная доминанта. Реализации помешала война, последствия которой ставили уже другие задачи. 

Далее площадь развивалась скорее случайным образом: круг превратился в прямоугольник, вместо семи лучей получилось пять, высотная доминанта появилась, но уже в створе Новоизмайловского проспекта – первый небоскреб Петербурга, одинокая 145-метровая офисная башня Leader Tower с медиафасадами. Сегодня ее фланкируют с двух сторон 8-этажные протяженные корпуса, построенные еще в 1980-х годах. Эту неуравновешенную композицию симметрично продолжают две 75-метровых гостиницы: вдоль диагонали Краснопутиловской улицы реализуется проект бюро «Земцов, Кондиайн и партнеры», а зеркально, вдоль несостоявшегося продолжения улицы Победы – проект «Студии 17». Из площади-звезды место превратилось в неудобную транспортную развязку, одинаково недружелюбную к пешеходу и автомобилисту. 

 

Заказчик расширения офисных зданий – владелец башни Leader Tower. «Студия 44» видела своей задачей придать композиции сложившегося комплекса более законченный вид, нивелировать массивные и темные брандмауэры гостиниц, а также попытаться сбить масштаб.   

Чтобы найти нужную форму, команда проекта перебрала несколько вариантов: 75-метровые пластины создавали ощущение китайской стены, отдельные же башни рядом с доминантой смотрелись «матрешками». Соединив их горизонталью, архитекторы получили композицию, которая держит фронт и снимает диссонирующий эффект. Высоту «перемычки» тоже двигали, но остановились на уровне, соответствующем 40 метрам. 

К брандмауэрам гостиниц новое здание подходит консолью, под которой организован въезд на внутреннюю территорию. «Многослойный» фасад облицован керамическими пластинами цвета патины, который в «Студии 44» используется довольно часто. Три подземных этажа обеспечивают здание парковками для автомобилей и велосипедов. 

Эксперты отнеслись к проекту положительно: участок сложный и ответственный, а найденное решение гармонизирует застройку. 

Феликс Буянов вспоминая, вероятно, московский вектор развития архитектуры, отметил, что дом вызывает эмоции – в данном случае положительные. Проект напомнил ему Дом государственной промышленности в Харькове. У Владимира Григорьева ассоциации были другие – он предположил, что здание станут называть новыми «Крестами» и высказал идею двух домов с большими арками. Олег Романов увидел в крестах отсылки к композициям Лазаря Хидекеля и Казимира Малевича.  

Среди рекомендаций прозвучали следующие: решить более пластично южный фасад, сделать цвет более «петербургским» – то есть добавить синевы и серости, проверить дальние ракурсы. Резко высказался Евгений Герасимов: «Не нами задуманный ансамбль был испорчен, и в этом виноваты мы все – кто-то проектировал, кто-то подписал, промолчал или проголосовал». Новое решение, по его мнению, не сложилось: противоречие между башнями и горизонталью «царапают глаз», проект плохо реагирует на соседние дома, а самое слабое место – примыкание к брандмауэрам, с которого стоит начинать проектирование.

Итог: «за» проголосовали 18 членов Градостроительного совета, «против» – 4. 

Подробнее о проекте –>

Деловой центр. Проект общественного центра Ленинграда
Деловой центр. Проект общественного центра Ленинграда
© архитектор Н.В. Баранов (1940) / предоставлено Студия 44
Деловой центр. Проект ансамбля южной части общегородского центра у Дома Советов на Московском шоссе
Деловой центр. Проект ансамбля южной части общегородского центра у Дома Советов на Московском шоссе
© Н.В. Баранов, Е.И Катонов, А.И. Наумов, А.А. Афонченко / предоставлено Студия 44
Деловой центр. Ансамбль площади Конституции 1968 г
Деловой центр. Ансамбль площади Конституции 1968 г
Предоставлено Студия 44
Деловой центр
Деловой центр
© Студия 44
Деловой центр
Деловой центр
© Студия 44
Деловой центр
Деловой центр
© Студия 44
Деловой центр
Деловой центр
© Студия 44
Деловой центр
Деловой центр
© Студия 44
Деловой центр
Деловой центр
© Студия 44
Деловой центр. Схема планируемого местоположения объекта на земельном участке © Студия 44
Деловой центр. Схема планируемого местоположения объекта на земельном участке
© Студия 44
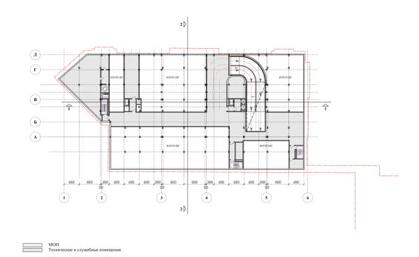
Деловой центр. Схема плана -1 этажа © Студия 44
Деловой центр. Схема плана -1 этажа
© Студия 44
Деловой центр. Схема плана 1 этажа © Студия 44
Деловой центр. Схема плана 1 этажа
© Студия 44
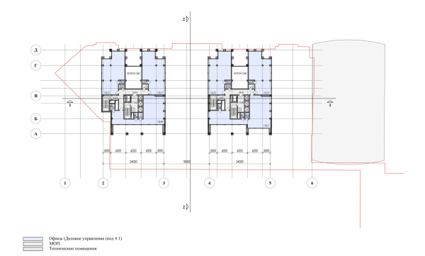
Деловой центр. Схема плана 2 этажа © Студия 44
Деловой центр. Схема плана 2 этажа
© Студия 44
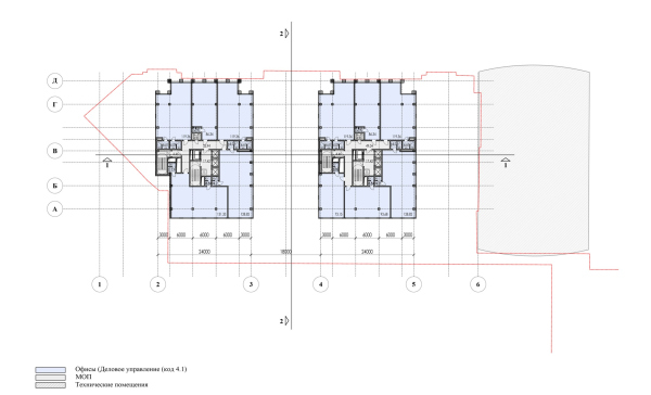
Деловой центр. Схема плана 3 этажа © Студия 44
Деловой центр. Схема плана 3 этажа
© Студия 44
Деловой центр. Схема плана 4 этажа © Студия 44
Деловой центр. Схема плана 4 этажа
© Студия 44
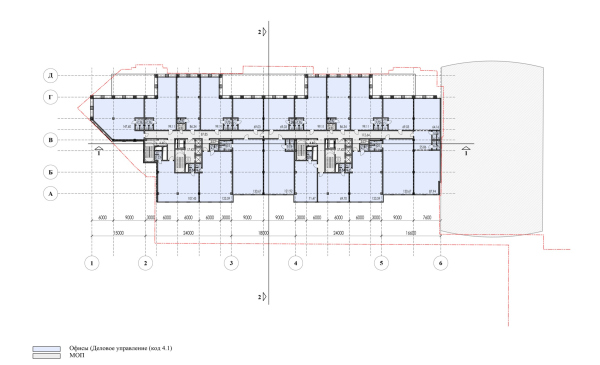
Деловой центр. Схема плана 5-10 этажей © Студия 44
Деловой центр. Схема плана 5-10 этажей
© Студия 44
Деловой центр. Схема плана 11-12 этажей © Студия 44
Деловой центр. Схема плана 11-12 этажей
© Студия 44
Деловой центр. Схема плана 13 этажа © Студия 44
Деловой центр. Схема плана 13 этажа
© Студия 44
Деловой центр. Схема плана 14-22 этажа © Студия 44
Деловой центр. Схема плана 14-22 этажа
© Студия 44
Деловой центр
Деловой центр
© Студия 44
Деловой центр
Деловой центр
© Студия 44
Деловой центр
Деловой центр
© Студия 44
Деловой центр
Деловой центр
© Студия 44