Размещено на портале Архи.ру (www.archi.ru)

12.08.2025

Скорее скатерть и бокал!

Алёна Кузнецова
Объект:
Проект реставрации Конюшенного ведомства
Адрес:
Россия, Санкт-Петербург. Конюшенная пл., 1
Архитектор:
Никита Явейн
Мастерская:
Студия 44
Авторский коллектив:
Архитекторы: Н.И. Явейн, Г.В Иванов, Ю.И. Богданова, А.В. Цыгикало, У.И. Быстрова, А.А. Хусаинова,  Е. Криштопчик, при участии А.А. Патрикеева 
​ГИП: О.И. Кобзева, Е.А Горулев 
Реставраторы: А.С. Тимина, С.В. Морозова, М.Н. Жукова 
Конструкторы: Д.П. Кресов, С.С. Богданов, И.Н. Ляшко, А.В. Смирнов, А.А. Кондратенко     

Спустя много лет заброшенное Конюшенное ведомство в Петербурге наконец дождалось своего часа: по проекту «Студии 44» в этом году должны начаться первые мероприятия по восстановлению и приспособлению здания. И функция, и общий план работ предполагают минимальное изменение комплекса, который сохранил следы трехвековой истории. Все решения обратимы и направлены прежде всего на то, чтобы открыть памятник городу и погрузить его в кипучую светскую жизнь – для этого выбран сценарий культурного центра с выраженной гастрономической составляющей.

Конюшенное ведомство – одновременно характерный, и все равно изумляющий феномен парадного Петербурга. Этот памятник эпохи петровского барокко, по занимаемой территорией сопоставимый с Дворцовой площадью, находится примерно в центре так называемого «золотого треугольника» – сердца города, в котором сосредоточены главные достопримечательности северной столицы. Здание, напоминающее в плане форт или крепость, почти соприкасается с Марсовым полем, Михайловским садом и Спасом-на-Крови. В трех минутах прогулки – Эрмитаж и Русский музей. В составе – церковь, где отпевали Александра Пушкина. 

При всем при этом уже много лет здание стоит заброшенным. Лучшее, что с ним случилось за последние полвека – это противоаварийные работы, которые на праве оперативного управления в 2017 году организовал «Государственный музей истории Санкт-Петербурга» – хотя и к их качеству есть вопросы – да еще фан-зона достопамятного Чемпионата мира по футболу-2018. В остальное время, уже многие десятки лет, стены либо завешаны баннерами, либо заставляют своим видом помнить о скоротечности жизни. Для горожан и туристов это место – «слепая» зона, где нет даже тротуаров. 



Впрочем, попыток привести памятник в порядок было не мало. 

В 2001 году ансамбль получил статус объекта культурного наследия федерального значения. В 2015 и в 2017 годах Совет по сохранению культурного наследия рассматривал концепции реставрации и приспособления для современного использования. В 2019 году по инициативе Комитета по инвестициям были подготовлены концепции по приспособлению от пяти организаций – их набор был специфический, в список участников каким-то образом затесались даже MVRDV. 

В 2022 году по программе «Рубль за метр» памятник перешел к компании «Ведомство», еще два года ушло на подтверждение права аренды, которое оспаривали другие претенденты. Наконец, «Студия 44» провела научно-исследовательские и изыскательские работы, а в апреле 2025 года Совет по сохранению культурного наследия одобрил концепцию приспособления. 

Хлеба и вина
Среди функций, которые когда-либо примеряли к Конюшенному ведомству, были гостиница, музей архитектуры или современного искусства, автосалон, офисы, рынок и «сборная солянка» общественного пространства, где есть и коворкинг, и студия театра, и шоу-румы локальных брендов. Никита Явейн считает, что если бы можно было приспособить здание под конюшни – было бы лучше всего: слишком сложно дробную историческую планировку и неприкосновенную материю, защищенную статусом памятника, соединить с современной технологией, нормами, представлениями о комфорте и экономической моделью. Кроме того, функция гостиницы или офиса оставляют здание закрытым, ухудшают проницаемость территории.      

Программу, которую предлагает «Студия 44», проще всего обозначить как «гастрономический город», однако исключительно едой она не исчерпывается – скорее это все же общественный центр с большим выбором мест, где можно утолить голод. Фудкорт и рестораны – основная коммерческая составляющая, но ее балансируют другие пространства: выставочные залы, концертные площадки, книжный магазин, центры детского и семейного досуга.

 
Никита Явейн, Студия 44
Две выбранные функции комплементарны: разнообразие общественных пространств затягивает волну людей, которые рано или поздно проголодаются или захотят передохнуть за чашкой кофе. Работает и обратная схема: отдохнув и поев, будешь готов зайти и в книжный, и на временную выставку. Пропорция «хлеба и зрелищ» – 40 на 60%, то есть из общих 11 000 м2 общепит займет только 4300 м2. Такой коллективный хаб в историческом центре, по моему мнению, обречен на успех: всякий, кто был в Русском музее или Эрмитаже знает, как в равной степени тяжело и желанно найти точку, где можно восполнить силы и осмыслить полученный опыт. 


Для зон приготовления пищи и других необходимых технических помещений предлагаются модульные конструкции, которые при необходимости можно демонтировать, не затрагивая здание. Часть кладовых разместится в подвалах. Самое сложное решение касается загрузки – делать подземный этаж в данном месте было бы слишком дорого, поэтому пока что предполагается обойтись простыми средствами: машина подъезжает на Конюшенную площадь, далее груз перемещается на красивую тележку, которая затем едет к месту назначения или лифту. Выбор «технической» зоны усложняется тем, что все фасады здания парадные, второстепенных нет. 

Еще одно тонкое место выбранной модели – соседство условно увеселительной функции с храмом. Архитекторы решают этот вопрос, концентрируя вокруг церкви выставочные и культурные общественные пространства. 
Гербель, Стасов или Гросс?
Для понимания проекта приспособления необходимо погрузиться в историю Конюшенного ведомства. За три века оно перестраивалось множество раз, но во время изыскательных работ архитекторы постепенно восстановили «провенанс» всех элементов комплекса: от подвалов до декора. Забегая вперед отметим, что большая часть здания относится ко времени реконструкции, которую проводил Василий Стасов. 

Конюшенное ведомство было построено 1720-х годах по указу Петра I, который увидел подобное строение во время путешествия по Франции. Строительство поручили Николаю Гербелю. Поскольку было нужно много проточной воды, выбрали место на левом берегу Мойки, где корпуса конюшен образовали шестиугольник. В нижних этажах содержали лошадей, каретные сараи и мастерские. В верхних – хранили седла и упряжки. Строительство завершилось уже при участии архитектора Михаила Земцова.

В 1817-1823 годах Василий Стасов провел масштабную реконструкцию. По его проекту была перестроена церковь Спаса Нерукотворного Образа. Главный объем и стены сохранились, но к западному корпусу добавилась полукруглая дорическая колоннада. Во дворе появились два хозяйственных флигеля, разделившие внутреннюю территорию комплекса на три части. Тогда же деревянные перекрытия заменили на кирпичные своды с чугунными колоннами. В водопойных залах установили гранитные чаши, сделанные Самсонов Сухановым – его знаменитая артель каменотесов построила колоннаду Казанского и Исаакиевского соборов. Позже в XIX веке модернизацию проводили Георг Гросс, а также Петр Садовников и другие архитекторы. С 1898 по 1903 года в здании квартировался барон Карл Густав Маннергейм, который занимался комплектованием царских конюшен. Сначала Этьен Фальконе, а позже и Петр Клодт приходили сюда подбирать лошадей для натуры.

В XX веке в здании размещались 4-ая рота Павловского полка, затем отряд Конной милиции. В 1946 – гараж Управления Министерства внутренних дел. В 1948-1951 годах под руководством Николая Никитина проводились реставрационные работы, во время которых стремились вернуть облик периода Стасова. Противоаварийные работы 2010-х годов оставили свой след в виде усиления сводов бетоном. 
Сохранить все, что можно

Специалисты отдела реставрации «Студии 44» отмечают, что еще несколько бесхозных лет привели бы к окончательному разрушению и сползанию здания в Мойку. Но укрепить и сохранить его вполне реально. 

Реставрационные работы будут направлены на приведение в порядок всех временных слоев – от небольших фрагментов времен Николая Гербеля, которые сохранились в южной стене и подвалах, до фасадных нововведений Георга Гросса.

 
Григорий Иванов, руководитеь направления реставрации в «Студии 44»
Вся планировочная схема здания полностью сохраняется: помещения корпусов не будут перекрывать или делить, используя для зонирования только временные встройки, которые можно в любой момент разобрать. Церковь Спаса Нерукотворного Образа не входит в границы проектирования, однако реставрацию ее фасадов и кровли инвестор планирует синхронизировать с основными работами по Конюшенному ведомству.


 
Юлия Богданова, ГАП «Студии 44»
Фронт работ обширный: необходимо усилить фундаменты и укрепить стены, которые значительно отклоняются от вертикали, восстановить на историческом местоположении чугунные колонны, законсервировать деревянные фермы и стропила, раскрыть заложенные оконные и дверные проемы, вернуть утраченный декор, подлинный цвет, а также скульптуру коня на шпиле, которую можно видеть еще на исторических чертежах Николая Гербеля. Ко всему прочему требуется заменить загрязненный нефтепродуктами грунт во дворе – во времена автобазы здесь закопали цистерны с соляркой.

Дворы и корпуса
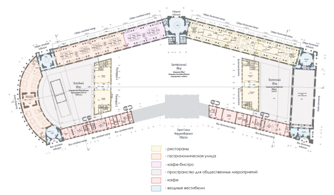
Самые большие изменения связаны с перекрытием дворов. Два флигеля восстановят в исторических отметках и габаритах, в них откроются кафе и административные помещения. После этого двор разделится на три части. Две крайние архитекторы предлагают перекрыть разборной металлической оболочкой на самонесущих колоннах. Такое решение является обратимым и не затрагивает памятник, а дворы превращаются во всесезонные и всепогодные пространства. Перекрытие не будет видно с улицы с уровня глаз человека – только с некоторых высотных точек. 

Восточное крыло будет предназначено для семейного отдыха, концертов и торжественных мероприятий. Через западное крыло с полукруглой колоннадой протянется всесезонная гастрономическая улица – двусветное пространство с корнерами кафе и ресторанов. В южном корпусе, который выходит на площадь и включает церковь, предполагается устройство нескольких кафе, а также приспособление квартиры Карла Густава Маннергейма под выставочное пространство и литературный клуб. В северных корпусах предприятия общественного питания размещаются исходя из исторического расположения колонн архитектора Георга Гросса. 

Центральный открытый двор станет площадкой для проведения городских мероприятий – культурных форумов, кинопоказов, концертов, ярмарок, гастрономических фестивалей. Навесы на месте фуражных сараев закроют столики от непогоды. Зимний сценарий предполагает каток с новогодней ярмаркой. 

После открытия Конюшенное ведомство неизбежно начнет вовлекать и аккумулировать потоки туристов и горожан, которые курсируют через центральную часть Петербурга. Семь входов наконец свяжут значительный отрезок набережной Мойки с Конюшенной площадью, а Театральный и Мало-Конюшенный мосты получат достойное обрамление – еще один открыточный вид Петербурга попадет во все объективы. 
Проект реставрации Конюшенного ведомства. Ситуационный план
Проект реставрации Конюшенного ведомства. Ситуационный план
© Студия 44
Проект реставрации Конюшенного ведомства
Проект реставрации Конюшенного ведомства
© Студия 44
Проект реставрации Конюшенного ведомства
Проект реставрации Конюшенного ведомства
© Студия 44
Проект реставрации Конюшенного ведомства. Схема 1 этажа
Проект реставрации Конюшенного ведомства. Схема 1 этажа
© Студия 44
Проект реставрации Конюшенного ведомства. Схема 2 этажа
Проект реставрации Конюшенного ведомства. Схема 2 этажа
© Студия 44
Проект реставрации Конюшенного ведомства
Проект реставрации Конюшенного ведомства
© Студия 44
Проект реставрации Конюшенного ведомства. До 1917г.
Проект реставрации Конюшенного ведомства. До 1917г.
© Студия 44
Проект реставрации Конюшенного ведомства. Реставрация 1960-е г.
Проект реставрации Конюшенного ведомства. Реставрация 1960-е г.
© Студия 44
Проект реставрации Конюшенного ведомства. ХХI век
Проект реставрации Конюшенного ведомства. ХХI век
© Студия 44
Проект реставрации Конюшенного ведомства. ХХI век
Проект реставрации Конюшенного ведомства. ХХI век
© Студия 44
Проект реставрации Конюшенного ведомства. Схема проектных реставрационных решений фасадов © Студия 44
Проект реставрации Конюшенного ведомства. Схема проектных реставрационных решений фасадов
© Студия 44
Проект реставрации Конюшенного ведомства. Схема предмета охраны. Архитектурно-художественные решения фасадов и интерьеров © Студия 44
Проект реставрации Конюшенного ведомства. Схема предмета охраны. Архитектурно-художественные решения фасадов и интерьеров
© Студия 44
Проект реставрации Конюшенного ведомства. Реставрационные решения. Лицевые фасады © Студия 44
Проект реставрации Конюшенного ведомства. Реставрационные решения. Лицевые фасады
© Студия 44
Проект реставрации Конюшенного ведомства. Реставрационные решения. Дворовые фасады © Студия 44
Проект реставрации Конюшенного ведомства. Реставрационные решения. Дворовые фасады
© Студия 44
Проект реставрации Конюшенного ведомства. Схема загрязнения грунтов нефтепродуктами © Студия 44
Проект реставрации Конюшенного ведомства. Схема загрязнения грунтов нефтепродуктами
© Студия 44
Проект реставрации Конюшенного ведомства. Схема предмета охраны. Объемно-планровочные решения
Проект реставрации Конюшенного ведомства. Схема предмета охраны. Объемно-планровочные решения
© Студия 44
Проект реставрации Конюшенного ведомства. Схема формообразования точек питания
Проект реставрации Конюшенного ведомства. Схема формообразования точек питания
© Студия 44
Проект реставрации Конюшенного ведомства. проектные решения. Разрез 1-1
Проект реставрации Конюшенного ведомства. проектные решения. Разрез 1-1
© Студия 44
Проект реставрации Конюшенного ведомства © Студия 44
Проект реставрации Конюшенного ведомства
© Студия 44
Проект реставрации Конюшенного ведомства © Студия 44
Проект реставрации Конюшенного ведомства
© Студия 44
Проект реставрации Конюшенного ведомства © Студия 44
Проект реставрации Конюшенного ведомства
© Студия 44
Проект реставрации Конюшенного ведомства. Аксонометрия
Проект реставрации Конюшенного ведомства. Аксонометрия
© Студия 44
Проект реставрации Конюшенного ведомства
Проект реставрации Конюшенного ведомства
© Студия 44
Проект реставрации Конюшенного ведомства
Проект реставрации Конюшенного ведомства
© Студия 44
Проект реставрации Конюшенного ведомства. Аксонометрия
Проект реставрации Конюшенного ведомства. Аксонометрия
© Студия 44
Проект реставрации Конюшенного ведомства
Проект реставрации Конюшенного ведомства
© Студия 44
Проект реставрации Конюшенного ведомства
Проект реставрации Конюшенного ведомства
© Студия 44