XXI век в ампирной оболочке
- Архитектура
- Объект
Государственный Эрмитаж, новая Большая Анфилада в восточном крыле Главного Штаба, Санкт-Петербург информация:
-
что:
Музейный комплекс Государственного Эрмитажа в восточном крыле Главного Штаба -
где:
Россия. Санкт-Петербург -
архитектор:
Никита Явейн -
мастерская:
Студия 44 -
событие:
Выставка "Новая Большая Анфилада. Проект реконструкции и реставрации Восточного крыла здания Главного штаба"
Окончательный проект реконструкции восточного крыла Главного штаба предстал, наконец, на суд широкой общественности. Громкое событие вызвало широкий резонанс. Конечно, ключевым вопросом и главной интригой остается то, в какой мере архитекторам удалось связать новые задачи со старой архитектурой – шедевром Росси, памятником федерального значения
Сам по себе проект архитектурной мастерской «Студия 44», победивший в конкурсе 2002 года, представляется бесспорной удачей. Как пишет О.И. Явейн, «авторы проекта отрицательно относятся как к стилизациям под классицизм в подлинном памятнике, так и к внедрениям модернистского сознания, когда появляются вещи, построенные на резком контрасте между старым и новым, когда ампирное пространство корректируется модернистской схемой и в конечном счете подчиняется ей». В соответствии с этими установками авторы стремились к созданию принципиально нового архитектурного образа, воплощающего идеи музея XXI века внутри постройки начала XIX столетия. При этом новизна органически вырастает из первообразных структур, архетипов исторического Эрмитажа: анфилад, висячих садов, больших выставочных залов.
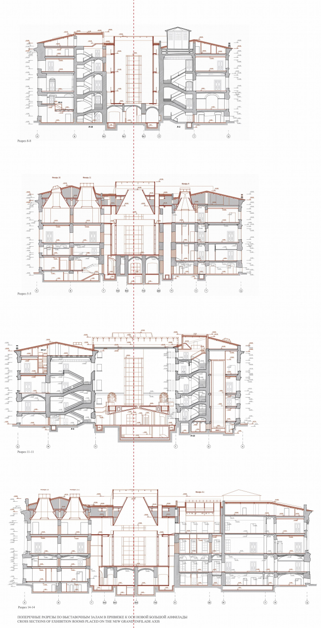
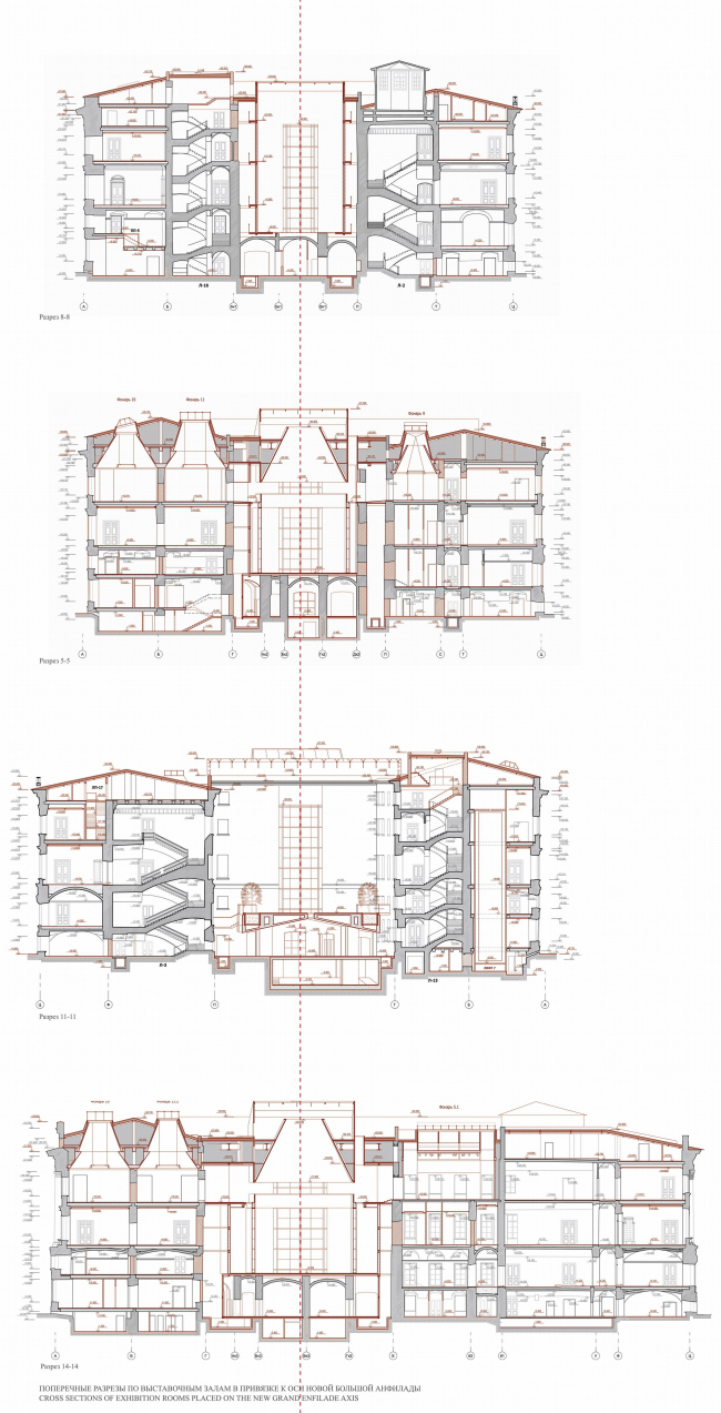
Новое архитектурное пространство представляет собой Большую анфиладу, возникающую за счет частичной разборки поперечных дворовых корпусов Главного штаба. Ее платформой станет перекрытый первый этаж – своеобразное продолжение Дворцовой площади, зона сервисного обслуживания (билетные кассы, гардеробы, книжные и сувенирные лавки, кафе и рестораны). Три дворовых корпуса преобразуются в экспозиционные залы, оснащенные верхним светом. Такая трансформация обусловлена задачей создания пространств, соотносимых по масштабу с залами старых эрмитажных зданий (существующие помещения, расположенные по периметру здания Росси, очень малы).
Промежуточными звеньями Большой анфилады станут висячие сады на уровне второго этажа с верхним остеклением, которые заполнят пространство дворов. Озеленение будет достаточно условным, скорее – сад скульптур, своего рода знак висячего сада. Колоссальные подвижные двери во всю высоту залов будут открывать вид на эффектную перспективу не всегда. Обычно посетители будут проходить сквозное пространство через небольшие двери в дверях. Зато открытие Большой анфилады в дни тех или иных знаменательных для музея событий должно создать ощущение настоящего праздника.
Само эмоционально-образное решение нового музейного пространства, бесспорно, навеяно циклопической архитектурой древних восточных деспотий – Ассирии, Вавилона. Так архитекторы воплотили идею музея как грандиозного храма искусства – понятия вневременного и вечного.
Еще одна ассоциативно-игровая линия обусловлена клинообразным сужением пространства внутренних дворов, которое создает эффект резкого перспективного сокращения – одну из тех обманок, которые так любила эпоха барокко.
Эта игра исторических знаков и ассоциаций, являясь органической частью грандиозного нового целого, призвана утвердить внутреннее родство современного музейного комплекса в отношении к историческому Эрмитажу.
Изюминкой проекта является музеефикация чердачных помещений, никогда не предназначавшихся для показа. Освещенные естественным светом сквозь стеклянные фонари, они, несомненно, привлекут и архитекторов, и просто любопытных.
Прежде чем вернуться к главному вопросу о том, насколько удачно найден компромисс между задачами заказа и интересами памятника, уместно напомнить о том, что смена функции – нормальное явление, с которым рано или поздно сталкивается почти любой архитектурный памятник.
О достоинствах и недостатках проекта «Студии 44» мы попросили высказаться авторитетных специалистов в области архитектуры, реставрации и охраны памятников.
М.И. Мильчик, член федерального и городского советов по сохранению культурного наследия, автор историко-культурной экспертизы восточного крыла, считает, что в основе этого, безусловно, талантливого проекта лежит глубоко ошибочная концепция Эрмитажа, осуществление которой с неизбежностью приведет к насилию над памятником. «Конечно, проект «Студии 44», по сравнению с Сенатом и Синодом, с домом Лобанова-Ростовского более деликатен. Тем не менее, пробивка поперечных корпусов однозначно противоречит федеральному закону, ибо эти корпуса являются неотъемлемой частью памятника. Кроме того, в результате устройства междуэтажных перекрытий почти полностью исчезнет пространство дворов, а их фасады будут искажены. Конечно, они, как им и положено, более скромны, нежели лицевые, но все же это Росси. В здании в свое время располагались два министерства – финансов и иностранных дел, а также несколько департаментов, т.е. по существу это было (теперь уже в прошедшем времени) большое конторское здание с включением парадных интерьеров, которые как раз сравнительно легко поддаются музеефицированию. Не удивительно, что размещение в восточном крыле Главного штаба полноценной музейной экспозиции со всеми современными требованиями освещенности и технической оснащенности, да еще со сквозным анфиладным проходом высотой в три этажа и висячими садами в бывших дворах входят в явный конфликт с первоначальной структурой здания. При таком использовании памятника требуется не просто его приспособление под новые нужды, а серьезная реконструкция».
А.Д. Марголис, сопредседатель СПб отделения ВООПИК, подтвердил свое мнение, высказанное еще пять лет назад на заседании Совета по сохранению наследия: «Я не хочу участвовать в преступлении». Реализация проекта, по его оценке, однозначно нарушает федеральный закон о наследии, принятый в 2002 году. Если здание служило министерским нуждам – незачем перекраивать его под музейные залы.
Совсем иной подход в оценке продемонстрировал руководитель архитектурной мастерской «Литейная часть-91», заслуженный архитектор РФ
Р.М. Даянов. «То, что Эрмитаж продолжает освоение Главного штаба – очень логично и естественно. Я считаю правильной позицию М.Б. Пиотровского в этом вопросе, его установку на создание принципиально нового музейного комплекса. «Прострел» Новой большой анфилады созвучен динамике здания Росси, его решительной, смелой композиции с острым углом восточного крыла, выходящим на Певческий мост. Дворовые корпуса, о которых идет речь, имели характер чисто утилитарный. Нужно помнить, что Росси – не идол, это человек, архитектор, любивший действовать не менее радикально».
Б.М. Кириков, историк архитектуры, заместитель председателя КГИОП с 1996 по 2008 годы, считает, что компромисс в пользу Эрмитажа в данной ситуации неизбежен и оправдан. «Такой вывод был сделан не произвольно, а на основании глубокой и тщательной исследовательской работы, проведенной группой специалистов во главе с М.И.Мильчиком под общим руководством О.И. и Н.И. Явейнов. Конечно, сама концепция анфилады внутренних пространств в здании Главного штаба нарушает логику Росси, затрагивает полноту и подлинность сохранения россиевского наследия. С другой стороны, само пространство дворов не отличается чистотой и качеством архитектурной отделки – Росси не придавал им эстетического значения. В любом случае этот выдающийся и высокоталантливый проект уже вошел в историю петербургской архитектуры как одна из наиболее серьезных и концептуальных современных разработок. Оригинальная концепция перетекающих пространств, игра различных уровней и многие другие достоинства свидетельствуют о высоком творческом уровне архитекторов».
И.Г. Уралов, заслуженный художник РФ, профессор, лауреат Государственной премии РСФСР в области архитектуры, не скрывает своего восхищения новым проектом. «Мне нравится все: и новая музейная концепция, и собственно архитектура. Сам Росси подчеркнул соответствие архитектурных членений здания Главного штаба и Зимнего, подхватил его анфиладную логику. Не хватало только логики так называемых «Больших просветов» Эрмитажа. В проекте она получила новое воплощение, и это великолепно! Надеюсь, что Новая большая анфилада станет событием мирового значения в музейном проектировании. Казалось бы, что можно было противопоставить развитию Лувра с его знаменитыми пирамидами? Однако думаю, что после реализации проекта этот бастион падет: можно будет поспорить и о вкусе, и о функции, и о взаимодействии с исторической средой.
Сам по себе проект отличается изяществом и прекрасной подачей. Я считаю «Студию 44» самой сильной мастерской города, архитекторам которой под силу самые сложные, тонкие и ответственные задачи, которые решаются вне противоречия среде, но и без рабского подчинения ей; без утраты собственного лица и черт времени, но и без грубости и неуважения в отношении наследия. И Новая Голландия, и особенно новая сцена Мариинки – это в известном смысле «вставные челюсти», которые едва ли врастут в архитектурную ткань города. То, что мы видим в представленном проекте, – блестящий пример органичного синтеза старого и нового, проявление истинно петербургского вкуса».
Ю.И. Курбатов, доктор архитектуры, профессор, высказался более сдержанно. «Проект реконструкции и реставрации восточного крыла Главного штаба – выдающийся пример перепрофилирования объекта культурного наследия XIX века в музейный комплекс XXI. Авторам пришлось решить беспрецедентный комплекс задач. Основой решения, что весьма важно, стали аллюзии на первообразы исторического Эрмитажа. Однако радикальная переделка кровельных этажей, новации в создании устройств верхнего света (своеобразных ловушек и распределителей света), блистательно решающих функциональные задачи, пока нарушают сложившийся облик Эрмитажа. Пока мощные светорассеивающие пирамиды с трудом сочетаются с историческим Эрмитажем, а тем более с Главным штабом. Наверное, для адаптации и приятия этих световых устройств, столь резко нарушающих структуру кровель и перекрытий, потребуется некоторое время».
Как видим, диапазон приведенных мнений весьма широк. Не стоит забывать, что вполне объективно мы сможем судить о проекте лишь после его осуществления. Окончательные же точки расставит время.
Визуальные материалы предоставлены «Студией-44»
Государственный Эрмитаж, новая Большая Анфилада в восточном крыле Главного Штаба, Санкт-Петербург
© Студия 44
Государственный Эрмитаж, новая Большая Анфилада в восточном крыле Главного Штаба, Санкт-Петербург
© Студия 44
Государственный Эрмитаж, новая Большая Анфилада в восточном крыле Главного Штаба, Санкт-Петербург. Разрезы
© Студия 44
comments powered by HyperComments


