Размещено на портале Архи.ру (www.archi.ru)

11.12.2017

Про любовь

Лилия Аронова
Объект:
Конкурсный проект реновации типографии Сытина под комплекс квартир и апартаментов премиум-класса
Адрес:
Россия, Москва. ул. Пятницкая, 71/5, стр. 1-4, 5,6,8
Архитектор:
Сергей Переслегин
Николай Переслегин
Георгий Трофимов
Мастерская:
Kleinewelt Architekten
Авторский коллектив:
Руководители бюро: Николай Переслегин, Сергей Переслегин, Георгий Трофимов
ГАП: Антон Баев, Ксения Воробьева
ГИП: Сергей Якубов, Олег Петров
Ведущие архитекторы: Александра Ташимова, Егор Легков, Наталья Ланская, Надежда Чадович, Оксана Новоскольцева, Мария Зубкова, Дарья Минеева
Архитекторы: Саломе Секания, Мари Миндиашвилли, Анна Рябова, Антонина Переслегина, Мария Рожнева
Ландшафтный архитектор: Анна Ерохина
Генпланисты: Евгений Русаков, Денис Невельский
Менеджеры: Елена Шевченко, Виктория Кошелева, Маргарита Трохина, Валентин Боровиков 

Победителем конкурса на реновацию комплекса зданий Первой образцовой типографии стало бюро Kleinewelt Architekten с проектом, претендующим на прорыв к новой ступени материального и эмоционального комфорта.

Конкурсный проект реновации типографии Сытина под комплекс квартир и апартаментов премиум-класса. Музей типографии Сытина © Kleinewelt Architekten
Конкурсный проект реновации типографии Сытина под комплекс квартир и апартаментов премиум-класса. Музей типографии Сытина © Kleinewelt Architekten

«Конечная цель этого проекта достаточно амбициозна, – говорит один из партнеров бюро Kleinewelt Николай Переслегин. – Мы хотели создать, может быть, самую комфортную среду и непревзойденный по своему уровню жилой комплекс в Москве». Основания для таких нешуточных амбиций лежат не только и не столько в сфере материального. В бывшей типографии Сытина авторы проекта увидели архитектурное воплощение русской культуры во всей ее «цветущей сложности» (Константин Леонтьев), можно сказать, максимальную ее концентрацию. Это дало возможность добавить ко всем факторам премиальности дорогого жилого квартала с прекрасной локацией еще один – фактор «эмоционального комфорта».

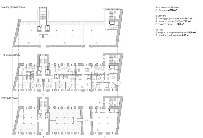
Определив таким образом зерно концепции своего проекта, авторы с непреклонной последовательностью воплощают этот сценарий в каждом элементе его структуры, от пластики фасадов до музыки, подобранной к каждому строению, и строки из литературного произведения – к каждой квартире. Корпуса комплекса – в соответствии со своим характером, временем постройки и конкретным местоположением – получили имена в честь столпов русской и советской литературы. Лев Толстой, Гоголь, Маяковский, Блок, Есенин – почти все члены уважаемого ареопага бывали когда-то в здании типографии, а Есенин какое-то время еще и работал там корректором. В его честь назван корпус, где находилось рабочее место молодого поэта, – здание, выходящее на Валовую улицу, кстати, самая ранняя из исторических построек и единственная, спроектированная не Эрихсоном, а Федором Рыбинским и Флегонтом Воскресенским. Как и другие участники конкурса, авторы данного проекта в его архитектуру вмешиваются минимально, оставляя практически нетронутыми фасад и структуру доходного дома рубежа XIX–XX веков, подчеркивая его красоту бережной реставрацией и лишь со стороны двора несколько увеличивая объем мансарды для создания полноценных пентхаусов. «Такой подход для нас коррелирует с восприятием Есенина как поэта, которого я лично люблю за тонкое умение видеть, казалось бы, неприметные фрагменты окружающей действительности и раскрывать их внутреннюю красоту», – говорит Николай Переслегин.
Конкурсный проект реновации типографии Сытина под комплекс квартир и апартаментов премиум-класса. Схема. Корпус Есенин © Kleinewelt Architekten
Конкурсный проект реновации типографии Сытина под комплекс квартир и апартаментов премиум-класса. Схема. Корпус Есенин © Kleinewelt Architekten
Конкурсный проект реновации типографии Сытина под комплекс квартир и апартаментов премиум-класса. Вариант 1. Фасад со стороны Пятницкой улицы © Kleinewelt Architekten
Конкурсный проект реновации типографии Сытина под комплекс квартир и апартаментов премиум-класса. Вариант 1. Фасад со стороны Пятницкой улицы © Kleinewelt Architekten
Конкурсный проект реновации типографии Сытина под комплекс квартир и апартаментов премиум-класса. Вариант 2. Фасад со стороны Валовой улицы © Kleinewelt Architekten
Конкурсный проект реновации типографии Сытина под комплекс квартир и апартаментов премиум-класса. Вариант 2. Фасад со стороны Валовой улицы © Kleinewelt Architekten
Конкурсный проект реновации типографии Сытина под комплекс квартир и апартаментов премиум-класса. Действующие лица © Kleinewelt Architekten
Конкурсный проект реновации типографии Сытина под комплекс квартир и апартаментов премиум-класса. Действующие лица © Kleinewelt Architekten

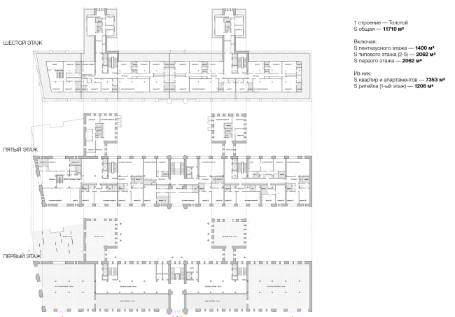
Имя самой, может быть, мощной фигуры в русской литературе – Льва Толстого – в проекте получил, конечно, главный корпус бывшей типографии. Архитекторы предлагают демонтировать часть дворовой пристройки, там где «Толстой» смыкается с обновляемым корпусом по 2-му Монетчиковскому переулку. Подобное решение позволяет им, во-первых, получить материалы для максимально аутентичного восстановления исторического уличного фасада, а во-вторых, освободить место для сооружения концептуально необходимого авторам музея Сытинской типографии. Свободное пространство, образовавшееся над одноэтажным объемом музея, дает возможность открыть дополнительные оконные блоки для квартир в обоих корпусах.
Конкурсный проект реновации типографии Сытина под комплекс квартир и апартаментов премиум-класса. Схема. Корпус Толстой © Kleinewelt Architekten
Конкурсный проект реновации типографии Сытина под комплекс квартир и апартаментов премиум-класса. Схема. Корпус Толстой © Kleinewelt Architekten
Конкурсный проект реновации типографии Сытина под комплекс квартир и апартаментов премиум-класса. Схема. Корпус Толстой © Kleinewelt Architekten
Конкурсный проект реновации типографии Сытина под комплекс квартир и апартаментов премиум-класса. Схема. Корпус Толстой © Kleinewelt Architekten

В соответствии с техническим заданием «советскую» надстройку, образующую сегодня пятый этаж главного корпуса типографии, предлагалось демонтировать и возвести на ее месте этаж, отвечающий и новой типологии, и новым требованиям к внешнему виду здания. Авторы проекта планируют здесь просторные пентхаусы с выходом на террасы, оттеняя сплошное остекление фасадов раздвижными панелями из перфорированной меди. Здесь, на углу Пятницкой и 2-го Монетчиковского, они предлагают разместить самую роскошную квартиру комплекса, тоже, кстати, не оставшуюся без имени собственного – «Пьер».
Конкурсный проект реновации типографии Сытина под комплекс квартир и апартаментов премиум-класса. Схема. Корпус Толстой © Kleinewelt Architekten
Конкурсный проект реновации типографии Сытина под комплекс квартир и апартаментов премиум-класса. Схема. Корпус Толстой © Kleinewelt Architekten

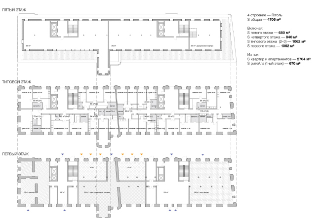
В четвертом, самом камерном корпусе, стоящем внутри двора, архитекторы увидели трогательную провинциальность, напомнившую им о творчестве Николая Васильевича Гоголя – не того, который «Ревизор» и «Мертвые души», а Гоголя-романтика времен «Вечеров на хуторе близ Диканьки». Некий отсыл к украинским мазанкам можно усмотреть в облицовке мансарды, спроектированной над нынешней кровлей: сложная поверхность колотого известняка сочетается с аналогичными по цвету, но контрастными по фактуре гладкими плитами перекрытий и кровли и перекликается с белыми горизонтальными отбивками и обрамлением окон на историческом фасаде. При этом пластически мансарда решена совсем лапидарно – это простой прямоугольный объем с вытянутыми по вертикали окнами, ритм которых соответствует разбивке оконных проемов нижних этажей.
Конкурсный проект реновации типографии Сытина под комплекс квартир и апартаментов премиум-класса. Схема. Корпус Гоголь © Kleinewelt Architekten
Конкурсный проект реновации типографии Сытина под комплекс квартир и апартаментов премиум-класса. Схема. Корпус Гоголь © Kleinewelt Architekten
Конкурсный проект реновации типографии Сытина под комплекс квартир и апартаментов премиум-класса. Корпус Гоголь © Kleinewelt Architekten
Конкурсный проект реновации типографии Сытина под комплекс квартир и апартаментов премиум-класса. Корпус Гоголь © Kleinewelt Architekten

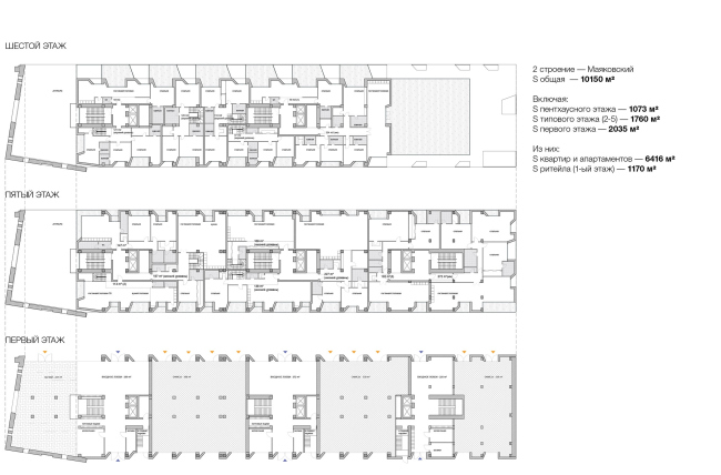
Сложно представить себе более противоречивое литературное соседство, чем Лев Толстой и Владимир Маяковский, тем не менее в проекте Kleinewelt они стоят буквально бок о бок. Имя поэта революции получил строящийся на основе существующего каркаса корпус по 2-му Монетчиковскому переулку. В ритме оконных ниш и кубов, разбивающем монотонность длинного и невысокого здания, и правда читается нечто родственное знаменитой «лесенке» стихов Маяковского.
Конкурсный проект реновации типографии Сытина под комплекс квартир и апартаментов премиум-класса. Корпус Толстой © Kleinewelt Architekten
Конкурсный проект реновации типографии Сытина под комплекс квартир и апартаментов премиум-класса. Корпус Толстой © Kleinewelt Architekten
Конкурсный проект реновации типографии Сытина под комплекс квартир и апартаментов премиум-класса. Корпус Гоголь на фоне Толстого © Kleinewelt Architekten
Конкурсный проект реновации типографии Сытина под комплекс квартир и апартаментов премиум-класса. Корпус Гоголь на фоне Толстого © Kleinewelt Architekten
Конкурсный проект реновации типографии Сытина под комплекс квартир и апартаментов премиум-класса. Схема. Корпус Маяковский © Kleinewelt Architekten
Конкурсный проект реновации типографии Сытина под комплекс квартир и апартаментов премиум-класса. Схема. Корпус Маяковский © Kleinewelt Architekten

Светлый камень, которым облицован фасад, контрастирует с «толстовским» кирпичом, зато со следующим корпусом, соединенным с «Маяковским» двухэтажным переходом на уровне второго и третьего этажей, они явные родственники, хотя тот темнее, строже и как-то «дисциплинированнее». Это «Блок» – новый корпус, завершающий квартал с северной стороны, на углу 2-го и 3-го Монетчиковских переулков. Чтобы избежать всяких сравнений с «духами и туманами», авторы в данном случае сами определяют программное произведение, которое их вдохновляло: не просто Блок, а поэма «Двенадцать», вещь суровая, непростая, лишенная всякой интеллигентской мягкотелости. Вместе с тем архитекторы отталкивались и от внешнего облика поэта – аристократическое удлиненное лицо, застегнутый на все пуговицы сюртук с неизменной бабочкой или шейным платком… Роль последнего в проекте выполняют тонкие вертикальные вставки из латуни, подчеркивающие ритмическую сбивку крупных блоков из серого базальта.
Конкурсный проект реновации типографии Сытина под комплекс квартир и апартаментов премиум-класса. Схема. Корпус Двенадцать Блока © Kleinewelt Architekten
Конкурсный проект реновации типографии Сытина под комплекс квартир и апартаментов премиум-класса. Схема. Корпус Двенадцать Блока © Kleinewelt Architekten
Конкурсный проект реновации типографии Сытина под комплекс квартир и апартаментов премиум-класса. Корпус Двенадцать Блока © Kleinewelt Architekten
Конкурсный проект реновации типографии Сытина под комплекс квартир и апартаментов премиум-класса. Корпус Двенадцать Блока © Kleinewelt Architekten
Конкурсный проект реновации типографии Сытина под комплекс квартир и апартаментов премиум-класса. Корпус Двенадцать Блока © Kleinewelt Architekten
Конкурсный проект реновации типографии Сытина под комплекс квартир и апартаментов премиум-класса. Корпус Двенадцать Блока © Kleinewelt Architekten
Конкурсный проект реновации типографии Сытина под комплекс квартир и апартаментов премиум-класса. Корпус Двенадцать Блока © Kleinewelt Architekten
Конкурсный проект реновации типографии Сытина под комплекс квартир и апартаментов премиум-класса. Корпус Двенадцать Блока © Kleinewelt Architekten
Конкурсный проект реновации типографии Сытина под комплекс квартир и апартаментов премиум-класса. Корпус Двенадцать Блока © Kleinewelt Architekten
Конкурсный проект реновации типографии Сытина под комплекс квартир и апартаментов премиум-класса. Корпус Двенадцать Блока © Kleinewelt Architekten

Что же до дворового пространства, то тут к содружеству литературы, музыки и архитектуры присоединяется еще и танец. Концепция благоустройства посвящена дягилевским «Русским сезонам», а четыре перетекающих друг в друга дворовых пространства – соответственно четырем временам года. Спродюсированный авторами проекта сюжет предполагает массу разнообразных сценариев времяпрепровождения, от шумных игр до уединенного отдыха в тени деревьев, и всяческих затей они придумали множество – тут тебе и выложенный серебряной мозаикой пруд, и кинотеатр под открытым небом, и корабль из «Алых парусов», и аллея «Первый бал Наташи Ростовой»…
Конкурсный проект реновации типографии Сытина под комплекс квартир и апартаментов премиум-класса. Гоголь на фоне Толстого © Kleinewelt Architekten
Конкурсный проект реновации типографии Сытина под комплекс квартир и апартаментов премиум-класса. Гоголь на фоне Толстого © Kleinewelt Architekten
Конкурсный проект реновации типографии Сытина под комплекс квартир и апартаментов премиум-класса. Корпус Гоголь  © Kleinewelt Architekten
Конкурсный проект реновации типографии Сытина под комплекс квартир и апартаментов премиум-класса. Корпус Гоголь © Kleinewelt Architekten
Конкурсный проект реновации типографии Сытина под комплекс квартир и апартаментов премиум-класса. Благоустройство. Вариант 2 © Kleinewelt Architekten
Конкурсный проект реновации типографии Сытина под комплекс квартир и апартаментов премиум-класса. Благоустройство. Вариант 2 © Kleinewelt Architekten
Конкурсный проект реновации типографии Сытина под комплекс квартир и апартаментов премиум-класса. Благоустройство. Вариант 1 © Kleinewelt Architekten
Конкурсный проект реновации типографии Сытина под комплекс квартир и апартаментов премиум-класса. Благоустройство. Вариант 1 © Kleinewelt Architekten
Конкурсный проект реновации типографии Сытина под комплекс квартир и апартаментов премиум-класса. Генеральный план. Вариант 2. Приватный для жителей, но с общественным пространством © Kleinewelt Architekten
Конкурсный проект реновации типографии Сытина под комплекс квартир и апартаментов премиум-класса. Генеральный план. Вариант 2. Приватный для жителей, но с общественным пространством © Kleinewelt Architekten
Конкурсный проект реновации типографии Сытина под комплекс квартир и апартаментов премиум-класса. Генеральный план. Вариант 1. Приватный для жителей комплекса © Kleinewelt Architekten
Конкурсный проект реновации типографии Сытина под комплекс квартир и апартаментов премиум-класса. Генеральный план. Вариант 1. Приватный для жителей комплекса © Kleinewelt Architekten
Конкурсный проект реновации типографии Сытина под комплекс квартир и апартаментов премиум-класса. Вариант 2. Аксонометрия © Kleinewelt Architekten
Конкурсный проект реновации типографии Сытина под комплекс квартир и апартаментов премиум-класса. Вариант 2. Аксонометрия © Kleinewelt Architekten
Конкурсный проект реновации типографии Сытина под комплекс квартир и апартаментов премиум-класса. Вариант 1. Аксонометрия © Kleinewelt Architekten
Конкурсный проект реновации типографии Сытина под комплекс квартир и апартаментов премиум-класса. Вариант 1. Аксонометрия © Kleinewelt Architekten

Даже из этого перечисления видно, как сильно авторы были увлечены проектом, как много эмоций им хотелось вложить в свою архитектуру. «Этот проект – он действительно про любовь, – признается Николай Переслегин. – Невозможно сравнить любовь к разным писателям и поэтам, и мы хотели подарить будущим жильцам нашего комплекса возможность выбора – какая атмосфера, какая легенда, какой образ жизни максимально созвучен каждому из них. Именно в этом мы видим высшую степень комфорта, доступную современному человеку».
Конкурсный проект реновации типографии Сытина под комплекс квартир и апартаментов премиум-класса. План подземного этажа © Kleinewelt Architekten
Конкурсный проект реновации типографии Сытина под комплекс квартир и апартаментов премиум-класса. План подземного этажа © Kleinewelt Architekten
Конкурсный проект реновации типографии Сытина под комплекс квартир и апартаментов премиум-класса. Благоустройство. Вариант 1 © Kleinewelt Architekten
Конкурсный проект реновации типографии Сытина под комплекс квартир и апартаментов премиум-класса. Благоустройство. Вариант 1 © Kleinewelt Architekten
Конкурсный проект реновации типографии Сытина под комплекс квартир и апартаментов премиум-класса. Благоустройство. Вариант 2 © Kleinewelt Architekten
Конкурсный проект реновации типографии Сытина под комплекс квартир и апартаментов премиум-класса. Благоустройство. Вариант 2 © Kleinewelt Architekten
Конкурсный проект реновации типографии Сытина под комплекс квартир и апартаментов премиум-класса. Благоустройство. Вариант 2 © Kleinewelt Architekten
Конкурсный проект реновации типографии Сытина под комплекс квартир и апартаментов премиум-класса. Благоустройство. Вариант 2 © Kleinewelt Architekten
Конкурсный проект реновации типографии Сытина под комплекс квартир и апартаментов премиум-класса. Корпус Толстой. Петхаус © Kleinewelt Architekten
Конкурсный проект реновации типографии Сытина под комплекс квартир и апартаментов премиум-класса. Корпус Толстой. Петхаус © Kleinewelt Architekten
Конкурсный проект реновации типографии Сытина под комплекс квартир и апартаментов премиум-класса. Корпус Гоголь. Пентхаус © Kleinewelt Architekten
Конкурсный проект реновации типографии Сытина под комплекс квартир и апартаментов премиум-класса. Корпус Гоголь. Пентхаус © Kleinewelt Architekten
Конкурсный проект реновации типографии Сытина под комплекс квартир и апартаментов премиум-класса. Вариант 1. Фасад со стороны 2-го Монетчиковского переулка © Kleinewelt Architekten
Конкурсный проект реновации типографии Сытина под комплекс квартир и апартаментов премиум-класса. Вариант 1. Фасад со стороны 2-го Монетчиковского переулка © Kleinewelt Architekten
Конкурсный проект реновации типографии Сытина под комплекс квартир и апартаментов премиум-класса. Вариант 2. Фасад со стороны Пятницкой улицы © Kleinewelt Architekten
Конкурсный проект реновации типографии Сытина под комплекс квартир и апартаментов премиум-класса. Вариант 2. Фасад со стороны Пятницкой улицы © Kleinewelt Architekten
Конкурсный проект реновации типографии Сытина под комплекс квартир и апартаментов премиум-класса. Вариант 1. Фасад со стороны 3-го Монетчиковского переулка © Kleinewelt Architekten
Конкурсный проект реновации типографии Сытина под комплекс квартир и апартаментов премиум-класса. Вариант 1. Фасад со стороны 3-го Монетчиковского переулка © Kleinewelt Architekten
Конкурсный проект реновации типографии Сытина под комплекс квартир и апартаментов премиум-класса. Вариант 1. Фасад со стороны Валовой улицы © Kleinewelt Architekten
Конкурсный проект реновации типографии Сытина под комплекс квартир и апартаментов премиум-класса. Вариант 1. Фасад со стороны Валовой улицы © Kleinewelt Architekten
Конкурсный проект реновации типографии Сытина под комплекс квартир и апартаментов премиум-класса. Вид на корпус Маяковский со двора © Kleinewelt Architekten
Конкурсный проект реновации типографии Сытина под комплекс квартир и апартаментов премиум-класса. Вид на корпус Маяковский со двора © Kleinewelt Architekten
Конкурсный проект реновации типографии Сытина под комплекс квартир и апартаментов премиум-класса. Вариант 2. Фасад со стороны 3-го Монетчиковского переулка © Kleinewelt Architekten
Конкурсный проект реновации типографии Сытина под комплекс квартир и апартаментов премиум-класса. Вариант 2. Фасад со стороны 3-го Монетчиковского переулка © Kleinewelt Architekten
Конкурсный проект реновации типографии Сытина под комплекс квартир и апартаментов премиум-класса. Вариант 2. Фасад со стороны 2-го Монетчиковского переулка © Kleinewelt Architekten
Конкурсный проект реновации типографии Сытина под комплекс квартир и апартаментов премиум-класса. Вариант 2. Фасад со стороны 2-го Монетчиковского переулка © Kleinewelt Architekten
Конкурсный проект реновации типографии Сытина под комплекс квартир и апартаментов премиум-класса. Вид на корпус Гоголь со двора © Kleinewelt Architekten
Конкурсный проект реновации типографии Сытина под комплекс квартир и апартаментов премиум-класса. Вид на корпус Гоголь со двора © Kleinewelt Architekten
Конкурсный проект реновации типографии Сытина под комплекс квартир и апартаментов премиум-класса. Вид на корпус Толстой со двора © Kleinewelt Architekten
Конкурсный проект реновации типографии Сытина под комплекс квартир и апартаментов премиум-класса. Вид на корпус Толстой со двора © Kleinewelt Architekten
Конкурсный проект реновации типографии Сытина под комплекс квартир и апартаментов премиум-класса. Исторические объекты © Kleinewelt Architekten
Конкурсный проект реновации типографии Сытина под комплекс квартир и апартаментов премиум-класса. Исторические объекты © Kleinewelt Architekten
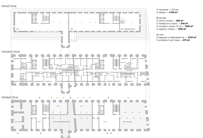
Конкурсный проект реновации типографии Сытина под комплекс квартир и апартаментов премиум-класса. План. Корпус Есенин © Kleinewelt Architekten
Конкурсный проект реновации типографии Сытина под комплекс квартир и апартаментов премиум-класса. План. Корпус Есенин © Kleinewelt Architekten
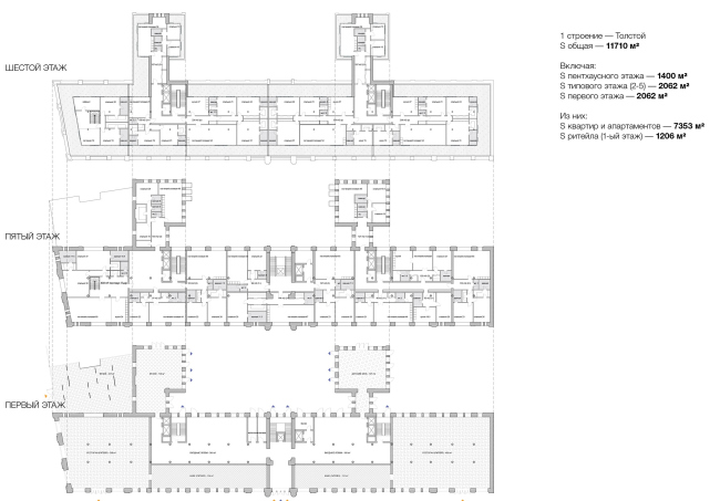
Конкурсный проект реновации типографии Сытина под комплекс квартир и апартаментов премиум-класса. План. Корпус Толстой © Kleinewelt Architekten
Конкурсный проект реновации типографии Сытина под комплекс квартир и апартаментов премиум-класса. План. Корпус Толстой © Kleinewelt Architekten
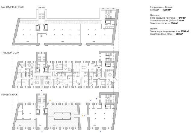
Конкурсный проект реновации типографии Сытина под комплекс квартир и апартаментов премиум-класса. План. Корпус Гоголь © Kleinewelt Architekten
Конкурсный проект реновации типографии Сытина под комплекс квартир и апартаментов премиум-класса. План. Корпус Гоголь © Kleinewelt Architekten
Конкурсный проект реновации типографии Сытина под комплекс квартир и апартаментов премиум-класса. План. Корпус Маяковский © Kleinewelt Architekten
Конкурсный проект реновации типографии Сытина под комплекс квартир и апартаментов премиум-класса. План. Корпус Маяковский © Kleinewelt Architekten
Конкурсный проект реновации типографии Сытина под комплекс квартир и апартаментов премиум-класса. Схема. Корпус Двенадцать Блока © Kleinewelt Architekten
Конкурсный проект реновации типографии Сытина под комплекс квартир и апартаментов премиум-класса. Схема. Корпус Двенадцать Блока © Kleinewelt Architekten