Размещено на портале Архи.ру (www.archi.ru)

03.11.2017

Вдоль пляжа

Юлия Тарабарина
Объект:
Апартамент-отель в Геленджике
Адрес:
Россия, Геленджик. ул. Набережная, 11
Мастерская:
Гинзбург Архитектс
Авторский коллектив:
Генеральный директор – А.В. Гинзбург
Главный архитектор – К.И. Крутов
Ведущий архитектор – А.С. Баранихин

«Гинзбург Архитектс» спроектировали дом в Геленджике длиной почти 250 метров, сумев при этом сделать его визуально дискретным и обыграть несколько пространственных сюжетов курортного плана, связанных с созерцанием, загоранием и прогулками.

Проект апартамент-отеля в Геленджике. Перспектива. Вид на центральный вход с юга © Гинзбург Архитектс
Проект апартамент-отеля в Геленджике. Перспектива. Вид на центральный вход с юга © Гинзбург Архитектс

Нижний этаж здания западного корпуса апарт-отеля «Торик» на Тонком мысу в Геленджике уже отлит в бетоне и представляет собой очень длинный – около 260 м – фундамент, вытянутый вдоль кромки воды на первой линии насыпного пляжа, немного выступающего к морю, с собственным променадом вдоль кромки воды.
Проект апартамент-отеля в Геленджике. Схема расположения © Гинзбург Архитектс
Проект апартамент-отеля в Геленджике. Схема расположения © Гинзбург Архитектс

Вид – прямо на воду, сравнительно недалеко аэропорт, вокруг пансионаты и дома частного сектора; ближайший коттеджный поселок носит то же название «Торик» и был построен владельцами апарт-отеля несколько ранее. Тишина: улица Набережная, которая проходит с внутренней стороны апарт-отеля, ведет к кедровому лесу. Рядом с недостроенным зданием – оранжевый трехэтажный блок отеля, он построен и функционирует. Осталось достроить западную часть, замершую на нулевой отметке в бетоне. Если восточный блок состоит из двух секций-корпусов, то западный, спроектированный Алексеем Гинзбургом на существующих основаниях – из пяти секций.
Проект апартамент-отеля в Геленджике. Существующее положение © Гинзбург Архитектс
Проект апартамент-отеля в Геленджике. Существующее положение © Гинзбург Архитектс
Проект апартамент-отеля в Геленджике. Существующее положение © Гинзбург Архитектс
Проект апартамент-отеля в Геленджике. Существующее положение © Гинзбург Архитектс

Позволим себе предположить, что если бы Алексей Гинзбург проектировал западный корпус апарт-отеля с самого начала, он бы, вероятно, предложил иной план здания, к примеру, разделенный на несколько объемов. Но работать требовалось с готовым фундаментом, что определило главную задачу – сделать здание визуально более легким и дискретным, таким, чтобы оно «не напоминало Китайскую стену». Тем более что западный корпус, в отличие от трехэтажного восточного – пятиэтажный.

Архитекторы предложили секционно-коридорный тип планировки. Небольшие квартиры-студии выстроены в два ряда по сторонам коридора, пронизывающего здание продольно насквозь. Со стороны моря плотно выстроены квартиры-пеналы по 42 м2; их структура проста – большая, 10,5 м2, лоджия смотрит на море, за ней комната, кухня, дверь. С противоположной, городской стороны расположились квартиры поменьше, в основном 33,9 м2, и ориентированные не поперечно, а продольно оси здания. Среди них, по одной на секцию, есть квартиры с прямоугольным выступом 2х3 метра, каждый из них – с большим окном со всю стену, в таких выступах (а все они обращены на север) могли бы уместиться неплохие кабинеты, прямого солнца там мало, а естественного света будет достаточно.
Проект апартамент-отеля в Геленджике. Схема плана типового этажа © Гинзбург Архитектс
Проект апартамент-отеля в Геленджике. Схема плана типового этажа © Гинзбург Архитектс

Снаружи выступы складываются в похожие на башни вертикали белого цвета, они делят городской фасад каждой секции пополам. Второе деление образуют лестнично-лифтовые блоки, также вынесенные чуть вперед, но облицованные деревом и прикрытые тонкими вертикалями деревянных решеток. Получается, что с городской стороны пять секций разделены на 11 прясел, что заставляет воспринимать здание не как дом-балку, 260-метровую «змею», а скорее как ряд домов, ритмически подобный улице, что подчеркивает «городскую» природу тыльного фасада. В то же время основной тон северного фасада – коричневое дерево; запланировано, что он будет облицован натуральным шпоном.
Проект апартамент-отеля в Геленджике. Перспектива. Вид на центральный вход с севера © Гинзбург Архитектс
Проект апартамент-отеля в Геленджике. Перспектива. Вид на центральный вход с севера © Гинзбург Архитектс
Проект апартамент-отеля в Геленджике. Перспектива. Вид на северный фасад © Гинзбург Архитектс
Проект апартамент-отеля в Геленджике. Перспектива. Вид на северный фасад © Гинзбург Архитектс
Проект апартамент-отеля в Геленджике. Перспектива. Общий вид северного фасада © Гинзбург Архитектс
Проект апартамент-отеля в Геленджике. Перспектива. Общий вид северного фасада © Гинзбург Архитектс
Проект апартамент-отеля в Геленджике. Развертка фасадов по ул. Набережная © Гинзбург Архитектс
Проект апартамент-отеля в Геленджике. Развертка фасадов по ул. Набережная © Гинзбург Архитектс

Морской фасад решен иначе, крупными массами: сплошная сетка глубоких белых лоджий разделена шестью крупными деревянными вставками по числу входов секций плюс главный атриум. Причем деревянные вертикали входов – это хорошо видно при взгляде сверху, – в сторону моря расширяются, и если с северной стороны входы занимают один модуль, то их «тень» с морской стороны отеля – соответствует трем квартирам, и в то же время со стороны пляжа деревянные вставки уже не означают входов, а лишь становятся их цветовым продолжением. Так что южный и северный фасад – до некоторой степени инверсии друг друга. Со стороны моря преобладает белый цвет, точнее светло-серый: фактурная штукатурка с вкраплениями камня, отдаленно ребра лоджий, из которых морской фасад состоит целиком, будут напоминать слоистый срез известковой породы – каменную стену, которая тянется вдоль почти всего черноморского побережья, если идти вдоль воды; с напольной стороны, напротив, фасад напомнит о лесах, в которые мы попадаем, когда взбираемся вверх по известковому склону. Две материальные составляющие здания: условный камень и дерево – переосмысляют, таким образом, две главные темы приморской природы, а море и песок, в данном случае насыпной, прилагаются.
Проект апартамент-отеля в Геленджике. Перспектива. Общий вид южного фасада © Гинзбург Архитектс
Проект апартамент-отеля в Геленджике. Перспектива. Общий вид южного фасада © Гинзбург Архитектс
Проект апартамент-отеля в Геленджике. Перспектива. Вид на южный фасад © Гинзбург Архитектс
Проект апартамент-отеля в Геленджике. Перспектива. Вид на южный фасад © Гинзбург Архитектс
Проект апартамент-отеля в Геленджике. Развертка фасадов по линии пляжа © Гинзбург Архитектс
Проект апартамент-отеля в Геленджике. Развертка фасадов по линии пляжа © Гинзбург Архитектс

Примерно на две трети своей длины дом-пластина сгибается под небольшим углом, вторя направлению Набережной улицы – здесь появится центральный вестибюль, перспективным раструбом расширяющийся в сторону пляжа, буквально «раскрывая» вид на море для входящего.

В нем – «главные» лифт и лестница, в нем прямой проход к морю и атриум с внутренними балконами на каждом этаже: балконы нанизаны на коридоры каждого этажа, для которых пересечение с атриумом будет своего рода пространственной кульминацией – отсюда открываются виды на море и горы, также как и вверх и вниз. Стены атриума с обеих сторон – сплошные витражи. Кровли двух центральных секций по сторонам атриума – эксплуатируемые, на них задуманы террасы с зонтиками для загорания и благоустройство; так что и тут, вверху, окружение атриума становится кульминацией.
Проект апартамент-отеля в Геленджике. Схема плана кровли © Гинзбург Архитектс
Проект апартамент-отеля в Геленджике. Схема плана кровли © Гинзбург Архитектс

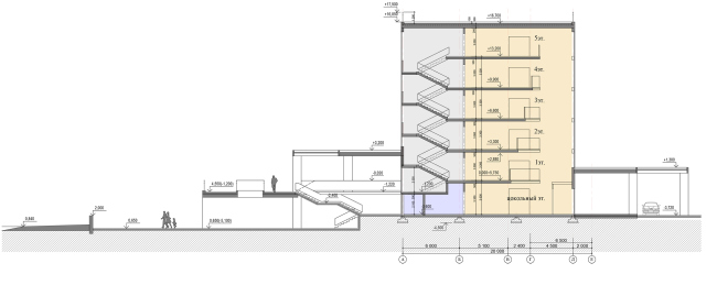
Главный сквозной проход к морю через атриум дополнен двумя другими, в крайних корпусах, третьем и седьмом – таким образом дом стал проницаемым и его не нужно обходить для того, чтобы попасть на пляж. Со стороны моря вдоль дома тянется вначале зеленый сквер на земле в уровне пола первого этажа, а затем, параллельно зелени – двухъярусный променад, его верхняя терраса солнечная, зато нижняя с глубокой тенью; она освещена несколькими световыми колодцами. Причем уровень зелени и обращенной к морю террасы на 2 метра выше, чем дорога подъезда со стороны города – здесь рельеф изменяется своеобразным «зигзагом», повышаясь между домом и морем, что хорошо видно в разрезе. В цокольном этаже, пол которого расположен на полтора метра выше уровня моря, иными словами не слишком-то зарыт в землю, расположено 32 парковочных места и довольно много кладовок – на все квартиры; при этом цоколь четырех центральных секций отдан общественному пространству.
Проект апартамент-отеля в Геленджике. Схема плана первого этажа © Гинзбург Архитектс
Проект апартамент-отеля в Геленджике. Схема плана первого этажа © Гинзбург Архитектс

Пространство получилось двухъярусным из-за 4-метрового перепада высот; с верхней галереи вниз, к морю, ведут 5 равномерно расставленных лестниц. Шестая, перед главным входом, сложнее – здесь земляная насыпь прерывается и появляется еще одна, шестая трехмаршевая лестница с поворотом. На вернем променаде расставлены решетчатые беседки и, над краем, такие же козырьки-перголы, оформляющие границу между солнечной и тенистой частью – это нередкий прием курортной и усадебной архитектуры, он напоминает о партерных террасах Архангельского и сочинских санаториях Жолтовского, и в данном случае работает на усложнение, насыщение прогулки впечатлениями. При взгляде от пляжа отель вырастает очень ярусно: песок, полоска гранита нижней набережной, выше перголы верхней набережной, затем зелень, над ней – лоджии апартаментов. Последовательно, пространственно и довольно-таки воздушно; здание вовсе не отграничивается от окружения, а раскрывается морю как ячеистая губка.
Проект апартамент-отеля в Геленджике. Разрез 2-2 © Гинзбург Архитектс
Проект апартамент-отеля в Геленджике. Разрез 2-2 © Гинзбург Архитектс
Проект апартамент-отеля в Геленджике. Разрез 1-1 © Гинзбург Архитектс
Проект апартамент-отеля в Геленджике. Разрез 1-1 © Гинзбург Архитектс

Так что, несмотря на предопределенность множества параметров, включая готовый фундамент, Алексею Гинзбургу удалось насытить дом рядом нюансов: от пространственного шарнира атриума, образующего в центре каждого коридора общественное ядро с перспективой «на все четыре стороны», до солярия на крыше и двухъярусного променада; не забывая о проницаемости и связи внутреннего пространства с внешней формой. Все это оживляет достаточно обыденную задачу и наделяет приморский курорт так необходимой ему «изюминкой». 
Проект апартамент-отеля в Геленджике. Схема генплана © Гинзбург Архитектс
Проект апартамент-отеля в Геленджике. Схема генплана © Гинзбург Архитектс
Проект апартамент-отеля в Геленджике. Схема организации движения © Гинзбург Архитектс
Проект апартамент-отеля в Геленджике. Схема организации движения © Гинзбург Архитектс