Размещено на портале Архи.ру (www.archi.ru)

22.08.2014

Архсовет Москвы-18

Алла Павликова
Мастерская:
ТПО «Резерв»

20 августа Архитектурный совет не просто рассматривал проекты, но пытался найти решения для таких актуальных для столицы вопросов, как благоустройство Москвы-реки и типовое жилищное строительство.

Проект парковочно-офисного комплекса с рестораном на Краснопресненской набережной

Парковочно-офисный комплекс с рестораном на Краснопресненской набережной, вл. 6.  АПБ «Резерв»
Парковочно-офисный комплекс с рестораном на Краснопресненской набережной, вл. 6. АПБ «Резерв»

Участок проектирования, имеющий почти правильную прямоугольную форму, расположен на одной из центральных набережных Москвы-реки, неподалеку от таких доминант, как Белый дом и высотка на Кудринской площади. Со стороны реки новое здание, проект которого разрабатывает ТПО «Резерв», предполагается встроить в существующую нишу между современным комплексом и сталинским жилым домом. Такое соседство вместе с важностью новой постройки с точки зрения формирования фронта набережной и определило ее композиционные и фасадные решения.
Парковочно-офисный комплекс с рестораном на Краснопресненской набережной, вл. 6.  АПБ «Резерв»
Парковочно-офисный комплекс с рестораном на Краснопресненской набережной, вл. 6. АПБ «Резерв»
Парковочно-офисный комплекс с рестораном на Краснопресненской набережной, вл. 6.  Вид сверху.  АПБ «Резерв»
Парковочно-офисный комплекс с рестораном на Краснопресненской набережной, вл. 6. Вид сверху. АПБ «Резерв»

Границы участка четко следуют красным линиям. Однако авторы приняли решение несколько отступить от них, привязав постройку к линиям существующей застройки. По высоте проектируемый комплекс не превышает 30 м, его высота соответствует отметке карниза сталинского дома и кровли расположенного справа здания ТЭЦ.
Парковочно-офисный комплекс с рестораном на Краснопресненской набережной, вл. 6. Ситуационный план. АПБ «Резерв»
Парковочно-офисный комплекс с рестораном на Краснопресненской набережной, вл. 6. Ситуационный план. АПБ «Резерв»

Для решения фасадов было сделано множество вариантов, но в итоге авторы остановились, пожалуй, на самом спокойном, где поверхности из натурального юрского камня разбиты вертикальными лентами остекления. Особым акцентом служит условная диагональ на главном фасаде, похожая на лестницу, составленную из трех крупных стеклянных квадратов-ступеней. В одном из таких квадратов устроена ниша центрального входа.
Парковочно-офисный комплекс с рестораном на Краснопресненской набережной, вл. 6.  Генплан. АПБ «Резерв»
Парковочно-офисный комплекс с рестораном на Краснопресненской набережной, вл. 6. Генплан. АПБ «Резерв»

Большую часть площадей комплекса предполагается отдать под автопарковку. Помимо этого, там предусмотрено размещение офисов, ресторана и кафе. Также авторы детально продумали концепцию благоустройства двора, обращенного к расположенному на второй линии застройки жилому дому, и пешеходной территории вдоль набережной.
Парковочно-офисный комплекс с рестораном на Краснопресненской набережной, вл. 6.  Развертки. АПБ «Резерв»
Парковочно-офисный комплекс с рестораном на Краснопресненской набережной, вл. 6. Развертки. АПБ «Резерв»
Парковочно-офисный комплекс с рестораном на Краснопресненской набережной, вл. 6. Фотофиксация. АПБ «Резерв»
Парковочно-офисный комплекс с рестораном на Краснопресненской набережной, вл. 6. Фотофиксация. АПБ «Резерв»
Парковочно-офисный комплекс с рестораном на Краснопресненской набережной, вл. 6.  АПБ «Резерв»
Парковочно-офисный комплекс с рестораном на Краснопресненской набережной, вл. 6. АПБ «Резерв»
Парковочно-офисный комплекс с рестораном на Краснопресненской набережной, вл. 6.  Центральный вход. АПБ «Резерв»
Парковочно-офисный комплекс с рестораном на Краснопресненской набережной, вл. 6. Центральный вход. АПБ «Резерв»

Разрешенная ГПЗУ высота здания составляет 50 м. Авторы снизили высотность здания до 30 м во избежание затенения расположенного за ним жилого дома. Однако большинство членов совета сошлось во мнении, что комплексу сильно не хватает массы. Юрий Григорян предложил прибавить хотя бы 6-7 м: «Жаль, что все значимые для города места заполняются под влиянием различных ограничений: соблюдая требования инсоляции, мы лишаем набережную красивого силуэта и массы».
Парковочно-офисный комплекс с рестораном на Краснопресненской набережной, вл. 6.  АПБ «Резерв»
Парковочно-офисный комплекс с рестораном на Краснопресненской набережной, вл. 6. АПБ «Резерв»

Также Григорян обратил внимание на то, что, несмотря на достаточно интересную гаражную функцию, здание выглядит простым офисным центром. С этим высказыванием согласился и Андрей Гнездилов, который, тем не менее, подчеркнул, что целиком поддерживает проект и уважает позицию автора. Сергей Кузнецов парировал, что в таком месте не стоит подчеркивать функцию гаража, более того, на одном из предварительных рассмотрений в МКА такая рекомендация авторам проекта уже поступала. В качестве решения проблемы недостаточной высоты комплекса Кузнецов предложил подумать над возможностью сделать ограждение на кровле или стеклянный парапет, который существенно не повлияет на освещенность соседнего жилого дома, но слегка вытянет пропорции комплекса. Также Кузнецов поддержал инициативу инвестора по благоустройству прилегающей территории, выходящей за границы участка, и попросил городские префектуры активно поддержать эту идею.
Парковочно-офисный комплекс с рестораном на Краснопресненской набережной, вл. 6.  Ночной вид. АПБ «Резерв»
Парковочно-офисный комплекс с рестораном на Краснопресненской набережной, вл. 6. Ночной вид. АПБ «Резерв»

Николай Шумаков развил тему высоты здания, озвучив идею сдвинуть весь объем к красной линии. По его мнению, так появится возможность добавить еще один этаж, не нарушая инсоляционных требований. Такая идея среди членов совета одобрения не нашла, поскольку в данном случае пострадает общее градостроительное решение.
Парковочно-офисный комплекс с рестораном на Краснопресненской набережной, вл. 6.  АПБ «Резерв»
Парковочно-офисный комплекс с рестораном на Краснопресненской набережной, вл. 6. АПБ «Резерв»

Ханс Штимман согласился с мнением коллег, назвав проект компромиссом между необходимостью соблюсти нормы и поддержать линию набережной. Также он попросил авторов сконцентрироваться на решении кровли здания, поскольку из-за небольшой высоты она очень хорошо просматривается из окон соседних домов. Кровлю можно было бы озеленить или устроить на ней террасу ресторана.
Парковочно-офисный комплекс с рестораном на Краснопресненской набережной, вл. 6.  АПБ «Резерв»
Парковочно-офисный комплекс с рестораном на Краснопресненской набережной, вл. 6. АПБ «Резерв»
Парковочно-офисный комплекс с рестораном на Краснопресненской набережной, вл. 6.  АПБ «Резерв»
Парковочно-офисный комплекс с рестораном на Краснопресненской набережной, вл. 6. АПБ «Резерв»
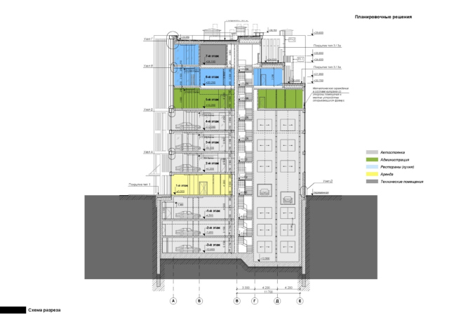
Парковочно-офисный комплекс с рестораном на Краснопресненской набережной, вл. 6.  Разрез. АПБ «Резерв»
Парковочно-офисный комплекс с рестораном на Краснопресненской набережной, вл. 6. Разрез. АПБ «Резерв»

Итогом обсуждения стало единодушное мнение поддержать проект с учетом всех необходимых корректировок.

Модернизация ДСК
Жилой комплекс «Эдальго». Концерн «Крост». Из презентации Сергея Кузнецова
Жилой комплекс «Эдальго». Концерн «Крост». Из презентации Сергея Кузнецова

Доклад, посвященный программе модернизации серий жилых домов повторного применения, членам совета представил Сергей Кузнецов и Евгения Муринец. На сегодняшний день доля панельного домостроительства составляет почти половину от всего строящегося в столице жилья. При этом большая часть домов строится по устаревшим стандартам и с применением старых, довольно примитивных технологий производства. В связи с этим вопрос о том, какой должна быть массовая застройка сегодня, стоит особенно остро. Ответом на него, по убеждению докладчиков, должна стать внятная программа модернизации ДСК. Сергей Кузнецов подчеркнул, что необходимо сохранить все плюсы панельного домостроения – а это и высокая скорость работы, и относительно недорогое производство, и возможность в кратчайшие сроки обеспечить большое количество людей доступным жильем. Но при этом стоит задуматься о внедрении новых требований к жилой застройке. Такие базовые требования и критерии и были вынесены на обсуждение Архитектурного совета.
Олимпийская деревня в Лондоне. Сборные ж/б элементы из архитектурного бетона. Из презентации Сергея Кузнецова
Олимпийская деревня в Лондоне. Сборные ж/б элементы из архитектурного бетона. Из презентации Сергея Кузнецова

Всего было выделено пять основных позиций. Помимо принципов квартальности и разделения пространства на частное (внутренний двор) и общественное (улица), о которых в последнее время ведется много разговоров, было внесено предложение о переменной этажности зданий внутри квартала, а также возможности размещения секций со смещением друг относительно друга. Варьирование этажности от 6 до 16 этажей, по мнению разработчиков предложения, позволит создавать более комфортную жилую среду. Для этих же целей предлагается сделать одним из основных требование к разнообразию фасадов, что позволит уйти от монотонности и добиться адресности каждой жилой ячейки. Одним из важных требований стало наличие полноценной угловой секции, а также свободная планировка квартир. И, наконец, как для города, так и для его жителей крайне необходимы общественные пространства. Для этого планируется обеспечить свободную планировку первых этажей зданий, чтобы разместить там объекты социальной и бытовой инфраструктуры.
Индустриальное домостроение в Финляндии. Из презентации Сергея Кузнецова
Индустриальное домостроение в Финляндии. Из презентации Сергея Кузнецова

Все предложения базируются на позитивных примерах мирового и отечественного опыта строительства панельных домов. По мнению Сергея Кузнецова, было бы правильно задуматься о качестве работы с «панелью», изучить примеры удачного масштаба застройки при довольно высокой плотности. Из российских начинаний главный архитектор выделил такие проекты, как «Микрогород в лесу», который несет в себе все признаки нового индустриального домостроения, и жилой комплекс на Базовской улице – как пример того, чего можно добиться от панельного домостроительства в современных условиях и как можно улучшить не только среду, но и сами здания. Однако этот проект Кузнецов попросил не рассматривать как образец на будущее.
Микрогород в лесу. Из презентации Сергея Кузнецова
Микрогород в лесу. Из презентации Сергея Кузнецова

Первым свое мнение по итогам презентации программы модернизации ДСК высказал Юрий Григорян: «В мире действует законодательство, которое запрещает строительство типовых проектов. Мы же вознамерились просто заменить старые типовые проекты на новые. А это изначально обречено на неудачу. Жилье, строящееся по типовому проекту – это плохое жилье. Я ценю благородство намерений, но, возможно, следует рассматривать шаг к модернизации панельного домостроения как переходный период перед полным отказом от типовых проектов? В мире индустриальные комбинаты реализуют самые разные проекты, у них нет своих собственных серий. У нас же некачественное панельное жилье еще и стоит гораздо дороже, чем монолитное жилье, скажем, в Голландии».
Микрогород в лесу. Из презентации Сергея Кузнецова
Микрогород в лесу. Из презентации Сергея Кузнецова

Сергей Кузнецов согласился с Григоряном, однако заметил, что в нашей стране невозможно одномоментно отказаться от панельного производства. Проблемы, накапливающиеся десятилетиями, решить получится не сразу – необходимо вырабатывать пошаговую стратегию.  С этой целью и принято решение о создании критериев, нацеленных на модернизацию существующего производства.
Жилой комплекс «Эдальго». Концерн «Крост». Из презентации Сергея Кузнецова
Жилой комплекс «Эдальго». Концерн «Крост». Из презентации Сергея Кузнецова

Серьезные опасения по поводу идеи о свободной планировке квартир высказал Владимир Плоткин. По его словам, свободная планировка хороша, когда в здании выполняется весь комплекс мероприятий с возможностью подключения сантехнического и другого оборудования в любом месте. Однако всегда лучше сразу сделать хорошие планировки, чтобы дом после сдачи в эксплуатацию не превращался в одну большую стройку с целым ворохом вытекающих из этого проблем. Также Плоткин обратил внимание присутствующих на тот факт, что при нынешних возможностях ДСК не получится добиться разнообразия фасадов. Производство предоставляет весьма ограниченный ассортимент панелей, и единственной лазейкой для достижения разнообразия становится цвет. Кроме того, помимо разработки новых технологий, стоило бы подумать и о разработке новых типологий.
Жилой комплекс «Эдальго». Концерн «Крост». Из презентации Сергея Кузнецова
Жилой комплекс «Эдальго». Концерн «Крост». Из презентации Сергея Кузнецова

Довольно радикальное предложение внес Николай Шумаков – полностью отказаться от панелей и заменить их блоками, что с архитектурной точки зрения откроет массу новых возможностей.  
Жилой комплекс «Эдальго». Концерн «Крост». Из презентации Сергея Кузнецова
Жилой комплекс «Эдальго». Концерн «Крост». Из презентации Сергея Кузнецова

Следом за этим предложением выступил Юрий Григорян, чья речь была поддержана аплодисментами зала: «Во-первых, нельзя говорить о квартальности: не существует квартальной застройки выше девяти этажей. Известно, что 9-этажные кварталы дают большую плотность, чем микрорайоны. Но мы снова приходим к 16 этажам. Не надо обманывать себя и называть 16-этажную линейную застройку квартальной. Кроме того, существует подмена декоративности фасадов пестротой, раскраской, цветом. Если мы посмотрим на Париж, то там все дома одноцветные, а разнообразие – налицо. Там есть квартальность, есть дома 7-этажной высоты и т.д. Мы это повторить не сможем, но, создавая правила, в этом отношении нужно быть очень критичными, иначе вся эта пестрота, повешенная на типовые панельные здания, превратится в страшный кошмар нашего города. Даже на этапе переходного периода эти решения воспринимаются с трудом».
Жилой комплекс «Эдальго». Концерн «Крост». Из презентации Сергея Кузнецова
Жилой комплекс «Эдальго». Концерн «Крост». Из презентации Сергея Кузнецова



Сергей Кузнецов вновь согласился с доводами Юрия Григоряна, но посетовал, что на сегодняшний день у архитекторов имеется очень немного инструментов. Что же касается этажности, то при действующих нормативах довольно сложно сразу понизить высоту до 6–9 этажей, но, действуя четко и слаженно, постепенно город к этому придет.

«Прежде чем выдумывать критерии, следует найти инструменты решения поставленных задач, – уверен Андрей Гнездилов. – Должны быть выработаны экономические, юридические и планировочные принципы».  В ответ на это замечание главный архитектор заверил присутствующих, что эта инициатива полностью поддержана городскими властями, и есть все рычаги для решения поставленной задачи.
Жилой комплекс «Эдальго». Концерн «Крост». Из презентации Сергея Кузнецова
Жилой комплекс «Эдальго». Концерн «Крост». Из презентации Сергея Кузнецова

В заключение Евгения Муринец рассказала о сроках реализации программы: в сентябре, в рамках очередного Архсовета, будут представлены предварительные предложения, которые в дальнейшем будут направлены на рассмотрение комбинатам. Затем запланирована целая серия публичных дискуссий, и уже в конце декабря появятся окончательные варианты, которые и будут пущены в производство. Таким образом, к концу 2016 года планируется начать реализацию новых серий.