|
К Универсиаде в Казани по проекту бюро SPEECH был построен Дворец водных видов спорта. О проекте и истории его реализации рассказывают его авторы Сергей Чобан, Сергей Кузнецов и Николай Гордюшин.
Сергей Чобан,SPEECH Чобан&Кузнецов, автор проекта дворца водных видов спорта в Казани. «Работу над стадионом водных видов спорта в Казани мы начали после того, как выиграли конкурс, который проводился руководством республики Татарстан и администрацией города Казани. С этим проектом мы прошли все стадии проектирования и строительства – от разработки концепции до сопровождения рабочей документации и осуществления авторского надзора. Кроме того, мы с самого начала хотели, чтобы данный проект был реализован казанскими строителями, а производители строительных материалов были преимущественно российскими, и нам удалось это воплотить.
В основе архитектурного образа этого сооружения лежит сразу несколько очень важных идей. Прежде всего, хотелось создать крупный и выразительный объем, воспринимаемый как единый и снаружи, и особенно изнутри. Храм спорта, который имеет очень спокойную, но стремительную форму. Основную конструкцию мы решили выполнить из деревоклееных рам и тем самым создать атмосферу тепла и уюта в этом огромном помещении, сделать экологичным сам конструктивный скелет здания. Кроме того, мотив стрельчатых арок, образованных деревянными конструкциями, близок к традиционной архитектуре Татарстана – для нас было очень важно опираться на национальные архитектурные традиции с целью контекстуальной привязки, сохранения памяти места.
Также внешний облик здания должен был ясно показывать, что речь идет о стадионе водных видов спорта. Плавные стремительные линии, очерчивающие здание, наклонный фасад со стороны реки, вылет карниза в зоне входа, большие торцевые окна из стекла и нержавеющей стали – все эти элементы подчеркивают предназначение комплекса, обыгрывают тему скорости и воды. «Концентрические» круги на торцах, образованные полированной и шлифованной нержавеющей сталью, поддержаны цветными голубовато-серым линиями на стекле главного фасада, которые одновременно дают необходимую солнцезащиту. А внутри рисунок, нанесенный на стекло, поддержан очертаниями деревянных рам, которые удерживают конструкцию стеклянных витражей.
При разработке решения главного фасада мы столкнулись с мучительным выбором материала. Сначала планировалось использовать строительное стекло, но возникли сомнения в его долговечности и надежности при дальнейшей эксплуатации, поэтому было решено заменить его на стекло с печатью. Этот материал мы очень часто используем в своих проектах, и нам показалось, что здесь он более чем уместен. Подчеркну, что печать на стекле решена весьма сложно, поскольку за панелями вторым слоем располагаются окна, и для того, чтобы не препятствовать проникновению внутрь помещения естественного света и обзору из окон, в местах их расположения растр точек печати на стеклянных панелях сделан более редким.
В интерьере казанского стадиона центральное место занимает прыжковая вышка – ключевой элемент дизайна всех мировых стадионов водных видов спорта. Мы знаем очень интересные примеры, как, скажем, вышка Захи Хадид в стадионе водных видов спорта, построенном к Олимпиаде в Лондоне, и нам хотелось внести свой вклад в эту галерею. У нас это вертикальная конструкция с равновесными, но чуть изогнутыми площадками для прыжков. Вышка повторяет мягкие, упругие линии, присущие всему зданию. В стадионе ведь нет ни одной строго вертикальной или горизонтальной линии, все они слегка изгибаются, создают упругость, сравнимую с движением пловца, двигающегося на большой скорости. Такое же насыщенное силой движение нам хотелось отобразить во всех элементах здания – в форме витражей, трибун и, в том числе и в вышке».
 Дворец водных видов спорта © Илья Иванов
Дворец водных видов спорта в Казани. Общий вид. SPEECH Чобан&Кузнецов. Фотография Алексея Народицкого
Дворец водных видов спорта в Казани. SPEECH Чобан&Кузнецов. Фотография Алексея Народицкого
Дворец водных видов спорта в Казани. Торцевой фасад. SPEECH Чобан&Кузнецов. Фотография Алексея Народицкого
Дворец водных видов спорта в Казани. SPEECH Чобан&Кузнецов. Фотография Алексея Народицкого
Дворец водных видов спорта в Казани. Торцевой фасад. SPEECH Чобан&Кузнецов. Фотография Алексея Народицкого
Дворец водных видов спорта в Казани. Фрагмент главного фасада© Илья Иванов
Сергей Кузнецов,SPEECH Чобан&Кузнецов, автор проекта дворца водных видов спорта в Казани. «Проектом дворца водных видов спорта в Казани мы стали заниматься по итогам конкурсного отбора в 2009 году. Проектировщика выбирали оргкомитет и люди, ответственные за проведение Универсиады. И я сразу хотел бы сказать много комплиментов в адрес команды, готовившей Универсиаду – у них была четкая установка строить объекты на самом высоком уровне. Наши коллеги из Татарстана не полагались только на свои силы, а старались привлекать лучший российский и мировой опыт.
В тот момент я периодически бывал в Татарстане, занимаясь другими объектами, и услышал, что идет поиск проектировщиков для дворца водных видов спорта. Для участия в этом конкурсном отборе требовалось показать организаторам свой опыт работы и пройти серию интервью. Это нельзя назвать конкурсом в полном смысле, это был именно отбор кандидатов. Мы решили принять в нем участие совместно с английской компанией Arup, сделали серьезное исследование по подобным сооружениям, изучили типологию, подумали, какие ноу-хау можно применить, чтобы построить серьезный и знаковый, но при этом экономичный объект. Экономия средств тогда была одним из самых важных критериев, поскольку Татарстан не располагал такими ресурсами, какие были, скажем, в Сочи при подготовке к Олимпийским играм. Нам нужно было уложиться в довольно ограниченный бюджет – 2,5 миллиарда рублей, что весьма скромно для объекта с пятью тысячами зрительских мест, двумя бассейнами олимпийского размера и одной прыжковой ванной. Постаравшись учесть все возможные факторы и определившись с габаритами сооружения, мы подготовили свое эскизное концептуальное предложение спортивного кластера в предельно сжатые сроки. Мы с нашим ГАПом Николаем Гордюшиным суммировали результат и заканчивали работу над финальной подачей буквально в гостинице в Казани. На следующий день я представил нашу концепцию оргкомитету. По итогам этой презентации было принято решение доверить проект нашему офису. Так мы вошли в проект совместно с компанией «ПСО Казань», которая выступала подрядчиком и одновременно техническим заказчиком.
В основу концепции легла очень простая и понятная схема, которую мы выявили, изучив целый ряд подобных спортивных объектов. Например, мы побывали во дворцах водных видов спорта в Манчестере и Шеффилде и увидели, что там применяется экономичная линейная схема расположения ванн и трибун вдоль них. Условно говоря, это большая коробка с повторяющимся сечением конструкций. Мы взяли эту схему за основу и развили ее, так как наш объект по габаритам значительно превышал увиденные.
Основной идеей и изюминкой проекта стали конструкции из клееного дерева. На сегодняшний день казанский дворец является одним из самых больших деревянных сооружений в мире. Нам безумно жаль, что сегодня строительство из дерева в России не очень хорошо развито, и мы как раз и хотели переломить эту тенденцию, показать, что дерево – великолепный материал для решения самых сложных задач – и конструктивных, и художественных. Да, возвести здание дворца спорта из дерева выходило несколько дороже, чем строительство в металле, но нам удалось убедить заказчика, найти экономичное решение и все-таки реализовать красивую деревянную конструкцию, которая стала основой формирования образа всего дворца. Нам очень много удалось соединить в одном образе – гнутые арки деревянной конструкции отсылают к мусульманским традициям, прослеживается также образ аркады готических соборов (в то время мы с Сергеем Чобаном очень увлекались рисованием готических соборов). Мотив стрельчатых сводов, уходящих в перспективу, стал одним из самых ярких художественных образов.
Каркас явился смысловой осью, на которую мы нанизали все остальные элементы. Снаружи, конечно, конструкция считывается не так буквально, поскольку мы решили не рисковать и не проводить дерево через тепло/холод (в более теплом климате это, конечно, возможно). Зато внутри главным героем интерьера является именно деревянная структура. Это главный элемент, который формирует пространство. Все, кто уже побывал во дворце, говорили, что это совершенно потрясает воображение.
Дальше, уже в процессе работы, пришла идея облицевать дворец волнообразным стеклом в комбинации с металлом, возник большой вынос козырька входной группы, появилась мысль о печати на больших стеклянных элементах рисунка, изображающего водную поверхность. Вообще нам изначально подчеркнуть тему воды, и не только потому что это дворец водных видов спорта, но и потому что он построен на берегу реки Казанки на насыпных территориях, искусственно созданных. Прежде там была подтопляемая зона, в поводок уходящая под воду. Комплекс стоит на подесте, чтобы не уходить в воду, потому что чаши, особенно прыжковые, имеют очень глубокое основание. Это было сложное инженерное решение. Можно дискутировать по поводу печати на стекле, которая многими воспринимается как прямая цитата. Я же рассматриваю это как творческий ход – на мой взгляд, довольно простой и выразительный. Да, печать на стекле – это прямой отсыл к воде, но есть и косвенный. Боковые фасады были выполнены в чередовании шлифованных и полированных элементов, находящих друг на друга, как жабры.
Особая гордость проекта – дизайнерская вышка для прыжков. Это моя любимая история, мы ее очень долго отрисовывали, думали, как ее отлить. Получился настоящий арт-объект, выполненный в растительной форме – очень характерной для ислама.
На сегодняшний день для меня это один из самых важных проектов и первый столь масштабный объект, построенный в России. Количество усилий, вложенных в его реализацию, и степень личного участия невероятно велики. Это три года регулярных поездок в Казань, постоянное взаимодействие с локальными проектировщиками и строителями. Для меня казанский дворец стал практически родственником. Но самое главное – я доволен результатом, потому что проект удалось реализовать на самом высоком уровне».  Дворец водных видов спорта в Казани. Наклонный фасад, выходящий к реке. SPEECH Чобан&Кузнецов. Фотография Алексея Народицкого
Дворец водных видов спорта в Казани. Стекло с печатью на главном фасаде. SPEECH Чобан&Кузнецов. Фотография Алексея Народицкого
Дворец водных видов спорта в Казани. Общий вид. SPEECH Чобан&Кузнецов. Фотография Алексея Народицкого
Дворец водных видов спорта в Казани. Торцевой витраж. SPEECH Чобан&Кузнецов. Фотография Алексея Народицкого
Дворец водных видов спорта в Казани. SPEECH Чобан&Кузнецов. Фотография Алексея Народицкого
Дворец водных видов спорта в Казани. Главный входной фасад. SPEECH Чобан&Кузнецов. Фотография Алексея Народицкого
Дворец водных видов спорта в Казани. Вид со стороны реки Казанки. SPEECH Чобан&Кузнецов. Фотография Алексея Народицкого
Дворец водных видов спорта в Казани. Единое внутренее пространство стадиона. SPEECH Чобан&Кузнецов. Фотография Алексея Народицкого
Николай Гордюшин,SPEECH Чобан&Кузнецов, главный архитектор проекта дворца водных видов спорта в Казани. «Участок проектирования находится на левом берегу реки Казанки, в центре города, прямо напротив Кремля. Раньше это были подтопляемые, болотистые территории. Для строительства комплекса пришлось сделать искусственное основание. С самого начала работы у нас было желание сделать довольно серьезное конструктивное решение с учетом агрессивной среды – воды и постоянной конденсации. Мы решили, что дерево – самый подходящий для этого материал. Мы долго обсуждали это решение, но сошлись на применении деревянных клееных балок. Так родилась форма и геометрия здания. У застройщика была масса вопросов и сомнений, многие люди говорили, что реализовать это невозможно. Но мы сумели их переубедить.
Затем встал вопрос о наружной отделке дворца, и, конечно, стилистика воды здесь превалировала. Главный фасад изначально предполагалось выполнить из стеклопрофилей, широко использующихся в советское время. Но заказчик с непониманием воспринял это решение, и мы от него отказались, взамен предложив печать на стекле, также обращающуюся к водным мотивам. Наклонная стена, обращенная к реке, решена с применением панелей, находящих одна на другую.
Для того, чтобы защитить внутренние помещения от прямых солнечных лучей, используется матовое стекло. Требования по освещению для соревновательных бассейнов очень строгие, необходимо добиться отсутствия бликов на воде. При видеосъемке соревнований очень важно, чтобы свет, проникающий в помещение извне, не был ярче внутреннего освещения. Поэтому пришлось тонировать стекло, не исключая проникновения естественного света. Потребовалось много усилий, чтобы подобрать необходимый процент освещения. Также мы делали серьезный акустический анализ, просчитывали движение воздуха. Одним словом, это была очень серьезная работа. В результате получился передовой в России объект по физическим и функциональным возможностям. Поэтому даже чемпионат мира решено было провести в Казани.
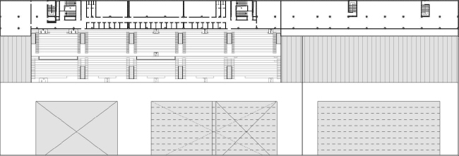
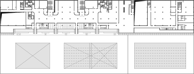
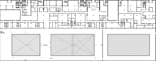
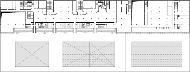
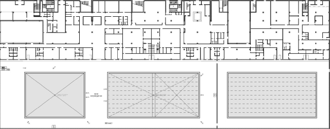
Во дворце предусмотрено три бассейна. Основная чаша под прыжковой вышкой имеет размеры 33х25 м. В этом бассейне можно проводить соревнования по прыжкам в воду, водному поло, плаванию на короткие дистанции и синхронному плаванию. Мало того, здесь предусмотрен подъемный пол, глубина которого варьируется от шести до ноля метров. Во втором бассейне диной 50 м тоже поднимается пол, правда, только в одной его половине. Раздвижная перегородка позволяет разделять пространство чаши, чтобы плавать на различные дистанции. Третий бассейн 50х25 м имеет постоянную глубину и используется как тренировочный. Кроме того, в здании располагается большой фитнесс-клуб, и этот бассейн предполагается использовать в коммерческих целях.
Надо отдать должное заказчику: он очень чутко реагировал на все наши предложения. Даже дизайнерскую вышку, изображенную как некий арт-объект, заказчик безоговорочно реализовал, несмотря на то, что это было очень непросто и дорого, пришлось заказывать сложную опалубку на авиационном заводе. Но в итоге получился главный и самый выразительный элемент интерьера, при всем при том обладающий всеми предусмотренными параметрами соревновательной прыжковой вышки.
Весь комплекс – это серьезная инженерная и архитектурная конструкция, реализацией которой мы остались довольны. С нами работала большая группа локальных проектировщиков, занимающихся рабочей документацией, и они выполнили свою часть работы очень качественно, точно по нашим чертежам. Мы постоянно приезжали в Казань на консультации, вели авторский надзор, постоянно общались с местными проектировщиками. И вся команда, а это порядка ста человек проектировщиков, работала очень слажено».  Дворец водных видов спорта в Казани. Интерьер. SPEECH Чобан&Кузнецов. Фотография Алексея Народицкого
Дворец водных видов спорта в Казани. Чаши бассейнов и трибуны вдоль них. SPEECH Чобан&Кузнецов. Фотография Алексея Народицкого
Дворец водных видов спорта в Казани. Дерево-металлические конструкции, удерживающие стеклянный фасад. SPEECH Чобан&Кузнецов. Фотография Алексея Народицкого
Дворец водных видов спорта в Казани. Стрельчатые арки. SPEECH Чобан&Кузнецов. Фотография Алексея Народицкого
Дворец водных видов спорта в Казани. Деревянные балки в интерьере. SPEECH Чобан&Кузнецов. Фотография Алексея Народицкого
Дворец водных видов спорта в Казани. Деревянные конструкции в интерьере© Илья Иванов
Дворец водных видов спорта в Казани. V-образные конструкции окон© Илья Иванов
Дворец водных видов спорта в Казани. Освещение в интерьере© Илья Иванов
Дворец водных видов спорта в Казани. Прыжковая вышка. SPEECH Чобан&Кузнецов. Фотография Алексея Народицкого
Дворец водных видов спорта в Казани. Вышка. SPEECH Чобан&Кузнецов. Фотография Алексея Народицкого
Дворец водных видов спорта в Казани. Вышка© Илья Иванов
Дворец водных видов спорта в Казани. Ситуационный план© SPEECH
Дворец водных видов спорта в Казани. Вышка для прыжков. Генплан© SPEECH
Дворец водных видов спорта в Казани. План первого этажа© SPEECH
Дворец водных видов спорта в Казани. План второго этажа© SPEECH
Дворец водных видов спорта в Казани. План пятого этажа© SPEECH
Дворец водных видов спорта в Казани. Главный фасад© SPEECH
Дворец водных видов спорта в Казани. Фасад© SPEECH
Дворец водных видов спорта в Казани. Фасад© SPEECH
Дворец водных видов спорта в Казани. Продольный разрез© SPEECH
Дворец водных видов спорта в Казани. Поперечный разрез© SPEECH
Дворец водных видов спорта в Казани. Эскиз© SPEECH
|