RSS
Дом Light House
Фото © Sebastian van Damme

Дом Light House


/ Light House

информация:

Studioninedots / Нидерланды
Дом Light House
Фото © Sebastian van Damme

Архи.ру об этом объекте:

30.04.2026

Нина Фролова. Блоки и коробки

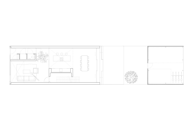
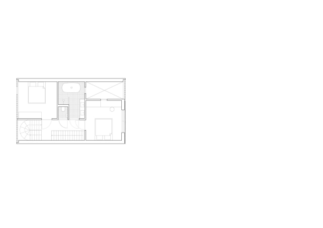
Дом по проекту Studioninedots в новом районе Амстердама раскладывает жизнь семьи с двумя детьми по «коробочкам».

читать дальше
Дом Light House
Фото © Sebastian van Damme
Дом Light House
Фото © Sebastian van Damme
Дом Light House
Фото © Sebastian van Damme
Дом Light House
Фото © Sebastian van Damme
Дом Light House
Фото © Sebastian van Damme
Дом Light House
Фото © Sebastian van Damme
Дом Light House
Фото © Sebastian van Damme
Дом Light House
Фото © Sebastian van Damme
Дом Light House
Фото © Sebastian van Damme
Дом Light House
Фото © Sebastian van Damme
Дом Light House
Фото © Sebastian van Damme
Дом Light House
Фото © Sebastian van Damme
Дом Light House
Фото © Sebastian van Damme
Дом Light House
Фото © Sebastian van Damme
Дом Light House
Фото © Sebastian van Damme
Дом Light House
Фото © Sebastian van Damme
Дом Light House
Фото © Sebastian van Damme
Дом Light House
Фото © Sebastian van Damme
Дом Light House
© Studioninedots
Дом Light House
© Studioninedots
Дом Light House
© Studioninedots
Дом Light House
© Studioninedots
Дом Light House
© Studioninedots
Дом Light House
© Studioninedots
Дом Light House
© Studioninedots
Дом Light House
© Studioninedots
Дом Light House
© Studioninedots
Дом Light House
© Studioninedots
Дом Light House
© Studioninedots
Дом Light House
© Studioninedots
Дом Light House
© Studioninedots
Дом Light House
© Studioninedots

Избранные архитекторы:

  • Алвару Сиза
  • Кристиан де Портзампарк
  • Оскар Нимейер
  • Арата Исодзаки
  • Сантьяго Калатрава
  • Джон Поусон
  • Уильям Олсоп
  • Норман Фостер
  • Сигэру Бан

Проект из каталога (случайный выбор)

Жилой комплекс Life Marina Ibiza
Жан Нувель, – 2012
Жилой комплекс Life Marina Ibiza

Избранные постройки:

  • Зарядье – застройка района
  • Учебный центр Rolex Федеральной политехнической школы Лозанны
  • Церковь Дио Падре Мизерикордиозо
  • Музей искусств Акрона
  • Отель Fogo Island Inn
  • Метрополитен Бильбао
  • Онкологический центр Мэгги больницы Сент-Бартоломью
  • Американский центр (Французская синематека)
  • Генплан инновационного центра «Сколково»

Зарубежные новости