RSS
Гостиница Vela be Siam
Фото © Soopakorn Srisakul

Гостиница Vela be Siam


/ Vela be Siam hotel

информация:

ASWA (Architectural Studio of Work – Aholic) / Таиланд
Гостиница Vela be Siam
Фото © Soopakorn Srisakul

Архи.ру об этом объекте:

27.08.2025

Нина Фролова. Фасад под стальной вуалью

Гостиница Vela be Siam по проекту местного бюро ASWA в центре Бангкока напоминает о таиландских традициях, оставаясь в русле современной архитектуры.

читать дальше
Гостиница Vela be Siam
Фото © Soopakorn Srisakul
Гостиница Vela be Siam
Фото © Soopakorn Srisakul
Гостиница Vela be Siam
Фото © Soopakorn Srisakul
Гостиница Vela be Siam
Фото © Soopakorn Srisakul
Гостиница Vela be Siam
Фото © Soopakorn Srisakul
Гостиница Vela be Siam
Фото © Soopakorn Srisakul
Гостиница Vela be Siam
Фото © Soopakorn Srisakul
Гостиница Vela be Siam
Фото © Soopakorn Srisakul
Гостиница Vela be Siam
Фото © Soopakorn Srisakul
Гостиница Vela be Siam
Фото © Soopakorn Srisakul
Гостиница Vela be Siam
Фото © Soopakorn Srisakul
Гостиница Vela be Siam
Фото © Soopakorn Srisakul
Гостиница Vela be Siam
Фото © Soopakorn Srisakul
Гостиница Vela be Siam
Фото © Soopakorn Srisakul
Гостиница Vela be Siam
Фото © Soopakorn Srisakul
Гостиница Vela be Siam
Фото © Soopakorn Srisakul
Гостиница Vela be Siam
Фото © Soopakorn Srisakul
Гостиница Vela be Siam
Фото © Soopakorn Srisakul
Гостиница Vela be Siam
Фото © Soopakorn Srisakul
Гостиница Vela be Siam
Фото © Soopakorn Srisakul
Гостиница Vela be Siam
Фото © Soopakorn Srisakul
Гостиница Vela be Siam
Фото © Soopakorn Srisakul
Гостиница Vela be Siam
Фото © Soopakorn Srisakul
Гостиница Vela be Siam
Фото © Soopakorn Srisakul
Гостиница Vela be Siam
Фото © Soopakorn Srisakul
Гостиница Vela be Siam
Фото © Soopakorn Srisakul
Гостиница Vela be Siam
Фото © Soopakorn Srisakul
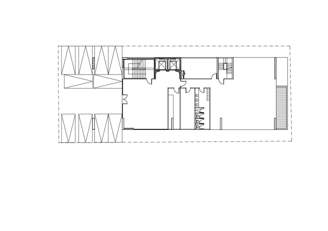
Гостиница Vela be Siam
© ASWA (Architectural Studio of Work – Aholic)
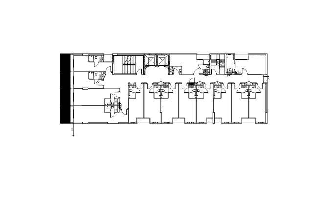
Гостиница Vela be Siam
© ASWA (Architectural Studio of Work – Aholic)
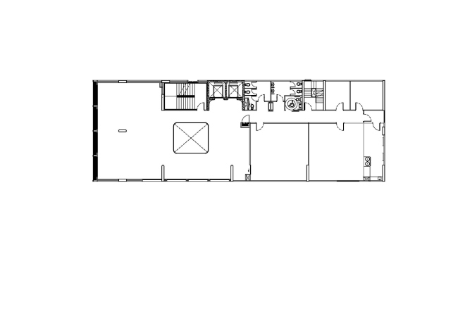
Гостиница Vela be Siam
© ASWA (Architectural Studio of Work – Aholic)
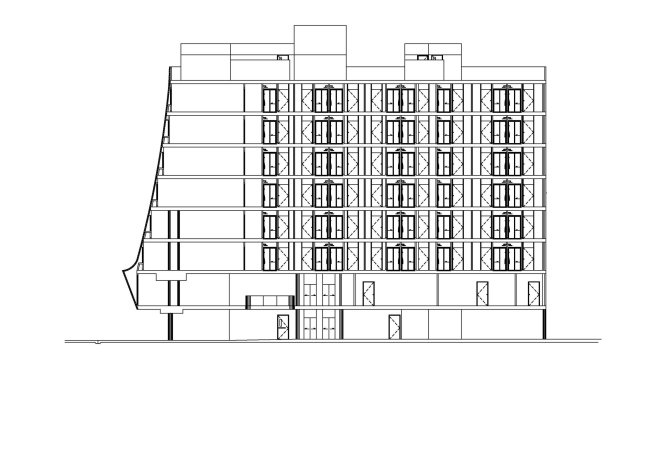
Гостиница Vela be Siam
© ASWA (Architectural Studio of Work – Aholic)
Гостиница Vela be Siam
© ASWA (Architectural Studio of Work – Aholic)
Гостиница Vela be Siam
© ASWA (Architectural Studio of Work – Aholic)
Гостиница Vela be Siam
© ASWA (Architectural Studio of Work – Aholic)
Гостиница Vela be Siam
© ASWA (Architectural Studio of Work – Aholic)
Гостиница Vela be Siam
© ASWA (Architectural Studio of Work – Aholic)
Гостиница Vela be Siam
© ASWA (Architectural Studio of Work – Aholic)
Гостиница Vela be Siam
© ASWA (Architectural Studio of Work – Aholic)
Гостиница Vela be Siam
© ASWA (Architectural Studio of Work – Aholic)
Гостиница Vela be Siam
© ASWA (Architectural Studio of Work – Aholic)
Гостиница Vela be Siam
© ASWA (Architectural Studio of Work – Aholic)
Гостиница Vela be Siam
© ASWA (Architectural Studio of Work – Aholic)

Избранные архитекторы:

  • Одиль Декк
  • Николас Гримшо
  • Рем Колхас
  • Стивен Холл
  • Жан Нувель
  • Даниэль Либескинд
  • Ричард Майер
  • Хельмут Ян
  • Том Мейн

Проект из каталога (случайный выбор)

Офисное здание City Green Court
Ричард Майер, 2010 – 2012
Офисное здание City Green Court

Избранные постройки:

  • Бизнес-центр Dominion Tower
  • Отель Potato Head Studios
  • 88 Вуд-Стрит
  • Здание администрации департамента Буш-дю-Рон
  • Парк «Зарядье». Конкурсный проект консорциума ТПО «Резерв» + Maxwan + Latz und Partner
  • Архитектурный факультет Университета Порто
  • Музей искусств Центральной Академии художеств (CAFA)
  • Музей Конфлуанс
  • Центральный вокзал Дрездена – реконструкция

Зарубежные новости