RSS
Павильон теннисного клуба Beseda Ořechovka
Фото © Tomáš Slavík

Павильон теннисного клуба Beseda Ořechovka


/ Beseda Ořechovka Tennis Club pavilion

информация:

Pavel Hnilička Architects+Planners / Чехия
Павильон теннисного клуба Beseda Ořechovka
Фото © Tomáš Slavík

Архи.ру об этом объекте:

14.08.2025

Нина Фролова. Храм тенниса

Павильон теннисного клуба в Праге по проекту Pavel Hnilička Architects+Planners напоминает маленький античный храм с деревянной конструкцией.

читать дальше
Павильон теннисного клуба Beseda Ořechovka
Фото © Tomáš Slavík
Павильон теннисного клуба Beseda Ořechovka
Фото © Tomáš Slavík
Павильон теннисного клуба Beseda Ořechovka
Фото © Tomáš Slavík
Павильон теннисного клуба Beseda Ořechovka
Фото © Tomáš Slavík
Павильон теннисного клуба Beseda Ořechovka
Фото © Tomáš Slavík
Павильон теннисного клуба Beseda Ořechovka
Фото © Tomáš Slavík
Павильон теннисного клуба Beseda Ořechovka
Фото © Tomáš Slavík
Павильон теннисного клуба Beseda Ořechovka
Фото © Tomáš Slavík
Павильон теннисного клуба Beseda Ořechovka
Фото © Tomáš Slavík
Павильон теннисного клуба Beseda Ořechovka
Фото © Tomáš Slavík
Павильон теннисного клуба Beseda Ořechovka
Фото © Tomáš Slavík
Павильон теннисного клуба Beseda Ořechovka
Фото © Tomáš Slavík
Павильон теннисного клуба Beseda Ořechovka
Фото © Tomáš Slavík
Павильон теннисного клуба Beseda Ořechovka
Фото © Tomáš Slavík
Павильон теннисного клуба Beseda Ořechovka
Фото © Tomáš Slavík
Павильон теннисного клуба Beseda Ořechovka
Фото © Tomáš Slavík
Павильон теннисного клуба Beseda Ořechovka
Фото © Tomáš Slavík
Павильон теннисного клуба Beseda Ořechovka
Фото © Tomáš Slavík
Павильон теннисного клуба Beseda Ořechovka
Фото © Tomáš Slavík
Павильон теннисного клуба Beseda Ořechovka
Фото © Tomáš Slavík
Павильон теннисного клуба Beseda Ořechovka
Фото © Tomáš Slavík
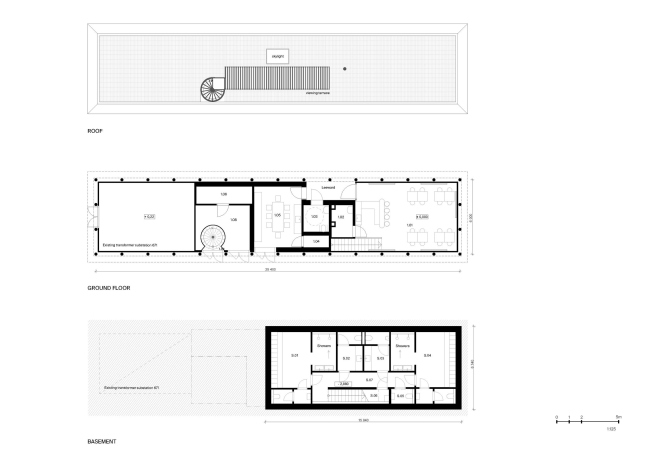
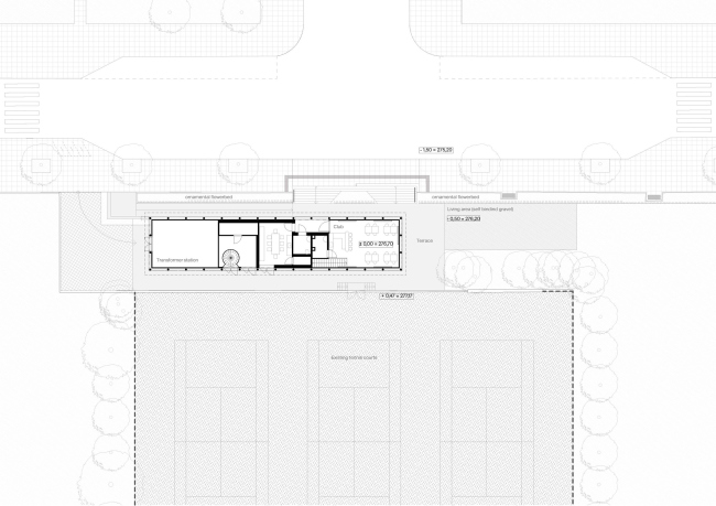
Павильон теннисного клуба Beseda Ořechovka
© Pavel Hnilička Architects+Planners
Павильон теннисного клуба Beseda Ořechovka
© Pavel Hnilička Architects+Planners
Павильон теннисного клуба Beseda Ořechovka
© Pavel Hnilička Architects+Planners
Павильон теннисного клуба Beseda Ořechovka
© Pavel Hnilička Architects+Planners
Павильон теннисного клуба Beseda Ořechovka
© Pavel Hnilička Architects+Planners
Павильон теннисного клуба Beseda Ořechovka
© Pavel Hnilička Architects+Planners

Избранные архитекторы:

  • Питер Айзенман
  • Арата Исодзаки
  • Рафаэль Виньоли
  • Алехандро Аравена
  • Кристиан де Портзампарк
  • Ренцо Пьяно
  • Николас Гримшо
  • Жан Нувель
  • Сантьяго Калатрава

Проект из каталога (случайный выбор)

Комплекс зимних видов спорта
Крис Уилкинсон, 2008 – 2009
Комплекс зимних видов спорта

Избранные постройки:

  • Музей дизайна в Холоне
  • Женский университет Ихва
  • Парк «Зарядье». Конкурсный проект консорциума ТПО «Резерв» + Maxwan + Latz und Partner
  • Свердловская филармония
  • Онкологический центр Мэгги больницы Чэринг-Кросс
  • Дом Flower Tower
  • Многофункциональный центр The Orange Cube
  • Leeum  - Музей искусств компании Samsung
  • Телевизионная башня в Чанаккале

Зарубежные новости