RSS
Офис IT компании в Пафосе, Кипр
Фотография © Дмитрий Чебаненко / предоставлено Архитектурным бюро AQ

Офис IT компании в Пафосе, Кипр

информация:

  • статус
    реализовано
  • даты
    2023 / 20232024
  • место
    Кипр, Пафос
  • функция
    Административно-офисный / интерьер офиса
  • теги
    send.project, send.project
  • этажность
    5
  • ссылки:
  • авторский коллектив
    Руководитель проекта: Евгения Чернышева
    Руководитель авторского коллектива: Николай Миловидов
    ГАП: Егор Коновалов
    Архитекторы: Агата Потапенко, Спартак Чинеников
     
  • партнеры, заказчики, смежники
    Консультант проекта: Inhouse PM
АБ AQ
Офис IT компании в Пафосе, Кипр
Фотография © Дмитрий Чебаненко / предоставлено Архитектурным бюро AQ

Архи.ру об этом объекте:

22.08.2025

Вечный август

Каким должен быть офис, если он находится в месте, однозначно ассоциирующемся не с работой, а с отдыхом? Наверное, очень красивым и удобным – таким, чтобы сотрудникам захотелось приходить туда каждый день. Именно такой офис спроектировало бюро AQ для IT-компании на Кипре.

читать дальше
Офис IT компании в Пафосе, Кипр
Фотография © Дмитрий Чебаненко / предоставлено Архитектурным бюро AQ

история проекта:

С данным заказчиком мы знакомы уже давно и успешно реализовали для него несколько проектов; сейчас настал этап создания офиса на Кипре с использованием концепции местного колорита.

описание:

Перед архитекторами бюро AQ стояла задача создать современное и вдохновляющее рабочее пространство, которое бы способствовало продуктивности, креативности и комфорту сотрудников. Офис должен был сочетать в себе функциональность, возможности для отдыха и уникальную атмосферу, отражающую как специфику IT-индустрии, так и колорит Кипра.

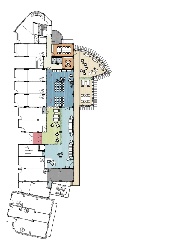
Проект реализован в здании бывшего отеля постройки 90-х годов. Архитекторы сохранили основную структуру здания, адаптировав её под нужды IT-компании. Верхние этажи, использовавшиеся как номерной фонд отеля, были преобразованы в рабочие зоны с сохранением коридорной и кабинетной системы, принятой в компании. Отель также располагает тремя этажами общественных зон, которые были полностью переосмыслены.

Идея преобразования отеля, включающего типичные для курорта бассейн, летнюю террасу и балконы, в офис пришлась сотрудникам компании по душе. Новая концепция идеально вписывается в расслабленную атмосферу Кипра и отражает культуру острова. Неофициально в рамках компании офис получил название «Отель».

По классическим канонам отельной структуры на нулевом уровне размещена летняя терраса с кафе и бассейном, идеально подходящая для отдыха и неформального общения. В большинстве помещений этого уровня предусмотрен прямой выход на террасу.

Помещения нулевого уровня используются для двух ключевых функций: большой блок разноформатных переговорных комнат с видом на бассейн и просторная столовая полного цикла. Столовая выполнена в традиционном средиземноморском стиле с плетёными светильниками, создающими уютную атмосферу.

Первый уровень, типично для структуры отеля, встречает гостей зоной ресепшн и просторным лаунжем, дополненными двухсветным мультифункциональным пространством. Здесь сохранилась оригинальная отделка пола из натурального камня, что придаёт пространству особый шарм и связывает его с историей здания. Из всех помещений первого этажа есть выход на видовую террасу.

Мультифункциональное пространство трансформируется под различные сценарии использования благодаря мобильной мебели и наличию проектора: от лекционного класса и конференц-зала до площадки для проведения мероприятий и игровой зоны.

Второй уровень (антресольный), ранее использовавшийся как технический этаж отеля, теперь отведён под переговорные комнаты различной вместимости.

В расположенных на гостиничных этажах рабочих помещениях преобладает атмосфера комфорта и умиротворения: из большинства кабинетов открывается вид на море. Для удобства сотрудников на каждом этаже предусмотрены кофе-пойнты.

Дизайн-идея
Архитекторы вдохновлялись классической кипрской архитектурой с её белыми фасадами и яркими тропическими акцентами. Эта тема наиболее ярко выражена в оформлении общих зон, особенно входной группы и мультифункционального зала.

Сдержанная и лаконичная цветовая гамма рабочих этажей способствует концентрации и продуктивной работе. Ярким контрастом и настоящей изюминкой проекта стали санузлы.

Каждый санузел – это взрыв цвета и тропических мотивов, уникальное дизайнерское решение, превращающее обычное функциональное пространство в миниатюрный арт-объект. В рамках проекта также была проведена реновация фасада здания. Архитекторы создали современный и лаконичный облик, интегрировав в него элементы фирменного стиля IT-компании. Новый фасад отражает инновационный дух компании и гармонично вписывается в окружающий ландшафт.

Офис IT компании в Пафосе, Кипр
Фотография © Дмитрий Чебаненко / предоставлено Архитектурным бюро AQ
Офис IT компании в Пафосе, Кипр
Фотография © Дмитрий Чебаненко / предоставлено Архитектурным бюро AQ
Офис IT компании в Пафосе, Кипр
Фотография © Дмитрий Чебаненко / предоставлено Архитектурным бюро AQ
Офис IT компании в Пафосе, Кипр
Фотография © Дмитрий Чебаненко / предоставлено Архитектурным бюро AQ
Офис IT компании в Пафосе, Кипр
Фотография © Дмитрий Чебаненко / предоставлено Архитектурным бюро AQ
Офис IT компании в Пафосе, Кипр
Фотография © Дмитрий Чебаненко / предоставлено Архитектурным бюро AQ
Офис IT компании в Пафосе, Кипр
Фотография © Дмитрий Чебаненко / предоставлено Архитектурным бюро AQ
Офис IT компании в Пафосе, Кипр
Фотография © Дмитрий Чебаненко / предоставлено Архитектурным бюро AQ
Офис IT компании в Пафосе, Кипр
Фотография © Дмитрий Чебаненко / предоставлено Архитектурным бюро AQ
Офис IT компании в Пафосе, Кипр
Фотография © Дмитрий Чебаненко / предоставлено Архитектурным бюро AQ
Офис IT компании в Пафосе, Кипр
Фотография © Дмитрий Чебаненко / предоставлено Архитектурным бюро AQ
Офис IT компании в Пафосе, Кипр
Фотография © Дмитрий Чебаненко / предоставлено Архитектурным бюро AQ
Офис IT компании в Пафосе, Кипр
Фотография © Дмитрий Чебаненко / предоставлено Архитектурным бюро AQ
Офис IT компании в Пафосе, Кипр
Фотография © Дмитрий Чебаненко / предоставлено Архитектурным бюро AQ
Офис IT компании в Пафосе, Кипр
Фотография © Дмитрий Чебаненко / предоставлено Архитектурным бюро AQ
Офис IT компании в Пафосе, Кипр
Фотография © Дмитрий Чебаненко / предоставлено Архитектурным бюро AQ
Офис IT компании в Пафосе, Кипр
Фотография © Дмитрий Чебаненко / предоставлено Архитектурным бюро AQ
Офис IT компании в Пафосе, Кипр
Фотография © Дмитрий Чебаненко / предоставлено Архитектурным бюро AQ
Офис IT компании в Пафосе, Кипр
Фотография © Дмитрий Чебаненко / предоставлено Архитектурным бюро AQ
Офис IT компании в Пафосе, Кипр
Фотография © Дмитрий Чебаненко / предоставлено Архитектурным бюро AQ
Офис IT компании в Пафосе, Кипр
Фотография © Дмитрий Чебаненко / предоставлено Архитектурным бюро AQ
Офис IT компании в Пафосе, Кипр
Фотография © Дмитрий Чебаненко / предоставлено Архитектурным бюро AQ
Офис IT компании в Пафосе, Кипр
Фотография © Дмитрий Чебаненко / предоставлено Архитектурным бюро AQ
Офис IT компании в Пафосе, Кипр
Фотография © Дмитрий Чебаненко / предоставлено Архитектурным бюро AQ
Офис IT компании в Пафосе, Кипр
Фотография © Дмитрий Чебаненко / предоставлено Архитектурным бюро AQ
Офис IT компании в Пафосе, Кипр
Фотография © Дмитрий Чебаненко / предоставлено Архитектурным бюро AQ
Офис IT компании в Пафосе, Кипр
Фотография © Дмитрий Чебаненко / предоставлено Архитектурным бюро AQ
Офис IT компании в Пафосе, Кипр
Фотография © Дмитрий Чебаненко / предоставлено Архитектурным бюро AQ
Офис IT компании в Пафосе, Кипр
Фотография © Дмитрий Чебаненко / предоставлено Архитектурным бюро AQ
Офис IT компании в Пафосе, Кипр
Фотография © Дмитрий Чебаненко / предоставлено Архитектурным бюро AQ
Офис IT компании в Пафосе, Кипр
Фотография © Дмитрий Чебаненко / предоставлено Архитектурным бюро AQ
Офис IT компании в Пафосе, Кипр
Фотография © Дмитрий Чебаненко / предоставлено Архитектурным бюро AQ
Офис IT компании в Пафосе, Кипр
Фотография © Дмитрий Чебаненко / предоставлено Архитектурным бюро AQ
Офис IT компании в Пафосе, Кипр
Фотография © Дмитрий Чебаненко / предоставлено Архитектурным бюро AQ
Офис IT компании в Пафосе, Кипр
Фотография © Дмитрий Чебаненко / предоставлено Архитектурным бюро AQ
Офис IT компании в Пафосе, Кипр. Мезонин
© Архитектурным бюро AQ
Офис IT компании в Пафосе, Кипр. План 1 этажа
© Архитектурным бюро AQ
Офис IT компании в Пафосе, Кипр. План 3 этажа
© Архитектурным бюро AQ

Избранные архитекторы:

  • Кристиан де Портзампарк
  • Рафаэль Виньоли
  • Одиль Декк
  • Дэвид Аджайе
  • Норман Фостер
  • Рафаэль Монео
  • Эдуарду Соту де Мора
  • Хельмут Ян
  • Жан Нувель

Проект из каталога (случайный выбор)

Избранные постройки:

  • Музей цивилизаций Европы и Средиземноморья – MUCEM
  • Здание Администрации Большого Лондона
  • Башня The Shard
  • Город Oceanix
  • Экоцентр The Spheres в штаб-квартире компании Amazon
  • Фабричный корпус Vitrashop
  • Дом Дугласов
  • Мемориальная библиотека Мартина Лютера Кинга – реконструкция
  • Штаб-квартира компании Bloomberg

Зарубежные новости

Симулятор «зеленой» жизни
05.03.2026

Симулятор «зеленой» жизни

Томас Хезервик
От пещеры до звезды
04.03.2026

От пещеры до звезды

Станислав Субботин
Дарья Кириллова
Горный страж
03.03.2026

Горный страж

Артем Агекян