RSS
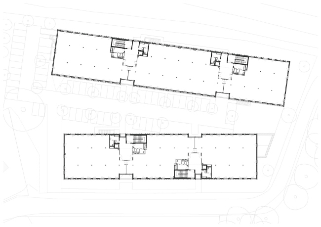
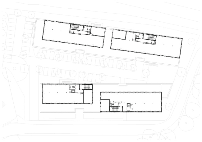
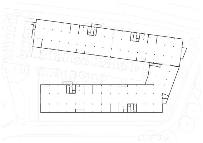
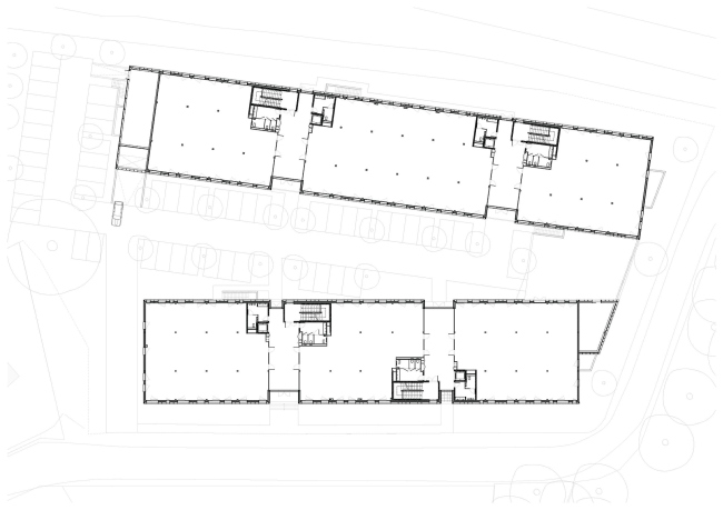
Офисный центр на улице Шемен-дю-Буа-Арель в Рене
Фотография © Gaëtan Chevrier / предоставлена агентством FE Consulting

Офисный центр на улице Шемен-дю-Буа-Арель


/ Оffice project on the Chemin du Bois Harel

информация:

ALTA architectes urbanistes / Франция
Офисный центр на улице Шемен-дю-Буа-Арель в Рене
Фотография © Gaëtan Chevrier / предоставлена агентством FE Consulting

Архи.ру об этом объекте:

25.07.2025

Анна Старостина. Универсальный игрок

Офисный комплекс, выстроенный на 80% из древесины по проекту бюро ALTA на окраине Рена, стал «посредником» между сельским ландшафтом и насыщенной городской средой.

читать дальше
Офисный центр на улице Шемен-дю-Буа-Арель в Рене
Фотография © Gaëtan Chevrier / предоставлена агентством FE Consulting
Офисный центр на улице Шемен-дю-Буа-Арель в Рене
Фотография © Gaëtan Chevrier / предоставлена агентством FE Consulting
Офисный центр на улице Шемен-дю-Буа-Арель в Рене
Фотография © Gaëtan Chevrier / предоставлена агентством FE Consulting
Офисный центр на улице Шемен-дю-Буа-Арель в Рене
Фотография © Gaëtan Chevrier / предоставлена агентством FE Consulting
Офисный центр на улице Шемен-дю-Буа-Арель в Рене
Фотография © Gaëtan Chevrier / предоставлена агентством FE Consulting
Офисный центр на улице Шемен-дю-Буа-Арель в Рене
Фотография © Gaëtan Chevrier / предоставлена агентством FE Consulting
Офисный центр на улице Шемен-дю-Буа-Арель в Рене
Фотография © Gaëtan Chevrier / предоставлена агентством FE Consulting
Офисный центр на улице Шемен-дю-Буа-Арель в Рене
Фотография © Gaëtan Chevrier / предоставлена агентством FE Consulting
Офисный центр на улице Шемен-дю-Буа-Арель в Рене
Фотография © Gaëtan Chevrier / предоставлена агентством FE Consulting
Офисный центр на улице Шемен-дю-Буа-Арель в Рене
Фотография © Gaëtan Chevrier / предоставлена агентством FE Consulting
Офисный центр на улице Шемен-дю-Буа-Арель в Рене
Фотография © Gaëtan Chevrier / предоставлена агентством FE Consulting
Офисный центр на улице Шемен-дю-Буа-Арель в Рене
Фотография © Gaëtan Chevrier / предоставлена агентством FE Consulting
Офисный центр на улице Шемен-дю-Буа-Арель в Рене
Фотография © Gaëtan Chevrier / предоставлена агентством FE Consulting
Офисный центр на улице Шемен-дю-Буа-Арель в Рене
Фотография © Gaëtan Chevrier / предоставлена агентством FE Consulting
Офисный центр на улице Шемен-дю-Буа-Арель в Рене
Фотография © Gaëtan Chevrier / предоставлена агентством FE Consulting
Офисный центр на улице Шемен-дю-Буа-Арель в Рене
Фотография © Gaëtan Chevrier / предоставлена агентством FE Consulting
Офисный центр на улице Шемен-дю-Буа-Арель в Рене
Фотография © Gaëtan Chevrier / предоставлена агентством FE Consulting
Офисный центр на улице Шемен-дю-Буа-Арель в Рене
Фотография © Gaëtan Chevrier / предоставлена агентством FE Consulting
Офисный центр на улице Шемен-дю-Буа-Арель в Рене
Фотография © Gaëtan Chevrier / предоставлена агентством FE Consulting
Офисный центр на улице Шемен-дю-Буа-Арель в Рене
Фотография © Gaëtan Chevrier / предоставлена агентством FE Consulting
Офисный центр на улице Шемен-дю-Буа-Арель в Рене
Фотография © Gaëtan Chevrier / предоставлена агентством FE Consulting
Офисный центр на улице Шемен-дю-Буа-Арель в Рене
Фотография © Gaëtan Chevrier / предоставлена агентством FE Consulting
Офисный центр на улице Шемен-дю-Буа-Арель в Рене
Фотография © Gaëtan Chevrier / предоставлена агентством FE Consulting
Офисный центр на улице Шемен-дю-Буа-Арель в Рене
© ALTA Architectes – Urbanistes / предоставлено агентством FE Consulting
Офисный центр на улице Шемен-дю-Буа-Арель в Рене
© ALTA Architectes – Urbanistes / предоставлено агентством FE Consulting
Офисный центр на улице Шемен-дю-Буа-Арель в Рене
© ALTA Architectes – Urbanistes / предоставлено агентством FE Consulting
Офисный центр на улице Шемен-дю-Буа-Арель в Рене
© ALTA Architectes – Urbanistes / предоставлено агентством FE Consulting
Офисный центр на улице Шемен-дю-Буа-Арель в Рене
© ALTA Architectes – Urbanistes / предоставлено агентством FE Consulting
Офисный центр на улице Шемен-дю-Буа-Арель в Рене
© ALTA Architectes – Urbanistes / предоставлено агентством FE Consulting
Офисный центр на улице Шемен-дю-Буа-Арель в Рене
© ALTA Architectes – Urbanistes / предоставлено агентством FE Consulting
Офисный центр на улице Шемен-дю-Буа-Арель в Рене
© ALTA Architectes – Urbanistes / предоставлено агентством FE Consulting
Офисный центр на улице Шемен-дю-Буа-Арель в Рене
© ALTA Architectes – Urbanistes / предоставлено агентством FE Consulting
Офисный центр на улице Шемен-дю-Буа-Арель в Рене
© ALTA Architectes – Urbanistes / предоставлено агентством FE Consulting
Офисный центр на улице Шемен-дю-Буа-Арель в Рене
© ALTA Architectes – Urbanistes / предоставлено агентством FE Consulting
Офисный центр на улице Шемен-дю-Буа-Арель в Рене
© ALTA Architectes – Urbanistes / предоставлено агентством FE Consulting
Офисный центр на улице Шемен-дю-Буа-Арель в Рене
© ALTA Architectes – Urbanistes / предоставлено агентством FE Consulting
Офисный центр на улице Шемен-дю-Буа-Арель в Рене
© ALTA Architectes – Urbanistes / предоставлено агентством FE Consulting
Офисный центр на улице Шемен-дю-Буа-Арель в Рене
© ALTA Architectes – Urbanistes / предоставлено агентством FE Consulting
Офисный центр на улице Шемен-дю-Буа-Арель в Рене
© ALTA Architectes – Urbanistes / предоставлено агентством FE Consulting
Офисный центр на улице Шемен-дю-Буа-Арель в Рене
© ALTA Architectes – Urbanistes / предоставлено агентством FE Consulting
Офисный центр на улице Шемен-дю-Буа-Арель в Рене
© ALTA Architectes – Urbanistes / предоставлено агентством FE Consulting
Офисный центр на улице Шемен-дю-Буа-Арель в Рене
© ALTA Architectes – Urbanistes / предоставлено агентством FE Consulting

Избранные архитекторы:

  • Норман Фостер
  • Хельмут Ян
  • Рафаэль Монео
  • Том Мейн
  • Дэвид Чипперфильд
  • Стивен Холл
  • Алвару Сиза
  • Жан Нувель
  • Сантьяго Калатрава

Проект из каталога (случайный выбор)

Жилой комплекс Лион-Конфлуанс
Массимилиано Фуксас, – 2011
Жилой комплекс Лион-Конфлуанс

Избранные постройки:

  • Детский музей Бруклина
  • Мост тысячелетия
  • Школа искусств и истории искусства Университета Айовы (Art Building West)
  • Выставочный павильон Музея современного искусства «Гараж»
  • Музей Хепуорт – Уэйкфилд
  • Галисийский центр современного искусства
  • Мастерплан для Королевской академии художеств
  • Корпус Investcorp Центра Ближнего Востока Колледжа Сент-Энтони Оксфордского университета
  • Новое здание Мариинского театра. Проект Э. Мосса

Зарубежные новости