RSS
Многоквартирный дом C14 в районе Бёйкслотерхам
Фото © Sebastian van Damme

Многоквартирный дом C14 в районе Бёйкслотерхам


/ C14 buidling in the Buiksloterham development

информация:

Studioninedots / Нидерланды
Многоквартирный дом C14 в районе Бёйкслотерхам
Фото © Sebastian van Damme

Архи.ру об этом объекте:

17.04.2025

Нина Фролова. Решение в малом масштабе

В основе схемы жилой застройки Cityplot Buiksloterham на месте портовой промзоны в Амстердаме – активное смешение масштабов и типов зданий.

читать дальше

другие тексты Архи.ру:

Многоквартирный дом C14 в районе Бёйкслотерхам
Фото © Sebastian van Damme
Многоквартирный дом C14 в районе Бёйкслотерхам
Фото © Sebastian van Damme
Многоквартирный дом C14 в районе Бёйкслотерхам
Фото © Sebastian van Damme
Многоквартирный дом C14 в районе Бёйкслотерхам
Фото © Sebastian van Damme
Многоквартирный дом C14 в районе Бёйкслотерхам
Фото © Sebastian van Damme
Многоквартирный дом C14 в районе Бёйкслотерхам
Фото © Sebastian van Damme
Многоквартирный дом C14 в районе Бёйкслотерхам
Фото © Sebastian van Damme
Многоквартирный дом C14 в районе Бёйкслотерхам
Фото © Sebastian van Damme
Многоквартирный дом C14 в районе Бёйкслотерхам
Фото © Sebastian van Damme
Многоквартирный дом C14 в районе Бёйкслотерхам
Фото © Sebastian van Damme
Многоквартирный дом C14 в районе Бёйкслотерхам
Фото © Sebastian van Damme
Многоквартирный дом C14 в районе Бёйкслотерхам
Фото © Sebastian van Damme
Многоквартирный дом C14 в районе Бёйкслотерхам
Фото © Sebastian van Damme
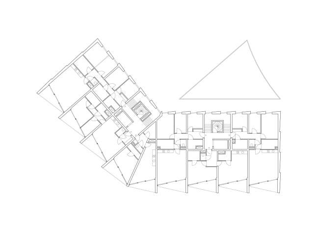
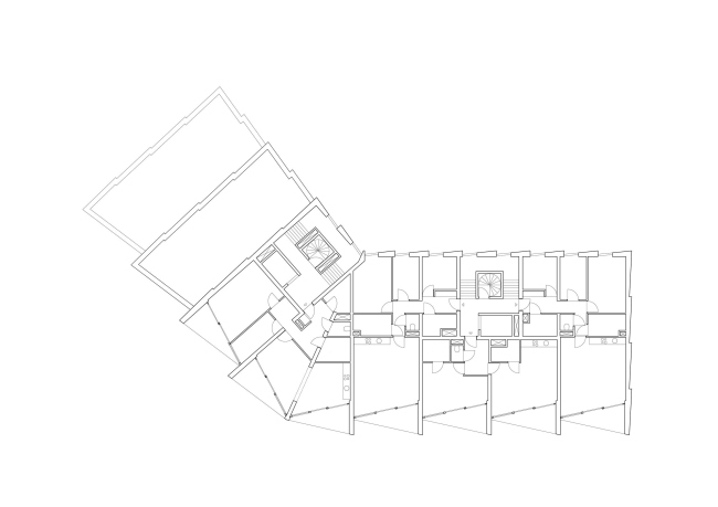
Многоквартирный дом C14 в районе Бёйкслотерхам
© Studioninedots
Многоквартирный дом C14 в районе Бёйкслотерхам
© Studioninedots
Многоквартирный дом C14 в районе Бёйкслотерхам
© Studioninedots
Многоквартирный дом C14 в районе Бёйкслотерхам
© Studioninedots
Многоквартирный дом C14 в районе Бёйкслотерхам
© Studioninedots
Многоквартирный дом C14 в районе Бёйкслотерхам
© Studioninedots
Многоквартирный дом C14 в районе Бёйкслотерхам
© Studioninedots

Избранные архитекторы:

  • Тадао Андо
  • Дэвид Чипперфильд
  • Кристиан де Портзампарк
  • Жан Нувель
  • Одиль Декк
  • Петер Цумтор
  • Николас Гримшо
  • Заха Хадид
  • Стивен Холл

Проект из каталога (случайный выбор)

Офисный комплекс Five Boats
Николас Гримшо, – 2005
Офисный комплекс Five Boats

Избранные постройки:

  • Церковь Сен-Пьер де Фирмини
  • Лыжный трамплин Бергизель
  • Штаб-квартира ST International и арт-пространство SONGEUN
  • Таймс-сквер – реконструкция
  • Комплекс Фондако деи Тедески – реконструкция
  • Музей современного искусства в Форт-Уэрте
  • Музей дизайна в Холоне
  • Башня One Central Park
  • Библиотека Idea Store на Крисп-стрит

Зарубежные новости