RSS
Международный аграрный университет в Ташкенте
Фотогрфаия © Миркамол Шукуров / предоставлена Parallel architects

Международный аграрный университет в Ташкенте

информация:

  • статус
    реализовано
  • даты
    20222022 / 20222022
  • место
    Узбекистан, Ташкент
    Университетская улица, 2
  • координаты
    41.361116, 69.341786
  • функция
    Образование и наука / Кампус
  • теги
    send.project
  • общая площадь
    6 490 м2
  • строительный объем
    24 681.4 м3
  • авторский коллектив
    ГАП: Фаррух Шарахмедов
    ГИП: Обиджан Абидов
    Архитекторы: Ислом Тоиров, Миркамол Шукуров, Муродилла Акбаралиев
Фаррух Шарахмедов
/ Узбекистан
Международный аграрный университет в Ташкенте
Фотогрфаия © Миркамол Шукуров / предоставлена Parallel architects

Архи.ру об этом объекте:

23.10.2025

Мост и модуль

По проекту Parallel architects проведена частичная реновация зданий Международного аграрного университета в Ташкенте. Точечное обновление трех разрозненных блоков сформировало современный облик университетского кампуса, которому очень идет модернизм. Лаконичный мост-переход, динамичный фасад из натурального кирпича и новый входной портал создают среду, по уровню и эстетике сравнимую с международными университетскими центрами.

читать дальше
Международный аграрный университет в Ташкенте
Фотогрфаия © Миркамол Шукуров / предоставлена Parallel architects

история проекта:

Был объявлен тендер на разработку проекта. Мы решили участвовать и удалось выиграть этот тендер.

описание:

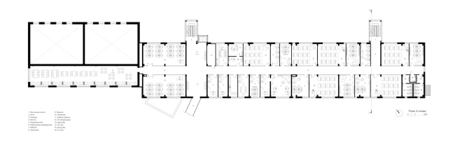
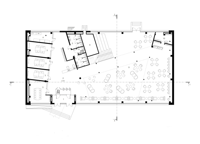
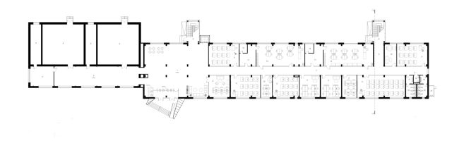
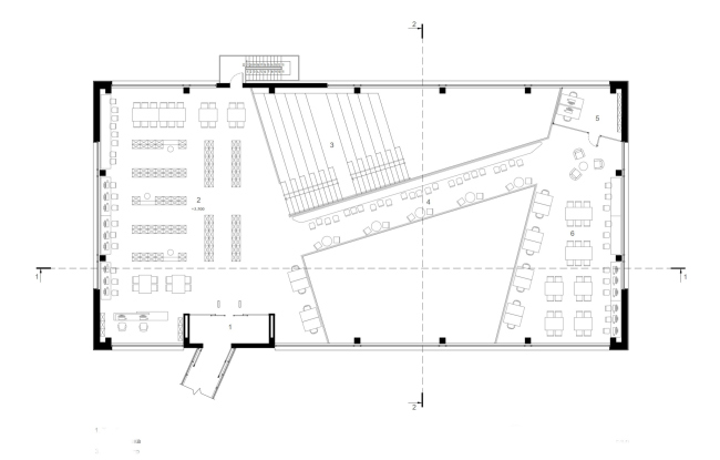
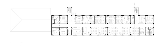
«Образование нужно не для того, чтобы наполнить ведро, а для того, чтобы разжечь костер». В ходе этого проекта мы реализовали план реконструкции части здания Ташкентского аграрного университета, эксплуатируемого уже много лет. На территории имеются три строительных блока с разными функциями, и необходимо было соединить их и создать благоприятные условия для научных исследований студенческой молодежи.

   Старое лабораторное здание в южной части территории приспособлено под требования коворкинга и косвенно соединено с учебным корпусом стеклянным мостом. С первых процессов мы стремились оставить существующие окна здания, их контрастную гармонию с призматическими формами.

   Прилегающие учебные корпуса в северной части состояли из типичного фасада, ряда ритмичных окон и учебных кабинетов. Мы нацелились показать фасадную часть интересной за счет натурального кирпича и ряда динамичных окон. Мы также спроектировали портал у главного входа, чтобы дарить первое позитивное настроение посетителям.

Международный аграрный университет в Ташкенте
Фотогрфаия © Миркамол Шукуров / предоставлена Parallel architects
Международный аграрный университет в Ташкенте
Фотогрфаия © Миркамол Шукуров / предоставлена Parallel architects
Международный аграрный университет в Ташкенте
Фотогрфаия © Миркамол Шукуров / предоставлена Parallel architects
Международный аграрный университет в Ташкенте
Фотогрфаия © Миркамол Шукуров / предоставлена Parallel architects
Международный аграрный университет в Ташкенте
Фотогрфаия © Миркамол Шукуров / предоставлена Parallel architects
Международный аграрный университет в Ташкенте
Фотогрфаия © Миркамол Шукуров / предоставлена Parallel architects
Международный аграрный университет в Ташкенте
Фотогрфаия © Миркамол Шукуров / предоставлена Parallel architects
Международный аграрный университет в Ташкенте
Фотогрфаия © Миркамол Шукуров / предоставлена Parallel architects
Международный аграрный университет в Ташкенте
Фотогрфаия © Миркамол Шукуров / предоставлена Parallel architects
Международный аграрный университет в Ташкенте
Фотогрфаия © Миркамол Шукуров / предоставлена Parallel architects
Международный аграрный университет в Ташкенте
Фотогрфаия © Миркамол Шукуров / предоставлена Parallel architects
Международный аграрный университет в Ташкенте
Фотогрфаия © Миркамол Шукуров / предоставлена Parallel architects
Международный аграрный университет в Ташкенте
Фотогрфаия © Миркамол Шукуров / предоставлена Parallel architects
Международный аграрный университет в Ташкенте
Фотогрфаия © Миркамол Шукуров / предоставлена Parallel architects
Международный аграрный университет в Ташкенте
Фотогрфаия © Миркамол Шукуров / предоставлена Parallel architects
Международный аграрный университет в Ташкенте
Фотогрфаия © Миркамол Шукуров / предоставлена Parallel architects
Международный аграрный университет в Ташкенте
Фотогрфаия © Миркамол Шукуров / предоставлена Parallel architects
Международный аграрный университет в Ташкенте
Фотогрфаия © Миркамол Шукуров / предоставлена Parallel architects
Международный аграрный университет в Ташкенте
Фотогрфаия © Миркамол Шукуров / предоставлена Parallel architects
Международный аграрный университет в Ташкенте
Фотогрфаия © Миркамол Шукуров / предоставлена Parallel architects
Международный аграрный университет в Ташкенте
Фотогрфаия © Миркамол Шукуров / предоставлена Parallel architects
Международный аграрный университет в Ташкенте
Фотогрфаия © Миркамол Шукуров / предоставлена Parallel architects
Международный аграрный университет в Ташкенте. Ковркинг
@ Parallel architects
Международный аграрный университет в Ташкенте. Ковркинг
@ Parallel architects
Международный аграрный университет в Ташкенте. Ковркинг
@ Parallel architects
Международный аграрный университет в Ташкенте. Ковркинг
@ Parallel architects
Международный аграрный университет в Ташкенте. Ковркинг
@ Parallel architects
Международный аграрный университет в Ташкенте. Ковркинг
@ Parallel architects
Международный аграрный университет в Ташкенте. Ковркинг
@ Parallel architects
Международный аграрный университет в Ташкенте. Ковркинг
@ Parallel architects
Международный аграрный университет в Ташкенте. Ковркинг
@ Parallel architects
Международный аграрный университет в Ташкенте. Ковркинг
@ Parallel architects
Международный аграрный университет в Ташкенте. Ковркинг
@ Parallel architects
Международный аграрный университет в Ташкенте. Ковркинг
@ Parallel architects
Международный аграрный университет в Ташкенте. Учебный корпус
Фотография @ Миркамол Шукуров / предоставлена Parallel architects
Международный аграрный университет в Ташкенте. Учебный корпус
Фотография @ Миркамол Шукуров / предоставлена Parallel architects
Международный аграрный университет в Ташкенте
@ Parallel architects
Международный аграрный университет в Ташкенте
@ Parallel architects
Международный аграрный университет в Ташкенте
@ Parallel architects
Международный аграрный университет в Ташкенте
@ Parallel architects
Международный аграрный университет в Ташкенте
@ Parallel architects
Международный аграрный университет в Ташкенте
@ Parallel architects
Международный аграрный университет в Ташкенте
@ Parallel architects
Международный аграрный университет в Ташкенте
@ Parallel architects
Международный аграрный университет в Ташкенте
@ Parallel architects
Международный аграрный университет в Ташкенте
@ Parallel architects

Избранные архитекторы:

  • Петер Цумтор
  • Сантьяго Калатрава
  • Дэвид Аджайе
  • Кэнго Кума
  • Питер Айзенман
  • Жан Нувель
  • Ричард Майер
  • Дэвид Чипперфильд
  • Николас Гримшо

Проект из каталога (случайный выбор)

Музей Нэдзу – реконструкция
Кэнго Кума, 2006 – 2009
Музей Нэдзу – реконструкция

Избранные постройки:

  • Флоридский политехнический университет – Корпус наук, инноваций и технологий
  • Башня Doha Tower
  • Жилой комплекс Via Verde
  • Музей современного искусства в Калькутте
  • Комплекс Faena District
  • Канадский национальный центр музыки – здание Studio Bell
  • Центр дизайна и искусств Аронофф
  • Европейский суд по правам человека
  • 80 Саут-Стрит

Зарубежные новости