RSS
Жилой комплекс Karlheinz Hora Hof
Фото © Hertha Hurnaus. Предоставлено querkraft architekten

Жилой комплекс Karlheinz Hora Hof


/ Karlheinz Hora Hof

информация:

querkraft architekten / Австрия
Жилой комплекс Karlheinz Hora Hof
Фото © Hertha Hurnaus. Предоставлено querkraft architekten

Архи.ру об этом объекте:

15.08.2024

Нина Фролова. Балконы на Дунае

Комплекс муниципального жилья в Вене по проекту querkraft architekten максимально использует длинный участок вдоль берега Дуная.

читать дальше
Жилой комплекс Karlheinz Hora Hof
Фото © Hertha Hurnaus. Предоставлено querkraft architekten
Жилой комплекс Karlheinz Hora Hof
Фото © Hertha Hurnaus. Предоставлено querkraft architekten
Жилой комплекс Karlheinz Hora Hof
Фото © Hertha Hurnaus. Предоставлено querkraft architekten
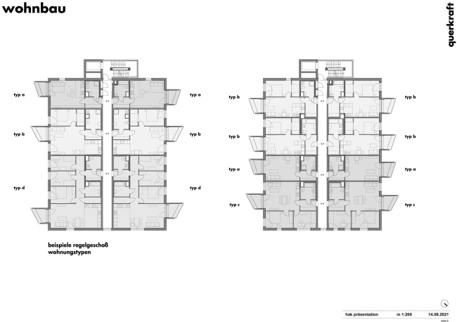
Жилой комплекс Karlheinz Hora Hof
© querkraft architekten
Жилой комплекс Karlheinz Hora Hof
© querkraft architekten
Жилой комплекс Karlheinz Hora Hof
© querkraft architekten
Жилой комплекс Karlheinz Hora Hof
© querkraft architekten
Жилой комплекс Karlheinz Hora Hof
© querkraft architekten
Жилой комплекс Karlheinz Hora Hof
© querkraft architekten
Жилой комплекс Karlheinz Hora Hof
© querkraft architekten

Избранные архитекторы:

  • Рафаэль Монео
  • Петер Цумтор
  • Тоёо Ито
  • Одиль Декк
  • Ренцо Пьяно
  • Николас Гримшо
  • Сантьяго Калатрава
  • Ричард Майер
  • Ричард Роджерс

Проект из каталога (случайный выбор)

Небоскреб Elad Properties
Даниэль Либескинд, 2007 – 2008
Небоскреб Elad Properties

Избранные постройки:

  • FABRICA – центр исследования коммуникации Benetton
  • Жилой комплекс Metal Shutter Houses
  • Парко Дора
  • План комплекса ЭКСПО-2015
  • Парк физической лаборатории MAX IV
  • Музей американского искусства Уитни – новое здание
  • Культурный центр Eemhuis
  • Комплекс Faena District
  • Филиал Государственного Эрмитажа на территории бывшего завода ЗИЛ

Зарубежные новости