Published on Archi.ru (https://archi.ru)

02.11.2022

The Multitone

Julia Tarabarina
Architect:
Anastasia Abasheva
Polina Voevodina
Sergey Trukhanov
Studio:
Ò+Ò Architects

The new interior of the Action Development headquarters can be regarded as an attempt to design the perfect “home” for the company – not just comfortable but broadcasting the values of modern development. It responds to the context, yet it is built on contrast, it is fresh but cozy, it is dynamic, yet it invites you to relax – everything of this coexists here quite harmoniously, probably because the architects found an appropriate place for each of the themes.

A year ago, we gave a detailed coverage of the business center in the 1st Zemelny Lane: a triangular volume with a white facade grid and grapevine pots installed into it became the gem of the Vagankovo area.

Business Center in the Zemelny Lane 1
Business Center in the Zemelny Lane 1
Copyright: Photograph © Dmitry Chebanenko / provided by UNK


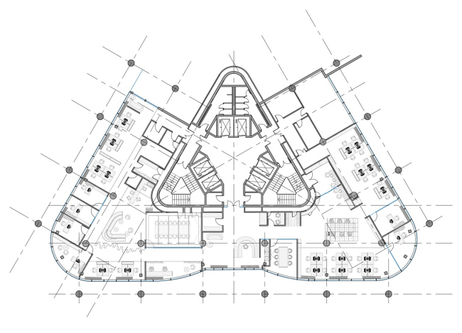
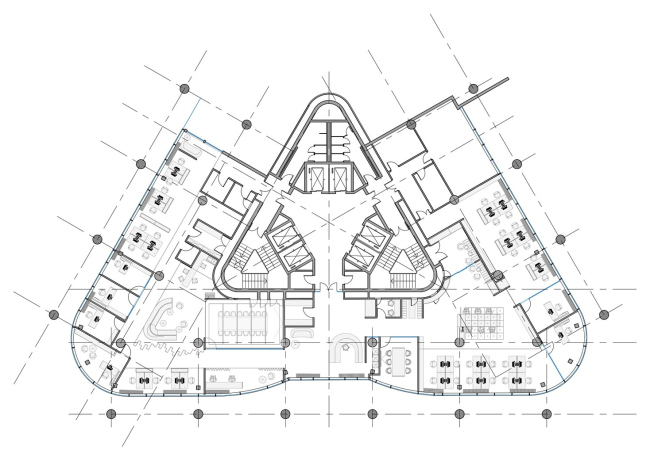
The interior of the headquarters of Action Development, the company that built a business center in the Zemelny Lane and is now managing it, was designed by T+T Architects led by Sergey Trukhanov. The project has just been completed. The office is situated on the third floor, occupying the whole of it: all the three entrances/exits of the triangular staircase-and-elevator hall- the communication cite of the building – lead to this office.

Action Development headquarters in the business center in the 1st Zemelny Lane
Action Development headquarters in the business center in the 1st Zemelny Lane
Copyright: © T+T Architects


The working and representative areas occupy about 2/3 of the floor- two rounded corners of the building. The corners are quite spacious, and the natural light shines through them. Thus, it was here that the two spatial and conceptual nuclei appeared here. These shoot off two parts of the headquarters, one of them, dedicated to working with data and media, being dominated by green color: cold, close to emerald, yet more reserved, on the velvety side. The other “half”, designed for communication and including a coffee point, a public lounge, and the largest meeting room – is dominated by wine-red. Even one of the columns – slender and essentially auxiliary, situated within the rounding – is painted red.

Action Development headquarters in the business center in the 1st Zemelny Lane Copyright: Photograph © Ilia Ivanov / provided by T+T architects
Action Development headquarters in the business center in the 1st Zemelny Lane
Copyright: Photograph © Ilia Ivanov / provided by T+T architects
Action Development headquarters in the business center in the 1st Zemelny Lane Copyright: Photograph © Ilia Ivanov / provided by T+T architects
Action Development headquarters in the business center in the 1st Zemelny Lane
Copyright: Photograph © Ilia Ivanov / provided by T+T architects


Action Development headquarters in the business center in the 1st Zemelny Lane Copyright: Photograph © Ilia Ivanov / provided by T+T architects
Action Development headquarters in the business center in the 1st Zemelny Lane
Copyright: Photograph © Ilia Ivanov / provided by T+T architects
Action Development headquarters in the business center in the 1st Zemelny Lane Copyright: Photograph © Ilia Ivanov / provided by T+T architects
Action Development headquarters in the business center in the 1st Zemelny Lane
Copyright: Photograph © Ilia Ivanov / provided by T+T architects


Action Development headquarters in the business center in the 1st Zemelny Lane
Action Development headquarters in the business center in the 1st Zemelny Lane
Copyright: © T+T Architects


Action Development headquarters in the business center in the 1st Zemelny Lane
Action Development headquarters in the business center in the 1st Zemelny Lane
Copyright: © T+T Architects


The distribution of shades of color and the “color play” are, of course, not unconditional: there are green plants in the red zone, and the green zone has a meeting room with red chairs and a red hanging ceiling in it. The green chairs migrate into the red zone, and the red ones onto green. And the colors are rather here for orientation, and not for complete immersion.

Action Development headquarters in the business center in the 1st Zemelny Lane Copyright: Photograph © Ilia Ivanov / provided by T+T architects
Action Development headquarters in the business center in the 1st Zemelny Lane
Copyright: Photograph © Ilia Ivanov / provided by T+T architects
Action Development headquarters in the business center in the 1st Zemelny Lane Copyright: Photograph © Ilia Ivanov / provided by T+T architects
Action Development headquarters in the business center in the 1st Zemelny Lane
Copyright: Photograph © Ilia Ivanov / provided by T+T architects
Action Development headquarters in the business center in the 1st Zemelny Lane Copyright: Photograph © Ilia Ivanov / provided by T+T architects
Action Development headquarters in the business center in the 1st Zemelny Lane
Copyright: Photograph © Ilia Ivanov / provided by T+T architects
Action Development headquarters in the business center in the 1st Zemelny Lane Copyright: Photograph © Ilia Ivanov / provided by T+T architects
Action Development headquarters in the business center in the 1st Zemelny Lane
Copyright: Photograph © Ilia Ivanov / provided by T+T architects
Action Development headquarters in the business center in the 1st Zemelny Lane Copyright: Photograph © Ilia Ivanov / provided by T+T architects
Action Development headquarters in the business center in the 1st Zemelny Lane
Copyright: Photograph © Ilia Ivanov / provided by T+T architects


A peculiar “reconciliation” between the two color keys takes place in the main point of entrance, a horseshoe-shaped reception desk, situated almost in the center of the eastern wall, above the main entrance to the building. The desk is white; the ceiling fragment above it is also white, the wall next to it and the sofa are gray – but the basis, the horseshoe itself with a surface of artificial stone, is backlit, and the color keeps changing: white-red-green-blue, with transitions appearing at some points.

Action Development headquarters in the business center in the 1st Zemelny Lane
Action Development headquarters in the business center in the 1st Zemelny Lane
Copyright: Photograph © Ilia Ivanov / provided by T+T architects


The iridescence of the backlight is designed, of course, to entertain and delight the newcomer: to entertain with the dynamics of the shift, and to delight with technology. The spots of color at the entrance to the office seem to be a reflection of cartoons from the main lobby of the building itself.

At the same time, the color-and-light installation “reconciles” the two prevailing tones of the interior: red to the right of the entrance, green to the left… And then – behold – you see a blue glow.

Action Development headquarters in the business center in the 1st Zemelny Lane
Action Development headquarters in the business center in the 1st Zemelny Lane
Copyright: Photograph © Ilia Ivanov / provided by T+T architects


Thus, the interior, teetering on the verge of “developer-like” seriousness, modern diversity and flexible transformation, which uses natural materials and green plants, and makes the most of the ambient light that streams in through the glass walls, becomes a vivid example of progressive approach to designing office space, and, more broadly, of professionalism and high-quality. These two are definitely present here.

Action Development headquarters in the business center in the 1st Zemelny Lane Copyright: Photograph © Ilia Ivanov / provided by T+T architects
Action Development headquarters in the business center in the 1st Zemelny Lane
Copyright: Photograph © Ilia Ivanov / provided by T+T architects
Action Development headquarters in the business center in the 1st Zemelny Lane Copyright: Photograph © Ilia Ivanov / provided by T+T architects
Action Development headquarters in the business center in the 1st Zemelny Lane
Copyright: Photograph © Ilia Ivanov / provided by T+T architects
Action Development headquarters in the business center in the 1st Zemelny Lane Copyright: Photograph © Ilia Ivanov / provided by T+T architects
Action Development headquarters in the business center in the 1st Zemelny Lane
Copyright: Photograph © Ilia Ivanov / provided by T+T architects
Action Development headquarters in the business center in the 1st Zemelny Lane Copyright: Photograph © Ilia Ivanov / provided by T+T architects
Action Development headquarters in the business center in the 1st Zemelny Lane
Copyright: Photograph © Ilia Ivanov / provided by T+T architects
Action Development headquarters in the business center in the 1st Zemelny Lane Copyright: Photograph © Ilia Ivanov / provided by T+T architects
Action Development headquarters in the business center in the 1st Zemelny Lane
Copyright: Photograph © Ilia Ivanov / provided by T+T architects


The impression of flexibility is further enhanced by: a combination of formal offices and open space areas, the presence of sofas and other spots where one can work informally, i.e. not behind an office desk.

Action Development headquarters in the business center in the 1st Zemelny Lane
Action Development headquarters in the business center in the 1st Zemelny Lane
Copyright: Photograph © Ilia Ivanov / provided by T+T architects


The main driver of this flexibility is the “soft circular zone” in the center of the south sector. According to the architects, it can also be combined with the large meeting room – for some events, all of the company employees can gather here.

Axonometric view of the large meeting room (left), public zones next to it (right). Action Development headquarters in the business center in the 1st Zemelny Lane
Axonometric view of the large meeting room (left), public zones next to it (right). Action Development headquarters in the business center in the 1st Zemelny Lane
Copyright: © T+T Architects


In addition to such correct solutions, which are nonetheless the basis for a good interior designer, one can also see here a few specific techniques that give the interior a face of its own, not to say “flavor”. Or, maybe, even introduce some contextual twist.

Let’s take the large meeting room in the south part, for example. Its ceiling with milky-white spotlights is designed as a semblance of sawtooth skylights. First, this is rather unusual and attracts attention – simply as an unusual shape. Second, however, those who are knowledgeable, may remember about the vicinity of the repair shops of the Moscow metro – these were built in the 1950’s and they occupy a large swath of land east of the business center in the 1st Zemelny Lane. If not with sawtooth skylights, they are equipped with industrial clerestories that look a lot like them. One way or another, the ceiling of the meeting room reminds us in a subtle way that the business center is still surrounded with high-quality industrial architecture. It strikes a romantic note without really insisting upon it.

Action Development headquarters in the business center in the 1st Zemelny Lane Copyright: Photograph © Ilia Ivanov / provided by T+T architects
Action Development headquarters in the business center in the 1st Zemelny Lane
Copyright: Photograph © Ilia Ivanov / provided by T+T architects
Action Development headquarters in the business center in the 1st Zemelny Lane Copyright: Photograph © Ilia Ivanov / provided by T+T architects
Action Development headquarters in the business center in the 1st Zemelny Lane
Copyright: Photograph © Ilia Ivanov / provided by T+T architects
Action Development headquarters in the business center in the 1st Zemelny Lane Copyright: Photograph © Ilia Ivanov / provided by T+T architects
Action Development headquarters in the business center in the 1st Zemelny Lane
Copyright: Photograph © Ilia Ivanov / provided by T+T architects


One can also easily notice – in addition to the consonance of the color tints of the reception at the entrance to the office and the multi–domain spheres at the entrance to the building – that red and blue-green colors are distributed “according to the countries of the world”, a warm shade in the southern, and cool in the northern part of the interior. One can also notice that the shades of color, albeit indirectly, resonate with the color of the metal in the elevator hall, where, we are reminding you, the walls are covered with wavy titanium with a crimson, dark green, and indigo surfaces.

Business Center in the Zemelny Lane 1
Business Center in the Zemelny Lane 1
Copyright: Photograph © Aleksey Gordienko


The architects do not forget, however, where they are, and they multilevel ties with the building itself, and even (if we believe in sawtooth skylights) its surroundings. Even the plants inside echo those that are there on the facade balconies.

Some air of integrity and even austerity is given to the interior by wooden panels with a vertical rhythm: they have a different tone at different spots, varying from natural wooden yellow to white and grayish green – the pattern, however, stays the same, and we sense unity and diversity at the same time.

Action Development headquarters in the business center in the 1st Zemelny Lane Copyright: Photograph © Ilia Ivanov / provided by T+T architects
Action Development headquarters in the business center in the 1st Zemelny Lane
Copyright: Photograph © Ilia Ivanov / provided by T+T architects
Action Development headquarters in the business center in the 1st Zemelny Lane Copyright: Photograph © Ilia Ivanov / provided by T+T architects
Action Development headquarters in the business center in the 1st Zemelny Lane
Copyright: Photograph © Ilia Ivanov / provided by T+T architects


Some extra freshness is also added by black ceilings and columns of exposed concrete. Both, however, are set off by solutions from, let’s say, “comfort range”. Nowadays, it has been universally recognized that ceilings with exposed communications create “air” overhead, visually increase the height of the premises and strike an informal chord on the emotional level. Meanwhile, the “ordinary” hemmed-in white office ceilings themselves are quite cozy. Thus, the authors combine the best of “both worlds”: they use the white ceilings to create “islands” and “shores”, neatly leafing then between black depressions, using the strong points of both.

Action Development headquarters in the business center in the 1st Zemelny Lane Copyright: Photograph © Ilia Ivanov / provided by T+T architects
Action Development headquarters in the business center in the 1st Zemelny Lane
Copyright: Photograph © Ilia Ivanov / provided by T+T architects
Action Development headquarters in the business center in the 1st Zemelny Lane Copyright: Photograph © Ilia Ivanov / provided by T+T architects
Action Development headquarters in the business center in the 1st Zemelny Lane
Copyright: Photograph © Ilia Ivanov / provided by T+T architects


The architects cleared the columns of the building’s framework down to the concrete surface in order to expose the authentic concrete. Not the sleek exposed-concrete kind, but the real kind, with all strokes and caverns. The columns definitely serve as sculptures – which is certainly enhanced by their circular shape. They sometimes accentuate a coffee point, sometimes hide behind a multitude of cache pots, sometimes are encased in a glass casing, and sometimes they are just “there” in space.

Action Development headquarters in the business center in the 1st Zemelny Lane
Action Development headquarters in the business center in the 1st Zemelny Lane
Copyright: Photograph © Ilia Ivanov / provided by T+T architects


Probably, it will not be an exaggeration to conclude that this interior is based upon a delicate contrast, and on combining opposite colors: red and green, black and white; textures: high-gloss and satin, neatly lined and deliberately imperfect and natural; ideas from “literature-like” to plastique ones. However, this abundance of “everything” does not create either an overwhelming feeling or a feeling of sharp transitions – maybe because of natural light, reserved colors, and spatial rests, or because of carefully orchestrated combinations, this interior rather brings you up instead of bringing you down. And this is exactly what you need for productive work, particularly in such challenging area as development that specializes in selling business property.
The kitchen on the left and a davenport corner on the right. Action Development headquarters in the business center in the 1st Zemelny Lane Copyright: © T+T Architects
The kitchen on the left and a davenport corner on the right. Action Development headquarters in the business center in the 1st Zemelny Lane
Copyright: © T+T Architects
Action Development headquarters in the business center in the 1st Zemelny Lane Copyright: © T+T Architects
Action Development headquarters in the business center in the 1st Zemelny Lane
Copyright: © T+T Architects
The meeting roomm with a red ceiling (left) and the reception desk (right). Action Development headquarters in the business center in the 1st Zemelny Lane Copyright: © T+T Architects
The meeting roomm with a red ceiling (left) and the reception desk (right). Action Development headquarters in the business center in the 1st Zemelny Lane
Copyright: © T+T Architects