Published on Archi.ru (https://archi.ru)

11.12.2017

​The Discreet Charm of the Bourgeoisie

Lilya Aronova
Studio:
ABV Group

Remodeling the building of the former Sytin printing house on the Pyatnitskaya Street into a modern housing complex, Nikita Biryukov and his team fought a losing battle against the technical specifications – and, instead of the red-brick industrial character of the building, they accentuated the bourgeois nature of the building’s original Art Nouveau style.

Contest project of renovating the First Exemplary Printing Works. Building 1 © ABV Group
Contest project of renovating the First Exemplary Printing Works. Building 1 © ABV Group

The starting point for the authors of the project that was submitted to the competition by the architectural firm ABV was the epoch when the historical buildings of the printing house were erected – at the brink of the XIX-XX centuries. The forming of the bourgeoisie as a class and new artistic trends closely connected to this process, chief among them being the birth of the Art Nouveau style, these processes, abruptly stopped by the well-known historical events, became the basis of Nikita Biryukov’s concept. It is the bourgeois character (in the best sense of the term) of this heritage site that Nikita Biryukov proposed to make the “visiting card” of the complex. “This is a complex for confident people” – in this nutshell the authors define the target group for their project.

Contest project of renovating the First Exemplary Printing Works. The current situation. The main Sytin building. Building 1, View from the Malaya Ordynka Street (before the reconstruction) © ABV Group
Contest project of renovating the First Exemplary Printing Works. The current situation. The main Sytin building. Building 1, View from the Malaya Ordynka Street (before the reconstruction) © ABV Group


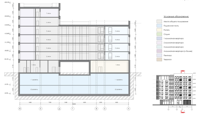
The architects saw their mission first of all in restoring the historical silhouette of the main building of the printing house. The main “evil” came in the form of the soviet-time fifth-floor buildup that leveled out the line of the façade, thus ruining the architect’s original idea – according to the ABV project, this fifth floor will be dismantled, and in its stead the building will get a mansard which, being recessed deeper into the building, will not violate its characteristic silhouette. Instead of one “soviet” floor, the authors were able to get a yield of two full-fledged ones, while, sinking the buildup of the top-floor apartments, they got an entrance to the terraces. The façade itself is designed in exquisite beige-and-gray tones, decorated with delicately sculptured elements, while the windows of the first floor are lowered virtually down to the ground in order to place their the showcases of the stores – naturally, the expensive and prestigious ones, the kind that should be there in a respectable bourgeois complex.

Contest project of renovating the First Exemplary Printing Works. Building 1. Renovation plan © ABV Group
Contest project of renovating the First Exemplary Printing Works. Building 1. Renovation plan © ABV Group


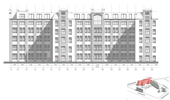
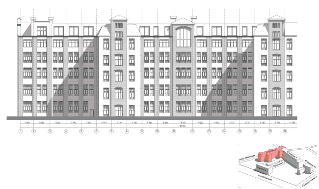
Contest project of renovating the First Exemplary Printing Works. Building 1. The main facade © ABV Group
Contest project of renovating the First Exemplary Printing Works. Building 1. The main facade © ABV Group


Contest project of renovating the First Exemplary Printing Works. Building 1 © ABV Group
Contest project of renovating the First Exemplary Printing Works. Building 1 © ABV Group


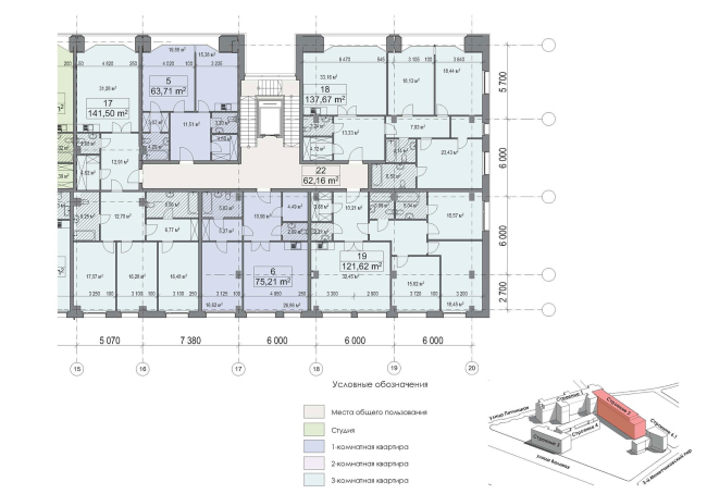
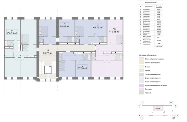
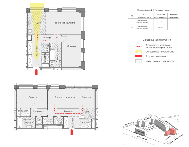
As far as developing the range of apartment configurations was concerned, it turned out to be a challenging brain teaser for the authors of the project. Trying to plan out the apartments in accordance with the technical specifications, they were confronted with the fact that these specifications were in conflict with the existing structure of the building: the space between the bearing columns, the ceiling vaults, and the arrangement of the windows – which, basically, came as no surprise, because what Erichson and Shukhov originally designed was not a housing complex but a production facility. In the course of the design work it turned out that the partitions would bump into the window sashes, the windows would “stick” to the walls, the vaults would break at most unexpected points, and, generally, the proportions of the rooms left much to be desired. Since the building itself is a heritage site, and making any changes to its walls was out of the question, it left only one way out – meaning, sacrificing the specifications. The authors of the project offered the client their own version of planning – with rooms of correct proportions, efficient arrangement of windows, plus, as a bonus, the attic level that the architects were able to “cut out” on the second floor – and, luckily, the client agreed with their reasoning. “What we did was turn the print house into a residential complex – summarized one of the authors of the project Valentin Ostroumov – Without downgrading their quality or damaging the heritage site”.

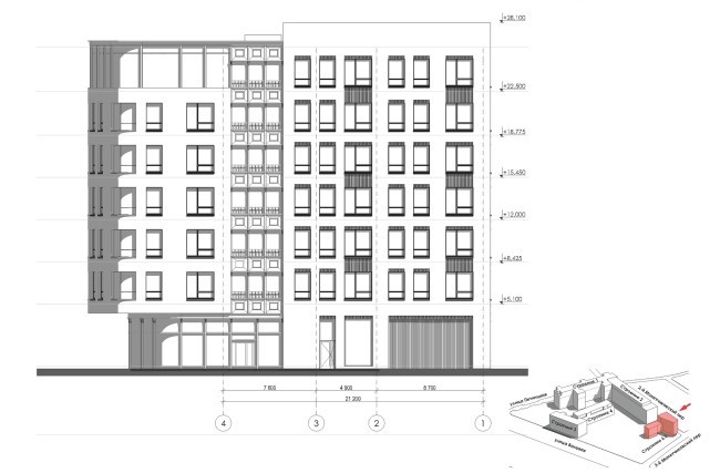
Contest project of renovating the First Exemplary Printing Works. Building 1. Longitudinal section view © ABV Group
Contest project of renovating the First Exemplary Printing Works. Building 1. Longitudinal section view © ABV Group


Contest project of renovating the First Exemplary Printing Works. Building 1. Longitudinal section view (Version 2) © ABV Group
Contest project of renovating the First Exemplary Printing Works. Building 1. Longitudinal section view (Version 2) © ABV Group


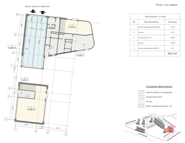
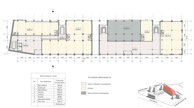
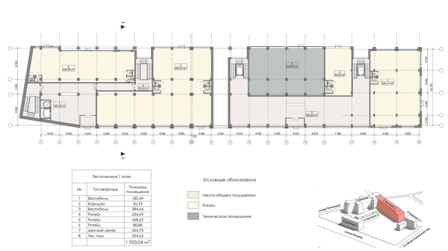
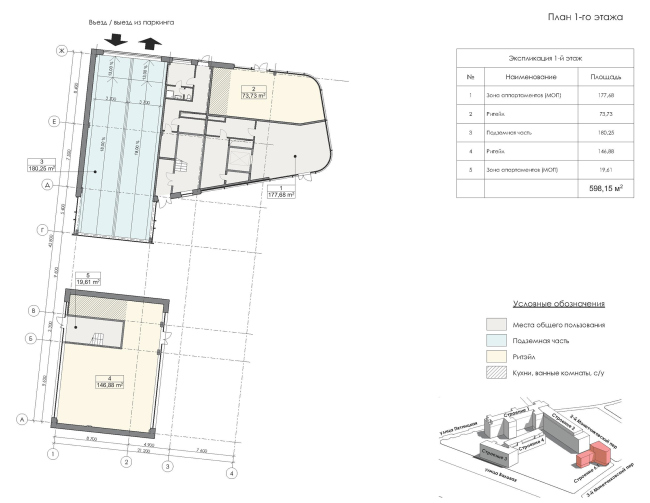
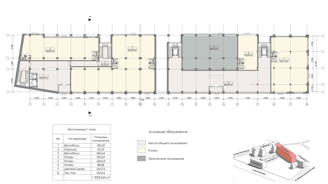
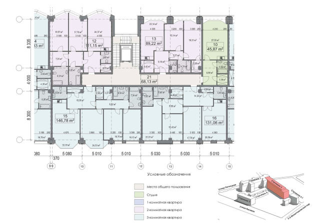
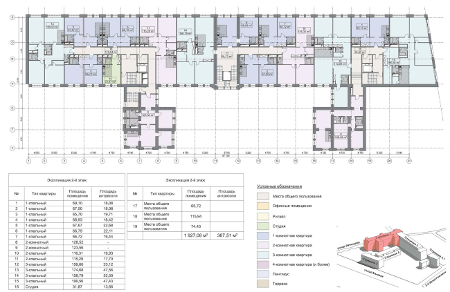
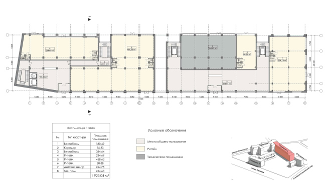
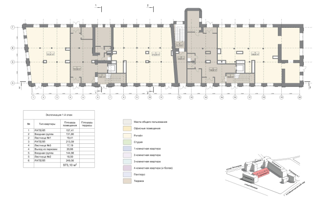
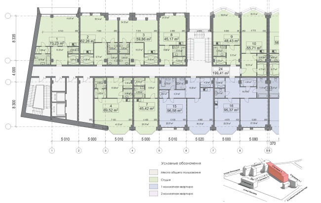
Contest project of renovating the First Exemplary Printing Works. Building 1. Plan of the 1st floor © ABV Group
Contest project of renovating the First Exemplary Printing Works. Building 1. Plan of the 1st floor © ABV Group


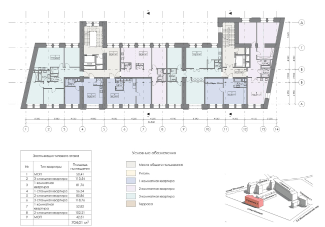
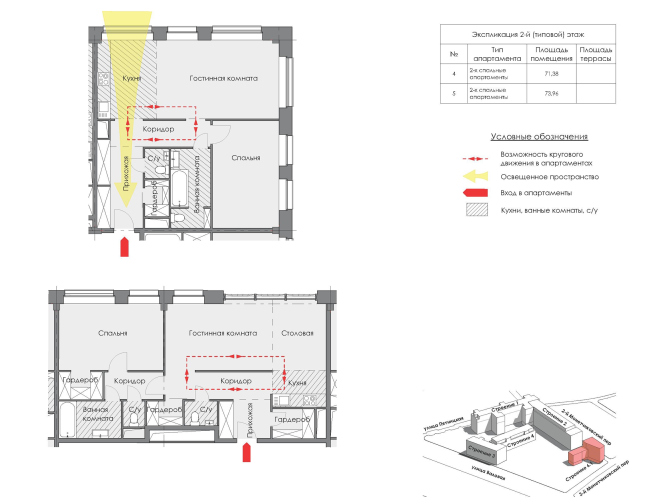
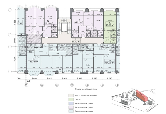
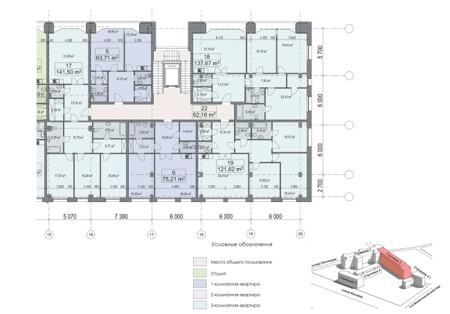
Contest project of renovating the First Exemplary Printing Works. Building 1. Plan of the 2nd floor © ABV Group
Contest project of renovating the First Exemplary Printing Works. Building 1. Plan of the 2nd floor © ABV Group


Contest project of renovating the First Exemplary Printing Works. Building 1. Plan of the 2nd floor (Version 2) © ABV Group
Contest project of renovating the First Exemplary Printing Works. Building 1. Plan of the 2nd floor (Version 2) © ABV Group


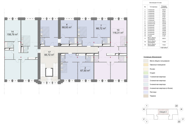
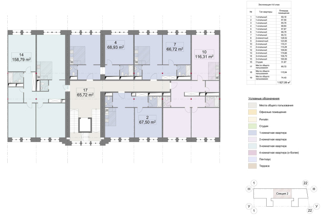
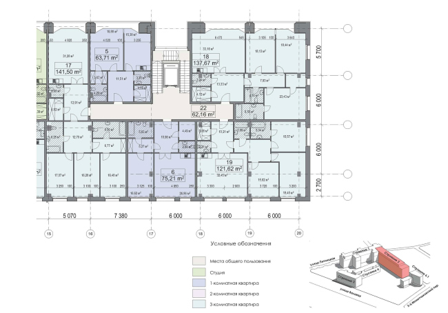
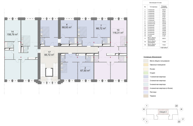
In all the other building units the architects did not have to step away from the technical specifications, although in each case the task was different and challenging. Unit 2, stretching along the 2nd Monetchikovsky Alley, is distinct not only for its considerable length but also for an unbelievable depth by housing construction standards – over twenty meters – which, again, poses a formidable challenge for planning apartments which, if the standard approach is used, end up being of a huge square footage. The architects were able to solve both problems simultaneously at the expense of the façade design solutions – we shall remind you at this point that, according to the specifications, only the basic framework was to be kept intact, while all the other structures were to be erected anew. Sunken into the depth of the façade, the elevator shafts divided the volume of the building into four parts, so unlike one another that a casual observer could easily mistake them for four independent compact buildings standing in a row. The difference lies in both the materials used – coating stone, ceramic tiles, then stone again – and in the colors, as well as in the very plastique of the buildings: squares of the recessed windows with French balconies alternate with the “bellows” of the triangular bay windows. Getting back to the diversity of the apartments issue: such “active” façades, biting deep into the flesh of the building, allowed the architects to bring the apartments to more or less reasonable square footage.

Contest project of renovating the First Exemplary Printing Works. Building 2 © ABV Group
Contest project of renovating the First Exemplary Printing Works. Building 2 © ABV Group


Contest project of renovating the First Exemplary Printing Works. Building 2 © ABV Group
Contest project of renovating the First Exemplary Printing Works. Building 2 © ABV Group


Contest project of renovating the First Exemplary Printing Works. Building 2 © ABV Group
Contest project of renovating the First Exemplary Printing Works. Building 2 © ABV Group


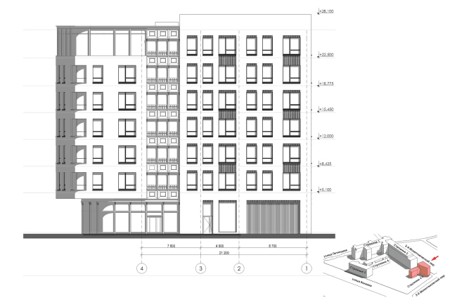
Contest project of renovating the First Exemplary Printing Works. Facade along the 2nd Monetchikovsky Alley. Building 2 © ABV Group
Contest project of renovating the First Exemplary Printing Works. Facade along the 2nd Monetchikovsky Alley. Building 2 © ABV Group


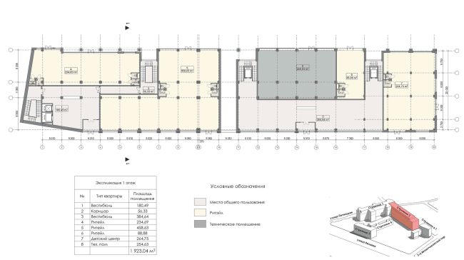
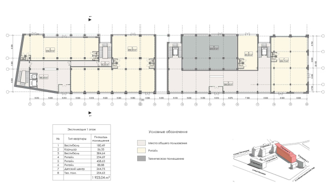
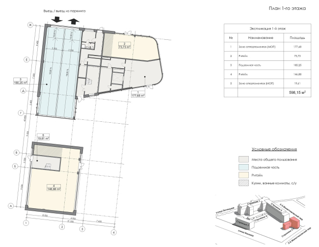
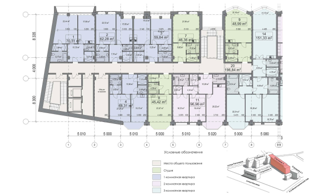
Contest project of renovating the First Exemplary Printing Works. Building 2. Plan of the first floor © ABV Group
Contest project of renovating the First Exemplary Printing Works. Building 2. Plan of the first floor © ABV Group


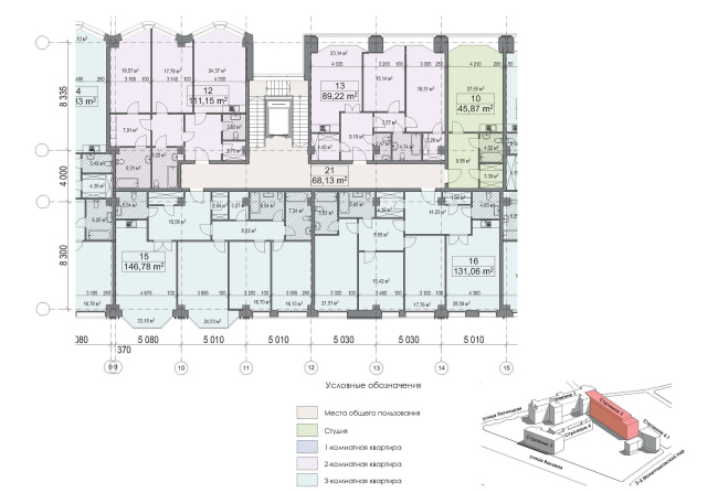
Contest project of renovating the First Exemplary Printing Works. Building 2. Plan of the standard floor. Vesrion 2 © ABV Group
Contest project of renovating the First Exemplary Printing Works. Building 2. Plan of the standard floor. Vesrion 2 © ABV Group


Yet another building unit of the printing house that faces the Garden Ring never tried to compete with the main building in terms of splendor but is nonetheless elegant and harmonious in its reserved appearance. The authors of the project stress its “discreet charm” by clearing the gray mother-of-pearl façade with an odd inclusion of beige, accentuating the decorative elements, characteristic for Art-Nouveau and again pushing the mansard inwards in order to avoid spoiling the exquisite silhouette of the attics.

Contest project of renovating the First Exemplary Printing Works. Building 3. The current situation © ABV Group
Contest project of renovating the First Exemplary Printing Works. Building 3. The current situation © ABV Group


Contest project of renovating the First Exemplary Printing Works. Building 3. The project proposal © ABV Group
Contest project of renovating the First Exemplary Printing Works. Building 3. The project proposal © ABV Group


Contest project of renovating the First Exemplary Printing Works. Building 3 © ABV Group
Contest project of renovating the First Exemplary Printing Works. Building 3 © ABV Group


Contest project of renovating the First Exemplary Printing Works. Building 3 © ABV Group
Contest project of renovating the First Exemplary Printing Works. Building 3 © ABV Group


Contest project of renovating the First Exemplary Printing Works. Building 3. Sketch. Version 2 © ABV Group
Contest project of renovating the First Exemplary Printing Works. Building 3. Sketch. Version 2 © ABV Group


The only red-brick building in the ABV project is the former hostel for the workers of the Sytin printing house that stands inside the yard. In this instance, the architects restore the decorative brickwork, and as for the top level, where the number of floors varies today from three to four, the architects level it out by using that same brick mansard with terraces. Due to the fact that, even with its buildup, this unit is the lowest in the complex, the authors of the project proposed to landscape the roof with plants, thus making it a part of the yard, adding extra beauty to the views commanded by the windows of the upper, most prestigious, floors of the surrounding houses. As for the yard, the architects are planning to put a lot of greenery into it; the intricate arabesques of flowerbeds and trails seem to be meant to soften some certain brutality of the industrial architecture of the former printing house.

Contest project of renovating the First Exemplary Printing Works. Building 4 © ABV Group
Contest project of renovating the First Exemplary Printing Works. Building 4 © ABV Group


Contest project of renovating the First Exemplary Printing Works. Building 4 © ABV Group
Contest project of renovating the First Exemplary Printing Works. Building 4 © ABV Group


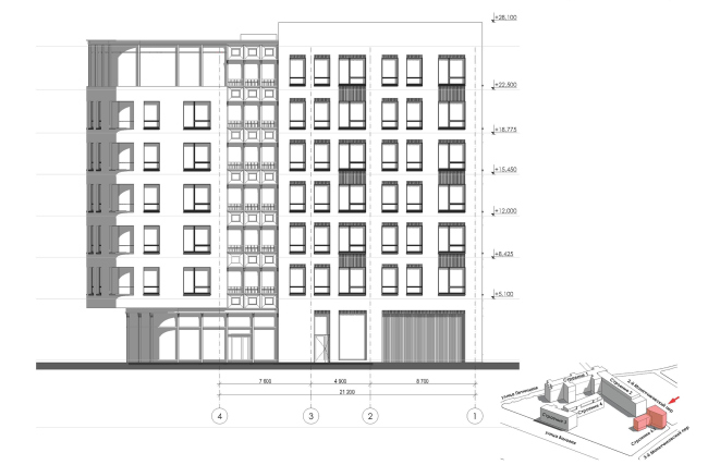
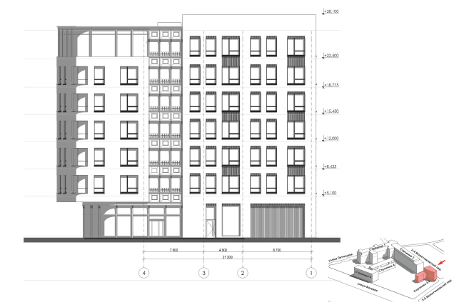
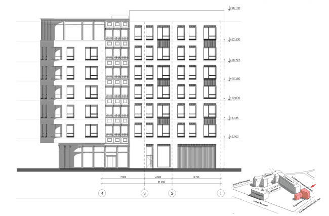
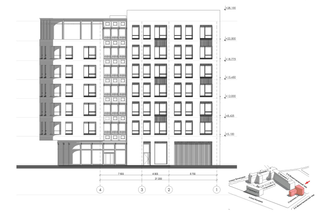
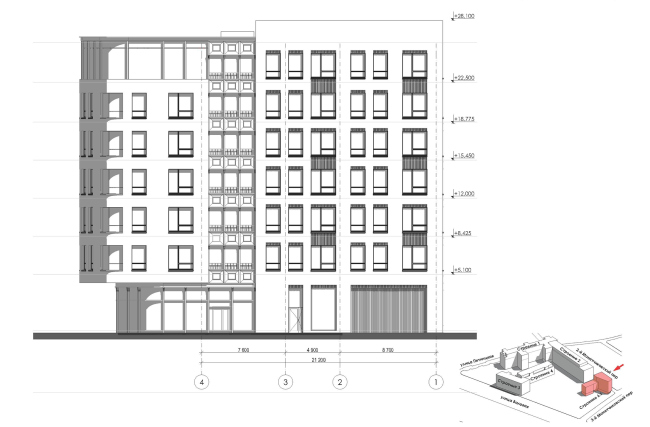
Contest project of renovating the First Exemplary Printing Works. Building 4. The east facade © ABV Group
Contest project of renovating the First Exemplary Printing Works. Building 4. The east facade © ABV Group


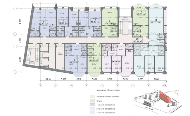
Incidentally, as for the last building, the one that is in construction at the crossing of the Monetchikovsky alleys, the authors of the project also decided to design it based on some certain stylistic opposition. “I would say that it is more ladylike – Valentin Ostroumov comments – All the other buildings around it are prominently masculine, and we decided to make this specific building more on the feminine side”. Squeezed from all sides by the vice of insolation regulations, in this particular instance the authors of the project could only express themselves in the façade design: the building got a coating of light-colored bricks, vertically crossed by a dark strip of French windows grouped in threes – any woman knows that a vertical stripe makes you look thinner! – and, quite unexpectedly, colorful decorative inserts just below the mansard’s roof which refer us to the luxurious ornamentalism of the Moscow Art-Nouveau, this closing a “stylistic loop” of the architecture of the former Sytin printing house.
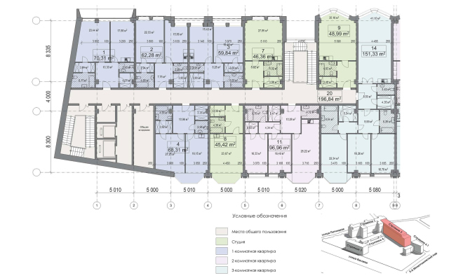
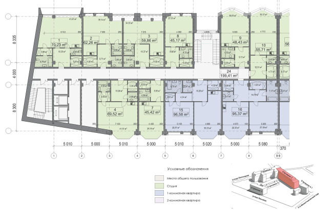
Contest project of renovating the First Exemplary Printing Works. Building 6. Facade fragment © ABV Group
Contest project of renovating the First Exemplary Printing Works. Building 6. Facade fragment © ABV Group
Contest project of renovating the First Exemplary Printing Works. Building 6 © ABV Group
Contest project of renovating the First Exemplary Printing Works. Building 6 © ABV Group
Contest project of renovating the First Exemplary Printing Works. Facade along the 2nd Monetchikovsky Alley. Building 6 © ABV Group
Contest project of renovating the First Exemplary Printing Works. Facade along the 2nd Monetchikovsky Alley. Building 6 © ABV Group
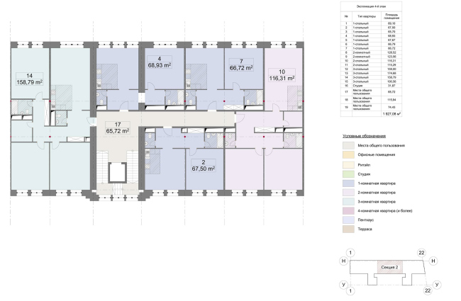
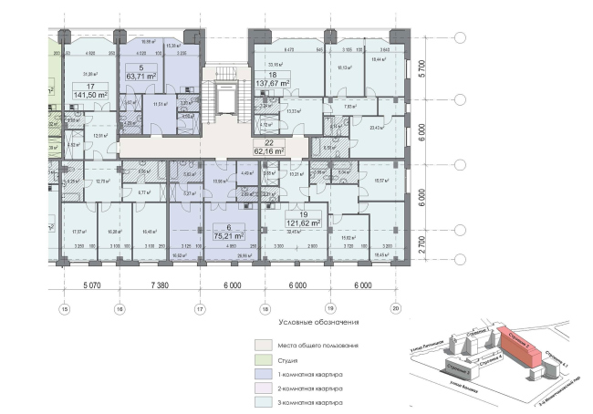
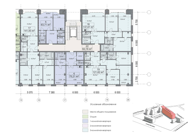
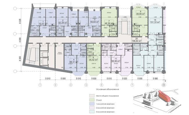
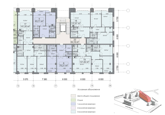
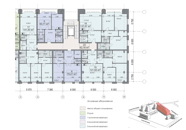
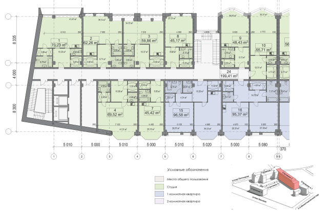
Contest project of renovating the First Exemplary Printing Works. Building 6. Plan of the floors 2-5 (standard) © ABV Group
Contest project of renovating the First Exemplary Printing Works. Building 6. Plan of the floors 2-5 (standard) © ABV Group
Contest project of renovating the First Exemplary Printing Works. Feedstocks and reference materials. Location plan © ABV Group
Contest project of renovating the First Exemplary Printing Works. Feedstocks and reference materials. Location plan © ABV Group
Contest project of renovating the First Exemplary Printing Works. Model of the complex © ABV Group
Contest project of renovating the First Exemplary Printing Works. Model of the complex © ABV Group
Contest project of renovating the First Exemplary Printing Works. Feedstocks and reference materials. Plan © ABV Group
Contest project of renovating the First Exemplary Printing Works. Feedstocks and reference materials. Plan © ABV Group
Contest project of renovating the First Exemplary Printing Works. Feedstocks and reference materials. Insolation plan. Checkup © ABV Group
Contest project of renovating the First Exemplary Printing Works. Feedstocks and reference materials. Insolation plan. Checkup © ABV Group
Contest project of renovating the First Exemplary Printing Works. Building 1. The current situation © ABV Group
Contest project of renovating the First Exemplary Printing Works. Building 1. The current situation © ABV Group
Contest project of renovating the First Exemplary Printing Works. Building 1. The yard facade © ABV Group
Contest project of renovating the First Exemplary Printing Works. Building 1. The yard facade © ABV Group
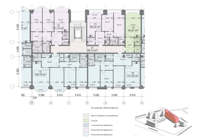
Contest project of renovating the First Exemplary Printing Works. Building 1. Plan of the 3rd and 4th floors (Version 2) © ABV Group
Contest project of renovating the First Exemplary Printing Works. Building 1. Plan of the 3rd and 4th floors (Version 2) © ABV Group
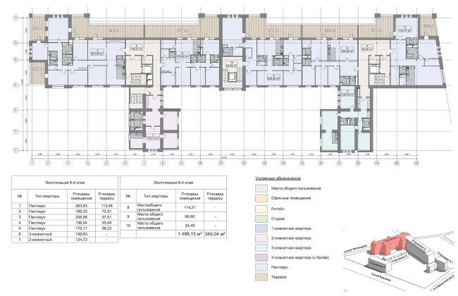
Contest project of renovating the First Exemplary Printing Works. Building 1. Plan of the 5th floor © ABV Group
Contest project of renovating the First Exemplary Printing Works. Building 1. Plan of the 5th floor © ABV Group
Contest project of renovating the First Exemplary Printing Works. Building 1. Plan of the 6th floor © ABV Group
Contest project of renovating the First Exemplary Printing Works. Building 1. Plan of the 6th floor © ABV Group
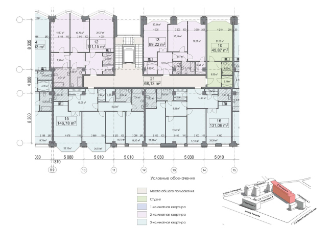
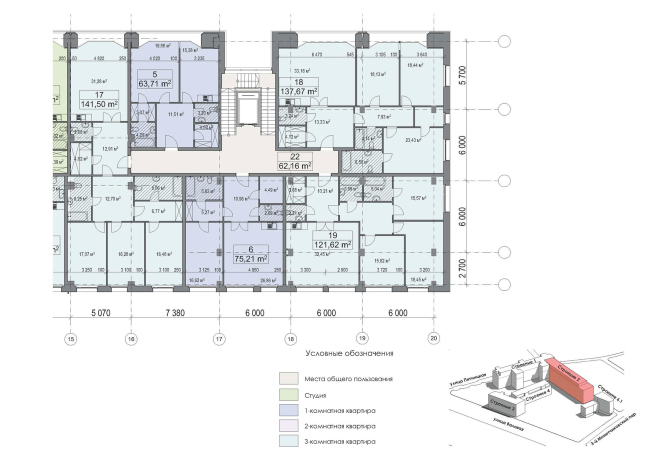
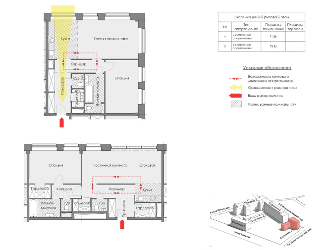
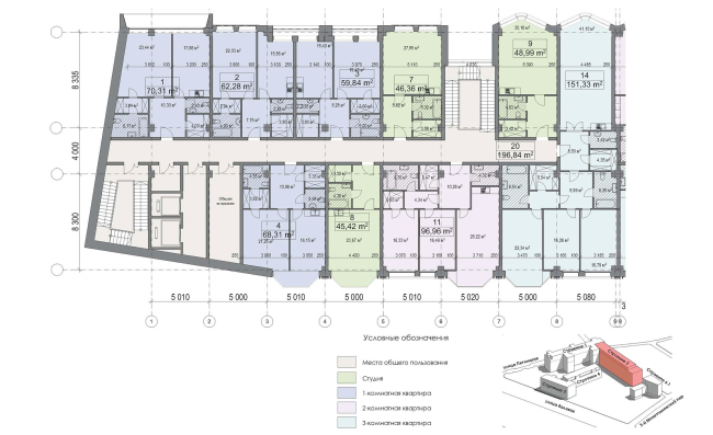
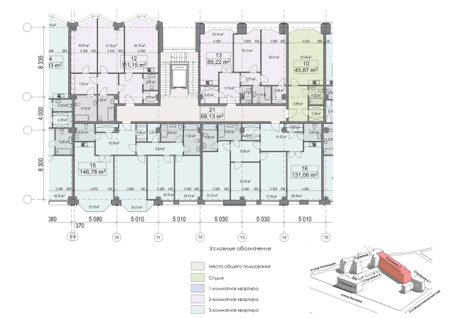
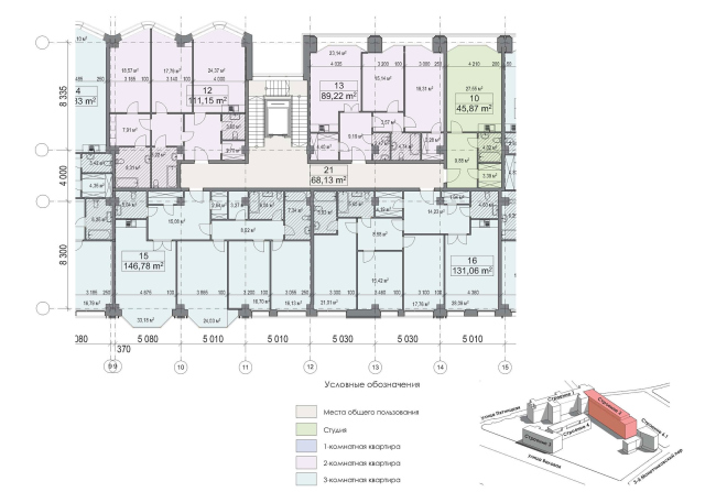
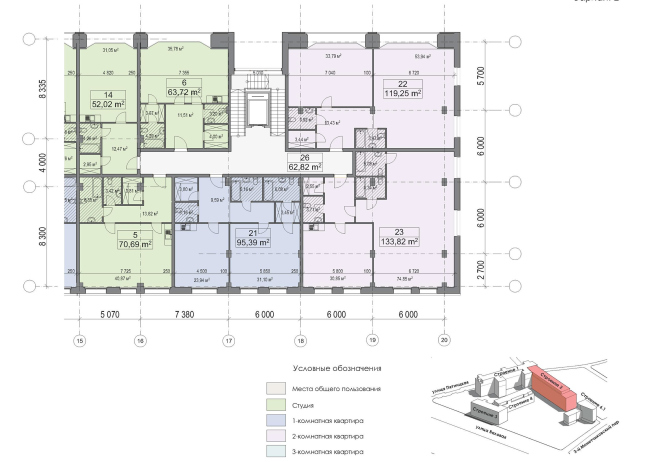
Contest project of renovating the First Exemplary Printing Works. Building 1. Plan of the 2nd section © ABV Group
Contest project of renovating the First Exemplary Printing Works. Building 1. Plan of the 2nd section © ABV Group
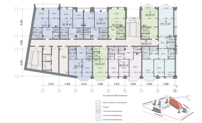
Contest project of renovating the First Exemplary Printing Works. Building 1. Plan of the 1st section © ABV Group
Contest project of renovating the First Exemplary Printing Works. Building 1. Plan of the 1st section © ABV Group
Contest project of renovating the First Exemplary Printing Works. Building 1. Plan of the 3rd section © ABV Group
Contest project of renovating the First Exemplary Printing Works. Building 1. Plan of the 3rd section © ABV Group
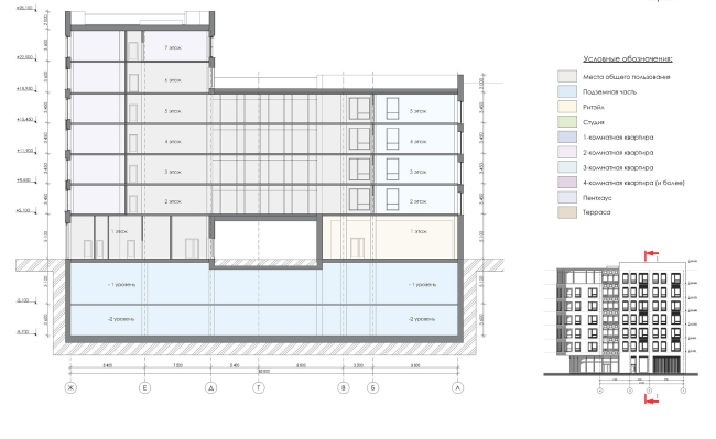
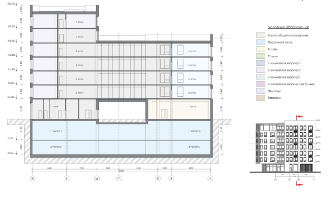
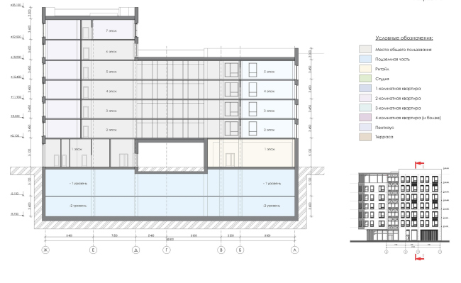
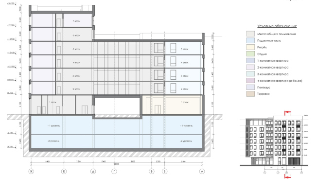
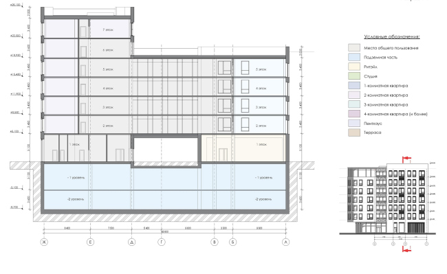
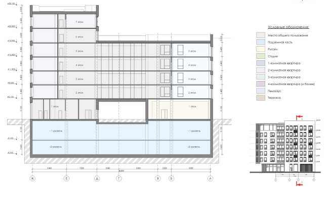
Contest project of renovating the First Exemplary Printing Works. Building 1. Section view © ABV Group
Contest project of renovating the First Exemplary Printing Works. Building 1. Section view © ABV Group
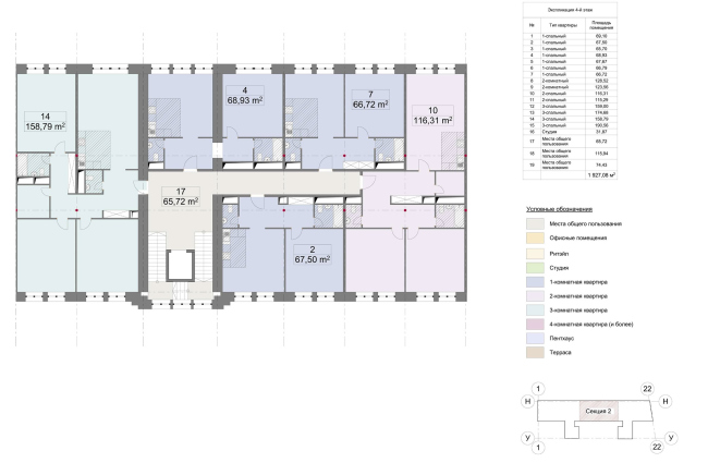
Contest project of renovating the First Exemplary Printing Works. Building 2. Feedstocks and reference materials © ABV Group
Contest project of renovating the First Exemplary Printing Works. Building 2. Feedstocks and reference materials © ABV Group
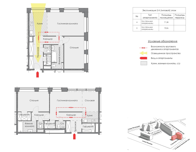
Contest project of renovating the First Exemplary Printing Works. Building 1. Plan of the 6th floor (penthouse) © ABV Group
Contest project of renovating the First Exemplary Printing Works. Building 1. Plan of the 6th floor (penthouse) © ABV Group
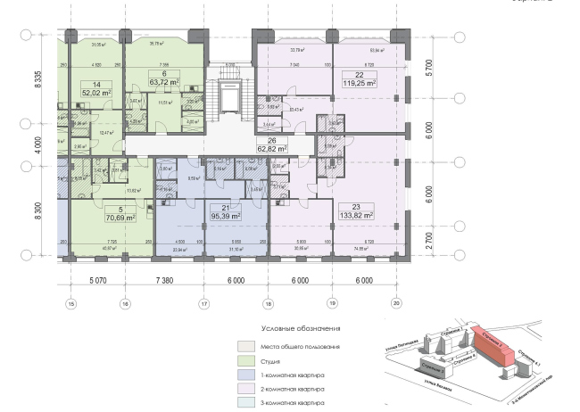
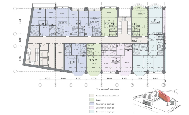
Contest project of renovating the First Exemplary Printing Works. Building 2. Plan of the standard floor. Version 1 © ABV Group
Contest project of renovating the First Exemplary Printing Works. Building 2. Plan of the standard floor. Version 1 © ABV Group
Contest project of renovating the First Exemplary Printing Works. Building 2. Plan of the standard floor. Version 1 © ABV Group
Contest project of renovating the First Exemplary Printing Works. Building 2. Plan of the standard floor. Version 1 © ABV Group
Contest project of renovating the First Exemplary Printing Works. Building 2. Plan of the standard floor. Section 1. Version 2 © ABV Group
Contest project of renovating the First Exemplary Printing Works. Building 2. Plan of the standard floor. Section 1. Version 2 © ABV Group
Contest project of renovating the First Exemplary Printing Works. Building 2. Fragment of the plan of the standard floor. Section 1. Version 1 © ABV Group
Contest project of renovating the First Exemplary Printing Works. Building 2. Fragment of the plan of the standard floor. Section 1. Version 1 © ABV Group
Contest project of renovating the First Exemplary Printing Works. Building 2. Fragment of the plan of the standard floor. Section 2. Version 1 © ABV Group
Contest project of renovating the First Exemplary Printing Works. Building 2. Fragment of the plan of the standard floor. Section 2. Version 1 © ABV Group
Contest project of renovating the First Exemplary Printing Works. Building 2. Fragment of the plan of the standard floor. Section 3. Version 1 © ABV Group
Contest project of renovating the First Exemplary Printing Works. Building 2. Fragment of the plan of the standard floor. Section 3. Version 1 © ABV Group
Contest project of renovating the First Exemplary Printing Works. Building 2. Plan of the standard floor. Section 2. Version 2 © ABV Group
Contest project of renovating the First Exemplary Printing Works. Building 2. Plan of the standard floor. Section 2. Version 2 © ABV Group
Contest project of renovating the First Exemplary Printing Works. Building 2. Section view 1-1 © ABV Group
Contest project of renovating the First Exemplary Printing Works. Building 2. Section view 1-1 © ABV Group
Contest project of renovating the First Exemplary Printing Works. Building 3. Facade. Version 1 © ABV Group
Contest project of renovating the First Exemplary Printing Works. Building 3. Facade. Version 1 © ABV Group
Contest project of renovating the First Exemplary Printing Works. Building 3. Plan of the mansard floor © ABV Group
Contest project of renovating the First Exemplary Printing Works. Building 3. Plan of the mansard floor © ABV Group
Contest project of renovating the First Exemplary Printing Works. Building 3. Plan of the 1st floor © ABV Group
Contest project of renovating the First Exemplary Printing Works. Building 3. Plan of the 1st floor © ABV Group
Contest project of renovating the First Exemplary Printing Works. Building 3. Plan of the standard floor © ABV Group
Contest project of renovating the First Exemplary Printing Works. Building 3. Plan of the standard floor © ABV Group
Contest project of renovating the First Exemplary Printing Works. Building 3. Section views © ABV Group
Contest project of renovating the First Exemplary Printing Works. Building 3. Section views © ABV Group
Contest project of renovating the First Exemplary Printing Works. Building 4. Feedstocks and reference materials. Insolation plan. Checkup © ABV Group
Contest project of renovating the First Exemplary Printing Works. Building 4. Feedstocks and reference materials. Insolation plan. Checkup © ABV Group
Contest project of renovating the First Exemplary Printing Works. Building 4. Plan of the 1st floor © ABV Group
Contest project of renovating the First Exemplary Printing Works. Building 4. Plan of the 1st floor © ABV Group
['["[\'Contest project of renovating the First Exemplary Printing Works. Building 4. Plan of the 2nd (standard) floor \\\\xa9 ABV Group\', \'Contest project of renovating the First Exemplary Printing Works. Building 4. Plan of the 2nd (standard) floor \\\
['["[\'Contest project of renovating the First Exemplary Printing Works. Building 4. Plan of the 2nd (standard) floor \\\\xa9 ABV Group\', \'Contest project of renovating the First Exemplary Printing Works. Building 4. Plan of the 2nd (standard) floor \\\
Contest project of renovating the First Exemplary Printing Works. Building 4. Plan of the 5th floor © ABV Group
Contest project of renovating the First Exemplary Printing Works. Building 4. Plan of the 5th floor © ABV Group
["['Contest project of renovating the First Exemplary Printing Works. Building 4. Section 1-1, 2-2 \\xa9 ABV Group', 'Contest project of renovating the First Exemplary Printing Works. Building 4. Section 1-1, 2-2 \\xa9 ABV Group']", "['Contest project of
["['Contest project of renovating the First Exemplary Printing Works. Building 4. Section 1-1, 2-2 \\xa9 ABV Group', 'Contest project of renovating the First Exemplary Printing Works. Building 4. Section 1-1, 2-2 \\xa9 ABV Group']", "['Contest project of
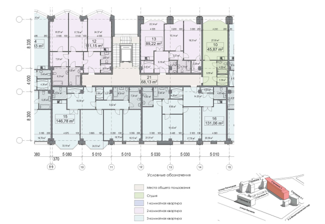
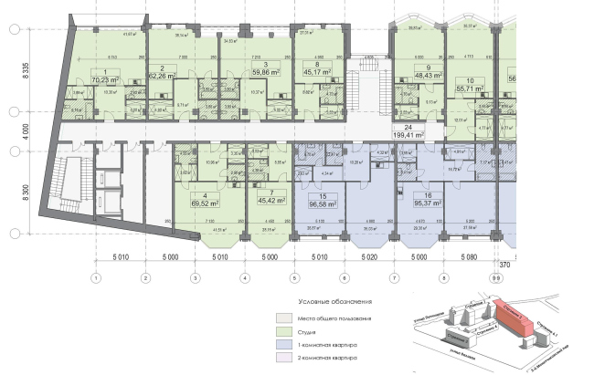
Contest project of renovating the First Exemplary Printing Works. Building 6. Version 2. Facades. Plan of the standard floor © ABV Group
Contest project of renovating the First Exemplary Printing Works. Building 6. Version 2. Facades. Plan of the standard floor © ABV Group
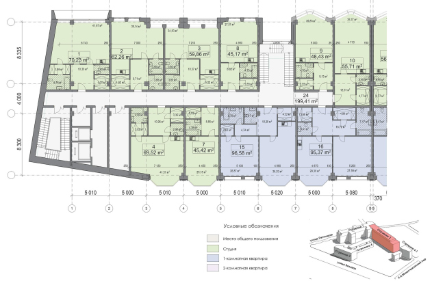
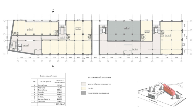
Contest project of renovating the First Exemplary Printing Works. Building 6. Plan of the 1st floor © ABV Group
Contest project of renovating the First Exemplary Printing Works. Building 6. Plan of the 1st floor © ABV Group
Contest project of renovating the First Exemplary Printing Works. Building 6. Plan of the 6th floor © ABV Group
Contest project of renovating the First Exemplary Printing Works. Building 6. Plan of the 6th floor © ABV Group
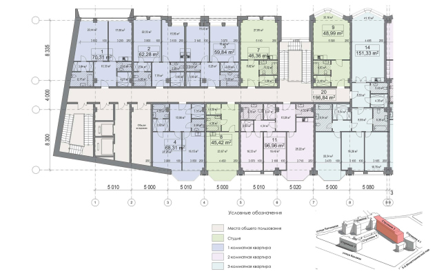
Contest project of renovating the First Exemplary Printing Works. Building 6. Plan of the 7th floor © ABV Group
Contest project of renovating the First Exemplary Printing Works. Building 6. Plan of the 7th floor © ABV Group
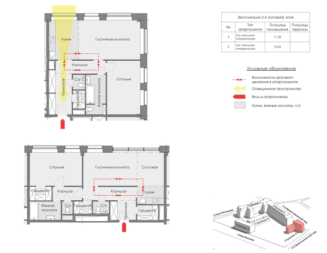
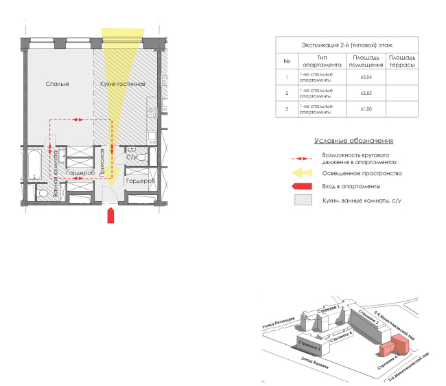
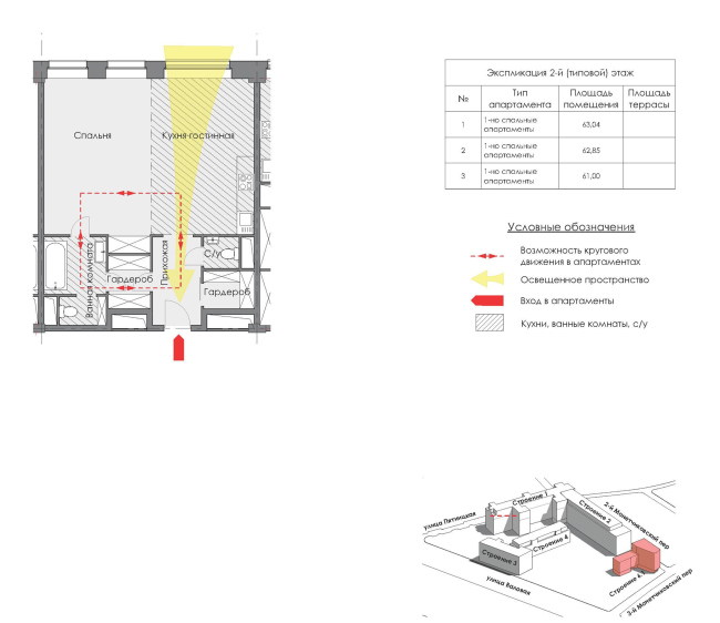
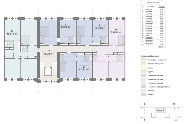
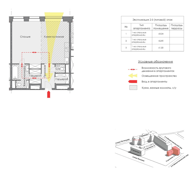
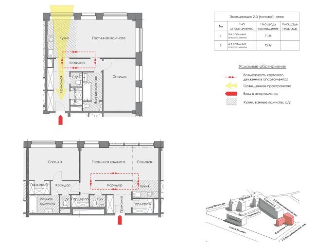
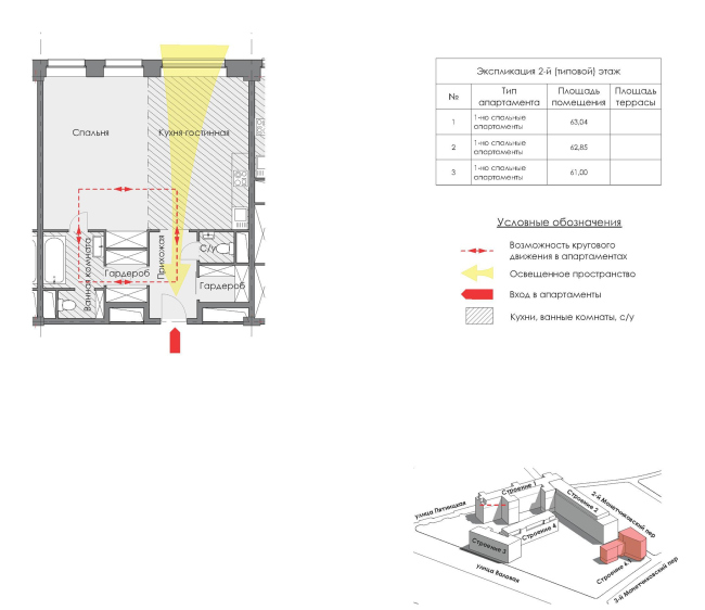
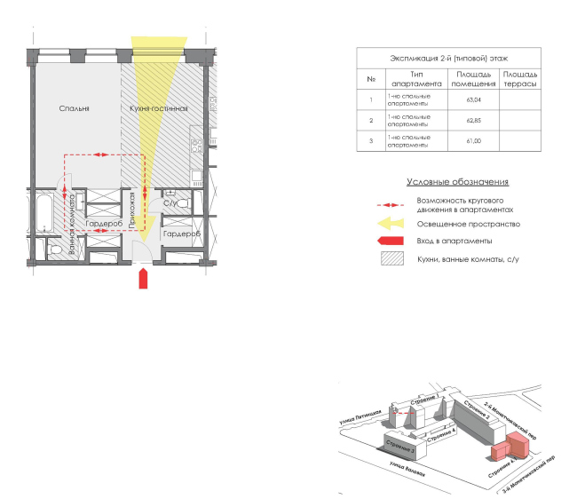
Contest project of renovating the First Exemplary Printing Works. Example of a studio apartment. Building 6. Plan of the 1st floor © ABV Group
Contest project of renovating the First Exemplary Printing Works. Example of a studio apartment. Building 6. Plan of the 1st floor © ABV Group
Contest project of renovating the First Exemplary Printing Works. Example of a double-room apartment. Building 6. Plan of the 1st floor © ABV Group
Contest project of renovating the First Exemplary Printing Works. Example of a double-room apartment. Building 6. Plan of the 1st floor © ABV Group
Contest project of renovating the First Exemplary Printing Works. Example of a 3-room apartment. Building 6. Plan of the 1st floor © ABV Group
Contest project of renovating the First Exemplary Printing Works. Example of a 3-room apartment. Building 6. Plan of the 1st floor © ABV Group
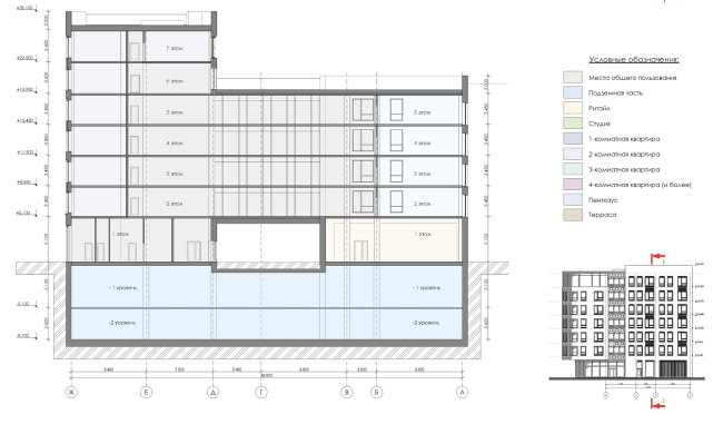
Contest project of renovating the First Exemplary Printing Works. Building 6. Section 1-1 © ABV Group
Contest project of renovating the First Exemplary Printing Works. Building 6. Section 1-1 © ABV Group