Published on Archi.ru (https://archi.ru)

11.12.2017

​About Love

Lilya Aronova
Architect:
Sergey Pereslegin
Nikolay Pereslegin
Georgy Trofimov
Studio:
Kleinewelt Architekten

The winner of the competition for the best renovation project for the complex of buildings of the “First Exemplary Printing Works” became Kleinewelt Architekten with a project that can arguably be considered a breakthrough to a whole new level of material and emotional comfort.

Competition project for renovating the Sytin Printworks into a premium-class apartment and housing complex. Sytin Printworks Museum © Kleinewelt Architekten
Competition project for renovating the Sytin Printworks into a premium-class apartment and housing complex. Sytin Printworks Museum © Kleinewelt Architekten

“The end game of this project is fairly ambitious – says one of the partners of Kleinewelt Architekten, Nikolai Pereslegin – Our goal was to create perhaps the most comfortable living environment and a top-class residential complex of unparalleled quality here in Moscow”. The grounds for such serious ambition do not lie in the material sphere alone. In the former building of the Sytin printing house, the authors of the project saw the architectural embodiment of the Russian culture in all of its “blossoming complexity” (Konstantin Leontyev), one could say, its ultimate concentration. This gave them the right to add to all the “premium class” factors of an expensive residential complex with a great location yet another one – the factor of “emotional comfort”.

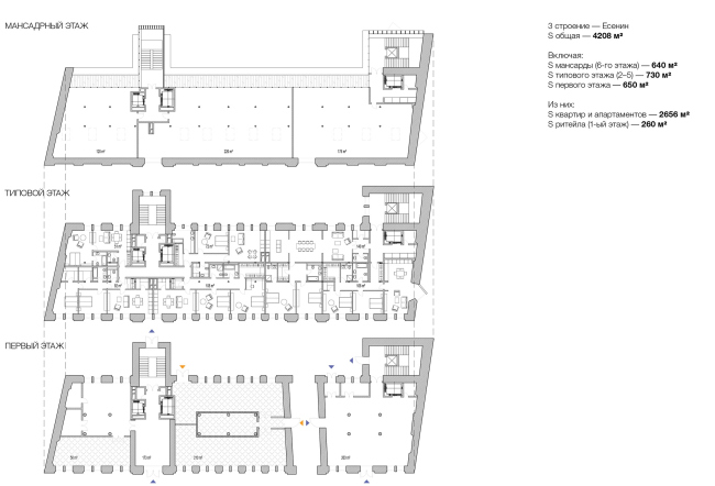
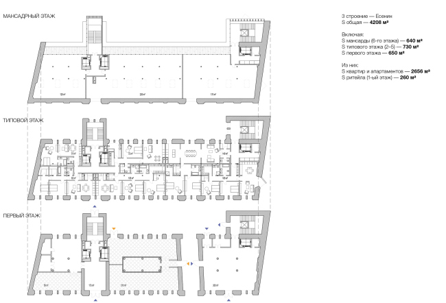
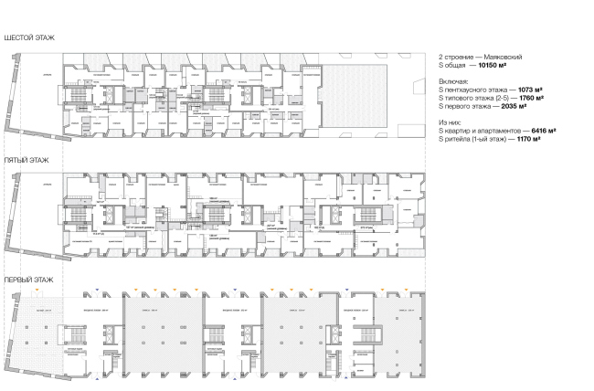
This way, defining the “seed” of the concept of their project, the authors consistently implement this scenario in every element of its structure, from the façades plastique to the music carefully chosen for every building unit, and the signature lines from a literary work for every apartment. The buildings of the complex – in accordance with their character, time of construction, and specific location – got their names after the giants of the Russian literature. Leo Tolstoy, Gogol, Mayakovski, Blok, Esenin – almost all of the members of this venerable Areopagus visited this place at one time or another, and Esenin even worked there as a corrector for a while. In his honor, the architects named the building where once used to be the young poet’s workplace – the building that opens up to the Valovaya Street, incidentally, the earliest of the historical buildings and the only one which was designed not by Erichson but by Fedor Rybinsky and Flegont Voskresensky. Just like all the other contestants, the authors of this project make minimal intrusions to the existing architecture, leaving virtually intact the façade and the structure of the tenement house of the brink of the XIX-XX century, enhancing its beauty by careful restoration, and only slightly increasing the volume of the mansard to create full-fledged penthouses from the side of the yard. “For us, such an approach fits in with our perception of Esenin as a poet, whom I greatly value for his subtle ability to see the seemingly unimportant fragments of the surrounding reality and uncover their inner beauty” – says Nikolai Pereslegin.

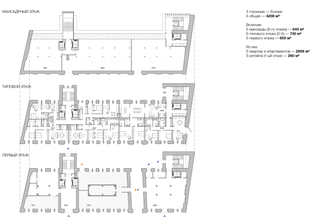
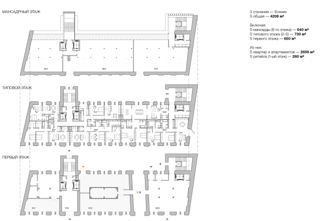
Competition project for renovating the Sytin Printworks into a premium-class apartment and housing complex. Layout. Esenin building © Kleinewelt Architekten
Competition project for renovating the Sytin Printworks into a premium-class apartment and housing complex. Layout. Esenin building © Kleinewelt Architekten


Competition project for renovating the Sytin Printworks into a premium-class apartment and housing complex. Version 1. Facade from the side of the Pyatnitskaya Street © Kleinewelt Architekten
Competition project for renovating the Sytin Printworks into a premium-class apartment and housing complex. Version 1. Facade from the side of the Pyatnitskaya Street © Kleinewelt Architekten


Competition project for renovating the Sytin Printworks into a premium-class apartment and housing complex. Version 2. Facade from the side of the Valovaya Street © Kleinewelt Architekten
Competition project for renovating the Sytin Printworks into a premium-class apartment and housing complex. Version 2. Facade from the side of the Valovaya Street © Kleinewelt Architekten


Competition project for renovating the Sytin Printworks into a premium-class apartment and housing complex. Literary figures © Kleinewelt Architekten
Competition project for renovating the Sytin Printworks into a premium-class apartment and housing complex. Literary figures © Kleinewelt Architekten


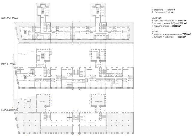
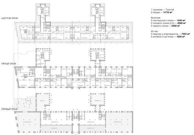
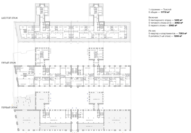
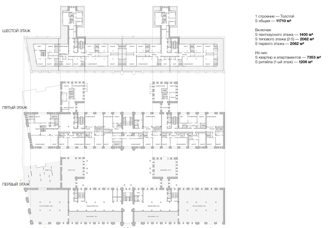
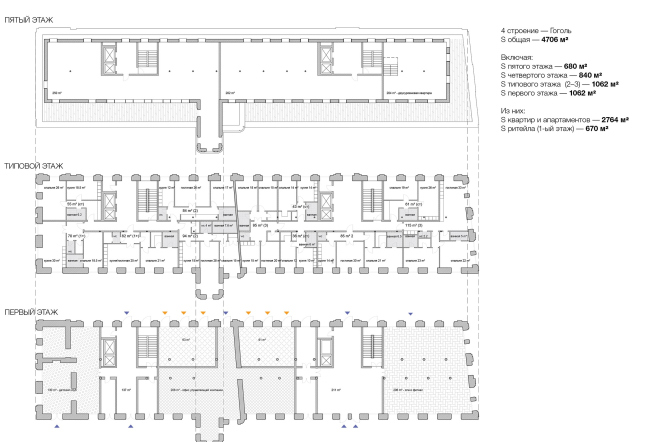
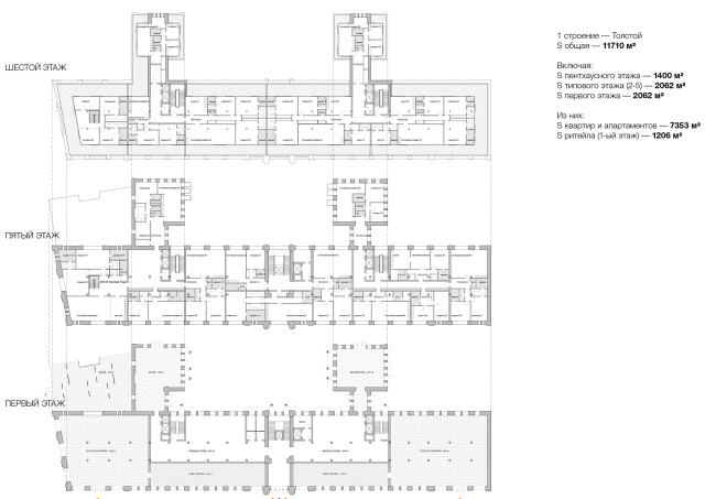
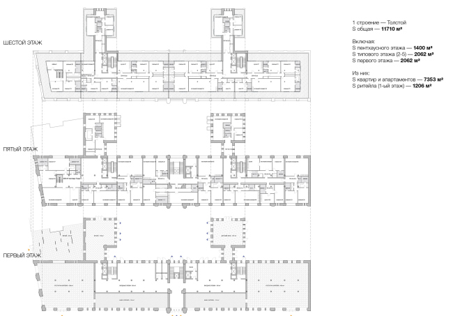
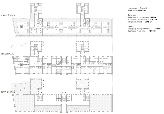
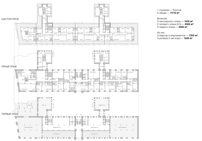
The name of arguably most powerful figure in the Russian literature – Leo Tolstoy – was, of course, bestowed on the main building of the former printing house. The architects are proposing to dismantle part of the yard annex, where “Tolstoy” adjoins the renewed building standing along the Monetchikovsky Alley. Such a solution allows them to, first of all, get the materials for authentic revival of the historical street façade, and, second, vacate the space for creating the museum of the Sytin printing house, conceptually vital for the authors’ project. The free space that appeared above the single-story volume of the museum, gives an opportunity to open extra window blocks for the apartments in both buildings.

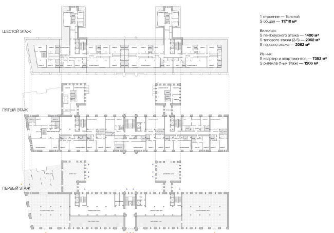
Competition project for renovating the Sytin Printworks into a premium-class apartment and housing complex. Layout. Tolstoy building © Kleinewelt Architekten
Competition project for renovating the Sytin Printworks into a premium-class apartment and housing complex. Layout. Tolstoy building © Kleinewelt Architekten


Competition project for renovating the Sytin Printworks into a premium-class apartment and housing complex. Layout. Tolstoy building © Kleinewelt Architekten
Competition project for renovating the Sytin Printworks into a premium-class apartment and housing complex. Layout. Tolstoy building © Kleinewelt Architekten


In accordance with the technical specifications, the “soviet” buildup, which forms today the fifth floor of the main building of the complex, was to be dismantled, and a new story was to be built in its stead, answering the new typology and the new requirements to the outward appearance of the building. The authors of the project are planning to build here spacious penthouses with exits to terraces, shading the floor-to-ceiling glazing of the façades with pull-out panels of punctured copper. Here, on the corner of the Pyatnitskaya Street and the 2nd Monetchikovsky Alley, they are proposing to place the most luxurious apartment of the complex, also, by the way, with a name of its own – “Pierre”.

Competition project for renovating the Sytin Printworks into a premium-class apartment and housing complex. Layout. Tolstoy building © Kleinewelt Architekten
Competition project for renovating the Sytin Printworks into a premium-class apartment and housing complex. Layout. Tolstoy building © Kleinewelt Architekten


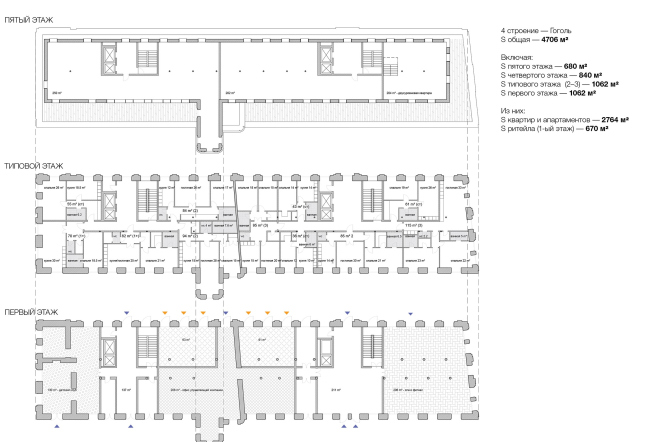
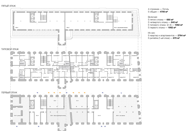
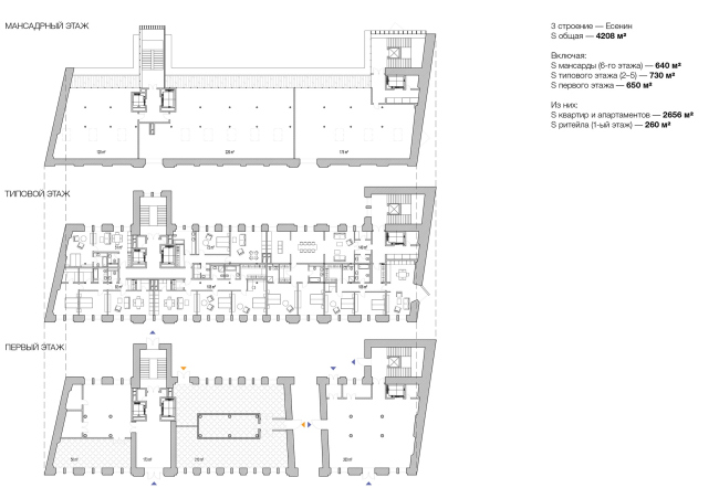
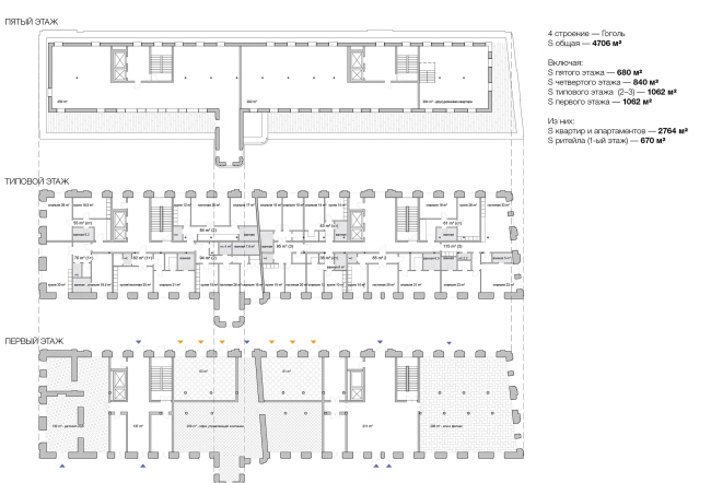
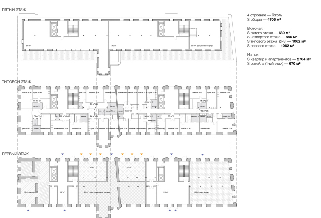
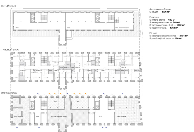
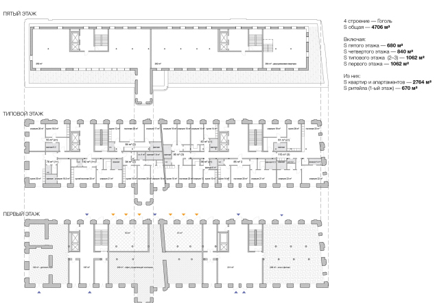
In the fourth building, which is the most “intimate” one here, standing inside the yard, the architects saw a touching “provincial” quality that put them in the mind of Nikolai Gogol – not the kind of Gogol who wrote “The Government Inspector” and “Dead Souls”, but the romantic Gogol of the times of “Evenings on a Farm Near Dikanka”. One can recognize a distant reference to the Ukrainian mud huts in the coating of the mansard that is designed above the today’s roof: the sophisticated surface of the chopped limestone is combined with analogous in color but contrastive in shape smooth slabs of the intermediate floors and the roof, and echoes white horizontal breaks and window frames on the historical façade. At the same time, from the plastique standpoint, the mansard is designed in the simplest way one could think of – it is just a rectangular volume with vertically stretched windows whose rhythm corresponds to the fracturing of the window apertures of the bottom floors.

Competition project for renovating the Sytin Printworks into a premium-class apartment and housing complex. Layout. Gogol building © Kleinewelt Architekten
Competition project for renovating the Sytin Printworks into a premium-class apartment and housing complex. Layout. Gogol building © Kleinewelt Architekten


Competition project for renovating the Sytin Printworks into a premium-class apartment and housing complex. Layout. Gogol building © Kleinewelt Architekten
Competition project for renovating the Sytin Printworks into a premium-class apartment and housing complex. Layout. Gogol building © Kleinewelt Architekten


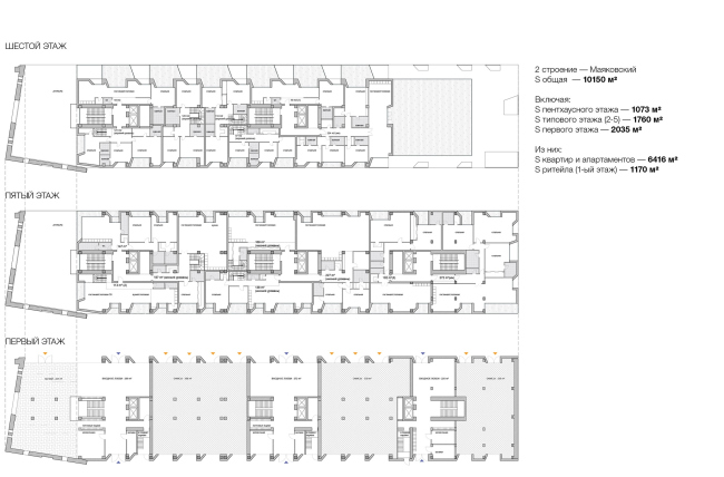
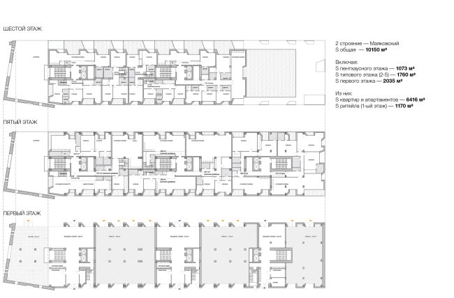
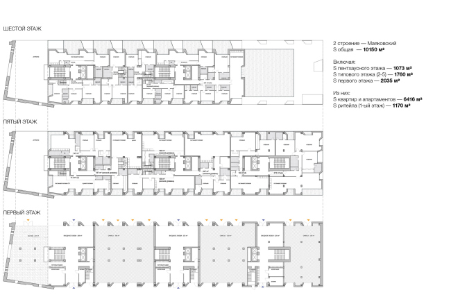
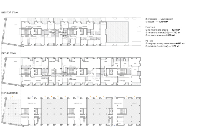
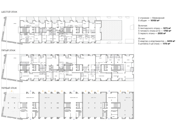
It is hard to think of a more controversial literary proximity as Leo Tolstoy and Vladimir Mayakovski – but, nevertheless, in the Kleinewelt Architekten project they stand literally side by side. The name of the “singer of the revolution” was bestowed upon the building in the 2nd Monetchikovsky Alley that is being built on the basis of the historical framework. The rhythm of the window niches that fractures the monotony of the long building can indeed put one in the mind of the following “staircase” poetry by Mayakovski.

Competition project for renovating the Sytin Printworks into a premium-class apartment and housing complex. Layout. Tolstoy building © Kleinewelt Architekten
Competition project for renovating the Sytin Printworks into a premium-class apartment and housing complex. Layout. Tolstoy building © Kleinewelt Architekten


Competition project for renovating the Sytin Printworks into a premium-class apartment and housing complex. Gogol building against the background of Tolstoy building © Kleinewelt Architekten
Competition project for renovating the Sytin Printworks into a premium-class apartment and housing complex. Gogol building against the background of Tolstoy building © Kleinewelt Architekten


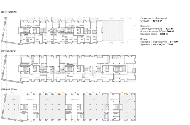
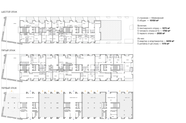
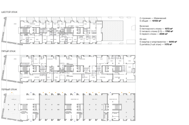
Competition project for renovating the Sytin Printworks into a premium-class apartment and housing complex. Layout. Mayakovski building © Kleinewelt Architekten
Competition project for renovating the Sytin Printworks into a premium-class apartment and housing complex. Layout. Mayakovski building © Kleinewelt Architekten


The light-colored stone used for coating the façade, contrasts with the “Tolstoy” brick, but the next building, one that is connected to “Mayakovski” with a two-story overpass, is obviously kin to it, although the latter is darker, more austere and “disciplined”. This is “Blok” – the newly-built unit that completes the city block from the north side, on the corner of the 2nd and 3rd Monetchikovsky alleys. In order to avoid the obvious and trivial metaphors of “exuding mists and secret fragrances” (a line from “The Stranger”, a popular poem by Blok – translator’s note), the authors in this case deliberately define the work of the poet that inspired them: not just Alexander Blok, but his poem “The Twelve”, a thing that is rugged and controversial, devoid of any longhair spinelessness. At the same time, the architects also proceeded from the poet’s outward appearance – a long aristocratic face, a buttoned-up frock coat with the inevitable bow-tie or a scarf... Speaking about the latter, its role in the project is played by slender copper-zinc alloy inserts which accentuate the syncopated rhythm of the large basalt blocks. 

Competition project for renovating the Sytin Printworks into a premium-class apartment and housing complex. Layout. Blok's "The Twelve" building © Kleinewelt Architekten
Competition project for renovating the Sytin Printworks into a premium-class apartment and housing complex. Layout. Blok's "The Twelve" building © Kleinewelt Architekten


Competition project for renovating the Sytin Printworks into a premium-class apartment and housing complex. Blok's "The Twelve" building © Kleinewelt Architekten
Competition project for renovating the Sytin Printworks into a premium-class apartment and housing complex. Blok's "The Twelve" building © Kleinewelt Architekten


Competition project for renovating the Sytin Printworks into a premium-class apartment and housing complex. Blok's "The Twelve" building © Kleinewelt Architekten
Competition project for renovating the Sytin Printworks into a premium-class apartment and housing complex. Blok's "The Twelve" building © Kleinewelt Architekten


Competition project for renovating the Sytin Printworks into a premium-class apartment and housing complex. Blok's "The Twelve" building © Kleinewelt Architekten
Competition project for renovating the Sytin Printworks into a premium-class apartment and housing complex. Blok's "The Twelve" building © Kleinewelt Architekten


Competition project for renovating the Sytin Printworks into a premium-class apartment and housing complex. Blok's "The Twelve" building © Kleinewelt Architekten
Competition project for renovating the Sytin Printworks into a premium-class apartment and housing complex. Blok's "The Twelve" building © Kleinewelt Architekten


As far as the yard territory is concerned, in this area the commonwealth of literature, music, and architecture is joined by dance. The landscaping concept is dedicated to Diaghilev Russian Seasons, while the four yard spaces, which flow into one another, are dedicated to their corresponding seasons of the year. The narrative produced by the authors of the project provides for a lot of diverse scenarios for the in-yard activities, from noisy team games to secluded recreation in the shade of the trees, and the architects came up with a lot of interesting ideas as well - a creek whose bottom is adorned with silvery mosaic, an open-air movie theater, the ship from “Scarlet Sails”, and the promenade named “Natasha Rostova’s First Ball”...

Competition project for renovating the Sytin Printworks into a premium-class apartment and housing complex. Gogol against the background of Tolstoy © Kleinewelt Architekten
Competition project for renovating the Sytin Printworks into a premium-class apartment and housing complex. Gogol against the background of Tolstoy © Kleinewelt Architekten


Competition project for renovating the Sytin Printworks into a premium-class apartment and housing complex. Gogol building © Kleinewelt Architekten
Competition project for renovating the Sytin Printworks into a premium-class apartment and housing complex. Gogol building © Kleinewelt Architekten


Competition project for renovating the Sytin Printworks into a premium-class apartment and housing complex. Landscaping. Version 2 © Kleinewelt Architekten
Competition project for renovating the Sytin Printworks into a premium-class apartment and housing complex. Landscaping. Version 2 © Kleinewelt Architekten


Competition project for renovating the Sytin Printworks into a premium-class apartment and housing complex. Landscaping. Version 1 © Kleinewelt Architekten
Competition project for renovating the Sytin Printworks into a premium-class apartment and housing complex. Landscaping. Version 1 © Kleinewelt Architekten


Competition project for renovating the Sytin Printworks into a premium-class apartment and housing complex. Masterplan. Version 2. Private for the residents but with a large public space © Kleinewelt Architekten
Competition project for renovating the Sytin Printworks into a premium-class apartment and housing complex. Masterplan. Version 2. Private for the residents but with a large public space © Kleinewelt Architekten


Competition project for renovating the Sytin Printworks into a premium-class apartment and housing complex. Masterplan. Version 1. Private for the residents of the complex © Kleinewelt Architekten
Competition project for renovating the Sytin Printworks into a premium-class apartment and housing complex. Masterplan. Version 1. Private for the residents of the complex © Kleinewelt Architekten


Competition project for renovating the Sytin Printworks into a premium-class apartment and housing complex. Version 2. Axonometry © Kleinewelt Architekten
Competition project for renovating the Sytin Printworks into a premium-class apartment and housing complex. Version 2. Axonometry © Kleinewelt Architekten


Competition project for renovating the Sytin Printworks into a premium-class apartment and housing complex. Version 1. Axonometry © Kleinewelt Architekten
Competition project for renovating the Sytin Printworks into a premium-class apartment and housing complex. Version 1. Axonometry © Kleinewelt Architekten


Even from this last enumeration one can see how strongly the authors were into their project, and how much soul they wanted to pour into their architecture. “This project – it is indeed all about love – Nikolai Pereslegin shares – It is impossible to compare one’s love of different poets and writers, and what we wanted to do was give the residents of our complex an opportunity for choice – what atmosphere, what legend, and what lifestyle resonates with this or that person best of all. This is what we consider to be the ultimate degree of comfort accessible to modern people”.
Competition project for renovating the Sytin Printworks into a premium-class apartment and housing complex. Plan of the underground floor © Kleinewelt Architekten
Competition project for renovating the Sytin Printworks into a premium-class apartment and housing complex. Plan of the underground floor © Kleinewelt Architekten
Competition project for renovating the Sytin Printworks into a premium-class apartment and housing complex. Landscaping. Version 1 © Kleinewelt Architekten
Competition project for renovating the Sytin Printworks into a premium-class apartment and housing complex. Landscaping. Version 1 © Kleinewelt Architekten
Competition project for renovating the Sytin Printworks into a premium-class apartment and housing complex. Landscaping. Version 2 © Kleinewelt Architekten
Competition project for renovating the Sytin Printworks into a premium-class apartment and housing complex. Landscaping. Version 2 © Kleinewelt Architekten
Competition project for renovating the Sytin Printworks into a premium-class apartment and housing complex. Landscaping. Version 2 © Kleinewelt Architekten
Competition project for renovating the Sytin Printworks into a premium-class apartment and housing complex. Landscaping. Version 2 © Kleinewelt Architekten
Competition project for renovating the Sytin Printworks into a premium-class apartment and housing complex. Tolstoy building. Penthouse © Kleinewelt Architekten
Competition project for renovating the Sytin Printworks into a premium-class apartment and housing complex. Tolstoy building. Penthouse © Kleinewelt Architekten
Competition project for renovating the Sytin Printworks into a premium-class apartment and housing complex. Gogol building. Penthouse © Kleinewelt Architekten
Competition project for renovating the Sytin Printworks into a premium-class apartment and housing complex. Gogol building. Penthouse © Kleinewelt Architekten
Competition project for renovating the Sytin Printworks into a premium-class apartment and housing complex. Version 2. Facade as viewed from the side of the 2nd Monetchikovsky Alley © Kleinewelt Architekten
Competition project for renovating the Sytin Printworks into a premium-class apartment and housing complex. Version 2. Facade as viewed from the side of the 2nd Monetchikovsky Alley © Kleinewelt Architekten
Competition project for renovating the Sytin Printworks into a premium-class apartment and housing complex. Version 2. Facade as viewed from the side of the Pyatnitskaya Street © Kleinewelt Architekten
Competition project for renovating the Sytin Printworks into a premium-class apartment and housing complex. Version 2. Facade as viewed from the side of the Pyatnitskaya Street © Kleinewelt Architekten
Competition project for renovating the Sytin Printworks into a premium-class apartment and housing complex. Version 1. Facade as viewed from the side of the 3rd Monetchikovsky Alley © Kleinewelt Architekten
Competition project for renovating the Sytin Printworks into a premium-class apartment and housing complex. Version 1. Facade as viewed from the side of the 3rd Monetchikovsky Alley © Kleinewelt Architekten
Competition project for renovating the Sytin Printworks into a premium-class apartment and housing complex. Version 1. Facade as viewed from the side of the Valovaya Street © Kleinewelt Architekten
Competition project for renovating the Sytin Printworks into a premium-class apartment and housing complex. Version 1. Facade as viewed from the side of the Valovaya Street © Kleinewelt Architekten
Competition project for renovating the Sytin Printworks into a premium-class apartment and housing complex. Mayakovski building as seen from the yard © Kleinewelt Architekten
Competition project for renovating the Sytin Printworks into a premium-class apartment and housing complex. Mayakovski building as seen from the yard © Kleinewelt Architekten
Competition project for renovating the Sytin Printworks into a premium-class apartment and housing complex. Version 2. Facade as viewed from the side of the 3rd Monetchikovsky Alley © Kleinewelt Architekten
Competition project for renovating the Sytin Printworks into a premium-class apartment and housing complex. Version 2. Facade as viewed from the side of the 3rd Monetchikovsky Alley © Kleinewelt Architekten
Competition project for renovating the Sytin Printworks into a premium-class apartment and housing complex. Version 2. Facade as viewed from the side of the 2nd Monetchikovsky Alley © Kleinewelt Architekten
Competition project for renovating the Sytin Printworks into a premium-class apartment and housing complex. Version 2. Facade as viewed from the side of the 2nd Monetchikovsky Alley © Kleinewelt Architekten
Competition project for renovating the Sytin Printworks into a premium-class apartment and housing complex. Gogol building as seen from the yard © Kleinewelt Architekten
Competition project for renovating the Sytin Printworks into a premium-class apartment and housing complex. Gogol building as seen from the yard © Kleinewelt Architekten
Competition project for renovating the Sytin Printworks into a premium-class apartment and housing complex. Tolstoy building as seen from the yard © Kleinewelt Architekten
Competition project for renovating the Sytin Printworks into a premium-class apartment and housing complex. Tolstoy building as seen from the yard © Kleinewelt Architekten
Competition project for renovating the Sytin Printworks into a premium-class apartment and housing complex. Heritage sites © Kleinewelt Architekten
Competition project for renovating the Sytin Printworks into a premium-class apartment and housing complex. Heritage sites © Kleinewelt Architekten
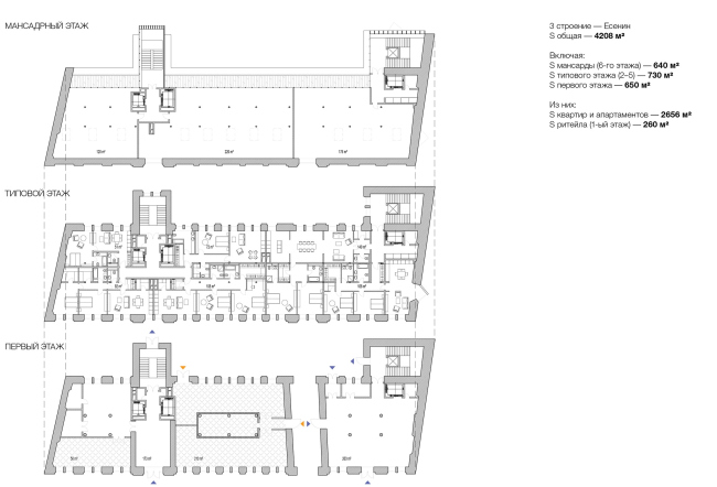
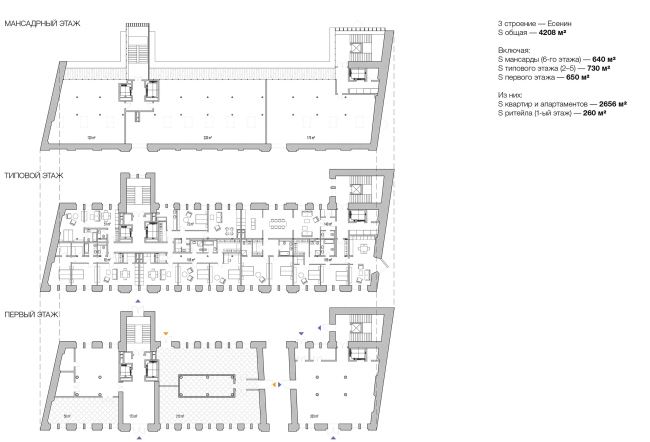
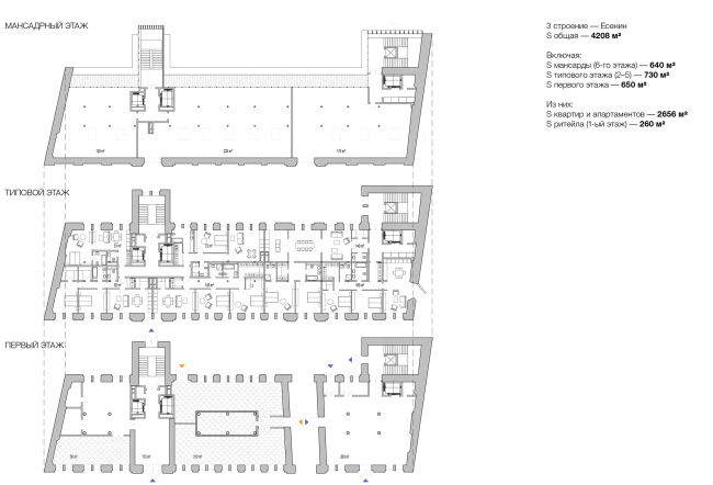
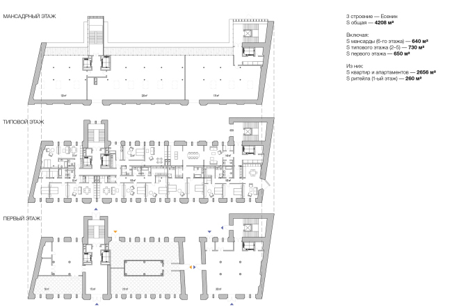
Competition project for renovating the Sytin Printworks into a premium-class apartment and housing complex. Layout. Esenin building © Kleinewelt Architekten
Competition project for renovating the Sytin Printworks into a premium-class apartment and housing complex. Layout. Esenin building © Kleinewelt Architekten
Competition project for renovating the Sytin Printworks into a premium-class apartment and housing complex. Layout. Tolstoy building © Kleinewelt Architekten
Competition project for renovating the Sytin Printworks into a premium-class apartment and housing complex. Layout. Tolstoy building © Kleinewelt Architekten
Competition project for renovating the Sytin Printworks into a premium-class apartment and housing complex. Layout. Gogol building © Kleinewelt Architekten
Competition project for renovating the Sytin Printworks into a premium-class apartment and housing complex. Layout. Gogol building © Kleinewelt Architekten
Competition project for renovating the Sytin Printworks into a premium-class apartment and housing complex. Layout. Mayakovsky building © Kleinewelt Architekten
Competition project for renovating the Sytin Printworks into a premium-class apartment and housing complex. Layout. Mayakovsky building © Kleinewelt Architekten
Competition project for renovating the Sytin Printworks into a premium-class apartment and housing complex. Layout. Blok's "The Twelve" building © Kleinewelt Architekten
Competition project for renovating the Sytin Printworks into a premium-class apartment and housing complex. Layout. Blok's "The Twelve" building © Kleinewelt Architekten