Published on Archi.ru (https://archi.ru)

12.08.2025

Rather, a Tablecloth and a Glass!

Alyona Kuznetsova
Architect:
Nikita Yavein
Studio:
Company:

After many years, the long-abandoned Horse Guards Department building in St. Petersburg has finally received the attention it deserves: according to a design by Studio 44, the first restoration and adaptation works are scheduled to begin this year. Both the intended function and the general scope of works imply minimal alteration to the complex, which has preserved traces of its three-century history. All solutions are reversible and aimed, above all, at opening the monument to the city and immersing it in a lively social scene – hence the choice of a cultural center scenario with a strong gastronomic component.




The Horse Guards Department is at once a characteristic and yet still astonishing phenomenon of ceremonial St. Petersburg. This monument of the Petrine Baroque era, comparable in footprint to Palace Square, is located roughly in the center of the so-called “Golden Triangle” – the very heart of the city, where the main landmarks of Russia’s northern capital are concentrated. The building, resembling a fort or a stronghold in plan, almost touches the Field of Mars, the Mikhailovsky Garden, and the Church of the Savior on Spilled Blood. The Hermitage and the Russian Museum are both just a three-minute walk away. Within the complex, stands the church where Alexander Pushkin’s funeral service was held nearly two centuries ago.



And yet, for many years the building has stood abandoned. The best thing to happen to it in the last half-century was emergency stabilization work, organized in 2017 by the State Museum of the History of St. Petersburg under operational management rights – although even the quality of that work is questionable – and, in addition, hosting a fan zone during the memorable 2018 FIFA World Cup. The rest of the time, for many decades, the walls have either been covered with banners or have served as a memento mori. For residents and tourists alike, this place has been a “blind spot”, with not even sidewalks to approach it.

That said, there have been plenty of attempts to set the monument in order.

In 2001, the ensemble was granted the status of a cultural heritage site of federal significance. In 2015 and 2017, the Council for the Preservation of Cultural Heritage reviewed concepts for its restoration and adaptation for modern use. Then, in 2019, upon the initiative of the Investment Committee, adaptation concepts were prepared by five organizations – a rather unusual selection, which somehow even included MVRDV.

In 2022, under the “One Ruble per Square Meter” program, the monument was transferred to the company “Vedomstvo”. Another two years were spent confirming the lease rights, which were contested by other claimants. Finally, Studio 44 carried out research and surveying work, and in April 2025, the Council for the Preservation of Cultural Heritage approved the adaptation concept.

Bread and wine!

Over the years, functions considered for the Horse Guards Department have included a hotel, a museum of architecture or contemporary art, a car showroom, offices, a market, and a “mixed bag” public space combining coworking areas, a theater studio, and showrooms for local brands. Nikita Yavein believes that if it were possible to adapt the building for actual stables, that would have been the best of possible solutions: it is extremely difficult to combine the fragmented historic layout and the untouched fabric, protected, as we remember, by heritage status, with modern technology, regulations, notions of comfort, and an economic model. Moreover, a hotel or office would leave the building closed to the public, thus reducing the transparency of the site.

The program proposed by Studio 44 can most simply be described as a “gastronomic city”, although it is by no means limited to food – it is more of a public center with a wide range of places to satisfy one’s appetite. A food court and restaurants form the core commercial element, but they are balanced by other spaces: exhibition halls, concert venues, a bookstore, and children’s and family recreation centers.



 
Nikita Yavein, Company:
The two chosen functions are complementary: the variety of public spaces draws in a wave of people who will sooner or later get hungry or want to rest over a cup of coffee. The reverse also works: once you’ve rested and eaten, you’ll be ready to stop by a bookstore or a temporary exhibition. The “bread-to-circuses” ratio is 40 to 60%, meaning that of the total 11,000 m², dining will take up only 4,300 m². In my opinion, such a collective hub in a historic center is destined for success: anyone who has been to the Russian Museum or the Hermitage knows how equally difficult and desirable it is to find a spot to recharge and reflect on the experience.




For food preparation areas and other necessary technical facilities, modular structures are proposed, which can be dismantled if necessary without affecting the building. Some of the designed storage rooms will be located in the basements. The most challenging issue is logistics: creating an underground floor here would be prohibitively expensive, so for now the plan is to use simpler means – a truck pulls up to Konyushennaya Square, the cargo is transferred to a handsome cart, which then proceeds to the destination or the elevator. Choosing a “technical” zone is complicated by the fact that all the building’s façades are ceremonial; there are no “secondary” ones.

Another delicate aspect of the chosen model is the proximity of the entertainment-related function to the church. The architects address this by concentrating exhibition and cultural public spaces around the church.





Gerbel, Stasov, or Gross?

To understand the adaptation project, it is necessary to delve into the history of the Horse Guards Department. Over three centuries, it was rebuilt many times, but during the survey work, the architects gradually reconstructed the “provenance” of all elements of the complex – from the basements to the decorative details. To anticipate the conclusion: most of the building dates back to the reconstruction carried out by Vasily Stasov.

The Horse Guards Department was built in the 1720s by order of Peter I, who had seen a similar facility during his travels in France. Construction was entrusted to Nikolai Gerbel. Since a large supply of running water was needed, the site chosen was on the left bank of the Moyka River, where the stable buildings formed a hexagon. The lower floors housed horses, carriage sheds, and workshops; the upper floors stored saddles and harnesses. Construction was completed with the involvement of architect Mikhail Zemtsov.



Between 1817 and 1823, Vasily Stasov carried out a large-scale reconstruction. According to his design, the Church of the Holy Mandylion was rebuilt. The main volume and walls were preserved, but a semicircular Doric colonnade was added to the west wing. Two service wings appeared in the courtyard, dividing the complex’s inner territory into three parts. At the same time, wooden floors were replaced with brick vaults supported by cast-iron columns. In the watering halls, granite basins were installed, made by Samson Sukhanov – his famous team of stonemasons built the colonnades of both Kazan Cathedral and St. Isaac’s Cathedral. Later in the 19th century, modernization was undertaken by Georg Gross, as well as Pyotr Sadovnikov and other architects. From 1898 to 1903, Baron Carl Gustav Mannerheim was stationed in the building, overseeing the outfitting of the imperial stables. Étienne Falconet, and later Peter Klodt, came here to select horses for their models.



In the 20th century, the building housed the 4th Company of the Pavlovsky Regiment, then a Mounted Police detachment. In 1946, it became a garage for the Ministry of Internal Affairs. From 1948 to 1951, under the supervision of Nikolai Nikitin, restoration work was carried out, aiming to restore the appearance of the Stasov period. Emergency repairs in the 2010s left their mark in the form of concrete-reinforced vaults.





Preserving everything possible

Specialists from the restoration department of Studio 44 note that just a few more years without an owner would have led to the building’s complete collapse and its gradual slide into the Moyka River. However, it is entirely possible to strengthen and preserve it.

The restoration work will aim to put in order all the historical layers – from small fragments from the time of Nikolai Gerbel, preserved in the southern wall and the basements, to the façade additions by Georg Gross.



 
Grigory Ivanov, head of the restoration division at Studio 44
The entire layout of the building will be fully preserved: the interiors of the wings will not be blocked off or subdivided, with zoning achieved solely through temporary partitions that can be dismantled at any time. The Church of the Holy Mandylion lies outside the project boundaries; however, the investor plans to coordinate the restoration of its facades and roof with the main works on the Horse Guards Department.




 
Julia Bogdanova, Chief Architect of Studio 44
The scope of work is extensive: the foundations must be reinforced and the walls – now significantly out of plumb – stabilized; the cast-iron columns restored to their historic locations; the wooden trusses and rafters preserved; the infilled window and door openings uncovered; the lost decorative elements, authentic color scheme, and the horse sculpture atop the spire – visible in Nikolai Gerbel’s historic drawings – brought back. In addition, the courtyard’s soil, contaminated with petroleum products, must be replaced: during the site’s time as a motor depot, diesel fuel tanks were buried there.






Courtyards and buildings

The biggest changes involve covering the courtyards. Two service wings will be rebuilt to their historical levels and dimensions, and will house cafés and administrative spaces. As a result, the courtyard will be divided into three parts. The architects propose to cover the two outer ones with a removable metal shell on self-supporting columns. This solution is reversible and does not affect the historic structure, while turning the courtyards into all-season, all-weather spaces. The covering will not be visible from the street level – only from certain high vantage points.





The eastern wing will be designated for family recreation, concerts, and ceremonial events. The western wing, with its semicircular colonnade, will contain an all-season “gastronomic street” – a double-height space lined with café and restaurant corners. In the southern building, which faces the square and includes the church, several cafés are planned, along with the adaptation of Carl Gustav Mannerheim’s former apartment into an exhibition space and literary club. In the northern buildings, food service establishments will be located according to the historic placement of Georg Gross’s columns.







The central open courtyard will serve as a venue for city events – cultural forums, film screenings, concerts, fairs, and gastronomic festivals. Canopies in the former forage sheds will shelter tables from the weather. The winter program envisions an ice rink with a Christmas market.







Once opened, the Horse Guards Department will inevitably begin to attract and channel flows of tourists and locals moving through the central part of St. Petersburg. Seven entrances will finally connect a substantial stretch of the Moyka embankment with Konyushennaya Square, while the Teatralny and Malo-Konyushenny bridges will receive worthy framing – adding another postcard view of St. Petersburg to every camera roll.
The project of restoring the Horse Guards Department building. Location plan
The project of restoring the Horse Guards Department building. Location plan
Copyright: © Studio 44
The project of restoring the Horse Guards Department building
The project of restoring the Horse Guards Department building
Copyright: © Studio 44
The project of restoring the Horse Guards Department building
The project of restoring the Horse Guards Department building
Copyright: © Studio 44
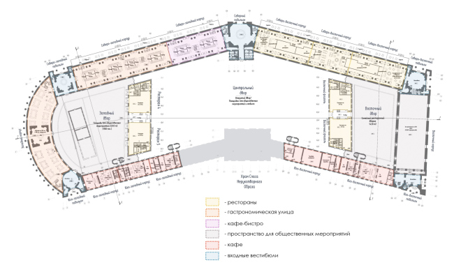
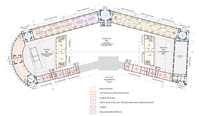
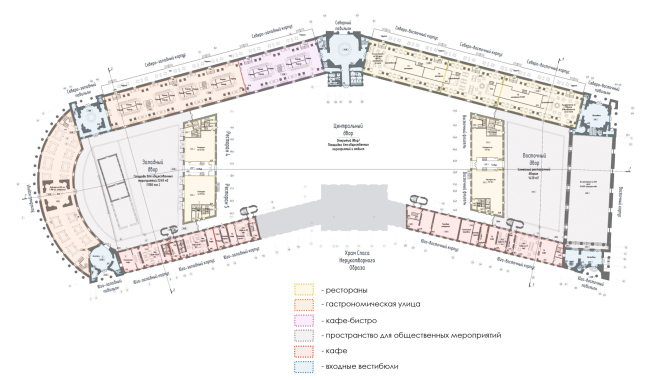
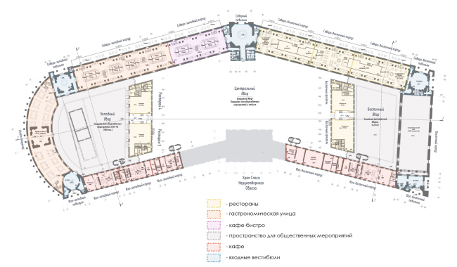
The project of restoring the Horse Guards Department building. Plan of the 1st floor
The project of restoring the Horse Guards Department building. Plan of the 1st floor
Copyright: © Studio 44
The project of restoring the Horse Guards Department building. Plan of the 2nd floor
The project of restoring the Horse Guards Department building. Plan of the 2nd floor
Copyright: © Studio 44
The project of restoring the Horse Guards Department building
The project of restoring the Horse Guards Department building
Copyright: © Studio 44
The project of restoring the Horse Guards Department building. Plan before 1917
The project of restoring the Horse Guards Department building. Plan before 1917
Copyright: © Studio 44
The project of restoring the Horse Guards Department building. Restoration in the 1960s
The project of restoring the Horse Guards Department building. Restoration in the 1960s
Copyright: © Studio 44
The project of restoring the Horse Guards Department building. The 21st century
The project of restoring the Horse Guards Department building. The 21st century
Copyright: © Studio 44
The project of restoring the Horse Guards Department building. The 21st century
The project of restoring the Horse Guards Department building. The 21st century
Copyright: © Studio 44
The project of restoring the Horse Guards Department building. The restoration solutions of the facades Copyright: © Studio 44
The project of restoring the Horse Guards Department building. The restoration solutions of the facades
Copyright: © Studio 44
The project of restoring the Horse Guards Department building. The heritage site layout. Architectural solutions for the facades and interiors Copyright: © Studio 44
The project of restoring the Horse Guards Department building. The heritage site layout. Architectural solutions for the facades and interiors
Copyright: © Studio 44
The project of restoring the Horse Guards Department building. The restoration solutions Copyright: © Studio 44
The project of restoring the Horse Guards Department building. The restoration solutions
Copyright: © Studio 44
The project of restoring the Horse Guards Department building. The restoration solutions Copyright: © Studio 44
The project of restoring the Horse Guards Department building. The restoration solutions
Copyright: © Studio 44
The project of restoring the Horse Guards Department building. The scheme of soil contamination with petroleum products Copyright: © Studio 44
The project of restoring the Horse Guards Department building. The scheme of soil contamination with petroleum products
Copyright: © Studio 44
The project of restoring the Horse Guards Department building. The heritage site. The volumetric and planning solutions
The project of restoring the Horse Guards Department building. The heritage site. The volumetric and planning solutions
Copyright: © Studio 44
The project of restoring the Horse Guards Department building
The project of restoring the Horse Guards Department building
Copyright: © Studio 44
The project of restoring the Horse Guards Department building. The 21st century. Project solutions. Cross section 1-1
The project of restoring the Horse Guards Department building. The 21st century. Project solutions. Cross section 1-1
Copyright: © Studio 44
The project of restoring the Horse Guards Department building Copyright: © Studio 44
The project of restoring the Horse Guards Department building
Copyright: © Studio 44
The project of restoring the Horse Guards Department building Copyright: © Studio 44
The project of restoring the Horse Guards Department building
Copyright: © Studio 44
The project of restoring the Horse Guards Department building. Copyright: © Studio 44
The project of restoring the Horse Guards Department building.
Copyright: © Studio 44
The project of restoring the Horse Guards Department building. Axonometry
The project of restoring the Horse Guards Department building. Axonometry
Copyright: © Studio 44
The project of restoring the Horse Guards Department building
The project of restoring the Horse Guards Department building
Copyright: © Studio 44
The project of restoring the Horse Guards Department building
The project of restoring the Horse Guards Department building
Copyright: © Studio 44
The project of restoring the Horse Guards Department building. Axonometry
The project of restoring the Horse Guards Department building. Axonometry
Copyright: © Studio 44
The project of restoring the Horse Guards Department building
The project of restoring the Horse Guards Department building
Copyright: © Studio 44
The project of restoring the Horse Guards Department building
The project of restoring the Horse Guards Department building
Copyright: © Studio 44