Размещено на портале Архи.ру (www.archi.ru)

09.02.2024

Крестовый подход

Алёна Кузнецова
Объект:
ЖК Шпалерная, 51
Адрес:
Россия, Санкт-Петербург. ул. Шпалерная, д. 51, литер К
Архитектор:
Никита Явейн
Мастерская:
Студия 44
Авторский коллектив:
ГАП – Я.В. Смолина

Градостроительный совет Петербурга рассмотрел проект дома на Шпалерной, 51, подготовленный «Студией 44». Жилой комплекс располагается внутри квартала, идет на уступки соседям, но не оставляет сомнений в своем статусе. Эксперты отметили крестообразную композицию и суровую стилистику, тяготеющую к 1960-х годам.

Участок, на котором планируется построить жилой дом, можно охарактеризовать словами «и хочется, и колется». С одной стороны – престижнейший район: в шаговой доступности Смольный собор, Таврический сад, Нева и Кикины палаты – редкий памятник петровского барокко. Квартиры с такими видами и соседями, должно быть, продавать не сложно. Прибавляет статуса району и «номенклатурная» застройка 1960-1970-х годов, которая здесь преобладает и молчаливо довлеет: различные архивы, ЦНИИ, консульства и здания администрации города.   

ЖК Шпалерная, 51
ЖК Шпалерная, 51
Изображение © «Студия 44», предоставлено пресс-службой КГА

На другой чаше весов – «флигельное» расположение и социальное напряжение: тесное соседство с бизнес-центром и другими жилыми домами требует недюжинной изобретательности в соблюдении различных норм, а два одноэтажных корпуса, чудом сохранившихся от Аракчеевских казарм, накладывают дополнительные ограничения и обязательства.
ЖК Шпалерная, 51. Ситуационый план
ЖК Шпалерная, 51. Ситуационый план
Изображение © «Студия 44», предоставлено пресс-службой КГА
ЖК Шпалерная, 51. Генплан
ЖК Шпалерная, 51. Генплан
Изображение © «Студия 44», предоставлено пресс-службой КГА
ЖК Шпалерная, 51. Схема визуального восприятия
ЖК Шпалерная, 51. Схема визуального восприятия
Изображение © «Студия 44», предоставлено пресс-службой КГА

Решить эту нормативно-композиционную головоломку пытались и другие бюро. Мастерская Евгения Герасимова, например, предлагала заменить «сараи» восьмиэтажными корпусами, завершив тем самым рыхлый фронт внутриквартальных улиц. Это не совсем устроило градозащитников, которые умеют быть настойчивыми. Поэтому новый застройщик начал с реставрации: планируется, что в казарме-конюшне на Кавалергардской откроется музей, а в бывшей кузнице на Ставропольской – детский сад. Сейчас эти здания выглядят намного лучше, чем пару лет назад:


 
Для жилого комплекса «Студия 44» выбрала крестообразную композицию: она отвечает характеру дворовой застройки, почти не закрывает виды из окон существующих домов и не влияет на сложившиеся панорамы, формирует дворики-курдонеры. Квартиры в домах большие и выходят на три-четыре стороны света, что позволило увеличить ширину секций. Максимальная их высота – 28 метров. Режим охраны позволяет делать плоскую кровлю, поэтому последние этажи отступают, образуя террасы с великолепными видами.
ЖК Шпалерная, 51
ЖК Шпалерная, 51
Изображение © «Студия 44», предоставлено пресс-службой КГА
ЖК Шпалерная, 51
ЖК Шпалерная, 51
Изображение © «Студия 44», предоставлено пресс-службой КГА
ЖК Шпалерная, 51
ЖК Шпалерная, 51
Изображение © «Студия 44», предоставлено пресс-службой КГА
ЖК Шпалерная, 51
ЖК Шпалерная, 51
Изображение © «Студия 44», предоставлено пресс-службой КГА

Стилевое решение отвечает застройке 1930-х и 1960-х годов. В отделке фасадов планируется использовать португальский известняк или дербентский ракушечник.
ЖК Шпалерная, 51
ЖК Шпалерная, 51
Изображение © «Студия 44», предоставлено пресс-службой КГА
ЖК Шпалерная, 51
ЖК Шпалерная, 51
Изображение © «Студия 44», предоставлено пресс-службой КГА

Казарму по Кавалергардской улице планируют «продолжить» пристройкой в тех же габаритах, чтобы завершить фронт улицы и расширить выставочные помещения. У детского сада на Ставропольской появятся площадки.
ЖК Шпалерная, 51
ЖК Шпалерная, 51
Изображение © «Студия 44», предоставлено пресс-службой КГА
ЖК Шпалерная, 51
ЖК Шпалерная, 51
Изображение © «Студия 44», предоставлено пресс-службой КГА
ЖК Шпалерная, 51
ЖК Шпалерная, 51
Изображение © «Студия 44», предоставлено пресс-службой КГА

Самый критический отзыв проект получил от Евгения Герасимова. По его словам, жесткие оси и «пафосное воплощение» не соответствуют архитектуре флигелей, некоторые квартиры похожи на «распашонки» в хрущевках, подъезд спецтехники и грузовых машин вызывает вопросы, как и размещение музея в казарме-конюшне. В то же время архитектор призвал проект согласовать, чтобы бороться с «дворовым эгоизмом»: из-за протестов жильцов стройка затягивается, «требуха» здания «Океанприбора» остается неприкрытой, а так будет «не совсем разрушенный квартал».  
ЖК Шпалерная, 51. Развертка по Кавалерградской улице Изображение © «Студия 44», предоставлено пресс-службой КГА
ЖК Шпалерная, 51. Развертка по Кавалерградской улице
Изображение © «Студия 44», предоставлено пресс-службой КГА
ЖК Шпалерная, 51. Развертка по Ставропольской улице Изображение © «Студия 44», предоставлено пресс-службой КГА
ЖК Шпалерная, 51. Развертка по Ставропольской улице
Изображение © «Студия 44», предоставлено пресс-службой КГА
ЖК Шпалерная, 51. Развертка с Северной стороны. Фасад в осях Ш-А Изображение © «Студия 44», предоставлено пресс-службой КГА
ЖК Шпалерная, 51. Развертка с Северной стороны. Фасад в осях Ш-А
Изображение © «Студия 44», предоставлено пресс-службой КГА
ЖК Шпалерная, 51. Фасад в осях А-Ш Изображение © «Студия 44», предоставлено пресс-службой КГА
ЖК Шпалерная, 51. Фасад в осях А-Ш
Изображение © «Студия 44», предоставлено пресс-службой КГА
ЖК Шпалерная, 51. Фасад в осях 1-11, 19-29 Изображение © «Студия 44», предоставлено пресс-службой КГА
ЖК Шпалерная, 51. Фасад в осях 1-11, 19-29
Изображение © «Студия 44», предоставлено пресс-службой КГА
ЖК Шпалерная, 51. Фасад в осях 1-11, 19-29 Изображение © «Студия 44», предоставлено пресс-службой КГА
ЖК Шпалерная, 51. Фасад в осях 1-11, 19-29
Изображение © «Студия 44», предоставлено пресс-службой КГА
ЖК Шпалерная, 51. Фасад в осях 29-1 Изображение © «Студия 44», предоставлено пресс-службой КГА
ЖК Шпалерная, 51. Фасад в осях 29-1
Изображение © «Студия 44», предоставлено пресс-службой КГА
ЖК Шпалерная, 51. Фасад в осях 1-29 Изображение © «Студия 44», предоставлено пресс-службой КГА
ЖК Шпалерная, 51. Фасад в осях 1-29
Изображение © «Студия 44», предоставлено пресс-службой КГА

Коллеги соглашались с Евгением Герасимовым в некоторых аспектах, но не по существу – большинство высказавшихся оценило работу как успешную и предложило лишь некоторые улучшения: добавить деталировки фасадам с помощью разных фактур, усилить вертикали, упростить доступ пожарных машин и карет скорой помощи.  
ЖК Шпалерная, 51
ЖК Шпалерная, 51
Изображение © «Студия 44», предоставлено пресс-службой КГА
ЖК Шпалерная, 51
ЖК Шпалерная, 51
Изображение © «Студия 44», предоставлено пресс-службой КГА

Крестообразная схема многим показалась удачной и уместной. Общий же облик дома вызвал эмоциональную реакцию, о которой высказывались осторожно. Сергей Орешкин отметил диссонанс между штукатурным окружением и каменной облицовкой, предложил «не выпячивать деньги», а примыкание новой застройки к старой назвал «грозным». У Вячеслава Ухова сложилось впечатление, что сначала появился новый дом, а затем все остальное. Владимир Григорьев отметил, что дом не мимикрирует под окружение и «честно воспроизводит то время, в которое создается». Семен Михайловский эту мысль расширил: появление такого «сурового» здания между одноэтажными домами, которые могли и не сохранять, – симптоматично, возможно, по нему в будущем будут судить о нашем времени.

Итоги голосования станут известны позже.
ЖК Шпалерная, 51. Разерз 1-1 Изображение © «Студия 44», предоставлено пресс-службой КГА
ЖК Шпалерная, 51. Разерз 1-1
Изображение © «Студия 44», предоставлено пресс-службой КГА
ЖК Шпалерная, 51. Разрез 2-2 Изображение © «Студия 44», предоставлено пресс-службой КГА
ЖК Шпалерная, 51. Разрез 2-2
Изображение © «Студия 44», предоставлено пресс-службой КГА
ЖК Шпалерная, 51. Разрез 3-3 Изображение © «Студия 44», предоставлено пресс-службой КГА
ЖК Шпалерная, 51. Разрез 3-3
Изображение © «Студия 44», предоставлено пресс-службой КГА
ЖК Шпалерная, 51. Разрез 4-4 Изображение © «Студия 44», предоставлено пресс-службой КГА
ЖК Шпалерная, 51. Разрез 4-4
Изображение © «Студия 44», предоставлено пресс-службой КГА
ЖК Шпалерная, 51. План автостоянки на отметке -7.800 Изображение © «Студия 44», предоставлено пресс-службой КГА
ЖК Шпалерная, 51. План автостоянки на отметке -7.800
Изображение © «Студия 44», предоставлено пресс-службой КГА
ЖК Шпалерная, 51. План автостоянки на отметке -4.500 Изображение © «Студия 44», предоставлено пресс-службой КГА
ЖК Шпалерная, 51. План автостоянки на отметке -4.500
Изображение © «Студия 44», предоставлено пресс-службой КГА
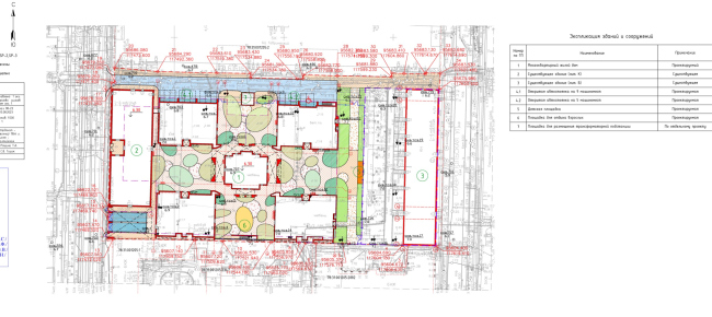
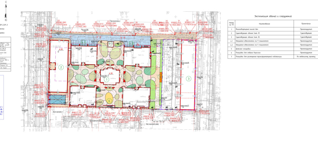
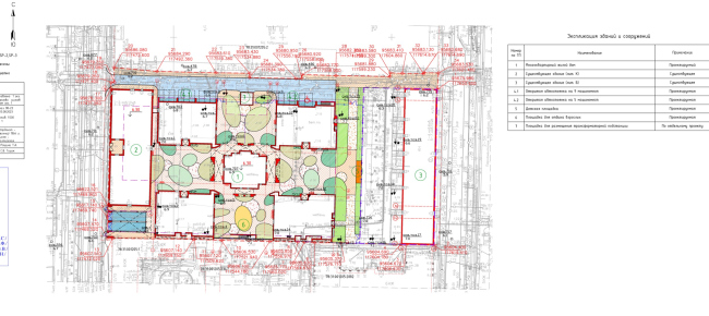
ЖК Шпалерная, 51. План 1 этажа Изображение © «Студия 44», предоставлено пресс-службой КГА
ЖК Шпалерная, 51. План 1 этажа
Изображение © «Студия 44», предоставлено пресс-службой КГА
ЖК Шпалерная, 51. План 2 этажа Изображение © «Студия 44», предоставлено пресс-службой КГА
ЖК Шпалерная, 51. План 2 этажа
Изображение © «Студия 44», предоставлено пресс-службой КГА
ЖК Шпалерная, 51. План 3 этажа Изображение © «Студия 44», предоставлено пресс-службой КГА
ЖК Шпалерная, 51. План 3 этажа
Изображение © «Студия 44», предоставлено пресс-службой КГА
ЖК Шпалерная, 51. План 4 этажа Изображение © «Студия 44», предоставлено пресс-службой КГА
ЖК Шпалерная, 51. План 4 этажа
Изображение © «Студия 44», предоставлено пресс-службой КГА
ЖК Шпалерная, 51. План 5 этажа Изображение © «Студия 44», предоставлено пресс-службой КГА
ЖК Шпалерная, 51. План 5 этажа
Изображение © «Студия 44», предоставлено пресс-службой КГА
ЖК Шпалерная, 51. План 6 этажа Изображение © «Студия 44», предоставлено пресс-службой КГА
ЖК Шпалерная, 51. План 6 этажа
Изображение © «Студия 44», предоставлено пресс-службой КГА
ЖК Шпалерная, 51. план 7 этажа Изображение © «Студия 44», предоставлено пресс-службой КГА
ЖК Шпалерная, 51. план 7 этажа
Изображение © «Студия 44», предоставлено пресс-службой КГА
ЖК Шпалерная, 51. План 8 этажа Изображение © «Студия 44», предоставлено пресс-службой КГА
ЖК Шпалерная, 51. План 8 этажа
Изображение © «Студия 44», предоставлено пресс-службой КГА