Размещено на портале Архи.ру (www.archi.ru)

11.12.2023

Северное сияние

Юлия Тарабарина
Объект:
Океанрыбфлот музей
Адрес:
Россия, Петропавловск-Камчатский. ул. Ключевская, 32
Мастерская:
Архитекторы Гикало Купцов
Авторский коллектив:
Руководители авторского коллектива: Сергей Гикало, Александр Купцов 
ГАП: Александр Купцов 
Ведущий архитектор: Олег Корпачев 
Архитекторы: Евгений Устюгов, Анна Герасимова, Николай Югай, Арина Червякова, Лина Самигуллина 
Художник: Василий Кармазин 
Графические дизайнеры: Полина Жидкова, Василий Кутвинов 
Модельер: Анна Налич 
Макет: Владимир Изаксон 

Новый музей архитекторов Гикало и Купцова ненавязчиво, но уверенно освежает городской пейзаж Петропавловска-Камчатского. Ночью переливается волнообразным цветом, что символизирует воду. Точки на фасадах абстрагируют тему рыб и кораблей, которые рыб ловят. Современный медийный музей, причем авторы сделали все, он фасадов до мерча; что тоже очень современно. А на самом деле музей – результат реконструкции модернистского ресторана-стекляшки, который 50 назад здесь тоже оживлял контекст. Хочется сказать, что наши современники подхватили эстафету, от модернизма к неомодернизму.

Музей компании Океанрыбфлот, посвященный рыбакам и кораблям Камчатки, разместился рядом с офисом компании – башней на севером берегу озера Култучное. Здание музея – не новое, это реконструкция ресторана «Вулкан», который был построен поблизости от офиса компании даже немного раньше его. 

Ресторан был характерной модернистской «стекляшкой», довольно стильной. 

Ресторан «Вулкан» в 1970-е годы
Ресторан «Вулкан» в 1970-е годы
Размещено на странице Кирилла Маренина и pastvu

К тому же по воспоминаниям старожилов чуть ли не половина Петропавловска-Камчатского была зачата именно там. 

Позднее ресторан приходил в упадок, его оштукатурили, затем обшили, кажется, сайдингом, и вид его стал довольно неказистым. Вот так он выглядел в процессе разборки обшивки. 

Факт, что теперь ресторан – не ресторан, а музей, примерно половину которого занимают, судя по плану, административные помещения. 
Взрыв-схема. Океанрыбфлот музей. Аксонометрия
Взрыв-схема. Океанрыбфлот музей. Аксонометрия
© Гикало Купцов архитекторы
Океанрыбфлот музей. План экспозиции
Океанрыбфлот музей. План экспозиции
© Гикало Купцов архитекторы

Главное отличие обновленного здания – фасад. Стекло в нем исчезло, так как музейной экспозиции редко бывают нужны витражи. Вместо стекла – стены из черного керамогранита и отстоящий от них на некоторое расстояние внешний слой белого алюминия с просечным рисунком. Внутрь встроена динамичная подсветка, вечером она проходит по рисунку волной, и нарисованные точками рыбы и кальмары светятся, как этакие глубоководные медиа-медузы. Далеко лететь, но даже интересно взглянуть, как он плавно переливается. Как драгоценности в старом кино. 
Океанрыбфлот музей Фотография ©  Гикало Купцов архитекторы
Океанрыбфлот музей
Фотография © Гикало Купцов архитекторы
Океанрыбфлот музей Фотография ©  Гикало Купцов архитекторы
Океанрыбфлот музей
Фотография © Гикало Купцов архитекторы

И еще он похож, особенно зимой, на кусок льда, выпиленный из моря и положенный на склоне вместе с вмерзшими в него вкусными рыбами и крабами. С одной стороны, символ океанского богатства, с другой – как будто и некое камлание на предмет хорошей добычи. 

Рисунок из точек разного размера сделан очень тщательно – авторы даже посчитали количество отверстий: 102 675 штук. 
Океанрыбфлот музей
Океанрыбфлот музей
Фотография © Гикало Купцов архитекторы
Океанрыбфлот музей
Океанрыбфлот музей
Фотография © Гикало Купцов архитекторы
Океанрыбфлот музей
Океанрыбфлот музей
Фотография © Гикало Купцов архитекторы

Внутри ему вторит такой же, с графикой из точек, дизайн экспозиции, посвященный рыбам, рыбакам – сотрудникам компании, и кораблям. Особенное внимание уделено большому  супертраулеру «Георгий Мещеряков», история создания дополнена виртуальной экскурсией по нему.
 
Океанрыбфлот музей Фотография ©  Гикало Купцов архитекторы
Океанрыбфлот музей
Фотография © Гикало Купцов архитекторы
Океанрыбфлот музей Фотография ©  Гикало Купцов архитекторы
Океанрыбфлот музей
Фотография © Гикало Купцов архитекторы
Океанрыбфлот музей Фотография ©  Гикало Купцов архитекторы
Океанрыбфлот музей
Фотография © Гикало Купцов архитекторы
Океанрыбфлот музей Фотография ©  Гикало Купцов архитекторы
Океанрыбфлот музей
Фотография © Гикало Купцов архитекторы
Океанрыбфлот музей Фотография ©  Гикало Купцов архитекторы
Океанрыбфлот музей
Фотография © Гикало Купцов архитекторы
Океанрыбфлот музей Фотография ©  Гикало Купцов архитекторы
Океанрыбфлот музей
Фотография © Гикало Купцов архитекторы
Океанрыбфлот музей Фотография ©  Гикало Купцов архитекторы
Океанрыбфлот музей
Фотография © Гикало Купцов архитекторы
Океанрыбфлот музей Фотография © Наталья Соловьева / предоставлена Гикало Купцов архитекторы
Океанрыбфлот музей
Фотография © Наталья Соловьева / предоставлена Гикало Купцов архитекторы
Океанрыбфлот музей Фотография ©  Гикало Купцов архитекторы
Океанрыбфлот музей
Фотография © Гикало Купцов архитекторы
Океанрыбфлот музей Фотография ©  Гикало Купцов архитекторы
Океанрыбфлот музей
Фотография © Гикало Купцов архитекторы
Океанрыбфлот музей Фотография ©  Гикало Купцов архитекторы
Океанрыбфлот музей
Фотография © Гикало Купцов архитекторы
Океанрыбфлот музей Фотография ©  Гикало Купцов архитекторы
Океанрыбфлот музей
Фотография © Гикало Купцов архитекторы
Океанрыбфлот музей Фотография ©  Гикало Купцов архитекторы
Океанрыбфлот музей
Фотография © Гикало Купцов архитекторы
Океанрыбфлот музей Фотография ©  Гикало Купцов архитекторы
Океанрыбфлот музей
Фотография © Гикало Купцов архитекторы
Океанрыбфлот музей Фотография ©  Гикало Купцов архитекторы
Океанрыбфлот музей
Фотография © Гикало Купцов архитекторы
Океанрыбфлот музей Фотография ©  Гикало Купцов архитекторы
Океанрыбфлот музей
Фотография © Гикало Купцов архитекторы
Океанрыбфлот музей Фотография ©  Гикало Купцов архитекторы
Океанрыбфлот музей
Фотография © Гикало Купцов архитекторы
Океанрыбфлот музей Фотография © Наталья Соловьева / предоставлена Гикало Купцов архитекторы
Океанрыбфлот музей
Фотография © Наталья Соловьева / предоставлена Гикало Купцов архитекторы
Океанрыбфлот музей Фотография ©  Гикало Купцов архитекторы
Океанрыбфлот музей
Фотография © Гикало Купцов архитекторы
Океанрыбфлот музей Фотография ©  Гикало Купцов архитекторы
Океанрыбфлот музей
Фотография © Гикало Купцов архитекторы
Океанрыбфлот музей Фотография ©  Гикало Купцов архитекторы
Океанрыбфлот музей
Фотография © Гикало Купцов архитекторы
Океанрыбфлот музей Фотография ©  Гикало Купцов архитекторы
Океанрыбфлот музей
Фотография © Гикало Купцов архитекторы
Океанрыбфлот музей Фотография ©  Гикало Купцов архитекторы
Океанрыбфлот музей
Фотография © Гикало Купцов архитекторы
Океанрыбфлот музей Фотография ©  Гикало Купцов архитекторы
Океанрыбфлот музей
Фотография © Гикало Купцов архитекторы
Океанрыбфлот музей Фотография ©  Гикало Купцов архитекторы
Океанрыбфлот музей
Фотография © Гикало Купцов архитекторы
Океанрыбфлот музей Фотография ©  Гикало Купцов архитекторы
Океанрыбфлот музей
Фотография © Гикало Купцов архитекторы
Океанрыбфлот музей Фотография ©  Гикало Купцов архитекторы
Океанрыбфлот музей
Фотография © Гикало Купцов архитекторы
Океанрыбфлот музей Фотография ©  Гикало Купцов архитекторы
Океанрыбфлот музей
Фотография © Гикало Купцов архитекторы

Но вернемся наружу. Авторы не только обновили фасады, но и благоустроили площадь перед входом; установленные там лампочки они романтически сравнивают с Млечным путем и звездами, которые служили ориентирами для моряков, пока те не обзавелись электронным приборами. 

Вход, который у «стекляшки» был поглубже, но тоже с круглыми колоннами, Купцов и Гикало решают с виде полуарки, причем в проекте было два варианта: с белой и зеркальной поверхностью изгиба. Выиграл второй и, пожалуй, это правильно. 
Океанрыбфлот музей Фотография ©  Гикало Купцов архитекторы
Океанрыбфлот музей
Фотография © Гикало Купцов архитекторы
Океанрыбфлот музей ©  Гикало Купцов архитекторы
Океанрыбфлот музей
© Гикало Купцов архитекторы

Важно, что архитекторы Сергей Гикало и Александр Купцов продумали музей целиком: и фасады, и экспозицию, и мерч вплоть до значков, – последнее особенно любит подчеркивать Александр Купцов, представляя проект. Ну что же, мы живем в период тотального дизайна, когда он удается – это радует. А уж сколько раз авторы летали в Петропавловск-Камчатский надзирать за стройкой – это хорошо знают социальные сети. 
  
Океанрыбфлот музей Фотография © Олимпия Орлова / предоставлена Гикало Купцов архитекторы
Океанрыбфлот музей
Фотография © Олимпия Орлова / предоставлена Гикало Купцов архитекторы
Океанрыбфлот музей Фотография © Олимпия Орлова / предоставлена Гикало Купцов архитекторы
Океанрыбфлот музей
Фотография © Олимпия Орлова / предоставлена Гикало Купцов архитекторы
Океанрыбфлот музей Фотография © Олимпия Орлова / предоставлена Гикало Купцов архитекторы
Океанрыбфлот музей
Фотография © Олимпия Орлова / предоставлена Гикало Купцов архитекторы
Океанрыбфлот музей Фотография © Олимпия Орлова / предоставлена Гикало Купцов архитекторы
Океанрыбфлот музей
Фотография © Олимпия Орлова / предоставлена Гикало Купцов архитекторы
Океанрыбфлот музей Фотография ©  Гикало Купцов архитекторы
Океанрыбфлот музей
Фотография © Гикало Купцов архитекторы
Океанрыбфлот музей Фотография © Олимпия Орлова / предоставлена Гикало Купцов архитекторы
Океанрыбфлот музей
Фотография © Олимпия Орлова / предоставлена Гикало Купцов архитекторы
Океанрыбфлот музей Фотография © Олимпия Орлова / предоставлена Гикало Купцов архитекторы
Океанрыбфлот музей
Фотография © Олимпия Орлова / предоставлена Гикало Купцов архитекторы
Океанрыбфлот музей Фотография © Олимпия Орлова / предоставлена Гикало Купцов архитекторы
Океанрыбфлот музей
Фотография © Олимпия Орлова / предоставлена Гикало Купцов архитекторы
Океанрыбфлот музей Фотография © Олимпия Орлова / предоставлена Гикало Купцов архитекторы
Океанрыбфлот музей
Фотография © Олимпия Орлова / предоставлена Гикало Купцов архитекторы
Океанрыбфлот музей Фотография © Олимпия Орлова / предоставлена Гикало Купцов архитекторы
Океанрыбфлот музей
Фотография © Олимпия Орлова / предоставлена Гикало Купцов архитекторы
Океанрыбфлот музей Фотография ©  Гикало Купцов архитекторы
Океанрыбфлот музей
Фотография © Гикало Купцов архитекторы
Океанрыбфлот музей Фотография ©  Гикало Купцов архитекторы
Океанрыбфлот музей
Фотография © Гикало Купцов архитекторы
Океанрыбфлот музей Фотография ©  Гикало Купцов архитекторы
Океанрыбфлот музей
Фотография © Гикало Купцов архитекторы
Океанрыбфлот музей Фотография ©  Гикало Купцов архитекторы
Океанрыбфлот музей
Фотография © Гикало Купцов архитекторы
Океанрыбфлот музей ©  Гикало Купцов архитекторы
Океанрыбфлот музей
© Гикало Купцов архитекторы
Океанрыбфлот музей Фотография ©  Гикало Купцов архитекторы
Океанрыбфлот музей
Фотография © Гикало Купцов архитекторы
Океанрыбфлот музей Фотография ©  Гикало Купцов архитекторы
Океанрыбфлот музей
Фотография © Гикало Купцов архитекторы
Океанрыбфлот музей ©  Гикало Купцов архитекторы
Океанрыбфлот музей
© Гикало Купцов архитекторы
Океанрыбфлот музей ©  Гикало Купцов архитекторы
Океанрыбфлот музей
© Гикало Купцов архитекторы
Океанрыбфлот музей ©  Гикало Купцов архитекторы
Океанрыбфлот музей
© Гикало Купцов архитекторы
Океанрыбфлот музей ©  Гикало Купцов архитекторы
Океанрыбфлот музей
© Гикало Купцов архитекторы
Океанрыбфлот музей ©  Гикало Купцов архитекторы
Океанрыбфлот музей
© Гикало Купцов архитекторы
Океанрыбфлот музей ©  Гикало Купцов архитекторы
Океанрыбфлот музей
© Гикало Купцов архитекторы
Океанрыбфлот музей ©  Гикало Купцов архитекторы
Океанрыбфлот музей
© Гикало Купцов архитекторы
Океанрыбфлот музей ©  Гикало Купцов архитекторы
Океанрыбфлот музей
© Гикало Купцов архитекторы
Океанрыбфлот музей ©  Гикало Купцов архитекторы
Океанрыбфлот музей
© Гикало Купцов архитекторы
Океанрыбфлот музей ©  Гикало Купцов архитекторы
Океанрыбфлот музей
© Гикало Купцов архитекторы

В Петропавловске, как и много где, тонкими слоями смешана застройка частного сектора, деревянные многоквартирные двухэтажки и панельные дома. Надо думать, что в семидесятые ресторан «Вулкан» был в этой среде жемчужиной. Тогда и ресторанов было немного, но и архитектуру он демонстрировал свежую: лаконичную, прозрачную. 

Обновленное здание тоже можно назвать прививкой новой архитектуры Петропавловску-Камчатскому, только через 50 лет: просечной металл с узором, подсветка, простая форма, белый цвет, – все это модно в столицах, но нельзя сказать, что уже усвоено на Дальнем Востоке. Так или иначе, в бывший «Вулкан» опять кажется намного более живым, чем башня офиса Океанрыбфлота.
Океанрыбфлот музей
Океанрыбфлот музей
Фотография © Гикало Купцов архитекторы

А еще ужасно хочется сравнить его с недавней реконструкцией кафе «Чайка» в Нижнем Новгороде. Неисповедимы трактовки исходного модернизма, и вот вам, пожалуйста, минимум два варианта на предмет того, что с ним можно делать. 

Но получилось-то – вполне привлекательно: и медиа, и абстрагированная ловля рыб, и, прости Господи, мерч. 
  
Океанрыбфлот музей Фотография ©  Гикало Купцов архитекторы
Океанрыбфлот музей
Фотография © Гикало Купцов архитекторы
Океанрыбфлот музей Фотография ©  Гикало Купцов архитекторы
Океанрыбфлот музей
Фотография © Гикало Купцов архитекторы
Океанрыбфлот музей Фотография ©  Гикало Купцов архитекторы
Океанрыбфлот музей
Фотография © Гикало Купцов архитекторы
Океанрыбфлот музей Фотография ©  Гикало Купцов архитекторы
Океанрыбфлот музей
Фотография © Гикало Купцов архитекторы
Океанрыбфлот музей Фотография ©  Гикало Купцов архитекторы
Океанрыбфлот музей
Фотография © Гикало Купцов архитекторы
Океанрыбфлот музей Фотография ©  Гикало Купцов архитекторы
Океанрыбфлот музей
Фотография © Гикало Купцов архитекторы
Океанрыбфлот музей Фотография ©  Гикало Купцов архитекторы
Океанрыбфлот музей
Фотография © Гикало Купцов архитекторы
Океанрыбфлот музей Фотография ©  Гикало Купцов архитекторы
Океанрыбфлот музей
Фотография © Гикало Купцов архитекторы
Океанрыбфлот музей Фотография ©  Гикало Купцов архитекторы
Океанрыбфлот музей
Фотография © Гикало Купцов архитекторы
Океанрыбфлот музей Фотография ©  Гикало Купцов архитекторы
Океанрыбфлот музей
Фотография © Гикало Купцов архитекторы
Океанрыбфлот музей Фотография ©  Гикало Купцов архитекторы
Океанрыбфлот музей
Фотография © Гикало Купцов архитекторы
Океанрыбфлот музей Фотография ©  Гикало Купцов архитекторы
Океанрыбфлот музей
Фотография © Гикало Купцов архитекторы
Океанрыбфлот музей Фотография ©  Гикало Купцов архитекторы
Океанрыбфлот музей
Фотография © Гикало Купцов архитекторы
Океанрыбфлот музей Фотография ©  Гикало Купцов архитекторы
Океанрыбфлот музей
Фотография © Гикало Купцов архитекторы


Дальше слово авторам проекта: 

«Корпоративный Музей АО «Океанрыбфлот» размещается в реконструированном строении бывшего ресторана «Вулкан» в непосредственной близости от главного здания компании. От него к Музею поднимается лестница, связывающая улицы Ленинградскую и Ключевскую. Главный вход организован с угла здания. Перед входом устроена аванплощадь с мощением гранитной брусчаткой и встроенной подсветкой, символизирующей Млечный путь, издавна служивший верным ориентиром морякам. По обеим сторонам от входа размещены гранитные скамьи, напоминающие своей формой морскую гальку. Наследуя геометрии главного здания, полукруглый козырёк волной укрывает входную нишу, не выступая за пределы площади застройки.

В ходе реконструкции здание Музея обрело новые фасады, имеющие многослойную структуру. Внутренний слой – облицовка из черного керамогранита. Наружный слой формируют перфорированные алюминиевые панели (102 675 отверстий), окрашенные в белый цвет. Между внутренним и внешним слоями фасадов устроена декоративная динамическая подсветка, меняющая цветность от белого до тёмно-синего и создающая эффект накатывающей волны. Перфорация панелей образует декоративное панно, украшающее три из четырёх фасадов здания. Тематика панно отражает содержание экспозиции Музея, рассказывающей о труде и быте рыбаков Камчатки.
  
Океанрыбфлот музей Фотография ©  Гикало Купцов архитекторы
Океанрыбфлот музей
Фотография © Гикало Купцов архитекторы
Океанрыбфлот музей Фотография ©  Гикало Купцов архитекторы
Океанрыбфлот музей
Фотография © Гикало Купцов архитекторы
Океанрыбфлот музей Фотография ©  Гикало Купцов архитекторы
Океанрыбфлот музей
Фотография © Гикало Купцов архитекторы
Океанрыбфлот музей Фотография ©  Гикало Купцов архитекторы
Океанрыбфлот музей
Фотография © Гикало Купцов архитекторы
Океанрыбфлот музей Фотография ©  Гикало Купцов архитекторы
Океанрыбфлот музей
Фотография © Гикало Купцов архитекторы
Океанрыбфлот музей Фотография ©  Гикало Купцов архитекторы
Океанрыбфлот музей
Фотография © Гикало Купцов архитекторы
Океанрыбфлот музей Фотография ©  Гикало Купцов архитекторы
Океанрыбфлот музей
Фотография © Гикало Купцов архитекторы
Океанрыбфлот музей Фотография ©  Гикало Купцов архитекторы
Океанрыбфлот музей
Фотография © Гикало Купцов архитекторы
Океанрыбфлот музей Фотография ©  Гикало Купцов архитекторы
Океанрыбфлот музей
Фотография © Гикало Купцов архитекторы
Океанрыбфлот музей Фотография ©  Гикало Купцов архитекторы
Океанрыбфлот музей
Фотография © Гикало Купцов архитекторы
Океанрыбфлот музей Фотография ©  Гикало Купцов архитекторы
Океанрыбфлот музей
Фотография © Гикало Купцов архитекторы
Океанрыбфлот музей Фотография ©  Гикало Купцов архитекторы
Океанрыбфлот музей
Фотография © Гикало Купцов архитекторы
Океанрыбфлот музей Фотография ©  Гикало Купцов архитекторы
Океанрыбфлот музей
Фотография © Гикало Купцов архитекторы
Океанрыбфлот музей Фотография ©  Гикало Купцов архитекторы
Океанрыбфлот музей
Фотография © Гикало Купцов архитекторы
Океанрыбфлот музей Фотография ©  Гикало Купцов архитекторы
Океанрыбфлот музей
Фотография © Гикало Купцов архитекторы
Океанрыбфлот музей Фотография ©  Гикало Купцов архитекторы
Океанрыбфлот музей
Фотография © Гикало Купцов архитекторы
Океанрыбфлот музей Фотография ©  Гикало Купцов архитекторы
Океанрыбфлот музей
Фотография © Гикало Купцов архитекторы
Океанрыбфлот музей Фотография ©  Гикало Купцов архитекторы
Океанрыбфлот музей
Фотография © Гикало Купцов архитекторы

Вход в Музей организован через двустворчатые стеклянные двери с логотипом АО «Океанрыбфлот» на полукруглой фрамужной части. Минуя стеклянный тамбур, фланкируемый двумя якорями Холла, посетители оказываются в первом зале. Прямо напротив входа расположена круглая информационная стойка, за которой вошедших встречают сотрудник музея и экскурсовод. Позади размещен куб, заключающий в себе гардероб свободного доступа с локерами. В стену куба, обращенную ко входу, встроены витрины с сувенирами. Объёмы информационной стойки и гардероба разделяют пространство первого зала на две зоны: входную место сбора и ожидания экскурсантов, с экспозицией, знакомящей с тематикой промышленного рыболовства, и зону, посвященную Камчатке – родному дому компании. Об истории региона, его настоящем и будущем рассказывает видеоролик, воспроизводимый на ЖК-экране, и информация на стендах, размещенных по периметру. Мультимедийная консоль, встроенная в пьедестал по центру этой зоны, позволяет увидеть рыб и других морских обитателей Камчатки в их естественной среде и поучаствовать в викторине.
Океанрыбфлот музей ©  Гикало Купцов архитекторы
Океанрыбфлот музей
© Гикало Купцов архитекторы
Макет. Океанрыбфлот музей ©  Гикало Купцов архитекторы
Макет. Океанрыбфлот музей
© Гикало Купцов архитекторы
Океанрыбфлот музей ©  Гикало Купцов архитекторы
Океанрыбфлот музей
© Гикало Купцов архитекторы
Океанрыбфлот музей ©  Гикало Купцов архитекторы
Океанрыбфлот музей
© Гикало Купцов архитекторы
Океанрыбфлот музей ©  Гикало Купцов архитекторы
Океанрыбфлот музей
© Гикало Купцов архитекторы
Океанрыбфлот музей ©  Гикало Купцов архитекторы
Океанрыбфлот музей
© Гикало Купцов архитекторы
Океанрыбфлот музей ©  Гикало Купцов архитекторы
Океанрыбфлот музей
© Гикало Купцов архитекторы
Океанрыбфлот музей ©  Гикало Купцов архитекторы
Океанрыбфлот музей
© Гикало Купцов архитекторы
Океанрыбфлот музей ©  Гикало Купцов архитекторы
Океанрыбфлот музей
© Гикало Купцов архитекторы

Второй зал Музея посвящен рыбацкому промыслу, истории и развитию технологий компании. Предметную часть экспозиции составляют настоящие артефакты: подлинные образцы орудий труда и быта рыбаков и мореходов. В стеклянной витрине выставлены предметы связанные с историей создания супертраулера «Георгий Мещеряков». На разновысоких цилиндрических подиумах представлены судовые хронометр и лампы, иллюминатор, кухтыли и секстант, бухта канатов и спасательный круг, лопасть гребного винта и компас. Интерактивная инсталляция с картой морей и океанов, где исторически вели и в настоящий момент ведут лов суда флота ОРФ, дает возможность узнать о каждом из них. Медиа экран «Производственная цепочка» наглядно показывает промысловый путь рыбы – от попадания в трал до конечного потребителя. Кульминацией экспозиции Музея служит виртуальная экскурсия на новейший супертраулер «Георгий Мещеряков», в ходе которой каждый сможет осмотреть все отсеки новейшего рыболовного судна и почувствовать себя капитаном, ведущим свой мощный корабль 
сквозь бурю и непогоду.
  
Океанрыбфлот музей. Ситуационный план ©  Гикало Купцов архитекторы
Океанрыбфлот музей. Ситуационный план
© Гикало Купцов архитекторы
Океанрыбфлот музей. Генплан ©  Гикало Купцов архитекторы
Океанрыбфлот музей. Генплан
© Гикало Купцов архитекторы
Океанрыбфлот музей. Концептуальная схема ©  Гикало Купцов архитекторы
Океанрыбфлот музей. Концептуальная схема
© Гикало Купцов архитекторы
Океанрыбфлот музей. Схема конструкции фасадов ©  Гикало Купцов архитекторы
Океанрыбфлот музей. Схема конструкции фасадов
© Гикало Купцов архитекторы
Океанрыбфлот музей ©  Гикало Купцов архитекторы
Океанрыбфлот музей
© Гикало Купцов архитекторы
Океанрыбфлот музей ©  Гикало Купцов архитекторы
Океанрыбфлот музей
© Гикало Купцов архитекторы
Океанрыбфлот музей ©  Гикало Купцов архитекторы
Океанрыбфлот музей
© Гикало Купцов архитекторы
Океанрыбфлот музей ©  Гикало Купцов архитекторы
Океанрыбфлот музей
© Гикало Купцов архитекторы
Океанрыбфлот музей. Схема суперграфики ©  Гикало Купцов архитекторы
Океанрыбфлот музей. Схема суперграфики
© Гикало Купцов архитекторы
Океанрыбфлот музей. План экспозиции, 1 зал ©  Гикало Купцов архитекторы
Океанрыбфлот музей. План экспозиции, 1 зал
© Гикало Купцов архитекторы
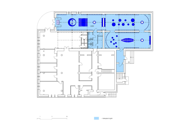
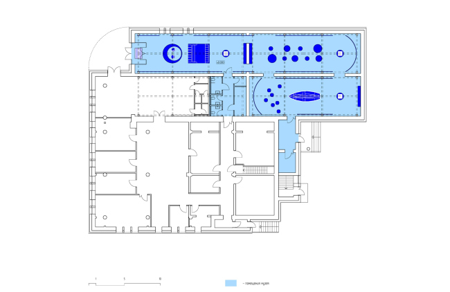
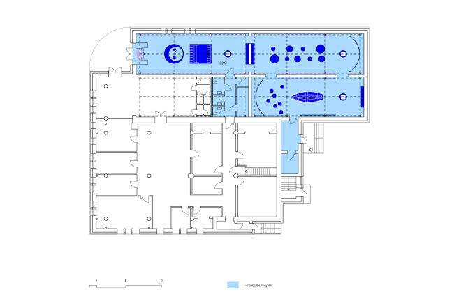
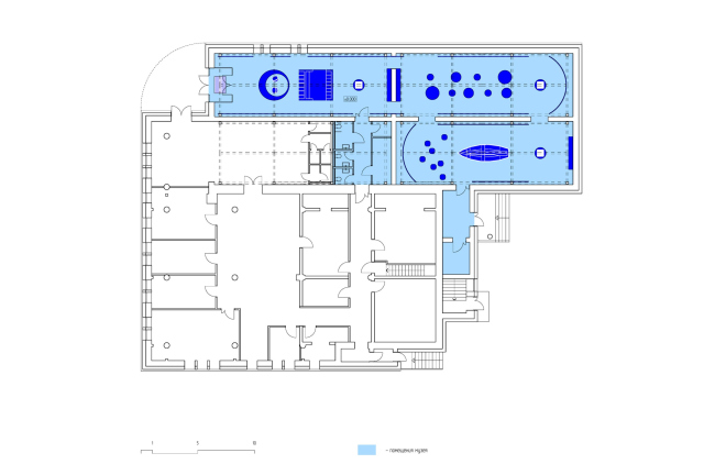
Океанрыбфлот музей. План экспозиции, 2 зал ©  Гикало Купцов архитекторы
Океанрыбфлот музей. План экспозиции, 2 зал
© Гикало Купцов архитекторы
Океанрыбфлот музей. План экспозиции, 3 зал ©  Гикало Купцов архитекторы
Океанрыбфлот музей. План экспозиции, 3 зал
© Гикало Купцов архитекторы
Океанрыбфлот музей ©  Гикало Купцов архитекторы
Океанрыбфлот музей
© Гикало Купцов архитекторы
Океанрыбфлот музей ©  Гикало Купцов архитекторы
Океанрыбфлот музей
© Гикало Купцов архитекторы
Океанрыбфлот музей ©  Гикало Купцов архитекторы
Океанрыбфлот музей
© Гикало Купцов архитекторы
Океанрыбфлот музей ©  Гикало Купцов архитекторы
Океанрыбфлот музей
© Гикало Купцов архитекторы
Океанрыбфлот музей ©  Гикало Купцов архитекторы
Океанрыбфлот музей
© Гикало Купцов архитекторы
Океанрыбфлот музей ©  Гикало Купцов архитекторы
Океанрыбфлот музей
© Гикало Купцов архитекторы
Океанрыбфлот музей ©  Гикало Купцов архитекторы
Океанрыбфлот музей
© Гикало Купцов архитекторы
Океанрыбфлот музей ©  Гикало Купцов архитекторы
Океанрыбфлот музей
© Гикало Купцов архитекторы
Океанрыбфлот музей ©  Гикало Купцов архитекторы
Океанрыбфлот музей
© Гикало Купцов архитекторы

Третий зал Музея посвящен главному богатству АО «Океанрыбфлот» – его сотрудникам. Интерактивные экспозиции, размещенные по длинным сторонам зала, рассказывают о прошлом и настоящем компании, о ее роли в развитии рыбной отрасли Камчатки, о ветеранах, руководстве и вкладе каждого сотрудника в общие достижения. Центр зала занимает спасательная шлюпка, в торце зала установлен голографический экран, демонстрирующий 3D-модель современного рыболовного судна. Социальная ответственность АО «Океанрыбфлот», помощь подшефным организациям – этим темам посвящены ролики, проецируемые на панорамный экран в торце зала и завершающие экспозицию Музея. 

Стены реконструируемого здания окрашены в черный. В тот же цвет окрашены потолки и открытый усиливающий каркас из стальных стоек и балок. Для полов использован черный керамогранит с фактурой сланца. По периметру залов на стойки каркаса навешиваются белоснежные панели, на которых размещена визуально-текстовая часть экспозиции и которые также служат медиаэкраном для проекции ее интерактивной части. Зазор между поверхностью стен и стойками каркаса заполнен морской галькой, формируя естественную границу строгой геометрии плит пола. В белом цвете выполнены шинопроводы систем освещения, объемы инфостойки и гардероба. Фирменный цвет Музея, использованный для внутренней отделки объемов, дополняет черно-белый контраст. 

Цвета, выбранные для музея АО «Океанрыбфлот», отсылают к уникальной природной среде Камчатки:
Белый – цвет снега и морской пены; 
Чёрный – вулканическая лава и песок океанических пляжей; 
Синий – цвет безграничного неба и океана.

Алюминиевые фасадные панели: алюминиевый лист REYNOLUX с покрытием антиграффити производство ARCONIC (Франция) / перфорация алюминиевого листа, 
сборка кассет и производство работ по монтажу фасада – БАУМЕТАЛЛ ГРУПП (Россия) 
Керамогранит: FLORIM (Италия) / поставщик LUCIDO – бутик Итальянской плитки (Россия) 
Окна и двери: SCHUCO (Германия) / СПК (Россия) 
Освещение: фасадное освещение INTILED (Россия), освещение благоустройства LAM32 (Италия), интерьерное освещение ALEDO (Россия) / поставщик ГАРМОНИЯ СВЕТА  (Россия) 
Вентрешетки: INVISILINE (Россия) 
Сантехника: BELBAGNO (Италия), KEUCO (Германия), HANSGROHE (Германия) / поставщик САНСТОР (Россия) 
Мебель: B&B (Италия), LA PALMA (Италия) / поставщик BESTES-HAUS Interieur (Россия) 
Индивидуальная мебель: Группа компаний АВЕРС (Россия)»