Размещено на портале Архи.ру (www.archi.ru)

17.10.2023

Золотное шитье

Алёна Кузнецова
Объект:
ЖК на улице Калинина
Адрес:
Россия, Казань. ул. Калинина, д. 1Б
Архитектор:
Степан Липгарт
Мастерская:
Липгарт Архитектс
Авторский коллектив:
Руководитель авторского коллектива: С.В. Липгарт
Архитекторы: Е.В. Зотова, Е.В. Подошвин

Пятиэтажный клубный дом, спроектированный Степаном Липгартом в Казани, реагирует на разностилевой контекст цельностью и одновременно подвижностью формы, а на соседство с театром «Экият» – сходством со складками театрального занавеса и активной пластикой балконов, в которой прочитывается сходство с театральными ложами. Он весь немного «на котурнах», но обобщен и современен. В нем даже не так просто найти элементы ар-деко, хотя дух тридцатых, пропущенный через фильтр неомодернизма, все же чувствуется. Как и Восток.

Дом спроектирован для участка в историческом районе Суконная слобода, которая располагается на периферии центральной части города: одной стороной она подходит к озеру Нижний Кабан, другой – к проспекту Универсиады, ведущему в аэропорт. У этих мест богатая история: суконную фабрику для нужд армии основал Петр I, позднее здесь скрывался от властей Емельян Пугачев, Александр Пушкин приезжал собирать фактуру, Федор Шаляпин ходил в начальное училище, некоторое время здесь жил Алексей Пешков.

Однако об уютном дачно-провинциальном духе деревянных домов, крутых улочек и пышной зелени сейчас не напоминает почти ничего: основательная подготовка к 1000-летию Казани и программа ликвидации ветхого жилья стерли все черты индивидуальности Суконной слободы. Освободившиеся территории заняло пестрое собрание: современный IT-кластер, лубочная Петербургская улица, напоминающий дворец театр кукол «Экият», жилой комплекс «Барселона» от Хосе Асебильо и другие диковинные сочетания. 

ЖК на улице Калинина. Панорамный вид с западной стороны
ЖК на улице Калинина. Панорамный вид с западной стороны
© Липгарт Архитектс

Участок, с которым работал Степан Липгарт, выходит на улицу Тихомирнова – такая странная фамилия была у профессионального революционера. Сейчас она четырехполосная, поскольку продолжает проспект Универсиады, но еще десять лет назад была грунтовой. Наполнение квартала, как и всей слободы, разнообразно: корпоративно-дворцового вида гостиница «Сулейман Палас», ангарного типа торговый центр, дом Осокиных XVIII века, хрущевка. Но за «точку отсчета», своеобразный камертон для отстройки пропорций, авторы приняли здание с соседней улицы Волкова – краснокирпичный лицей начала XX века, изначально бывший городским начальным женским училищем.

Напротив через улицу Тихомирнова начинается нагорная часть, застроенная элитным жильем. Собственно на участке перепад рельефа небольшой – в сторону Петербургской улицы идет понижение примерно на один метр. Высотное ограничение – 20 метров. 
ЖК на улице Калинина. Панорамный вид с восточной стороны
ЖК на улице Калинина. Панорамный вид с восточной стороны
© Липгарт Архитектс
ЖК на улице Калинина. Развертки по улицам
ЖК на улице Калинина. Развертки по улицам
© Липгарт Архитектс
Двор, дерево, фонарь
Пользуясь размером и ориентацией участка, авторы располагают дома таким образом, чтобы поддержать красные линии улицы Тихомирнова и достроить контур квартала: две «скобы» закрепляют углы, оставляя в центре место для третьего, подходящего к улице поперечно торцом. Таким образом достигается сомасштабность окружению и формируются два двора. Первый, со стороны улицы Волкова, остается на естественном уровне городской поверхности; в нем автор сохраняет несколько существующих сейчас деревьев. Второй двор, южный, приподнят на стилобате, со стороны улицы в него ведут широкая лестница с каскадным озеленением и пандус, оба под решетчатым стеклянным козырьком, похожим на крыло стрекозы. А для освещения пространства внутри стилобата задуман стеклянный купол – зенитный фонарь. 
ЖК на улице Калинина. Панорамный вид с юго-западной стороны
ЖК на улице Калинина. Панорамный вид с юго-западной стороны
© Липгарт Архитектс
ЖК на улице Калинина. Вид с в сторону восточного двора с лестницы и пандуса со стороны улицы Тихомирова
ЖК на улице Калинина. Вид с в сторону восточного двора с лестницы и пандуса со стороны улицы Тихомирова
© Липгарт Архитектс
ЖК на улице Калинина. Генплан
ЖК на улице Калинина. Генплан
© Липгарт Архитектс

Внутри под куполом, согласно первоначальной версии проекта, должен был расположиться фудкорт и ритейл – крытая общественная площадь в окружении магазинов. В конечном счете ресторанный дворик заменили на парковку для МГН, что, конечно, жаль. Между тем арендные пространства для кафе и магазинов в проекте занимают, наряду с входными лобби, все первые этажи. Три широких перспективных раструба входов, привлекая внимание и приглашая войти внутрь, увеличивают тротуар микро-площадями – и складываются в элегантную линию, напоминающую одновременно гибеллинские зубцы казанского Кремля и арабесково-флоральный орнамент из кринов с плавными скруглениями входов и слегка заостренными лепестками. В рисунок вплетается и цилиндрический объем одного из трех входов. Все это – любопытная особенность, поскольку совсем нечасто в современной жилой архитектуре можно увидеть красивую графику плана, которая, безусловно, отразится и на пластике фасадов в уровне пешехода. 
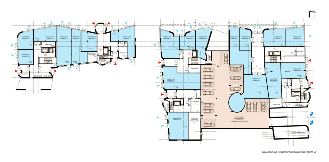
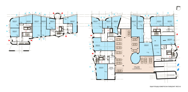
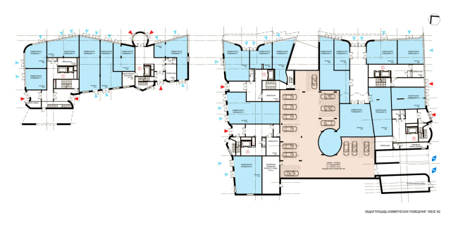
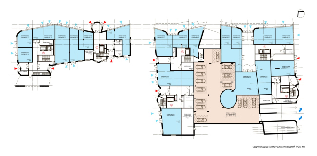
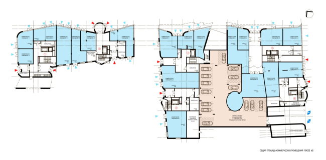
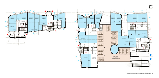
ЖК на улице Калинина. План 1 этажа
ЖК на улице Калинина. План 1 этажа
© Липгарт Архитектс

Впрочем, то и другое, даже если и было задумано, то затем ненавязчиво интегрировано, чтобы не сказать зашифровано, в плане. Здесь нет прямых аналогий. Существеннее, что заложенная на уровне первого этажа легкая складчатость становится одним из основных приемов решения всех фасадов в целом, отчего они превращаются в подобие шторы-занавеса: расправленного посередине, собранного по краям. Не потому ли, что неподалеку театр? И золотистые грани низа так напоминают бахрому... Даже и балконы на боковых фасадах и по сторонам лестницы во двор, с их чередующейся пластикой, то треугольные, то округлые – похожи на театральные ложи.
ЖК на улице Калинина. Общий вид с улицы Тихомирова, с северо-восточной стороны
ЖК на улице Калинина. Общий вид с улицы Тихомирова, с северо-восточной стороны
© Липгарт Архитектс

Впрочем, все эти аналогии ненавязчивы до недоказуемости, зато полученная форма зданий отличается очевидным разнообразием и сдержанной гибкостью, внутренней логикой и вариациями. 
 
Кара һәм ак (черный и белый)
Корпусов, напомним, три, и со стороны улицы они разделены контрастным цветом. Первоначально планировалось, что два южных будут черными, северный белым, затем черный заменили на контекстуальный оттенок темного шоколада, сохранив фактуру сплошных, напоминающих вельвет (опять занавес!) тонких рельефных ребер, которым вторит «реснитчатый» карниз над стеклянной лентой верхнего этажа. 
ЖК на улице Калинина. Вид западного корпуса с северо-восточной стороны, с улицы Тихомирова
ЖК на улице Калинина. Вид западного корпуса с северо-восточной стороны, с улицы Тихомирова
© Липгарт Архитектс

Темно-коричневый, действительно, «попадает» в цвет соседних зданий, хотя в целостном объеме выглядит несколько благороднее. 
ЖК на улице Калинина. Вид на участок проектирования с юго-восточной стороны с перекрестка улиц Тихомирова и Туфана Минуллина
ЖК на улице Калинина. Вид на участок проектирования с юго-восточной стороны с перекрестка улиц Тихомирова и Туфана Минуллина
© Липгарт Архитектс

Дворовые фасады на уличные – и похожи, и не похожи. Они – целиком светло-золотистого древесного оттенка, хотя полосатую фактуру сохраняют, как и формат решетчатых балконов разной формы. Но балконов, впадин и выступов здесь намного больше, частью фасады складываются в гармошку треугольных эркеров. Можно представить себе, что, если это «изнанка» занавеса, то она собралась складками намного теснее. Или вовсе не изнанка – а зрительный зал с видом на город? 
ЖК на улице Калинина. Вид восточного двора на стилобате
ЖК на улице Калинина. Вид восточного двора на стилобате
© Липгарт Архитектс

Сам оттенок умеренно-светлого дерева кажется обоснованным и внутренним характером двора как такового, и воспоминанием о когда-то бывшей здесь деревянной Казани. Тему поддерживают и сохраняемые деревья, и деревянная обрешетка купола. Получается свежо и неожиданно. Впрочем, дерево приобретает в городе все большую популярность и начинает ассоциироваться именно с элитным жильем: например, в отделке фасадов самого дорогого на настоящий момент дома используется лиственница. Тем не менее, стоит акцентировать, что дворовый фасад авторы видят в металле: предполагается использовать окрашенный алюминий или алюминиевый композит с текстурой искусственного кракелюра.
Волны и выступы
Дома невысокие, 4 жилых этажа, один, первый, общественный – в этом одно из достоинств высотного ограничения, их масштаб очень комфортный, умеренный. В относительно небольшом масштабе хорошо читается активная пластика: дома «лепные», их скульптурность разнообразна, углы то скругленные, то острые.

Поскольку автор – Степан Липгарт, известен своей приверженностью к интерпретации ар-деко разной степени классичности, само авторство провоцирует к поиску аналогий из преимущественно тридцатых годов прошлого века. Кое-что можно найти: к примеру, тяготение широких окон к горизонтали, или трехчастную структуру объема с утопленными цоколем и аттиком, но смелым карнизом.
ЖК на улице Калинина. Архитектурно-художественная подстветка
ЖК на улице Калинина. Архитектурно-художественная подстветка
© Липгарт Архитектс

А также – приверженность к эркерам, фасадам-гармошкам, или упомянутую выше осмысленность графики плана – если в первом этаже можно увидеть текучесть арабески, то в жилых этажах со стороны двора очень ритмично, ровно в ряд, чередуются круглые и треугольные балконы. 
ЖК на улице Калинина. План 2 этажа
ЖК на улице Калинина. План 2 этажа
© Липгарт Архитектс

К тридцатым хочется возвести и рельефные «ардекошные» каменные паттерны первого этажа, чья фактура на первый взгляд напоминает акустические панели, но при ближайшем рассмотрении оказывается деконструкцией каннелюры, где острые желобки и треугольные контуры соседствуют с дугами. А золотистый цвет натурального камня, как кажется, восходит аж к пастозно-золотистым фонам Густава Климта. 
ЖК на улице Калинина. Вид на фрагмент восточного фасада и въезд в подземный паркинг
ЖК на улице Калинина. Вид на фрагмент восточного фасада и въезд в подземный паркинг
© Липгарт Архитектс

Впрочем, «гофра» эркеров-клавиш не в меньшей степени может напомнить, к примеру, бруталистский театр на Таганке
ЖК на улице Калинина. Вид с улицы Тихомирова на фрагмент северного фасада, лестницу и пандус в восточный двор
ЖК на улице Калинина. Вид с улицы Тихомирова на фрагмент северного фасада, лестницу и пандус в восточный двор
© Липгарт Архитектс

Интереснее другое – тут почти не возможно обнаружить ни прямых цитат, ни даже погружения в определенную, популярную в современных клубных домах стилистику, в которую именно Степан Лигпарт временами так охотно и умело погружается. Дом ощущается как очень современный благодаря высокой степени обобщения, энергичной работе с формой и цветом. Сложность формы – именно что на уровне современных поисков в этом, «среднем» масштабе.

Цельная вертикально-полосатая поверхность то разглаживается, как будто по ней провели руками; собирается вертикалями, то ершистыми, то волнистыми – то вдруг в этом предсказуемом ритме намечается сбой, асимметричный выступ. Это какая-то новая, с элементами нелинейности – или как минимум авторской непредсказуемости, – трактовка темы «рабочего городка», далеко, впрочем, ушедшего в сторону дорогих фактур и оттенков, так же как и планировок: комнат с несколькими окнами, обзором на две стороны, обеденной зоной в эркере. С балконов и террас верхних этажей будет видно озеро Кабан и центральная часть города. Входы в здание сквозные, все лестницы освещены естественным светом. 

Словом, если здесь и есть отзвук поисков эстетики тридцатых, то очень опосредованный, актуализированный. Чувствуется и отклик на «булгарский» контекст: в золотистой «тесьме» откосов, «слитках» первого этажа, «смуглости» облицовки, а также в террасах, готовых принимать щедрое солнце. 
ЖК на улице Калинина. План 3 этажа © Липгарт Архитектс
ЖК на улице Калинина. План 3 этажа
© Липгарт Архитектс
ЖК на улице Калинина. План 4 этажа © Липгарт Архитектс
ЖК на улице Калинина. План 4 этажа
© Липгарт Архитектс
ЖК на улице Калинина. План 5 этажа © Липгарт Архитектс
ЖК на улице Калинина. План 5 этажа
© Липгарт Архитектс
ЖК на улице Калинина. План -1 этажа © Липгарт Архитектс
ЖК на улице Калинина. План -1 этажа
© Липгарт Архитектс
ЖК на улице Калинина. Разрез © Липгарт Архитектс
ЖК на улице Калинина. Разрез
© Липгарт Архитектс
ЖК на улице Калинина. Фасады © Липгарт Архитектс
ЖК на улице Калинина. Фасады
© Липгарт Архитектс
ЖК на улице Калинина. Фасады © Липгарт Архитектс
ЖК на улице Калинина. Фасады
© Липгарт Архитектс