Размещено на портале Архи.ру (www.archi.ru)

30.06.2023

Приморское представительство

Олеся Кучевая
Объект:
Общественное пространство Третьяковской галереи в г. Владивостоке
Адрес:
Россия, Владивосток. Алеутская 15
Мастерская:
LPTV DESIGN
Авторский коллектив:
Руководитель дизайн студии: Алексей Лаптев 
Главный дизайнер: Ольга Гришина
Ведущий дизайнер проекта: Екатерина Хохрякова 

В начале июля во Владивостоке откроется резиденция Третьяковской галереи. Она предоставит место для культурного досуга и подготовит город к появлению основного филиала в музейно-театральном комплексе на Орлиной сопке. Проект последнего, напомним, разработало бюро Snøhetta.

Общественное пространство Государственной Третьяковской галереи откроется в самом центре Владивостока – в нарядном здании, построенном в 1910 году по проекту архитектора Георга Юнгхенделя. Сейчас основную его часть занимает офис Дальневосточного морского пароходства. 

 


Основной же филиал Третьяковской галереи откроется в 2026 году в музейно-театральном комплексе, который строится на сопке Орлиное гнездо по проекту бюро Snøhetta. Аналогичные кластеры возводятся в Кемерове, Калининграде и Севастополе. 
Общественное пространство Третьяковской галереи в г. Владивостоке
Общественное пространство Третьяковской галереи в г. Владивостоке
© LPTV DESIGN

Резиденция будет решать две основные задачи: знакомить горожан с проектами и фондами Третьяковской галереи с помощью виртуальных экспозиций и образовательных программ, а также предоставлять площадку для культурного досуга. Посетители смогут пользоваться библиотекой с изданиями Третьяковской галереи и музеев Дальнего Востока, работать в приятной и спокойной обстановке коворкинга, назначать встречи.
Общественное пространство Третьяковской галереи в г. Владивостоке
Общественное пространство Третьяковской галереи в г. Владивостоке
© LPTV DESIGN

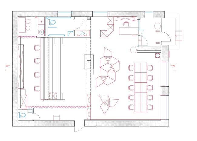
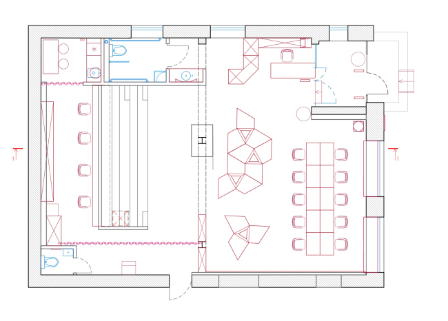
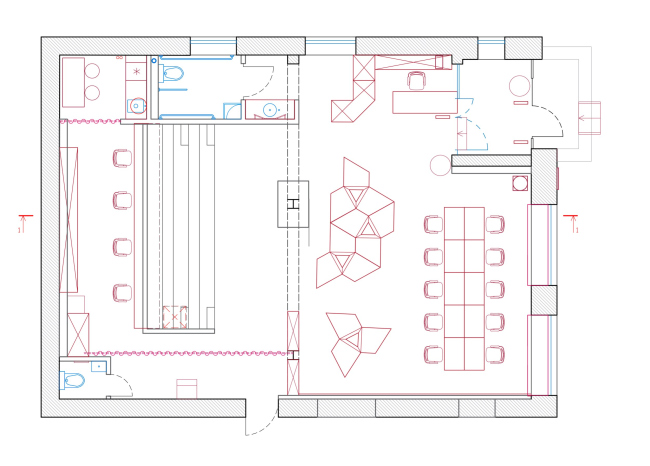
Под все эти цели команда студии LPTV DESIGN постаралась приспособить сложное и небольшое помещение. Предусмотрено несколько зон для разных сценариев деятельности: общий стол для работы с ноутбуком, мягкие диваны для чтения или беседы, амфитеатр перед проектором, стол для лекций и мастер-классов. Коворкинг прячется в самом уединенном и тихом месте – за задней стенкой амфитеатра. При необходимости пространства можно разделять или объединять с помощью мягких перегородок. 
Общественное пространство Третьяковской галереи в г. Владивостоке. Функциональный план
Общественное пространство Третьяковской галереи в г. Владивостоке. Функциональный план
© LPTV DESIGN
Общественное пространство Третьяковской галереи в г. Владивостоке. Разрез
Общественное пространство Третьяковской галереи в г. Владивостоке. Разрез
© LPTV DESIGN

Дизайн интерьера построен на сочетании визуальных образов галереи и Владивостока. Открытое пространство в едином теплом цвете молочного шоколада создаст ощущение уюта вне зависимости от времени суток или сезона. 
Общественное пространство Третьяковской галереи в г. Владивостоке
Общественное пространство Третьяковской галереи в г. Владивостоке
© LPTV DESIGN
Общественное пространство Третьяковской галереи в г. Владивостоке
Общественное пространство Третьяковской галереи в г. Владивостоке
© LPTV DESIGN
Общественное пространство Третьяковской галереи в г. Владивостоке
Общественное пространство Третьяковской галереи в г. Владивостоке
© LPTV DESIGN