Размещено на портале Архи.ру (www.archi.ru)

22.02.2023

Курдонеры на «гринфилды»

Алёна Кузнецова
Объект:
ЖК Юнтолово
Адрес:
Россия, Санкт-Петербург.
Мастерская:
SLOI Architects
ПИ-2
Авторский коллектив:
32 квартал: SLOI Architects
31, 33 квартал: ПИ-2

Еще один проект, рассмотренный градсоветом Петербурга, – эскиз застройки микрорайона по соседству с Юнтоловским заказником. Бюро SLOI Architects понизило высоту на 20 метров, добилось силуэтности и сохранило коэффициент использования территории на прежнем уровне. Но вопросы к работе все равно остались.

На прошлой неделе градсовет повторно рассмотрел эскиз застройки нескольких кварталов «минигорода» в Юнтолово. В декабре эксперты благосклонно отнеслись к кварталу 32, спроектированному бюро SLOI Architects, но высказали много критических замечаний в адрес кварталов 31 и 33, авторами которых выступили «ПИ-2». Заказчику рекомендовали представить более подробную транспортную схему, подумать о рабочих местах и событийном наполнении будущего района. 

ЖК Юнтолово. Проект 2023 года
ЖК Юнтолово. Проект 2023 года
© SLOI Architects / предоставлено пресс-службой КГА
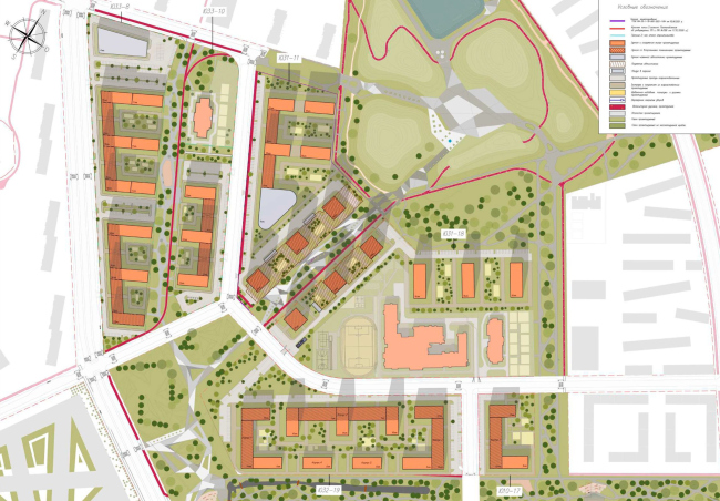
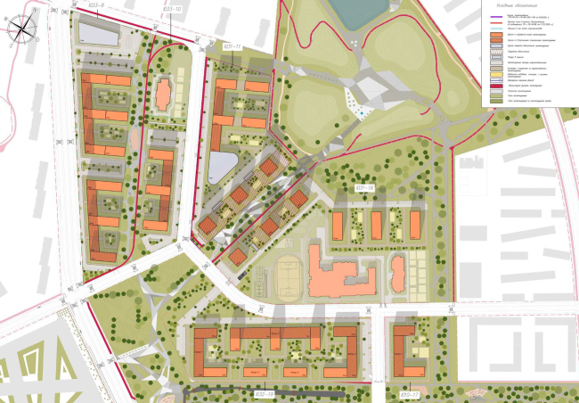
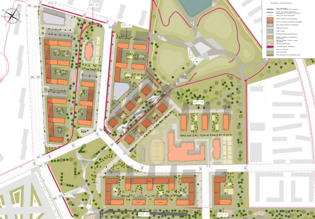
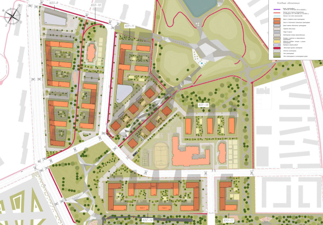
ЖК Юнтолово. Проект 2023 года. Генплан
ЖК Юнтолово. Проект 2023 года. Генплан
© SLOI Architects / предоставлено пресс-службой КГА

Мастерская «ПИ-2» вышла из проекта, их кварталы дорабатывало бюро SLOI Architects. Валентин Коган рассказал о главных изменениях. 

На месте семидесятиметровых пластин и башен квартала 33 появились многосекционные дома переменной этажности. Они формируют систему дворов-курдонеров, ориентированных на внутреннюю зеленую улицу – такими «гринфилдами» пронизана вся территория застройки, центром которой становится большой парк. Высота снизилась значительно: в среднем до 50 метров, появились и шестиэтажные «перемычки». При этом КИТ оказался на том же уровне. 
ЖК Юнтолово. Проект 2023 года
ЖК Юнтолово. Проект 2023 года
© SLOI Architects / предоставлено пресс-службой КГА

В квартале 31 шесть башен сохранили расположение и высоту, но получили новые фасады с градиентом. Высотный кластер теперь фланкируют дома-пластины, стройные ряды которых нарушает детский сад и треугольный в плане паркинг. 
ЖК Юнтолово. Проект 2023 года
ЖК Юнтолово. Проект 2023 года
© SLOI Architects / предоставлено пресс-службой КГА

Практически содокладчиком Валентина Когана стал Святослав Гайкович, который долго решал деловые вопросы по телефону, отключив звук градсовета. Было и включение от Михаила Мамошина по поводу предстоящих лекций. Видимо, к концу трехчасового заседания внимание экспертов рассеивается. 
ЖК Юнтолово. Проект 2023 года. Схема освоения территорий Юнтолово и высотности © ПИ-2 / предоставлено пресс-службой КГА
ЖК Юнтолово. Проект 2023 года. Схема освоения территорий Юнтолово и высотности
© ПИ-2 / предоставлено пресс-службой КГА
ЖК Юнтолово. Схема освоения территорий Юнтолово и высотности © SLOI Architects, ПИ-2 / предоставлено пресс-службой КГА
ЖК Юнтолово. Схема освоения территорий Юнтолово и высотности
© SLOI Architects, ПИ-2 / предоставлено пресс-службой КГА

Мнения относительно представленной работы, как это часто бывает, когда обсуждается работа молодых архитекторов, разделились. Среди достоинств отмечали снижение высоты, появившуюся силуэтность, удачное расположение паркинга и разнообразие композиционных систем. Не удалась, по мнению экспертов, улично-дорожная сеть, которая по-прежнему не читается, а также буферный парк, который в нынешнем виде не ждет ничего лучше, чем роль транзитной территории. 
ЖК Юнтолово. Проект 2023 года
ЖК Юнтолово. Проект 2023 года
© SLOI Architects / предоставлено пресс-службой КГА

Георгий Снежкин отметил, что так и состоялся квартал 32-18: из-за рыхлой застройки, необъяснимой с точки зрения планировки школы и детского сада, который «уехал» на периферию. Представитель заказчика пояснила, что на социальные объекты уже получено разрешение на строительство, поэтому их расположение на генплане – данность. 

Сергей Орешкин, бюро которого ранее разрабатывало эскиз застройки 31 квартала и даже согласовало архитектурно-градостроительный облик школы, заметил, что учебные учреждения возникли на участке не случайно и ориентировались на предыдущую композицию, от которой остались только шесть башен. Архитектору не понравилась лиловато-зеленоватая гамма башен, которым к тому же следует «быть экспрессивными и яркими, а не утилитарными».

Олег Харченко проект поначалу тоже критиковал: площадь-амеба будет выглядеть «убого и пустынно», башни должны быть выразительными, но из всех возможных средств авторы выбрали «невзрачную сеточку». 

Владимиру Григорьеву показалась странной ортогональная постановка домов 33 квартала по отношению к второстепенной улице, при том, что на Коннолахтинский проспект они выходят «под странным углом».
ЖК Юнтолово. Проект 2023 года © SLOI Architects / предоставлено пресс-службой КГА
ЖК Юнтолово. Проект 2023 года
© SLOI Architects / предоставлено пресс-службой КГА
ЖК Юнтолово. Проект 2023 года © SLOI Architects / предоставлено пресс-службой КГА
ЖК Юнтолово. Проект 2023 года
© SLOI Architects / предоставлено пресс-службой КГА
ЖК Юнтолово. Проект 2023 года © SLOI Architects / предоставлено пресс-службой КГА
ЖК Юнтолово. Проект 2023 года
© SLOI Architects / предоставлено пресс-службой КГА

К концу, впрочем, тон обсуждения потеплел. Владимир Григорьев похвалил «Валентина и его команду», которые стали заложниками ППТ, и заметил, что «у проектировщика человеческие, а не сверхчеловеческие силы: все делается в правильном направлении, схема сложилось, но нужно доработать в деталях». После этого что-то изменилось и в душе Олега Харченко, он снова взял слово и сказал, что «поддерживает работу» и отношение к ней хорошее. 

Павел Соколов похвалил готовность заказчика идти навстречу и учитывать замечания градсовета. 
ЖК Юнтолово. Проект 2023 года © SLOI Architects / предоставлено пресс-службой КГА
ЖК Юнтолово. Проект 2023 года
© SLOI Architects / предоставлено пресс-службой КГА
ЖК Юнтолово. Проект 2023 года © SLOI Architects / предоставлено пресс-службой КГА
ЖК Юнтолово. Проект 2023 года
© SLOI Architects / предоставлено пресс-службой КГА
ЖК Юнтолово. Проект 2023 года © SLOI Architects / предоставлено пресс-службой КГА
ЖК Юнтолово. Проект 2023 года
© SLOI Architects / предоставлено пресс-службой КГА
ЖК Юнтолово. Проект 2023 года © SLOI Architects / предоставлено пресс-службой КГА
ЖК Юнтолово. Проект 2023 года
© SLOI Architects / предоставлено пресс-службой КГА
ЖК Юнтолово. Проект 2023 года © SLOI Architects / предоставлено пресс-службой КГА
ЖК Юнтолово. Проект 2023 года
© SLOI Architects / предоставлено пресс-службой КГА
ЖК Юнтолово. Проект 2023 года © SLOI Architects / предоставлено пресс-службой КГА
ЖК Юнтолово. Проект 2023 года
© SLOI Architects / предоставлено пресс-службой КГА
ЖК Юнтолово. Проект 2023 года © SLOI Architects / предоставлено пресс-службой КГА
ЖК Юнтолово. Проект 2023 года
© SLOI Architects / предоставлено пресс-службой КГА
ЖК Юнтолово. Проект 2023 года © SLOI Architects / предоставлено пресс-службой КГА
ЖК Юнтолово. Проект 2023 года
© SLOI Architects / предоставлено пресс-службой КГА
ЖК Юнтолово. Проект 2023 года © SLOI Architects / предоставлено пресс-службой КГА
ЖК Юнтолово. Проект 2023 года
© SLOI Architects / предоставлено пресс-службой КГА
ЖК Юнтолово. Проект 2023 года © SLOI Architects / предоставлено пресс-службой КГА
ЖК Юнтолово. Проект 2023 года
© SLOI Architects / предоставлено пресс-службой КГА
ЖК Юнтолово. Проект 2023 года © SLOI Architects / предоставлено пресс-службой КГА
ЖК Юнтолово. Проект 2023 года
© SLOI Architects / предоставлено пресс-службой КГА
ЖК Юнтолово. Проект 2023 года © SLOI Architects / предоставлено пресс-службой КГА
ЖК Юнтолово. Проект 2023 года
© SLOI Architects / предоставлено пресс-службой КГА
ЖК Юнтолово. Проект 2023 года © SLOI Architects / предоставлено пресс-службой КГА
ЖК Юнтолово. Проект 2023 года
© SLOI Architects / предоставлено пресс-службой КГА
ЖК Юнтолово. Проект 2023 года © SLOI Architects / предоставлено пресс-службой КГА
ЖК Юнтолово. Проект 2023 года
© SLOI Architects / предоставлено пресс-службой КГА

Итог: «за» проголосовали 16 человек, «против» – 8. Решено одобрить эскиз с учетом замечаний Градостроительного совета.
Подробнее о проекте –>